Проект каркасной бани 5х5
Каркасные технологии на сегодняшний день бьют рекорды по популярности. По этой методике теперь строят не только дома, но и хозяйственные помещения, производственные объекты и многое другое. Большим спросом пользуются проекты каркасных бань разного размера и планировки, которые можно изготовить своими руками на территории загородного участка.
С чего начать
Прежде чем приступить к строительству каркасной бани своими руками, необходимо тщательно спланировать расположение и тип будущей постройки. На что следует обратить внимание:
- важно решить, будет ли каркасная баня пристройкой к дому или хозпостройке или станет отдельным объектом;
- подобрать место для строительства с учётом пролегания инженерных сетей и наметить пути прохождения коммуникаций;
- разобраться с особенностями грунта для определения типа фундамента бани;
- разработать или купить готовый проект с учётом индивидуальных требований (наличия мансарды, крыльца, чердака).
Совет! Чем подробнее разработан проект, тем легче будет его реализовать своими руками.
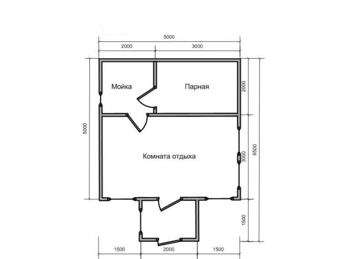
Готовый проект каркасной бани можно купить во многих строительных организациях, в них же можно заказать индивидуальную разработку. Минимальный размер площади бани – 3х4 метра. Оптимальной считается площадь 5х5 метров.
Проект своими руками
Чтобы напрасно не ломать голову над созданием чертежей с нуля, можно взять за основу любой готовый проект, с планировкой, соответствующей необходимой площадки застройки и просто внести в неё коррективы. К примеру, планировка каркасной бани размером 5 на 5 метров, как на фото:
Что будет важно для будущего индивидуального проекта:
- разумная внутренняя планировка бани;
- снижение расходов на строительство и содержание объекта;
- небольшие сроки работ;
- максимально облегчённый, но надёжный фундамент.
Внутренние помещения каркасной бани должны быть спроектированы так, чтобы вмещать необходимые предметы мебели. К примеру, планируя парную в бане важно заранее определиться с размерами печи и лавочек. В комнате отдыха нужно предусмотреть пространство, достаточное для установки стола и кресел или диванов. Необходимо продумать наличие предбанника, который предотвратит попадание холодного воздуха в зимнее время. В помывочной важно заранее определиться с габаритами душа и наличием бассейна или бочки.
Для каркасной бани на даче идеальным было бы наличие веранды или террасы размером 3х4 метра, на которой летом можно отдыхать после парной. Для некоторых важно наличие тёплого чердака, на котором удобно хранить и сушить веники.
Так и рождаются самые разные чертежи для бани каркасного типа с одинаковой площадью. Примеры чертежей на следующих фото:
Немного о преимуществах каркасных конструкций
Строение бани каркасного типа состоит из несущей конструкции из бруса или металла, обшитой листами ОСБ. Между внутренним и наружным слоем обшивки укладывается утеплитель и пароизоляционные материалы.
Совет! При желании, можно максимально удешевить строительство, используя в качестве утеплителя опилки, солому и другие доступные материалы.
Каркасная баня из таких строительных материалов весит совсем немного, а потому не требует основательного фундамента. Его легко изготовить своими руками, используя свайную или ростверковую технологию.
Таким образом, очевидны плюсы каркасного строительства:
- минимальные затраты на обустройство фундамента;
- все работы могут быть выполнены своими руками, без использования тяжёлой специальной техники;
- короткие сроки строительства.
Есть у этой технологии и свои минусы, о которых нельзя не упомянуть. Главный недостаток – повышенная пожароопасность конструкций. Именно поэтому специалисты настоятельно рекомендуют тщательно обрабатывать все детали огнеупорными составами и использовать для электропроводки специальные негорючие кожухи.
Важно! В каркасной бане нужно особое внимание уделить влагоизоляции стен, потому что минераловатные утеплители очень чувствительны к пару и теряют свои свойства при малейшем проникновении воды.
Пароизоляцию нужно делать очень тщательно, не экономя на материалах.
Бани, изготовленные в заводских условиях
Взяться за строительство каркасной конструкции своими руками решится не каждый. Можно выйти из положения, сделав выбор в пользу готового комплекта. В состав готовой бани входят:
- монтажный брус;
- комплект крепежей;
- материал для пола;
- внешние и внутренние стеновые панели;
- кровля;
- комплект технических документов.
В пакете документов должны быть чертежи проекта и подробная инструкция по сборке.
Чертёж бани размером 3х4 метра с верандой:
К сведению! Стены в готовых каркасных конструкциях состоят из СИП панелей, они очень просты в сборке.
Комплект готовой бани производится на заводе в соответствии со строительными нормами и правилами. В документации должно быть указано, что панели и каркас прошли специальную обработку антипиренами.
Материалы для бани
Если планируется построить каркасную баню своими руками, понадобятся следующие материалы:
- Материалы для каркаса бани: брус с сечением 10 на 15 сантиметров или 15 на 15. Для поперечных опор и укосов понадобится брус 8 на 8.
- Для кровли: брус 15 на 15, кровельный материал (ондулин, мягкая кровля, металлопрофиль). Не рекомендуется использовать керамическую черепицу, она слишком тяжёлая для каркасных стен.
- Материалы для обрешётки стен и крыши бани: рейки или доска толщиной 2 сантиметра.
- Для стен каркасной конструкции: ОСБ панели. Они же понадобятся для покрытия крыши мягкой черепицей.
- Материалы для пола бани– обрезная доска с обработкой антипиреном и противогрибковыми средствами.
- Материалы для внутренней и наружной обшивки: вагонка (обычно используется для обшивки внутри помещений), и имитация бруса для наружного оформления строения.
- Для утепления конструкции бани: негорючая минеральная вата. Толщина слоя зависит от климата региона. Оптимальным считается применение базальтовой ваты толщиной слоя от пятнадцати до двадцати пяти сантиметров.
К сведению! Специалисты не рекомендуют использовать в качестве утеплителя для каркасной бани пенополиуретан, он может плавиться от высокой температуры и является горючим материалом.
Кроме перечисленного, потребуются саморезы и гвозди разных размеров. Учитывая повышенную влажность помещений бани, лучше использовать оцинкованные крепежи.
Алгоритм строительства
Для каркасной бани легче всего установить своими руками столбчатый фундамент. Для него потребуются трубы из асбестоцемента диаметром 20 сантиметров и длиной два метра. Их заглубляют в полутораметровые скважины и заливают бетонно-щебеночной смесью. Количество столбов зависит от размеров бани, для маленького помещения 3х4 достаточно 12 штук, для бани 5х5 – около 18.
После установки опорных столбов, на них закрепляется обвязка из бруса. Детали скрепляются между собой гвоздями. Под обвязку обязательно монтируется гидроизоляция из рубероида. Как на фото:
Важно! Чтобы материал обвязки прочно «сидел» на фундаменте, его крепят к столбам при помощи металлических уголков и пластин.
На обвязку крепятся доски — лаги для будущего пола бани.
Каркас основания нужно тщательно обработать средствами от гнили и насекомых, противопожарной пропиткой.
Монтаж стен бани выполняется в следующей последовательности:
- на углах закрепляются угловые стойки и между ними – промежуточные;
- к стойкам крепятся при помощи саморезов листы обшивки, начиная с угла;
- в процессе монтажа оформляются оконные и дверные проёмы
Важно! Правильное положение каждого листа нужно проверять при помощи строительного уровня.
Стропильная конструкция крыши каркасной бани собирается на земле и затем поднимается наверх. Затем производится крепление обрешётки и укладка кровельного материала.
После того, как основной каркас установлен, осуществляется монтаж окон и дверей.
Таким образом, на строительство каркасной бани своими руками в среднем потребуется:
- 3 дня на установку фундамента;
- 3 дня на установку обвязки и стен;
- 2 дня на стропильную конструкцию;
- 2 дня на монтаж кровли, дверных и оконных конструкций, отделку.
Внутренняя отделка каркасной бани
Для наружной отделки каркасной бани используется имитация брёвен или обычный сайдинг.
Внутренняя отделка требует особого подхода. Прежде всего – нужно правильно выбрать вагонку. Для комнаты отдыха и предбанника подойдёт сосновая вагонка. Она не требовательна к уходу и выглядит довольно привлекательно, как на этом фото:
Помещение в парной и душевой лучше отделать липой или лиственницей. Эти породы выдерживают высокие температуры и сохраняют при этом цвет и форму. Кроме этих пород, для бани можно использовать:
- кедр – выделяет при нагревании эфирные вещества, благотворно влияющие на организм;
- абаши – тропическое дерево, отличается минимальной теплопроводностью;
- осина – устойчива к гниению и образованию плесневого налёта, выделяет при нагревании вещества, полезные для здоровья.
Важно! Вагонка монтируется на пароизолирующий слой так, чтобы оставалось небольшое пространство между деревом и фольгой.
Советы мастера
- Важно особенно тщательно выполнить пароизоляцию на стыках стен и пола каркасной бани – от этого зависит долговечность всей конструкции.
- Для дополнительного утепления бани снаружи под обшивку закрепляется дополнительный гидроизоляционный и теплоизоляционный материал.
- Внутренняя обшивка бани не покрывается лаком или краской, они будут выделять токсины при нагревании.
Потолки и полы бани нужно утеплить на совесть теми же материалами, что применялись на стенах.
Баня каркасного типа – доступное и практичное решение для загородного участка. Ее не сложно построить самостоятельно или купить в готовом варианте. Если подойти к разработке проекта и строительству с душой и фантазией, этот объект станет предметом зависти соседей и любимым местом отдыха для домочадцев.
bouw.ru>
Проекты каркасных бань
Особенности каркасных бань видны как при постройке здания, так и при дальнейшей его эксплуатации. Для таких строений не нужно подготавливать фундамент особенным образом, ведь сам каркас и облицовочные материалы из дерева достаточно легкие для того, чтобы не проседать даже при установке на довольно рыхлой земле.
Большой популярностью каркасные бани пользуются в силу их экономности, компактности и практичности. Небольшое помещение каркасной бани обычно разделено на компактную парную, где может разместиться около четырех человек, душевую и комнату отдыха. Обязательно также наличие в проекте небольшой террасы либо крыльца.
Обширные по площади бани обычно строятся более фундаментальным способом с использованием таких материалов, как кирпич либо брус, но, тем не менее, иногда встречаются даже двухэтажные каркасные сооружения. Среди явных преимуществ данного типа строений можно выделить простоту в установке, рекордную скорость сбора строения, сравнительно небольшую стоимость строительных материалов и работ.
Благодаря всем вышеуказанным факторам, россияне заказывают проекты каркасных бань намного чаще, чем постройку кирпичных банных сооружений.
Каркасная баня 6х4
Особенностью компактной каркасной бани 6 на 4 является необычная форма ее террасы и комнаты отдыха, которая зрительно помогает расширить пространство небольшого помещения.
Каркасная баня 3х4
Вариант 3 на 4 отлично подойдет для отдыха небольшой компании.
Каркасная баня 4х5
Классическая русская баня 4 на 5 состоит из санузла, парной и комнаты отдыха.
Каркасная баня 5,4х6,3 м
Данный проект является достаточно вместительным для отдыха небольшой компании друзей и одновременно настолько компактным, чтобы поместиться даже на небольшом либо почти полностью застроенном участке земли.
Каркасная баня с террасой
Небольшая терраса придает особенной миловидности бане, построенной по представленному проекту, делая ее похожей на миловидный деревенский домик.
В действительности внутри здания расположена не только традиционная парная и комната отдыха, но и раздельный санузел, и спальня, что делает такую баню вполне пригодной для проживания.
Небольшое такое строение может быть построена всего за несколько дней, а прослужить вам долгие годы.
В данном проекте присутствуют все необходимые составляющие для комфортного отдыха.
Каркасная баня 5.25×5.25 м
Небольшая каркасная баня с большим крыльцом либо маленькой террасой может послужить настоящим украшением вашего двора.
Помещение состоит из комнаты для отдыха, помывочной и парной.
Красиво выделенный фундамент и естественный цвет краски для дерева делают данный проект особенно миловидным снаружи. Внутри бани дополнительно присутствует небольшой тамбур, защищающий помещение от морозов.
Следующий вариант особенно примечателен своей двойной остроконечной крышей. Такое строение предоставляет возможность обустроить второй дополнительный мансардный этаж.
Благодаря компактным размерам бани, банная печь может справиться с обогревом всего помещения в любую погоду.
Высота потолков мансарды приемлема даже для высокого человека, благодаря особенной форме крыши.
Каркасная баня 6х8
Достоинства этого варианта состоят в том, что внешне строение смотрится довольно симпатично, а внутри помещение имеет еще и небольшой мансардный этаж.
Первый этаж помещение оборудован отдельным тамбуром и холлом, что обеспечивает надежную защиту от непогоды.
Мансарда является довольно просторной и вместительной.
Русская баня по каркасной технологии 6х6
Помещение 6х6 с парной и моечной – классический вариант русской бани.
В здании имеется все необходимое для комфортного времяпровождения небольшой компании людей, как внутри помещения, так и на просторном крыльце, которое смело можно назвать небольшой открытой террасой.
Большая каркасная баня 78 кв.м.
Особенностью данного проекта является обилие витринных окон в оформлении, которые придают помещению особенной элегантности.
Внутри здания находится полноценный бассейн, сауна и турецкая парная.
proekt-banya.ru>
Каркасная баня своими руками: особенности монтажа, советы профессионалов
Строительство бани каркасным способом одно из самых дешевых вариантов. А современные отделочные материалы, например, имитация бруса или блок-хаус придадут строению вид практически неотличимый от настоящей деревянной бани. Расход материала на монтаж в 2–3 раза меньше. Как поэтапно возводиться каркасная баня своими руками расскажут наши специалисты.
Каркасная небольшая баня экономична и легко впишется на любом участке.
Каркасная баня имеет плюсы: низкая цена, быстрота сборки, облегченный фундамент и минусы: в каркас легко может попасть влага, строение нужно тщательно утеплить и выполнить внешнюю и внутреннюю отделку. Но проблемы решаемы, если отнестись к строительству с ответственностью.
Где лучше поставить каркасную баню на участке расскажет ландшафтный дизайнер Вера Николаевна, г. Москва
Вера Николаевна специалист в области планирования бань из дерева.
Вера Николаевна имеет высшее архитектурное образование и второе дизайнер-ландшафта. Основная специализация-планирование бани из дерева, привязка проекта к участку. В данной области работает более 10 лет.
Какие основные факторы необходимо учитывать перед строительством бани?
Перед строительством каркасной бани необходимо распланировать и выбрать проект. Можно провести стройку без него,но это будет неправильно. Выбор проекта зависит от нескольких факторов:
- Какой будет баня: отдельно стоящей или пристроенной к основному дому.
- Спланировать место на участке. Причем важно продумать как к бане провести воду, электричество и т.д. Расположение коммуникаций влияет на выбор места в первую очередь.
- Узнать какая геодезия на участке, от этого в дальнейшем зависит конструкция фундамента каркасной бани.
- Определится сколько этажей будет у строения, размер и внутреннюю планировку.
- Где в бане будет установлена печка, от этого зависит как будет сконструирована система вентиляции и дымоходная труба.
- Необходимо выбрать кровлю, это повлияет на стропильную систему и строение крыши.
Типовой проект каркасной бани 5400х6300 м
Только после этого разрабатывается проект бани. По мере составления можно поправлять и дополнять конструкцию различными деталями. Чем подробнее будет проект, тем проще будет построить каркасную баню на своем участке.
В целях экономии удобно приобрести типовой проект, которых много в строительных компаниях. Надежнее выбирать такой, к которому много готовых фото.
Выбирая, подходящую баню не стоит забывать о дизайне соседних построек: дома, беседки. Все должно быть в едином гармоничном ансамбле.
После выбора проекта можно приступать к монтажу фундамента.
Как лучше выполнять монтаж каркасного строительства, расскажет прораб компании «Строим Вместе» г. СПб Виктор Леонидович
Прораб крупной строительной компании рассказывает о тонкостях строительства каркасной бани.
Виктор Леонидович построил более 400 проектов каркасной бани на приусадебных участках и в частных владениях. Его бани служат своим хозяевам уже более 15 лет.
Как правильно собрать фундамент под баню своими руками?
Сложный фундамент под каркасную баню сооружать не стоит и выдерживать его в течение года перед сборкой коробки не нужно. Проще всего при глинистой или пучинистой геодезии собрать ленточный не заглубленный. Выполняют работы следующим образом:
- Согласно проекту отмечается периметр фундамента, просто втыкаются колышки по углам.
- Роется траншея в глубину 60 см и шириной в 40 см, этого достаточно для каркасного строительства.
- В траншею насыпают песок на 10-15 см и поливают водой трамбуя. Следующим слоем засыпается гравий или битый красный кирпич и опять слой песка до уровня грунта.
- На траншею монтируется опалубка. Самостоятельно проще выполнить ее из досок и брусков 40х40 мм. Высота опалубки должна быть не менее 50 см и ширина 35 см.
- В опалубку собирают каркас из арматуры. В качестве экономии можно воспользоваться различными железными элементами, например, старые трубы из системы отопления.
- Конструкцию заливают бетоном. Заливку можно выполнять разом или поэтапно, но нижний слой не должен успеть схватиться.
- Сверху фундамент гидроизолируют 2–3 слоями рубероида или жидкой резиной в 2–3 мм. Бока обмазываются битумной мастикой.
Перед началом сборки коробки необходимо убедится, что фундамент дозрел и высох. Правильную сушку осуществляют постепенно, укрыв конструкцию старыми полиэтиленовыми мешками или пленкой на 2–3 дня. Затем раскрывают и дают постоять еще 1–2 дня.
Какие особенности имеет сборка коробки бани?
Коробка каркасной бани отделанная блок-хаусом.
Каркас бани нужно собирать из бруса сечением 100х100 мм и обрезной доски шириной от 450 мм. Пиломатериал перед монтажом необходимо просушить или взять готовый камерной сушки. Второй вариант дороже. Древесина может быть любой: лиственница сосна, ель, осина. В любом случае внутри баня будет отделываться и подтеков смолы не будет.
Весь материал перед сборкой обрабатывают антисептиками. Для этого лучше воспользоваться специальными, типа Сенеж или ТехноНиколь. Существуют дедовские методы: при помощи отработки машинного масла или медного купороса. Но первый будет выделять жидкий запах, а второй ядовит.
Готовый каркас большой бани из бруса камерной сушки.
Первым этапом выкладывается нижняя обвязка. Брус в углах соединяется специальными металлическими скобами или при помощи гвоздей в угловое соединение без остатка, например в полчетверти. Обвязка укладывается не прямо на фундамент, а на две узкие рейки, которые необходимо проложить по всему периметру основания.
По углам к обвязке монтируется вертикальный брус по размеру равный вышине коробки. Крепить его лучше всего к фундаменту при помощи специального крепежа на штырь не меньше 200 мм. Одной стороной крепеж прикручен к фундаменту второй держит вертикальный брус. Сверху конструкцию соединяют верхней обвязкой.
Для придания дополнительной жесткости между углами ставят стойки из такого же бруса. Угловые стойки дополнительно крепят минимум 8-ю раскосами. После приступают к сборке чернового пола.
Лаги для чернового пола своими руками проще собрать из спаренных досок 50х150 мм. Укладывают лаги выступающую часть фундамента. Сверху на лаги настилают черновой пол. Половой пирог в комнатах отдыха и предбаннике выполняют с утеплением. Для этого на лаги снизу прибивают рейки и на них укладывают доски. На доски монтируют гидроизоляцию и утеплитель. Затем монтируется пароизоляция и чистовая доска или стяжка.
В парилке полы для простоты сборки своими руками проще собрать простые, но свести их необходимо с уклонов к середине. В противном случае около стен будет скапливаться влага и каркасная конструкция долго не простоит.
Каркасные стены необходимо зашить с внешней стороны досками. Затем изнутри прокладывается гидроизоляцию, лучше брать специальную мембранную. Использовать рубероид для бани не стоит, при нагреве он станет выделять сильный запах. Сверху укладывается утеплитель. Баня подразумевает использование экологически и пожаробезопасных материалов, например минвату (каменную, стекло и т.п.).
Вагонка из липы монтируется на дополнительную обрешетку изнутри каркасной бани.
Укладывать утеплитель следует плотно между брусом. Со внутренней стороны необходимо проложить фольгоизоль. Она будет выполнять сразу две функции: защищать утеплитель и создать в парилке эффект термоса. Стыки тщательно проклеиваются специальным фольгированным скотчем. На фольгоизоль делается обрешетка из бруса и набивается вагонка из липы или осины.
Крышу собирают как у всех конструкций, согласно выбранному проекту. Подробнее о том как монтировать крышу бани мы уже говорили.
Каким материалом лучше отделывать каркасную баню снаружи?
Стена каркасной бани обшитая блок-хаусом.
Фасад каркасной бани отделывается любым материалом. Выбирают отталкиваясь от общего дизайна всех строений на участке. Если основной дом из кирпича, то можно обшить баню панелями из плитки под него или обложить в полкирпича. Причем обкладывая в полкирпича можно еще раз утеплить строение снаружи. Основная схема пирога немного дополнится, но парилка станет теплее.
Неплохо смотрятся натуральные имитация бруса и блок-хаус. Они изготовлены из дерева баня не утеряет экологичности. А отличить от бани из бруса или оцилиндрованного бревна конструкцию будет сложно.
Если выполнить армирование, то можно воспользоваться декоративной штукатуркой. Она тоже экологична, а ассортимент расцветок и текстур в магазинах огромный.
Самый недорогой вариант это сайдинг или пластиковая вагонка. Первый вариант более долговечен.
Канадская технология — это прорыв в каркасном банестроение?
Каркасная баня собранная по канадской технологии.
Каркасные бани по канадской технологии появились в России сравнительно недавно. Канадская технология имеет ряд плюсов:
- Срок службы у бани в 2–3 раза больше любой каркасной.
- Ремонтные работы приходится проводить реже.
- Экологичность и эстетичность.
- Цена выходит немногим выше каркасной традиционной.
- Сборку можно осуществить за 3–4 дня.
- Хорошо переносить негативные воздействия окружающей среды.
- Легкий вес постройки.
Основа каркаса Канадской бани выполнена из металлического каркаса или из бруса камерной сушки. Сверху и изнутри всю конструкцию зашивают плитами из цемента и стружки. Утепляется баня минватой между плитами и герметизирующими паронепроницаемыми материалами. Благодаря конструкции баня получается полностью герметичной и влажность внутрь не попадает. Канадскую каркасную баню изготавливают только на крупных производствах по заранее продуманным чертежам.
Любое каркасное строительство, а особенно бани кажется несложным. Но сил и времени на работы уходит не меньше чем построить парилку из цельной древесины. Просто отделка и утепление затратны и трудоемки. Какую баню лучше строить своими руками для семьи решает каждый для себя сам.
banyabest.ru>
Каркасная баня своими руками: как построить быстро, качественно и на «на века»
Построить каркасную баню своими руками – проще простого. А если ее еще и грамотно утеплить и изолировать от влаги, можно получить в итоге парную, почти ни в чем не уступающую ни кирпичным архитектурным шедеврам, ни массивным сооружениям из оцилиндрованных бревен. И наша статья подробно расскажет о том, как строится каркасная баня своими руками: видео, фото и пошаговые руководства – все для вас!
Заметим, что каркасные бани собственноручно возводятся куда легче, чем кирпичные или брусовые – ни чертежей, ни серьезного фундамента, ни дорогих материалов не нужно. Все настолько просто, что справиться с работой может даже школьник. Главное – знать, как и что делать.
В строительном плане каркасная баня имеет ценное преимущество, что, ввиду своей легкости, она не дает усадки, — чего не избежать рубленным парным. А вот минус – во влажности во время снега и дождя, которая способна проникать во все щели и накапливается внутри каркаса. Именно эту проблему и нужно постараться решить заранее.
- 5 Этап V. Сооружаем стропильную систему
- 6 Этап VI. Отделываем стены современными материалами
- 6.1 Вагонка
- 6.2 Термопанели
- 6.3 Облицовочный кирпич
- 6.4 Виниловый сайдинг
- 6.5 Блокхаус
- 7 Этап VII. Утепляем и пароизолируем
Этап I. Проектируем
Итак, по каркасной технологии вы можете построить как небольшую парную на парилку и предбанник, так и двухэтажный загородный дом-баню. Все зависит от вашей фантазии и финансовых возможностей!
Для небольшой каркасной бани вам понадобится сделать простой ленточный или столбчатый фундамент, закупить сухой брус сечением не меньше 20х20 для стоек и обрезную доску:
Для каркасной бани, где будет минимум три помещения, незатейливым фундаментом из бруса уже не обойтись:
По желанию, чтобы сэкономить строительные материалы, вы можете сделать предбанник отдельно, как пристроенную веранду, тогда внутри достаточно будет места для парилки и моечной:
А вот за рубежом довольно популярно каркасной строительство целых двухэтажных домов. Естественно, и фундамент здесь нужен надежный (об этом – ниже), и материал хороший:
Либо сделайте вашу баню более просторной по площади, вместо второго этажа:
Чем этот вариант лучше? Дело в том, что каркасные бани – самые пожаронебезопасные. И худший вариант, если во время возгорания вы с друзьями находитесь в бильярдной на втором этаже. Огонь поднимается быстро, и вам попросту придется прыгать в сугроб – на этот раз не из соображений здоровья и экстремизма после разгоряченных процедур. А вот если дело будет летом…
Этап II. Строим фундамент
Строительство самой простой каркасной бани своими руками обычно не требует предварительного изготовления фундамента ввиду ее легкости. Но, если вы не хотите, чтобы стены стали сыреть, тогда основание делать все-таки придется.
Деревянный брусовый: для мини-бани
Если ваша баня будет от силы 3х4, и стены с крышей планируются легкими, тогда вы можете поставить простой деревянный фундамент, закрепив его кольями по бокам:
Такой фундамент особенно хорош для капризных глинистых почв, которые не страдают избыточной влагой, но при этом сезонно подвижны.
Столбчатый: для высоких грунтовых вод
А вот для строительства на неравномерной и неоднородной почве, где грунтовые воды расположены довольно близко, больше подходит столбчатый фундамент:
Чтобы соорудить такой фундамент, вам не понадобится ни техника, ни дополнительная строительная бригада. Достаточно вооружиться буром, асбестовыми или пластиковыми трубами, и уметь замешивать цемент. После чего переходим к таким шагам:
- Шаг 1. Выравниваем участок.
- Шаг 2. Размечаем место расположение будущих столбов.
- Шаг 3. Бурим отверстия и делаем внизу каждого из них гидроизоляцию.
- Шаг 4. Постепенно заливаем бетон и аккуратно поднимаем трубу.
- Шаг 5. На отметке 20-30 см трубу закрепляем, ожидая застывания бетона, и армируем.
- Шаг 6. Как только застынет основание, заполняем трубу бетоном уже до конца.
- Шаг 7. Формируем ростверк – при помощи обычного крепкого бруса.
Экономично и просто, что и нужно для каркасной бани. А вот как выглядит дальнейшее строительство на таком фундаменте:
Фундамент из блоков: под легкую баню
Для бани средней архитектуры, где будет стоять тяжелая печь и ходить далеко не один человек, хорошо подойдет крепкий фундамент из блоков:
Но строить такой фундамент разрешено только на том грунте, где глубина промерзания не превышает одного метра.
Свайно-винтовой: для сложных почв
Без этого вида фундамента не обойтись, если вы строите солидную каркасную баню (или даже баню-дом), а глубина промерзания грунта находится низко. Тогда до более твердого основания придется добираться современными сваями. Это достаточно простая технология, и обычно можно обойтись рабочей силой четырех человек:
- Шаг 1. Размечаем места будущих свай.
- Шаг 2. Бурим отверстия нужной длины, которую рассчитываем исходя из полученных данных о грунте.
- Шаг 3. Ставим сваи и постепенно ввинчиваем их в землю.
- Шаг 4. Собираем и закрепляем обвязку.
Ленточный: для надежных почв
Если почва на участке пучинистая, то лучше остановить свой выбор на простом ленточном основании. Для того чтобы соорудить такой фундамент, нужно сделать вот что:
- Шаг 1. На выбранном месте проводится планировка, а по ней уже выкапывается траншея – шириной около 40 см и глубиной 50 см.
- Шаг 2. Траншею нужно заполнить песком до уровня земли и послойно утрамбовать, постоянно поливая водой для лучшей усадки.
- Шаг 3. Ставим опалубку – высотой 50 см и шириной – 30 см.
- Шаг 4. Основание в опалубке нужно армировать металлическими трубами и прутками – для прочности.
- Шаг 5. Теперь можно заливать бетон – либо за один подход, либо послойно, но не давая предыдущему слою успеть высохнуть.
- Шаг 6. Поверх всего нужно положить рубероид – для гидроизоляции каркасных стен.
Посмотрите фото, как это делается:
А вот как выглядит строительство небольшой каркасной бани на таком фундаменте:
О сборном ленточном фундаменте вам придется задуматься, если вы собрались строить достаточно большую каркасную баню:
Суть такого основания в том, чтобы создать максимально надежную опору на любом виде почв, кроме плавающих.
Этап III. Укладываем и утепляем полы
Коротко говоря, чтобы сделать полы в каркасной бане, к нижней части их лаг и в комнате отдыха, и в парилке, и в предбаннике нужно прибить бруски с сечением 5х5 см, а на них сверху – настелить доски чернового пола, затем – рубероид, и наконец – минеральные ваты толщиной 10 см либо пенополистирол. А уже под доски чистого пола следует для пароизоляции постелить пергамин:
В моечной же пол делать нужно иначе:
- Шаг 1. Так, для того чтобы в холодные времена он был всегда теплым и высыхал быстро, по всему его периметру нужно сделать обособленный фундамент.
- Шаг 2. Далее снять слой почвы на полметра, и в получившийся котлован засыпать гравий и песок на 10 см слоя. Если вода попадет в такой дренажный колодец, то уйдет в грунт, и приямка делать не нужно будет.
- Шаг 3. В качестве лаг такого пола лучше всего использовать асбестоцементные трубы диаметром 10 см, которые кладутся прямо на фундамент и заливаются бетоном – чтобы тот их удерживал от смещения.
- Шаг 4. Затем в моечной стелется обрезная округлая доска 4-5 см толщиной – на трубы, но с зазором 6-7 миллиметров с резиновыми прокладками, которые прибиваются гвоздями.
- Шаг 5. После всего этого пол можно прижимать плинтусами.
Более подробно – на видео:
Этап IV. Поднимаем стены
Итак, фундамент готов, и мы можем смело переходить к строительству стен каркасной бани. Как вы уже подметили для себя из наших схем, ничего сложного здесь нет.
Итак, еще перед тем, как начать строить стены, важно тщательным образом убедиться, что подготовленная древесина – хорошо просушена. А породы она может быть практически любой (кроме как из березы, которая быстро гниет) – липы, лиственницы или осины, теплопроводность у которых низкая, и строение на долгое время сохраняет свою форму. Причем для внешний обшивки лучше всего подходит именно сосна и лиственница, а для внутренней – любая другая порода дерева, наиболее целебной из которых является осина.
Снаружи все доски нужно будет по окончанию строительства покрыть антисептиком «Текстурол», а внутри вагонку желательно отшлифовать и покрыть в два слоя мебельным лаком. Кроме мойки и парилки, там целесообразна будет специальная пропитка.
Строим стены прямо на фундаменте
Итак, надежней всего сделать нижнюю обвязку из крепкого бруса, например, с сечением 10х10 см, соединив его в углах в четверть и хорошо скрепив гвоздями. Для того же, чтобы нижняя обвязка и установленные угловые стойки не смещались, их нужно ставить на штыри из стали по 2 см, которые вмурованные в бетон. Точно такой же брус можно использовать и для верхней обвязки. А для того, чтобы каркас бани получился достаточно жестким, по углам желательно поставить 8 раскосов.
По стенам теперь нужно установить промежуточные стойки из брусьев с тем же сечением – 10х10 см. И можно класть лаги для пола, в качестве которых хорошо подойдут спаренные доски с параметрами сечения 15х5 см, которые можно класть прямо на гидроизоляцию фундамента.
Поднимаем готовые стены
Иногда удобнее соорудить и скрепить каркасные стены на земле, а затем их просто поднять:
Чем конкретно удобнее? Хотя бы тем, что здесь нет необходимости работать руками выше головы, и они не так затекают. Плюс стены и фундамент можно строить одновременно, если вас работает несколько человек.
И уж точно удобнее поднимать готовые каркасные стены, если вы строите двухэтажную баню:
Этап V. Сооружаем стропильную систему
Балки перекрытия и стропила каркасной бани сооружать лучше всего из досок сечением 15х5 см, ставя их на ребро и скрепляя между собой. В итоге расстояние между стропилами должно получиться 10х12 см. В вертикальном положении их нужно фиксировать «косынками», а сверху – соединять между собой такого же сечения коньковым брусом. Балки же нужно выпустить наружу на расстоянии 40 см. А саму обрешетку для этого сделать можно из доски толщиной 25 см, укладывая ее прямо от конька.
А для скрепления стропильных ферм еще на земле сегодня используют специальные металлические пластины:
Согласитесь, ведь проще собирать стропильную конструкцию прямо на земле, после чего поднимая ее наверх и уже устанавливая готовой. Тем более, когда речь идет о каркасной бане.
И, наконец, в качестве кровельных покрытий больше всего подойдет мягкая черепица, если баня легкая и на условном фундаменте, и металлочерепица, если речь идет о более серьезной постройке.
Если у вас не будет чердака, тогда обязательно утеплите крышу снаружи:
Этап VI. Отделываем стены современными материалами
А теперь – к самой интересной части строительства каркасной бани. Мы ведь не оставим ее в ОСБ? Конечно, самое время подобрать для нее «шубу».
Но покраска краской и штукатурка – не единственные варианты внешней отделки, которую может иметь каркасная баня: отзывы опытных дачников говорят о том, что не важно, настолько простой является ее конструкция – извне ей вполне можно придать дорогой и шикарный вид. А современный строительный рынок предлагает море видов отделки для таких построек, самыми удачными именно для бани из них будут следующие.
Вагонка
Декоративная и имитационная вагонка – самое простое и доступное, чем можно обивать снаружи каркасные бани: такие сооружения получаются очень солидными, и их не стыдно показать знакомым и друзьям, приглашая на банный веник и барбекю на природе.
Располагать вагонку на внешней стене нужно горизонтально, и положив под обивку предварительно гидроизоляцию из пергамина. Крепите при этом цельные листы внахлест, проклеивая все края скотчем – важно тщательно проделать эту операцию, чтобы в бане не возникала ненужная влага.
Термопанели
Традиционная постройка каркасной бани все равно предусматривает обязательное утепление стен, так почему бы это не сделать с помощью термопанелей? По своей сути они представляют собой трехслойную конструкцию с утеплителем – минеральной ватой или пенопластом, заключенными между двумя ПВХ-слоями. Наружная их поверхность обычно выполнена в форме кладки и посыпана спрессованной каменной крошкой.
Сами панели при этом имеют взаимные пазы, а потому образуют монолитный рисунок каменной или кирпичной стены. А сделать такую отделку на бане можно самыми обычными саморезами, которые закрепят панели к профилям на фасадах.
Облицовочный кирпич
Кирпичная ровная кладка идеально вписывается в любой ландшафт дачного участка. И очень красиво она всегда смотрится на бане, причем обложить каркасную конструкцию кирпичом и выложить из него ее начисто – абсолютно разные вещи, как по трудозатратам, так и по цене. А еще между облицовочной кирпичной кладкой и деревянными каркасными стенами можно проложить дополнительное утепление, немного изменив традиционный «пирог», но ни в чем не проиграв.
Виниловый сайдинг
Сайдинг – самый легкий и самый популярный материал для обшивки каркасных бань. Стоит он не дорого, а в монтаже удивительно легок. Да и разнообразии цветов, текстур и толщины не может не радовать.
Блокхаус
Для тех владельцев, кто всю жизнь мечтал об красивой бревенчатой бане, но построил на участке пока только каркасную, есть хорошая новость – с помощью новейшего материала для отделки блок-хауса парную теперь снаружи отличить от настоящего сруба будет невозможно:
Этап VII. Утепляем и пароизолируем
Приступаем к внутренним работам. Типовое устройство каркасной бани таково, что самое страшное для нее – это скопление влаги в то время, когда внутри конструкции – высокая температура воздуха, а на улице – зима. Вот почему без пароизоляции не обойтись. Самый простой вариант – это полиэтиленовая пленка под внутренней вагонкой.
Особенно внимательно нужно подойти к процессу обшивки парилки. Здесь тоже необходима качественная пароизоляция – алюминиевая фольга, пергамин, пароизоляционная пленка и др. Но стоит помнить, что толь и рубероид в этом помещении при нагревании будут источать специфический запах.
Так, по совету опытных строителей утеплять стены каркасной бани лучше всего рулонной «Урсой», толщина которой – 50 мм. Закладывать ее следует между вертикальными стойками, прибивая попутно к ним рейки. В некоторых местах утеплитель можно и прибить к наружным доскам, но только специальными гвоздями с резиновой шайбой под головкой.
Если все сделать именно так, то получится такой слоеный пирог стен бани:
- вагонка наружная;
- пергамин;
- утеплитель;
- пленка полиэтиленовая;
- вагонка внутренняя.
Главное, чтобы внутри стен остался воздушный зазор в 5 см толщиной – это важно.
Но особенное внимание необходимо уделить парилке – здесь важен так называемый «эффект термоса». А потому теплоизолятор укладывать лучше фольгой внутрь помещения, причем в потолке нужно использовать не только фольгированную «Урсу», но и еще 5 см обычного утеплителя.
А стены и потолок парилки лучше всего отделывать целебной осиновой вагонкой, подойдут и тополиные или шпунтованные липовые доски.
И, наконец, технология строительства каркасной бани должна обязательно предусматривать качественную вентиляцию. Для небольшой бани вполне подойдет вытяжная труба из асбоцемента, диаметром 12 см – чтобы в парной не пахло плесенью. Саму трубу достаточно вывести до чердака, и во время банных процедур и горячей топки раскаленный воздух через щель в под дверью будет попадать в мойку, а вытяжной вентиляцией забираться через щели пола и тем самым ногам в этом помещении всегда будет тепло.
Главное – проявить фантазию и помнить, что бюджетная баня по каркасной технологии – не значит некрасивая или неуютная. В руках мастеров, как говорится, все спорится!
stroy-banya.com>
Как построить каркасную баню своими руками
Нет денег на строительство бани из бруса или кирпича, значит, придется воспользоваться дешевой технологией возведения каркасного здания. И хотя каркасная баня – это небольшие денежные вложения, все равно она будет отвечать поставленным задачам. Конечно, если правильно подойти к самому строительному процессу. Итак, для тех, кто хочет своими руками построить баню по каркасной технологии, предлагаем ознакомиться с основными его этапами и некоторыми нюансами.
Пошаговая инструкция строительства каркасной бани своими руками
Как и любой строительный процесс, сооружение каркасной бани делится на несколько этапов. У каждого этапа свои моменты и требования.
Сооружение фундамента
В первую очередь необходимо выбрать фундамент под каркасную баню. Так как это сооружение легкое, то можно предложить два варианта:
- Столбчатый.
- Ленточный (малозаглубленный).
Строительство столбчатого фундамента для каркасной бани основано на правильном выборе места для их заливки. Обычно это места под углами бани и несколько фундаментов промежуточных, на которые будут опираться несущие стены. Расстояние между столбами – 80-150 см. Этот показатель определяется несколькими факторами:
- Размеры столба;
- Состояние грунта;
- Вес каркасной бани;
- Этажность строения.
Если внизу скважины под фундамент сделать расширенное пространство, которое называется пятой, то можно уменьшить и число столбов, и их размеры. Все дело в том, что такая форма фундаментного столба увеличивает в два раза его грузоподъемность. Для создания такой формы придется воспользоваться специальным буром.
Итак, места установки фундаментных опор для каркасной бани определены, теперь необходимо выкопать ямы под них. Для этого можно воспользоваться садовым буром диаметром 200 мм. Своими руками эту операцию может осилить даже подросток. Глубина скважины – 1 м.
- В подготовленные скважины засыпается или песок, или щебень мелкой фракции толщиною 10-15 см.
- Устанавливается заранее подготовленный армирующий каркас в виде конструкции с треугольным или прямоугольным сечением из арматуры. Он должен возвышаться над краем грунта приблизительно на высоту 20 см.
- Из рубероида делается цилиндр, который опускается в скважину. Это своеобразный гидроизоляционный слой и элемент формирования гладкой поверхности опоры.
- Сверху над скважиной необходимо установить небольшую опалубку высотою, равной высоте выступа армокаркаса. Ее можно сделать из пластиковой канализационной трубы диаметром 200 мм. Кстати, эта опалубка может работать, как несъемная.
Заливается своими руками бетонный раствор, который по мере заливки штыкуется куском металлической арматуры или трубою. Здесь важно не только хорошо утрамбовать материал своими руками, но и удалить максимальное количество воздуха, которое попадает в него в процессе замеса. Именно воздух после застывания бетона определят количество пор, а они негативно влияют на качество бетонной конструкции.
Внимание! Обязательно в каждый столб во время заливки бетона устанавливается анкерный борт. Его длина не меньше полуметра, при этом над поверхностью опоры он должен торчать размером 25 см.
На этом строительство столбчатого фундамента своими руками для каркасной бани можно считать оконченным. Нагружать его можно только через 28 дней.
Что касается строительства малозаглубленного ленточного фундамента для каркасной бани, то эта конструкция прекрасно работает на песчаных и слабых грунтах. Для этого по периметру будущей постройки выкапывается траншея глубиною 500 мм и шириною 300 мм.
- Производится подсыпка подушки из крупного песка или мелкого щебня. Можно использовать гравий. Толщина подушки – 150-200 мм.
- Устанавливается армирующий каркас. В принципе, это могут быть любые металлические профили, соединенные между собой вязальной проволокой. Можно использовать плоский каркас в один слой. Его надо обязательно установить на подпорки, к примеру, на кирпичи. Очень важно, чтобы решетка оказалась внутри бетонного слоя, а не между подушкой и фундаментом.
- Если грунт песчаный, то придется устанавливать полную опалубку. Если глинистый, то можно обойтись опалубкой, расположенной над грунтом.
- Заливка бетона производится по той же технологии, как со столбчатым фундаментом для каркасной бани.
Не забываем установить анкера по углам фундаментной конструкции и в промежутке между ними.
Сборка каркаса бани
В первую очередь устанавливается мауэрлат (см. видео). Это брусы сечением 200х200 мм. Их устанавливают на фундамент бани, верхняя плоскость которого гидроизолируется. Это можно сделать при помощи рубероида, уложив его в два или три слоя, или при помощи битумной мастики. В брусах делаются сквозные отверстия для крепления анкерами, поэтому стоит точно определить места расположения этих отверстий. Крепление мауэрлата производится гайкой и шайбой на каждый анкер. Между собой брусы скрепляются металлическими уголками на саморезы.
Теперь по углам мауэрлата устанавливаются вертикальные стойки из брусьев сечением 150х150 мм, из них же придется устраивать и промежуточные стойки (см. видео). Крепления стояков осуществляется теми же уголками и саморезами. Чтобы при сборке верхней стяжки стойки не отходили от вертикального положения, их необходимо дополнительно закрепить укосинами и косынками из брусьев сечением 100х100 мм или 80х80 мм.
Теперь можно устанавливать верхний мауэрлат из брусов сечением 150х150 мм или 100х100 мм. Его крепление производится также уголками. В принципе, каркас бани готов. Как видите, построить каркасную конструкцию своими руками оказалось нетрудно.
Установка полов в каркасной бане
Необходимо понимать тот момент, что помещения внутри каркасной бани несут свои определенные нагрузки, то есть, у каждого свое назначение. Соответственно и полы в разных помещениях придется сооружать по-разному. К примеру, в раздевалке, в зоне отдыха и в парной хорошо будут смотреться деревянные полы. А вот в моечной, где в больших количествах льется вода, лучше установить бетонное основание с небольшим уклоном в сторону слива и отвода грязной воды.
Каркасная баня – сооружение, в котором нужно позаботиться о теплоизоляции, поэтому деревянные полы придется утеплять.
- Устанавливаются лаги, которые своими концами будут упираться в элементы мауэрлата. Крепление – уголки из стали и саморезы. В качестве лаг можно использовать доски толщиною 40 или 50 мм, можно брусы 50х100 мм.
- По лагам по нижним краям пробиваются продольные рейки.
- По рейкам устанавливается листовой материал: фанера, влагостойкая ДСП, металл, профнасти и так далее, можно б/у.
- Укладывается в межлаговое пространство утеплитель (минеральная или стекловата, пенопласт, пеноплистирольные плиты).
- По лагам укладывается гидроизоляционная мембрана, которая крепится к ним металлическими скобами, они прибиваются при помощи степлера, можно использовать гвоздики с широкой шляпкой.
- Установка шпунтованных досок.
Бетонное основание в моечном помещении каркасной бани тоже должно быть утепленным, поэтому снимается в этом месте грунт, засыпается перлит (мелкий речной песок, он и есть утеплитель в данном случае), укладывается гидроизоляция (мембрана или рубероид), заливается бетонный раствор, формирующий пол в моечной. Кстати, этого можно и не делать, если каркасная баня будет использоваться нечасто. Можно просто уложить по лагам доски, между которыми оставить зазоры по 5 мм. Небольшое количество воды будет впитываться в грунт, а чтобы не было неприятного запаха, в фундаменте каркасной бани необходимо оставить два сквозных отверстия, через которые и влажность, и запах будут удаляться наружу на улицу.
Сооружение стен каркасной бани
Что касается стен, то основная их задача, не только создать условия закрытого помещения, но и сделать внутренние помещения теплыми с минимальными тепловыми потерями. Это особенно важно для каркасной бани, плюс ко всему это сторона экономии денежных средств за счет снижения расхода топлива.
Начинать отделку каркаса можно как изнутри бани, так и снаружи. Для наружной облицовки каркасной бани лучше всего использовать листовой материал: влагостойкую фанеру или ДСП, плиты ОСП. Можно и вагонку, и доски, и так далее. Для внутренней отделки каркасной бани оптимальный вариант – вагонка.
К примеру, обшили с наружной стороны каркас бани, переходите внутрь, где производится процесс теплоизоляции стен. Для того чтобы увеличить прочность стеновых конструкций, можно между стойками смонтировать обрешетку.
Внимание! Утеплитель должен обязательно закладываться так, чтобы между ним и элементами каркаса бани не оставалось зазоров и щелей.
Это сто процентов мостики холода, что повлияет на качество постройки в плане теплопотерь. Добавим, что для каркасных бань лучше использовать утеплители с фольгированной стороной. Это еще одна характеристика, которая поможет отражать тепловую энергию внутрь бани.
Монтаж и утепление потолка каркасной бани своими руками
Построить потолок можно по той же технологии, что и полы – на лаги. Изнутри лаги обшиваются досками или влагостойкой фанерой. В парной фанеру лучше не использовать, в ее составе есть клей, который при высоких температурах начинает источать вредные вещества.
Утепления придется проводить со стороны чердака. Перед тем как обшить потолок каркасной бани досками изнутри, нужно своими руками уложить поверх лаг пароизоляционную мембрану. Утеплитель укладывается в межлаговое пространство без зазоров и щелей, сверху устанавливается гидроизоляционный слой, и уже последним слоем конструкция закрывается прочным материалом – та же фанера, ДСП, доски и прочее, можно б/у.
Строительство крыши каркасной бани своими руками
Форма крыши каркасной бани может быть любой. Самая простая – односкатная. Поэтому на верхнем мауэрлате со стороны фасада каркасной бани нужно установить несколько стоек из бруса сечением 100х100 мм. Их крепят к мауэрлату металлическими уголками. Количество стоек определяет длина фасада каркасной бани из расчета – через каждые 1,2-1,5 м. Высота стоек – до 1 м.
Поверх установленных опор укладывается брус, на который будут одним концом упираться стропильные ноги, по сути, это доски толщиною 40-50 мм. Второй конец стропил упирается в заднюю часть верхнего мауэрлата каркаса бани. Крепить все это можно уголками, гвоздями, проволокой. Расстояние между стропилами 80-150 см.
Следующий этап – укладка обрешетки. Элементами обрешетки могут выступать рейки сечением 40х40 мм или 50х50 мм, или доски толщиною 30-50 мм, шириною 100 мм. Крепление производится саморезами или гвоздями. И последнее – монтаж кровельного материала. Выбор покрытия за заказчиком.
Заключение по теме
Вот такая пошаговая инструкция, как построить своими руками каркасную баню. Скажем прямо, процесс этот несложный, если сравнивать его с сооружением бань из более фундаментальных материалов. Но в любом случае вам придется ознакомиться со всеми нюансами строительства каркасной бани. Поэтому предлагаем посмотреть видео, которое размещено на этой странице нашего сайта. Путь это будет для вас, как видео инструкция.
bouw.ru>
Строительство каркасной бани своими руками
Каркасное строительство понемногу завоевывает популярность в нашей стране. По этой технологии давно строят дома в Канаде, США и Европе. Она давно отработана и надежна, экономична и не требует особых знаний и умений. Ко всему этому стоит добавить, что помещения, построенные по каркасной технологии, лучше сохраняют тепло, что позволяет быстрее протапливать баню и дольше сохранять температуру. Кроме того, каркасную баню можно построить своими руками. Это не займет много времени и потребует минимальных навыков в строительстве.
Один из видов каркасов для бани
Какой фундамент нужен под каркасную баню
Так как каркасная баня – легкое сооружение, то для нее достаточно сделать свайный фундамент. Если планируете двухэтажное строение, то необходимо будет ленточное основание.
Выбор материалов
Для изготовления каркаса используют сосновый брус. Его сечение может быть разным: 50*100 мм, 50*75 мм, 40*75 мм и т.п. Выбор пиломатериалов достаточно широк. Для наружной обшивки использовать можно как листовой материал: фанеру, OSB или ЦСП, так и вагонку или доски. Лучше для наружной обшивки бани выбирать материал, имеющий водоотталкивающую пропитку.
Каркас снаружи обшит листовым материалом
Если решили снаружи оббить баню досками, выбирайте хвойные породы, желательно сосну или лиственницу. Они лучше сопротивляются атмосферным явлениям. Набивать их нужно горизонтально, подложив для лучшей гидроизоляции рубероид, толь или любой другой материал с гидроизолирующими свойствами. Горизонтальное расположение досок придаст сооружению большую жесткость. Хороший вариант отделки – снаружи обшить листовым материалом, а поверх него для придания декоративности, оббить стены блокхаусом (снова, желательно лиственница или сосна). Такая баня будет выглядеть как изготовленная из цельных бревен.
Внутренняя отделка – преимущественно лиственные породы древесины. В таком материале не содержится большого количества смол. Лучше использовать липу или осину – они даже при высоких температурах воздуха не обжигают тело, остаются приятно-теплыми на ощупь и оказывают лечебное воздействие, выделяя содержащиеся в древесине фитонциды и ароматические вещества. Внутри бани вагонку монтируют вертикально, тщательно подгоняя планки одну к другой, или используя систему соединения шип-паз.
Как собрать каркас для бани
Общая схема такова: собирается каркас, его верхняя и нижняя обвязка. Монтируется стропильная система кровли, после чего проводят кровельные работы. Затем собранный каркас обшивается снаружи и внутри с одновременной закладкой утеплителя и пароизоляции.
Каркас одной из стен бани
1 – стойка каркаса
2 – верхняя обвязка
3 – нижняя обвязка
4 – ригель
5 – проем оконного блока
Каждая стена собирается отдельной рамой. Делают это на площадке рядом с баней: в зависимости от размеров и используемых материалов каркас стены может весить до 200 кг, что делает его транспортировку нелегким делом, потому выбирайте место для сборки как можно ближе к зданию бани. При сборке каркаса используют заготовленный ранее и выдержанный брус разного сечения.
Сначала собирают цокольную обвязку. Для этого берут брус 50*100 мм, обработанный антисептиком. Его выкладывают по внешнему контуру стен (на фундаменте), затем соединяют гвоздями. Горизонтальность цокольной обвязки проверяется при помощи уровня. Если есть небольшие отклонения, их нужно исправить: подложить в несколько раз свернутый толь, или куски досок, обработанных антисептиком.
Дальше собирают каркас для одной из стен. Для угловых стоек, верхней и нижней обвязки используют брус большего сечения. Промежуточные стойки по толщине должны соответствовать толщине утеплителя. Расстояние между стойками выбирают в зависимости от ширины утеплителя, оптимально – в районе 60 см. Над дверными проемами и под окнами делают дополнительные перемычки — ригели. Нужно сделать дополнительную стойку в тех местах, где рама будет соединяться с другими стенами или перемычками. Соединять между собой брусья можно гвоздями или специальными скобами. Собирая конструкцию, следите за геометрией, проверяйте углы и перпендикулярность стоек и обвязок.
Каркасное строительство — нет ничего проще
Собранный каркас стены устанавливают на цокольную обвязку, подложив на нее рубероид для гидроизоляции. Проверив вертикальность установки, раму закрепляют при помощи временных подкосов. Затем собирают каркас прилегающей стены, который устанавливают аналогично первому. Для обеспечения надежности монтажа верхние и нижние обвязки можно скрепить досками. Перед окончательным укреплением, проверяют правильность углов и вертикальность установленных каркасов, соединяют все части при помощи гвоздей или скоб.
Как сделать кровлю для каркасной бани
Стропильная конструкция собирается на земле и состоит из нескольких одинаковых элементов. Собранные фермы поднимаются и размещаются над стойками.
Для устройства кровли фермы собирают на земле, затем закрепляя их над стойками
Кровлю лучше сделать вентилируемой, для чего проложить специальную пленку, а обрешетку прибивать прямо к брусу. В качестве кровельного материала можно использовать ондулин – он не горит, имеет длительный срок эксплуатации, малый вес и отличные эстетические характеристики.
После того, как кровля готова, нужно смонтировать оконные и дверные блоки, а затем приступать к обшивке и отделке стен.
Внешняя и внутренняя обшивка каркасной бани
Монтировать наружную и внутреннюю обшивку можно одновременно. Обшить каркасную баню можно в таком порядке:
- внутренняя обшивка;
- пароизоляция;
- каркас;
- пароизоляция;
- утеплитель;
- гидроизоляция;
- внешняя обшивка и отделка.
Еще одни вариант обшивки каркаса
В районе парной для лучшей теплоизоляции и в потолок и в стены желательно добавить специальную фольгированную пленку, во всех остальных помещениях можно использовать пергамин. Если уложить рулонные материалы с битумной пропиткой, характерный запах будет в бане постоянно. А битум – это не тот аромат, который нужен для здоровья.
В качестве теплоизоляции парной лучше использовать фольгированную пленку
В качестве утеплителя желательно использовать минеральную вату. Она имеет отличные эксплуатационные характеристики и не горит, что в таком сооружении, как баня очень важно. Но используют также пенопласт, стекловолокно, арболит, древесноволокнистые плиты и т.п. Во время вынужденных перерывов в работе можно собирать и устанавливать каркасы внутренних перегородок, а затем приступить к их отделке.
Черновой потолок можно сделать из OSB (ОСП — Ориентированно Стружечная Плита) или любого другого материала с аналогичными характеристиками. Листы крепятся к балкам перекрытия. К ним подбивается утеплитель (некоторые советуют укладывать три слоя для лучшего сохранения тепла).
Что еще необходимо при постройке бани
Не забудьте, что для обеспечения пожарной безопасности желательно часть прилегающих стен сделать из кирпича. Также для печи большой массы потребуется специальный фундамент, а для того, чтобы обложить железную печь кирпичом, нужно будет сделать усиление пола в этом месте. При установке дровяной печи вам необходимо будет предусмотреть вентиляцию и дымоход. А также в любой бане нельзя забывать об особенностях устройства и гидроизоляции полов в бане.
В общем, особенностей много, но со всем можно при желании разобраться самостоятельно.
baniwood.ru>
Другие статьи
Проекты каркасных бань
Небольшая баня размером 3×4 м в виде терема вмещает раздевалку, парную и моечную. Конструкцией предусмотрена небольшая терраса, которая имеет общую с каркасным домиком двухскатную крышу. Отделка бани выполнена деревянным сайдингом, который отлично сочетается с облицовкой фундамента под мраморный камень. Мягкая кровля и пластиковые стеклопакеты делают конструкцию практичной и надежной.

Проект каркасной бани 3х4 своими руками. Фото
Каркасная баня размером 4×4 м изготовлена из деревянного бруса и досок толщиной 35 мм. Строение имеет полезную площадь 13.14 кв. м, на которой размещаются парная 4.08 кв.м, моечная 2.4 кв.м и раздевалка площадью 6.66 кв.м. Битумная черепица кровли отлично сочетается с деревянной облицовкой стен и оградой террасы, а мраморная отделка фундамента значительно повышает эстетичность сооружения.

Проект каркасной бани 4х4 своими руками. Фото
Каркасная баня из клееного бруса имеет полезную площадь 16.81 кв.м. Из них 2.83 кв.м. отводятся под душевую, а 4.8 кв.м – под парильню. Все оставшееся пространство занимает раздевалка, в которой можно установить удобный стол и скамейки для посиделок в теплой компании. Деревянные элементы отделки окрашены в контрастные тона, что в сочетании с мягкой кровлей и фундаментом, выполненным «под камень», делает сооружение элегантным и презентабельным.

Проект каркасной бани 5х4 своими руками. Фото
Внутри бани размером 5×5 м смогут комфортно разместиться сразу несколько человек. Проект предусматривает не только душевую, парную и тамбур с функцией раздевалки, но и комнату отдыха площадью 8.5 кв.м. Банный домик оригинально выглядит благодаря навесу над верандой, который повторяет форму крыши. Отделка стен предоставляет собой контрастное сочетание и выполнена в тон с мягкой кровлей, что значительно улучшает визуальное впечатление от каркасной постройки.

Проект каркасной бани 5х5 своими руками. Фото
Большая каркасная баня с габаритами 6×5 м построена по стандартной планировке с душевой, парилкой, тамбуром и комнатой отдыха. Площадь последней составляет 11.9 кв.м, поэтому после водных процедур будет где расслабиться и отдохнуть. На входе в баню предусмотрено небольшое крыльцо с отдельным двухскатным навесом, выполненным в единой стилистике с кровлей постройки.

Проект каркасной бани 6х5 своими руками. Фото
Каркасный дом-баня размером 6×6 м сможет с легкостью заменить дачный домик. Внутренней планировкой предусматриваются не только парная, душевая и отдельная комната, но и небольшой санузел. Общая площадь составляет 32.4 кв. м, из них 15.4 кв. м отводится под жилое помещение. Отделка домика выполнена в скандинавском стиле, с кровлей из металлочерепицы и цоколем, облицованным деревянными панелями.

Проект каркасной бани 6х6 своими руками. Фото
Дом-баня размером 6х6 метров выполнен в традиционном русском стиле с крыльцом и двухскатной крышей из битумной черепицы. Внутреннее пространство разделяется на большую комнату, а также парную, душевое отделения и санузел. Перед входом в жилую комнату площадью 15.4 кв. м обустроен небольшой тамбур, в котором можно снять верхнюю одежду и обувь. Для отделки дома использован деревянный сайдинг, окрашенный в спокойной пастельной гамме.


Проект каркасной бани 6х6 с монсардой своими руками. Фото
Инструкция по строительству каркасной бани своими руками
Одним из лучших способов расслабиться и отдохнуть является посещение бани. Постройка настоящей русской парильни из сруба – дело хлопотное и дорогостоящее, поэтому многие владельцы загородных участков смотрят в сторону каркасного строительства. В сети можно найти множество проектов каркасных бань, доступных для возведения своими руками. Ниже мы расскажем о том, как осуществить свою мечту в виде деревянного домика с парилкой, душевой, комнатой отдыха и ажурной верандой. Помощь в работе окажут подробные инструкции, схемы и фотографии реального проекта каркасной бани.
Проект бани
Несмотря на удорожание строительных материалов, в настоящее время методом каркасного строительства можно недорого соорудить баню размером 4×4 м, а к ней пристроить веранду шириной 1.8 метров. Габариты банного домика позволяют разделить внутреннее пространство на парилку размерами 2.1×1.6 м, душевую 1.6 на 1.6 м и комнату для посиделок с друзьями размером 3.8×2.1 м. При сегодняшних ценах на стройматериалы можно свободно уложиться в сумму около 350 000 рублей, если каркасная баня будет строиться своими руками.

Каркасная баня своими руками пошаговая инструкция. Фото
Обустройство фундамента
Проект каркасной бани предполагает возведение ленточного фундамента с неглубокой закладкой. В нашем случае для него потребуется траншея глубиной до 60 см. Если же глубина промерзания грунта на участке составляет более значимую величину, то котлован должен быть глубже. В любом случае лучше свериться с чертежами каркасной бани или проконсультироваться со специалистами-проектировщиками.

Перед тем, как приступить к земляным работам, уберите участок, отведенный под застройку, и произведите разметку. Для этого по углам сооружения, а также в местах установки простенков вбивают колышки и натягивают шнур. Чтобы проверить геометрию будущего здания, достаточно измерить соответствующие диагонали – они должны быть равны. После этого приступают к установке опалубки. Для этого из деревянных досок собирают каркас под заливку, устанавливают поперечные распорные планки и бруски на места монтажа лаг деревянного пола.

Установку опалубки можно проводить как до копки, так и после нее. В первом случае рыть землю будет удобнее. Во втором траншея будет точнее, а объем изымаемого грунта меньше. Учтите, что пол помещения будет установлен с воздушным зазором, поэтому землю не складируют в очерченном пространстве, а выносят за границы участка.

Опалубку устанавливают под внешние и внутренние стены, а также под печь бани. Для увеличения прочности, внутри деревянного каркаса можно разместить армопояс. Траншеи засыпают песком, уплотняют и проливают его водой, после чего заполняют бетоном на высоту установленной опалубки.

Каркасная баня своими руками пошаговая инструкция. Фото


Как устроить пол бани
Бруски, формирующие гнезда для установки лаг, аккуратно удаляют из фундамента. После этого между стенками основания укладывают рубероид или другой подходящий гидроизоляционный материал.


На бетонное основание укладывают лаги, которые укрепляют подпорками для устранения прогиба досок пола во время эксплуатации. Верхнюю поверхность фундаментной ленты также накрывают гидроизоляцией.




Пол в каркасной бане настилают досками, которые укладывают на лаги, продвигаясь от одной из стенок основания. Чтобы избежать преждевременной порчи древесины, весь пиломатериал обрабатывают антисептическими составами.

Монтаж каркаса
Одним из важнейших этапов строительства является сборка каркаса. Заготовки стен и внутренних простенков каркасной бани представляют собой отдельные стеновые боки, которые собирают на ровном, подготовленном месте. Конструкции монтируют из обрезной доски или бруса, оставляя проемы под окно и дверь в соответствии с проектом каркасной бани.

Каркасная баня своими руками пошаговая инструкция. Фото


После изготовления стеновых блоков их устанавливают на фундамент, одновременно скрепляя при помощи саморезов. При этом очень важно соблюдать уровень всех конструкций и прямые углы здания. К обустройству кровли над объемной конструкцией из деревянного бруса приступают только после того, как все ее составляющие будут проверены на соответствии геометрии, указанной на чертежах каркасной бани.





Строительство крыши
На следующем этапе приступают к обустройству крыши для каркасной бани.



Монтаж кровли начинают с раскладывания балок в полном соответствии с чертежами перекрытия каркасной бани. После этого балки обшивают досками и монтируют каркас крыши из стропил, распорок и стоек. Поскольку сквозь крышу будет проходить дымовая труба, обязательно оставляют промежуток для ее монтажа.


После этого укладывают пароизоляцию, крепят доски контробрешетки и обрешетки. Далее монтируют кровлю.

Каркасная баня своими руками пошаговая инструкция. Фото
Двухскатная крыша имеет массу преимуществ, начиная от простоты и надежности конструкции и заканчивая наличием небольшого чердачного пространства для хранения банных аксессуаров и принадлежностей.
Обшиваем стены бани
Промежутки между вертикальными и горизонтальными элементами каркаса заполняют любым теплоизолятором. Это может быть как рулонный материал, так и маты. Последние удобны тем, что их правильная геометрическая форма упрощает процесс установки утеплителя в стенные проемы каркаса. Теплоизолятор в рулоне потребуется раскатить и раскраивать соответственно размерам заполняемых пустот между досками.



После того, как последний проем будет заполнен минеральной ватой или другим материалом, приступают к установке пароизоляционной и гидроизоляционной мембраны. Она будет отсекать проникновение влаги к утеплителю и обеспечит эффективную теплоизоляцию бани. Лишь после того, как стены в каркасной бане будут покрыты влагоизоляцией, приступают к отделке внешних поверхностей блокхаусом.


В целях экономии материала сначала обшивают габаритные поверхности, после чего отделывают места возле дверного и оконного проема.



При помощи саморезов, монтажной пены и пистолета для ее нанесения устанавливают окно и дверь. В процессе работы обязательно контролируют вертикальность монтажа при первичном креплении саморезами и повторно – перед задуванием монтажной пены в зазор между косяками и каркасом домика.
Отделка внутренних помещений
Еще один слой теплоизоляции устанавливается в каркас изнутри домика. Поверх нее монтируют пароизоляцию, стыки полотнищ которой обязательно проклеивают специальным скотчем.

Каркасная баня своими руками пошаговая инструкция. Фото

Внутренняя отделка каркасной бани выполняется деревянной вагонкой или блокхаусом, которые своими руками крепят к вертикальным стойкам после установки тепло- и пароизоляции. Аналогично отделке внешних поверхностей, сначала обшивают монолитные стены, а затем приступают к участкам вокруг окна и дверей. Поскольку при этом в ход пойдут и обрезки нужной длины, часть облицовочного пиломатериала удастся сэкономить.


При отделке отделения для парной вместо слоя пароизоляции устанавливают теплоотражающий материал в виде фольги или фольгированного полиэтилена. Последний устанавливают металлизированным слоем внутрь помещения. Таким образом, стена парной представляет собой «бутерброд» из минерального утеплителя, теплоотражателя и деревянной вагонки в качестве облицовочного материала.








Комнату, предназначенную для приема душа, оборудуют душевым уголком и элементами душевой программы. При этом все стены, на которые будут попадать брызги воды, обшивают влагостойким гипсокартоном и отделывают керамической плиткой или декоративными панелями из термопластов.
Постройка веранды
Веранда, пристроенная к бане, улучшает эстетическое восприятие сооружения и дает дополнительное место для отдыха на свежем воздухе. Для ее постройки используют неглубокий фундамент столбчатого или ростверкового типа. Для его обустройства в нужных местах бурят ямы глубиной около 20 см, армируют их и выстилают дно и стенки рубероидом или полиэтиленом. После этого устанавливают опалубку и заливают конструкцию бетоном. Доски на фундаментные опоры устанавливают «на ребро». Таким образом, исключается их прогиб под нагрузкой.


Устанавливают вертикальные опоры, которые вверху перевязывают поперечным брусом или доской. Эта конструкция должна обладать повышенной прочностью, так как на нее придется основной вес крыши пристройки. Вертикальные стойки прикрепляют к основанию при помощи анкеров.


К поперечным балкам перекрытия бани крепят стропильные ноги, которые другим краем опирают на верхнюю поперечину каркаса. Сверху крепят доски обрешетки, а затем всю конструкцию укрывают рубероидом. Кровлю делают из шифера, ондулина или другого кровельного материала.



Пол на веранде настилают досками, а боковые и переднюю стенку террасы обшивают панелями в виде решеток из пересекающихся реек, декоративными плитами из переплетающихся полос фанеры и т. д. Вход на веранду обустраивают деревянным помостом, сбитым из брусьев и досок. По ходу работы все деревянные элементы обрабатывают защитными декоративными покрытиями.









Монтаж печи
Финальным этапом строительства каркасной бани своими руками является установка печки и дымовой трубы. На этой стадии обязательно соблюдение всех мер пожарной безопасности, поэтому работы проводят в полном соответствии с правилами и нормативами монтажа печного оборудования в деревянных сооружениях.


Каркасная баня своими руками пошаговая инструкция. Фото
Выбирая печь, надо иметь в виду, что конструкция, которую можно оборудовать теплообменником, позволяет установить бак с водой в другом помещении. В нашем проекте каркасной бани предусмотрен монтаж печи модели Ермак-12 с 70-литровым баком. Местом установки этой емкости выбрана стенка между парным отделением и душевой зоной.




На этой же перегородке установлена и 120-литровая бочка для холодной воды, которая наполняется из колодца при помощи насоса. Автоматизировать процесс набора емкости можно, установив в баке поплавок, включающий помпу при снижении уровня воды ниже допустимого значения.
Установка сливной системы
Монтаж сливной системы начинают на самых ранних стадиях строительства. Для этого еще во время обустройства фундамента устанавливают горизонтальную разводку канализации от всех точек водосбора, которую подключают к сливной канализационной трубе. При этом отдельные трубы разводки выполняют трубой диаметром 50 мм, а основную – 100 мм канализационными трубами. Чтобы слить на зиму воду из системы водоснабжения бани, в самой нижней ее точке устанавливают шаровой кран, а сливной патрубок выводят в сливную магистраль.



Чтобы избежать засоров, сток делают по возможности прямым, не допуская резких перепадов высот и поворотов. Уклон сливной трубы должен составлять не менее 3-5 см на 1 погонный метр магистрали. Канализацию выводят в сточную яму или канаву, однако грязные стоки все же лучше сбрасывать в канализационный коллектор или септик, не допуская их впитывания в грунт.
Как видите, каркасную баню легко можно построить своими руками. Для этого можно взять готовый проект и скорректировать его под свои нужды, или разработать план постройки с нуля. Главное в процессе работы придерживаться правил каркасного строительства и строго соблюдать нормы санитарной и пожарной безопасности.
Соорудить каркасную баню своими руками достаточно просто. Если её ещё и правильно утеплить и защитить от попадания влаги, будет возможность получить парилку, которая практически ничем не будет уступать конструкциям из камней или оцилиндрованных бревен.
Достоинства и недостатки каркасной бани
Каждый строительный материал имеет свои преимущества и недостатки, которые надо учитывать. В последнее время начали пользоваться популярностью каркасные бани, поэтому есть смысл узнать, чем они лучше конструкций из других материалов.
Преимущества подобной бани:
- Нет необходимости в изготовлении капитального фундамента. Конструкция имеет небольшой вес, поэтому её можно установить на облегчённое основание.
Фундамент под каркасную конструкцию может быть облегченным
- Невысокая стоимость. Им отдают предпочтение те, кто желает за маленькую цену получить качественную конструкцию.
- Возможность изготовления в кратчайшие сроки. Вместе с отделочными и утеплительными работами изготовление займёт 1–2 недели. Конструкция собирается в 3 раза быстрее, чем каменная или брусовая.
- Сохранение тепла. По данным показателям каркасная постройка не уступает бревенчатому или брусовому строению.
- Экологичность. Эта баня изготавливается из натуральных материалов, которые не способны нанести вред человеческому здоровью.
- Возможность изготовления в любое время года. Конструкцию можно изготовить даже при температуре -15°С.
- Комфортный микроклимат. Стены могут дышать, так как материал будет впитывать и возвращать воздух.
- Сейсмическая устойчивость. Благодаря данному качеству баню можно изготавливать даже в сейсмоопасном регионе. Она выдерживает колебание до 8 баллов.
Однако важно знать и о том, что каркасная баня имеет значительные недостатки:
- Затраты на утеплительные и отделочные материалы. Сама по себе каркасная постройка обходится дешевле, чем каменная или брусовая парная, однако стоимость возрастает в несколько раз при отделочных и утеплительных работах. Необходимы панели для декорирования и выполнение оштукатуривания.
- Усадка. Процесс занимает минимум 2 года, при этом постройка может просесть на 10 см. Это может повлечь за собой деформацию отделочного слоя. Чтобы уменьшить последствия усадки, в процессе строительства рекомендуется использовать материалы камерной просушки.
- Сложность выбора качественного материала для утепления. Если использовать бюджетную минеральную вату, то баня не сможет полноценно справиться со своими функциями. Использование бюджетного пенополистирола также не допускается, так как материал легко возгорается.
Подготовка к постройке: чертежи проекта
Создание чертежа требует определённых навыков. Если их нет, то лучше доверить выполнение данной работы специалисту или использовать готовый чертёж.
Перед составлением схемы важно определиться со следующими моментами:
- Местоположение здания на участке. Важно учитывать стоки канализации и водоотвод. Довольно часто основным фактором при выборе местоположения является прокладка коммуникаций.
В процессе выбора места для бани важно учитывать расположение коммуникаций
- Грунт на площадке для строительства. Если планируется сделать в бане бассейн, то подземные воды не должны находиться поблизости с поверхностью территории. От типа почвы также будет зависеть вид возводимого фундамента.
- План банной постройки и количество этажей. Если планируется изготовить двухэтажное здание, важно учитывать дополнительную нагрузку на каркасную конструкцию и основание. На данном этапе следует заранее продумать размещение печи и из какого материала она будет изготовлена. Это позволит понять, где и какой дымоход монтировать, а также вентиляционные проходы в помещении.
- Прокладка коммуникаций. Важно позаботиться о вентиляции, электропроводке, пароизоляции и теплоизоляции. Стоит учесть и особенности отведения воды.
- Важным элементом любого здания является крыша. От неё будет зависеть срок службы конструкции. Следует учесть материал изготовления, а также её форму. Это позволит выполнить расчёт мощности перекрытий.
В чертёж нужно внести всю полученную информацию, а также дополнить проект необходимыми деталями. Чем подробнее схема, тем легче сооружать баню.
Чем подробнее проект, тем проще изготавливать каркасную баню своими руками
Отдельный план рекомендуется составить для коммуникаций. Если опыта мало, не стоит составлять сложный проект. Можно использовать готовую схему, слегка дополнив её исходя из собственных нужд.
В состав стандартной бани входит коридор, предбанник, моечная комната и парилка.
Стандартная каркасная баня состоит из предбанника, парной, душевой и комнаты для отдыха
Довольно часто предусматривается отдельное помещение для отдыха. На схеме рекомендуется отметить место монтажа печи. Если это будет парилка, то печь лучше всего размещать в ближайшем к двери углу. Печка может быть каменной или кирпичной.
Рекомендуется заранее определиться с размерами каждого из помещений и обозначить их в чертеже. Стандартные размеры парилки — 200х240 см. Оптимальная высота потолка составляет 220 см. В такой конструкции одновременно смогут находиться 2–3 человека.
На чертеже можно увидеть баню для загородной территории с балконом размерами 1,5х4 м. Общие габариты здания — 4х6 м. Проект подойдёт для организации посиделок на открытой территории летом.
Каркасная баня может быть оборудована террасой для посиделок в теплое время года
Такая баня состоит из 3-х помещений:
- парилка;
- моечная и душевая;
- помещение для отдыха.
Коридор представлен на схеме отдельно. Под раздевалку помещение не предусматривается. В моечной есть маленькое место для переодевания. Терраса соединяется с гостиной.
Оптимальная толщина стен каркасной конструкции — 100 мм или более. Древесину, которая используется в процессе изготовления бани, обязательно нужно обработать антисептическим средством. Рекомендуется использовать просушенный откалиброванный пиломатериал.
Обязательным является выполнение пароизоляции утеплительного материала по внутреннему основанию. В парилке нужно использовать фольгированную пароизоляцию. Отражающий слой способен повысить температуру внутри парной.
Стены и перекрытия в зоне печки следует выполнять с использованием трудновоспламеняемых материалов. К примеру, каркас изготавливается из стоечного металлопрофиля, который покрыт цинком. Разделки можно сделать из асбестового шнура. В данных местах в качестве утеплительного материала может использоваться базальтовая плита.
Обязательно устройство приточно-вытяжной вентиляции во всех помещениях. Полы в мойке следует делать с небольшим уклоном или по стяжке. Верхнее и нижнее перекрытия нужно утеплить так же, как и стенки.
Минимальный размер каркасной бани — 3х4 м.
Минимальный размер бани для комфортного пребывания нескольких человек составляет 3х4 м
Бюджетный вариант каркаса делается таким образом: стойки обшиваются с внутренней и внешней стороны досками до 25 мм, внутри каркасной конструкции укладывается базальтовый утеплитель или эковата.
Если планируется использовать эковату внутри стен, её следует тщательно уплотнить и установить горизонтальные площадки для разгрузки. Каркас нужно обшить внутри и снаружи. Для этого понадобится изготовить обрешётку. С внешней стороны утеплительный материал укрывается мембраной для защиты от ветра. В горизонтальной плоскости использование эковаты является более экономичным вариантом по сравнению с базальтовым утеплителем.
Снаружи каркасную конструкцию можно покрыть любым облицовочным материалом. Внутри здание обшивается вагонкой, гипсокартонными листами с плиткой или имитацией бруса.
Советы по выбору материала
Каркас следует собирать из таких деталей:
- брусков;
- реек для создания обрешётки;
- досок для напольного основания.
Вместо настила из досок напольное основание можно покрыть плиткой. Выбирать нужно исходя из личных предпочтений, однако в случае с парной рекомендуется отдавать предпочтение древесине. Также будут материалы для защиты. Довольно часто для обшивки стен используется вагонка.
Каркасную баню рекомендуется обшивать вагонкой из дерева
Для обшивки конструкции с внешней стороны можно применить вагонку из лиственницы. Внутри здание обшивается вагонкой из хвойных пород деревьев. Обшивочные доски надо крепить вертикально.
Излишки влаги и повышенная температура будут негативно воздействовать на элементы конструкции, поэтому не получится обойтись без применения специальных защитных материалов. Можно использовать пергамин, полиэтилен или рубероид. Пароизоляцию следует размещать между теплоизоляцией и обшивкой. Недостаток рубероида в том, что в процессе нагревания он будет выделять неприятный запах. Поэтому его не рекомендуется использовать.
Обратить внимание нужно на подбор материала для теплоизоляции. В случае грамотного выбора и правильного монтажа утеплителя будет возможность значительно снизить тепловые потери, а также расходы на обогрев банной постройки.
В качестве утеплителя в большинстве случаев используется минеральная вата.
Неплохим утеплительным материалом для каркасной бани является минеральная вата
Неплохим вариантом является применение стекловолокна. В некоторых случаях потолок утепляют пенополистиролом, а напольное основание — керамзитом.
Расчёт материалов и список инструментов
В качестве примера будет рассмотрен расчёт для каркасной бани наиболее распространных размеров. Каркас изготавливается из бруса, размер конструкции — 5х4 м. Основание будет столбчатым армированным.
Для каркасной конструкции можно использовать облегченный фундамент из асбестоцементных труб
Для отделки стен внутри и снаружи применяется вагонка хвойных пород деревьев. Крыша будет двускатной, покрытие — металлочерепица.
Актуальным моментом является выбор древесины. Материал дложен быть просушенным. Больше всего подойдут липа, лиственница или осина. Данные породы имеют невысокую теплопроводность, они способны длительный период времени сохранять первоначальную форму строения. Стены возводятся из досок толщиной 2—3 см. Для внешней обшивки подходят рейки из лиственницы или сосны.
Столбчатое армированное основание по стоимости и надёжности является оптимальным вариантом для каркасной постройки.
Столбчатый армированный фундамент подходит для возведения каркасных бань в большинстве регионов
Его можно использовать в большинстве регионов. Понадобится подготовить материалы в следующем количестве:
- бетон — 2 м3;
- обрезные доски для каркаса — 0,3 м3;
- арматурные прутья — 80 м.пог.
Каркас можно изготовить из досок, кусков фанерных листов или ОСП. Если грунт на территории строительства глинистый, то опалубку делать не нужно.
Самой сложной и финансово затратной деталью бани является каркас. К приобретению материалов на данном этапе нужно подходить взвешенно. Список необходимых материалов:
- брус 120х120 мм — 5,3 м3;
- минеральная вата толщиной 10 см — 36 м2;
- материал для пароизоляции — 40 м2;
- вагонка из дерева — 70 м2;
- материал для гидроизоляции — 40 м2.
Чтобы сэкономить, вместо брусков можно приобрести доски 50х100 мм.
Для экономии финансов можно использовать обрезные доски 50х100 мм в процессе изготовления каркаса
Брус должен быть второго сорта и ниже, доска может быть исключительно первого сорта. Обшивку стен с внешней стороны можно сделать не деревянной вагонкой, а пластмассовыми листами или профнастилом.
Пол изготавливается из обрезной шпонированной доски. Потолок следует обить вагонкой. Если есть желание сэкономить, для теплоизоляции можно использовать минеральную вату. Список материалов:
- обрезные доски — 1,8 м3;
- доски 150х50 мм — 0,2 м3;
- плинтус — 20 м.пог.;
- минеральная вата — 20 м2;
- вагонка из дерева — 20 м2.
Сэкономить удастся на настиле покрытия чердака. Если не планируется его использовать, то минеральная вата может быть закрыта необрезной доской или отрезками плит.
Крыша двускатная, чердак можно использовать для хранения инструментария.
Оптимальным вариантом каркасной конструкции является двускатная крыша
Утеплять крышу не нужно. Стропила будут висячими. Понадобятся такие материалы:
- водосточная система — 1 комплект;
- рейки для стропил — 0,2 м3;
- планки для обрешётки — 0,1 м3;
- карнизные рейки — 0,1 м3;
- металлочерепица — 20 м2.
В бане довольно часто вместо водостока оборудуют отмостку по периметру с помощью цементно-песчаного раствора.
Список материалов, которые также будут необходимы:
- трубы из асбеста;
- саморезы;
- гвозди;
- скобы;
- цемент;
- гравий или песок.
Понадобятся такие инструменты:
- угольник;
- строительный уровень;
- рулетка;
- электродрель;
- набор отвёрток;
- молоток;
- плоскогубцы.
Важно продумать все архитектурные и строительные задачи, к которым можно отнести:
- внутреннюю обшивку банной постройки;
- выбор оптимальных материалов для строительных работ;
- действия, которые требуются для обеспечения безопасного использования конструкции.
После подготовки инструментов и материалов можно переходить к строительным работам.
Пошаговая инструкция по изготовлению с фото
Постройка подобного типа имеет маленький вес, поэтому основание может быть облегчённым. Проще всего изготовить столбчатый фундамент на трубах из асбестоцемента, которые в дальнейшем будут залиты бетонным раствором. Последовательность действий:
- Прежде всего нужно подготовить трубы из асбестоцемента длиной 40 м и диаметром 10 см.
- Далее надо подготовить ямы диаметром 20 см и глубиной 150 см.
Пробурить скважины под фундамент можно с помощью садового бура
- Трубы следует разрезать на две части, вставить в ямы и засыпать песком.
На данном этапе понадобится установить трубы в подготовленные скважины
- На следующем этапе понадобится приготовить раствор из воды, щебня мелкой фракции и цемента.
- Приготовленной смесью нужно заполнить трубы.
В конце в трубы следует залить бетонный раствор
Далее выполняется обвязка конструкции. Для этого нужно подготовить рейки сечением 100х50 мм. Материалы понадобится предварительно обработать антисептической смесью, чтобы защитить их от гниения. Выполняется разметка стен, после чего выставляются рейки по внешней линии.
Перед выполнением обвязки доски нужно обработать антисептическим средством
Доски нужно располагать внешней гранью и вбивать гвозди для фиксации. Обвязку цоколя можно соединить при помощи опор.
Верхнюю и нижнюю обвязки следует изготавливать из досок, при этом нижнюю от основания надо отсечь, чтобы была возможность настелить рубероид. Горизонтальность расположения следует проверять уровнем. Если будут обнаружены отклонения, понадобится проложить толь в несколько слоёв.
Промежуточные стойки монтируются с учётом того, чтобы была возможность в дальнейшем установить теплоизоляционный и обшивочный материалы. Чтобы увеличить прочность конструкции, обвязку и лаги следует крепить с помощью заранее закреплённых железных пластин.
Для придания прочности конструкции рекомендуется использовать металлические пластины
Обвязка должна быть обработана смесью, предотвращающей гниение.
Как изготовить стены
В процессе возведения стен существенное значение имеет межосевое расстояние. Показатель будет равен 0,6 м при условии, что подготовка проёма и состыковка с остальными стенками не планируется. В противном случае щель надо уменьшить до 0,4 м. Расстояние между стойками будет зависеть от габаритов дверей и окон. Для каркаса нужно использовать доски 50х100 мм. Последовательность действий по возведению стен:
- Первым делом нужно разметить места, где будут располагаться стойки.
- Выполняется монтаж угловых стоек. С помощью уровня нужно установить детали в четырёх углах бани, проверить размещение и временно зафиксировать рейками в вертикальном положении.
Временные укосины удерживают угловые стойки в вертикальном положении
- Монтируются вертикальные стойки в боковых частях. По проекту высота конструкции составляет 2 м, поэтому планки должны быть такой же длины. В нижней части для фиксации используются железные уголки и самонарезающие винты.
Детали фиксируются с помощью саморезов в вертикальном положении
- Понадобится изготовить дополнительную стойку в месте скрепления рамы со стенами или перемычкой.
- Производится установка промежуточных элементов. Рекомендуемый шаг между силовыми элементами каркасной постройки составляет 0,5–1 м. Расстояние зависит от планируемых нагрузок.
Оптимальный шаг между силовыми элементами составляет от 0,5 до 1 м
- Вертикальные стойки можно устанавливать поочередно и временно фиксировать. После этого выполняется верхняя обвязка. Чтобы ускорить и упростить процесс фиксации, можно изготовить шаблон длины вспомогательных опор. Между опорами в углах надо натянуть нитку и пройтись по периметру шаблоном. Следует сверить расстояние между рядом обвязки и ниткой на всех участках конструкции. Если ошибок нет, по шаблону надо отрезать необходимое количество опор.
- Все детали скрепляются между собой гвоздями.
- Выполняется установка верхней обвязки. Её следует закрепить на угловых стойках. Чтобы снять прогиб доски, в нескольких местах нужно установить временные опоры. В результате каждая промежуточная стойка может быть закреплена сразу к двум обвязкам.
На следующем этапе выполняется монтаж промежуточных стоек согласно схеме
- Использование металлических уголков позволяет сократить время на фиксации каркаса, а также снизить потребность в материале для изготовления временных подпорок.
- Между опорами укладываются горизонтальные полочки.
Верхний обвязочный брус и зафиксированные промежуточные стойки
- Когда каркас будет смонтирован, можно приступать к обшивке стен. Обшивку лучше всего выполнять с помощью вагонки или ОСП плит. В качестве крепежных элементов следует использовать шурупы.
- Поэтапно устанавливаются остальные промежуточные детали и производится обшивка.
Если планируется изготовить каркасную баню с мансардой, нужно оставить место для установки дверей и окон.
Для каркасной конструкции используются планки 100 мм, поэтому утеплитель должен быть соответствующей толщины.
Толщина минеральной ваты должна соответствовать толщине досок
В процессе монтажа лишнюю длину и ширину можно будет сжать, в результате будут плотно закрыты образовавшиеся зазоры.
В процессе утепления нужно тщательно осматривать каждое соединение, в противном случае конструкция будет негерметичной. Такие бани непригодны к использованию. Паро- и гидроизоляция делается из фольги. Минимальная толщина материала — 40 мкм. Стыки фольги заклеиваются скотчем или фольгированной плёнкой. Фольга укладывается полосами снизу вверх. Чтобы закрепить фольгу к деревянным деталям, нужно использовать ручной степлер.
Как обустроить кровлю
Для удобства можно изготовить шаблон, который позволит легко собрать систему стропил.
Монтаж двускатной крыши необходимо выполнить по схеме. Облегчить процесс может шаблон
Понадобится выполнить следующие действия:
- Крышу нужно собирать на земле, после чего поднять вверх. Каждая конструкция располагается над соответствующей стойкой.
- Чтобы облегчить работу, на рейки можно настелить временные перекрытия из планок большой толщины.
- Каждая деталь имеет собственное место над стойкой, поэтому важно не ошибиться при выполнении расчётов.
- Крышу рекомендуется делать вентилируемой. Для этого надо уложить обрешётку и ондулин между стропильными ногами и контррейкой.
- Фронтоны нужно закрыть ОСП плитами.
- Выполняется монтаж дверей и окон.
После этого можно выполнять обшивку конструкции с двух сторон. Также важно позаботиться о качественной вентиляции. Для маленькой бани подойдёт труба из асбестоцемента диаметром 12 см. Деталь надо вывести до чердачного помещения.
Советы по отделке и утеплению
Снаружи баня обшивается сайдингом, досками, штукатуркой или керамической плиткой. Под обшивку следует уложить гидроизоляционный материал. Образовавшиеся щели можно заполнить материалом для теплоизоляции. Между вагонкой и фольгой надо оставить небольшую щель для проветривания. Для данной цели следует прибить к вертикальным опорным деталям планки толщиной в несколько см. Расстояние между элементами нужно подбирать с учётом расстояния между опорами.
На схеме можно увидеть конструкцию обшивки стен
Чтобы придать жесткости стенам, их нужно обить штукатурной дранью. После того как будут завершены работы по обшивке, с внешней стороны конструкцию нужно оштукатурить.
Руководство по внутренней обшивке каркасного строения:
- Обшивка здания изнутри не должна быть окрашена, так как лакокрасочные материалы в процессе нагревания будут выделять вредные химикаты.
- Чтобы сделать черновой потолок, следует использовать ОСП плиты. Их надо закреплять в нижней части балок перекрытия.
- Простенки в парной нужно укрыть фольгой. Остальные стенки можно закрыть пергамином.
- Минимальная высота потолка — 2,2 м. В таком случае будет возможность установить вагонку и дополнительно утеплить потолочное перекрытие.
- Важно обратить внимание на стыки между стенками и потолочной конструкцией. Материал для пароизоляции должен выступать минимум на 15 см.
Рейки можно прибить разными методами — в процессе подгонки производится выборка в паз или в четверть. К лагам рейки нужно крепить лицевой частью.
Между фольгой и профнастилом продушины можно не делать, листы прибиваются к фольге. Фиксация производится с помощью саморезов с прокладками из резины.
После этого выполняется монтаж печи и котла. Важно помнить о правилах пожарной безопасности. Стенка, которой отделаются парила и место для отдыха, должна быть выложена из кирпича. Нагревательный котёл рекомендуется располагать в предбаннике. Лучшим вариантом является кирпичная печь, однако если опыта в кладке подобной конструкции нет, рекомендуется доверить выполнение данной работы квалифицированному печнику.
В процессе работы с фольгой нужно быть осторожным, так как материал легко повредить. Любые щели существенно понизят эффективность теплоизоляции. Пароизоляцию следует фиксировать степлером, при этом важно следить за тем, чтобы не было провисаний материала. Минимальное расстояние между деревянной вагонкой и изоляционным материалом составляет 1 см.
В бане фольгу лучше всего крепить с помощью обыкновенного степлера
Каркасные конструкции удобны в плане отделки. Работы могут производиться как внутри, так и снаружи. Если есть вынужденный перерыв, можно делать в это время каркасы перегородок, обить их блокхаузом или вагонкой. В таком случае время будет проведено с пользой.
Для большинства регионов оптимальная толщина стен каркасной постройки составляет 10 см. Утепление можно выполнить как с помощью минеральной ваты, так и при помощи пенополистирола. Слой минеральной ваты толщиной в 12 см способен заменить стену из брусков толщиной 50 см.
Утеплить баню изнутри можно с помощью минеральной ваты
Для северных регионов с холодным климатом есть 2 метода утепления бани:
- Изготовление каркаса из реек толщиной 15 см. Утеплительный материал должен быть идентичной толщины.
- Обшивка стен снаружи ОСП листами или фанерой с последующим монтажом плит из пеноплистирола толщиной 5–10 см.
Для северных регионов каркас снаружи рекомендуется обшить ОСП плитами
Если планируется использовать пенополистирол, то после монтажа листов нужно сделать стяжку небольшой толщины с использованием сетки из арматуры. В конце следует нанести финишное покрытие.
Не рекомендуется использовать народные утеплители из опилок и соломы.
Не рекомендуется использовать опилки и глину для утепления потолка
В процессе приготовления они будут размешиваться в воде с глиной, в связи с чем утеплитель будет иметь большой вес. Помимо того, большое количество жидкости часто является причиной намокания потолочных деталей из дерева. Это оказывает негативное влияние на эксплуатационные характеристики банной постройки.
Каркасные стены являются отличной приманкой для грызунов, которые любят пенополистирол. За 2–3 года сплошные листы могут превратиться в труху. Поэтому не рекомендуется использовать пенополистирол для утепления помещений внутри каркасной конструкции.
Особое внимание нужно уделить качеству паро- и гидроизоляции. Такая баня не имеет свободных опор, каждая из них будет нести нагрузку и удерживать другие детали здания. Если будет нарушена прочность в связи с продолжительным воздействием влаги с одной стойкой, баня может стать неустойчивой. В таком случае будут необходимы сложные ремонтные работы. Подобную ситуацию лучше всего предотвращать ещё на этапе утепления комнат.
Чтобы изолировать утеплитель, лучше всего использовать алюминиевую плёнку.
Изолировать утеплитель лучше всего алюминиевой плёнкой
Однако материал стоит недешево. Если есть желание сэкономить, можно использовать полиэтиленовую плёнку. Материал стоит дешевле, однако по параметрам паро- и гидрозащиты практически не уступает фольге. Следует помнить о том, что полиэтилен может повредиться под воздействием солнечных лучей. По этой причине важно выполнить обшивку каркасов. Это позволит надёжно защитить плёнку от воздействия ультрафиолета.
Видео: каркасная баня своими руками
Отзывы о банях каркасного типа
Сегодня можно найти много отзывов от тех, кто строил каркасные конструкции. Люди, которые построили каркасные строения, рассмотрели все варианты и остановились на этом в связи с небольшими финансовыми затратами, облегчённым основанием, быстрым возведением и простотой отделки. Однако не рекомендуется экономить на каждом этапе. Чтобы каркасное строение служило много лет, следует использовать исключительно качественные материалы с большим периодом службы.
Некоторые владельцы недовольны такими постройками. Есть мнение о том, что как бы конструкцию не утеплять, парилка в любом случае останется холодной, при этом прокладка утеплителя в несколько слоёв не решит проблему. Через некоторое время на стенках может появиться грибок, в результате чего банная постройка быстро придёт в негодность.
Баня из бревна является стандартным вариантом, однако не все смогут её построить в связи с затратами времени и финансов. Немалое количество людей желают в короткие сроки соорудить каркасную баню и наслаждаться ею, так как по теплосбережению и прочности данные конструкции не уступают зданиям из брёвен.
Даже если использовать качественный и дорогостоящий утеплительный материал и не экономить на других деталях, у каркасной постройки останется значительное преимущество — маленькие трудозатраты в сравнении с постройкой из брёвен: не понадобится носить брёвна и делать конопатку.
Построить каркасную баню своими руками довольно просто. Чтобы конструкция была надёжной и служила много лет, не стоит экономить на древесине, которая будет использоваться для изготовления каркаса, а также материалах для утепления поверхностей потолка и стен.
Бани из бревен и кирпича всем хороши. За исключением, разве что сложности возведения и довольно высокой стоимости строительных работ. Отличной альтернативой традиционным баням являются более современные каркасные конструкции.
Каркасное строительство не требует наличия многочисленных подробнейших чертежей и покупки дорогостоящих материалов.
В среднем на покупку строительных материалов для возведения каркасной бани требуется в 2 раза меньше денег, если сравнивать с другими упоминавшимися ранее вариантами. При желании парильню можно построить своими руками, что является дополнительным преимуществом.
Работа по строительству каркасной бани начинается с подготовки проекта. Однако еще до начала составления необходимой проектной документации вы должны сделать следующее:
- выбрать оптимальную конструкцию бани.
Парилка может представлять собой отдельно стоящее здание либо же пристройку к дому или другому строению; - выбрать место для строительства бани;
- определить особенности грунта на строительной площадке.
В зависимости от этого будут меняться требования к фундаменту.
Однако в подавляющем большинстве случаев каркасные бани строят на столбчатых основаниях, т.к. такие фундаменты одинаково хорошо себя проявляют при использовании практически в любых грунтах.
Приступайте к подготовке проекта. В состав традиционной бани входит тамбурное помещение, предбанник, умывальник и непосредственно парилка.
Также отметьте в проекте место установки печи
(если это будет парное помещение, печку рекомендуется разместить в ближайшем к двери углу).
В проектной документации должна отражаться информация о типе вентиляционной системы, особенностях дымохода, кровли и других значимых элементов.
Настоятельно рекомендуется заранее определить оптимальные габариты всех помещений и отразить их в чертежах. К примеру, стандартные габариты парилки составляют 240х200 см, высота потолка – 220 см. Такой баней смогут одновременно удобно пользоваться несколько человек.
При желании можете дополнять проект на свое усмотрение. К примеру, владельцы довольно часто оборудуют в своих банях комнаты отдыха и бильярдные.
Правильно составленный проект – гарантия легкого и успешного строительства. Чем более подробной и точной будет проектная документация, тем проще вам будет ориентироваться при выполнении работы.
Если вы не можете самостоятельно справиться с решением каких-либо вопросов, лучше выделите деньги и закажите проект у специалистов. Лучше заплатить один раз, чем в дальнейшем тратить огромные деньги на исправление разного рода дефектов.
На этапе составления проекта просчитайте нужное количество материалов.
В данном отношении все индивидуально и зависит от размеров будущей бани и ее планировки. Непосредственно каркас собирается из брусков, досок для устройства обрешетки и досок для пола. Вместо дощатого настила пол можно отделать керамической плиткой. В этом моменте ориентируйтесь на свои личные предпочтения, однако в случае с баней древесина является самым предпочтительным вариантом.
Также понадобятся защитные материалы и материал для обшивки стен.
Чаще всего стены обшиваются вагонкой. Для внешней обшивки традиционно используют вагонку из лиственницы, для внутренней – из хвойных пород.
Доски обшивки крепятся в вертикальном положении.
Что нужно знать о защитных материалах?
Строительство бани неотъемлемо связано с устройством разнообразных защитных материалов. Избыточная влага и высокая температура оказывают неблагоприятное воздействие на элементы конструкции, поэтому без использования специальных материалов не обойтись.
Для защиты от влаги используются разнообразные материалы. Чаще всего это полиэтилен, пергамин и рубероид. Пароизоляция размещается между теплоизоляционны м материалом и обшивкой. От использования рубероида по возможности нужно отказываться, т.к. под воздействием высокой температуры он выделяет неприятный запах.
Отдельного внимания заслуживает вопрос теплоизоляции. При грамотном выборе и правильной укладке утеплителя будут существенно снижены потери тепла, а следовательно и затраты на обогрев бани.
Чаще всего для утепления каркасных бань используется минвата.
Не менее популярным является стекловолокно. Возможно и применение других материалов. К примеру, потолки иногда утепляют пенопластом, а полы – керамзитом или другими засыпками.
Готовый каркас имеет небольшую массу, поэтому фундамент для бани может быть самым простым. Лучший вариант – столбчатое основание. Функцию опор в данном случае будут выполнять плиты из асбоцемента, залитые бетоном.
Первый этап.
Купите асбестоцементные трубы. Оптимальный вариант – изделия диаметром 10 см и длиной 4 м. Количество труб подбирается индивидуально. Опоры обязательно должны присутствовать под каждым углом бани. В отдельных ситуациях, к примеру, когда стены имеют большую длину, 1-2 дополнительные опоры устанавливаются и под стенами парной.
Второй этап.
Подготовьте ямы диаметром 20 см и глубиной порядка 150 см. Для этой работы удобнее всего использовать бензиновый бур. При отсутствии такого инструмента используйте любые доступные средства.
Третий этап.
Разрежьте трубы на 2 части одинаковой длины. Разместите полученные куски в скважинах. Засыпьте пространство вокруг труб песком. Тщательно утрамбуйте засыпку.
Четвертый этап.
Приготовьте бетонный раствор. Используйте стандартную смесь из 1 части цемента, 2-3 частей песка, 4-5 частей мелкой щебенки и воды.
Пятый этап.
Заполните трубы готовым бетонным раствором.
Подготовка нижней обвязки
Нижняя обвязка собирается из обрезных досок шириной 15 см и толщиной 5 мм. Доски сбиваются друг с другом, после чего в обвязку врезаются лаги. Для изготовления лаг тоже используются доски.
Рассматриваемая конструкция требует качественной влагозащиты. Под лаги и обвязку следует уложить один из упоминавшихся ранее гидроизоляционны х материалов.
Закрепите обвязку и лаги на трубах фундамента. Для этого используйте металлические пластины. Обработайте готовую конструкцию хорошим антисептическим средством. Оно предотвратит гниение древесины и будет защищать материал от грызунов и насекомых.
Возведение стен каркасной бани
Первый этап.
Разметьте место для каркасных стоек.
Второй этап.
Установите пару угловых стоек.
Третий этап.
Установите несколько промежуточных стоек.
Четвертый этап.
Обшейте часть каркаса ОСП (ориентировано-с тружечные плиты). Для фиксации обшивки используйте шурупы.
Пятый этап.
Установите еще несколько промежуточных стоек и обшейте полученную часть каркаса. Повторяйте до тех пор, пока не будет получена целостная конструкция. Не забудьте оставить проемы для дверей и желаемого количества окон.
Изготовьте шаблон для сборки стропильных конструкций. Все элементы стропильной системы собираются внизу, на земле, и уже в готовом виде поднимаются вверх. Каждый элемент стропильной конструкции должен быть установлен над своей стойкой.
Для большего удобства можете настелить на балки временное перекрытие из обыкновенных досок.
Лучше, чтобы кровля каркасной бани была вентилируемой. Уложите между контрбрусом и стропилами ондулин или другой подходящий по свойствам материал. Обрешетку прибивайте непосредственно к брусу.
Закройте фронтоны предварительно подготовленными листами. Обычно используются уже знакомые вам ОСП.
В завершении выполняется установка окон и дверей, после чего можно приступать к финишной отделке бани.
Финишная отделка
Каркасная баня должна быть не только крепкой, надежной и долговечной, но и красивой. Для придания объекту необходимых внешних качеств выполняются соответствующие отделочные работы. Снаружи стены каркасной бани рекомендуется обшить досками из древесины лиственных пород. Под обшивку уложите слой влагоизоляционно го материала и утеплителя.
Внутренняя обшивка бани будет обеспечивать дополнительную защиту элементов строения от неблагоприятных воздействий. Так, для сборки чернового потолка подойдут все те же ОСП. Прикрепите их к балкам перекрытий со стороны помещения. Для внутренней обшивки стен прекрасно подходит хвойная вагонка.
Сердцем любой бани является печь.
Установка этого элемента должна быть выполнена в соответствии с требованиями противопожарной безопасности. Как правило, используется стандартная система, в соответствии с которой в предбаннике размещается нагревательный котел, а непосредственно в парилке обустраивается печь каменка.
Стену, разделяющую парилку и комнату отдыха, выложите из строительного кирпича.
Разделите полученную каркасную конструкцию на зоны в соответствии с предварительно подготовленным проектом. Материал для перегородок выбирайте в соответствии с условиями конкретного помещения. К примеру, бильярдную и комнату отдыха можно разделить даже обыкновенными гипсокартонными перегородками из влагостойких листов.
Те же стены, которые будут подвергаться воздействию влаги и/или высокой температуры, нужно выкладывать из более устойчивых материалов, обычно это кирпич. Обшейте перегородки вагонкой, блокхаузом или другим подобным материалом. Обшивка придаст стенам более привлекательный внешний вид.
Для финишной обивки потолка лучше всего использовать вагонку из липы. Такая же древесина наилучшим образом подходит для изготовления банных полок.
Таким образом, в самостоятельном строительстве каркасной бани нет ничего сложного. Потратив сравнительно немного денег и времени, вы получите надежную, безопасную, долговечную и в целом замечательную по своим эксплуатационным свойствам конструкцию.
Удачной работы!
Как и каркасный дом, баня в этой же технике является самым экономичным как в плане трудозатрат, так и в плане денежных средств, способом обзавестись на собственной территории домиком для здорового отдыха. Для возведения подобных зданий, если пользоваться проектами каркасных бань, материалов из древесины требуется в полтора-два раза меньше, нежели для аналогов из бревен или брусьев. К тому же современные технологии позволяют в процессе строительства использовать легкие утеплители, благодаря которым вес сооружения не сильно увеличивается, и усадка здания происходит менее значительно. Если вы решили построить баню своими руками, то мы предлагаем вам познакомиться с основным этапами этой работы, а также с разными вариантами проектов.
С чего начать
Прежде чем начать создавать проект каркасной бани, необходимо определиться с некоторыми важными моментами, которые позволят вам более продуктивно все спланировать:
- Парная может быть как строенной, так и отдельно стоящей, поэтому вам нужно решить, как будет в вашей бане.
- Определитесь с местом для постройки. Это важно сделать на начальном этапе строительства, так как постройка бани подразумевает прокладку необходимых коммуникаций. Зачастую хозяин выбирает место для бани в соответствии с удобством проведения туда инженерных коммуникаций от дома, чтобы не усложнять себе жизнь автономными схемами.
- Выясните вид земельной почвы на том участке, который вы выбрали для бани. В соответствии с этим нужно будет выбрать подходящий фундамент.
- Продумайте такие моменты, как, например, этажность, наличие или отсутствие веранды (террасы), чердака (мансарды)
- Что касается внутреннего наполнения бани, важно заранее определить место для печки-каменки, так как от этого зависит расположение и строение дымоходов и вентиляционных выходов.
- Определитесь с типом будущей кровли. Она может различаться не только по внешнему виду, но и по соответствию со структурой крыши. От выбора кровли зависит массивность перекрытий и стропил.
Специалисты утверждают, что после определения вышеназванных основных нюансов, можно начинать работать над составлением индивидуального проекта каркасной бани или выбору проекта по фото. По мере продвижения строительства вы будете корректировать свой проект, но чем точнее он будет изначально, тем меньше проблем возникнет в процессе.
Если данный этап представляется вам чересчур сложным, вы имеете возможность заказать проект каркасных бань недорого у специалистов. На страницах сайтов специализированных компаний представлено множество вариантов уже разработанных проектов каркасных бань на фото. Если ни одни их них вам не подходит, компании предоставят вам возможность заказать уникальный проект в соответствии с вашими вкусами и предпочтениями.
Как собрать баню самостоятельно
Как это ясно из названия, основа рассматриваемого нами сооружения – каркас из дерева. Он устанавливается на обязательный фундамент и зашивается внутри и снаружи соответствующими материалами. Сам каркас специалисты рекомендуют изготавливать из заранее подготовленных и собранных рам. Каждая из них включает в себя обвязки, стойки и ригели. В зависимости от того, какую толщину они имеют, теплотехнические характеристики стен бани будут выше или ниже. Чтобы использовать между обшивками дополнительное утепление, нужно заранее толщину рамы продумать.
Оптимальное расстояние между стойками должно составлять около шестидесяти сантиметров, но там, где будут находиться дверные и оконные проемы, а также места стыковки стен друг к другу, это расстояние можно изменять в меньшую сторону.
Составляющие рамы можно соединять гвоздями соответствующей длины. После сборки следует осуществить проверку – замерить раму по диагонали с обеих сторон. Чтобы упростить выполнение последующей работы, на время скрепите раму раскосами.
Монтировать стены следует начинать с установки цокольной обвязки. Для нее понадобятся небольшие доски (5 на 10 сантиметров). Их нужно укладывать кромкой по контуру разметки с наружной стороны и закреплять по всем углам с помощью гвоздей. Если это необходимо, можно также срастить их и на месте стыков. Чтобы доски ложились ровно в горизонтальном положении, воспользуйтесь помощью строительного уровня.
Установленные рамы нужно скрепить и друг с другом, и с цокольной обвязкой, пользуясь теми приемами, которые применяются при сборке зданий щитового принципа.
После этого производится облицовка здания: снаружи – панелями, а внутри – вагонкой или панелями ПВХ.
Чтобы произвести облицовку стен в парной, обычно используются хорошо высушенные строганные деревянные доски двух-трех сантиметров из деревьев лиственных пород. Именно они не коробятся и обладают низкими показателями теплопроводимости. Выбранные вами облицовочные доски нужно прибить к балкам в двух местах гвоздями.
Для каждой стены и потолка парной необходимо оснащение пароизоляцией. Но специалисты не советуют пользоваться для этих целей рулонные материалами из битума, потому что они при прогреве помещения выделяют своеобразный неприятный запах. Лучше применять такие материалы, как пергамин или фольгированные пленки.
На пароизолирующий материал накладывается утеплитель для бани.
Каркас здания с внешней стороны можно обить досками из деревьев хвойных пород. Размещать их нужно в горизонтальном положении, чтобы обеспечить постройке высокую жесткость.
Внутреннюю сторону комнаты отдыха обивать можно любыми досками.
Если снаружи доски прибиваются горизонтально, то в парильном помещении – вертикально, достаточно плотно друг к другу.
Теплоизоляцию производите параллельно с обшивкой. Утеплителями могут стать практически любые материалы, самые популярные – минвата, плиты из древесного волокна и арболит.
Важно еще на этапе строительства бани защитить ее от гниения полов. Для этого, прежде чем начать стелить полы, нужно обработать древесину напольного покрытия, а также лаги специальным раствором-антисептиком. Монтировка лагов должна производиться таким образом, чтобы самая низкая часть пола оказалась в центре парилки, там, где будет расположен слив.
Готовые бани из каркаса
Если вы выбрали подходящий проект каркасной бани на фото и даже посмотрели видео о том, как производить постройку каркасных бань, но все равно не уверены в своих силах и возможностях самостоятельно справиться с поставленной задачей, рекомендуем вам обратиться за помощью к специалистам. Компания может предоставить в ваше распоряжение уже готовый комплект, который останется только собрать, руководствуясь некоторыми из вышеназванных рекомендаций.
В составе готового комплекта:
- Теплокаркасные или «сип» панели для стен;
- Панель для крыши;
- Пол из деревянных материалов;
- Монтажный брус;
- Элементы для крепежа;
- Документы.
Пакет документов включает в себя непосредственно проект каркасной бани, а также фото с инструкцией по осуществлению сборке. Бумаги, представленные в папке, должны соответствовать всем правилам безопасного строительства.
Канадская технология
В наше время большинство хозяев частных домов, которые решили обзавестись хорошей баней на своем участке, выбирают те здания, которые возводятся по современной канадской технологии. Этот способ постройки обладает рядом неоспоримых преимуществ, в числе которых:
- Значительная продолжительность эксплуатационного срока;
- Высокая ремонтопригодность;
- Хорошая теплоизоляция;
- Экологичность;
- Привлекательный внешний вид;
- Доступная стоимость (около 10 тыс. рублей за 1 кв. метр);
- Быстрота сооружения (около трех суток);
- Использование энергосберегающих технологий;
- Высокая устойчивость к воздействию внешних факторов;
- Оптимальный вес, упрощающий процесс возведения конструкции.
В основе канадской технологии для строительства каркасных бань лежит принцип разделения трех функций – ограждающей, теплоизолирующей и несущей – между соответствующими строительными материалами.
Каркас в качестве основы для парной делается из древесины высокого качества или из нержавеющего металла. В процессе зашивания каркаса, внутрь него нужно проложить огнеупорную минеральную вату. Такое сооружение можно сравнить с термосом, который сохраняет в холодную погоду тепловую энергию, а в жаркую – необходимую прохладу.
Пример проекта бани
Предлагаем вам рассмотреть один из самых популярных в нашей стране проектов каркасных бань с фото. Несмотря на необычный и с виду довольно простой внешний вид, эта баня включает в себя и парную, и душ, и комнату, выход из который ведет на террасу (смотреть рисунок 1).
В соответствии с представленным проектом, все помещение делится на три или больше небольших комнаты, разных размеров.
Вход в помещение идет через террасу, длина которой примерно равна длине самого здания, а площадь – около 10 кв. метров. Крыша для нее отдельная, но сочетается с основной.
Слева на террасе есть небольшое окно и дверь, которая ведет в комнату для отдыха (предбанник). Площадь этого помещения чуть больше, чем террасы – около 12 кв. метров. Длина примерно равна ширине. В комнате отдыха прохладно, но тепло. Благодаря ей поход в баню может превратиться из обычного мытья в развлечение с ароматным чаем и настольными играми.
Каркасную баню построить намного проще и быстрее, чем кирпичную или сруб. Масштабные чертежи, дорогостоящие материалы и работы, внушительный фундамент – все это отсутствует. Главное правильная термо- и гидроизоляция, а также готовый проект, на который можно ориентироваться.
Под такую постройку достаточно ленточного или столбчатого фундамента. Сооружение практически не дает усадки ввиду своей легкости, поэтому для основы маленькой каркасной бани необходимо приобрести лишь хорошо просушенный брус размерами 20х20 см для стоек и доску. Чертежи наиболее простых и малозатратных бань можно увидеть ниже.
К преимуществам каркасных бань также можно отнести отсутствие деформации, возможность сделать инженерные коммуникации скрытыми, разнообразие отделочных материалов. Строение с квадратурой 12 м 2 также прекрасно удерживает тепло, как и сруб.
Чтобы ваша баня прослужила долго и не требовала ремонта, необходимо обратить внимание на следующие моменты:
- каркас должен рассполагаться на ровной поверхности;
- не стоит выбирать самую дешевую термоизоляцию;
- древесина должна быть качественной, не тонкой и тщательно обработанной антисептиками;
- если каркас вызывает сомнения относительно шаткости, его обязательно усиливают подкосами.
Каркасные бани не бояться усадки, так как материал достаточно упруг и не боится усадок. Верхние срезы цоколя ложатся на опорные, хорошо гидроизолированные брусья. Лучше если они будут из дуба, лиственницы или граба. Для связки деревянного пояса и фундамента использую анкера из арматуры (1,4-1,6 см) с крючками, заглубленными в бетон до 20 см. С другой стороны должна присутствовать резьбы под гайку.
Угловые стыки, как правило, делают «под лапу» и закрепляют анкерами. Дальше – выставляются крайние стойки (10х15 см) вертикально и закрепляются при помощи укосин. Толщина стоек должна соответствовать толщине утеплителя.
Для строений 3х4 м допустима установка подкосов на угловых стойках.
Если баня будет двухэтажная, лучше ставить подкосы в каждом пролете. Шаг стоек каркаса 0,6-0,8 м. Они крепятся к опорному брусу при помощи стальных скоб. Брусья должны быть сечением не менее 5х15 см.
Особенности постройки каркасной бани
Каркасная баня прослужит достаточно долго при использовании качественной и надежной термо- и гидроизоляции. Снаружи здание можно защитить от внешнего воздействия сайдингом или блокхаусом, которые сделают баню похожей на сруб и уберегут от гнили или плесени.
На самом деле мини-баню вполне можно оборудовать самостоятельно. Никакие особые навыки не требуются. Главное, представить, как она должна выглядеть (с террасой или без), продумать эргономичное отопление и водоотведения, теплоизоляцию и ознакомиться с типовыми вариантами. Фото проектов каркасных бань 3х4 своими руками можно посмотреть далее.
Готовый проект небольшой банной постройки можно заказать у ряда фирм, однако, чтобы в итоге не разочароваться и при желании, все можно сделать и самостоятельно. Для начала, необходимо заложить фундамент, а это значит прикупить асбестоцементные трубы длиной до 40 м и диаметром не менее 10 см. Также необходимо пробурить скважину – диаметр – 20 см, глубина – 1,5 м. И, приготовить раствор из воды, мелкого щебня, цемента и песка.
Важный этап в постройке бани своими руками – обвязка, для чего необходимы доски 5х10 см, обработанные антисептическими растворами. Делается разметка стен и производится укладка материала по внешнему контуру. Доска ложится наружными гранями и крепится гвоздями. Цоколь соединяется при помощи опор.
Обвязки (верхняя, нижняя) – выполняются из досок, настил рубероида от нижней поверхности отсекается. Все проводимые работы контролирую уровнем. При отклонении, осуществляют дополнительную укладку толя. Чтобы конструкция была прочной обвязку и лаги закрепляют с использованием предварительно вмонтированных металлических пластин. Их также нужно обрабатывать антисептиком.
Возведение стен требует измерения метража между осями. Если нет стыковки со стенами – хватит 0,6 м, при их наличии, необходим зазор в 0,4 м.
Интервалы от стойки до стойки будут зависеть от размеров оконных проемов и дверей. Рамы, после закрепления необходимо проверить на точное совпадение с прямоугольными параметрами. Стропильные конструкции лучше собирать на открытом участке земли. Кровлю предусматривают с вентиляционной системой. Для придания строению жесткости стены оббиваются штукатурной дранью.
Каркасные технологии на сегодняшний день бьют рекорды по популярности. По этой методике теперь строят не только дома, но и хозяйственные помещения, производственные объекты и многое другое. Большим спросом пользуются проекты каркасных бань разного размера и планировки, которые можно изготовить своими руками на территории загородного участка.
С чего начать
Прежде чем приступить к строительству каркасной бани своими руками, необходимо тщательно спланировать расположение и тип будущей постройки. На что следует обратить внимание:
- важно решить, будет ли каркасная баня пристройкой к дому или хозпостройке или станет отдельным объектом;
- подобрать место для строительства с учётом пролегания инженерных сетей и наметить пути прохождения коммуникаций;
- разобраться с особенностями грунта для определения типа фундамента бани;
- разработать или купить готовый проект с учётом индивидуальных требований (наличия мансарды, крыльца, чердака).
Совет!
Чем подробнее разработан проект, тем легче будет его реализовать своими руками.
Готовый проект каркасной бани можно купить во многих строительных организациях, в них же можно заказать индивидуальную разработку. Минимальный размер площади бани — 3х4 метра. Оптимальной считается площадь 5х5 метров.
Проект своими руками
Чтобы напрасно не ломать голову над созданием чертежей с нуля, можно взять за основу любой готовый проект, с планировкой, соответствующей необходимой площадки застройки и просто внести в неё коррективы. К примеру, планировка каркасной бани размером 5 на 5 метров, как на фото:
Что будет важно для будущего индивидуального проекта:
- разумная внутренняя планировка бани;
- снижение расходов на строительство и содержание объекта;
- небольшие сроки работ;
- максимально облегчённый, но надёжный фундамент.
Внутренние помещения каркасной бани должны быть спроектированы так, чтобы вмещать необходимые предметы мебели. К примеру, планируя парную в бане важно заранее определиться с размерами печи и лавочек. В комнате отдыха нужно предусмотреть пространство, достаточное для установки стола и кресел или диванов. Необходимо продумать наличие предбанника, который предотвратит попадание холодного воздуха в зимнее время. В помывочной важно заранее определиться с габаритами душа и наличием бассейна или бочки.
Для каркасной бани на даче идеальным было бы наличие веранды или террасы размером 3х4 метра, на которой летом можно отдыхать после парной. Для некоторых важно наличие тёплого чердака, на котором удобно хранить и сушить веники.
Так и рождаются самые разные чертежи для бани каркасного типа с одинаковой площадью. Примеры чертежей на следующих фото:
Немного о преимуществах каркасных конструкций
Строение бани каркасного типа состоит из несущей конструкции из бруса или металла, обшитой листами ОСБ. Между внутренним и наружным слоем обшивки укладывается утеплитель и пароизоляционные материалы.
Совет!
При желании, можно максимально удешевить строительство, используя в качестве утеплителя опилки, солому и другие доступные материалы.
Каркасная баня из таких строительных материалов весит совсем немного, а потому не требует основательного фундамента. Его легко изготовить своими руками, используя свайную или ростверковую технологию.
Таким образом, очевидны плюсы каркасного строительства:
- минимальные затраты на обустройство фундамента;
- все работы могут быть выполнены своими руками, без использования тяжёлой специальной техники;
- короткие сроки строительства.
Есть у этой технологии и свои минусы, о которых нельзя не упомянуть. Главный недостаток — повышенная пожароопасность конструкций. Именно поэтому специалисты настоятельно рекомендуют тщательно обрабатывать все детали огнеупорными составами и использовать для электропроводки специальные негорючие кожухи.
Важно!
В каркасной бане нужно особое внимание уделить влагоизоляции стен, потому что минераловатные утеплители очень чувствительны к пару и теряют свои свойства при малейшем проникновении воды.
Пароизоляцию нужно делать очень тщательно, не экономя на материалах.
Бани, изготовленные в заводских условиях
Взяться за строительство каркасной конструкции своими руками решится не каждый. Можно выйти из положения, сделав выбор в пользу готового комплекта. В состав готовой бани входят:
- монтажный брус;
- комплект крепежей;
- материал для пола;
- внешние и внутренние стеновые панели;
- кровля;
- комплект технических документов.
В пакете документов должны быть чертежи проекта и подробная инструкция по сборке.
Чертёж бани размером 3х4 метра с верандой:
К сведению!
Стены в готовых каркасных конструкциях состоят из СИП панелей, они очень просты в сборке.
Комплект готовой бани производится на заводе в соответствии со строительными нормами и правилами. В документации должно быть указано, что панели и каркас прошли специальную обработку антипиренами.
Материалы для бани
Если планируется построить каркасную баню своими руками, понадобятся следующие материалы:
- Материалы для каркаса бани: брус с сечением 10 на 15 сантиметров или 15 на 15. Для поперечных опор и укосов понадобится брус 8 на 8.
- Для кровли: брус 15 на 15, кровельный материал (ондулин, мягкая кровля, металлопрофиль). Не рекомендуется использовать керамическую черепицу, она слишком тяжёлая для каркасных стен.
- Материалы для обрешётки стен и крыши бани: рейки или доска толщиной 2 сантиметра.
- Для стен каркасной конструкции: ОСБ панели. Они же понадобятся для покрытия крыши мягкой черепицей.
- Материалы для пола бани- обрезная доска с обработкой антипиреном и противогрибковыми средствами.
- Материалы для внутренней и наружной обшивки: вагонка (обычно используется для обшивки внутри помещений), и имитация бруса для наружного оформления строения.
- Для утепления конструкции бани: негорючая минеральная вата. Толщина слоя зависит от климата региона. Оптимальным считается применение базальтовой ваты толщиной слоя от пятнадцати до двадцати пяти сантиметров.
К сведению!
Специалисты не рекомендуют использовать в качестве утеплителя для каркасной бани пенополиуретан, он может плавиться от высокой температуры и является горючим материалом.
Кроме перечисленного, потребуются саморезы и гвозди разных размеров. Учитывая повышенную влажность помещений бани, лучше использовать оцинкованные крепежи.
Алгоритм строительства
Для каркасной бани легче всего установить своими руками столбчатый фундамент. Для него потребуются трубы из асбестоцемента диаметром 20 сантиметров и длиной два метра. Их заглубляют в полутораметровые скважины и заливают бетонно-щебеночной смесью. Количество столбов зависит от размеров бани, для маленького помещения 3х4 достаточно 12 штук, для бани 5х5 — около 18.
После установки опорных столбов, на них закрепляется обвязка из бруса. Детали скрепляются между собой гвоздями. Под обвязку обязательно монтируется гидроизоляция из рубероида. Как на фото:
Важно!
Чтобы материал обвязки прочно «сидел» на фундаменте, его крепят к столбам при помощи металлических уголков и пластин.
На обвязку крепятся доски — лаги для будущего пола бани.
Каркас основания нужно тщательно обработать средствами от гнили и насекомых, противопожарной пропиткой.
Монтаж стен бани выполняется в следующей последовательности:
- на углах закрепляются угловые стойки и между ними — промежуточные;
- к стойкам крепятся при помощи саморезов листы обшивки, начиная с угла;
- в процессе монтажа оформляются оконные и дверные проёмы
Важно!
Правильное положение каждого листа нужно проверять при помощи строительного уровня.
Стропильная конструкция крыши каркасной бани собирается на земле и затем поднимается наверх. Затем производится крепление обрешётки и укладка кровельного материала.
После того, как основной каркас установлен, осуществляется монтаж окон и дверей.
Таким образом, на строительство каркасной бани своими руками в среднем потребуется:
- 3 дня на установку фундамента;
- 3 дня на установку обвязки и стен;
- 2 дня на стропильную конструкцию;
- 2 дня на монтаж кровли, дверных и оконных конструкций, отделку.
Внутренняя отделка каркасной бани
Для наружной отделки каркасной бани используется имитация брёвен или обычный сайдинг.
Внутренняя отделка требует особого подхода. Прежде всего — нужно правильно выбрать вагонку. Для комнаты отдыха и предбанника подойдёт сосновая вагонка. Она не требовательна к уходу и выглядит довольно привлекательно, как на этом фото:
Помещение в парной и душевой лучше отделать липой или лиственницей. Эти породы выдерживают высокие температуры и сохраняют при этом цвет и форму. Кроме этих пород, для бани можно использовать:
- кедр — выделяет при нагревании эфирные вещества, благотворно влияющие на организм;
- абаши — тропическое дерево, отличается минимальной теплопроводностью;
- осина — устойчива к гниению и образованию плесневого налёта, выделяет при нагревании вещества, полезные для здоровья.
Важно!
Вагонка монтируется на пароизолирующий слой так, чтобы оставалось небольшое пространство между деревом и фольгой.
- Важно особенно тщательно выполнить пароизоляцию на стыках стен и пола каркасной бани — от этого зависит долговечность всей конструкции.
- Для дополнительного утепления бани снаружи под обшивку закрепляется дополнительный гидроизоляционный и теплоизоляционный материал.
- Внутренняя обшивка бани не покрывается лаком или краской, они будут выделять токсины при нагревании.
Потолки и полы бани нужно утеплить на совесть теми же материалами, что применялись на стенах.
Баня каркасного типа — доступное и практичное решение для загородного участка. Ее не сложно построить самостоятельно или купить в готовом варианте. Если подойти к разработке проекта и строительству с душой и фантазией, этот объект станет предметом зависти соседей и любимым местом отдыха для домочадцев.
Каркасные бани достаточно просты в сборке, по сравнению с аналогами из другого строительного материала. Для этих строений не требуется сооружать специальный фундамент, так как облицовочные материалы, закрепленные на раме каркаса, обычно имеют небольшой вес и подходят для строительства даже на рыхлых почвах.
На фото — каркасная баня с верандой
Проекты каркасных бань можно заказать у специалистов, уже в готовом виде, или заказать проект с учетом индивидуальных предпочтений. Во всемирной паутине можно просмотреть многочисленные фотографии бань каркасных разного типа, это поможет застройщику выбрать для себя самый подходящий вариант, как по внешним параметрам, так и по габаритам строения.
Еще одно положительное свойство бань каркасного типа — экономичность. Если сравнивать проект каркасной бани и такой же аналог, например из бревен, то разница в стоимости будет составлять в 1,5-2 раза. Компактные и практичные бани из каркаса обычно облагорожены крыльцом или маленькой террасой, внутри территория разграничена на три составляющих: комнаты отдыха, душевой и парной.
В редких случаях строят каркасные бани в два этажа, в качестве облицовочных материалов используется кирпич ли брус. Тем не менее, любая конструкция каркасного типа монтируется достаточно быстро, а строительные материалы обходятся максимально дешево.
Начальный этап
Многие строительные компании предлагают уже готовые проекты каркасных бань, в которых уже учтены все требования к строению и месту его расположения. Это значительно облегчит и ускорит работы по строительству, но некоторые моменты понадобится проработать самостоятельно.
План-схема каркасной бани 4Х5
Определите тип будущей постройки, она может быть:
- каркасная баня с террасой;
- каркасная баня маленькая 4х4;
- каркасная баня с мансардой (чердаком);
- каркасная баня домиком;
- каркасная баня большая 6х8и т.д.
Не маленькую роль играет и место, на котором будет размещено строение, так как к бане понадобиться подводить инженерные коммуникации. Фундамент под любой проект выбирается в соответствии с почвами, на котором будет происходить монтаж нового строения, как уже указывалось выше каркасные дома бани за счет своей легкой конструкции можно возводить на рыхлом грунте.
На этапе проектирования также важно определить месторасположение будущей печи, так как под нее нужно сооружать фундамент, вентиляционные выходы, дымоход. Определить заранее нужно и тип кровли, так как структура крыши влияет на выбор стропил, они могут быть более или менее массивными.
Структура традиционной каркасной бани состоит из следующих помещений:
- парилка,
- санузел;
- предбанник;
- тамбур.
Проект каркасной бани с террасой
Если печка устанавливается в парилки, ее размещают как можно ближе к двери, в углу. Во всех чертежах нужно указать размеры всех будущих помещений. Например, стандартная баня на три-четыре человека имеет небольшие габариты, они стандартные — высота 2,20 метра ширина — 2,00 на 2,40 метра. Так как в баню чаще всего отправляются отдохнуть и расслабиться, в современные проекты каркасных бань включают комнаты отдыха, бассейны и даже бильярдные.
Правильно составленные проекты бань помогут не только сэкономить время и финансы во время строительства, но и правильно рассчитать расходный материал. Сам каркас представляет собой раму из брусьев обшитый досками, утеплителем и облицовочным материалом. Отделку пола можно выполнить плиткой из керамики или обычной доской. Основание пола под отделку засыпают керамзитом или другими подобными материалами. Лаги и доски для пола нужно обязательно защитить от грибка и плесени, поэтому до начала монтажа материал пропитывают специальными антисептическими средствами.
Для обшивки стен внутри и снаружи, как правило, применяется вагонка из лиственницы, сосны, ели. Хвойные породы деревьев больше подходят для наружного применения, так как при нагреве (внутри бани) из материала может выделяться смола.
Защитные материалы — на что обратить внимание?
При монтаже бани каркасного типа важно правильно выбрать защитный материал, чтобы высокий температурный режим вместе с повышенной влажностью не смогли негативно отразиться на отдыхе парильщиков.
Схема теплоизоляции каркасной бани
Чтобы защититься от влаги, применяют такие материалы как рубероид, полиэтилен и пергамин. Между теплоизоляцией и обшивкой обязательно включают слой пароизолязии. Так как рубероид при нагреве становится источником неприятного запаха, его стараются не использовать в строительстве бань, (но это больше относится к личным предпочтениям).
Если теплоизоляцию установить надежно и грамотно, тепло в помещении будет сохраняться максимально долго, при этом сократятся расходы на обогрев помещения. Самыми популярными теплоутеплителями считаются минеральная вата и стекловолокно.
Варианты каркасных бань
Для сравнения рассмотрим те бани, проекты которых считаются самыми популярными.
Строение банное с маленькими габаритами
Такое сооружение имеет компактные габариты. За счет длинной террасы оно приобретает необычную форму — маленькое строение визуально увеличивается. Эти несколько квадратных метров включают в себя:
- парную;
- комнату отдыха;
- санузел;
- террасу.
Можно выбрать классическую баню каркасного типа без террасы с общей площадью 20 квадратных метров(4Х5).
Включает в себя:
- парную;
- комнату отдыха;
- моечное помещение;
- крыльцо.
На фото — каркасная баня с террасой
Своя баня – это мечта практически каждого владельца частного дома или дачного участка. Но очевидно, что на строительство нужны деньги, поэтому многие считают, что не могут позволить себе возвести баню. Имеется и более дешевый вариант, который дает возможность построить баню и не потратить много денег, – это каркасные бани. Проекты, фото такой конструкции представлены широким выбором, поэтому каждый без труда найдет вариант, который удовлетворит его требования.
Преимущества и недостатки каркасных бань
Каркасная технология строительства имеет следующие преимущества:
- простота постройки. Строить каркасную баню своими руками просто, для этого не нужны сложные инструменты. Вы даже можете возвести постройку в одиночку;
- экономичность. Возведение каркасной бани обойдется значительно дешевле, чем постройка из других материалов;
- возможность ограничиться облегченным фундаментом. Вес конструкции небольшой, поэтому нет необходимости делать крепкий и дорогой фундамент;
- отсутствие усадки. Проводить работы по внутренней отделке и вводить баню в эксплуатацию можно сразу после ее постройки;
- высокая теплоизоляция, благодаря которой парная быстро прогревается.
Но каркасная баня имеет и недостатки. Самым главным из них является низкая пожаробезопасность. По данному показателю любая деревянная баня уступает кирпичной и газобетонной бане. Для защиты от огня материалы покрывают специальными средствами, которые снижают их горючесть.
Еще один недостаток – низкая устойчивость к влаге. Каркасная баня нуждается в качественной пароизоляции стен, в противном случае она быстро деформируется.
Каркасная баня своими руками: проекты и их особенности
Для того чтобы составить чертеж, необязательно нанимать специалистов. Вы без труда в интернете найдете бесплатно чертежи и фото проектов каркасных бань. В этом случае можно также увидеть, как такая баня будет выглядеть, почитать отзывы людей, которые строили по конкретным проектам, узнать их мнение. Если вы не нашли идеально подходящий вариант, всегда можно внести изменения в готовый проект.
Если вы не уверены в своих силах или хотите сделать сложную по конструкции постройку, то можно заказать проекты щитовых бань, цены на них достаточно доступные. Преимуществом заказа проекта является то, что в этом случае будут учтены все ваши пожелания, а также особенности ландшафта.
Самые простые проекты каркасных бань предусматривают парную, душевую и предбанник, который также выполняет функции комнаты отдыха. Этот вариант отличается компактностью, простотой реализации и низкой стоимостью.
Конечно, более удобным и комфортным вариантом будет баня, имеющая 4 помещения, в ней предбанник и комната отдыха – это отдельные помещения.
Выбор размера бани зависит от величины участка. Если вы являетесь владельцем большой по площади территории, то можете позволить себе сделать просторную баню, но главное не переусердствовать. Чем больше площадь парной, тем дольше она будет нагреваться, что увеличивает расход топлива.
Выбирая проект каркасной бани, нужно также ориентироваться на количество человек, которые будут ее посещать. Лучше выбрать вариант с запасом, если в будущем компания увеличится, переделывать баню будет затруднительно.
Проекты каркасных бань с террасой пользуются высокой популярностью. Терраса – это дополнительная площадь, которая может заменить комнату отдыха. На ней обычно ставят стол и места для сидения. Если сделать большую террасу и установить печь, то вы сможете готовить мясо на природе даже в дождливую погоду. Крыша защитит от дождя, а стены – от ветра.
Вы также можете найти и скачать проект каркасной бани с бассейном. Особенно актуальны такие чертежи для тех, у кого рядом с участком нет озера или речки.
Бассейн может находиться на улице или в помещении, он также может иметь разные размеры. Если размеры участка не позволяют установить бассейн, то лучше ограничиться купелью для бани.
Если у вас часто остаются гости с ночевкой, то разумно будет построить баню с мансардой. В таком случае второй этаж станет полноценной комнатой, где можно на ночь разместить гостей.
Конечно, чем больше дополнений, тем баня дороже. Но если вы сделаете баню с комнатой отдыха, барбекю, бассейном, то она превратится в целый комплекс для отдыха. Представьте, с каким удовольствием вы с семьей или друзьями будете ходить в баню, где можно не только попариться, но и искупаться в освежающем бассейне, поесть шашлыки и подышать свежим воздухом.
Сегодня набирают популярность также проекты каркасных домов-бань. Возводя такое строение, вы сразу же обеспечиваете себя и полноценным домом для проживания, и баней. Эта конструкция особенно актуальна на дачном участке.
Дом с баней под одной крышей – это экономный и рациональный вариант. Для его постройки нужно меньше материалов, он займет меньше площади, а также в нем проще сделать проводку и систему водоснабжения/водоотведения.
Проект каркасной бани 3×4
Вариант для небольших земельных участков. Он рассчитан всего на несколько человек и подойдет для небольшой семьи. Такая баня будет иметь низкую стоимость, собрать ее будет просто. В ней обычно отсутствует отдельная комната отдыха, она либо заменена на веранду, либо объединена с тамбуром.
Ниже представлены проекты, фото каркасной бани своими руками 3х4:
Достаточно взглянуть на фото проекта каркасной бани 3х4, что такая баня имеет два важных преимущества: ее легко построить, и для ее возведения не нужен большой бюджет.
Конечно, такая баня не может похвастаться большой площадью, просторными помещениями, в ней не поместится большая компания, но если вы собираетесь ходить в баню в одиночку или вдвоем, то она является лучшим вариантом.
Баня 3х4 м поместится даже на небольшом участке, для ее строительства нужно мало материалов, что существенно снижает стоимость постройки. Баня получается легкой, поэтому подойдет простой бюджетный фундамент.
Кроме того, баня 3х4 проще в строительстве, нет необходимости нанимать специалистов, можно возвести баню своими руками.
Проект каркасной бани 5×5
Вместительная баня имеет четыре раздельных помещения: парилку, моечную, тамбур и комнату отдыха. Такие размеры бани считаются оптимальными, она подойдет для участка средних размеров. Проект данного типа может также предусматривать наличие веранды или второго этажа.
Проект каркасной бани 6×6
Это просторный вариант, который обычно предусматривает наличие террасы. В такой бане будет комфортно отдыхать небольшой компанией. Она имеет все необходимые помещения. Проект такого размера удобен и дает возможность менять размеры помещений в зависимости от личных потребностей.
Правильно составленный проект бани каркасного типа – это гарантия легкого строительства и отличного результата. Чем подробнее он будет, тем вам будет проще во время строительства. Проект поможет избежать ошибок и лишних трат. Обязательно определитесь с расположением перегородок, окон и дверей, печи для бани, полок. Заранее подготовленный план постройки также дает возможность рассчитать необходимое количество материалов.
Если вы затрудняетесь сделать чертеж самостоятельно, то можете заказать проект каркасной бани «под ключ», цена на него невелика, при этом вы будете уверены, что постройка получится надежной и будет отвечать всем установленным требованиям.
Как построить баню из досок своими руками?
Для строительства бани по каркасно-щитовой технологии можно использовать доски, горбыль, фанеру и ОСП.
Горбыль – это доска, срезанная с неотесанного бревна, прошедшая дополнительную обработку (чистку от коры, выравнивание поверхности спила, покрытие антисептиками).
Баня из горбыля имеет следующие преимущества:
- малый вес;
- оригинальный внешний вид, который придает кора;
- экономичность. Она обойдется значительно дешевле, чем баня из досок.
Но горбыль имеет и свои недостатки. Главным из них является то, что под корой часто обитают паразиты, поэтому материал должен пройти дезинсекцию. Еще одним недостатком является то, что при необходимости придется самостоятельно снимать кору, что займет лишнее время.
Баня из доски – это более популярный и распространенный вариант. Доски отлично подходят для возведения летней бани, строить из них легко и быстро.
Прежде чем начинать сборку сруба нужно подготовить фундамент. Как уже говорилось, одним из главных преимуществ каркасной бани является ее небольшой вес, поэтому нет необходимости тратить деньги на дорогое основание, можно обойтись бюджетным столбчатым фундаментом.
Начинает строиться баня из доски 50х150 на ребро, доски нужно уложить в 2-3 ряда – это будет цокольная обвязка бани. Предварительно необходимо обработать материал антисептиком.
После сборки обвязки ее нужно поместить на фундамент, покрытый рубероидом.
Следующий шаг – размещение стоек каркаса. Для них можно использовать доски с сечением 10х10 см. Стойки нужно устанавливать с шагом 60 см, т. е. шириной плит утеплителя. На этом же этапе необходимо определиться с расположением дверей и окон, подготовить для них обрамляющие стойки.
Свободные концы стоек нужно соединить верхней обвязкой из доски толщиной 50 мм.
Каркас необязательно собирать на фундаменте, можно сделать это и на земле. Такой вариант удобнее тем, что в этом случае баню строить проще, кроме того, имеется возможность ускорить постройку: одновременно возводить фундамент и стены.
Следующий этап – это обшивка каркаса досками. Чтобы конструкция получилась надежной и жесткой, лучше размещать доски в горизонтальном направлении.
Между стойками необходимо разместить утеплитель, а поверх него пароизоляционный слой пленки.
Далее нужно сделать крышу для бани. Для балок перекрытия и стропил лучше использовать доски с сечением 15х5 см. Для обрешетки подойдут доски толщиной 25 см. В качестве кровельного покрытия можно использовать разные материалы, хорошим вариантом будут мягкая черепица или металлочерепица.
Баню из досок своими руками сделать проще, чем из многих других материалов, поэтому она станет хорошим вариантом для тех, кто не может похвастаться большим опытом в сфере строительства.
У вас довольно ограниченный бюджет? Хорошим вариантом станет каркасная баня. Бесплатно проект вы можете найти в интернете, сама постройка также обходится недорого. При этом каркасная баня – это качественная конструкция, которая прослужит вам не один год. Не отказывайте себе в удовольствии попариться в бане и отдохнуть на природе!

Строительство каркасной бани
Первым делом выбираем на участке место для нашей бани. После чего необходимо произвести предварительные расчёты по планировке. Как и при любом строительстве, сначала выясняем тип почвы.
Если у вас глинистая почва, то потребуется возведение ленточного фундамента. Во всех остальных случаях можно обойтись и без него.
Материал для возведения каркасной бани
Далее подготавливаем основной материал. Обязательно убедитесь, что доски хорошо просушены. Для возведения каркасной бани мы можем посоветовать вам: берёзу, лиственницу, осину или липу.
И так, нам потребуется:
- опалубка на 30 см вширь и на 50 вверх;
- метало-прутья для обвязки;
- рубероид;
- раствор бетона;
- брусок с сечением 10 на 10;
- песок с гравием.
Начнем с копки траншеи, глубина которой должна ровняться примерно 50 сантиметрам, а ширина где-то 40. Теперь заливаем фундамент и вставляем в него арматуру, на которую будет крепиться брус. Приступать к обвязке можно только после полного затвердевания бетона. Далее по стенам выстраиваем промежуточные рейки. После стен, выкладываем пол. Кстати, будет очень хорошо, если снаружи стены обшить вагонкой. После всего, сооружаем вытяжку и кроем крышу.
Кроме всего прочего, стоит подумать об утеплителе, он увеличит срок службы вашей бани и сделает возможным практически круглогодичное использование.

Особенности каркасных бань
Правда у каркасных бань есть один существенный минус – в дождь или снег влага может просочиться сквозь брусья и нанести большие повреждения вашей постройке. Именно поэтому нужно учесть ещё некоторые нюансы.
- Во-первых, используйте теплоизоляцию при строительстве бани. С одной стороны, это позволит вашей бане дольше удерживать тепло, а с другой, создаст некоторое подобие герметичности и позволит избежать поступления влаги. Для этого лучше всего подходят стекловолокно или минеральная вата;
- Во-вторых, сделайте пароизоляцию. Это исключит образование конденсата и продлит срок жизни древесины. Для этого можно посоветовать рубероид, плёнку или пергамин;
- И в-третьих, на плотных почвах можно использовать простые варианты фундамента, например, свайный.
Теперь, когда мы заготовили весь необходимый материал и примерно поняли, что нам предстоит, можно приступать к непосредственному строительству.
Технология возведения каркасной бани
И так, для каркасной бани, поскольку она представляет собой облегчённую конструкцию, прекрасно подойдёт упрощённый свайный фундамент. Для его возведения нам потребуются асбестоцементные трубы 100 мм в диаметре. Устанавливаем сваи по периметру будущей бани на расстоянии по 1 м друг от друга. Скважины под сваи необходимо бурить не менее полутора метров. Как только мы ставим сваи в скважины, засыпаем песком, а сами сваи заполняем цементным раствором на основе песка и щебня. После полного затвердевания фундамента, приступаем к обвязке.
Нижнюю обвязку следует выполнять из крепкого бруса, лучше всего с сечением 10 на 10. Начинаем с одного угла, основательно скрепляем гвоздями на местах стыков и по углам. Чтобы исключить шатание обвязки, её устанавливают на штыри около 2 см, которые мы заранее вмонтировали в фундамент. Не следует забывать о прокладке рубероида между фундаментом и деревом. После всего выставляем 8 раскосов по углам.
Важно при прокладке следить за уровнем, если он не ровный, используйте прокладки из толя.
Как только фундамент и обвязка готовы, можно приступать к монтажу каркасных стен. Предварительно собираем рамы во дворе, на открытом пространстве; в противном случае, работу не выполнить. Расстояние между осями ровняем до 0,6 м. Если в стене предполагается проём, то увеличиваем не более чем на 0,4 м. Там, где рама будет примыкать к перемычкам, устанавливаем дополнительную стойку. Тут же можно проложить лаги для пола, брус берём с сечением 15 на 5.
Когда рамы собраны, выставляем их, соединяем и выкладываем лаги. Так же между вертикальными стойками прокладываем утеплитель из любого удобного материала. Внешнюю обшивку рам делаем из вагонки, благодаря ней ваша баня будет смотреться красивее и добротнее. Крепим горизонтально и подкладываем под вагонку гидроизоляцию. Внутри баню тоже обшиваем ей. В итоге должно получиться примерно следующее: внешняя вагонка, гидроизоляция, утеплитель, внутренняя вагонка. Так же промеж гидроизоляции и утеплителя можно протянуть полиэтилен, что увеличит и теплоизоляцию и гидроустойчивость.
Можно переходить к возведению кровли. Бытует мнение, что это очень сложный процесс, но поспешим вас уверить – это далеко не так. Для нашей каркасной бани 4 на 4 построить крышу не будет большой задачей. Для начала определимся, какая крыша нам нужна – двускатная или четырехскатная. От этого и будем плясать.
Для балок и стропил лучше всего подойдут балки сечением 15х5 см. Расстояние между стропилами делаем 10х12 см, а скат крыши не менее 40 см. Балки ставятся на ребро и скрепляются между собой. Скрепляем их косынками, а в конце коньковым брусом. Лучше всего собирать стропильную систему на земле и уже после устанавливать на крышу и крепить. Обрешётку кровли начинаем выкладывать от конька.
Переходим к внутренним работам и начнём мы с пола для предбанника. Необходимо помнить, что пол, как и стены, будет потребителем тепла, посему его тоже придётся утеплять. Сначала выкладываем черновой пол и делаем гидроизоляцию рубероидом или иным материалом. Потом утепляем пол тем же материалом, что и стены. Вновь кладём слой гидроизоляции и, наконец, чистовой пол.
Пол для моечной делается несколько иначе. Сооружаем внутренний обособленный фундамент комнаты: внутри снимаем слой почвы на 10 см., и засыпаем песком и гравием. Вместо лаг устанавливаем асбестовые трубы 100 см., в диаметре. Их кладём на фундамент и заливаем бетоном. Сверху округлой обрезной доской выстилается пол.
Кроме вагонки, с наружной стороны баню можно обшить сайдингом, облицовочным кирпичом, термопанелью или блокхаусом.
Так же, к нашей бане можно пристроить террасу размером 4х1,8 м. Фундамент под неё сгодится мелкозаглубленный столбчатый. После возведения фундамента делаем основу из досок, поставив их на торец, чтобы исключить возможные прогибы.
Далее собираем каркас боковой конструкции, который состоит из вертикальных опор и верхней поперечины – она примет на себя основную нагрузку кровли террасы. Крепим каркас к основанию анкерными болтами. Между ним и кровлей бани проводим соединения и покрываем обрешёткой. Сверху стелим рубероид, так же можно поверх него положить шифер или любой другой кровельный материал.
Далее на основу террасы крепим дощатый настил. С боков к каркасу прибиваем декоративную решётку из досок.
Все те же этапы строительства актуальны и для каркасной бани 6х6 за исключением некоторых нюансов. Так, например, стойки фундамента устанавливаются с шагом, равным ширине плит избранного вами утеплителя. Обвязка цоколя делается из обработанного антисептиком бруса 100х100 мм., и монтируется по периметру постройки, скрепляясь между собой скобами и гвоздями. На них устанавливаем опоры из того же бруса, которые потом обвяжем по верху досками 50х150 мм.
Пол в каркасной бане 6х6 выстилается по традиционной схеме.
Всё, наша баня готова – можно идти париться! Строительство каркасной бани своими руками может растянуться примерно от нескольких дней до месяца, всё зависит от того, сколько времени вы будете выделять на её постройку.
Каркасная или щитовая модель бани с каждым годом набирает всё большую популярность за счет своей скорости возведения, экономичности и доступности. Данная конструкция мобильна, не требует полноценного фундамента, а значит со временем при изменении ландшафтного дизайна на участке, может быть легко переставлена на другое место или вообще перевезена на другой участок. На ее конструкции и функциональности это никак не отразится. Щитовую конструкцию можно возводить в любое время года. Нанимать строительную бригаду нет необходимости, по инструкции от производителя со сборкой справится любой мужчина, без каких-либо столярных навыков.
Только необходимо иметь при себе следующий инструмент: аккумуляторный или сетевой шуруповёрт, рулетку, молоток, резиновую киянку 500-600 г, уровень, карандаш, битумный клей, кран для бака воды.
1) На подготовленную ровную поверхность или облегченный фундамент устанавливаем лаги, далее — к ним крепим основание бани (две половины), заранее присоединив сифон для слива или канализационный шланг на основание.
2) После монтажа основания ставим в паз заднюю стенку парной, при этом одновременно подносим правый боковой щит. Боковой щит совмещаем с полом и задней стенкой, закрепляем саморезами.
3) Аналогично устанавливаем внутренние перегородки, далее — левый боковой щит. Установка и закрепление стен осуществляется с помощью киянки и шуруповерта.
4) Планки-плинтуса внутри бани фиксируем с помощью герметика и шуруповерта, обрабатывая стыки. Закрепляем саморезами.
5) К стенкам парной крепим опорные ноги из бруска, на них кладем сиденье полка. Закрепим опорные ноги с сиденьем изнутри.
6) Следующим этапом будет установка и закрепление лицевой стороны бани. Двери зафиксированы брусками во избежания разбалтывания петель во время транспортировки.
Необходимо убедиться, что все элементы надежно закреплены на своих местах. Недопустима подвижность стен, зазоры и свободный ход в пазовых соединениях.
7) Приступаем к укладке крыши бани, которая состоит из деревянной основы-двух щитов, и ондулина. Дальний щит можно класть как с задней стороны парной, так и с передней, при установленной веранде.
8) Для укладки второго щита переходим к установке веранды: вставим лаги пола веранды в пазы основания бани с помощью киянки или молотка, на них закрепим пол саморезами и, используя как ступень, установим вторую часть крыши.
9) Продолжаем работать с верандой. Сначала закрепляем вертикальные несущие направляющие веранды, потом – перила, потом-несущую горизонтальную балку, на нее – короткие перекладины, далее устанавливаем длинные перекладины крыши и укладываем ондулин на крышу веранды и всей бани, используя лестницу.
10) Ондулин закрепляем саморезами на крыше бани, вырезаем ножом или лобзиком отверстие под трубу печи. Резиновый зонт-заглушку для трубы крепим на битумный клей, пробиваем гвоздями.
11) Подготовим место для печи: закрепим саморезами защитный напольный экран, влаго- и термостойкий. Этим же материалом отделан угол или стена рядом с печью и выход трубы на потолке. Ставим печь на место. Далее крепим бак для воды, комплектуя его краном ¾. Установим трубу согласно инструкции от производителя печи, ниже показана последовательность установки трубы.
12) Заключительным этапом сборки изделия будет монтаж проводки и подключение светильников к электросети! Для данной модели каркасно-щитовой бани комплект электрики предполагает: 12 метров провода, 3 лампочки, выключатель и автомат. Лампочки соединяются параллельно, провод подводится к автомату.
Электросхема подключения лампочек представлена ниже:
Баня готова к эксплуатации! Легкой сборки и отличного пара!
Рекомендации
- Каркасно-щитовая баня из кедра «Мини»
-
- Материал: алтайский кедр
- Длина: 3 метра
- Ширина: 2 метра
- Раздевалка: 2.0 х 1.1 метр
- Парилка: 2.0 х 1.9 метра
- Высота потолка: от 2.05 до 1.9 метра
- Толщина стенки: 45 мм
- Гарантия: 1 год
- 179 900 e
- Каркасно-щитовая баня из кедра «Мини» с верандой
-
- Материал: алтайский кедр
- Длина: 3 метра
- Ширина: 3 метра
- Раздевалка: 2.0 х 1.1 метр
- Парилка: 2.0 х 1.9 метра
- Веранда: 3.0 х 1.0 метр
- Высота потолка: от 2.05 до 1.9 метра
- Толщина стенки: 45 мм
- Гарантия: 1 год
- 189 900 e
- Каркасно-щитовая баня из кедра «Стандарт»
-
- Материал: алтайский кедр
- Длина: 3 метра
- Ширина: 3 метра
- Раздевалка: 3.0 х 1.1 метр
- Моечная: 1.1 х 1.9 метра
- Парилка: 1.9 х 1.9 метра
- Высота потолка: от 2.05 до 1.9 метра
- Толщина стенки: 45 мм
- Гарантия: 1 год
- 219 900 e
- Каркасно-щитовая баня из кедра «Стандарт» с верандой
-
- Материал: алтайский кедр
- Длина: 3 метра
- Ширина: 4 метра
- Раздевалка: 3.0 х 1.1 метр
- Моечная: 1.1 х 1.9 метра
- Парилка: 1.9 х 1.9 метра
- Веранда: 3.0 х 1.0 метр
- Высота потолка: от 2.05 до 1.9 метра
- Толщина стенки: 45 мм
- Гарантия: 1 год
- 229 900 e
- Каркасно-щитовая баня из кедра «Макси»
-
- Материал: алтайский кедр
- Длина: 5 метров
- Ширина: 2 метра
- Раздевалка: 2.0 х 1.5 метра
- Моечная: 2.0 х 1.75 метра
- Парилка: 2.0 х 1.75 метра
- Высота потолка: от 2.05 до 1.9 метра
- Толщина стенки: 45 мм
- Гарантия: 1 год
- 259 900 e
- Каркасно-щитовая баня из кедра «Макси» с верандой
-
- Материал: алтайский кедр
- Длина: 5 метров
- Ширина: 3 метра
- Раздевалка: 2.0 х 1.5 метра
- Моечная: 2.0 х 1.75 метра
- Парилка: 2.0 х 1.75 метра
- Веранда: 5.0 х 1.0 метр
- Высота потолка: от 2.05 до 1.9 метра
- Толщина стенки: 45 мм
- Гарантия: 1 год
- 279 900 e
Отзывы о нас на Флампе
О пользе и удовольствии, которые приносят банные процедуры, знает каждый владелец пригородного участка. Именно поэтому многие стремятся к тому, чтобы у них было это сооружение в собственном пользовании. Но не у всех есть возможность, время и финансы, чтобы возвести данную конструкцию из кирпича или оцилиндрованных брёвен. Выходом будет строительство каркасной бани своими руками. Если грамотно подойти к вопросам утепления и гидроизоляции, то она будет служить очень долго.
Таблица: преимущества и недостатки каркасной бани
| Преимущества | Недостатки |
| Стоит недорого | Чтобы утеплить такую баню, понадобится гораздо больше усилий, финансов и времени, чем баню из кирпича или бруса |
| Не требует мощного монолитного фундамента | Пожаронебезопасна |
| Легко и быстро монтируется | Усаживается такая баня долго, около двух лет. К тому же этот процесс может деформировать облицовку. |
| Хорошо держит тепло | |
| Экологичная | |
| Строить баню можно в любое время года | |
| Сейсмоустойчива | |
| Хорошо «дышит», т. е. пропускает воздух |
Составление проекта постройки и выбор материалов
Любое строительство начинается с планирования и закупки материалов. Чтобы приступить к покупкам, нужно разработать план.
При желании можно воспользоваться готовым планом
Для составления чертежа нужно:
- определиться с местом;
- изучить грунт в этом месте, поскольку он влияет на выбор фундамента;
- определить для себя, какая конструкция будет для вас оптимальной.
Включите в свой проект стандартные банные помещения: предбанник, тамбур, душевую и парильную комнату. Месторасположение печки тоже должно быть указано на схематическом изображении бани.
Оформляя проектную документацию, не упустите ни единой мелочи. Укажите абсолютно всё — от типа вентиляции и особенностей дымохода до использованных материалов при отделке внутри помещения, снаружи и для кровли.
На этапе проектирования определитесь с размерами каждого из помещений, укажите их на схеме. Учитывайте при этом то, какое количество человек одновременно будет находиться в парной. В ней не должно быть слишком тесно, но и чересчур большую баню будет сложно прогреть.
Оптимальной парная считается с размерами 2400х2000 мм при высоте потолка 2200 мм.
Часто любители попариться составляют проекты с дополнительными помещениями: комнатой отдыха, бильярдной, бассейном и т. д. Санузел в бане принесёт дополнительные удобства во время принятия банных процедур.
Банный комплекс можно дополнить санузлом
Если ответственно подойти к такому этапу, как проектирование, то впоследствии будет гораздо проще при строительстве.
Как только проект готов, можно рассчитать количество материала для строительства. При необходимости эти данные вписываются в сам проект.
Видео: как составить чертёж каркасной бани для дачи
Технология строительства фундамента своими руками
Для каркасной бани можно использовать любой тип фундамента.
Свайный
Очень прост в возведении, надёжен. Используется для небольших и лёгких конструкций. Обрёл свою популярность благодаря дешевизне и быстровозводимости. При выборе фундаменты важными параметрами являются глубина промерзания почвы и залегания грунтовых вод. Сваи должны ставиться глубже этого уровня. Помимо этого, для большей надёжности максимально сократите расстояние между точками опоры. Готовьтесь к тому, что придётся копать глубоко.
Есть определённые тонкости использования свайного фундамента:
- Лучше всего такой вид фундамента подходит для нестабильного грунта (песок, торфяник). В этом случае опоры закапываются в почву на ту глубину, где есть твёрдая стабильная опора. Таким образов вес сооружения будет приходиться на хороший грунт.
- Там, где почва промерзает ниже 1500 см, сваи — отличный вариант основы.
- Если поверхность грунта неровная и сильно бугристая, то конструкция на столбчатом основании также станет единственным выходом. В этом случае не придётся выполнять большое количество работ по выравниванию участка.
- Ещё один тип грунта, идеальный для применения свайного фундамента — плотный. Для того чтобы вырыть траншею или котлован в нём, придётся приложить немало усилий. А скважины для свай пробурить гораздо проще.
Таблица: виды свай
| Наименование | Описание |
| Забивные железобетонные сваи | Эти колонны нечасто используются в строительстве, поскольку для их монтажа требуется специализированная техника. Но такой фундамент получается прочным. |
| Винтовые сваи из металла | Этот вариант свай хорошо подходит для строительства бани. Их можно вкрутить в грунт своими руками. Единственным минусом является хорошая теплопроводимость. Полы с такими сваями нужно хорошо утеплять. |
| Буронабивные сваи | Этот вариант наиболее затратен по времени, но используется чаще всего. |
Фотогалерея: типы свай
Буронабивные сваи чаще всего используются при строительстве баниВинтовые металлические сваи можно монтировать самостоятельноЗабивные железобетонные сваи не подходят для бани
Расположение и размеры свай
Ключевые места для расположения свай — это углы здания, места, где наружная стена соединяется с простенком и, конечно же, необходимо устанавливать промежуточные столбы по длине стен. Расстояние между опорами должно быть не менее 2 м, чтобы не нарушалась несущая способность основания.
Места расположения столбов свайного фундамента строго предопределены
Не стоит делать столбы с диаметром меньше 20 см. Чем этот параметр больше, тем лучше будут несущие способности фундамента.
Чтобы понять какой длины нужны столбы, нужно знать:
- на какую глубину промерзает почва;
- на какой глубине начинается надёжный не плавучий грунт.
Уровень промерзания для определённого региона практически неизменный. А вот, чтобы разобраться с состоянием почвы, на помощь придёт пробное бурение, которое всё покажет.
Пошаговая инструкция возведения свай из кирпича
Бутовый камень или кирпичи также часто используют для создания фундамента. Их фиксируют друг с другом бетонным раствором. Располагать такие столбы стоит по той же технологии, что и сваи. Это касается и расстояний между ними. Угловыми столбы делаются квадратными (380х380 мм), а промежуточные прямоугольными (380х250 мм). Они должны возвышаться над почвой на 300–400 мм и уходить в глубину на 250–300 мм.
Столбчатый фундамент можно сделать из кирпичей
Вся работа по сооружению фундамента проходит в несколько этапов:
- Выровняйте и расчистите участок.
- Отметьте места, где будут стоять столбы.
- Пробурите отверстия необходимой глубины. Дно гидроизолируйте.
- Бетон заливайте постепенно, трубу после этого достайте максимально аккуратно.
Процесс формирования сваи нужно тщательно контролировать
- Когда труба достигнет отметки 200–300 мм, зафиксируйте её, дождитесь пока бетонная смесь хорошо затвердеет, армируйте.
- Как только основание бетона застыло, можно заполнить трубу цементным раствором до конца.
- Сформируйте ростверк, используя крепкий брус.
Ленточный фундамент
Это наиболее распространённый вариант основания. Причём не только для строительства бани. Свою популярность он обрёл благодаря лёгкости возведения. Идеально подходит для несыпучих неподвижных грунтов, с глубоким залеганием грунтовых вод.
Ленточный фундамент легко возводится своими руками
Для строительства бани его не нужно слишком заглублять, особенно если почва не сильно промерзает.
Если печь бани требует отдельного фундамента, то лучше его начинать строить вместе с основанием для всей постройки.
Выполните действия в следующей последовательности:
- Хорошо расчистите участок, где будет строиться баня, и близлежащую территорию. Максимально выровняйте площадку.
- Начните разметку внутреннего контура ленты фундамента. Вбейте 2 колышка в землю и натяните между ними верёвку.
- С помощью строительного угольника отмерьте углы в 90 градусов от уже поставленных колышков и, используя рулетку, отмерьте расстояние до следующих.
- Натяните верёвки между колышками.
- Сделайте внешний контур по тому же принципу. Между верёвками должно быть расстояние в 100 мм. Это ширина будущих стен конструкции.
Разметка ленточного фундамента
- Выкопайте траншею по разметке. Глубина зависит от того, насколько промерзает почва. Она должна быть глубже на 200 мм этого уровня. Утрамбуйте дно траншеи.
- Сделайте песчано-щебневую подушку толщиной 100–200 мм. Когда засыпаете песок, смачивайте его водой и утрамбовывайте. Это нужно проделать несколько раз. Поверх песка засыпается щебень. Снова всё утрамбовывается и ровняется.
- Сделайте опалубку, используя обрезную доску. Она должна возвышаться над землёй на 300 мм и более.
- Оберните опалубку полиэтиленом, крепя его скобами степлера. Это предотвратит вытекание бетона.
Полиэтилен предотвратит вытекание бетона
- Положите армированную сетку для придания дополнительной жёсткости и прочности фундаменту.
- Залейте бетонный раствор.
Заливайте бетонную смесь с высоты 500 мм и меньше. Так бетон не расслоится.
Формирование конструкции пола и его теплоизоляция
Увеличить срок службы бани можно, если соблюсти подробную инструкцию по монтажу пола. Это позволит избежать утечек тепла и гниения половых досок, а также минуть других неприятных последствий.
Для монтажа бани следуйте следующей инструкции:
- К нижним лагам пола во всех помещениях бани, кроме душевой, необходимо приделать бруски сечением 50х50 мм.
- На них застелите черновой пол из досок.
- Затем уложите слой гидроизоляции, например, рубероид.
- Теперь можно провести теплоизоляционные работы. Для этого можно использовать минеральную вату или пенополистирол толщиной в 100 мм.
- Завершающими этапами станут пароизоляция (идеально подойдёт пергамин) и монтаж чистового пола.
Пол в бане нужно обязательно нужно утеплять
Пол для душевой делается немного по-другому:
- Сделайте отдельный фундамент для моечной комнаты. Это гарантия того, что пол в ней всегда будет тёплый и быстро высыхать.
- Снимите слой грунта (0,5 м), сделайте песчано-щебневую подушку толщиной в 10 см в этом котловане.
- Лаги пола изготовьте из асбестоцементных труб, диаметр которых равен 100 мм. Их можно уложить на фундамент и залить бетонным раствором, который будет удерживать их от смещений.
- На трубы постелите обрезную круглую доску толщиной в 40–50 мм. Оставьте между ними зазоры для резиновых прокладок примерно 6–7 мм. Они крепятся к доскам гвоздями.
- Прижмите пол плинтусами.
Видео: как сделать слив в банном полу
Как рассчитать и построить стены
Теперь, когда основание застыло, пол сделан, можно начинать возводить скелет стен бани. Чтобы приступить к этим работам, древесину необходимо хорошо просушить. Не рекомендуется брать для этих целей берёзу, поскольку она подвержена быстрому гниению.
Схема устройства каркасной бани поможет в строительстве
Перед тем как приступать непосредственно к возведению стен, рекомендуется провести предварительный расчёт материала. При этом помните, что его нужно закупать с запасом. Возведение стен проходит в следующем порядке:
- Начните работу с нижней обвязки. Для её монтажа приобретайте крепкие брусья, сечение которых равно 100х100 мм. Соедините их по углам в четверть, хорошенько скрепите гвоздями. Чтобы нижняя обвязка и приделанные угловые стойки не повело, поставьте их на стальные штыри толщиной в 20 мм, которые нужно вмуровать в бетон.
- Этого же сечения брус используется для создания верхней обвязки.
- Для большей жёсткости каркаса, установите восемь раскосов в углах бани.
- По периметру стен поставьте промежуточные стойки из такого же бруса, которым делали обвязки.
Чтобы не работать на высоте, специалисты рекомендуют сооружать и скреплять каркас стен на земле, а потом просто поднять их, вставить на свои места и закрепить. Это гораздо удобнее и быстрее.
Как нужно монтировать стропильную систему
Для сооружения каркаса крыши необходимо подготовить доски сечением 150х50 мм. Они ставятся на ребро и скрепляются друг с другом. Расстояние между стропилами должно быть 100–120 мм. В вертикальной позиции фиксируйте их «косынками», сверху соединяйте коньком.
Снаружи необходимо оставить около 400 мм балки.
Для обрешётки крыши подойдут доски в 250 мм. Их фиксируйте в направлении от конька вниз.
Стропила крепятся специальными пластинами из металла.
Для удобства монтажа, соберите весь «скелет» крыши на земле, а затем водрузите его на своё место, как в случае со стенами.
Для крепления стропил рекомендуется использовать металлические пластины
Правильное и практичное утепление: подробная инструкция
Каркасная конструкция очень лёгкая, поэтому и утепление тоже должно быть соответствующим, чтобы избежать деформации стен.
При выборе утеплителя для бани необходимо придерживаться нескольких правил:
- у материала должны быть хорошие теплоизолирующие способности;
- его свойства не должны исчезать при воздействии высокой температуры и влажности;
- не должно быть выделений токсических веществ;
- он должен быть пожаробезопасным.
Таблица: какой утеплитель выбрать
| Наименование | Описание |
| Минеральная вата | Несмотря на то что минвата не тяжёлая, её всё равно не рекомендуется использовать, поскольку при комбинации с облицовочными материалами она может стать достаточно тяжёлой. Минеральную вату образуют сплетения тонких волокон, которые получаются при расплавлении горных пород или из отходов металлургического производства. Когда эти волокна сплетаются, то между ними остаются незаполненные воздушные пространства. Именно благодаря этому у минваты хорошие теплоизоляционные свойства. Материал характеризуется высокой температурой плавления неорганических веществ, поэтому его можно использовать в бане. Высокая влажность тоже не приносит вреда минеральной вате. |
| Камышовые плиты | Природный материал. Отличается своей экологичностью. Имеет высокие теплоизолирующие свойства. Толщина плит составляет 150 мм. Это удобный размер для утепления каркасных сооружений, в том числе и бани. |
| Опилочно-гипсовый состав | Этот вид утеплителя делают путём смешивания 10 частей опилок, которые предварительно тщательно просушивают, и 1 части гипса или цементного раствора. Хорошее соотношение цена — качество. Можно сделать самостоятельно. |
| Пенополистирол | Это дешёвый и лёгкий материалы, его легко монтировать и подгонять под нужный размер, имеет отличные теплоизоляционные свойства, невосприимчив к влаге. Однако он материал плохо переносит высокие температуры, поэтому им лучше утеплять места, удалённые от печи. |
Фотогалерея: виды теплоизоляционного материала
Пенополистирол нельзя использовать вблизи печи Опилочно-гипсовую смесь можно сделать самому Плиты из камыша являются природным утеплителем Плиты минеральной ваты не меняют своих свойст под воздействием высокой температуры и влажности
Этапы утепления бани
Утеплять стены бани стоит ещё на этапе строительства стен. Теплоизоляционный материал укладывается в промежутках между несущими частями каркаса здания. Поверх его устилается гидроизоляция. Таким образом, получается «пирог», в центре которого расположен утеплитель, снаружи — гидроизоляция, по обе стороны — облицовка.
Специалисты советуют укладывать утеплитель в два слоя, один из которых идёт в форме плит, а второй рулоном. Таким образом, убираются все лишние щели, и баня будет действительно хорошо утеплена. Следует обращать внимание на то, что у этих материалов есть внутренняя и наружная стороны.
Утепление каркасной бани нужно проводить на этапе строительства
Варианты утепления около печки
Это место, где температура достигает наивысшей точки. Поэтому стены тут следует дополнительно защитить от огня. Некоторые используют для это асбестовые плиты. Другие считают, что этот материал не очень полезен для человеческого организма и рекомендуют использовать базальт или изолон. Но все разновидности материалов прекрасно справляются с воздействием высоких температур, защищают стены бани от неприятных последствий.
Категорически запрещается использование в качестве пароизолятора полиэтилена. Возле печи лучше уложить фольгу.
Утепление пола и потолка
Эту работу можно выполнить в несколько шагов:
- Тщательно утрамбуйте грунт. На него вылейте бетонную основу-стяжку.
- Уложите слой гидроизоляционного материала (рубероид или плотный полиэтилен).
- Уложите теплоизоляцию.
- Ещё раз покройте слоем гидроизоляции.
- Залейте верхний слой бетонной стяжки.
Таким образом вы сделаете черновой пол. Его можно дополнительно проработать гидроизолирующими растворами, после полного застывания. Это дополнительно обезопасит пол от попадания влаги через микротрещины в бетоне и продлит срок эксплуатации.
Потолок утепляется по той же технологии, что и стены:
- На перекрытии потолка закрепите пароизоляционный материал.
- Уложите утеплитель.
- Устелите ещё один слой пароизолятора.
- Последний этап — облицовка.
Утепление потолка в бане позволить сохранить драгоценное тепло в парной
- Единственным отличием в процессе работы является то, что в потолке, между пароизоляционным материалом и облицовкой, необходимо оставлять небольшое пространство для естественной вентиляции.
Гидроизоляция
Помимо того, что стены нужно утеплять, их ещё необходимо защищать от влаги. Этому способствуют две причины:
- От воздействия влаги любой утеплитель в разной степени начинает терять свои теплоизоляционные качества. А для бани это не очень хорошо.
- Теплоизоляционные материалы долго сохнут после попадания на них влаги. От этого может появиться плесень и гниль, которая может перейти на каркас.
В качестве пароизоляционного материала можно использовать:
- алюминиевую фольгу (она не только защищает от попадания влаги, но ещё и отражает тепло);
- пергамин, который экологичен, стоит недорого;
- полиэтилен.
В качестве гидроизоляции можно использовать рубероид. Но его не рекомендуют для отделки бани, поскольку под воздействием высоких температур он начинает неприятно пахнуть.
Пароизоляционный материал необходимо укладывать нахлестом, а стыки проклеивать металлизированным скотчем.
Видео: какие ошибки можно допустить при укладке парогидроизоляции
Внешняя и внутрення отделка летней или зимней бани
Каркасная должна не только служить вам долгое время, но и быть красивой внешне.
Специалисты рекомендуют проводить наружные отделочные работы из досок лиственных пород дерева. Под отделку нужно обязательно положить гидроизоляционный материал и утеплитель.
Лучшим отделочным материалом является дерево
Внутренняя облицовка должна быть не только красивой, но и выдерживать высокую температуру и влажность. Вагонка из хвойных пород дерева прекрасно справится с этой задачей. Только не используйте её в парной, поскольку она может выделять смолу. Тут больше подойдёт вагонка из лиственницы.
Липа — отличный вариант для отделки потолка и изготовления полок и лежаков.
Для отделки парной нужно тщательно подбирать деревянную вагонку
Видео: сколько и на что нужно тратить денег при строительстве бани
Отзывы реальных людей о каркасных банях
При минимальном количестве материальных средств можно построить неплохую каркасную баню своими руками. Во времена Союза на ударных стройках довольно часто приходилось использовать этот метод. Конечно, это были неказистые, на скорую руку сооружения. Порой каркас собирали просто на брошеных брёвнах, в качестве печи использовали самодельное «чудо-печь» из стальной трубы большого диаметра, где нижняя часть — топочная, верхняя— ёмкость для подогрева воды. Но даже в зимних условиях ими можно было пользоваться. Можно и сейчас продумать неплохую конструкцию, благо информации множество. Надо только захотеть.
Каркасная баня — это очень практичное решение, если ещё подойти с умом, то никаких проблем не должно возникнуть. Конечно же, есть много фирм, которые занимаются этим делом, но если есть свободное время и знания, то можно сделать и самому! Более того, я сам с другом делал такую. Фундамент использовали столбчатый, а сам каркас делали из бруса, затем стены из досок, гидроизоляция, утепление, внутри делали вагонку, под которую закладывали полиэтилен.
По-моему, отличный бюджетный вариант. Конечно, бревенчатая баня — это классика, но при каркасном варианте можно все сделать быстрее и парится в бане, а не за работой над её строительством. А по прочности и теплопроводности вряд ли сильно каркасная уступит рубленой.
Если к возведению этой конструкции подойти со всей ответственностью, и выполнять работу по правилам, то у вас получится баня, которая по функциональности и долговечности будет не хуже, чем изготовленная из бруса. При этом стоить она будет гораздо дешевле, а строить её быстрее, причём сделать это можно своими руками. Именно по этим причинам владельцы дачных участков всё чаще отдают предпочтение каркасным конструкциям.
- Ольга Морозова
Здравствуйте. Меня зовут Ольга. Мне 27 лет. По образованию — журналист.
Каркасная баня имеет ряд неоспоримых преимуществ перед традиционной. Сравнительно недорогое, компактное строение из дерева не просто очищает тело, оно славится своим чудесным микроклиматом, а терпкий дух древесной смолы по своему лечебному воздействию на организм превосходит любые самые хорошие способы ароматической терапии. В современной каркасной бане идеальным образом сочетаются лучшие традиции русского деревянного зодчества и новые подходы к процессу строительства.
Содержание:
- Преимущества
- Теплоизоляция
- Пароизоляция
- Подбор места и создание проекта
- Подбор строительных материалов
- Устройство каркаса
- Наполнение и отделка
- Сооружение пола, потолка и перегородок
Отличная каркасная баня своими руками может быть без особого труда построена на дачном участке при наличии некоторого строительного опыта. Такой способ является наиболее простым, потому что он позволяет быстро и без больших хлопот осуществить любые задумки относительно будущей парной. Строительство бани по каркасной технологии способствует максимальному осуществлению любых дизайнерских фантазий.
Преимущества каркасной бани
Несомненно, что каркасная баня не была бы столь популярной, если бы не имела целый ряд достоинств, отсутствующих у бань традиционной постройки. А именно:
- возможность возвести намного быстрее, чем здание бани из бруса, кирпича, ячеистого бетона или любых других популярных материалов;
- каркасная баня можетстроиться в любое время года, погода практически не мешает качественной сборке;
- высокая экономичность при возведении и во время эксплуатации каркасной бани, что делает ее доступной для постройки людьми с любым уровнем достатка;
- простота сборки, не требующая привлечения специальной техники или специалистов высокой квалификации;
- отсутствие усадки, что дает возможность начинать эксплуатацию бани в полную силу сразу вслед за завершением строительства;
- возможность применять для отделки любые доступные строительные материалы.
Возведение такой бани вполне по силам людям, не являющимся профессиональными строителями.
Теплоизоляция каркасной бани
Однако неправильно будет считать, что каркасная баня – это сгусток достоинств и полное отсутствие недостатков. При ее возведении строителя ждут вполне ожидаемые сложности. Например, из-за конструктивных особенностей каркасная баня требует более серьезных мер по устройству хорошей теплоизоляции, чем сруб или кирпичное строение.
Под хорошей теплоизоляцией подразумевается такая, которая обеспечивает минимально возможные потери тепла. Утепляется каркасная баня обычно стекловолокном или минеральной ватой. Стекловолокно имеет значительно меньшую теплопроводность, чем древесный материал, а это дает возможность накладывать его более тонким слоем, экономя полезное пространство.
Пароизоляция каркасной бани
Другая сложность – борьба с образованием конденсата при использовании бани в зимнее время. Конденсат наносит деревянной конструкции огромный вред. Чтобы не допустить этой беды следует заранее продумать организацию качественной пароизоляции. Для решения задачи нужно запасти в достаточном количестве пергамин или рубероид.
Древесина, которая пойдет на строительство каркасной бани, обязательно должна быть хорошо просушена. Лучше использовать породы с низкой теплопроводностью, например, липу, осину, лиственницу. Вагонку следует брать только высшего сорта.
После решения всех вопросов можно приступать к воплощению мечты о добротной каркасной бане.
Подбор места и создание проекта
При разработке проекта самостоятельно или при подборе наиболее подходящего готового варианта учитывается общая площадь строения и размеры отдельных помещений. Это определяется до начала строительных работ и зависит от доступного места на участке и возможностей хозяев в материальном плане.
Главным отличием каркасно-щитового строения от традиционного сруба является значительно меньшая потребность в пиломатериалах и не слишком тяжелая конструкция, для которой можно применить легкий фундамент.
К выбору места для будущей бани следует подойти ответственно. В целях пожарной безопасности нужно расположить ее на значительном расстоянии от жилья. Еще до начала строительства должен быть решен вопрос о канализационной системе и сливе воды.
Когда все вопросы продуманы и проект в целом готов, можно приступать к созданию подробных чертежей и детализированного проекта. Это требуется для точного подсчета количества необходимых строительных материалов.
Подбор строительных материалов
Набор материалов для каркасной бани нужен несколько иной, чем для обычной. Потребуется доска 20-30 мм для устройства обрешетки, брус 120×120 мм, типовая доска 50×120 мм, брусок 40×75 мм. Нужно будет запастись рубероидом, вагонкой для обшивки стен, опилками, цементом, минеральной ватой или пенопластом для использования в качестве утеплителя, гвоздями, скобами и другими необходимыми вещами. Их количество зависит от проекта. Расчеты и приобретение желательно произвести заранее, чтобы в дальнейшем не отвлекаться от работы.
Технология такого строительства удобна и проста. Каркас конструкции собирается из деревянных стоек, имеющих длину 3 метра, с устройством нижней и верхней обвязки. Затем все сооружение обшивается досками, а остающиеся между ними пустоты заполняются утеплителем.
Располагать каркасную баню целесообразно на столбчатом фундаменте, потому что для более легкого, чем сруб строения не требуется мощное основание. Глубина его зависит от почвы. Глинистый грунт требует заглубления фундамента на 20 см ниже уровня промерзания, а песчаный – на полметра от поверхности. Ширина определяется по толщине стен, но не менее 270 мм. Ленточный вариант фундамента подходит для крупной конструкции, например, для двухэтажной бани.
После расчета и приобретения строительных материалов в необходимом количестве можно приступать к возведению каркасной бани.
Устройство каркаса
Прежде всего, нужно сделать раму. Для этого концы брусков соединяются в «полдерева», проделываются отверстия под концы лаг и шпоры стоек. Перед окончательной сборкой необходимо провести точную разметку и примерку. Бруски рамы крепятся скобами, а на фундамент бани она кладется поверх слоя рубероида.
Главным при строительстве бани является сборка каркаса. Его сооружают из четырех рам, для изготовления которых используют бруски, имеющие общий размер 50×80, для стропил потребуется 30×30, а на переводы идут 30×55. Выполняется их крепление к обвязке, готовую конструкцию обрабатывают антисептическим средством.
Наполнение и отделка
После выполнения основы каркасной бани можно начинать ее отделку и наполнение. Стены следует обшивать горизонтально снизу вверх ровными рядами. Для предохранения от гниения опорный брус и нижние поверхности досок пола нужно выкрасить масляной краской или покрыть олифой. Чтобы избежать затекания воды за края внешних досок, их можно скосить в сторону.
Стены каркасной бани обшиваются в несколько этапов. Сначала прибиваются небольшие части внутренней и наружной обшивки. Затем внутрь кладут материалы, призванные исполнять роль паро- и гидроизолятора. Это может быть толь, пергамин или рубероид. Под доски с внешней стороны также можно поместить толь и пергамин, а изнутри стены застелить заранее подготовленной пленкой.
Утепляются каркасные бани своими руками, поэтому от добросовестности выполнения этой работы зависит качество парной. Идеальным утеплителем могут служить стекловата или пенопласт, который можно размещать везде, кроме участков, соседствующих с печкой. Уложенные в стену эти материалы прекрасно задерживают тепло, не позволяя жару покинуть парную даже в сильные морозы.
Сооружение пола, потолка и перегородок
При укладке потолка нужно выполнить хорошую подгонку досок и обтесанных жердей верхней обвязки каркаса. На доски снизу закрепляется пароизоляционный материал, например, пергамин. Для обшивки потолочного пространства используются тонкие доски – 10-15 мм. На накат опять кладут пергамин или рубероид.
Дощатый короб по периметру потолка нужно засыпать торфом, опилками или керамзитом. Эта конструкция с верхней стороны отделывается рубероидом. Затем сооружается обрешетка под покрытие для кровли. Каркасные бани обычно накрывают односкатными или двускатными крышами.
Пол бани должен быть максимально защищен от гниения. Для этого еще до укладки покрытия лаги пропитываются антисептиком. Размещать их нужно под уклоном, чтобы обеспечить стекание воды. Эту же задачу выполняют скошенные к центру бруски.
В целях безопасности та часть перегородки в парную, которая находится рядом с печью, должна строиться из несгораемого материала, лучше всего из кирпича. В качестве дополнительной меры против возгорания стены бани следует обработать огнеупорным материалом.
Устройство и размещение дверей и окон выполняется обычным способом.
Важным преимуществом каркасной бани перед традиционной является возможность проведения отделки сразу вслед за окончанием строительства, тогда как деревянный сруб должен постоять не менее года для «усадки-утруски-усушки».
При достаточном строительном опыте пройдет совсем немного времени после начала работ, и в уютном месте на загородном участке появится великолепная баня с жаркой парной. Здесь можно будет снять усталость после трудного дня, отдохнуть, расслабиться. По своим достоинствам возведенная в кратчайшие сроки каркасная баня ни в чем не будет уступать традиционному бревенчатому срубу.
Советуем почитать дополнительно — Строительство русской бани своими руками, Баня на даче своими руками. Также вам может быть интересно — Как залить фундамент под баню и Утепление парилки бани из сруба.
О пользе бани известно всем, поэтому редко найдется дачный участок, владельцы которого не поставили и не собираются ставить баню. Практика возведения подобных строений включает не одну сотню лет. Поэтому баня своими руками для большинства – это не фантазия, а простая обыденность. Желающие посвятить время каркасному строительству могут ниже найти пошаговую инструкцию о том, как самостоятельно сделать баню. В работе помогут представленные фото, видео, чертежи.
Проект бани
Скачать проект бани в формате dwg
Чтобы уложиться в сумму 350 тысяч рублей, можно построить каркасную баню 4х4 м, добавив к основному строению веранду 4х1,8 м. В этом случае можно обустроить парилку 2,1х1,6 м, комнату отдыха 3,8х2,1 м, а также душевую – 1,6х1.6 м.
Возведение фундамента
Глубина закладки фундамента обусловлена уровнем промерзания грунта местности, в данном случае – это 60 см. Чтобы определиться с его параметрами, необходимо заглянуть в проект бани. Если нет проектной документации, подготовленной специалистами, вид фундамента определяется в зависимости от материала стен.
Если решено ставить каркасную баню, достаточно будет сделать небольшой ленточный фундамент. Для его обустройства на подготовленной ровной поверхности устанавливают квадратную опалубку из 2-х параллельно расположенных досок. Их скрепляют с помощью саморезов, дополнительно используют поперечины, чтобы впоследствии уложить брусок.
Также надо позаботиться о вентиляции фундамента, сделать соответствующие закладки. Чтобы не ошибиться с размерами и направлением траншеи под фундамент, целесообразнее сначала сделать опалубку, а потом в пространстве между досками прокопать траншею. Выкопанную землю лучше сразу засыпать в ведра и уносить с участка, чтобы не допустить загрязнения.
Опалубка устанавливается по периметру и под внутренние перегородки, а также там, где будет установлена печь. Так нагрузка будет распределяться ровнее. Также желательно провести армирование. Траншеи заполняются сначала песком для уменьшения нагрузки на основание, а потом бетонным раствором.
Когда он застынет, останется только выкрутить саморезы и разобрать опалубку. Обычно через 5-7 дней бетон набирает прочность. В сухих и жарких условиях рекомендуется поливать фундамент водой.
Обустройство пола бани
Сначала требуется раскатать рулонную гидроизоляцию между элементами фундамента и по самому фундаменту. Это может быть обычный рубероид. Его же используют для гидроизоляции в углублениях фундамента, предназначенных для лаг, которые станут основанием пола.
Чтобы лаги не прогибались в процессе эксплуатации, их дополнительно укрепляют промежуточными опорами. Верхняя часть фундамента также гидроизолируется. Далее останется положить доску для пола, начиная от края фундамента. Ее надо обработать антисептиком.
Изготовление каркаса
Следующий этап строительства каркасной бани своими руками – изготовление самого каркаса. 4 отдельных стеновых блока делают из обрезной доски, оставляя отверстия под окно и двери. Собирать заготовку надо на земле, на полностью ровном участке.
Когда заготовки будут готовы к монтажу, их устанавливают вертикально и попарно скрепляют саморезами. Очень важно соблюдать верный угол соединения, следить за уровнем. Внешне каркасные стойки выглядят как пустотные конструкции из вертикальных и горизонтальных элементов. После установки надо еще раз проверить ровность, а лишь потом начинать возводить кровельную систему.
Обустройство крыши
Следующий этап пошаговой инструкции – строительство крыши каркасной бани.
Ее монтаж начинают с установки лаг 2 этажа. Далее на получившиеся балки накладывают слой досок для перекрытия. Затем монтируется стропильная система. Не надо забывать о том, что предстоит вывести дымоход, поэтому в стропильной системе надо оставить соответствующее пространство. Далее кладется гидроизоляция, делается контробрешетка, обрешетка. Осуществляется монтаж кровли.
Пространство под двускатной крышей можно активно использовать для хранения веников, других полезных вещей.
Обшивка стен бани
Пустоты в каркасе бани заполняют теплоизоляционным материалом. Можно использовать маты, рулоны. Но маты намного удобнее, они просто вставляются в имеющиеся пустоты каркаса. Рулонный материал нужно будет резать в соответствии с размерами промежуточных элементов каркасной стойки.
При обустройстве стен не надо забывать о пароизоляции и гидроизоляции. Когда пленка будет закреплена, начинают внешнюю отделку бани на даче блокхаусом.
Далее надо установить двери и окна.
Внутренняя отделка
Изнутри баня обшивается еще одним слоем теплоизоляции, а также пароизоляцией. Стыки должны быть проклеены клейкой лентой. Поверх этого стены обшиваются вагонкой.
При выполнении отделки стен парной потребуется сделать 3 слоя:
- минвата;
- фольга;
- вагонка.
В зону душевой устанавливают соответствующее оборудование. Стены в месте установки душевого уголка лучше отделать кафелем, мозаикой или пластиковыми стеновыми панелями.
Веранда
Следующий этап строительства бани – возведение веранды. Для нее потребуется мелкозаглубленный столбчатый фундамент. Далее из доски делают основу, для этого их ставят на торец, так будет исключен прогиб.
Затем собирают каркас боковой конструкции, состоящий из вертикальных опор и верхней поперечины, на нее будет идти основная нагрузка кровли веранды. Каркас крепят к основанию с помощью анкерных болтов.
Между этим каркасом и кровлей бани устанавливают соединительные элементы, которые покрывают обрешеткой. Сверху настилают рубероид, поверх можно закрепить шифер или другой кровельный материал.
На основу террасы прикрепляют настил из досок. Имеющиеся пустоты в каркасе боковой части заполняют заготовками с декоративной деревянной решеткой.
Установка печи для бани
Один из завершающих этапов – установка печи и вывод дымохода.
Читайте также: Как прочистить трубу в бане
Если выбрать печь с возможностью установки теплообменника, то бак можно поставить в другом помещении. В частности здесь используется печь Ермак–12, к ней выбран бак объемом 70 литров, который поставлен на чердаке в зоне внутренней перегородки между душем и парной.
Здесь же расположен бак для холодной воды, он побольше – 120 литров. Для подачи воды в баки из колодца используется насос.
Обустройство слива
Об обустройстве слива из имеющихся водоприемников надо позаботиться на раннем этапе строительства бани.
Во-первых, необходима прокладки канализационной трубы с уклоном на 1 метр 3–5 см. Такая труба должна идти от душевой и от крана слива воды из системы трубопровода. Он находится в нижней точке трубопровода. Такой кран нужен чтобы слить воду из системы и законсервировать баню на длительный срок, например, на всю зиму. Лучше, если сливная труба не будет иметь ответвлений и поворотов. Прямая труба – это способ избежать засоров. На схеме видно, как лучше соединить два водоприемника в одну систему.
Канализационную трубу лучше соединить с септиком, чтобы сливная вода не уходила в землю.
Видео строительства бани своими руками
Дата: 17 сентября 2017
Каркасная баня: строим от А до Я своими руками
Построить русскую баню, а точнее собрать для себя каркасную конструкцию – это дело не тяжелое и даже интересное. Но только своими силами тут не обойтись, ведь любое частное строительство требует минимум одного напарника.
С каркасной конструкцией количество подсобных рабочих напрямую связано со скоростью строительства, поэтому как быстро распланировать каркас, подобрать материалы и чертежи расскажем в деталях.
Начнем с проекта
Рассчитаем метраж навскидку: какая семья или компания по численности будет посещать постройку? Стандарт для средней семьи – это проектировка 4Х6 или 3Х6 метров. Смотрим:
Классика для здорового отдыха.
Вариант с террасой:
Классическая, компактная 4Х3:
Организуем основу
Определившись с проектом, приступаем к закладке фундамента. Естественно, делаем нужный по ширине и глубине котлован.
Важно! Именно ленточный тип основы нужен только для помывочной части и парилки.
Предбанник, комнату отдыха или террасу выгоднее поставить на металлические опоры или столбы .
Ленточный тип фундамента делать имеет смысл, если в планах делать больше одного этажа. Ведь конструкция будет тяжелее в несколько раз.
В некоторых случаях, наоборот, экономят на всем, в том числе и на опоре. Каркас собирают на чем придется. Такая постройка начнет отсыревать в первый же сезон! Но разрешено делать такие фундаменты под каркас:
- Ленточный;
- Столбчатый;
- Деревянный;
- Армированный;
- Винтовой;
- Блочный или кирпичный.
Нормальную основу делают так:
- Очищают и выравнивают площадь.
- Размечают точки столбов и плоскости траншей.
- Выкапывают ямы или траншеи.
- Обеспечивают гидроизоляцию.
- Заливают бетонный раствор.
- Варят ростверк.
Совет! Определять конкретный тип фундамента принято по почке. Ведь на болоте даже ленточный с арматурой вскоре «поплывет».
Продумываем систему слива
Да, иногда просто готовят котлован под зданием, но если помещение используют несколько раз в неделю, то желательно сообразить слив по типу септика для частного дома :
Затратное приспособление. Но иначе застоя грязной воды не избежать, особенно в зимний период.
Обычно дренаж выкапывают прямо под помывочной комнатой, но не всегда конструкция позволяет выдержать размер, да и переизбыток отходов откачать невозможно.
Помним про утепление полов
Будущая постройка почти на открытом воздухе, сквозняк точно пойдет по ногам, если не обеспечить теплые полы в сухих частях русской бани каркасного образца. Желательно сделать так:
- На лаги прибиваем брус. Достаточно сечения 5х5 см.
- На него укладываем черновой досчатый пол .
- Поверх досок обязательно стелим рубероид .
- Утеплитель (минеральная вата, пенополистерол).
- Стелим чистовой пол.
Для влажной площади (мойка, парная) обязателен фундамент закрытого типа. В процессе настила полового покрытия нужно выдержать расстояние между досками, достаточно и 1 см. Пропитанные влагой доски должны быть прибиты, но не к каркасу или основанию. Для них специально предусмотрены металлические опоры, иначе постройка загниет.
Собираем каркас
- Начинают с нижней обвязки. Крепим на анкерные болты, но желательно добавить стальной скобы на каждое соединение – лишним не будет.
- На обвязку ставим столбы. Крепление – на 2 болта.
- В промежутке монтируем угловые стойки. Удобнее применить стальной уголок для ровной и надежной фиксации.
- Далее ставим промежуточные стойки. Лучше выдержать расстояние в 50-60 см.
- Заканчиваем верхней обвязкой и постоянными укосинами для жесткости .
- Финиш – перекрытия из балок и стропильные ноги .
Организуем стены и их утепление правильно
В работу сгодится только просушенная древесина .
К сведению: не стоит использовать березовый брус или доски. Этот материал гниет быстрее всего.
Внутри обшиваем лиственными породами, а снаружи – сосной или лиственницей.
Сам процесс создания стен можно выполнять как на каркасе, так и щитовым методом, с последующим поднятием каждого блока на «скелет» бани. Причем, наружная часть обязательно обрабатывается антисептическими средствами. Интерьерная часть шлифуется и пропитывается устойчивыми к перепадам температур составами (морилкой, к примеру).
Начинают всегда с утепления, работаем так:
- Между каждой стойкой устанавливаем стекловолокно .
- Уже на стойки монтируем гидроизоляционную пленку. закрепляем брусом.
- На брусок с внешней стороны закрепляем блокхаус или доску .
- Внутренняя часть обязательно пароизолируется, затем идет обшивка вагонкой или доской .
Важно знать! Внутри ни в коем случае не применяем лак. Он при температурных перепадах дает вредные испарения.
Начинают обычно монтировать утеплитель не со стен, а с кровли. Но для этого сначала делаем стропильную систему. О чем далее.
Как правильно собрать крышу на каркас
Нужный материал в работу: доска 15Х5. Ставим на ребро и фиксируем. Выдерживаем дистанцию между досками в 10-15 сантиметров. Собираем так называемые «треугольники» и соединяем брусом.
Для балок перекрытия важное условие – должен выдерживаться выступ не более полуметра от уровня стен. В самом конце устраиваем обрешетку из необрезной доски (толщина не более 2,5 см). Кладем поочередно сверху вниз, начиная от конька.
Наши «треугольники» или «косынки» вымеряют так:
Совет! Части стропильной системы проще собрать отдельно, на поверхности земли, а уже потом поднять на каркас.
Для кровли берем мягкую черепицу или металлочерепицу. В крайнем случае профнастил. Но до этого необходимо заняться утеплением. Работаем с наружной части, начинаем по такому списку материалов:
- Пароизоляция.
- Утеплитель.
- Ветро-влагозащитная мембрана.
- Черепица или профлист.
К сведению! Три пункта из списка отлично подойдут для работы и со стенами бани.
Подробнее про двухскатный вариант крыши на каркас:
Строительство перекрытий, кровли с пояснениями.
Работу выполняют по секторам между стропилами. А после установки защитной мембраны ставят контробрешетку с черепицей. Пример для ориентира:
Что взять в отделку стен помимо дерева
Применять современные материалы для облицовки сейчас выгоднее, красивее и иногда быстрее. Да и с хорошим пиломатериалом при таком изобилии конкурентного товара сложнее.
Берем для каркасной бани:
Про парную подробнее
Это самое ответственное помещение, поскольку микроклимат в парной – это самая суть постройки. Для этого увеличиваем количество утеплителя. Если на стены, потолок или крышу шел слой в 10 см, то на парилку нужно не менее 15 сантиметров. Еще важно, чтобы осадок пара (конденсат) не скапливался внутри стен, поэтому без теплоизолятора не обойтись .
Приобретаем обязательно фольгированный и монтируем так, чтобы слой фольги был наружу, то есть «смотрел» в саму парилку. А уже сверху утеплителя и теплоизолятора обязательно липой. Не важно, будет ли вагонка или обычная доска. Главное, чтобы от древесных волокон был толк. Ни в коем случае не обрабатываем лаком и краской .
Как лучше обустроить печь
Удачно, если в баню можно одновременно подогревать и в это же время мыться. Поэтому печь из камня, железа или кирпича ставится топкой в помывочную или предбанник, а основная конструкция ближе к парной.
Причем печи для дачных каркасных бань лучше оснащать сразу двумя баками для воды в целях экономии.
Соорудить подобный нагревательный элемент очень просто. Понадобится:
И примитивная буржуйка отлично нагреет камни до высокой температуры. Именно такая конструкция не прогорит долгое время, потому что температуры от железного каркаса печи идут на баки и камни. До красна нагреваться просто нечему.
Не забываем про предбанник
Для каркасного типа строительства. предбанник – это помещение уже классической русской бани-времянки. На этом «полупомещении» всегда экономили, просто присоединяя импровизированный сарай из досок к срубу 3 на 3. Хотя сейчас каркасный проект бани 3 м на 6 м уже подразумевает утепленную комнату отдыха на половину площади.
- Теплый. Требует утепления всех площадей – от пола до потолка. Желательно ставить на ленточный фундамент. Нужно позаботиться еще и о вентиляции. А для этого докупают обычно асбестовые трубы в 10-15 см и делают вытяжку. Обеспечит комфорт в любое время года.
- Холодный. Обычная пристройка. Такой тип очень удобен для летнего дачного периода, поскольку легкая конструкция проветривается естественным образом. В работе не нужно много дорого материала. Да и собрать для каркасной бани не сложно своими руками и за короткий срок.
Оба типа можно красиво представить, выполнив внутреннюю отделку. Но для зимнего отдыха и крещенских купаний холодный вариант исключен. В предбанниках принято размещать лавки, кровати, стол и несколько вешалок для инвентаря.
Удобно, с самого порога именно через предбанник можно заносить или накачивать воду, а также подтапливать печь.
Сначала думаем, потом делаем
Стройка каркасной бани – это не подражание западным технологиям. Ведь всегда в часть плана можно внести обычный скромный сруб для парной, а остальную площадь выполнить из современного материала.
Главное, чтобы все было по технологии, иначе стены начнут «собирать» влагу. Поэтому пренебрегать каким-то материалом в целях экономии не стоит – ремонт выйдет намного дороже.
Каркасная баня из бруса:
Достаточно долговечный и одновременный недорогой вариант строительства. Автор применил в работу все, что можно приспособить для бюджетной стройки.
Каркасная баня своими руками
Многие владельцы садовых участков мечтают о самостоятельной постройке бани, которая соответствовала бы всем пожеланиям хозяина, то есть была спланирована полностью «под него». В наши дни имеются все условия для того, чтобы такие мечты превратились в реальность. Всё, что нужно начинающему строителю – это придерживаться определённых инструкций.
В статье мы расскажем вам о том, как можно построить каркасную баню своими руками, рассмотрим основные этапы её сборки и отделки, а также какой проект выбрать для каркасной бани.
Отметим, что представленный тип постройки выбран нами по причине его дешевизны и простоты, так как он основан на использовании уже готовых к применению древесных заготовок.
Материалы и план строительства
При подготовке к строительству вам необходимо будет закупить следующие материалы:
- брус 100×100 мм;
- заготовки досок 50×150 мм;
- гидроизоляционные и утеплительные материалы (рубероид, минеральная вата или пеноизол);
- элементы внутренней обшивки (вагонка);
- материалы, используемые для внешней обшивки бани (вагонка, СМЛ и другие)
После того как все материалы закуплены – вы можете приступать к основным строительным работам, руководствуясь при этом следующим планом:
- расчистка строительной площади и закладка фундаментного основания;
- возведение каркасных стен;
- обустройство кровли;
- монтаж пола и внутренняя отделка помещений.
Фундамент каркасной бани
Каркасное сооружение будущей бани представляет собой конструкцию из стоек трехметровой длины, внутри и снаружи обшитых досками, между которыми помещается выбранный вами утеплитель.

Для каркасной бани достаточно будет закладки столбчатого фундамента, глубина залегания которого определяется качеством грунта в месте постройки. Так, для песчаника и суглинка вам необходимо будет углубиться минимум на 1,5 метра, в то время как для глинистого грунта будет достаточно глубины в 30 см.

Ширина опор фундамента выбирается с учетом предполагаемой толщины стен (рекомендуемая ширина – 270 мм). Для усиления опорного основания под баню допускается заливка поверх столбов дополнительного ленточного фундамента (на всю ширину каркаса).
Монтаж каркасных стен
Сооружение каркасной конструкции бани начинается с подготовки обвязки цоколя. Для этого заранее обработанные антисептиком брусья 100×100 мм монтируются по периметру постройки и крепятся между собой скобами и гвоздями.
Поверх них устанавливаются опоры из того же бруса, которые затем обвязываются поверху постройки досками 50×150 мм. При этом вертикальность установки опор обязательно контролируется с помощью строительного уровня.

Промежуточные стойки желательно устанавливать с шагом, соответствующим размеру заготовок (плит) выбранного вами утеплителя. Кроме того, при их установке следует ориентироваться на участки, где будут располагаться проемы для окон и дверей, а также места примыкания простенков.
Для повышения прочности каркасной конструкции все опорные стойки во время сборки фиксируются с помощью дополнительных распорок.
Обустройство крыши
Кровля бани изготавливается из тех же досок с сечением 150×50 мм. При этом стропильную систему вы можете собрать на земле и уже в готовом виде установить её на верхнюю обвязку. Но прежде вам нужно будет установить и закрепить поверх обвязки специальный брус (мауэрлат), используемый в качестве несущего основания возводимой крыши.
После того как вы установите стропильную систему – можно будет перейти к обустройству обрешётки. изготавливаемой из досок толщиной в 20 см. По завершении застилки обрешётки (которая ведётся обычно, начиная от конька), можно будет перейти к укладке выбранного вами кровельного покрытия.
Внутренние работы
При реализации проекта по сооружению каркасной бани своими руками нужно помнить и о внутренних работах, прежде всего – о застилке пола, которая организуется, как правило, по традиционной схеме:
- В первую очередь к лагам обвязки крепятся поперечные брусья сечением 50×50 мм.
- Затем на них стелется черновой пол, закрываемый сверху слоем рубероида.
- После этого на рубероид кладутся минеральные плиты толщиной около 100 мм, которые закрываются поверху чистовым полом из обрезной доски.
- По завершении всех этих процедур нужно будет смонтировать специальную вентиляционную трубу, обеспечивающую вытяжку испарений из-под пола.
Обратите внимание на то, что в моечном отделении пол должен набираться из одних лишь разборных досок, хорошо подогнанных одна к другой.
Закончив работы по застилке пола, вы можете перейти к оформлению оконных и дверных проёмов, а также к установке всех заложенных в проекте перегородок. Потолки в помещениях бани закрываются досками или вагонкой, под которые предварительно укладывается пароизоляционный и утеплительный материал. Наружная и внутренняя отделка стен строения также организуется по классической схеме.
Мы представили вашему вниманию краткую инструкцию об очередности выполнения всех работ по возведению каркасной бани. Может быть у вас есть дополнительный материал к нашей статье? Оставляйте свои комментарии.
Как правильно строить каркас бани вы можете посмотреть в представленном видеоматериале:
Каркасные бани проекты своими руками
Бани из бревен и кирпича всем хороши. За исключением, разве что сложности возведения и довольно высокой стоимости строительных работ. Отличной альтернативой традиционным баням являются более современные каркасные конструкции. Каркасное строительство не требует наличия многочисленных подробнейших чертежей и покупки дорогостоящих материалов.
Каркасные бани проекты своими руками
В среднем на покупку строительных материалов для возведения каркасной бани требуется в 2 раза меньше денег, если сравнивать с другими упоминавшимися ранее вариантами. При желании парильню можно построить своими руками, что является дополнительным преимуществом.
Проект каркасно-щитовой бани
Содержание пошаговой инструкции:
Подготовка проекта и материалов
Работа по строительству каркасной бани начинается с подготовки проекта. Однако еще до начала составления необходимой проектной документации вы должны сделать следующее:
- выбрать оптимальную конструкцию бани. Парилка может представлять собой отдельно стоящее здание либо же пристройку к дому или другому строению;
- выбрать место для строительства бани;
- определить особенности грунта на строительной площадке.
В зависимости от этого будут меняться требования к фундаменту.
Проектирование каркасной бани
Однако в подавляющем большинстве случаев каркасные бани строят на столбчатых основаниях, т.к. такие фундаменты одинаково хорошо себя проявляют при использовании практически в любых грунтах.
Приступайте к подготовке проекта. В состав традиционной бани входит тамбурное помещение, предбанник, умывальник и непосредственно парилка. Также отметьте в проекте место установки печи (если это будет парное помещение, печку рекомендуется разместить в ближайшем к двери углу).
Каркасная баня своими руками
В проектной документации должна отражаться информация о типе вентиляционной системы, особенностях дымохода, кровли и других значимых элементов.
Настоятельно рекомендуется заранее определить оптимальные габариты всех помещений и отразить их в чертежах. К примеру, стандартные габариты парилки составляют 240х200 см, высота потолка – 220 см. Такой баней смогут одновременно удобно пользоваться несколько человек.
План каркасной бани 4х5м 20м/кв
При желании можете дополнять проект на свое усмотрение. К примеру, владельцы довольно часто оборудуют в своих банях комнаты отдыха и бильярдные.
Правильно составленный проект – гарантия легкого и успешного строительства. Чем более подробной и точной будет проектная документация, тем проще вам будет ориентироваться при выполнении работы. Если вы не можете самостоятельно справиться с решением каких-либо вопросов, лучше выделите деньги и закажите проект у специалистов. Лучше заплатить один раз, чем в дальнейшем тратить огромные деньги на исправление разного рода дефектов.
Схема-проект бани с террасой
На этапе составления проекта просчитайте нужное количество материалов. В данном отношении все индивидуально и зависит от размеров будущей бани и ее планировки. Непосредственно каркас собирается из брусков, досок для устройства обрешетки и досок для пола. Вместо дощатого настила пол можно отделать керамической плиткой. В этом моменте ориентируйтесь на свои личные предпочтения, однако в случае с баней древесина является самым предпочтительным вариантом.
Каркасные бани своими руками
Также понадобятся защитные материалы и материал для обшивки стен.
Чаще всего стены обшиваются вагонкой. Для внешней обшивки традиционно используют вагонку из лиственницы, для внутренней – из хвойных пород.
Доски обшивки крепятся в вертикальном положении.
Удельная теплоемкость производимого кирпича
Что нужно знать о защитных материалах?
Строительство бани неотъемлемо связано с устройством разнообразных защитных материалов. Избыточная влага и высокая температура оказывают неблагоприятное воздействие на элементы конструкции, поэтому без использования специальных материалов не обойтись.
Для защиты от влаги используются разнообразные материалы. Чаще всего это полиэтилен, пергамин и рубероид. Пароизоляция размещается между теплоизоляционны м материалом и обшивкой. От использования рубероида по возможности нужно отказываться, т.к. под воздействием высокой температуры он выделяет неприятный запах.
Отдельного внимания заслуживает вопрос теплоизоляции. При грамотном выборе и правильной укладке утеплителя будут существенно снижены потери тепла, а следовательно и затраты на обогрев бани.
Чаще всего для утепления каркасных бань используется минвата. Не менее популярным является стекловолокно. Возможно и применение других материалов. К примеру, потолки иногда утепляют пенопластом, а полы – керамзитом или другими засыпками.
Устройство фундамента для каркасной бани
Готовый каркас имеет небольшую массу, поэтому фундамент для бани может быть самым простым. Лучший вариант – столбчатое основание. Функцию опор в данном случае будут выполнять плиты из асбоцемента, залитые бетоном.
Устройство фундамента для каркасной бани
Первый этап. Купите асбестоцементные трубы. Оптимальный вариант – изделия диаметром 10 см и длиной 4 м. Количество труб подбирается индивидуально. Опоры обязательно должны присутствовать под каждым углом бани. В отдельных ситуациях, к примеру, когда стены имеют большую длину, 1-2 дополнительные опоры устанавливаются и под стенами парной.
Второй этап. Подготовьте ямы диаметром 20 см и глубиной порядка 150 см. Для этой работы удобнее всего использовать бензиновый бур. При отсутствии такого инструмента используйте любые доступные средства.
Третий этап. Разрежьте трубы на 2 части одинаковой длины. Разместите полученные куски в скважинах. Засыпьте пространство вокруг труб песком. Тщательно утрамбуйте засыпку.
Четвертый этап. Приготовьте бетонный раствор. Используйте стандартную смесь из 1 части цемента, 2-3 частей песка, 4-5 частей мелкой щебенки и воды.
Пятый этап. Заполните трубы готовым бетонным раствором.
Подготовка нижней обвязки
Каркасная баня своими руками
Нижняя обвязка собирается из обрезных досок шириной 15 см и толщиной 5 мм. Доски сбиваются друг с другом, после чего в обвязку врезаются лаги. Для изготовления лаг тоже используются доски.
Рассматриваемая конструкция требует качественной влагозащиты. Под лаги и обвязку следует уложить один из упоминавшихся ранее гидроизоляционны х материалов.
Закрепите обвязку и лаги на трубах фундамента. Для этого используйте металлические пластины. Обработайте готовую конструкцию хорошим антисептическим средством. Оно предотвратит гниение древесины и будет защищать материал от грызунов и насекомых.
Обшивка бани ОСП
Возведение стен каркасной бани
Каркасная баня своими руками
Первый этап. Разметьте место для каркасных стоек.
Второй этап. Установите пару угловых стоек.
Третий этап. Установите несколько промежуточных стоек.
Четвертый этап. Обшейте часть каркаса ОСП (ориентировано-с тружечные плиты). Для фиксации обшивки используйте шурупы.
Из чего состоят стены каркасной бани
Пятый этап. Установите еще несколько промежуточных стоек и обшейте полученную часть каркаса. Повторяйте до тех пор, пока не будет получена целостная конструкция. Не забудьте оставить проемы для дверей и желаемого количества окон.
Обустройство кровельной конструкции
Обустройство кровельной конструкции
Изготовьте шаблон для сборки стропильных конструкций. Все элементы стропильной системы собираются внизу, на земле, и уже в готовом виде поднимаются вверх. Каждый элемент стропильной конструкции должен быть установлен над своей стойкой.
Для большего удобства можете настелить на балки временное перекрытие из обыкновенных досок.
Лучше, чтобы кровля каркасной бани была вентилируемой. Уложите между контрбрусом и стропилами ондулин или другой подходящий по свойствам материал. Обрешетку прибивайте непосредственно к брусу.
Закройте фронтоны предварительно подготовленными листами. Обычно используются уже знакомые вам ОСП.
Обустройство кровельной конструкции
В завершении выполняется установка окон и дверей, после чего можно приступать к финишной отделке бани.
Финишная отделка
Каркасная баня должна быть не только крепкой, надежной и долговечной, но и красивой. Для придания объекту необходимых внешних качеств выполняются соответствующие отделочные работы. Снаружи стены каркасной бани рекомендуется обшить досками из древесины лиственных пород. Под обшивку уложите слой влагоизоляционно го материала и утеплителя.
Отделка бани деревом
Внутренняя обшивка бани будет обеспечивать дополнительную защиту элементов строения от неблагоприятных воздействий. Так, для сборки чернового потолка подойдут все те же ОСП. Прикрепите их к балкам перекрытий со стороны помещения. Для внутренней обшивки стен прекрасно подходит хвойная вагонка.
Сердцем любой бани является печь. Установка этого элемента должна быть выполнена в соответствии с требованиями противопожарной безопасности. Как правило, используется стандартная система, в соответствии с которой в предбаннике размещается нагревательный котел, а непосредственно в парилке обустраивается печь каменка.
Стену, разделяющую парилку и комнату отдыха, выложите из строительного кирпича.
Разделите полученную каркасную конструкцию на зоны в соответствии с предварительно подготовленным проектом. Материал для перегородок выбирайте в соответствии с условиями конкретного помещения. К примеру, бильярдную и комнату отдыха можно разделить даже обыкновенными гипсокартонными перегородками из влагостойких листов.
Те же стены, которые будут подвергаться воздействию влаги и/или высокой температуры, нужно выкладывать из более устойчивых материалов, обычно это кирпич. Обшейте перегородки вагонкой, блокхаузом или другим подобным материалом. Обшивка придаст стенам более привлекательный внешний вид.
Для финишной обивки потолка лучше всего использовать вагонку из липы. Такая же древесина наилучшим образом подходит для изготовления банных полок.
Каркасная баня – самое подходящее решение в современных условиях
Таким образом, в самостоятельном строительстве каркасной бани нет ничего сложного. Потратив сравнительно немного денег и времени, вы получите надежную, безопасную, долговечную и в целом замечательную по своим эксплуатационным свойствам конструкцию.
Читайте также на нашем сайте статью — щитовая баня своими руками.
Видео – Каркасные бани проекты своими руками
Источники: http://1decor.org/postroyki/karkasnaya-banya.html, http://kakpravilnosdelat.ru/karkasnaya-banya-svoimi-rukami/, http://svoimi-rykami.ru/stroitelstvo-doma/banya/karkasnye-bani-proekty-svoimi-rukami.html
































































