Please wait a few seconds.
Проект бани с дополнительной комнатой — хозяйственным блоком, как вспомогательным многофункциональным помещением. Фото чертежей и схем, а также видео-проект гостевого дома-бани с хозблоком.
Проект бани с хозяйственным блоком, по сути, является типовым обычного банного строения с пристройкой хозяйственного помещения в задней его части. Хозблок, как правило, обеспечивается отдельным выходом и оконными проемами. Его наличие обеспечивает дополнительную площадь для хранения разнообразного хозяйственного инвентаря. Благодаря наличию хозблока, дачный участок не нуждается в возведении отдельно стоящих помещений под сараи и дровяные хранилища. Вместо дополнительных построек можно разбить клумбы, установить беседку или заложить бассейн, что весьма положительно скажется на общем облике архитектурного ансамбля всего дачного участка. Наличие хозяйственного блока характерно для проектов, как садовых, так и для грандиозных банных комплексов премиум-класса. В проектах предпочтение отдается не, сколько, наличию численности, сколько функциональной нагрузке внутренних хозяйственных построек.
Гостевой домик-баня с хозблоком
Проект и хозяйственным блоком весьма оригинален в своей многофункциональности. Наличие мансарды в качестве второго жилого этажа и хозблока на первом, полностью ограждают владельцев от дополнительных построек на участке.
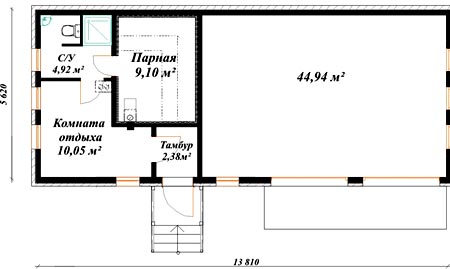
Центральный вход в гостевой дом осуществляется по небольшой лестнице, ведущей на открытую террасу. Здесь имеется два входа – с левой и правой стороны террасы. Входя в левую дверь, можно попасть в тамбур, за которым располагается просторная комната отдыха, ведущая в помещение бани и небольшое техническое помещение . Парное и моечное отделения имеют большие размеры. В них спокойно, без тесноты, разместится 5-6 человек, не испытывая при этом дискомфорта.
Через правую дверь, расположенную на террасе, можно попасть в холл, где находится лестница, ведущая на второй этаж. На втором этаже свободно располагаются две спальни и просторная комната отдыха, которую можно использовать качестве комнаты для проведения различных мероприятий, в том числе и торжественных, или в качестве бильярдной.
Хозяйственный блок обеспечен другим входом с противоположной стороны фасада. Техническая комната достаточно просторная, что выгодно подчеркивают большой оконный проем. Оконные проемы находятся во всех банных комнатах, включая моечное и парное отделения.
Видео-проект гостевого дома-бани 6х6, украшенного эркером. Строение под вальмовой крышей, состоящее из просторной комнаты отдыха, помывочной, парилки и хозяйственного блока:
Размеры гостевого дома-бани с хозблоком
Общая площадь помещения составляет 110 кв.м, из них жилой площади – 52.5 кв.м.
На первом этаже располагаются 20-ти метровая терраса с комнатой отдыха в 15.0 кв.м и технической комнатой 5.5.кв.м. Площадь хозяйственного блока составляет почти 11.0 кв.м. Размеры комнат банного помещения:
- моечная – 6.86 кв.м.
- парилка – 6.45 кв.м.
- холл – 2.5 кв.м.
Холл второго этажа, расположенный между двумя спальнями в 13.6 кв.м и 24.1 кв.м, имеет такие же размеры, как и на первом этаже.
Проект «Лазня с хозблоком»
Основные отличия данного проекта от прочих, это наличие автономного входа в техническое помещение, размерами 2.0х3.0 метра. Его можно использовать по-разному – в прямом назначении , как хозяйственный блок , или оборудовать под дровяник, а можно использовать в качестве дополнительной комнаты на случай непредвиденного массового наплыва гостей.
Технический хозяйственный блок примыкает к основному строению бани и собирается из того строительного материала , что и основное строение. Если используется профилированный брус – то из него же, с аналогично проведенным утеплением в простенках. Его отличительной особенностью является лишь внутренняя обшивка, для которой не используется вагонка.
Рабочие размеры проекта
Размеры самой бани составляют 4.0х5.0 метров, а со стороны фасада при наличии хозяйственного блока и квадратной террасы, параметры проекта составляют 5.0х6.0 метров. Крыша для всех банных блоков общая. Чердачное помещение невелико и имеет маленькую дверь во фронтоне, открывающую доступ на чердак. В качестве жилого помещения чердак не используется, но на нем хранится необходимая банная утварь и аксессуары, такие, как шайки, тазы, лестницы и банные веники. Пол чердачного помещения выполнен из обрезной доски-двадцатки.
Проект дома с баней и хозблоком из бруса
Проект из бруса состоит из четырех основных отделений – парилки, моечной, комнаты отдыха и хозяйственного блока, который при желании можно переоборудовать под санузел с туалетом и ванной комнатой. Отделка парной произведена вагонкой из осины. Из нее же сделаны полати, прикрепленные к стенам парного отделения.
Фундамент – опорно-столбчатый, состоящий из цементных блоков, размерами 0.2х0.2х0.4 м. В качестве гидроизоляционного материала использован рубероид, а пароизоляция выполнена из алюминиевой фольги. В качестве утеплителя применена плитная минеральная вата . Толщина утеплительного слоя пола и потолка составляет 100 мм, а стен – 50 мм. Высота потолка кроме парного отделения составляет 2.25 м, в парилке – 2.1 м.
Многие при строительстве бани даже не задумываются о том, чтобы оборудовать ее уборной. Уже при эксплуатации бани может оказаться, что бегать в дом для справления нужды не совсем удобно. Именно поэтому еще на стадии проектирования нужно задуматься, а нужен ли туалет в бане?
Оправдано ли усложнение проекта
Конечно, баня с уборной и с душем будет сложнее, чем одна только парилка и предбанник, зато и пользоваться ею будет в разы комфортнее. Представьте, что попариться захотелось не летом, а зимой, а банька расположилась метрах в 30 от дома. Вряд ли кому-нибудь будет приятно преодолевать это расстояние в мороз.
Нужно учесть и режим эксплуатации бани. Если она будет использоваться только в теплое время года, да и то нерегулярно, то есть смысл отказаться от оборудования ее уборной.
Если все-таки судьбоносное решение принято, то нужно выбрать подходящий тип туалета:
- отдельная уборная в бане
. Предусматривается еще на стадии проектирования, самый комфортный вариант. Из недостатков выделить можно усложнение (нужно организовать подачу воды в сливной бачок), а также канализации;
- биотуалет
– дешево и сердито. Отличный вариант для тех случаев, когда при постройке об этой мелочи забыли, а решать проблему как-то нужно;
- пристройка к бане
– это уже типичная работа над ошибками, при проектировании о туалете забыли, теперь исправляем. Вход предусматривается с улицы; - строительство на небольшом расстоянии от баньки
.
Универсального варианта нет и быть не может, подбирать придется исходя из своих запросов (цена, конечно, тоже имеет значение). Можно только сказать, что более-менее регулярно использующуюся баню все-таким имеет смысл оборудовать уборной.
Общие правила проектирования и примеры проектов
Если руки дошли до того, чтобы оборудовать баню туалетом, есть смысл подумать и о душе, купальне. Это не сильно усложнит проект, зато после парилки можно будет погрузиться в прохладную воду купальни, а не прыгать в сугроб. А летом можно будет просто освежиться приняв душ.
Что должно войти в состав проекта
Основная проблема при составлении проекта своими руками – разместить на малой площади необходимый минимум помещений. Желательно, чтобы даже небольшая банька включала в себя:
- небольшую террасу;
- тамбур – небольшая прихожая;
- комнату отдыха;
- парную;
- душевую кабинку;
- санузел;
- купель.
Разместить все это можно даже на небольшой площади , есть проекты бань 6х7 с туалетом и прочими перечисленными помещениями. В них и попариться можно и душевно отдохнуть с друзьями.
При компоновке помещений можно ориентироваться на такие рекомендации:
- санузел не нужно выпячивать, он должен скромно расположиться в глубине бани. При этом вход в него должен быть расположен недалеко от парной. Это необязательное требование, вход в уборную вполне может располагаться и в прихожей;
- дверь должна открываться наружу не только из соображений безопасности, но и здравого смысла;
- в уборной должна поддерживаться положительная температура во избежание подмерзания воды иначе. Так что простенькая необходима;
- оптимальный вариант – расположение душевой и туалета рядом. Понадобиться канализация и водопровод, прокладывать их удобнее, если эти помещения рядом. А вот если туалет и душ все-таки разнесены по разным углам бани, рядом с санузлом обязательно нужно расположить умывальник;
- не лишним будет небольшое окошко в туалете. Оно будет неплохим дополнением к вентиляционной системе.
Что касается канализационной системы, то в отдельных случаях можно обойтись без ее усложнения. Организовывать подачу воды в сливной бачок и прокладывать еще одну канализационную трубу нужно только при устройстве стационарного туалета в самой бане. В остальных случаях можно обойтись решениями попроще:
- в случае стационарной уборной в самой бане единственный вариант – прокладка трубы до септика. Инструкция по организации канализации потребует устройства нескольких приемников стоков (в парилке, душе, туалете и т. д.), дальше стоки самотеком направляются в септик, где и перерабатываются;
- если уборная сооружается отдельно, то можно обойтись и простой выгребной ямой;
Вместо периодической очистки выгребной ямы можно просто переносить туалет на новое место каждые несколько лет. Такой подход отлично работает с торфяными биотуалетами , сама кабинка переносится на новое место, а на месте торфяного компоста высаживаются деревья либо кусты.
- если нет желания возиться с выгребной ямой, можно соорудить постамент из дерева, а вместо выгребной ямы использовать емкость (то же ведро), для удобства его опорожнения с задней стороны постройки делается небольшая дверка. Главный минус такого решения – не слишком приятные ароматы.
Баня с мансардой – глупость или оригинальное решение
И, наконец, . Возводятся такие строения в максимально сжатые сроки – при наличии комплекта стройматериалов, необходимого ручного инструмента и бригады из двух-трех человек бывает достаточно одного летнего месяца.
И хотя стоимость подобной конструкции несколько превышает стоимость здания из обработанного бруса, они обладают несомненным преимуществом – высокой энергоэффективностью, что приведет к значительной экономии энергоресурсов в зимнее время.
Расчет стоимости
Стоимость бани с хозяйственным блоком складывается из множества факторов, причем в разных регионах России она может колебаться. Если провести усреднение диапазона цен, можно сказать, что стандартная конструкция площадью 18–20 метров квадратных обойдется, в зависимости от используемых материалов, в следующие суммы:
- из бревна необработанного – 500 — 600 тысяч рублей;
- из кирпича (газоблока, пеноблока) – 900 тысяч – один миллион рублей;
- из бруса клееного – 1100 — 1200 тысяч рублей;
- из бревна оцилиндрованного – 500 — 600 тысяч рублей;
- из бруса профилированного – 400 — 500 тысяч рублей;
- из бруса простого – 300 — 400 тысяч рублей.
Здание, возведенное по каркасно-щитовой технологии, обойдется в сумму порядка 800 тысяч рублей. Обустройство фундамента ленточного типа для здания потребует дополнительных финансовых вложений приблизительно в 200 тысяч рублей.
Строительство
Процесс показан на данном видео:
Обустройство фундамента
Для начала необходимо согласно проекту произвести разметку. Если в качестве стенового материала выбрана древесина, достаточно будет столбчатого фундамента.
Для этого по площади участка посредством ручного бензобура пробуриваются отверстия глубиной в 1 метр, в которые монтируются готовые бетонные блоки либо асбоцементные трубы с последующей заливкой их бетоном. На этом этапе главным условием является соблюдение единого уровня над поверхностью грунта – порядка полуметра.
Возведение стен
Если приобретена сауна с хозблоком из деревянного бруса, достаточно, следуя инструкции, собрать уже подогнанные бруски в правильном порядке.
В случае возведения каркасно-щитовой постройки сначала выстраивается каркас из бруса, который впоследствии обшивается снаружи и изнутри плитами ОSВ
с закладкой между ними теплоизоляции – пенопласта либо минеральной ваты.
Этап возведения стен предусматривает обычно одновременное обустройство внутренних простенков, монтаж дверных коробок и окон, организацию перекрытия.
Кровля
Сначала из деревянного же бруса изготавливается каркас, на который крепится кровельный материал – ондулин, металлочерепица либо любой выбранный аналог.
При установке кровельного покрытия необходимо предусмотреть качественную гидроизоляцию
, препятствующую проникновению атмосферной влаги внутрь помещения и паробарьер, предотвращающий отсыревание деревянных конструкций кровли изнутри.
Также нужно на этом этапе заложить дымоотводную трубу от печки-каменки. Дымоход лучше организовывать на основе нержавеющей трубы , поскольку классические асбоцементные сегодня не соответствуют нормам противопожарным и санитарным. Они при перегреве легко могут разрушиться и в процессе эксплуатации выделяют множество вредных канцерогенных веществ.
Если помещение чердака планируется эксплуатировать, например, в качестве гостевой комнаты, тогда кровлю необходимо дополнительно утеплить изнутри и осуществить декоративную отделку.
Внутренняя отделка
Заключается в обустройстве напольного основания и потолка. Сначала изготавливается несущий каркас из необработанного бруса, на который ложится половая шпунтованная доска толщиной три — четыре сантиметра.
Потолок же выполняется либо на основе деревянных досок либо обшивается панелями ОСВ.
Помещение парной
Лучшим материалом для внутренней отделки парилки традиционно считается осина. Обработанной осиновой доской обшиваются стены, потолок помещения, из нее же изготавливается в два — три ряда полок. Дверь в парную также должна быть деревянной
либо выполненной из полупрозрачного термостойкого стекла.
Печь лучше использовать готовую металлическую, поскольку самостоятельное обустройство каменки в бане/сауне требует специфических навыков и определенного опыта.
Коммуникации
В процессе строительства необходимо предусмотреть подвод водоснабжающих, канализационных и электрических коммуникаций. Любые внешние участки трубопроводов необходимо оборудовать качественной теплоизоляцией
, чтобы минимизировать вероятность их размерзания в зимнее время.
Внутреннюю электропроводку в деревянных конструкциях лучше выполнять кабелем в двойной изоляции (в помещении парной – в жаростойкой оболочке).
Заключение
Строительство бани на дачном участке позволит решить сразу несколько задач
: организовать прекрасное место для проведения оздоровительных процедур, избавиться от необходимости возводить отдельные строительные постройки.
А также позволит создать дополнительные помещения, которые можно использовать для приема гостей, в качестве летней кухни либо для складирования любых хозяйственных материалов.
А в случае организации системы отопления и надежной теплоизоляции подобную постройку вполне можно использовать для полноценного проживания в зимнее время.
Каждый человек, который любит банные процедуры, мечтает иметь у себя дома помещение, в котором можно было бы вдоволь попариться. Для начала нужно заказать проект бани с хозблоком, а уже потом заниматься непосредственным строительством.
Стоит отметить, что бани, которые строятся из бруса и при этом имеют хозяйственный блок, пользуются большей популярностью. Это вполне объяснимо, ведь любой человек стремится к тому, чтобы любое помещение, в котором он проводит много времени, было одновременно уютным и многофункциональным. Еще нужно сказать и о том, что баня с хозблоком под одной крышей очень популярны среди хозяев небольших участков или, к примеру, дач, тем более, что проекты подобных строений очень легко заказать.
Если говорить о достоинствах вышеуказанных сооружений, то самым главным считается высокая функциональность.
Ведь подобная конструкция не занимает много места и вместе с тем сочетает в себе функции бани, кладовки, кухни и помещения с любым другим предназначением. Кстати, что касается стоимости подобных сооружений, то она также позволит сэкономить финансы владельцам бань. Ведь намного дешевле построить одно помещение, чем возводить несколько отдельно стоящих зданий. Главное, конечно, продумать данный процесс до мелочей. Чтобы не упустить никаких важных деталей . И тогда полученный результат будет радовать не только хозяина помещения, но и всех его гостей.
Причины популярности сооружений
Как известно, прогресс не стоит на месте, и баня, совмещенная с хозблоком, начала пользоваться спросом буквально недавно, еще 2-3 года назад такие проекты мало кто заказывал. Все дело в том, что сейчас в мире присутствует мода на функциональность и экономность. Причем абсолютно во всех проявлениях.

- Теперь отдыхать и париться в бане намного комфортней, ведь можно сразу же из парилки перейти в кухню или другое помещение. При этом не нужно выходить на улицу.
- Строение является качественным и отличается долговечностью.
- Идеально подходит для небольших участков, где ограничено пространство для строительства.
- Если присутствует такая необходимость, то подобное сооружение можно использовать и в качестве места для сна. Конечно, если изначально в проекте продумано такое помещение.
Как видим, вышеуказанные преимущества являются подтверждением того, что изначально нужно сделать грамотный проект бани, а уже потом приступать к выделению участка и непосредственному строительству. Кстати, во время подготовки проекта продумывается также и, а также возможность в дальнейшем что-то пристроить рядом или непосредственно над зданием.
Как готовится проект?
Разработка проекта включат в себя несколько этапов. Сразу стоит сказать о том, что подготовка проекта данного сооружения намного сложнее, чем обычного дома или отдельно стоящей бани . Понятно, что причиной этому является то, что специалистам придется хорошо потрудиться над тем, чтобы здание получилось одновременно многофункциональным и комфортным.

- где именно будут размещены входы и выходы в здание;
- как установить коммуникации, которые будут обеспечивать нагревание помещения;
- правильность установки системы водоснабжения и канализации;
- продумать правильную форму крыши и выбрать материал, из которого она будет сделана;
- ну и, конечно, не забыть о безопасности конструкции.
Кстати, последний пункт особенно актуален, если учесть то, что баня является пожароопасным объектом.
Это основные пункты, о которых нужно думать до начала момента строительства. Но, есть еще и другие не менее важные вопросы.
Допустим, нужно выбрать материал, из которого будет возведено здание. В последнее время все большей популярностью начинает пользоваться брус. Бани, хозяйственные блоки и даже дома строят именно из этого материала. Этому есть несколько простых объяснений:
- весь рабочий процесс не занимает много времени;
- стоимость такого строения намного меньше, чем аналогичных зданий, возведенных из другого материала.
Например, удешевить можно за счет того, что не нужно делать отдельный фундамент. А, как известно, он обходится не дешево. И если имеются в виду современные проекты совмещенных вместе бани и гаража, то понятно, что здесь достаточно одного фундамента. То же самое касается и кровли, на ней тоже можно сэкономить.
Все об угловых конструкциях
Как известно, баня может быть не только привычной всем формы, но и построенной под углом. Часто подобные примеры можно встретить на участках неровной формы или там, где не очень много свободного пространства для строительства. Довольно часто такие конструкции используют, когда нужно построить небольшую баню . Если говорить о её расположении на участке, то обычно она ставится в самом углу. Такие постройки имеют габариты, примерно, 3х4 м. Они состоят из нескольких помещений: из парилки, комнаты отдых и моечной.
Любой специалист, который составляет проект угловой бани с хозблоком, учитывает не только её функциональность, но и её внешний вид. Она должна гармонично вписывать в общий ландшафтный дизайн участка и делать его еще более уютным и многофункциональным. Обычно клиенту предлагают несколько вариантов, чтобы он мог выбрать именно тот проект и дизайн современных бань , который больше всего ему подходит. Здесь важно учитывать все нюансы, ведь, как известно, баня является лучшим местом для релаксации и отдыха. Поэтому она должен быть красивой и качественной. Для того чтобы понять, чего именно желает конкретный клиент, ему необходимо предложить несколько вариантов, и уже среди них он выберет тот, который точно его удовлетворит.
Как рассчитать стоимость?
Если говорить о расчете стоимости подобного строения, то в учет берется множество факторов, начиная от материалов, из которых здание будет возводиться, и заканчивая его размерами. Конечно, не стоит забывать и о внутренней отделке. Она может стоить дороже, чем вся конструкция.

- оно дышит и тем самым не поддается воздействию сырости и образованию грибка;
- внутри помещения всегда будет свежей воздух благодаря его правильной циркуляции;
- также дерево дает приятный аромат, который пород воздействием пара будет еще больше усиливаться;
- если использовать хвойные сорта, то они окажут в дальнейшем целебные свойства на здоровье всех, кто будет париться в бане.
Еще не менее важно во время расчета стоимости здания учитывать сложно конструкции. Допустим, проекты двухэтажных каркасных бань с хозблоком обойдутся дороже, чем аналогичные помещение в один этаж. Ну и не забываем о том, что в стоимость включается внутренняя отделка. А она, как уже говорилось выше, может обойтись дороже, чем все остальные этапы стройки.
С чего стоит начать?
Выше уже неоднократно писалось о том, что, прежде всего, нужно подготовить проект здания, а уже потом приступать к его непосредственному возведению. Но хотелось бы уточнить, что помимо правильно подготовленного проекта следует обратить должное внимание и на выбор места, где постройка будет установлена. Необходимо правильно промерять участок и выбрать именно то место, которое будет максимально удобным. К примеру, если имеются в виду проекты современных бань с барбекю и бассейном, то следует понимать, что такая конструкции будет занимать немало места на участке. Для бассейна нужны хорошие стоки и постоянная подача воды.

Как видим, чтобы сделать проект бани в современном стиле , следует учитывать все, казалось бы, на первый взгляд незначительные мелочи. В итоге они сыграют немалую роль и могут причинять ряд неудобств в дальнейшем, что повлияет на качество отдыха и изрядно подпортит настроение.
Все о фундаменте
Что же касается, то здесь все зависит от того, какой материал для строительства используется. Например, если баня построена из бруса, то можно использовать ленточный фундамент . Он вполне выдержит не очень тяжелое здание. При этом удастся снизить расходы на саму стройку. Кстати, если владелец участка немного разбирается в строительстве, то он может и сам заложить ленточный фундамент. Он довольно просто делается. Но если таких знаний нет или человек просто не желает заниматься такой работой, то можно обратиться за помощью к специалистам.
Лучше всего выбирать ту компанию, которая в дальнейшем будет строить само здание. Если привлекать к процессу строительства разных подрядчиков, можно подпортить качество сооружения. Ведь, как известно, каждый мастер делает работу по-своему. Есть еще и вероятность того, что в дальнейшем, в случае возникновения каких-либо проблем, будет сложно доказать, что виной всему стал некачественный фундамент или, наоборот, плохо построенное здание. Поэтому лучше сразу нанимать одну компанию, которая делает весь объем работы, начиная от подготовки проекта и заканчивая, внутренними работами.
Если же выбран проект хозблока с баней из газобетона, то нужно отдавать предпочтение опорно-столбчатому фундаменту. Но в любом случае, следует прислушиваться к мнению специалиста, который будет непосредственно возводить постройку. Ведь в данном случае он берет на себя полную ответственность за качество выполняемой работы.
Строительство под ключ
Как уже сказано выше, лучше всего выбирать предложение от компаний, которые предлагают строительство под ключ. Тогда существует больше гарантий того, что работу будут выполнять настоящие мастера, которые предоставляют своему клиенту гарантию качества и надежности.

Обычно строительство под ключ состоит из таких этапов:
- Подготовка проекта.
- Заливка фундамента.
- Возведение наружных стен.
- Установка перегородок между стенами.
- Настил кровли.
- Заливка полов.
- Подбивка потолка.
- Внутренние работы — обшивка стен, обустройство парной комнаты и всех остальных помещений;
- Установка окон и дверей;
- Установка нужной сантехники и мебели;
- Внешние утеплительные работы (если предусмотрены проектом).
Еще на этапе подготовки проекта исполнитель оговаривает с заказчиком, из какого материала будет строиться здание, что использовать для внутренних работ. Конечно, в этот момент происходит обсуждение того, какую сантехнику и мебель клиент желает видеть в своем помещении.
Что выбрать для внутренней отделки?
Если говорить о стенах, то здесь есть несколько вариантов. Самым популярным считается обшивка деревом или. Почти все проекты современных бань предусматривают внутреннюю обшивку стен хвойной древесиной, фото отделки можно посмотреть на специализированных строительных сайтах.

Если речь идет о напольном покрытии , то здесь также лучше всего отдать предпочтение дереву. Не следует использовать линолеум или любое другое ненатуральное покрытие. Оно под воздействием высоких температур и постоянной влаги начнет портиться и выделять токсичные вещества. А вот на кафеле или граните можно легко поскользнуться и упасть. В итоге можно сильно травмироваться.
Также следует не забывать о том, что все пространство должно быть максимально свободным. Не следует загромождать стены различными полочками и шкафами, лучше оставить их пустыми. В целом, для того, что баня выглядела стильно и уютно, достаточно хорошего стола , лавок, в крайнем случае, мягкой тахты.

Что сейчас пользуется спросом?
Если говорить о том, какие конструкции сейчас являются самыми популярными, то все зависит от того, какими финансовыми возможностями обладает хозяин постройки и что именно он хочет получить в результате.
Допустим, если говорить о бюджетных зданиях, то чаще всего выбирают проект бани с хозблоком и туалетом.
Они практичны и удобны, их можно возвести на даче или в загородном доме.
Но, опять-таки, если речь идет о загородной усадьбе, то нужно учитывать, что топить баню придется дровами или другими материалами. Поэтому лучше всего выбирать проект бани с хозблоком и дровяником. Тогда во время отдыха не придется выбегать на улицу и искать дрова. Достаточно перейти в соседнее помещение и взять нужное количество топлива.

. Тогда можно после хорошей парилки сразу же нырнуть в освежающий водоем. Для этих целей можно использовать любой природный водоем или соорудить искусственный. Если же такой возможности нет, то достаточно установить специальный душ, в котором всегда будет прохладная вода.Как видим, вариантов достаточно много, и все они зависят от личных потребностей человека и его финансовых возможностей.
Но в любом случае, чтобы построенная баня была многофункциональной и уютной, следует учитывать не только желание клиента, но и реальные возможности. Допустим, размер участка, наличие коммуникаций или каких-либо других рядом стоящих конструкций. Именно поэтому, прежде всем начать стройку, следует составить правильный и качественный проект. А это, как известно, может сделать только настоящий профессионал. Исходя из этого, можно сделать вывод о том, что главная задача — найти опытного и грамотного специалиста, который имеет хороший опыт в строительстве бань. Тогда успех задуманного дела гарантирован.
Что может быть прекраснее бани? Баня с хозблоком и туалетом! Такие дополнения выводят строение, предназначенное для оздоровительного отдыха, на новый уровень , добавляя множество полезных функций.
Осуществить такой проект бани с хозблоком можно путём добавления небольшой постройки и необходимых коммуникаций к уже готовому строению или же внести дополнительную комнату в планировку изначально, построив всё на едином фундаменте.
Общие положения
Баня совмещенная с хозблоком, имеет намного большее количество требований, которые необходимо выполнить для успешной реализации задуманного.
К ним относятся:
- Наличие комфортных беспрепятственных входов и выходов, как внутри, так и снаружи постройки.
Совет: предусмотрите отдельные входы для банного помещения и хозяйственного блока.
Это позволит использовать их по отдельности, что более удобно.
- Подключение водопровода или водонасосной станции для самостоятельного водоснабжения. Водяного бака парилки не хватит для выполнения всех хозяйственных нужд.
- Теплообменные сети. Обогрев будет необходим для возможности использования помещения в зимний период .
- Общая крыша. Для того чтобы не появлялись водные образования и контролировались стоки, следует делать общую кровельную конструкцию для всего здания.
- Безопасные условия для одновременного использования всех помещений. Это, в первую очередь, касается пожарной безопасности из-за использования печи в парилке.
- Отдельный.
Если же всё выше перечисленное удастся воспроизвести, то будут получены следующие преимущества:
Достоинства
- Возможность готовить еду. Незаменимое дополнение на даче без жилого дома и возможность разгрузить основную кухню при его наличии.
- Встроенный туалет. Что невероятно важно при зимней эксплуатации бани в особенности с детьми.
- Полноценные условия для приёма гостей. Благодаря наличию хозяйственного блока комната отдыха может использоваться как гостиная.
Баня с хозяйственным блоком или хозяйственный блок с баней
Это отличие на первый взгляд кажется незначительным, но это не так:
- Хозблок с баней приемлем для использования на дачном участке без других построек и в том случае, если вы приехали без ночёвки.
- Проекты бань с хозблоком рекомендуется осуществлять в частном секторе, имеющем жилое строение. Это позволит перевести туда часть повседневных дел и вещей, что, в свою очередь, освободит множество места в доме для других нужд.
Самостоятельная стройка или готовый проект
Вольные постройки без планировки всегда имеют множество недостатков. В данном случае это чревато не только нарушением эстетической красоты и геометрии здания, но ещё и нарушениями правил пожарной безопасности.
Поэтому, не важно, собираетесь ли вы всё делать своими руками или наймёте профессионалов, рекомендуется воспользоваться готовым проектом.
Тогда вас будут:
- уверенность в надёжности строения;
- возможность расчёта себестоимости;
- графическое представление того что вы возводите;
- инструкция хода работ.
Пример
Проекты бани с хозблоком бывают самые разнообразные.
Их отличают между собой:
- размеры;
- цена;
- сложность;
- количество комнат и многое другое.
Для общего понимания рассмотрим один из них.
Площадь всего здания 4 м на 8 м.
Включает в себя:
- Фундамент столбчатый из бетонных блоков высотой 40 см и сечением 20 см на 20 см. Количество – 15 штук.
- Для внешних стен и внутренних перегородок используется профилированный брус с сечением 14 см на 9 см.
- Потолки высотой 2 м.
- Черновое основание из нешлифованной доски толщиной 2,5 см.
- Пароизоляция образуется мембранной плёнкой.
- Финишное основание из шпунтованной доски толщиной 3,6 см.
- Внутренняя отделка парилки выполнена из осины.
- Внутри парильной комнаты монтируются двухъярусные полки также из осины.
- Двухскатная крыша покрывается ондулином.
- Окна выполняются из дерева и двойного стекла в душ и туалет размерами 40 см на 40 см, а в хозяйственную комнату и гостевую – 80 см на 80 см.
- Три каркасных двери высотой 1,8 м и шириной 0,8 м.
- В из древесины размером 1,9 м на 0,6 м.
- Кирпичная печь с баком для воды в парной.
Совет: если вы планируете использовать помещение как сауну, то необходимо бак вынести в соседнюю комнату, потому что сауна предполагает использование сухой парилки.
- Дымоходная труба из нержавейки.
Вывод
Наличие хозблока в бане добавляет множество полезных возможностей, к которым относятся приготовление еды и приём гостей, что позволяет перенести туда часть функций жилого дома.
Следует учитывать, что хозяйственный блок также требует принятия дополнительных мер по обустройству: самостоятельное водоснабжение, канализация, пожарная безопасность и так далее.
Огромный ассортимент проектов таких построек поможет вам выбрать наилучший вариант для вашего участка.
Видео в этой статье ознакомит вас с дополнительной информацией по данному материалу.
Удачных вам строительных работ!
Если вы счастливый обладатель дачи или частного дома с небольшим участком, то вы можете в старом сарае обустроить баню. Она подарит всему семейству крепкое здоровье и прекрасное расслабление после тяжёлого трудового дня. Также, если возникнет потребность и желание, вы сможете и неплохо подзаработать, установив почасовую оплату и пускать туда попариться соседей, знакомых и других людей.
Оборудовать под парную мы будем старый сарай, которым не пользуемся, с полом из бетона. Сарай может быть построен из дерева, кирпича, пеноблока или ракушника.
Планируем
Под парилку мы отведем немалую площадь сарая, примерно 6 кв. м, это будет небольшая парная, при расчётах учитывайте то, что на одного посетителя должно приходиться минимум 2 кв. м. Если у вас небольшая семья, то 6 кв. м вам вполне будет достаточно, но если вы планируете в дальнейшем зарабатывать с помощью парной, то площадь, соответственно, понадобится больше.
Не забываем заранее распланировать расположение и количество полок, и определить наиболее выгодное место для , от планировки зависит удобство пребывания в вашей бане из старого сарая, которую вы сделаете своими руками.
На пол из бетона в сарае стоит уложить структурную плитку, поверхность такой плитки немного шершавая, как бы немного абразивная. И на такой плитке практически невозможно поскользнуться. Также стоит изготовить из досок решетки, которые уложим поверх плитки для комфортного передвижения по бане, ведь дерево не нагревается так, как плитка, и не будет жечь ступни при ходьбе.
Обязательно взвесьте все за и против, и решите, стоит ли делать сток для воды в полу. Если вы захотите попариться с парком, то вашу баню из сарая, сделанную своими руками, придётся хорошенько протереть сухой тряпочкой и проветрить.
Материалы для парной
Каркас нашей бани сооружаем из брусьев, это совсем не сложная робота, тяжело потом каркас прикреплять к полу. Но это возможно осуществить, приложив небольшое усилие. Крепеж осуществим, просверлив в полу и брусьях совмещенные отверстия, в которые вставим длинные шурупы, и не забываем уложить гидроизоляцию между полом и брусьями.
Очень важно на стены установить паро- и гидроизоляционные плиты, которые стоит обшить досками. Для этих работ лучше использовать доски из осины, предварительно сделав в досках пазы вдоль, которые послужат для лучшего сцепления досок между собой.
При забивании гвоздей их стоит вгонять как можно глубже в древесину, потому что в парилке высокая температура, и можно обжечься, прикоснувшись к раскалённой головке железного гвоздя.
Потолок
Потолок в бане из сарая монтируем своими руками из тех досок, которыми обшиты стены. Но для этого их распиливаем пополам, и получаем 2, по 3 см. Крепим их сразу к каркасу бани.
Полки для лежания
Стоит мастерить широкими, ширина их должна быть примерно 70 см. Стоит очень качественно обработать поверхность каждой лежанки, чтобы не травмироваться и не вогнать занозы в кожу.
Установка печи и вентиляции
Печь стоит размещать возле дверей, на кирпичи–огнеупоры. Также кирпич укладываем в пространство между печкой и стенкой, трубу выводим на улицу. Позаботьтесь, о том, чтобы печку оградить деревянными конструкциями и не обжечься.
Минимизируем утраты тепла через двери
Для того, чтобы через двери терялось как можно меньше тепла, делаем ее узкой, 50-60 см, крепим к ней уплотнительную резинку
. Ручки у двери должны быть из дерева.
Проводим электричество в баню
Для освещения вашей бани понадобятся специальный с двойной изоляцией и светильник, стойкий к высоким температурам. Выключатель должен быть не обычный, а влагостойкий, располагаться он должен у входа в парилку, как того требуют правила пожарной безопасности.
Проводку стоит углубить в стены, чтобы не мешал кабель, да и смотреться баня тогда лучше, аккуратнее.
Дополнения:
- все доски, которые используются при обшивке бани, обязательно должны быть из лиственных пород деревьев;
- не экономьте на материалах для проводки, кабеле, светильниках, выключателях и розетках. Покупайте качественные и влагостойкие, ведь от этого зависят жизнь и здоровье вашей семьи и гостей, которые будут посещать вашу парилку;
- светильники должны быть с жаростойким стеклом, так как температура в бане иногда поднимается выше 100 °C;
- многие любят после жаркой баньки окунуться в прохладный бассейн. Но если вам не по карману такая роскошь, соорудите маленький прудик во дворе, или поставьте емкости с прохладной водой, например, бочки, в которые вы сможете с удовольствием окунуться после тёплых и приятных банных процедур.
А в зимний период водные процедуры можно заменить снеговым обтиранием:
- обязательно следите за тем, чтобы вода в бочках, бассейне или пруде не застаивалась. Проводите дезинфекцию в емкостях с водой. Особенно если у вас парятся другие люди;
- со временем вы сможете баню расширить, пристроить комнату для отдыха, и использовать ее и для заработка. Ведь это хорошая идея для бизнеса.
Выводы
Теперь вы знаете, как сделать баню из сарая своими руками, это не такая уж и сложная задача. Парясь в бане, вы получаете уйму положительных эмоций, при этом серьезно укрепляете состояние своего здоровья.
Да, сооружение бани, достаточно трудоемкий процесс, и если вы доведете начатое дело до конца, вы и ваша семья будете счастливы, и если подойдете к этому делу с выдумкой, подключите смекалку и фантазию, сможете неплохо подзаработать.
Многие, с грустью глядя на старый сарай, где ранее хранились неотъемлемые и важные атрибуты ухода за землей, понимают, что помещение еще в очень хорошем состоянии, атрибуты ухода занимают минимальное количество пространства, поэтому, нужно что-то сделать. Например, создать собственную баню. Вполне очевидно, что перед вами встанет непростая задача, но все же, сарай переделать в баню, это не построить помещение с нуля, так что, давайте все-таки попробуем. Как сделать баню из сарая? Как правильно подобрать материалы? Нужен ли проект?
Проверяем техническое состояние помещения
Прежде, чем начинать переделывать сарай в баню, мы рекомендуем вам произвести внимательный технический осмотр.
- Проверяем качество фундамента;
- Осматриваем стены на предмет трещин и расходов углов;
- Проверяем целостность проемов под окна и двери;
- Внимательно изучаем территорию, и возможности подводки инженерных систем;
- Если в сарае есть свет, проверяем качество проводки.
После детального исследования составляем список необходимых – первоначальных действий. Таким образом, вы сможете правильно подойти к решению поставленной задачи и выполнить все работы достаточно быстро и качественно.
Инженерные системы
Очень хорошо, если в помещение протянут свет, вам придется только сменить внутреннюю проводку на внешнюю, используя качественные провода, и высококачественную изоляцию. Также нужно провести следующие системы:
- Подвод канализации;
- Подвод воды.
Для подключения воды используйте полипропиленовые трубы, которые отличаются высокими параметрами качества, выносливости и прочности. Перед началом работ нужно составить определенный технический проект, который поможет вам заложить трубы на нужную глубину, создать качественное дополнительное утепление, и сделать работы более рациональными и быстрыми. Подводка канализации осуществляется также на основании применения качественных пропиленовых труб и на основании проработанного технического проекта.
Делаем помещение идеальным
Вполне очевидно, что перед началом работ, вам нужно привести помещение в идеальное состояние. Для этого потребуются следующие мероприятия:
- Укрепляем фундамент, в данном случае можно использовать сваи, что позволяет быстро и просто достичь поставленных целей;
- Устраняем все трещины на стенах, используя высококачественные строительные смеси;
- Подготавливаем проемы для установки окон и дверей;
Вполне очевидно, что окна и двери придется менять, даже если в вашем сарае установлены достаточно прочные окна, но они без стеклопакетов вряд ли смогут удерживать идеальную температуру в помещении. Отдайте предпочтение деревянным окна и дверям. Окна со стеклопакетами, двери без дополнительных внутренних замков. Обратим ваше внимание на то, что в интернете можно найти видео на тему – как сделать баню из сарая. Так что, в принципе, вы сможете получить визуальные рекомендации, план действий, который можно просто повторить.
Утепляем помещение
Конечно же, для бани главное – утепление. Именно по этой причине нужно изначально совершить внешнее утепление, после чего, приступить к внутреннему обустройству. Для того, чтобы создать идеальные особенности тепла и комфорта, нам потребуется:
- Минеральная вата, в качестве утеплителя;
- Специализированные сэндвич панели, для утепления помещения.
Вместо панелей можно использовать другие декоративные материалы. Процесс утепления:
- Тщательно очищаем стену;
- Используем специализированные профили, для последующей отделки стен минеральной ватой;
- Закрепляем минеральную вату;
- Закрепляем декоративный материал.
В принципе, нет ничего сложно, но все же, очень важно действовать строго по установленному плану, чтобы получить поистине шикарные результаты и высокое качество покрытия.
Внутренняя отделка
Для внутренней отделки лучше всего использовать натуральное дерево. В данном случае, стены также можно дополнительно утеплить высококачественным, но тонким материалом, сверху на который будут установлены деревянные панели или же вагонка. Самый рациональный вариант – материал из ели или же лиственницы. Полы можно отделать керамической плиткой, но предварительно нужно создать достаточно качественную и прочную стяжку. Очень популярным вариантом отделки на текущий момент времени считается декоративный камень, в действительности очень стильно и гармонично.
Что же касается печи, то лучше всего приобретите готовую электропечь, которая потребует минимальных затрат на установку.
Баня из лафета считается лучшим сооружением из-за экологической чистоты древесины, хорошей теплоизоляции. Однако другие материалы не менее популярны в строительстве. Если проблематично соорудить надземную постройку, баню делают в виде землянки.
Баня под землей
Необычным, но экономным сооружением считается подземная баня, по конструкции напоминающая землянку. Стены для надежности выкладывают камнем. В землянке часто присутствует сырость. Большая концентрация влаги наблюдается весной и осенью. Каменные стены землянки легко противостоят влаге.
Меньшим сроком службы обладают стены бани из древа. Сырость не щадит материал. Плюсом деревянных землянок является быстрый прогрев по сравнению с каменными постройками.
Установить баню-землянку получится только на участке с глубоким расположением подземных слоев воды. Важно выбрать возвышенность. В низинах землянку будет заливать талая и дождевая вода. Высоту бани делают на 25 см больше роста человека. Землянку нельзя полностью погружать в грунт. Котлован выкапывают такой глубины, чтобы часть бани выходила выше уровня земли. В выступающих частях стен землянки устанавливают окошки для естественного освещения и проветривания.
Совет!
Частично выступающие из грунта землянки делают, если используют проект бани без электричества.
Конструкция деревянной землянки предусматривает установку опор из бревен по углам котлована и центру. Причем яма может иметь не только прямоугольную форму. По желанию баня-землянка может быть выстроена шатром из 6 или 8 углов. Если крышу предполагается засыпать землей, ее делают пологую. С такой кровли бани не будет сползать грунт во время дождя или таяния снега. Кровельным материалом землянки выступает несколько слоев гидроизоляции. Укладывают материал на сплошную обрешетку из доски. Стропилами землянки служит очищенный от коры кругляк. Все деревянные элементы пропитывают защитными составами от короеда и грибка.
Лесные землянки времянки гидроизоляцией не укрывают. Крышу засыпают плотными слоями глины, листвы, мха, хвои. В особой гидроизоляции нуждаются стены землянки. Со стороны почвы их закрывают рубероидом, пленкой или мембраной. Чтобы грунт в землянку не осыпался, стены котлована укрепляют доской, прибитой гвоздями к опорам.
Совет!
Каменные землянки лучше возводить круглой формы. Конструкция более устойчива к пучению и поперечному сдвигу грунта зимой.
Баня-землянка своими руками: фото
Баня из сарая своими руками
Обойтись без возведения землянки получится, если во дворе стоит старый сарай. После небольшой модернизации из постройки получится хорошая баня. Сарай подойдет из любого материала: дерево, камень, пеноблок, кирпич.
Возведение бани начинают с планировки. Под парную отводят большую часть сарая. Оптимально рассчитать на 1 человека 2 м 2 площади парилки.
Под печь выбирают место, где будет расположен простенок, разделяющий парилку с раздевалкой. Во время планировки бани продумывают удобное расположение полок. Пол оптимально сделать проливным. Подполье заливают бетонной стяжкой или выкладывают плитами, гидроизолируют битумом. На основание укладывают лаги, настилают доску толщиной 50 мм с зазором около 5 мм.
В фундаменте сарая вырезают вентиляционные окошки – продухи. Через них организовывают отвод воды из подполья проливного пола.
Важно!
Бетонную стяжку подполья делают с уклоном к одной из стен для лучшего стока воды.
Обшивку стен бани оптимально выполнить доской из осины. Сначала крепят каркас из бруса. Стены закрывают гидроизоляцией, в ячейки каркаса укладывают утеплитель, закрывают пароизоляцией, прибивают гвоздями доску.
Для обшивки стен бани оптимально брать доску с соединительными пазами. Замковое соединение уменьшает вероятность проникновения пара к теплоизоляции. Гвозди забивают с глубоким заходом шляпки в тело доски, иначе о них можно в парной обжечься.
Обшивка и утепление потолка бани ничем не отличается от отделки стен. Доску для обшивки можно использовать тонкую. Полки для лежания изготавливают из доски толщиной 50 мм. Древесину хорошо шлифуют. Оптимальная ширина полки – 700 мм.
На видео пример переделки бани:
Установка печи и вентиляции
Под печь в бане выкладывают площадку из огнеупорного кирпича. Дымоход выводят через крышу. Саму печь выкладывают кирпичную или ставят металлическую буржуйку. В любой конструкции организовывают место для нагрева камней и воды.
Топку печи располагают в раздевалке бани, а остальную часть внутри парилки. Для вентиляции в противоположных стенах вырезают продухи. Нижнее окошко для забора воздуха возвышается 500 мм от пола, верхнее вытяжное – 2 м от пола.
Баня из кунга своими руками
Списанный кунг от автомобиля можно использовать не только для сарая. Из кузова получится отличная баня, после несложного переоборудования. Кунг устанавливают на надежные опоры. Оптимально раздобыть 6 бетонных блоков. Снаружи кузов обшивают каркасом из бруса, увеличив его длину на 2 м. Добавленный отсек отводят под веранду бани. Многофункциональная комната исполнит роль раздевалки и подойдет для отдыха. Крышу всего каркаса покрывают профнастилом или металлочерепицей. Кунг полностью прячется под новой кровлей.
Внутреннюю часть кузова разделяют перегородкой. Больший отсек бани отводят под парилку. Если родных окошек мало, болгаркой вырезают дополнительные проемы, крепят рамы со стеклами. До начала отделочных работ в металлическом рукаве по стенам прокладывают электропроводку.
Установка печи
В меньшем отсеке, разделенном перегородкой кузова, оборудуют топочную комнату. Дымоход выводят через крышу или готовое отверстие в стене, если раньше кунг был оборудован печкой. Вся печь выходит из топочной внутрь парилки. На плите подготавливают место под камни и нагрев воды.
Внутренняя отделка
Изнутри на стены и потолок бани крепят обрешетку. Между брусками укладывают утеплитель, закрывают фольгой, обшивают доской. Проливной пол в бане из кунга не получается. Металл кузова быстро сгниет. Оптимально залить стяжку, уложить плитку, организовать слив. Сверху плиточный пол оборудуют деревянными решетками.
Внешняя отделка бани
Наружная отделка бани начинается с укладки в каркас плит утеплителя. Теплоизоляцию закрывают пароизоляцией. Каркас обшивают любым отделочным материалом. Под внешней облицовкой даже незаметно, что баня переоборудована из старого автомобильного кузова.
Баня из лафета
В селах на простом языке лафетом называют прицепы грузовых автомобилей. Для строителей бань лафет – это кругляк, отесанный с двух сторон. Материал еще именуют «двухкатным брусом». Лафет придумали норвежцы. Им принадлежит идея прочного замкового соединения. Состыкованный лафет не пропускает тепло, обеспечивает надежную устойчивость стен бани.
Преимущества и недостатки
Бани из лафета обладают рядом преимуществ, но и есть несколько недостатков.
Положительные черты:
- Лафет экологически чист. Дерево не выделяет в бане химических примесей, создает аромат, поддерживает особый микроклимат.
- Замковое соединение лафета считается одним из самых прочных. Стены бани в сырости и после высыхания не деформируются. Между лафетом не бывает щелей.
- Внешний вид лафета обладает природной красотой. Баню снаружи ненужно дополнительно облицовывать.
- Для лафета используют бревна толщиной около 400 мм. Такая стена бани надежно удерживает тепло без дополнительной теплоизоляции.
- Красив лафет внутри бани. Стены ничем дополнительно не требуется обшивать.
- Цена лафета покажется для многих высокой, но возведение бани обойдется дешевле из-за отсутствия необходимости дополнительной внутренней и внешней отделки.
- Если сравнить две одинаковые бани из лафета и оцилиндрованного бревна, то первая постройка получается просторнее.
- Стены из лафета легкие. Отпадает необходимость заливать под баню мощный фундамент.
Из недостатков постройки из лафета выявляют 3 важных пункта:
- Лафет быстрее подвержен гниению по сравнению с бревном. Проблема заключается в стесанных боках. У дерева обнажается сердцевина, менее устойчивая к воздействию влаги. Для увеличения срока службы лафет часто и тщательно обрабатывают защитными пропитками.
- Стоимость бани, выстроенной из лафета, выйдет дешевле, если сравнивать с каменными постройками, требующими внутренней и внешней отделки. В остальных случаях расходы будут больше. Постройка из бревен или бруса обойдется дешевле, чем аналогичный вариант из лафета.
- Важным недостатком считается появление трещин на лафете. Однако от этой проблемы не застраховано ни одно дерево. Трещины в лафете не сквозные.
По скорости и простоте возведения выигрывает постройка из бруса. В лафете возникает сложность с изготовлением замкового соединения.
Совет!
Лафет для бани лучше покупать с готовыми замками.
Особенности строительства
Из лафета собирают баню аналогично постройке из бруса или бревна. Сначала заливают фундамент, ставят стены, крышу, обустраивают внутреннее пространство. Отличием строительства является сборка стен из лафета. Бревна используют из хвойных пород деревьев. Чтобы самостоятельно сделать лафет, кругляк просушивают. Предварительно сделанные продольные пропилы избавят от появления трещин. Усадка бревен для лафета после просушки достигает от 5 до 15 см.
Угловое соединение лафета имеет аналогичную схему с русской баней. Края делают с выступающими торцами. Однако замок бревен бани по русской системе имеет полукруглую форму, а на лафете делают потайной клин. Входит он внутрь паза нижерасположенного венца бани.
Полукруглый стыковочный замок русской бани соединяют с подкладкой утеплителя. Клин лафета плотно входит в паз. Без утеплителя замок по норвежской системе не пропускает холод. Нижний венец бани укладывают на закладную доску толщиной 60 мм. Начальную сборку сруба осуществляют без нагелей. Капитальную сборку выполняют после устранения погрешностей.
Важно!
Если между бревнами можно организовать щели вентиляции, то с лафетом номер не пройдет. Продухи оставляют под кровлей бани.
Конструкция из лафета сложна только в возведении. Во всех остальных вопросах баня выигрывает.
Баня из шпунтованной доски
Особенностью шпунтовой доски является прочное замочное соединение, не пропускающее в баню холод. Сборка конструкции состоит из следующих шагов:
- Каркас цоколя бани собирают из бруса сечением 150 мм. Подойдет доска толщиной 50 мм, но ее укладывают на ребро в количестве 3 штук. Элементы каркаса соединяют в углах. Дополнительно вырезают пазы для вертикальных стоек каркаса.
- Готовую рамку устанавливают на столбчатое основание. Под каждым углом обязательно расположение опоры. Между основанием и деревянной частью бани прокладывают два слоя рубероида. Уровнем вымеряют горизонтальность каркаса.
- Стойки каркаса бани устанавливают в пазы рамки, фиксируют монтажными уголками. Оптимальный шаг вертикальных элементов – 600 мм. Дополнительные стойки ставят в местах расположения окон и двери.
- Каждую стойку выставляют вертикально по уровню. Устойчивость обеспечивают временными укосинами.
- Сверху стойки соединяют обвязкой из доски толщиной 50 мм. В готовом каркасе бани проверяют ровность углов и всех вертикальных элементов.
- Снаружи шпунтованную доску прибивают горизонтально, плотно соединяя замки. Горизонтальное расположение доски обеспечивает устойчивость конструкции. Под наружную обшивку на каркас бани не забывают закрепить гидроизоляцию.
- С внутренней стороны между стойками каркаса укладывают минвату. Теплоизоляцию закрывают пароизоляцией.
- Обшивка стен бани изнутри происходит в обратном порядке. Доски прибивают вертикально. Между обшивкой и пароизоляцией предусматривают вентиляционный зазор.
Обшивку потолка бани выполняют по аналогичной схеме. Теплоизоляцию используют в 2 раза толще, чем на стенах.
Выбор породы дерева
Снаружи баню обшивают любой доской. Подойдет сосна, лиственница. Внутри бани древесина должна обладать низкой теплопроводностью. Оптимально подойдет липа, осина.
Баня из полистиролбетона
Полистиролбетонные блоки обладают слабой теплопроводностью. Для бани – это идеальный вариант. Однако материал впитывает влагу. Стены бани по максимуму защищают усиленной гидроизоляцией изнутри и снаружи.
Технология возведения бани
Под баню из полистиролбетонных блоков заливают надежный ленточный фундамент. Сверху основание укрывают двумя слоями рубероида. Выкладку стен начинают с углов. Первый ряд блоков бани кладут на цементный раствор. Кладку последующих рядов выполняют на клей. Толщину шва соблюдают максимум 5 мм. Каждый третий ряд армируют. Под пруты в блоках вырезают канавки. Уложенную арматуру заливают раствором. Дальнейшая кладка вновь идет на клей.
Крышу бани делают двускатную. По периметру стен укладывают мауэрлат. К нему крепят стропильные ноги и балки перекрытия. По стропилам набивают обрешетку, раскатывают гидроизоляцию, настилают кровельное покрытие, чаще всего профнастил.
Снаружи на стенах бани монтируют вентилируемый фасад. В качестве утеплителя используют минвату, а облицовку выбирают по желанию. Внутри стены бани аналогично подвергают утеплению, пароизоляции. Для обшивки используют деревянную вагонку. Потолок бани подшивают по аналогу стен. Пол бетонируют. В комнате отдыха настилают плитку с подогревом электрическими матами. Внутри парилки настилают доски.
На видео дают советы по правильной укладке блоков:
Баня из поликарбоната
Летний вариант бани без особых затрат можно возвести из поликарбоната. Под солнцем энергия аккумулируется через прозрачные листы, внутри будет тепло, вода быстрее прогреется. Баня зимой не используется из-за отсутствия печи. Дополнительный подогрев осуществляют электричеством.
Пошаговая инструкция
Для возведения бани надо установить каркас и обшить его поликарбонатом. Процесс состоит из следующих шагов:
- На участке кольями и шнуром размечают габариты бани. Под каждым углом в точке расположения простенков вкапывают бетонные столбы фундамента.
- Основание накрывают рубероидом. Из бруса собирают обвязку каркаса бани – прямоугольную рамку. К столбам фундамента ее фиксируют анкерными шпильками. Баня из поликарбоната легкая, с большой парусностью. Фиксация анкерами предотвратит переворачивание конструкции ветром.
- К раме фиксируют вертикальные стойки из доски толщиной 50 мм. Сверху их связывают аналогичной доской. К обвязке крепят стропила на расстоянии 600 мм. Чтобы конструкция не играла, стойки усиливают перемычками, укосинами. Стропила соединяют обрешеткой.
- Крышу бани укрывают одним слоем поликарбоната. На стенах получается внутренняя и внешняя обшивка из двух листов, что избавляет от просвечивания. Перегородки внутри бани аналогично ставят из поликарбоната.
- Пол делают самый простой – проливной из деревянных решеток. Для летней бани сложный слив с канализацией и бетонной стяжкой не нужен.
- Подачу воды в баню можно организовать даже из бойлера или установить бак с подогревом по типу летнего душа.
Заключение
Баня из лафета, полистиролбетонных блоков считается самым сложным сооружением. Конструкция из поликарбоната проста, но она не подходит для зимнего пользования. Землянка – удобный вариант, если дача расположена вблизи леса. Вариант с кунгом универсален, надо только раздобыть кузов. Выбор подходящего варианта остается за хозяином участка.
Основным, как модно сегодня говорить, пилотным, вариантом совмещения бани и хозяйственного помещения может быть следующее, проверенное уже не в одно десятке реализаций:
- A – прихожая – предбанник, заметьте управление печью происходит из парной, но стена печи выходит в прихожую, что обеспечивает её надёжное отопление;
- B – моечная, здесь есть небольшое окно – окна в рабочих помещениях бань или отсутствуют совсем или небольшого размера (в предлагаемом варианте 50 на 40 см), что позволяет лучше контролировать теплообмен;
- C – парная – традиционная полать и печка, тут есть всё для настоящего ценителя отдыха «с парком», обращаем внимание в предлагаемой реализации в парной окна нет, это негласное правило всех парных у всех проектировщиков;
- D – сарай, ну, или, хозяйственная комната площадью 4 кв.м, на такой площади можно разместить и небольшой станок; оцените продуманный и дальновидный подход предлагаемого решения – сарай с его грудой металла не имеет соприкосновения с богатыми влагой помещениями; конечно, теплоизоляция и паропроницаемость должны быть обеспечены на самом высоком уровне, тем не менее, такое разделение говорит о тонком понимании ситуации разработчиками;
- E– крыльцо, и это ещё один плюс предлагаемого проекта.
Технология возведения предлагаемой бани с сараем так хорошо отработана, что обычно бригада из 2-3 человек берётся возвести её не более чем за рабочую неделю. И цена за всё это удовольствие попарится после наведения порядка в сарае — не более чем 300 тысяч рублей.
Вот ещё несколько полезных технических характеристик такой комбинации бани с сараем:
- для наружных стен используется строганный брус размером (мм) 95 на 145;
- для парной – осиновая вагонка;
- размер бетонных свай – 200 х 200 х 400 мм;
- расстояние между тумбами – 200 мм;
- количество тумб – 9 (8 по периметру и одна посередине строения);
- сверху свай обязательно рубероид в качестве гидроизоляции;
- средство изоляции между полотнами бруса – джут;
- пароизоляцию в парной обеспечивает специальная банная фольга;
- утепление в 50 мм применяется как на полу, так и на потолке бани
; - все стыки, снизу и сверху, закрываются плинтусами;
- с наружной стороны крыша обшивается хвойной вагонкой;
- высота потолка внутри – 225 см;
- толщина стен – 95 мм;
- высота конька бани – 150 см;
- для кровли используется ондулин трёх цветов – зелёного, красного или коричневого;
- характеристики пола:
- толщина чернового — 20 мм;
- материал паро и гидроизоляции – пергамин;
- материал утеплителя — URSA в 50 мм;
- половая доска — шпунт в 27 мм;
- характеристики потолка:
- размеры окон:
800 х 800 мм – двойное остекление, два окна;
600 х 600 мм – одно. - моечная комната имеет душ и водоотвод.
Каркас плюс стены
Парилку сделал из еловых брусьев и осиновых досок толщиной 6 см. Выбрал хорошо просушенную древесину, она дольше прослужит.
Из брусьев соорудил каркас стен и потолка. Самое сложное было прикрепить их к полу. Для этого просверлил в брусьях и полу совмещаемые отверстия, куда потом вставил большие шурупы. Между брусьями и полом положил слой гидроизоляции.
Каркас стен сначала снабдил паро-изоляционными плитами, потом обшил его осиновыми досками. На досках сделал продольные пазы. Они позволили крепко «сцепить» конструкцию. Нижний слой и здесь клал на гидроизоляцию. Гвозди, которыми прибивал доски, вогнал в древесину поглубже, чтобы не раниться и не обжигаться, ведь температура в сауне доходит до 100°.
Предлагаем ознакомиться:
Определение сечения провода по току
Выводы
Предлагаемый вариант совмещения бани и хозяйственной комнаты далеко не единственный. Поэтому инструкция действий здесь будет традиционна для строительного рынка – сначала обязательно проведите исследование и выберите наиболее подходящий вариант, удовлетворяющий всех вашим пожеланиям и условиям размещения.
Если бы не повышенные требования, даже не к прочности, а к качеству фундамента бани, возможно, можно было бы рекомендовать попытаться всё сделать и самостоятельно. Но так как специфика сооружения бань требует опыта и квалификации, советуем обращаться к профессионалам, работающим с уже проверенными образцами проектов.
Видео в этой статье, возможно, сможет вас всё-таки убедить, ради экономии места, совместить баню с хозяйственным помещением, если уж вы не смогли решить проблему размещения другим способом.
Печь и вентиляция
У двери на огнеупорные кирпичи поставил печь-каменку. Кирпичи положил также между печкой и стеной. Трубу вывел наружу. Печь оградил деревянными перилами, чтобы случайно не коснуться раскаленного металла.
Просверлил в стене рядом с печкой небольшое отверстие – для притока воздуха в печь. Вентиляционное отверстие сделал и под потолком. Оба отверстия оборудовал задвижками, которые позволяют регулировать приток-отток воздуха.
Своими руками — Как сделать самому
Как сделать что-то самому, своими руками — сайт домашнего мастера
Переделка помещения под сауну ли баню
ОТЛИЧНЫЙ ИНСТРУМЕНТ ДЛЯ МАСТЕРОВ И РУКОДЕЛИЯ И ВСЕ ДЛЯ САДА, ДОМА И ДАЧИ БУКВАЛЬНО ДАРОМ + ЕСТЬ ОТЗЫВЫ.
Как разместить баню или сауну в старом хозблоке
Дача – такое место, где можно насладиться природой и отдохнуть от города. Но полное расслабление мне дает жаркая сауна. Переоборудовать под нее решил неиспользуемый деревянный сарай с бетонным полом.
Общий план
Под сауну отвел большую часть сарая – около 6 кв. м. На одного человека в парилке должно приходиться минимум 2 «квадрата». Семья у меня небольшая, так что такая площадь нам вполне подходит. Заранее спланировал расположение печи и полок.
Бетонный пол сарая на отведенном под сауну участке покрыл пупырчатой плиткой, на которой невозможно поскользнуться. Сейчас, когда ходим в сауну, кладем поверх плитки еще и деревянные решетки.
Для стока воды отверстия в полу не делал – водой в сауне мы обычно не пользуемся. Конечно, иногда хочется поддать парку. Но если парились с паром, сауну после этого проветриваем и протираем пол сухой тряпкой.
ВСЕ ЧТО НЕОБХОДИМО ДЛЯ ЭТОЙ СТАТЬИ НАХОДИТСЯ ЗДЕСЬ >>>
Каркас плюс стены
Парилку сделал из еловых брусьев и осиновых досок толщиной 6 см. Выбрал хорошо просушенную древесину, она дольше прослужит.
Из брусьев соорудил каркас стен и потолка. Самое сложное было прикрепить их к полу. Для этого просверлил в брусьях и полу совмещаемые отверстия, куда потом вставил большие шурупы. Между брусьями и полом положил слой гидроизоляции.
Каркас стен сначала снабдил паро-изоляционными плитами, потом обшил его осиновыми досками. На досках сделал продольные пазы. Они позволили крепко «сцепить» конструкцию. Нижний слой и здесь клал на гидроизоляцию. Гвозди, которыми прибивал доски, вогнал в древесину поглубже, чтобы не раниться и не обжигаться, ведь температура в сауне доходит до 100°.
Потолок
Потолок делал из тех же досок, что и стены, но распиленных пополам: из доски толщиной 6 см получалось две толщиной по 3 см. Так как площадь помещения маленькая, доски крепил не к обрешетке, а прямо к каркасу.
Полки-лежаки
Полки для парящихся делал просторными – шириной 70 см. Смастерил их из все тех же осиновых досок и установил буквой «По в полуметре от попа. Тщательно обработал мелким наждаком верхнюю часть, чтобы никто не загнал занозу.
Печь и вентиляция
У двери на огнеупорные кирпичи поставил печь-каменку. Кирпичи положил также между печкой и стеной. Трубу вывел наружу. Печь оградил деревянными перилами, чтобы случайно не коснуться раскаленного металла.
Просверлил в стене рядом с печкой небольшое отверстие – для притока воздуха в печь. Вентиляционное отверстие сделал и под потолком. Оба отверстия оборудовал задвижками, которые позволяют регулировать приток-отток воздуха.
Узкая дверь
Чтобы через дверь уходило поменьше тепла, сделал ее узкой – 60 см и снабдил уплотнителем. Открывается дверь наружу – в сарай, который таким образом превратился в предбанник. Ручки к двери прикрепил деревянные, чтобы не хвататься за горячее.
Электричество
Чтобы сделать освещение в сауне, использовал провод с двойной изоляцией. А чтобы он не мешал, «утопил» его в стене. Лампочку разместил поближе к потолку. Это сделало свет более мягким. Выключатель подобрал специальный – влагозащищенный, расположил его у входа снаружи сауны. Этого требует пожарная безопасность.
Важное дополнение
Пользование сауной, как известно, подразумевает не только нагрев сухим паром, но и охлаждение водой. Водоема возле дачи нет. поэтому в 8 м от сауны пришлось сделать мини-прудик, в который и окунаемся после парилки. В теплое время года слежу за тем, чтобы вода в нем не застаивалась. На зиму выкачиваю воду – пруд все равно промерзнет до дна. В этот период «водные процедуры» заменяем снежными.
Как построить баню внутри сарая: пошаговый фотоотчет
Долго мечтал, и наконец, решил сделать свою собственную баню. Места под строительство было недостаточно, поэтому принял решение строить баню внутри сарая. По затратам она обошлась мне в 35 тыс. рублей (экв. 550 $). Рассказываю, как проходило строительство бани.
Подбор материалов
Вначале я определился с требованиями:
- Вместимость бани – 2 человека.
- Комфортные условия.
- Изнутри и снаружи вид бани должен быть идеальным.
Чтобы добиться выполнения пунктов 2 и 3, принялся подбирать материалы для строительства. Поиски в магазинах показали, что цены на вагонку для сауны и бани была сильно завышены.
Тогда я начал искать сырье и нашел нестроганые еловые доски размером 50х80, которые планировал использовать для возведения стен бани. Цена была в 3 раза дешевле аналогов в магазинах.
Также я нашел дешевую необработанную липу – доски 40х25 мм длиной 4 м. Правда, пришлось нанимать транспорт, чтобы доставить пиломатериалы ко мне домой. Но даже с учетом доставки цена древесины оказалась в 2 раза дешевле.
Подготовка пола в сарае



Сарай представлял собой бетонную конструкцию с такими же бетонными полами. Поэтому я решил застелить их плитами ОСБ.
Доработка липы
Купленную липовую доску отвез к местному мастеру, чтобы он придал им гладкую форму. Обработанные доски планирую использовать для полок в парилке.
Сборка рамы бани
Из сосновых досок 50х80 мм собрал каркасы стен. Лицевую (фасадную) стену сделал с проемом под дверь.
Утепление стен
ОБРАТИТЕ ВНИМАНИЕ! Пенопласт не подходит для утепления парной зоны, т.к. температура внутри может достигать 120 °С.
Я использовал минеральную вату толщиной 80 мм. Подбирал ее под толщину досок, из которых собрал раму.
Зашиваю утеплитель фольгой
Внутри я использовал алюминиевую фольгу (не обычную кухонную, а более прочную, строительную, которая не рвется). Для проклеивания стыков использовал алюминиевую ленту, чтобы предотвратить попадание воздуха в изоляцию.
Обшивка стен
Стены в бане покрыты вагонкой. Она была у меня изначально до начала строительства. Вагонку крепил на кляймеры, чтобы исключить контакт кожи человека с металлом (гвоздями или шурупами).
Изготовление крыши
- Рама из сосновых досок 50х80.
- Заполнение минеральной ватой.
- Теплоизоляционный слой из алюминиевой фольги.
Процесс утепления крыши
На втором фото показано выходное отверстие — воздух должен циркулировать вокруг источника тепла (печи). Поэтому, снизу под печкой я также сделаю отверстие для притока воздуха.
Проточное отверстие в районе печи
Укладка электропроводки



Электричество в моей бане используется для:
- Освещения.
- Датчика температуры и влажности.
- Отопления печи (ТЭНы).
Я купил силиконовые кабели, чтобы они выдерживали температуру более 120 °С. Прокладывал их через гофру. Снаружи кабели подключены к электрической коробке..
Изготовление двери



Двери изготавливал аналогично стенам и крыше:
- Рама — сосновые доски.
- Утеплитель – минеральная вата.
- Теплоизоляционный слой — алюминиевая фольга.
Кроме того, в дверь я установил стеклопакет – просто вклеил его на пену.
Вклеивание стекла в дверь бани
Изготовление полок



Каркас скамеек выполнен из того же дерева, что и остальная часть рамы — сосновые доски 5х8 см. Для крепления рамы к стенам использовал винты 6×110 мм
Процесс обшивки полок в бане липой
Непосредственно сами полки обшивал липой.
- Порезал доски на планки по 40 см длиной.
- Прикручивал их снизу через раму с помощью саморезов.
Чтобы предотвратить растрескивание древесины, предварительно засверливал отверстия сверлом.
Установка электрической печи
Для своей бани приобрел электрическую каменку мощностью 9 кВт. Также купил в местном магазине камни для нее — талькхорид. Они выдерживают воздействие воды и высокой температуры и не трескаются.
Рекомендуется, чтобы на каждый 1–1,25 м 3 воздуха приходилась 1 кВт мощности.
Финальный результат
Баней пользуемся больше года. В зимний период посещаем ее 2 раза в неделю. В другие времена года ходим париться гораздо реже.
В процессе строительства бани допустил одну грубую ошибку — не поставил экран между стеной и печью. В результате вагонка в этом месте потрескалась от нагрева.
баня из существующего сарая
Здравствуйте, уважаемые профи.
На участке имеется покосившийся каркасный сарай 194 см Х 200 см с двускатной крышей и небольшим чердаком. Каркас снаружи обшит вагонкой, есть несколько самодельных стекол-окон. Внутренняя отделка отсутствует. На полу — доска (местами сгнившая), потолок (и пол чердака одновременно) — доска. Покрыт рубероидом.
Также имеются две печки без комплекта труб — одна цилиндрическая буржуйка высотой примерно 40-50 см, и буржуйка с варочной поверхностью, в форме прямоугольного параллепипеда, поменьше размером.
Старый сарай я собирался сносить все равно. И возникла мысль сделать из него баню или сауну. Т.е. сарай разобрать, и на новом месте из существующих от него запчастей (заменив гнилые) собрать баню. Баню какую, не знаю, но обязательно с душем. Для душа планирую использовать два бака — 50 л. с подогревом до 80 градусов цельсия и литров на сто холодной воды, их смешивать.
Из старого сарая строить планирую с целью экономии, в качестве фундамента планирую забурить несколько металлических труб, заваренных внизу.
Получится? Как превратить сарай в баню?
Стоит ли отдельно отводить воду, или пусть течет сквозь пол на землю?
Вобщем, интересует максимально бюджетный вариант для самостоятельного исполнения с обязательным использованием одной из имеющихся печек (куда-то их приспособить-то надо
)
Я бы не рискнул в таком сарае топить печку, тем более без труб. Сделайте просто душ. Обе бочки на чердак, оттуда самотёком вниз. Слив предпочтительнее отвести наружу, в дренажный колодец из покрышек, но для этого придется сгородить нечто типа душевого поддона.
manliher написал :
Я бы не рискнул в таком сарае топить печку, тем более без труб
Да трубы я докуплю, конечно!
Вопрос в том, можно ли в этом сарае разместить баню или сауну с душем? И какую? Только для душа этот сарай слишком большой будет.
Если суперцель пристроить печку тогда можно. Только при разборке окажется, что там 80% материала гнильё, поэтому очень бюджетно не получится.
manliher написал :
Только при разборке окажется, что там 80% материала гнильё, поэтому очень бюджетно не получится.
Ну каркас там нормальный. Кроме нижней обвязки, наверное. Обшивка вагонкой снаружи тоже терпима. Обрешетка тоже в порядке. Еще окна и дверь. Вопрос, конечно, достаточная ли экономия будет, ведь нужно и внутреннюю отделку докупать, и теплоизоляцию, и паро-гидроизоляцию, и дерево листами чего-то от печки и трубы защищать.
Или плюнуть и построить каркасную баню из новых материалов, чуток побольше, по какому-нибудь имеющемуся в сети проекту?
Экономия при постройке из старого сарая такова: не нужно возить длинномеры и нанимать грузовик. Доски до трех метров я на легковушке могу увезти.
Сейчас считаю экономию: на каркас (без нижней обвязки), пол (если принять за данность, что все доски целы, а это не так), потолок и обрешетку уходит меньше куба дерева, т.е. меньше 5 тыр. Вагонка наружная, если принять за штуку (2м) 100 рублей, стоит 8400. Новая. Можно попытаться сэкономить, придав оригинальный внешний вид, и положить внахлест обычную доску толшиной 15 мм. Если запас по ширине сделать четверть, то получиться на все четыре стены 0,15 кубометра дерева. Копейки.
Считал я это для досок длиной 2 метра.
Таким образом, получается экономия от 5500 примерно до 13900 рублей. Плюс экономия на двери (можно сделать самому, наверное, еще немного дерева понадобится), петлях и окнах (обычные стекла можно самому вставить и в новую баню). Каркас дверной коробки еще не посчитал. Плюс польза от сноса сарая, т.к. он задолбал уже, участок перегораживает.

Вот и хрен знает, что делать.
Или экономить и пытаться всунуть в меньше 4 кв. м. баню с душем, или построить новую, 3 на 3 метра. Или заказывать грузовик и строить уже из шестиметровых досок. 4 на 2, например.
Наверное, нужно строить баню из новых материалов.
Но печку хочу вкорячить по любому. Вопрос, какую из двух?
Баня и сарай под одной крышей – совмещение приятного с полезным
Нельзя сказать, что вы к этому обязательно будете стремиться – совместить под одной крышей два таких помещения, как баня и сарай. Даже если будете убеждать себя, что с персидского «сарай» – не что иное, как «дворец». У нас это место для хранения всякой всячины, больше инструментов и хлама «на всякий случай».
Но ситуации бывают разные – сарай уже стоит, а места и так не хватает, или приглянулся удачный проект бани с уже «хозяйственной комнатой». Так или иначе, такое совмещение возможно, всё зависит от того, как «дворец» для тяпок и лопат будет в будущем содержаться.

Лучше решение вопроса, как из сарая сделать баню, осуществить кардинально – построить баню с хозяйственным помещением заново
Решение проблемы нехватки места на участке

План такого сооружения «баня – сарай» в один этаж довольно прост, что допускает некоторые отклонения в размерах и даже организацию на входе крыльца (см. описание в тексте)
Основным, как модно сегодня говорить, пилотным, вариантом совмещения бани и хозяйственного помещения может быть следующее, проверенное уже не в одно десятке реализаций:
- A – прихожая – предбанник, заметьте управление печью происходит из парной, но стена печи выходит в прихожую, что обеспечивает её надёжное отопление;
- B – моечная, здесь есть небольшое окно – окна в рабочих помещениях бань или отсутствуют совсем или небольшого размера (в предлагаемом варианте 50 на 40 см), что позволяет лучше контролировать теплообмен;
- C – парная – традиционная полать и печка, тут есть всё для настоящего ценителя отдыха «с парком», обращаем внимание в предлагаемой реализации в парной окна нет, это негласное правило всех парных у всех проектировщиков;
- D – сарай, ну, или, хозяйственная комната площадью 4 кв.м, на такой площади можно разместить и небольшой станок; оцените продуманный и дальновидный подход предлагаемого решения – сарай с его грудой металла не имеет соприкосновения с богатыми влагой помещениями; конечно, теплоизоляция и паропроницаемость должны быть обеспечены на самом высоком уровне, тем не менее, такое разделение говорит о тонком понимании ситуации разработчиками;

Возможно, герои «Калины красной» парились в такой бане, просто пристроенной к сараю, но те времена 40-летней давности всё-таки ушли и мучиться над вопросом, как пристроить сарай к бане, скорее всего сегодня уже не придётся
- E– крыльцо, и это ещё один плюс предлагаемого проекта.
Полезный совет!
Но основная положительная черта предложенного – установка всей конструкции на сваи.
Здесь выбран более дорогой и надёжный вариант – квадратные в сечении бетонные сваи.
Хотя для такой конструкции, как одноэтажная баня, вполне можно использовать и металлические трубные, их удобнее устанавливать, а нагрузочная способность вполне будет отвечать задачам сооружения.
Главное, сваи – идеальный способ борьбы с ненадёжными, пучинистыми грунтами и главный способ надёжного проветривания конструкции, что для бань очень важно.
Особенности конструкции
Технология возведения предлагаемой бани с сараем так хорошо отработана, что обычно бригада из 2-3 человек берётся возвести её не более чем за рабочую неделю. И цена за всё это удовольствие попарится после наведения порядка в сарае — не более чем 300 тысяч рублей .
Вот ещё несколько полезных технических характеристик такой комбинации бани с сараем:
- для наружных стен используется строганный брус размером (мм) 95 на 145;
- для парной – осиновая вагонка;
- размер бетонных свай – 200 х 200 х 400 мм;
- расстояние между тумбами – 200 мм;
- количество тумб – 9 (8 по периметру и одна посередине строения);
- сверху свай обязательно рубероид в качестве гидроизоляции;
- средство изоляции между полотнами бруса – джут;
- пароизоляцию в парной обеспечивает специальная банная фольга;
- утепление в 50 мм применяется как на полу, так и на потолке бани;
- все стыки, снизу и сверху, закрываются плинтусами;
- с наружной стороны крыша обшивается хвойной вагонкой;
- высота потолка внутри – 225 см;

Как там, в «самом коротком анекдоте» от Юрия Никулина: «Баня, через дорогу раздевалка». За городом это уже и не анекдот, тем более, если была сделана баня из сарая своими руками
- толщина стен – 95 мм;
- высота конька бани – 150 см;
- для кровли используется ондулин трёх цветов – зелёного, красного или коричневого;
- характеристики пола:
- толщина чернового — 20 мм;
- материал паро и гидроизоляции – пергамин;
- материал утеплителя — URSA в 50 мм;
- половая доска — шпунт в 27 мм;
- материал – вагонка евростандарта «В» сорта;
- материал утеплителя для бани – URSA, 50 мм;
800 х 800 мм – двойное остекление, два окна;
600 х 600 мм – одно.
Полезный совет!
Обращаем внимание. В предлагаемый вариант бани в стандартную обязательную поставку не входит печь.
Её выбор и установка производится по отдельному заказу.
Об этом условии советуем не забывать и обязательно при поиске исполнителя работ справляться о путях установки печи в бане.
Решение об установке должно быть принято заблаговременно.
Некоторые исполнители готовы установить любую печь, предлагаемую заказчиком, но это, как правило, требует согласования.

Любой проект бани с сараем требует особо тщательного отношения к фундаменту – создание параметра по периметру – очень хороший вариант
Выводы
Предлагаемый вариант совмещения бани и хозяйственной комнаты далеко не единственный. Поэтому инструкция действий здесь будет традиционна для строительного рынка – сначала обязательно проведите исследование и выберите наиболее подходящий вариант, удовлетворяющий всех вашим пожеланиям и условиям размещения.
Если бы не повышенные требования, даже не к прочности, а к качеству фундамента бани, возможно, можно было бы рекомендовать попытаться всё сделать и самостоятельно. Но так как специфика сооружения бань требует опыта и квалификации, советуем обращаться к профессионалам, работающим с уже проверенными образцами проектов.

На фото всё было поставлено на трубчатый свайный фундамент – для бани это наилучший вариант с точки зрения сохранности сооружения на долгие годы
Видео в этой статье, возможно, сможет вас всё-таки убедить, ради экономии места, совместить баню с хозяйственным помещением, если уж вы не смогли решить проблему размещения другим способом.
Как построить баню внутри сарая: пошаговый фотоотчет
Долго мечтал, и наконец, решил сделать свою собственную баню. Места под строительство было недостаточно, поэтому принял решение строить баню внутри сарая. По затратам она обошлась мне в 35 тыс. рублей (экв. 550 $). Рассказываю, как проходило строительство бани.
Подбор материалов
Вначале я определился с требованиями:
- Вместимость бани – 2 человека.
- Комфортные условия.
- Изнутри и снаружи вид бани должен быть идеальным.
Чтобы добиться выполнения пунктов 2 и 3, принялся подбирать материалы для строительства. Поиски в магазинах показали, что цены на вагонку для сауны и бани была сильно завышены.
Тогда я начал искать сырье и нашел нестроганые еловые доски размером 50х80, которые планировал использовать для возведения стен бани. Цена была в 3 раза дешевле аналогов в магазинах.
Также я нашел дешевую необработанную липу – доски 40х25 мм длиной 4 м. Правда, пришлось нанимать транспорт, чтобы доставить пиломатериалы ко мне домой. Но даже с учетом доставки цена древесины оказалась в 2 раза дешевле.
Подготовка пола в сарае
Сарай представлял собой бетонную конструкцию с такими же бетонными полами. Поэтому я решил застелить их плитами ОСБ.
Доработка липы
Купленную липовую доску отвез к местному мастеру, чтобы он придал им гладкую форму. Обработанные доски планирую использовать для полок в парилке.
Сборка рамы бани
Из сосновых досок 50х80 мм собрал каркасы стен. Лицевую (фасадную) стену сделал с проемом под дверь.
Утепление стен
Я использовал минеральную вату толщиной 80 мм. Подбирал ее под толщину досок, из которых собрал раму.
Внутри я использовал алюминиевую фольгу (не обычную кухонную, а более прочную, строительную, которая не рвется). Для проклеивания стыков использовал алюминиевую ленту, чтобы предотвратить попадание воздуха в изоляцию.
Обшивка стен
Стены в бане покрыты вагонкой. Она была у меня изначально до начала строительства. Вагонку крепил на кляймеры, чтобы исключить контакт кожи человека с металлом (гвоздями или шурупами).
Изготовление крыши
- Рама из сосновых досок 50х80.
- Заполнение минеральной ватой.
- Теплоизоляционный слой из алюминиевой фольги.
На втором фото показано выходное отверстие — воздух должен циркулировать вокруг источника тепла (печи). Поэтому, снизу под печкой я также сделаю отверстие для притока воздуха.
Укладка электропроводки
Электричество в моей бане используется для:
- Освещения.
- Датчика температуры и влажности.
- Отопления печи (ТЭНы).
Я купил силиконовые кабели, чтобы они выдерживали температуру более 120 °С. Прокладывал их через гофру. Снаружи кабели подключены к электрической коробке.
Изготовление двери
Двери изготавливал аналогично стенам и крыше:
- Рама — сосновые доски.
- Утеплитель – минеральная вата.
- Теплоизоляционный слой — алюминиевая фольга.
Кроме того, в дверь я установил стеклопакет – просто вклеил его на пену.
Изготовление полок
Каркас скамеек выполнен из того же дерева, что и остальная часть рамы — сосновые доски 5х8 см. Для крепления рамы к стенам использовал винты 6×110 мм
Непосредственно сами полки обшивал липой.
- Порезал доски на планки по 40 см длиной.
- Прикручивал их снизу через раму с помощью саморезов.
Чтобы предотвратить растрескивание древесины, предварительно засверливал отверстия сверлом.
Установка электрической печи
Для своей бани приобрел электрическую каменку мощностью 9 кВт. Также купил в местном магазине камни для нее — талькхорид. Они выдерживают воздействие воды и высокой температуры и не трескаются.
Рекомендуется, чтобы на каждый 1–1,25 м3 воздуха приходилась 1 кВт мощности.
Источники:
http://kak-svoimi-rukami.com/2015/05/sauna-svoimi-rukami-v-starom-sarae/
http://beaver-news.ru/sdelaj-sam/kak-postroit-banyu-vnutri-saraya-poshagovyj-fotootchet/
http://mastergrad.com/forums/t115639-banya-iz-sushchestvuyushchego-saraya/
http://9ban.ru/planirovki/118-banya-i-saraj-pod-odnoj-kryshej
http://zen.yandex.ru/media/id/5ac75846168a9101f112ab0d/5ddacc861c45154a475fac47
Многие люди любят посещать баню и приходят к мнению, что лучшим вариантом является возведение собственной бани на частном участке. В статье речь пойдет о том, какие существуют проекты бани с хозблоком под одной крышей и нюансы их возведения.
Основы совместного возведения бани с хозяйственным блоком
По стандарту баня с хозблоком возводятся на одном фундаменте, где делается небольшая пристройка с подведением всех необходимых коммуникаций. Также данный блок может быть заранее внедрен в план постройки в качестве еще одной комнаты здания. К такой бане выставляют больший набор условий, которые необходимо соблюдать, чтобы получить эффективный, надежный и безопасный комплекс.
Речь идет о следующих нюансах:
- должны быть обустроены отдельные входы и выходы для пристройки, что значительно увеличит безопасность посетителей;
- следует позаботиться о проведении в хозблок с баней и туалетом отдельных веток водоснабжения, поскольку обычной емкости над банной печью не хватит, чтобы обеспечить регулярную подачу воды во все помещения;
- дополнительное обустройство отопительной системы позволит использовать пристройку, как и баню, в зимний период времени;
- максимально эффективной крыша будет лишь в том случае, когда для обеих построек она будет совместной;
- тщательная проверка пожарной безопасности позволит использовать комплексную постройку без риска для посетителей;
- канализационные отводы необходимо создавать отдельно для бани и хозяйственного блока. Также стоит заранее узнать, надо ли регистрировать баню , и при необходимости принять необходимые меры.
Преимущества у таких построек, совмещенных по всем правилам, вполне очевидные:
- можно оборудовать пристройку под кухонный блок, что очень ценится, если в бане проводится времени гораздо больше, чем 1,5-2 часа;
- дополнительно устанавливается туалет, который не будет создавать дискомфорта внутри основной постройки;
- расширенное пространство позволяет все приготовления к приему гостей осуществлять в пристройке, а комнату отдыха использовать, как настоящую гостиную.
Также стоит заранее определиться, что именно будет являться главной постройкой: хозблок или баня. Кому-то может показаться, что особой разницы нет, но на самом деле конструкция и ее использование будут сильно отличаться для этих двух вариантов.
Стандартные проекты бань с хозблоком предполагают использование пристройки в качестве дополнительного помещения, где можно будет делать ряд вещей, недоступных ранее из-за нехватки места и недостатка оснащенности бани. Делать главным хозблок разумно лишь в условиях дачного участка, где большого места под строительство полноценной бани нет. Но такая баня для дачи все равно не будет лишней.
Обычно в таких комплексах баня состоит лишь из предбанника и парилки, а в хозяйственном блоке размещается необходимый инвентарь и прочие приспособления для работы на земельном участке. Также может быть оборудован туалет и душевая.
Самостоятельное возведение или использование готового проекта
Когда совмещается баня с сараем или другим техническим помещением, допускается множество недочетов, которые впоследствии приводят к более крупным нарушениям пожарной безопасности. Даже внешне такие постройки будут выглядеть менее эстетично.
Грамотная планировка позволяет:
- быть уверенным в надежности возводимых зданий;
- рассчитать себестоимость комплекса;
- составить схему поэтапного проведения строительных работ и заранее видеть, что будет получено после успешного их завершения.
Типовые проекты бань с хозблоком различаются по следующим параметрам:
- линейные размеры;
- общая стоимость;
- сложность проведения строительных работ;
- количество помещений и т.д.
Пример комплексной постройки бани с хозблоком
Элементы конструкции:
- Столбчатый фундамент, собираемый из бетонных блоков: высота – 0,4 метра, площадь поперечного сечения – 0,2х0,2 метра. Общее количество блоков – 15 штук. Линейные размеры прямоугольной постройки – 4х8 метров.
- Внешние стены и перегородки закладываются из профилированного бруса с поперечным сечением 14х9 сантиметров. Высота от пола до потолка – 2 метра (детальнее: » «).
- Черновое основание укладывается из технической доски (без шлифовки) – 2,5 сантиметра толщиной. Поверх него укладывается пароизоляционный слой из специальной пленки-мембраны. Затем производится финишная облицовка с использованием шпунтованной доски – 3,6 сантиметра толщиной.
- Парилку отделывают осиновой вагонкой, которая крепится поверх слоя фольгированного утеплителя. Сверху на отделку крепятся осиновые полки в два яруса.
- Кровля здания делается двухскатной и ее покрывают ондулином.
- В оконные проемы вставляются деревянные рамы с двойным стеклом. В душевой и туалете проемы должны иметь размеры 0,4х0,4 метра, а в хозблоке – 0,8х0,8 метра.
- На улицу должны выходить три двери каркасного типа с размерами 1,8 метра в высоту и 0,8 метра в ширину. Дверь в парной отсек должна быть выше (1,9 метра), но ее при этом можно сделать уже (0,6 метра). Читайте также: » «.
- Также устанавливается печь-каменка из кирпича с дополнительным баком для нагрева воды. Дымоход в обязательном порядке должен быть представлен трубой из нержавеющей стали. Для создания сауны (не бани) необходимо вынести бак с водой в соседнее помещение, чтобы максимально снизить влажность воздуха. Именно сухой жар является индивидуальной особенностью сауны. Читайте также: » «.
В случае, если в качестве основного топлива используется древесина, то может быть возведена баня с дровяником, где будут храниться запасы топлива. По сути, дровяник может быть еще одной пристройкой к уже имеющемуся хозблоку, поскольку его размеры минимальны. Такая постройка как баня с дровником предполагает раннюю заготовку дров для регулярного приема банных процедур в течение всего года.
Итог
Хозблок расширяет возможности при использовании бани. При совмещении таких построек можно получить место для приготовления пищи на большую компанию, либо производить все технические работы вне помещений, где отдыхают посетители бани.
Однако стоит следовать рекомендациям по обустройству подачи воды, канализации, пожарной безопасности и т.д. Лучше всего правильно реализовать готовый проект, а не создавать себе дополнительные проблемы, пытаясь самостоятельно создать баню с хозблоком.
На печать
Ростислав Кириев
25.06.2014 | 19612
При наличии на участке неиспользуемых хозяйственных построек одну из них можно переделать под баню. Для этой цели подойдет кирпичный или шлакоблочный сарай.
Первым шагом станет перепланировка помещения
. Любая баня имеет как минимум 2 отделения: предбанник и парную. Иногда, если позволяет место, делают отдельный закуток с душем – помывочную. Для перепланировки достаточно выстроить перегородку между будущим предбанником и парной с дверным проемом. В качестве строительного материала хорошо подходит красный кирпич (б/у). Впрочем, возможны и другие варианты. Кроме перегородки в самой парной можно сделать небольшое окно, вырезав в стене проем. Вместо оконной рамы можно просто заложить проем стеклоблоками.
После перегородок можно заняться полами. Очень часто в сараях полы земляные либо глиняные. Оставлять их в таком виде нежелательно и стоит сделать стяжку. При этом, если мыться предполагается в парной, то в полу нужно сделать слив, а трубу вывести за пределы бани и организовать сток.
Чтобы вода хорошо уходила, пол должен иметь уклон
. Его можно устроить разными способами. Например, весь пол может иметь равномерный уклон в сторону сливного отверстия, находящегося под одной из стен. А возможен и такой вариант, когда слив находится посредине, тогда уклон нужно делать со всех сторон.
Важный момент: чтобы влага не проходила сквозь пол и грунт с фундаментом не отсыревали, под стяжку нужно сделать гидроизоляцию
. Для этого подойдет достаточно плотная клеенка. Пол можно оставить бетонным либо обложить плиткой.
Балки укладывают и крепят поперек стен. Снизу к ним набивают доску. Потом в пространство между балками закладывают гидроизоляцию и утеплитель. В качестве утеплителя можно подобрать любой материал, который не горит, не выделяет ядовитых веществ при нагревании. Можно изготовить утеплитель самостоятельно, смешав жидкую глину с керамзитом. В потолке и крыше обязательно нужно оставить отверстие для дымохода от печки.
Печка с каменкой
– это, пожалуй, самая важная часть бани. Если у вас есть необходимые знания и навыки, то соорудить ее можно самостоятельно. Вариантов конструкций и чертежей сейчас великое множество. Также можно приобрести готовую печку-каменку, выполненную из металла. Устанавливают ее чаще всего так, чтобы доступ к топке находился либо в предбаннике, либо вовсе на улице.
Стационарная баня должна долго удерживать тепло. А потому стены нужно хорошо утеплить
. Специалисты рекомендуют сделать с внутренней стороны сначала деревянную обрешетку, после чего уложить утеплитель. Важно помнить, что утеплитель в этом случае должен быть негорючим, термостойким и не должен выделять ядовитых веществ. Сверху на утеплитель нужно положить гидроизоляцию, которая защитит его от конденсата. После этого, весь этот «слоеный пирог» зашивать отделочным материалом.
Самой оптимальной отделкой для бани считается, конечно, деревянная рейка
. Дерево лучше всего брать лиственных пород. Сосна или ель для этой цели не подходят, так как при нагревании выделяют смолу. Между утеплителем и обшивкой необходимо оставить зазор в пару сантиметров.
И последним этапом станет установка лавок-лежаков
, которые также лучше всего строить из дерева лиственных пород.
Конечно, на практике переоборудование сарая в баню займет довольно много времени и сил. Однако при большом желании можно справиться с любой задачей.
На печать
Сегодня читают
Теплицы
Теплица «Кремлевская» – экспресс-выращивание овощей на вашем огороде
Пока рассада на вашем подоконнике еще подрастает, и дачный сезон не открыт, есть время подумать о том, какую теплицу для…
Что может быть прекраснее бани? Баня с хозблоком и туалетом! Такие дополнения выводят строение, предназначенное для оздоровительного отдыха, на новый уровень, добавляя множество полезных функций.
Осуществить такой проект бани с хозблоком можно путём добавления небольшой постройки и необходимых коммуникаций к уже готовому строению или же внести дополнительную комнату в планировку изначально, построив всё на едином фундаменте.
Фото бани, имеющей хозяйственный блок
Общие положения
Баня совмещенная с хозблоком, имеет намного большее количество требований, которые необходимо выполнить для успешной реализации задуманного.
К ним относятся:
- Наличие комфортных беспрепятственных входов и выходов, как внутри, так и снаружи постройки.
Совет: предусмотрите отдельные входы для банного помещения и хозяйственного блока.
Это позволит использовать их по отдельности, что более удобно.
Проект, в котором баня и хозблок имеют разные входы
- Подключение водопровода или водонасосной станции для самостоятельного водоснабжения. Водяного бака парилки не хватит для выполнения всех хозяйственных нужд.
- Теплообменные сети. Обогрев будет необходим для возможности использования помещения в зимний период.
- Общая крыша. Для того чтобы не появлялись водные образования и контролировались стоки, следует делать общую кровельную конструкцию для всего здания.
- Безопасные условия для одновременного использования всех помещений. Это, в первую очередь, касается пожарной безопасности из-за использования печи в парилке.
- Отдельный канализационный вывод для туалета бани.
Если же всё выше перечисленное удастся воспроизвести, то будут получены следующие преимущества:
Достоинства
- Возможность готовить еду. Незаменимое дополнение на даче без жилого дома и возможность разгрузить основную кухню при его наличии.
- Встроенный туалет. Что невероятно важно при зимней эксплуатации бани в особенности с детьми.
Туалет с раковиной в бане
- Полноценные условия для приёма гостей. Благодаря наличию хозяйственного блока комната отдыха может использоваться как гостиная.
Баня с хозяйственным блоком или хозяйственный блок с баней
Это отличие на первый взгляд кажется незначительным, но это не так:
- Хозблок с баней приемлем для использования на дачном участке без других построек и в том случае, если вы приехали без ночёвки.
Проект хозблока с баней и террасой
- Проекты бань с хозблоком рекомендуется осуществлять в частном секторе, имеющем жилое строение. Это позволит перевести туда часть повседневных дел и вещей, что, в свою очередь, освободит множество места в доме для других нужд.
Полный комплект услуг в одном строении
Самостоятельная стройка или готовый проект
Вольные постройки без планировки всегда имеют множество недостатков. В данном случае это чревато не только нарушением эстетической красоты и геометрии здания, но ещё и нарушениями правил пожарной безопасности.
Поэтому, не важно, собираетесь ли вы всё делать своими руками или наймёте профессионалов, рекомендуется воспользоваться готовым проектом.
Тогда вас будут:
- уверенность в надёжности строения,
- возможность расчёта себестоимости,
- графическое представление того что вы возводите,
- инструкция хода работ.
Проекты бани с хозблоком бывают самые разнообразные.
Их отличают между собой:
- размеры,
- цена,
- сложность,
- количество комнат и многое другое.
Для общего понимания рассмотрим один из них.
Полный комплект для отдыха и приёма гостей
Площадь всего здания 4 м на 8 м.
Включает в себя:
- Фундамент столбчатый из бетонных блоков высотой 40 см и сечением 20 см на 20 см. Количество – 15 штук.
- Для внешних стен и внутренних перегородок используется профилированный брус с сечением 14 см на 9 см.
- Потолки высотой 2 м.
- Черновое основание из нешлифованной доски толщиной 2,5 см.
- Пароизоляция образуется мембранной плёнкой.
- Финишное основание из шпунтованной доски толщиной 3,6 см.
- Внутренняя отделка парилки выполнена из осины поверх фольги для бани.
- Внутри парильной комнаты монтируются двухъярусные полки также из осины.
- Двухскатная крыша покрывается ондулином.
- Окна выполняются из дерева и двойного стекла в душ и туалет размерами 40 см на 40 см, а в хозяйственную комнату и гостевую – 80 см на 80 см.
- Три каркасных двери высотой 1,8 м и шириной 0,8 м.
- В парилку бани — дверь из древесины размером 1,9 м на 0,6 м.
- Кирпичная печь с баком для воды в парной.
Совет: если вы планируете использовать помещение как сауну, то необходимо бак вынести в соседнюю комнату, потому что сауна предполагает использование сухой парилки.
- Дымоходная труба из нержавейки.
Графическое изображение будущего проекта
Наличие хозблока в бане добавляет множество полезных возможностей, к которым относятся приготовление еды и приём гостей, что позволяет перенести туда часть функций жилого дома.
Следует учитывать, что хозяйственный блок также требует принятия дополнительных мер по обустройству: самостоятельное водоснабжение, канализация, пожарная безопасность и так далее.
Огромный ассортимент проектов таких построек поможет вам выбрать наилучший вариант для вашего участка.
Готовая сауна с хозяйственным блоком
Баня с хозблоком – особенности проекта
Баня с хозблоком: видео-инструкция по оформлению своими руками, особенности совмещенного помещения, проекты, цена, фото
Многие люди любят посещать баню и приходят к мнению, что лучшим вариантом является возведение собственной бани на частном участке. В статье речь пойдет о том, какие существуют проекты бани с хозблоком под одной крышей и нюансы их возведения.
Основы совместного возведения бани с хозяйственным блоком
По стандарту баня с хозблоком возводятся на одном фундаменте, где делается небольшая пристройка с подведением всех необходимых коммуникаций. Также данный блок может быть заранее внедрен в план постройки в качестве еще одной комнаты здания. К такой бане выставляют больший набор условий, которые необходимо соблюдать, чтобы получить эффективный, надежный и безопасный комплекс.
Речь идет о следующих нюансах:
- должны быть обустроены отдельные входы и выходы для пристройки, что значительно увеличит безопасность посетителей,
- следует позаботиться о проведении в хозблок с баней и туалетом отдельных веток водоснабжения, поскольку обычной емкости над банной печью не хватит, чтобы обеспечить регулярную подачу воды во все помещения,
- дополнительное обустройство отопительной системы позволит использовать пристройку, как и баню, в зимний период времени,
- максимально эффективной крыша будет лишь в том случае, когда для обеих построек она будет совместной,
- тщательная проверка пожарной безопасности позволит использовать комплексную постройку без риска для посетителей,
- канализационные отводы необходимо создавать отдельно для бани и хозяйственного блока.
Преимущества у таких построек, совмещенных по всем правилам, вполне очевидные:
- можно оборудовать пристройку под кухонный блок, что очень ценится, если в бане проводится времени гораздо больше, чем 1,5-2 часа,
- дополнительно устанавливается туалет, который не будет создавать дискомфорта внутри основной постройки,
- расширенное пространство позволяет все приготовления к приему гостей осуществлять в пристройке, а комнату отдыха использовать, как настоящую гостиную.
Также стоит заранее определиться, что именно будет являться главной постройкой: хозблок или баня. Кому-то может показаться, что особой разницы нет, но на самом деле конструкция и ее использование будут сильно отличаться для этих двух вариантов.
Стандартные проекты бань с хозблоком предполагают использование пристройки в качестве дополнительного помещения, где можно будет делать ряд вещей, недоступных ранее из-за нехватки места и недостатка оснащенности бани. Делать главным хозблок разумно лишь в условиях дачного участка, где большого места под строительство полноценной бани нет.
Обычно в таких комплексах баня состоит лишь из предбанника и парилки, а в хозяйственном блоке размещается необходимый инвентарь и прочие приспособления для работы на земельном участке. Также может быть оборудован туалет и душевая.
Самостоятельное возведение или использование готового проекта
Когда совмещается баня с сараем или другим техническим помещением, допускается множество недочетов, которые впоследствии приводят к более крупным нарушениям пожарной безопасности. Даже внешне такие постройки будут выглядеть менее эстетично.
В связи с этим наилучшим вариантом является использование готового индивидуального или шаблонного проекта, по которому будущий владелец бани с пристройкой вправе строить сам или нанимать специалистов. Читайте также: “Из чего лучше сделать баню – выбор надёжных и долговечных материалов”.
Грамотная планировка позволяет:
- быть уверенным в надежности возводимых зданий,
- рассчитать себестоимость комплекса,
- составить схему поэтапного проведения строительных работ и заранее видеть, что будет получено после успешного их завершения.
Типовые проекты бань с хозблоком различаются по следующим параметрам:
- линейные размеры,
- общая стоимость,
- сложность проведения строительных работ,
- количество помещений и т.д.
Пример комплексной постройки бани с хозблоком
- Столбчатый фундамент, собираемый из бетонных блоков: высота – 0,4 метра, площадь поперечного сечения – 0,2х0,2 метра. Общее количество блоков – 15 штук. Линейные размеры прямоугольной постройки – 4х8 метров.
- Внешние стены и перегородки закладываются из профилированного бруса с поперечным сечением 14х9 сантиметров. Высота от пола до потолка – 2 метра (детальнее: “Какая высота потолка в сауне и бане должна быть – рекомендации по обустройству”).
- Черновое основание укладывается из технической доски (без шлифовки) – 2,5 сантиметра толщиной. Поверх него укладывается пароизоляционный слой из специальной пленки-мембраны. Затем производится финишная облицовка с использованием шпунтованной доски – 3,6 сантиметра толщиной.
- Парилку отделывают осиновой вагонкой, которая крепится поверх слоя фольгированного утеплителя. Сверху на отделку крепятся осиновые полки в два яруса.
- Кровля здания делается двухскатной и ее покрывают ондулином.
- В оконные проемы вставляются деревянные рамы с двойным стеклом. В душевой и туалете проемы должны иметь размеры 0,4х0,4 метра, а в хозблоке – 0,8х0,8 метра.
- На улицу должны выходить три двери каркасного типа с размерами 1,8 метра в высоту и 0,8 метра в ширину. Дверь в парной отсек должна быть выше (1,9 метра), но ее при этом можно сделать уже (0,6 метра). Читайте также: “Как установить дверь в парную своими руками”.
- Также устанавливается печь-каменка из кирпича с дополнительным баком для нагрева воды. Дымоход в обязательном порядке должен быть представлен трубой из нержавеющей стали. Для создания сауны (не бани) необходимо вынести бак с водой в соседнее помещение, чтобы максимально снизить влажность воздуха. Именно сухой жар является индивидуальной особенностью сауны. Читайте также: “Какой проект дома с баней под одной крышей выбрать – варианты и возможности”.
В случае, если в качестве основного топлива используется древесина, то может быть возведена баня с дровяником, где будут храниться запасы топлива. По сути, дровяник может быть еще одной пристройкой к уже имеющемуся хозблоку, поскольку его размеры минимальны. Такая постройка как баня с дровником предполагает раннюю заготовку дров для регулярного приема банных процедур в течение всего года.
Итог
Хозблок расширяет возможности при использовании бани. При совмещении таких построек можно получить место для приготовления пищи на большую компанию, либо производить все технические работы вне помещений, где отдыхают посетители бани.
Однако стоит следовать рекомендациям по обустройству подачи воды, канализации, пожарной безопасности и т.д. Лучше всего правильно реализовать готовый проект, а не создавать себе дополнительные проблемы, пытаясь самостоятельно создать баню с хозблоком.
Как построить баню с хозблоком – важные нюансы в проектировании
Баня с хозблоком под одной крышей: проекты с сараем и туалетом, дровяником
Баня из бруса 6 на 6
Типовой проект бани 6х6м из профилированного бруса, с террасой 2х2м. Удобная планировка с парной, моечной и комнатой отдыха на 12 квадратных метра. Хозяйственное помещение можно использовать, как дровяник, или мастерскую. Дополнительно устанавливаем печь и фундамент. Цена указана с учетом сборки на вашем участке и с учетом доставки до Москвы и СПб.
Стоимость бани
- брус 100х150мм – 365 300 руб
- брус 150х150мм – 410 100 руб
- брус 200х150мм – 463 000 руб
Для обсуждения деталей заказа
Для обсуждения деталей заказа
Ваша заявка принята. Ожидайте звонка.
Неправильно введена капча
3500р/за сваю
6000р/за сваю
3000р/ за п.м.
Точная стоимость фундамента определяется после выезда нашего специалиста на участок, для определения состава грунта!
В указанную стоимость бани входит:
- Доставка 30км от Москвы или Санкт-Петербурга,
- Сборка у вас на участке,
Комплектация бани:
Материал капитальных стен и перегородок:
- Капитальные стены бани – брус профилированный, («прямой»/«закругленный»), естественной влажности
- Перегородки бани – брус профилированный, естественной влажности
- Сборка сруба бани выполняется на металлические нагели (гвоздь 200мм), в теплый угол
- Между венцами капитальных стен прокладывается межвенцовый льно-джутовый утеплитель
- Высота от пола до потолка – 2,2м (16 венцов)
Силовые конструкции:
- Основание бани выполняется из бруса 150х150мм, в два ряда
- Лаги пола выполняются из бруса 40х150мм, шаг – 600мм
- Стропильная система из бруска 40х100мм. Шаг стропил – 600мм
- Черновой пол выполняется из обрезной доски 20х100мм
- Обрешетка крыши не сплошная выполняется из обрезной доски 20х100мм
Внутренняя отделка:
- Пол и потолок бани утепляется рулонной минеральной ватой, толщиной – 100мм
. - Паро- гидроизоляция пола и потолка: плёнка «Isospan
» или аналоги - Потолок подшивается «вагонкой» хвойных пород, камерной сушки
- Для внутренней отделки используются финишные гвозди
- Капитальные стены и перегородки бани изнутри не отделываются
- Половая (шпунтованная) доска – 36мм
, монтируется на гвозди - Углы помещений бани отделываются фигурным плинтусом хвойных пород
Все отделочные материалы камерной сушки!
Наружная отделка:
- Стены сруба бани снаружи не отделываются
- Фронтоны обиваются «вагонкой» хвойных пород, естественной влажности
- Углы бани свесы и карнизы отделываются «вагонкой» хвойных пород
Отделка оконных и дверных проемов:
- Окна деревянные, двойного остекления
- Входная дверь – металлическая
- Межкомнатные – деревянные, устанавливаются на петли, без фурнитуры
- Оконные и дверные проемы отделываются наличником
- Во все оконные и дверные проемы устанавливаются обсадные бруски «ройки»
Отделка террасы, если проект ее предусматривает:
- Потолок подшивается «вагонкой» хвойных пород, камерной сушки
- Пол – половая (шпунтованная) доска, толщиной 36мм
, камерной сушки
, монтируется на гвозди, полы монтируются с зазором 0,5см, через каждую доску - Перила – строганный брусок 40х100мм
- Опорные столбы из простроганного бруса с компенсаторами усадки
Отделка парного и моечного отделений:
- В парной устанавливаются двухъярусные осиновые полки
- Парная по всему периметру ошивается осиновой «вагонкой»
- В качестве пароизоляции используется фольга по периметру.
- В моечном отделении полы монтируются под наклоном к сливу с гофрированным шлангом для отвода сточных вод.
- Кровля – Ондулин, цвет на выбор – красный, коричневый, зеленый
- Под кровлю укладывается гидроизоляция (ветрозащита) – «Isospan А»
- На фронтоны устанавливаются вентиляционные решетки
- У хода устанавливаются ступени
В действующую комплектацию и планировку бани возможно вносить любые изменения – расположение окон, дверей и перегородок, замена материалов (кровли, окон, утепления, отделки пола, парного отделения и пр). В нашем каталоге много проектов бань из бруса в один этаж, разной площади и размеров, готовые решения с парной, моечной, комнатой (спальней) на первой этаже и проекты для зимнего использования с теплым туалетом и тамбуром.
Порядок оплаты
К оплате принимаем наличные или безналичные платежи.
Стоимость строительства фиксируется в договоре и остается неизменной в течении действия договора, оплата производится в рублях, поэтапно.
- 70% – вы оплачиваете когда мы начинаем работать (при завозе материала и прибытии строителей)
- 30% – по окончании работ при подписании Акта сдачи-приемки
- Фундамент и коммуникации оплачивается отдельно, по факту выполнения
Требования к месту строительства
- Проживание для строителей
. Если проживания нет, то возможно у нас приобрести бытовку 2х3м, после строительства бытовка остается у Вас. Цена – 15 000рублей
- Электричество
– розетка не менее 3,0кВт. Если на участке нет электричества, то возможна аренда электрогенератора, на весь строк строительства. Цена – 8 000рублей + ГСМ
- Питьевая вода и туалет для быта рабочих.
Бригада строителей в составе 2-3-х человек осуществляет строительство бани в течении 15-20 дней.
Одноэтажная баня из бруса 6 на 6 (Б-12)
Проект одноэтажной брусовой бани для дачи с хозяйственным помещением для дров, инвентаря или инструментов от СК Древо, строим без предоплаты, заказать деревянную баню с гарантией, винтовым фундаментом и печкой
Проекты бани совмещенной с хозблоком под одной крышей: брус, сруб или оцилиндровка
Баню, совмещенную с хозяйственной постройкой или гаражом не редко можно встретить на дачных или приусадебных участках.
Такое сооружение позволяет сэкономить имеющуюся свободную площадь небольшого участка, совместив в себе функции бани, кухни, кладовой, гаража и других незаменимых в быту помещений.
Угловая баня с хозблоком и гаражом
На сегодняшний день имеется множество готовых проектов совмещенных с хозблоком бань, различающихся размерами, использующимися при строительстве материалами, количеством внутренних помещений и, конечно же, стоимостью.
Наиболее рациональным для небольшого участка можно назвать угловое расположение бани, позволяющее совместить в одном сооружении и хозблок, и гараж. Соединение различных по своему назначению построек под одной крышей, несомненно, имеет свои плюсы.
Обычно проект сооружения предполагает разделение совмещенного здания на несколько изолированных друг от друга помещений с отдельными входами и располагается буквой Г.
С короткой стороны сооружения размещается сама баня со всеми необходимым помещениями – комнатой отдыха, моечной, парилкой, душевой. Конкретное расположение комнат определяется индивидуально, но в большинстве случаев, окно комнаты для отдыха и вход в баню выходят на своеобразную угловую террасу.
С длинной стороны постройки размещают вход в хозяйственный блок, который может выполнять функции небольшой домашней мастерской, дровника, летней кухни или сарая.
В зависимости от расположения и удобства въезда на участок, возможны два варианта размещения гаража: с торца длинной стороны сооружения или рядом со входом в хозблок.
Важнейшую функцию выполняет небольшая угловая терраса, расположившись на которой можно устроить дружеские посиделки с чашкой чая после совместного принятия банных процедур или устроить небольшую вечеринку с барбекю либо шашлыками.
Как совместить баню и хозблок?
Разработка индивидуального проекта бани с гаражом и хозяйственным блоком намного сложнее, чем проектирование обычной бани. Сложности объясняются тем, что проекте должно быть предусмотрено и учтено огромное количество требований, предъявляющихся одновременно ко всем расположенным под одной крышей постройкам различного назначения.
При совмещении бани и хозблока под одной крышей в состав проекта включаются:
- проходы внутри помещений,
- теплообменные сети,
- система водоснабжения,
- конструкция кровли,
- безопасность использования раздельных помещений.
Для предотвращения попадания внутрь помещений атмосферной влаги, возникновения сырости и появления грибков, кровля совмещенной постройки обязательно должна быть общей.
Использующиеся для внутренней отделки стен материалы должны обеспечивать одновременное безопасное пользование и бани, и хозблока.
Входы в различные по назначению помещения должны быть предусмотрены раздельными, что не исключает возможности устройства внутренних переходов.
В зависимости от назначения хозяйственного отделения необходимо предусмотреть систему подвода холодной воды в помещения бани и ее отвода. Если в совмещенной бане планируется наличие туалета, следует предусмотреть также и устройство септика.
При использовании бани на даче или приусадебном участке в зимний период, не обойтись без утепления канализационных и водных коммуникаций, сооружения системы отопления, которая также не будет лишней и в гараже, и в хозблоке.
Построить совмещенную с хозблоком или гаражом баню можно как самостоятельно, так и обратившись в специализирующуюся на выполнении таких работ “под ключ” компанию.
Популярные проекты у нас на сайте
Оптимальный вариант: брус, сруб или оцилиндровка
Лучшими материалами для строительства совмещенных с хозблоком бань являются те же натуральные материалы, использующиеся и для возведения бань обычных:
Каждый из этих материалов обладает своими достоинствами и недостатками, а потому выбор оптимального варианта: брус, сруб или оцилиндровка, зависит от индивидуальных предпочтений и сметы строительства.
Брус является идеальным материалом для постройки бани с хозблоком. Преимущества применения натурального бруса очевидны и неоспоримы:
- не требуется сооружение заглубленного фундамента,
- отсутствие усадки,
- отличная износоустойчивость,
- высокая теплоемкость,
- долговечность,
- обеспечение прекрасного микроклимата,
- высокие эстетические характеристики.
Единственным, но достаточно серьезным недостатком бруса является его цена.
Издревле на Руси бани строились из сруба, и в наши дни сохранившего свою популярность благодаря многочисленным преимуществам:
- создание прекрасного микроклимата в помещении,
- низкая степень теплопроводности,
- высокие звуко- и теплоизоляционные характеристики,
- продолжительный срок службы,
- возможность претворения в жизнь проекта любой сложности – от строительства обычной бани до сооружения бани с гаражом и хозблоком.
В число самых востребованных зданий на загородных участках входит баня, которая у нас в стране издавна используется не только для гигиенических процедур, но еще и в качестве места отдыха. Представленное на строительном рынке изобилие материалов позволяет возвести хозблок с баней и туалетом своими руками. При этом такое сооружение получится значительно дешевле, чем когда баню строят нанятые со стороны специалисты.
Отличительной чертой бань с террасой является возможность расширения их функциональности за счет дополнительных пристроек.
Проект хозблока из бруса с баней и дровяником под одной крышей
Под одной крышей может разместиться гараж, а также баня с хозблоком, который будет служить в качестве подсобного помещения, склада или кладовой.
Строительство бани следует начинать с составления схемы помещений и сметы. Баня обладает одной особенностью, отличающей ее от других видов зданий: помещения, где происходят гигиенические процедуры, то есть моечная и парная, а отчасти и предбанник, требуют прогрева.
Для экономии тепловой энергии также рекомендуется выбирать более , не делать высоких потолков, а рассчитывать высоту, учитывая рост взрослого человека с небольшим запасом. Разобравшись с размерами основных и подсобных помещений, следует подготовить схему коммуникаций.

В бане с террасой обязательно должны быть водослив (канализация) и вентиляция. Иногда в банях обходятся без электричества и водопровода, но все же, если есть возможность их подключить, стоит этим воспользоваться.
Материалы для строительства бани
За редким исключением в нашей стране с , поэтому при ее возведении будут востребованы навыки плотника и столяра. Для строительства фундамента придется освоить профессию каменщика, но, как показывает практика, ничего сложного в этом нет и построить баню своими руками за сезон, вполне по силам двум людям, занявшимся этим делом впервые.
Баню из дерева с гаражом можно построить нескольких типов. Самым простым является проект бани типа бытовки, легкого, прочного и дешевого помещения на основе , обшитого снаружи и изнутри досками или вагонкой, утепленного и хорошо изолированного от влаги, с .

Такая баня может прослужить несколько лет и все равно через некоторое время придется строить новую. Поэтому предпочтительней проект многофункциональной, капитальной бани из профилированного или непрофилированного бруса.
Для нормального функционирования баня с гаражом должна быть так же хорошо утеплена, как и жилое помещение. Современные материалы, позволяют удешевить строительство за счет меньшего использования сравнительно дорогих деревянных изделий, брусков и досок.
Выбор места для бани
Конечно, выбор места под баню всегда индивидуален, но все же существуют общие рекомендации. Желательно строить баню недалеко от дома, вблизи от линий водопровода и канализации, можно рядом с гаражом. Вопреки расхожему мнению, строить баню рядом с естественным водоемом не рекомендуется, так как в период паводков конструкцию может подтопить.
Читайте также
Какую печь выбрать для бани

Для экономии средств можно соорудить баню в качестве угловой пристройки к дому.
Место для строительства бани должно располагаться в тихом месте, где нет сквозняков, можно рядом с деревьями. Как и в жилом доме по возможности широкая сторона бани должна быть, обращена в сторону юга. Рядом с баней не должен находиться водозабор (колодец или скважина), также нежелательно строить это здание слишком близко к соседнему участку.
Построить теплую, уютную баню, которая прослужит долгие годы, можно руководствуясь несложными правилами и ознакомившись с нюансами строительства. Как и в случае с велосипедом, изобрести что-то принципиально новое в деле возведения бани сложно, да и не нужно. Существует множество отработанных на практике схем бань, воспользовавшись одной из которых можно сэкономить много времени, средств и сил.

Классическим размером бани довольно часто считается деревянный сруб в 10 квадратных метров, в нем свободно поместится одновременно 2-3 человека. Вход в баню желательно располагать с южной стороны, исходя из этого нужно и составлять проект. Окна в помещениях в целях энергосбережения делают небольшими, то же самое касается и дверей. Изнутри баня должна обшиваться досками или вагонкой из лиственных пород древесины.
Для наружной обшивки, если она требуется, качество древесины не так важно, главное, чтобы она была обработана водоотталкивающими и противогрибковыми составами.
Ракушняка или шлакоблока, правильно спланированная, грамотно изолированная от пара и обшитая изнутри деревом по своим качествам ничем не отличается от бань, построенных целиком из дерева, а по долговечности многократно их превосходит.
Заливка фундамента
Для бани с гаражом обычно . Исключение составляют небольшие, легкие и мобильные бани, которые можно ставить на . Ленточный фундамент строить сложнее и дороже, но результат того стоит. Такой фундамент может выдержать и каменное здание, и баню с двумя этажами.
Траншея, в которую будет производиться заливка фундамента, роется по всему контуру здания, а также под несущими внутренними стенами, если они предполагаются. Основой ленточного фундамента служит тщательно утрамбованная песчаная подушка. Иногда для придания ему большей прочности. Если здание возводится из каменных материалов, придется это делать обязательно. Перед заливкой в траншеи закладываются трубы для , если это предусматривает проект, и подводятся другие коммуникации.
Читайте также
Планировка помывочной комнаты в бане
Возведение стен и кровли
По периметру фундамента, на гидроизоляционный слой укладывают оклад из деревянных брусков. Технология возведения деревянных стен варьируется в зависимости от типа брусков, их размеров и типа соединений.
Главное при этом не слишком плотно подгонять их друг к другу на стыках, появляющиеся промежутки следует заполнять утеплителем.
По мере возведения стен сразу вставляются дверные и оконные блоки. После монтажа сруба начинают заниматься крышей.

Как и стены, кровля строится по стандартной схеме: сначала по контуру здания монтируется основание, затем на него устанавливают стропила. Если дымоход или будет выходить не через стену, а через крышу, нужно его установить до начала монтажа обрешетки. Покрытие кровли может быть любым, здесь выбор если и имеет ограничения, то только финансовые.
Баня с хозблоком обычно возводится под одной крышей. Проект удобен в плане комфорта. Чтобы перейти из одного помещения в другое, человеку ненужно выходить под дождь или снег. Кроме хозблока, в бане по проекту выделяют место для дровника , веранды.
Проект бани с хозблоком на участке
Интерес к проектам бани с сараем под одной крышей проявляют многие владельцы частных дворов из-за универсальности постройки. Удобнее и дешевле возвести одно большое многофункциональное здание, чем несколько одиночных строений. Упрощается подвод коммуникаций. Однако к бане, совмещенной с хозблоком, предъявляют ряд серьезных требований:
- Для бани, а также хозблока обустраивают отдельные входы. Требование связано с удобством пользования, безопасностью отдыхающих.
- Если в одной постройке совмещены другие помещения, требующие автономного водоснабжения, от главного водопровода прокладывают отдельные ветки.
- Аналогичное требование касается канализации. Стоки с бани малозагрязненные, но их много. Потребуется отводить отдельную ветку в овраг или дренажный колодец. Для туалета прокладывают отдельный трубопровод, отводящий стоки в септик или выгребную яму.
- Совмещение бани, хозблока, туалета, а также других помещений образует многофункциональный комплекс. Здесь разумно подумать об общей системе отопления для обогрева всех комнат.
- Извлечь максимальную экономию средств получится, если поместить все постройки под одну крышу.
- Совмещение разных по функциональности зданий увеличивает пожароопасность. Печь, дымоход и другие объекты ограждают негорючим материалом, продумывают запасные пожарные выходы.
При возведении комплексной постройки надо сразу решить, что будет важнее. Если упор делать на баню, то для нее отводят больше места. Когда крайне необходим сарай, банный отсек уменьшают.
Проекты бань с хозблоком из кирпича
Для хозблока кирпич является лучшим материалом, а баню оптимально возводить из дерева. Однако совмещенную постройку возводят из одного материала. Проекты кирпичных комплексов основаны на заливке надежного ленточного фундамента.
Еще проекты различаются типом кирпичной кладки, которая бывает:
Для бани с хозблоком достаточно облегченной кладки. Наполнитель из теплоизоляции уменьшит теплопотери.
Совет!
Стены из сплошной кладки возводят на участке, где наблюдается сезонное движение грунта и существует угроза разрушения облегченной конструкции.
Проекты бань с хозблоком из дерева
Вариант деревянной бани с хозблоком под одной крышей считается самым удачным и бюджетным. Стены возводят из бруса или бревна. Крышу чаще проектируют односкатную из-за простоты конструкции. Если комплекс большой, то разумно приложить силы к возведению двускатной кровли. Чердачное пространство используют для хозяйственных нужд. Деревянную баню совмещают не только с хозблоком, но также оборудуют помещение под гараж, летнюю кухню.
Другие материалы для строительства бани
Хозяйственный комплекс редко является жилым. Стены можно выстроить с любого материала. Важно только обеспечить прочность конструкции, устойчивость к влаге, минимизировать потерю тепла.
Пеноблоки и газоблоки внешне похожи, отличаются только составом, характеристиками. Материал идеален для возведения хозблока. Оба вида блоков легкие, имеют большие размеры, хорошо держат тепло. Однако большим минусом является усиленное поглощение влаги, что неприемлемо для бани. При выборе пеноблоков или газоблоков, потребуется усиленная гидроизоляция стен.
Каркасное строительство набирает популярность из-за быстрого возведения зданий. Хозблок с баней получится собрать за 3 недели. Каркасное здание легкое, теплое, не требует возводить усиленный фундамент. Постройку можно собирать как конструктор даже на морозе. Минусом каркасного здания является длительное время усадки. На протяжении 2 лет баня с хозблоком осядет до 10 см. Каркасная конструкция дешевая, но расходы увеличиваются из-за обязательной необходимости внешней и внутренней отделки с прокладкой теплоизоляции.
По характеристикам керамзитобетон превосходит пеноблоки и газоблоки. Материал отлично подходит для бани с хозблоком и другими совмещенными помещениями. Керамзитобетон плохо пропускает тепло, слабо поглощает влагу, легкий, не боится открытого огня, мороза. Большие блоки ускоряют процесс возведения стен. Кладку под силу осуществлять одному человеку.
Важно!
Стены из керамзитобетона обладают нулевой усадкой.
Большим плюсом является отсутствие необходимости во внешней отделке фасада. Утеплять и облицовывать стены нужно только изнутри бани. Снаружи здание отделывают на свое усмотрение. Если с деньгами проблема, стены из керамзитобетона простоят под дождем, солнцем, морозом.
Шлакоблок очень прочный материал для стен. При производстве используется бетон и шлак – продукт сгорания твердых материалов. Блоки выпускают полнотелые и пустотелые. Шлакоблок недорогой, устойчивый к огню, морозу. Недостатком является усиленное поглощение влаги, высокая теплопроводность. Стены из шлакоблока придется утеплять, защищать гидроизоляцией внутри и снаружи. Внутренняя отделка обязательно нужна для бани. В хозблоке и других помещениях облицовку крепят на свое усмотрение.
Арболитовые блоки изготовлены из древесных опилок и бетона. Для бани и хозблока материал отлично подойдет. Блоки слабо пропускают тепло, легкие, экологически чистые, недорого стоят. От воздействия влаги стены надо защищать внутри и снаружи. Внутренняя облицовка и гидроизоляция обязательно нужна только для бани. Снаружи отделке подлежит все здание. Стены обкладывают декоративным кирпичом или обустраивают вентилируемый фасад.
Внимание!
Арболитовые блоки непрочные. Материал нельзя использовать при строительстве двухэтажных зданий.
Баня и сарай под одной крышей: фото
Баня с сараем под одной крышей: проекты
Если предусмотрено совмещение сарая, бани и других построек, то целесообразно их возводить под одной крышей. Помещения разные по функциональности. В бане присутствует влага, высокая температура, топится печь. Сарай отводят не только для хранения вещей. Внутри помещения организовывают мастерскую, где могут использоваться механизмы и сложное оборудование.
Из-за специфического назначения разных помещений в сарай и баню делают отдельный вход с улицы. Простенок между двумя помещениями ставят из негорючих материалов. Дополнительно важно позаботиться о хорошей шумоизоляции и гидроизоляции. Из сарая в баню не должны проникать запахи бензина, машинного масла и других химических веществ.
Сарай можно переоборудовать под дровяник. Здесь важно по максимуму защитить хозяйственное помещение от проникновения пара с бани. Отсыревшие дрова плохо горят, на древесине заводится грибок, постепенно расползающийся по стенам здания.
Хозблок с баней и туалетом
Одним из популярных проектов является баня, туалет и хозблок под одной крышей с пристроенной террасой. Комплекс вмещает все помещения первой необходимости, вдобавок имеется площадка для отдыха.
Сложность проекта зависит от типа туалета. Если в бане с хозблоком поставить биотуалет, отпадает необходимость прокладки дополнительной ветки канализации. Отходы будут собираться в накопительной емкости, требующей периодической очистки. Если для туалета ставить унитаз, понадобится канализация, подведенная к септику или выгребной яме. Чтобы обеспечить слив нечистот, в туалет подводят отдельную ветку водопровода.
Наличие туалета под одной кровлей с баней и хозблоком создает еще одну проблему – обустройство общего отопления. На морозе зимой вода в унитазе замерзнет, и биотуалет тоже не будет работать. Отопление должно обогревать все помещения, но максимальное тепло должно поддерживаться в парилке бани.
Проект бани с хозблоком и дровяником
Хозблок не всегда хочется занимать дровами. Внутри помещения и так мало места для хозяйственных нужд. За дровами тоже неохотно бегать по грязи под дождем. Проще усовершенствовать проект и отвести место под дровяник, но не за счет уменьшения остальных помещений. Удобнее к хозблоку с баней пристроить навес. Часть площади отводят под дровяник, а на остальном месте организовывают летний отдых.
Проект угловой бани с хозблоком
Не все участки имеют прямоугольную форму. Вдобавок на территории двора может располагаться маленький водоем, электрическая опора или другой объект, неподдающийся переносу. Обойти препятствие поможет проект угловой постройки. Однако баня с хозблоком не должна просто хаотично стоять среди двора. Угловой проект позволяет компактно расположить здание, соблюдая правила эстетики. Если во дворе есть свободный угол, то его нужно занять. При наличии свободного места, количество комнат увеличиваю за счет вытянутости здания в обе стороны от угла. Комплекс приобретает форму буквы «Г».
Баня с хозблоком и верандой
Добавление к бане и хозблоку веранды является удобным решением для владельца дачи. Под одной крышей собраны технические, жилые и помещения для отдыха. Хорошо отделанная веранда заменит жилой дом. Если на дачу приезжать только летом, в веранде можно жить. Проект комплекса сложный, требует точных расчетов. Обязательно предусматривают террасу или большой навес.
Двухэтажная баня с хозблоком
Двухэтажная постройка выгодна владельцу маленького участка. В здании размером 8Х5,4 м поместится просторная баня, комната отдыха, хозблок и жилое помещение. Все технические комнаты располагают на первом этаже. Здесь отводят место под баню, дровяник, техническое помещение, которое используют как сарай или хозблок. На первом этаже оборудуют гостиную с выходом на крыльцо.
Второй этаж полностью отводят под комнату отдыха. При желании можно обустроить жилое помещение. Санузел лучше установить на первом этаже.
Заключение
Баня с хозблоком выигрывает по многим запросам: экономия места, материалов, компактность, удобство пользования. Чтобы комплекс прослужил долгие годы, составлять проект оптимально доверять специалистам. Профессионалы помогут правильно совместить разные по функциональности помещения.
Как из сарая сделать баню?
![]()
Если есть желание построить баню, но на участке для этого сооружения недостаточно места, можно переоборудовать старый сарай. Процесс этот несложный, но кропотливый. Чтобы баня получилась комфортной, и все коммуникации работали правильно, множество нюансов необходимо учитывать еще на первом этапе планирования.

Обследование знания
Перед тем как приступать непосредственно к строительным работам, необходимо определиться с требованиями. Они заключаются в следующем:
- нужная вместимость – на сколько человек будет рассчитана баня (в случае одновременного посещения);
- комфортность условий;
- окончательный вид бани снаружи и внутри.
Чтобы определиться, нужно обследовать имеющееся здание.

Уже на этом этапе следует выяснить, какую площадь можно будет задействовать. Оптимальным вариантом является баня площадью 6 кв. метров, с парилкой 2 кв. метра.
Устраняем все дефекты
Следующий этап строительства заключается в максимальном устранении имеющихся дефектов. Так, чтобы сделать из сарая хорошую баню, необходимо подготовить пространство. Для этого всю площадь, отведенную под строительство, нужно освободить от имеющегося мусора. Также нужно избавиться от предметов и мебели, которая раньше находилась в этом помещении. Этот пункт лучше не игнорировать, чтобы потом в процессе на эти вещи уже не отвлекаться.
Если в стенах, потолке и на полу имеются какие-то погрешности, их нужно постараться устранить. Например, сгнившие доски лучше заменить на хорошие. Заделать все щели. Еще один важный момент заключается в подготовке всего необходимого. Сюда относятся не только инструменты, но и материалы, которые планируется использовать в ходе строительных работ.

Утепление стен и потолка
Когда сарай будет освобожден от мусора, а все имеющиеся дефекты устранены, можно переходить к основному процессу. И, первое, что необходимо сделать, это утеплить пол и стены будущей бани. Начинать следует именно с пола. Если он деревянный, то старые доски лучше убрать. Дно нужно хорошо забетонировать, а потом уложить на готовую поверхность структурную плитку. Очень важно, что этот материал имеет специфическую шершавую поверхность. Даже если от воды и мыла на ней появится налет, поскользнуться будет довольно сложно.
![]()
На этом же этапе следует изготовить из досок специальные решетки, которые будут укладываться на пол. При необходимости их можно будет потом снимать и ставить на место.
Стены нужно обязательно утеплить. Материал, который будет использоваться в качестве утеплителя, может быть разным. Все зависит от индивидуальных предпочтений и бюджета строительства. Наиболее дешевыми являются пенопластовые блоки. Утеплитель помещается в пространство между внешней и внутренней стенами бани. При этом внутренняя стена может быть выполнена из кирпичного камня, хозблоков или бетонного типа.
Источник:
http://www.o-vannoy.ru/banya/iz-saraya/
Как построить баню внутри сарая: пошаговый фотоотчет
Долго мечтал, и наконец, решил сделать свою собственную баню. Места под строительство было недостаточно, поэтому принял решение строить баню внутри сарая. По затратам она обошлась мне в 35 тыс. рублей (экв. 550 $). Рассказываю, как проходило строительство бани.
Подбор материалов
Вначале я определился с требованиями:
- Вместимость бани – 2 человека.
- Комфортные условия.
- Изнутри и снаружи вид бани должен быть идеальным.
Чтобы добиться выполнения пунктов 2 и 3, принялся подбирать материалы для строительства. Поиски в магазинах показали, что цены на вагонку для сауны и бани была сильно завышены.
Процесс доставки пиломатериалов для бани
Тогда я начал искать сырье и нашел нестроганые еловые доски размером 50х80, которые планировал использовать для возведения стен бани. Цена была в 3 раза дешевле аналогов в магазинах.
Также я нашел дешевую необработанную липу – доски 40х25 мм длиной 4 м. Правда, пришлось нанимать транспорт, чтобы доставить пиломатериалы ко мне домой. Но даже с учетом доставки цена древесины оказалась в 2 раза дешевле.
Подготовка пола в сарае



Сарай представлял собой бетонную конструкцию с такими же бетонными полами. Поэтому я решил застелить их плитами ОСБ.
Доработка липы
Купленную липовую доску отвез к местному мастеру, чтобы он придал им гладкую форму. Обработанные доски планирую использовать для полок в парилке.
Сборка рамы бани
Из сосновых досок 50х80 мм собрал каркасы стен. Лицевую (фасадную) стену сделал с проемом под дверь.
Утепление стен
ОБРАТИТЕ ВНИМАНИЕ! Пенопласт не подходит для утепления парной зоны, т.к. температура внутри может достигать 120 °С.
Я использовал минеральную вату толщиной 80 мм. Подбирал ее под толщину досок, из которых собрал раму.
Зашиваю утеплитель фольгой
Внутри я использовал алюминиевую фольгу (не обычную кухонную, а более прочную, строительную, которая не рвется). Для проклеивания стыков использовал алюминиевую ленту, чтобы предотвратить попадание воздуха в изоляцию.
Обшивка стен
Стены в бане покрыты вагонкой. Она была у меня изначально до начала строительства. Вагонку крепил на кляймеры, чтобы исключить контакт кожи человека с металлом (гвоздями или шурупами).
Изготовление крыши
- Рама из сосновых досок 50х80.
- Заполнение минеральной ватой.
- Теплоизоляционный слой из алюминиевой фольги.
Процесс утепления крыши
На втором фото показано выходное отверстие — воздух должен циркулировать вокруг источника тепла (печи). Поэтому, снизу под печкой я также сделаю отверстие для притока воздуха.
Проточное отверстие в районе печи
Укладка электропроводки



Электричество в моей бане используется для:
- Освещения.
- Датчика температуры и влажности.
- Отопления печи (ТЭНы).
Я купил силиконовые кабели, чтобы они выдерживали температуру более 120 °С. Прокладывал их через гофру. Снаружи кабели подключены к электрической коробке..
Печь электрическая
Изготовление двери



Двери изготавливал аналогично стенам и крыше:
- Рама — сосновые доски.
- Утеплитель – минеральная вата.
- Теплоизоляционный слой — алюминиевая фольга.
Кроме того, в дверь я установил стеклопакет – просто вклеил его на пену.
Вклеивание стекла в дверь бани
Изготовление полок



Каркас скамеек выполнен из того же дерева, что и остальная часть рамы — сосновые доски 5х8 см. Для крепления рамы к стенам использовал винты 6×110 мм
Процесс обшивки полок в бане липой
Непосредственно сами полки обшивал липой.
- Порезал доски на планки по 40 см длиной.
- Прикручивал их снизу через раму с помощью саморезов.
Чтобы предотвратить растрескивание древесины, предварительно засверливал отверстия сверлом.
Установка электрической печи
Для своей бани приобрел электрическую каменку мощностью 9 кВт. Также купил в местном магазине камни для нее — талькхорид. Они выдерживают воздействие воды и высокой температуры и не трескаются.
Рекомендуется, чтобы на каждый 1–1,25 м 3 воздуха приходилась 1 кВт мощности.
Финальный результат
Баней пользуемся больше года. В зимний период посещаем ее 2 раза в неделю. В другие времена года ходим париться гораздо реже.
В процессе строительства бани допустил одну грубую ошибку — не поставил экран между стеной и печью. В результате вагонка в этом месте потрескалась от нагрева.
Источник:
http://beaver-news.ru/sdelaj-sam/kak-postroit-banyu-vnutri-saraya-poshagovyj-fotootchet/
Как построить баню из сарая своими руками
Если вы счастливый обладатель дачи или частного дома с небольшим участком, то вы можете в старом сарае обустроить баню. Она подарит всему семейству крепкое здоровье и прекрасное расслабление после тяжёлого трудового дня. Также, если возникнет потребность и желание, вы сможете и неплохо подзаработать, установив почасовую оплату и пускать туда попариться соседей, знакомых и других людей.
Оборудовать под парную мы будем старый сарай, которым не пользуемся, с полом из бетона. Сарай может быть построен из дерева, кирпича, пеноблока или ракушника.
Под парилку мы отведем немалую площадь сарая, примерно 6 кв. м, это будет небольшая парная, при расчётах учитывайте то, что на одного посетителя должно приходиться минимум 2 кв. м. Если у вас небольшая семья, то 6 кв. м вам вполне будет достаточно, но если вы планируете в дальнейшем зарабатывать с помощью парной, то площадь, соответственно, понадобится больше.

Не забываем заранее распланировать расположение и количество полок, и определить наиболее выгодное место для печи, от планировки зависит удобство пребывания в вашей бане из старого сарая, которую вы сделаете своими руками.
Пол в бане
На пол из бетона в сарае стоит уложить структурную плитку, поверхность такой плитки немного шершавая, как бы немного абразивная. И на такой плитке практически невозможно поскользнуться. Также стоит изготовить из досок решетки, которые уложим поверх плитки для комфортного передвижения по бане, ведь дерево не нагревается так, как плитка, и не будет жечь ступни при ходьбе.

Обязательно взвесьте все за и против, и решите, стоит ли делать сток для воды в полу. Если вы захотите попариться с парком, то вашу баню из сарая, сделанную своими руками, придётся хорошенько протереть сухой тряпочкой и проветрить.
Материалы для парной
Рекомендуем делать баню из осиновых досок, толщина которых не меньше 6 см, и еловых брусьев. Дерево стоит выбирать сухое, ведь сухая древесина лучше сохраняет форму и намного долговечнее сырого дерева.
Каркас нашей бани сооружаем из брусьев, это совсем не сложная робота, тяжело потом каркас прикреплять к полу. Но это возможно осуществить, приложив небольшое усилие. Крепеж осуществим, просверлив в полу и брусьях совмещенные отверстия, в которые вставим длинные шурупы, и не забываем уложить гидроизоляцию между полом и брусьями.

Очень важно на стены установить паро- и гидроизоляционные плиты, которые стоит обшить досками. Для этих работ лучше использовать доски из осины, предварительно сделав в досках пазы вдоль, которые послужат для лучшего сцепления досок между собой.
При забивании гвоздей их стоит вгонять как можно глубже в древесину, потому что в парилке высокая температура, и можно обжечься, прикоснувшись к раскалённой головке железного гвоздя.
Потолок в бане из сарая монтируем своими руками из тех досок, которыми обшиты стены. Но для этого их распиливаем пополам, и получаем 2, по 3 см. Крепим их сразу к каркасу бани.
Полки для лежания
Полки–лежанки стоит мастерить широкими, ширина их должна быть примерно 70 см. Стоит очень качественно обработать поверхность каждой лежанки, чтобы не травмироваться и не вогнать занозы в кожу.
Установка печи и вентиляции
Печь стоит размещать возле дверей, на кирпичи–огнеупоры. Также кирпич укладываем в пространство между печкой и стенкой, трубу выводим на улицу. Позаботьтесь, о том, чтобы печку оградить деревянными конструкциями и не обжечься.
Минимизируем утраты тепла через двери
Для того, чтобы через двери терялось как можно меньше тепла, делаем ее узкой, 50-60 см, крепим к ней уплотнительную резинку. Ручки у двери должны быть из дерева.
Проводим электричество в баню
Для освещения вашей бани понадобятся специальный кабель с двойной изоляцией и светильник, стойкий к высоким температурам. Выключатель должен быть не обычный, а влагостойкий, располагаться он должен у входа в парилку, как того требуют правила пожарной безопасности. 
Проводку стоит углубить в стены, чтобы не мешал кабель, да и смотреться баня тогда лучше, аккуратнее.
- все доски, которые используются при обшивке бани, обязательно должны быть из лиственных пород деревьев;
- не экономьте на материалах для проводки, кабеле, светильниках, выключателях и розетках. Покупайте качественные и влагостойкие, ведь от этого зависят жизнь и здоровье вашей семьи и гостей, которые будут посещать вашу парилку;
- светильники должны быть с жаростойким стеклом, так как температура в бане иногда поднимается выше 100 °C;
- многие любят после жаркой баньки окунуться в прохладный бассейн. Но если вам не по карману такая роскошь, соорудите маленький прудик во дворе, или поставьте емкости с прохладной водой, например, бочки, в которые вы сможете с удовольствием окунуться после тёплых и приятных банных процедур.
А в зимний период водные процедуры можно заменить снеговым обтиранием:
- обязательно следите за тем, чтобы вода в бочках, бассейне или пруде не застаивалась. Проводите дезинфекцию в емкостях с водой. Особенно если у вас парятся другие люди;
- со временем вы сможете баню расширить, пристроить комнату для отдыха, и использовать ее и для заработка. Ведь это хорошая идея для бизнеса.
Теперь вы знаете, как сделать баню из сарая своими руками, это не такая уж и сложная задача. Парясь в бане, вы получаете уйму положительных эмоций, при этом серьезно укрепляете состояние своего здоровья.

Да, сооружение бани, достаточно трудоемкий процесс, и если вы доведете начатое дело до конца, вы и ваша семья будете счастливы, и если подойдете к этому делу с выдумкой, подключите смекалку и фантазию, сможете неплохо подзаработать.
Источник:
http://banyabest.ru/vidy-i-tipy-ban/kak-postroit-banyu-iz-saraya-svoimi-rukami.html
Переделка сарая в баню
Мне очень хотелось сделать баню.
На юге сруб встретишь редко.
Во дворе был сарай из блоков с протекающей крышей. Размер небольшой. Добавили к нему навес.
Сделала расчеты. Изучила вентиляцию. Муж сварил печь, помогал там, где не могла справиться сама. В предбаннике теплый пол от печи.
Баня сделана полностью своими руками. Я люблю все делать своими руками, в том числе и строить или переделывать из старого новое.
Три года уже прошло и все довольны, как она топится, как прогревается. Нет плесени, отличная вентиляция.
Есть всё, чтобы попариться, помыться, попить чай с травами.
















Баню хотела я. Я и начала делать. Дома никто эту идею сначала не поддержал. Потом стали помогать.
Мило все. С южным колоритом! Вы молодец!
С нотками прованса, я бы сказал.
Не слушайте не кого.
Вышло все просто ох. но с южной изюминкой и колоритом.
а по отделке не видно?)
Возьмите в напарники, пусть она за нас двоих выходит )
Тёплый пол как сделали? И про вентиляцию подробнее, если можно
Теплый пол. Внутрь печи вставлен медный радиатор с газовой колонки. Снаружи в предбаннике расширительный бачок, куда заливается незамерзайка. Под плиткой в бетон залиты трубы, как обычно делают теплый пол, по которым при помощи насоса циркулирует жидкость.
Вентиляция. В парной четыре отверстия: два вверху, два внизу в противоположных стенах. Отверстия выходят в предбанник, затыкаются деревянными пробками.
В предбаннике два отверстия вверху выходят наружу. Закрываются, открываются. Одно вверху — принудительная вентиляция. Включается, когда надо. Приточная вентиляция, если надо — это входная дверь.
По решению теплого пола — 5 баллов!
Не перегревается? Какая, примерно, температура пола после протопки?
Комфортная ходить босиком. Не перегревается. Коврики от мокрых ног высыхают хорошо.
Здорово! Я был в плену стереотипов, что «теплый пол — низкотемпературный источник обогрева» и от печи его делать нельзя. Т.к. температура теплоносителя не должна превышать 30 градусов.
А у вас получается, что баня топится не каждый день и все «лишнее» тепло забирает стяжка. Круть!
Ну, в конце концов можно собрать перед насосом простой смесительный узел из регулятора для батареи, и грубо отрегулировать систему
Не знаю как у девушки, но из своего опыта могу сказать, что такой пол не прогревается нифига, вернее не успевает. У обычных теплых полов даже в паспорте написано, что время прогрева 24 часа. Поэтому, если затопить баньку и зайти через пару часов, то полы ещё будут холодными. Мы лично переделали под теплые полы от отопления, но это конечно же относится к отапливаемой бане, а не отдельно стоящей.
Вы не поверите, но пол прогревается. Не такое уж большое пространство циркулировать жидкости, которая нагревается в самой печи.
Возможно, трубы неглубоко в стяжку утоплены?
Ну, или по-другому: 24 часа в паспорте полов рассчитаны на t 30°, а от печи идет все 90°, наверное.
@polivinograd, можешь пояснить, товарищ выше сомневается.
Конечно, в печи температура высокая. Стяжка над трубами 2см. Сверху плитка. Чем ближе друг к другу петли трубы, тем быстрее прогревается.
Все делали сами. Готовый «Теплый пол» не покупали.
А трубы какие в стяжку клали:сшитый пэ или металлопласт?
Источник:
http://pikabu.ru/story/peredelka_saraya_v_banyu_6261848
Строим баню: что можно сделать из старого дома, сарая, бани
Баня из старого дома
Многие любители попариться в старой бревенчатой бане приобретают жилые дома из бревна и бруса, выполняют ремонт здания, утепляют и перепланируют помещение под парилку и моечное отделение.
Прежде всего, нужен грамотный вариант ремонта строения. Например, большинство проектов, планирующих переделать избу под дом-баню, ориентированы на использование всего жилого пространства. Соответственно, баня получается очень большой, потребляющей слишком много топлива.
Под парилку мы отведем немалую площадь сарая, примерно 6 кв. м, это будет небольшая парная, при расчётах учитывайте то, что на одного посетителя должно приходиться минимум 2 кв. м. Если у вас небольшая семья, то 6 кв. м вам вполне будет достаточно, но если вы планируете в дальнейшем зарабатывать с помощью парной, то площадь, соответственно, понадобится больше.

Не забываем заранее распланировать расположение и количество полок, и определить наиболее выгодное место для печи, от планировки зависит удобство пребывания в вашей бане из старого сарая, которую вы сделаете своими руками.
Пол в бане
На пол из бетона в сарае стоит уложить структурную плитку, поверхность такой плитки немного шершавая, как бы немного абразивная. И на такой плитке практически невозможно поскользнуться. Также стоит изготовить из досок решетки, которые уложим поверх плитки для комфортного передвижения по бане, ведь дерево не нагревается так, как плитка, и не будет жечь ступни при ходьбе.

Обязательно взвесьте все за и против, и решите, стоит ли делать сток для воды в полу. Если вы захотите попариться с парком, то вашу баню из сарая, сделанную своими руками, придётся хорошенько протереть сухой тряпочкой и проветрить.
Материалы для парной
Рекомендуем делать баню из осиновых досок, толщина которых не меньше 6 см, и еловых брусьев. Дерево стоит выбирать сухое, ведь сухая древесина лучше сохраняет форму и намного долговечнее сырого дерева.
Каркас нашей бани сооружаем из брусьев, это совсем не сложная робота, тяжело потом каркас прикреплять к полу. Но это возможно осуществить, приложив небольшое усилие. Крепеж осуществим, просверлив в полу и брусьях совмещенные отверстия, в которые вставим длинные шурупы, и не забываем уложить гидроизоляцию между полом и брусьями.

Очень важно на стены установить паро- и гидроизоляционные плиты, которые стоит обшить досками. Для этих работ лучше использовать доски из осины, предварительно сделав в досках пазы вдоль, которые послужат для лучшего сцепления досок между собой.
При забивании гвоздей их стоит вгонять как можно глубже в древесину, потому что в парилке высокая температура, и можно обжечься, прикоснувшись к раскалённой головке железного гвоздя.
Потолок в бане из сарая монтируем своими руками из тех досок, которыми обшиты стены. Но для этого их распиливаем пополам, и получаем 2, по 3 см. Крепим их сразу к каркасу бани.
Полки для лежания
Полки–лежанки стоит мастерить широкими, ширина их должна быть примерно 70 см. Стоит очень качественно обработать поверхность каждой лежанки, чтобы не травмироваться и не вогнать занозы в кожу.
Установка печи и вентиляции
Печь стоит размещать возле дверей, на кирпичи–огнеупоры. Также кирпич укладываем в пространство между печкой и стенкой, трубу выводим на улицу. Позаботьтесь, о том, чтобы печку оградить деревянными конструкциями и не обжечься.
Канализация
Самым сложным оказалась именно она, поэтому расскажу отдельно. Никак не получалось подвести водоотвод к существующему септику. Деревянному срубу ничего кроме канавки вокруг не требуется, а тут кирпич. После долгих раздумий решил сделать отдельный септик из покрышек Камаза с отстойником и фильтром, то есть система из двух септиков. На коллекционирование ушел примерно год. Связывался с разными дальнобойщиками, покупал резину б/у. Под все это дело выкопали яму глубиной примерно 2,5 метра. Такой септик вполне подойдет для бани без туалета. Еще копал траншею под водопровод. В общем, копать пришлось много. Горячую воду подводить не рискнул, выбрал вариант с водонагревателем.
Проводим электричество в баню
Для освещения вашей бани понадобятся специальный кабель с двойной изоляцией и светильник, стойкий к высоким температурам. Выключатель должен быть не обычный, а влагостойкий, располагаться он должен у входа в парилку, как того требуют правила пожарной безопасности. 
Проводку стоит углубить в стены, чтобы не мешал кабель, да и смотреться баня тогда лучше, аккуратнее.
- все доски, которые используются при обшивке бани, обязательно должны быть из лиственных пород деревьев;
- не экономьте на материалах для проводки, кабеле, светильниках, выключателях и розетках. Покупайте качественные и влагостойкие, ведь от этого зависят жизнь и здоровье вашей семьи и гостей, которые будут посещать вашу парилку;
- светильники должны быть с жаростойким стеклом, так как температура в бане иногда поднимается выше 100 °C;
- многие любят после жаркой баньки окунуться в прохладный бассейн. Но если вам не по карману такая роскошь, соорудите маленький прудик во дворе, или поставьте емкости с прохладной водой, например, бочки, в которые вы сможете с удовольствием окунуться после тёплых и приятных банных процедур.
А в зимний период водные процедуры можно заменить снеговым обтиранием:
- обязательно следите за тем, чтобы вода в бочках, бассейне или пруде не застаивалась. Проводите дезинфекцию в емкостях с водой. Особенно если у вас парятся другие люди;
- со временем вы сможете баню расширить, пристроить комнату для отдыха, и использовать ее и для заработка. Ведь это хорошая идея для бизнеса.
Баня из маленькой избушки
Более разумным подходом считается реконструкция помещения жилого дома с выделением в пределах одной постройки помещения бани с парилкой и небольшой зоны отдыха, фото.

Часть крыши и фасада здания после ремонта была превращена в подобие веранды. Использование стеклянной вставки обеспечило зону отдыха естественным освещением. Старую коробку бани в ходе реконструкции подняли на сваи, а цокольную часть здания, стены и фасад зашили сосновой доской.

Очень неплохую баню можно сделать из старого бревенчатого здания, при условии, что коробка строения не имеет повреждений венцов более чем на 10-15% поверхности.

Небольшой косметический ремонт стен, перекладка фундамента со столбчатого на кирпичный ленточный вариант обеспечит хорошее сохранение тепла даже в сильные морозы.
Нередко старый домик — избушку приобретают целенаправленно для использования бревенчатой коробки здания в качестве основы для постройки полноценной бани.
В этом случае здание разбирают, перевозят на новый фундамент, выполняют капитальный ремонт и даже достраивают второй этаж мансарды. Преимущества подобного решения налицо:
- Деревянный сруб под баню без ремонта можно приобрести буквально за копейки, тем более что большинство хозяев не прочь избавиться от загромождающих двор старых конструкций;
- Коробка бани давно прошла усадку, поэтому нет необходимости ждать год-полтора до проведения окончательного ремонта помещения;
- Деревянная коробка, что называется, прошла проверку временем, самые слабые участки древесины будут вырезаны и заменены на свежий брус или бревно.
Предполагается, что после такого ремонта деревянная баня простоит еще не менее двадцати лет без дополнительных затрат на ее содержание.
Установка печи и вентиляции
Под печь в бане выкладывают площадку из огнеупорного кирпича. Дымоход выводят через крышу. Саму печь выкладывают кирпичную или ставят металлическую буржуйку. В любой конструкции организовывают место для нагрева камней и воды.

Топку печи располагают в раздевалке бани, а остальную часть внутри парилки. Для вентиляции в противоположных стенах вырезают продухи. Нижнее окошко для забора воздуха возвышается 500 мм от пола, верхнее вытяжное – 2 м от пола.
Баня внутри дома
Разумеется, не обязательно делать капитальный ремонт и перестройку большого старого дома, чтобы оборудовать небольшую баньку с парилкой. Ситуация, когда баня строится внутри жилого дома, деревянного или каменного, неважно, становится все более распространенной.

Для оборудования бани в старом доме потребуются лишь средства для ремонта утеплителя стен и переделки. Если здание слишком старое, то лучше всего сразу отремонтировать и фундамент, так как с оборудованием парилки нагрузки на основание только увеличатся.

Остальное помещение можно использовать в качестве жилых комнат или переоборудовать в веранду или зимний сад.
Ремонт бани своими руками
Рано или поздно, любое капитальное строение, как качественно оно не было бы сделано, придется ремонтировать. Баня, сделанная из дерева, наиболее подвержена старению и гниению материалов, так как эксплуатируется в условиях повышенной влажности. Ремонт бани своими руками, задача не из легких, но посильна каждому из нас. Ремонт может быть как капитальным так и косметическим и от того какой конкретно необходим данному помещению, определяют по нескольким причинам.
Строить новую или реставрировать старую
Проводить в бане ремонт имеет смысл лишь в двух случаях:
- Коробка здания, стены, полы, фундамент находятся в хорошем или удовлетворительном состоянии, есть лишь отдельные участки повреждений, в том числе венцов, элементов фундамента и крыши;
- Деревянная баня, несмотря на потрепанный вид, обладает отличной парилкой, обеспечивает прекрасный пар и непередаваемую атмосферу внутри помещения. Зачастую такие бани строили настоящие мастера много десятков лет назад, и избавляться от них просто не имеет смысла.
Первоклассную деревянную баню с удачно подобранными размерами парилки, теплоизоляции, умело построенной печкой и системой вентиляции построить крайне сложно. Значительно проще выполнить реставрацию бани, с заменой старых и сгнивших деревянных деталей.

В такой ситуации мастера на вопрос, что можно сделать из старой бани, отвечают, не задумываясь. Лучше всего оборудовать новую баньку с классной парилкой. Понятно, что существуют ситуации, когда ремонт невозможен. Строение приходится просто сжигать, например, при заражении древесины грибком или синей гнилью после 20 лет простоя без дела.
Как из старой бани сделать новую
Если во дворе стоит старая баня, реставрацию сделать проще, чем возвести новое здание. Капитальный ремонт предусматривает замену всех испорченных элементов.
Реконструкция старой бани

Начинают ремонт старой бани своими руками с проведения тщательной ревизии. Осмотру подвергают следующие элементы здания:
- На стенах проверяют состояние обшивки, пароизоляции, утеплителя. Местами участки придется раскрыть, чтобы добраться до венцов и оценить их состояние. Тщательно проверяют низ и угловые соединения.
- Сгнивший нижний венец бани свидетельствует о проблемах фундамента. Основание осматривают на наличие гидроизоляции. Если во время ревизии выявлены большие трещины, проседание или разрушение фундамента, старую баню придется разбирать и возводить заново.
- Состояние потолка бани оценивают по облицовке, паро- и теплоизоляции. Одновременно осматривают крышу, кровельное покрытие, состояние дымоходного канала.
- Двери и окна проверяют на отсутствие щелей. Деревянные рамы деформируются от перепада температур и влажности.
- Финальному осмотру подвергают пол. Пытаются добраться до слива, проверяют работоспособность канализации.
По результатам проведенной ревизии составляют план ремонта бани, неиспользовавшейся по назначению долгое время.
К ремонту бани приступают, если само здание находится в удовлетворительном состоянии. Реставрации подлежат следующие элементы:
- Стены. Сначала избавляются от трещин. Со старым утеплителем будут большие потери тепла. После реставрации стену покрывают новой теплоизоляцией.
- Окна и двери. В бане от пара и перепада температур страдают рамы. Реставрация деформированной конструкции невозможна. Во всех комнатах бани разумнее поставить пластиковые окна и двери. Вариант не подойдет только для парной. Из-за высокой температуры здесь ставят новое деревянное окно и дверь.
- Внутренняя отделка. Под этот пункт ремонта попадает облицовка, паро- и теплоизоляция стен, потолка. В агрессивной среде парилки материалы со временем пропадают и подлежат полной замене. Внутри других комнат отделка служит дольше. Здесь вероятен вариант ремонта. Заменяют поврежденные элементы облицовки, добавляют утеплитель, крепят новую пароизоляцию.
- Пол. В предбаннике, моечной комнате часто выкладывают полы плиткой. Покрытие не повреждается от влаги. Плитка может лопнуть от удара тяжелым предметом. Поврежденный элемент покрытия подлежит замене. Деревянный настил парилки поддается ремонту. Сгнившие доски выбрасывают, а хорошие – зачищают, просушивают, обрабатывают антисептиком и повторно используют.
- Канализация. Во время ремонта пола прочищают слив от скопившейся грязи.
Финалом реставрации старой бани является обработка всех деревянных элементов защитными пропитками.
О подробностях реставрации внутренней отделки бани отображает видео:
Источник:
http://stroimdom44.ru/stroim-banyu-chto-mozhno-sdelat-iz-starogo-doma-saraya-bani/
Хочу переделать кирпичный сарай на баню, какие теплоизолирующие материалы и в какой очередности необходимо делать между кирпичом и вагонкой?




Mucek4 с сайта instructables.com поделился своим опытом постройки бани внутри сарая Долго мечтал, и наконец, решил сделать свою собственную баню. Места под строительство было недостаточно, поэтому принял решение строить баню внутри сарая. По затратам она обошлась мне в 35 тыс. рублей (экв. 550 $). Рассказываю, как проходило строительство бани.
Подбор материалов
Вначале я определился с требованиями:
- Вместимость бани – 2 человека.
- Комфортные условия.
- Изнутри и снаружи вид бани должен быть идеальным.
Чтобы добиться выполнения пунктов 2 и 3, принялся подбирать материалы для строительства. Поиски в магазинах показали, что цены на вагонку для сауны и бани была сильно завышены.

Процесс доставки пиломатериалов для бани
Тогда я начал искать сырье и нашел нестроганые еловые доски размером 50х80, которые планировал использовать для возведения стен бани. Цена была в 3 раза дешевле аналогов в магазинах.
Также я нашел дешевую необработанную липу – доски 40х25 мм длиной 4 м. Правда, пришлось нанимать транспорт, чтобы доставить пиломатериалы ко мне домой. Но даже с учетом доставки цена древесины оказалась в 2 раза дешевле.











Важное дополнение
Пользование сауной, как известно, подразумевает не только нагрев сухим паром, но и охлаждение водой. Водоема возле дачи нет. поэтому в 8 м от сауны пришлось сделать мини-прудик, в который и окунаемся после парилки. В теплое время года слежу за тем, чтобы вода в нем не застаивалась. На зиму выкачиваю воду – пруд все равно промерзнет до дна. В этот период «водные процедуры» заменяем снежными.
© Михаил МИХАЛЬЧЕНКО, Республика Карелия
ИНСТРУМЕНТ ДЛЯ МАСТЕРОВ И МАСТЕРИЦ, И ТОВАРЫ ДЛЯ ДОМА ОЧЕНЬ ДЕШЕВО. БЕСПЛАТНАЯ ДОСТАВКА. ЕСТЬ ОТЗЫВЫ.
Ниже другие записи по теме «Как сделать своими руками — домохозяину!»
- Прочный пол своими руками – проверенный способ Как сделать прочный пол из…
- Мини – сауна в квартире своими руками Как сделать сауну в обычной…
- Песочница на даче своими руками Взрослое решение детского вопроса -…
- Пристеночный парник возле теплицы своими руками Пристенный парник на основе высокой…
- Дачный туалет своими руками (фото + чертежи) Как построить туалет на даче…
- Снежная лопата своими руками Снежная лопата своими руками Как-то за…
- Песочница-трансформер своими руками (чертежи) Как сделать закрывающуюся песочницу на…
Подпишитесь на обновления в наших группах и поделитесь.
Будем друзьями!
Своими руками › Баня › Переделка помещения под сауну ли баню
Подготовка пола в сарае



Сарай представлял собой бетонную конструкцию с такими же бетонными полами. Поэтому я решил застелить их плитами ОСБ.
Утепление стен

Как только рамы были установлены, пришло время для утепления
ОБРАТИТЕ ВНИМАНИЕ! Пенопласт не подходит для утепления парной зоны, т.к. температура внутри может достигать 120 °С.
Я использовал минеральную вату толщиной 80 мм. Подбирал ее под толщину досок, из которых собрал раму.

Зашиваю утеплитель фольгой
Внутри я использовал алюминиевую фольгу (не обычную кухонную, а более прочную, строительную, которая не рвется). Для проклеивания стыков использовал алюминиевую ленту, чтобы предотвратить попадание воздуха в изоляцию.
Баня из подручных средств
Дмитрий Новиков на канале «FORUMHOUSE» говорит, что после покупки дома и частичного утепления одной комнаты, чтобы могли зимовать, встал вопрос о том, как мыться. У него на участке летний душ, который построили. Нашел простейший дешевый вариант. Люди ездили в туристические походы, просто брали, кирпичи в кучу собирали, разжигали костер и после того, как кирпичи нагрелись, выставляли обычную полиэтиленовую пленку-палатку и грелись, парились. На основании этого, решил попробовать душ укутать в пленку, поставить бойлер, чтобы вода могла нагреваться. И так из подручных средств получилась неплохая баня.
Источник:
http://yzad.ru/dom/banya-i-saraj-pod-odnoj-kryshej.html
![]()
Дачный домик из досок
![]()
Хозблок из булыжника
![]()
Переделка сарая
![]()
Пристройка к сараю
![]()
Старый сарай на даче
![]()
Переделка сарая
![]()
Хозблок из камня
![]()
Маленький хозблок у забора
![]()
Сарай из бруса 150х150
![]()
Отделка сарая
![]()
Норвежские дома из дерева
![]()
Баня из старого сарая
![]()
Сарайки из блок Хаус фото
![]()
Баня из морского контейнера
![]()
![]()
Баня полуземлянка
![]()
Хозблок из паллетов
![]()
Переделка сарая
![]()
Старый сарай на даче
![]()
Построй баню
![]()
Глиночурка сарай
![]()
Сарай с металлочерепицей
![]()
Баня с беседкой
![]()
Дом в стиле Лисья Нора
![]()
Утепленная кухня-хозблок
![]()
Хозяйственные постройки
![]()
Парилка из сарая
![]()
Бытовка из европоддонов
![]()
Сарай бытовка своими руками
![]()
Интерьер сарая
![]()
Сарай из подручных средств
![]()
Баня во дворе
![]()
Сарай на даче из досок
![]()
Отделка сарая
![]()
Баня из сарая
![]()
Баня с сараем
![]()
Плоская крыша для хозблока
![]()
Бани реставрированные
![]()
Сарай из горбыля и рубероида
![]()
Дровяник теплица
![]()
Старый сарай переделать
![]()
Пристройка к бане каркасная
![]()
Бригада для строительства хозблока
![]()
Сарайчик для инвентаря из горбыля
![]()
Баня из шпал
![]()
Баня из кирпичного сарая
Если вы счастливый обладатель дачи или частного дома с небольшим участком, то вы можете в старом сарае обустроить баню. Она подарит всему семейству крепкое здоровье и прекрасное расслабление после тяжёлого трудового дня. Также, если возникнет потребность и желание, вы сможете и неплохо подзаработать, установив почасовую оплату и пускать туда попариться соседей, знакомых и других людей.
Оборудовать под парную мы будем старый сарай, которым не пользуемся, с полом из бетона. Сарай может быть построен из дерева, кирпича, пеноблока или ракушника.
Планируем
Под парилку мы отведем немалую площадь сарая, примерно 6 кв. м, это будет небольшая парная, при расчётах учитывайте то, что на одного посетителя должно приходиться минимум 2 кв. м. Если у вас небольшая семья, то 6 кв. м вам вполне будет достаточно, но если вы планируете в дальнейшем зарабатывать с помощью парной, то площадь, соответственно, понадобится больше.

Не забываем заранее распланировать расположение и количество полок, и определить наиболее выгодное место для печи, от планировки зависит удобство пребывания в вашей бане из старого сарая, которую вы сделаете своими руками.
Пол в бане
На пол из бетона в сарае стоит уложить структурную плитку, поверхность такой плитки немного шершавая, как бы немного абразивная. И на такой плитке практически невозможно поскользнуться. Также стоит изготовить из досок решетки, которые уложим поверх плитки для комфортного передвижения по бане, ведь дерево не нагревается так, как плитка, и не будет жечь ступни при ходьбе.

Обязательно взвесьте все за и против, и решите, стоит ли делать сток для воды в полу. Если вы захотите попариться с парком, то вашу баню из сарая, сделанную своими руками, придётся хорошенько протереть сухой тряпочкой и проветрить.
Материалы для парной
Рекомендуем делать баню из осиновых досок, толщина которых не меньше 6 см, и еловых брусьев. Дерево стоит выбирать сухое, ведь сухая древесина лучше сохраняет форму и намного долговечнее сырого дерева.
Каркас нашей бани сооружаем из брусьев, это совсем не сложная робота, тяжело потом каркас прикреплять к полу. Но это возможно осуществить, приложив небольшое усилие. Крепеж осуществим, просверлив в полу и брусьях совмещенные отверстия, в которые вставим длинные шурупы, и не забываем уложить гидроизоляцию между полом и брусьями.

Очень важно на стены установить паро- и гидроизоляционные плиты, которые стоит обшить досками. Для этих работ лучше использовать доски из осины, предварительно сделав в досках пазы вдоль, которые послужат для лучшего сцепления досок между собой.
При забивании гвоздей их стоит вгонять как можно глубже в древесину, потому что в парилке высокая температура, и можно обжечься, прикоснувшись к раскалённой головке железного гвоздя.
Потолок
Потолок в бане из сарая монтируем своими руками из тех досок, которыми обшиты стены. Но для этого их распиливаем пополам, и получаем 2, по 3 см. Крепим их сразу к каркасу бани.
Полки для лежания
Полки–лежанки стоит мастерить широкими, ширина их должна быть примерно 70 см. Стоит очень качественно обработать поверхность каждой лежанки, чтобы не травмироваться и не вогнать занозы в кожу.
Установка печи и вентиляции
Печь стоит размещать возле дверей, на кирпичи–огнеупоры. Также кирпич укладываем в пространство между печкой и стенкой, трубу выводим на улицу. Позаботьтесь, о том, чтобы печку оградить деревянными конструкциями и не обжечься.
Минимизируем утраты тепла через двери
Для того, чтобы через двери терялось как можно меньше тепла, делаем ее узкой, 50-60 см, крепим к ней уплотнительную резинку. Ручки у двери должны быть из дерева.
Проводим электричество в баню
Для освещения вашей бани понадобятся специальный кабель с двойной изоляцией и светильник, стойкий к высоким температурам. Выключатель должен быть не обычный, а влагостойкий, располагаться он должен у входа в парилку, как того требуют правила пожарной безопасности.
Проводку стоит углубить в стены, чтобы не мешал кабель, да и смотреться баня тогда лучше, аккуратнее.
Дополнения:
- все доски, которые используются при обшивке бани, обязательно должны быть из лиственных пород деревьев;
- не экономьте на материалах для проводки, кабеле, светильниках, выключателях и розетках. Покупайте качественные и влагостойкие, ведь от этого зависят жизнь и здоровье вашей семьи и гостей, которые будут посещать вашу парилку;
- светильники должны быть с жаростойким стеклом, так как температура в бане иногда поднимается выше 100 °C;
- многие любят после жаркой баньки окунуться в прохладный бассейн. Но если вам не по карману такая роскошь, соорудите маленький прудик во дворе, или поставьте емкости с прохладной водой, например, бочки, в которые вы сможете с удовольствием окунуться после тёплых и приятных банных процедур.
А в зимний период водные процедуры можно заменить снеговым обтиранием:
- обязательно следите за тем, чтобы вода в бочках, бассейне или пруде не застаивалась. Проводите дезинфекцию в емкостях с водой. Особенно если у вас парятся другие люди;
- со временем вы сможете баню расширить, пристроить комнату для отдыха, и использовать ее и для заработка. Ведь это хорошая идея для бизнеса.
Выводы
Теперь вы знаете, как сделать баню из сарая своими руками, это не такая уж и сложная задача. Парясь в бане, вы получаете уйму положительных эмоций, при этом серьезно укрепляете состояние своего здоровья.

Да, сооружение бани, достаточно трудоемкий процесс, и если вы доведете начатое дело до конца, вы и ваша семья будете счастливы, и если подойдете к этому делу с выдумкой, подключите смекалку и фантазию, сможете неплохо подзаработать.















































































