Для сооружения дачных домов, строительных офисов и бытовок используются стандартные ISO-контейнеры типа Dry Container длиной 40 футов или 20 футов. Такая постройка подойдёт для временного проживания или для отдыха на садовом участке в выходные дни, штабного офиса на строительной площадке, строительной бытовки для рабочих и обслуживающего персонала. Возведение домов из контейнеров имеет немало преимуществ, главное доступная и низкая цена, надежные и крепкие стены, возможность использовать зимой и летом, установка без затратного фундамента и другие. Компания «ContMaster» предлагает воспользоваться скидкой и купить , условия можно посмотреть пройдя по ссылке, и переоборудовать его под ваши потребности, после монтажных работ мы доставим готовое оборудование на место указанное в заявке.
Контейнеры по жилье — быстро и комфортно
Простой дачный домик можно соорудить из одного 40-футового контейнера, утеплив его внутри для эксплуатации в холодное время года. Внутренние размеры стандартного 40-футового контейнера составляют 12,03 м в длину и 2,35 м в ширину. Исходя из этих данных, жилая площадь будущей постройки составит примерно 28,3 квадратных метра. Отличная замена стандартной однокомнатной квартире, учитывая, что стоимость нового контейнера 40 футов составляет всего 150 – 200 тыс. рублей!
Дом, состоящий из одного контейнера, можно устанавливать как на фундаментную плиту, так и непосредственно на твёрдый грунт. Если температура воздуха в Вашем регионе опускается ниже 0 0 C, одного обогревателя зимой будет недостаточно. Для эксплуатации в холодные сезоны контейнер необходимо утеплить изнутри. Для этой задачи лучше всего использовать вспенённый пенополистирол или минеральную вату – толщина теплоизоляционного слоя должна составлять не менее 12 см.
Монтаж тепла — качественно и недорого
Многие дачники и садоводы задаются вопросом: как правильнее утеплять дома из контейнеров – снаружи или внутри? С одной стороны, утепление снаружи никак не отразится на внутренней площади дома, что является важным преимуществом, но с другой стороны — это может негативно отразиться на микроклимате помещения зимой. Как рекомендуют утеплять контейнеры наши строители, чтобы при отоплении исключить образование росы на внутренних стенках можно подробно прочитать здесь пройдя в раздел услуги по ремонту и монтажу . При таком утеплении тепло, выделяемое от обогревательного прибора, идёт сразу на обогрев внутреннего объёма – дом прогреется мгновенно, даже если Вы не были в нём целую неделю. В этом случае контейнер можно сравнить с термосом – он аккумулирует тепло внутри и не даёт ему быстро выйти за пределы домика. Утеплять же сталь снаружи нецелесообразно – металл прекрасно выдерживает зимние температуры в 30 и более градусов.
Крутые проекты домов из контейнеров
Дом из морских контейнеров – выгодная альтернатива постройке из кирпича или твинблока. Такие дома быстро и легко устанавливаются, их можно строить без фундамента, что также снижает финансовые затраты. Морские контейнеры бывают различных размеров и вместимости, что даёт возможность создавать сложные двух- и даже трёхэтажные здания, отвечающие требованиям надёжности и комфорта.
Дома из блок-контейнеров
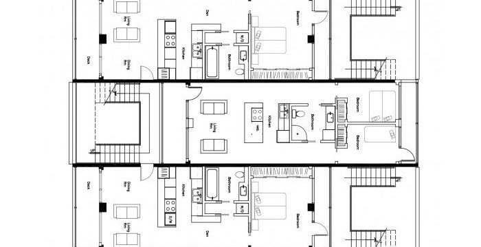
могут иметь и более сложное архитектурное строение. Многих людей не устраивает двухметровая ширина комнаты, и они используют сразу три или даже четыре контейнера, чтобы расширить внутреннее пространство. Поскольку жилая площадь дома из одного контейнера составляет 28 м 2 , несложно рассчитать площадь дома из нескольких контейнеров. Четыре стандартных контейнера, объединённых вместе, – это по сути уже просторный коттедж площадью 112 квадратов!
При объединении нескольких контейнеров лишние боковые стенки можно вырезать электропилой. Некоторые особо изобретательные домовладельцы превращают внутренние железные стенки в красивые полукруглые арки, которые визуально отделяют одну комнату от другой. Модульные дома из контейнеров
можно возводить в несколько этажей – максимум четыре. Сооружение можно подключить ко всем жизненно важным инженерным системам, включая электричество, канализацию, водоснабжение и отопление.
Дома из морских контейнеров
можно возводить в различном исполнении для любых климатических условий, а проекты таких построек поражают своей оригинальностью и красотой. Из стандартизированного контейнера во многих странах делают автобусные остановки, магазины, кафе и даже небольшие рестораны быстрого питания. Прочный слой рифлёной стали защищает «дом» от механических повреждений и атмосфеcomрных осадков, а благодаря утеплению в контейнере будет уютно даже зимой.
Самые оригинальные проекты домов из контейнеров приведены на фото ниже.
Размеры контейнерных домов
Дом, построенный на базе морского контейнера, может иметь различные размеры и площадь. Самый компактный домик, сделанный из 20-футового контейнера, имеет размеры 6,06 x 2,44 м, высота – 2,6 м. Общая площадь такой постройки составляет 13,5 м 2 , что по размерам соответствует небольшой комнате. Такой контейнер подойдёт для проживания на дачном участке по выходным или для хранения садового инвентаря.
Более просторный вариант – дом из контейнера 40 футов
, средняя стоимость которого составляет всего от 80 до 200 тыс. рублей. Жилая площадь такого домика составит примерно 28 квадратных метров (длина – 12,03 м, ширина – 2,35 м, высота – 2,39 м).
Существуют двух- и даже трёхэтажные коттеджи, возведённые из ISO-контейнеров, в которых может комфортно проживать большая семья из 6 – 8 человек. Площадь таких контейнерных домов может доходить до 200 – 300 м 2 . Контейнеры можно объединять друг с другом, убрав лишние боковые или торцевые стенки.
Цена дома из морского контейнера
Средняя стоимость нового утеплённого дома из контейнера составляет 200 – 300 тысяч рублей. Для хранения садового инвентаря можно присмотреть более бюджетные варианты – например, 20-футовый б/у контейнер, который обойдётся в 60 – 70 тысяч. В любом случае, дом из контейнеров стоит в 10 раз дешевле аналогичной постройки из кирпича и в 6 раз дешевле, чем из твинблока.
«Элитные» контейнерные дома, собранные из нескольких контейнеров, могут стоить до 2 – 3 млн рублей, в зависимости от площади, сложности проекта, качества материала для утепления.
На стоимость дома из контейнеров влияют следующие факторы:
- Количество и состояние используемых контейнеров (новые, б/у);
- Размеры и площадь постройки;
- Дополнительные услуги (утепление, монтаж окон и дверей, электропроводки, установка крыши, подключение к канализации и водоснабжению).
Дома из контейнеров: плюсы и минусы
Главным достоинством дома из морского контейнера, безусловно, является низкая стоимость. По этой причине такие постройки предпочитают дачники и садоводы. Ещё одно неотъемлемое преимущество – лёгкая, бесфундаментная установка и быстрый демонтаж. Домик-контейнер можно легко перемещать с одного места на другое и даже транспортировать на грузовой машине.
Плюсы:
- Низкая цена;
- Быстрая скорость развёртывания;
- Бесфундаментная установка;
- Лёгкий демонтаж;
- Возможность эксплуатации в холодное время года;
- Полный набор базовых инженерных коммуникаций (электричество, канализация, водоснабжение, отопление);
- Многообразие проектов (дома различной площади, размеров и этажности);
- Пожарная безопасность;
- Высокий уровень сейсмостойкости.
Минусы:
- Невозможно строить многоэтажные сооружения (свыше 3 этажей);
- Урбанизированный внешний вид (дома из контейнеров выглядят не так красиво, как коттеджи из керамического кирпича или твинблока).
Компания «ContMaster» изготавливает дачные домики и бытовки различной площади на основе морских контейнеров. Наши постройки отвечают всем пожарным и санитарным требованиям, подходят для эксплуатации в холодные сезоны. Мы создаём дома любой сложности – от небольших бытовок до просторных коттеджей для всей семьи!
Услуги для тех, кто хочет превратить контейнер в уютный дачный дом:
- Установка дверей, окон и перегородок;
- Монтаж крыши;
- Утепление контейнера;
- Монтаж электрической проводки;
- Установка системы отопления;
- Изготовление и монтаж пологов.
Компания «ContMaster» делает контейнерные дома «под ключ» и устанавливает их на садовых участках по всей России!
Интересные проекты домов из морских контейнеров
`
В связи с ростом количества промышленных объектов, строящихся на территории нашей страны и использующих оборудование зарубежного производства, увеличились объемы железнодорожных и морских перевозок, осуществляемых с использованием морских контейнеров. По существующей практике, использованные контейнеры, как правило, остаются на объекте строительства и в дальнейшем реализуются как юридическим, так и физическим лицам. Именно это стало причиной тому, что морские контейнеры стали использоваться для сооружения административных, жилых и общественных зданий. Дом из морского контейнера – устройство, размеры и варианты планировки, а также популярные проекты, реализованные на практике, и отзывы пользователей – всё это тема настоящей статьи.
Использование нескольких блок-контейнеров позволяет создать модульный дом необходимых габаритных размеров
Читайте в статье
Устройство и варианты планировки
Используя морские контейнеры можно построить здания и , что обусловлено требованиями регламентирующих документов.
Все технические требования к сооружаемым объектам общественного и жилого назначения регламентированы следующими нормативными документами:
- для одноквартирных жилых домов
— СП 55.13330.2016 «СНиП 31-02-2001 Дома жилые одноквартирные»; - для многоквартирных домов
— СП 54.13330.2011 «Здания жилые многоквартирные. Актуализированная редакция СНиП 31-01-2003»; - для общественных зданий
— СП 118.13330.2012* «Общественные здания и сооружения. Актуализированная редакция СНиП 31-06-2009 (с Изменениями N 1, 2)».
Устройство и планировка сооружаемых объектов с использованием морских контейнеров зависит от их количества и типа их размещения по отношению друг к другу, а также фантазии архитектора или индивидуального застройщика.
Основными параметрами при подобном строительстве, определяющими размеры сооружаемого объекта, являются габаритные размеры используемого контейнера.
Дом или административное здание на основе контейнеров – это мобильность и простота выполнения монтажных работ
К преимуществам использования подобных изделий, при строительстве объектов недвижимости, можно отнести такие показатели, как:
- простота и малые сроки выполнения монтажных работ;
- возможность использования «легких» фундаментов, что позволяет снизить общие затраты на строительство объекта;
- возможность выполнить внутреннюю планировку в соответствии с потребностью и личными предпочтениями застройщика;
- доступность выполнения работ своими силами без привлечения подрядных организаций;
- мобильность (при необходимости).
Недостатками подобных строений являются:
- для монтажа на месте размещения необходимо использование грузоподъемной техники;
- перед использованием необходимо произвести антитоксичную и антикоррозийную обработку;
- для обеспечения оптимального микроклимата внутри объекта строительства, потребуются значительные затраты на теплоизоляцию ограждающих конструкций и создание режима вентиляции внутри помещений.
Популярные строения из морских контейнеров – планировка, дизайн идеи и фото реализованных проектов
Как уже было написано в начала настоящей статьи, морские контейнеры используются при сооружении различных строительных объектов. В данном разделе мы приведем уже реализованные проекты на практике, а также идеи архитекторов и дизайнеров, ещё не воплощенные в жизнь.
Дома для постоянного проживания

Дома для временного проживания и технического назначения (дача, баня и т.д.)
Административные и общественные здания
Строительство дома из контейнера
Построить дом из контейнера своими руками способен практически любой человек, обладающий физическим здоровьем и имеющий навыки работы с ручным инструментом и строительными материалами.
Для того, чтобы использовать морской контейнер для жилья, необходимо:
- определиться с его местом размещения и получить разрешительные документы на строительство (если это капитальное, а не мобильное строение);
- выбрать тип и количество контейнеров, чтобы они соответствовали требуемой площади и этажности здания, после чего приобрести их;
- разработать проект планировки внутренних помещений;
- составить рабочие чертежи или эскизы, сооружаемого объекта с указанием используемых материалов по всем элементам конструкций (утеплитель, наружная и внутренняя отделка, кровля и т.д.);
Наличие проекта планировки и рабочих чертежей позволит избежать ошибок при строительстве
Когда все подготовительные мероприятия выполнены, можно приступать к сооружению дома, что выполняется в следующей последовательности:
Этап №1.
Закладка фундамента.
Необходимость сооружения фундамента зависит от типа строения (капитальное, мобильное), характера его использования (для временного или постоянного проживания), а также этажности и типа грунтов в месте размещения объекта строительства.
Модульные строения являются легкими конструкциями, для установки которых не требуется сооружение мощных фундаментов. Дом из контейнеров можно поставить на мелкозаглубленный ленточный или столбчатый фундамент, плиту или винтовые сваи.
Важно!
При устройстве фундамента его габаритные размеры должны соответствовать размерам собираемого дома. При необходимости, для придания прочности конструкции (для варианта свайного и столбчатого типа), между вертикально расположенными элементами укладываются горизонтальные связи (ригеля).
Этап №2.
Монтаж контейнера (контейнеров).
При установке контейнеров на подготовленный фундамент не обойтись без использования грузоподъемной техники, в связи с чем должен быть обеспечен проезд автотранспорта на строительную площадку.
В последнее время в России и других странах СНГ все более широкую популярность завоевывает такой тип строений, как дом из контейнеров. Безусловно, подобные проекты для большинства людей остаются диковинкой. Тем не менее, эта идея все больше получает новых и новых приверженцев.
Безусловно, если рассматривать проекты жилых строений, то наиболее распространенными сегодня являются коттеджи до дома, сделанные по более привычным нам технологиям и с применением таких традиционных материалов, как кирпич, пеноблоки, керамзитобетонные блоки или древесина. Дома из морских контейнеров на сегодня являются скорее диковинкой, а для некоторых и вовсе – непонятным новым явлением.
Ничего удивительного нет, ведь многие новые вещи часто воспринимаются с некоторой опаской и осторожностью, что объясняется отсутствием опыта и привычки обращения с тем ил иным товаром. Кстати, одним из примеров этого , которая поначалу была чем-то необычным, а сегодня становится все более массовой.
Так что нет ничего удивительно в том, что частные лица, так и профессиональные архитекторы все чаще берутся за разработку и реализацию таких проектов для постоянного проживания. Понятно, что на вкус и свет товарища нет. Тем не менее, очень многим людям нравится не столько относительно доступная цена контейнерных строений, сколько их красивый внешний вид и простой привлекательный интерьер.
Что надо знать про контейнеры
Грузовые контейнеры могут использоваться для корабельных, а также ж/д грузоперевозок. Именно это и является их прямым назначением. Каждый из них имеет сварной каркас, который изготавливается из двутавровых балок или труб. Так что, рассматривая проекты домов из морских контейнеров, вы можете быть твердо уверены в том, что такое жилье уж точно будет исключительно прочным.
На заметку! Высокая крепость конструкции обеспечивается мощным, сваренным из стальных элементов, каркасом.
Что же касается внешней отделки, то ее роль играют специальные гофрированные листы. Они изготавливаются из металла толщиной 2-3 миллиметра, иногда больше. Дома из контейнеров, фото:
Размеры и форма
Длина и ширина (в наименованиях обозначаются в футах) и большинства таких конструкций, предназначенных для транспортировки морских или железнодорожных грузов, могут быть разными. Давайте рассмотрим наиболее популярные из них:
| Стандартные контейнеры | 20 футовый | 40 футовый | 40 фут. High-Cube | 45 фут. High-Cube | |
| Внешние размеры, м | Длина | 6,05 | 12,19 | 12,19 | 13,71 |
| Ширина | 2,43 | 2,43 | 2,43 | 2,43 | |
| Высота | 2,59 | 2,59 | 2,89 | 2,89 | |
| Внутренние размеры, м | Длина | 5,75 | 12,03 | 12,00 | 13,55 |
| Ширина | 2,35 | 2,35 | 2,31 | 2,35 | |
| Высота | 2,39 | 2,38 | 2,65 | 2,70 | |
| Дверной проем | Ширина | 2,34 | 2,34 | 2,28 | 2,34 |
| Высота | 2,28 | 2,28 | 2,56 | 2,58 | |
| Внутренний объем, м3 | 33,1 | 67,5 | 75,3 | 86,1 | |
| Максимальный вес, брутто, кг | 30400 | 30400 | 30848 | 30400 | |
| Собственный вес, кг | 2220 | 3800 | 3900 | 4800 | |
| Масса груза, кг | 28160 | 26600 | 26580 | 25600 | |
Что же касается формы, то, как правило, она является прямоугольной, и намного реже – квадратной. Все это позволяет строить разнообразные варианты дач и домов на основе одного, двух, трех и более контейнеров. Что же касается этажности, то наиболее распространенным вариантом являются одноэтажные модульные конструкции. За ними следуют двухэтажные.
Сколько стоят
Цены на корабельные контейнеры могут быть самыми разными. В значительной степени она зависят не только от размера и конфигурации, но и от того, является ли он новым или б/у. В случае с подержанными изделиями на стоимость может влиять и состояние: лучше сохранившиеся экземпляры с хорошей геометрией ценятся выше и цена у них, соответственно, более высокая.
Если говорить про стоимость на мировом рынке, то цены могут колебаться от 4 до 10 тыс. долларов, в зависимости от характеристик. Говоря о сегодняшней ситуации в России, стоить уже готовое решение может от 300 тыс. до 2 млн. руб. Вот такие цены домов из контейнеров, фото и проекты которых вы можете посмотреть в том числе и в этой статье.
Главные плюсы и минусы
Безусловно, любой вид жилья имеет свои плюсы и минусы. Давайте коротко перечислим наиболее очевидные из них. Итак, преимущества:
- «Происхождение» такого жилья несложно скрыть, если вы не хотите этого показывать. Это касается как готовых решений, так и тех случаев, когда вы все делаете от начала до конца своими руками. Это касается как внешней обшивки, так и внутренней отделки, в которой можно использовать гипсокартон, древесину, вагонку, и многое другое. Такой домик будет практически неотличим от аналогов, изготовленных из других материалов.
- Они без проблем «справляются» с любыми проявлениями непогоды, будь то сильный ветер, град, толстый слой снега и т.д.
- Важным плюсом является цена, которая значительно ниже, чем у любых аналогов.
- Адаптация под любые погодные и климатические условия, при условии хорошей теплоизоляции.
- Практически полная гарантия от проникновения насекомых и грызунов.
- Возможность соединения с другими модулями, выполненными из дерева, фанеры, пеноблока и т.д.
- Кроме того, их можно использовать без фундамента на замороженной почве. Это особенно актуально для холодного климата северных регионов.
- Вы также можете обходиться без обустройства мойного и долговечного фундамента, что также сократит расходы.
- Скорость строительства и работ по внутренней отделки – очень быстрая.
- Вы можете заказать строительство под ключ или сделать самостоятельно разные типы строений: садовый дачный домик, двухэтажный дом для постоянного проживания, пристройки к уже построенным объектам, хозблоки и даже нежилые помещения.
Ну, а теперь несколько слов про основные недостатки этой технологии:
- Как уже упоминалось выше, вам придется оплачивать доставку. Кроме того, при монтаже не обойтись без манипулятора или крана.
- Узкие комнаты будут непривычны для тех, кто привык к простору. В то же время, при совмещенном строительстве пространство будет более широким.
- Если не использовать хороший утеплитель (который выполняет функцию теплоизоляции), то зимой может быть слишком холодно, а летом, напротив, жарко, поскольку металл будет сильно нагреваться на солнце.
Как построить: поэтапная инструкция
После того, как вы определились с земельным участком, настает время строительства. Вот основные его этапы:
- Составление проекта проведения работ.
- Обустройство фундамента.
- Монтаж контейнеров и кровельные работы.
- Дополнительное качественное утепление.
- Проведение отделки как снаружи, так и внутри.
- При желании, можно заняться и дополнительным декором.
Давайте разберем каждый из этапов чуть более подробно.
Составление плана
Понятно, что конфигурация, ровно, как и площадь, могут быть разными. Тем не менее, вот базовые рекомендации по планированию комнат, включая спальню, кухню, гостиную, санузел с ванной и туалетом, а также помещение для хранение вещей. Само собой, размер комнаты будет зависеть от количества и типа используемых контейнеров.
Внимание! Первым делом обработайте металлические поверхности антикоррозийным составом.
В том, что касается коммуникаций, то домик из контейнера можно подключить не только к электричеству, но также к отоплению, воде и даже канализации. Таким образом, проживание в таком доме будет весьма комфортным.
Делаем фундамент
Купив контейнеры нужного количества и выбранных размеров, первое, что вы должны будете сделать – это провести фундаментные работы. Имеется немало разновидностей этой части конструкции: фундаментные блоки ФБС, лента, сваи и т.д. В значительной степени выбор зависит от того, какой тип почвы имеется на участке и с каким рельефом предстоит работать.
В любом случае, надобности строить высокий или очень сложный фундамент – нет. Вполне возможно обойтись простой конструкцией, ведь это не тот тип жилья, который делается «на века».
Монтаж
В тех случаях, когда домик состоит из 2, 3 и более контейнеров, их необходимо скреплять между собой. Для того, чтобы соединить отдельные части будущего строения между собой, используются металлические элементы: прямоугольные/квадратные трубы или уголки. Однако первым делом необходимо вырезать боковые части контейнеров болгаркой в тех местах, в которых они будут соединяться, ведь вы планируете добиться более широкого пространства и большей площадью. Поэтому, «стены» должны быть устранены.
Что касается передвижения и непосредственно установки, то здесь придется нанимать автокран. Установив отдельные части на уже готовый фундамент и плотно подогнав их, свариваем места соединения и крепежные элементы. Для надежности можно дополнительно использовать болты, если вы не уверены в то, что сварочный шов не разойдется по причине деформации фундамента.
Отделка внутри
Здесь возникает полная свобода для творчества. Стиль, который вы хотите придать своему жилищу, может быть, по сути, любым. Тем не менее, классические интерьеры будут, как минимум, неуместными. Все-таки, этот вид строений ассоциируется с чем-то модным и авангардным. Поэтому и обстановку для внутреннего пространства следует выбирать более современную и модную. Планировка, а также материалы для внутренних работы подбираются исходя из ваших предпочтений.
Обустройство крыши
Кровля может иметь разную форму. Некоторые люди предпочитают делать мансарду. В таких случаях вам нужно будет делать классическую двухскатную крышу с балками, обрешеткой и кровельным покрытием. В плоской крышей все даже проще Иными словами, никаких сложностей на этом этапе возникнуть не должно. Единственное, о чем хочется напомнить – это повышенные требования к теплоизоляции. Причем, совет этот актуален не только для холодного климата, Сибири, но и для большинства городов России, Украины и Беларуси.
Также необходимо позаботиться о пароизоляции и вентиляции пространства под кровлей. Иными словами, все то же самое, что и при строительстве обычного дома, коттеджа или дачного домика.
В любом случае, если вас интересуют дома из контейнеров, фото, идеи, варианты – это то, что следует тщательно изучить. Вот один из примеров готового большого проекта:
Как лучше утеплить
Если вы проживаете Москве, СПб и других городах России и СНГ, а не в солнечной Калифорнии, вам обязательно придется позаботиться о хорошем утеплении домика. Как правило, основных современных утеплителя два:
- Пенопласт.
- Минеральная вата.
Есть ещё и экструдированный пенополистирол, который является скорее, материалом для утепления цоколей или пола. Тем не менее, допускается использование и этого утеплителя в нашем случае. Особенностью утепления подобных конструкций является то, что стены здесь выполнены из металла, а не из материала, который можно просверлить перфоратором. В большинстве случаев для фиксации утеплителя на стене в домах, построенных из более традиционных материалов используются так называемые «зонтики» (пластиковые дюбель-гвозди с очень широкой шляпкой). Дом из контейнеров, проект:
В нашем же случае придется пользоваться клеем или специальной мастикой. Вам нужно будет купить специальные составы для качественного приклеивания.
Варианты внешней отделки
В данном случае, как и с обустройством внутреннего пространства, возможностей у вас – великое множество. Нет смысла приводить отдельную пошаговую инструкцию того, как выполняется внешняя отделка. Следует лишь отметить, что она не отличается от того, как отделываются традиционные дома. Популярными и простыми вариантами, которые можно выполнить своими руками, являются сайдинг, профнастил или различные виды деревянной отделки: блокхауз и другие.
Окна лучше ставить современные: ПВХ или . Последние стоят несколько дороже, но, при этом, лучше смотрятся и, по отзывам многих специалистов, являются более долговечными.
Отопительная система
Вариантов отопления – несколько. Выбор того или иного из них зависит от того, какие коммуникации имеются на участке. Наиболее простым вариантом является металлическая печь, а также камин. Дополнительно к ней можно использовать электрические обогреватели, которые можно будет включать зимой во время мороза.
Полезная информация! Кроме того, есть вариант с обустройством отдельной топочной с котлом на твердом топливе.
Проводим коммуникации
Когда людей начинает интересовать дом из контейнеров, проекты и цены – это, как правило, первое, о чем они задумываются. В то же самое время, есть и другие важные вещи, среди которых пошаговое обустройство коммуникаций в будущем жилом домике. Вот некоторые общие рекомендации:
- Канализацию лучше делать с использованием септика: это наиболее доступный в обустройстве и несложный в обслуживании вариант.
- Электропроводку следует проводить в специальных каналах, так будет и аккуратнее и лучше с точки зрения безопасности.
- В том, что касается водопровода, здесь имеется несколько вариантов. Вы можете пробурить собственную скважину. С другой стороны, если в населенном пункте имеется водопровод, то можно подключиться и к нему.
Вариант с покупкой
Если вы не знаете, как построить дом из одного, а также двух и более железных блок-контейнеров, или у вас нет идеи того, как он должен выглядеть, всегда имеется возможность обратиться к специалистам и купить уже готовый вариант. Дом из контейнера своими руками сможет сделать далеко не каждый, да это и не обязательно. Как правило, первым делом компания предоставляет чертеж с планами нескольких разных проектов. Вы сможете выбрать тот, который понравится больше всего: небольшой и необычный, более крупный и простой, дешевые или более дорогой и так далее.
Любая профессиональная компания лучше знает, как сделать проект, как утеплить стены, обустроить внешнюю и внутреннюю отделку и так далее. При этом всегда учитываются отзывы владельцев подобных домов, на основе которых и «выкристаллизовываются» лучшие решения.
Дома из морских контейнеров, фото (кликните картинку для увеличения):
Если у вас большая семья, и частые выезды на пикники уже давно стали традицией, у нас вы можете заказать просторный и недорогой дачный дом из контейнера
. Довольно вместительный дом получится, если объединить сразу два-три контейнера. Можно разместить два контейнера в виде буквы «Г» или «Т», либо поставить их друг на друга. Для установки на дачном участке идеально подходят стандартные 40-футовые контейнеры – эти модули очень надежны, функциональны, устойчивы к погодным условиям, их стоимость окупается большим сроком службы. Высота контейнера High Cube примерно 2,9 м – этого вполне достаточно, чтобы максимально комфортно обустроить жилое пространство. Проекты домов из контейнеров, цены и фото
вы посмотрите на нашем сайте. Обычно выбирают маленький одноэтажный вариант, двухэтажный и часто делают фазенду.
Комплекс работ с контейнерами для постройки здания
Строительство дома из контейнеров всегда состоит из целого комплекса работ. Сюда входят сварочные, малярные, отделочные работы, установка утеплителя, монтаж электропроводки, отопления и водопровода. Из обычного грузового контейнера можно сделать гараж для автомобиля или жилое помещение для работников на стройке. Расскажите ваше видение проекта, подскажут вам и помогут реализовать задуманное.
Модульное здание из блок контейнеров и его применение
У большинства людей постройки из контейнеров ассоциируется с недорогим малогабаритным жильем, но это не совсем так. Современные технологии позволяют превратить обычный морской контейнер в отель, роскошный многоэтажный дом или переоборудовать его в офисное помещение. Контейнеры рассчитаны на тяжелые условия эксплуатации, выдерживают суровую зиму и зной летом, такие постройки пригодны даже для постоянного проживания. Подобное использование грузовых контейнеров очень популярно в Америке и Европе, а в последнее время услуги по переоборудованию контейнеров все чаще заказывают и в России. На нашем сайте вы можете найти проекты домов из контейнеров с фото и ценами.
Проект из 4 двадцаток
Свойства контейнеров применительно к домам из контейнеров
Контейнер удобен тем что имеет в своей конструкции прочный металлический каркас который можно использовать как основы для дома дачи или любого жилого помещения.
Боковые стенки легко поддаются модернизации в них обычно монтируются окна стенки обшиваются минеральной ватой на базальтовой основе, что обеспечивает превосходную термо и шумоизоляцию.
Для постройки небольших дачных домов и коттеджей иногда используются блок-контейнеры. Их небольшой вес позволяет сэкономить на возведении основания до 20% средств. Для таких построек подойдет блочный или свайно-винтовой фундамент. Кроме того, и сами модульные домики, являясь практически готовыми к проживанию блоками, имеют значительно меньшую стоимость, чем кирпичные или деревянные. Можно построить дом из контейнеров как сезонное жилье для дачи и даже в виде полноценного отапливаемого помещения для проживания в зимнее время.
Преимущества и недостатки домов из контейнеров
Модульные дома из блок-контейнеров представляют собой готовые постройки и не нуждаются в архитектурном согласовании, что также немаловажно в плане стоимости. Блок-контейнеры уже снабжены всеми элементами коммуникации и нуждаются только в подключении. Совмещая несколько модулей, можно создавать постройки разной конфигурации для любых нужд
.
Из контейнеров можно возвести дачный дом или полноценное жилище
Еще одним достоинством блочных конструкций является их мобильность. Они могут транспортироваться куда угодно при помощи разных видов транспорта, а также быстро монтироваться и демонтироваться. Модульные дома можно приспособить для любых климатических условий, их используют при температуре от -70 до +60 градусов и скорости ветра до 125 км в час
.
Основные преимущества строительства блок-контейнеров:
Недостатки:
- Высокая теплопроводность корпуса, необходимость проводить дополнительное утепление.
- Выделение паров растворителя при нагреве корпуса.
- Герметичность, отсутствие естественной вентиляции.
Варианты контейнеров
Есть два основных вида контейнеров, которые чаще всего используют под строительство домов. Их длина составляет 20 и 40 футов, а масса – 2,3 и 3,9 тонны
.
Контейнер 20 футов
Контейнер 40 футов
Существует еще один вид контейнера – 45-футовая конструкция, получившая применение в последние несколько лет. Его можно перевозить на обычных прицепах, но в отличие от своих менее конкурентоспособных собратьев он обеспечивает огромное рабочее пространство. С его появлением обычный полуприцеп стал применяться реже, что привело к усилению конкуренции между компаниями по грузоперевозке.
Контейнер выполнен из прочного стального сплава, что делает возможным его установку в несколько рядов. Однако в частном строительстве создание высоких конструкций нецелесообразно
.
Многообразие вариантов морских контейнеров не ограничивается 20, 40 и 45-футовыми блоками. Есть специализированные контейнеры: цистерны для газообразных и жидких веществ, рефрижераторы, платформы, боксы для перевозки животных.
Интересные варианты домов из блок-контейнеров
Построить недорогой, но интересный дачный дом из блок-контейнеров совсем несложно. Можно приобрести один или два контейнера и расположить их буквой Т или Г, поставить параллельно и между ними сделать просторную, максимально остекленную комнату. Один из блоков использовать для спален, а во втором сделать кухню и санузел. Среднюю комнату построить под гостиную. Если над таким домом соорудить наклонную кровлю, то потолок основной комнаты будет выше, чем остальных.
Интересный фасад получится, если два и более контейнера сдвинуть относительно друг друга.
Для большой семьи можно сделать дачный домик из трех, расположенных буквой П блок-контейнеров. Во внутреннем дворике можно создать стеклянное перекрытие или соорудить перголы, увитые виноградом или вьющимися цветами.
Если площадь участка настолько мала, что невозможно разместить два контейнера рядом, то их можно поставить один на другой. При этом верхний этаж может быть как полностью автономным с наружной лестницей, так и сообщающимся с нижним.

Безусловным плюсом таких домов является компактность и возможность разместить их на маленьком, а порой нестандартном, участке земли
. Особенности свайных и столбчатых оснований – возможность построить такой фундамент буквально на любых поверхностях. Контейнер можно обустроить под проживание в местности с любым климатом: сделать утепление стен и современную систему отопления.
Несмотря на все эти преимущества, в нашей среде этот вид жилья не пользуется большим спросом.
Последовательность шагов для возведения дома из контейнеров
Такие дома, выполненные со вкусом, могут выглядеть не хуже кирпичных и деревянных строений. Обилие стеклянных, открытых стен и оконных проемов в сочетании с вертикальным озеленением придаст зданию воздушность и поможет слиться с окружающей природой. Если вид материала, из которого выполнен контейнер, не очень нравится владельцу, то правильно выполненная отделка скроет настоящий вид постройки и сделает ее похожей на дом из обычных материалов.
- В самую первую очередь следует распланировать строительство и заложить фундамент
. Вес контейнера составляет около 2,3-3,9 тонны, поэтому он не составит большую нагрузку на фундамент. Его можно установить даже на пучинистых почвах. Для такого дома подойдет блочный или столбчатый фундамент, сваи. При заливке столбчатого фундамента следует выпустить арматуру для приваривания к ней контейнеров.Для постройки дома можно возвести столбчатый фундамент
- Контейнеры обязательно следует обработать антикоррозийным составом
. С этой целью сначала наносится слой железного сурика, а затем свинцового. - После доставки контейнеров на участок, предназначенный для постройки дома, их устанавливают на предварительно подготовленное основание. По завершении сбора общей конструкции надо наметить будущие окна и двери. Следует спаять внешние стены. После этого следует приступить к внутренней отделке. В стенах прорезаются оконные и дверные проемы. В некоторых случаях убирают общие стены, дополнительно укрепив контейнеры швеллерами.
- Контейнеры покрываются общей двускатной крышей, которая обеспечит дополнительную тепло- и гидроизоляцию.
- Если дом планируется использовать круглогодично, то в нем следует сделать утепление
. По стенам и потолку производится установка направляющих для внутренней отделки. - По всей поверхности напольного фанерного покрытия на утепление из слоя экструдированного пенополистирола укладывается греющий кабель для обустройства «теплого пола» и заливается цементная стяжка.
- Следует также произвести установку электричества, водопроводной и сантехнической системы.
- Затем делается утепление стен напылением из полиуретана для экономии пространства или плитами из минеральной ваты. С внутренней стороны их зашивают листами фанеры или гипсокартона. Можно также использовать вагонку, но избегать темных тонов, поскольку они зрительно сужают и без того небольшое пространство. Светлые оттенки и применение зеркал, напротив, его расширят
. - Утепление внешних стен происходит с применением гидроизоляции
. Одну стену контейнера можно сделать полностью остекленной и оснастить откидной дверью. Толстая металлическая дверца может защищать сплошное окно дома от повреждения, а в открытом состоянии исполнять роль вымощенной досками террасы. В теплые дни там можно устанавливать мебель для отдыха.
Дом из блок-контейнеров дает определенный простор для творчества и позволяет построить его каким угодно по величине и степени комфорта. Правда, не каждый на это решится, поскольку принято дома для постоянного проживания делать из более экологичных материалов. Но всегда найдутся люди, которым строительство дома из контейнеров покажется заманчивым, к тому же весьма недорогим вариантом.
В данной статье рассматриваются особенности и специфика такого бюджетного жилья, как дом из морского контейнера: преимущества и недостатки построек, технические параметры строительного материала и средние расценки на его покупку. В тексте содержится информация, которая позволит самостоятельно создать на участке дом из контейнеров: интересные идеи, фото и видео, советы по созданию планировки и необычные проекты, пошаговая технология строительства.
При желании обзавестись удобным и практичным жильем в минимальные сроки стоит обратить внимание на проекты домов из морских контейнеров, цена подобных сооружений в сравнении со стандартными постройками значительно ниже и доступнее для большинства владельцев загородных участков. Подобный тип строительства только набирает популярность, что связано с малой осведомленностью населения. Заграницей жилье, изготовленное на основе контейнеров, активно используется уже на протяжении нескольких десятков лет.
Как устроены дома из контейнеров: фото и особенности построек
Контейнерное строительство по праву считается технологией будущего, которая в скором времени поможет многим людям решить жилищный вопрос. В европейских странах подобный подход широко распространен, в результате чего появилась новая отрасль бизнеса. Это направление включает услуги по проектированию и строительству домов из контейнеров под ключ, так называемых «конструкций-полуфабрикатов».
Полуфабрикатом называется модель, используемая в качестве основы для строительства здания. Эта конструкция изготавливается на фабрике, она имеет черновой пол и стены. Помимо этого стандартная комплектация полуфабриката включает дополнительные системы и элементы:
- оконные конструкции;
- электрическую проводку;
- двери;
- систему отопления.
После выбора определенного проекта владельцу земельного участка останется лишь купить грузовые контейнеры в необходимом количестве. Они доставляются на строительную площадку, где впоследствии будут объединены в одно сооружение. Использование таких моделей позволяет существенно сократить сроки строительства дома, что является одним из самых весомых преимуществ данной технологии.
Полезный совет!
В процессе дома можно выгодным образом совместить морские контейнеры с другими строительными модулями, например, железобетонными или кирпичными.
Почему выгодно купить дом из морских контейнеров: преимущества построек
Дома, выполненные из морских или грузовых контейнеров, обладают массой преимуществ. Они имеют сейсмически устойчивую конструкцию, поэтому постройки подобного типа нередко сооружаются в тех регионах, где наблюдаются различные природные катаклизмы, например, ураганы или землетрясения.
Заготовки в виде контейнеров позволяют получить жилище, которое практически ничем не отличается от построек капитального типа. С внешней стороны модули можно отделать вагонкой, с внутренней стороны выполняется обшивка с помощью гипсокартонных листов. При этом стоимость контейнерных построек гораздо ниже, чем цена капитального жилья. Выбирая в качестве материала для строительства дома морской контейнер, владелец может быть уверен, что в его жилище не заведутся вредные насекомые и грызуны.
Для строительства здания на основе контейнеров требуется не более 2-3 месяцев. Если свести к минимуму некоторые виды работ, например, упростить отделку, то достаточно будет 2-3 недель для того, чтобы ввести дом в эксплуатацию. Поскольку контейнерные постройки имеют небольшой вес, нет необходимости в обустройстве массивного фундамента. Модули могут устанавливаться прямо на утрамбованную земляную площадку.
Заготовки могут использоваться не только для строительства жилых зданий. Они идеально подходят для реализации проектов домов из морских контейнеров с пристройками и хозяйственными объектами.
Данная технология не ограничивается определенными климатическими условиями. При наличии соответствующей теплоизоляции дом из контейнеров можно возводить практически в любых широтах. Поскольку модульные заготовки предназначены для морских транспортировок, такие дома можно смело устанавливать на промерзший грунт. Они проявляют устойчивость к влиянию низких температур и неблагоприятных погодных условий. Контейнерные дома можно возводить на участках с большим уклоном территории.
Интересный факт!
Морские контейнеры широко применяются для строительства жилья в Антарктиде и регионах, расположенных на Крайнем Севере.
Если проект дома из морских контейнеров не предполагает установку витражных стекол во всю стену, такая постройка обеспечит жильцам максимальную защиту от вторжения посторонних.
Недостатки модульных домов из блок-контейнеров
Жилье из грузовых и морских контейнеров имеет не так много недостатков. Потрясающая стойкость и долговечность этих конструкций включает и обратную сторону. Чтобы контейнеры могли выдерживать длительную эксплуатацию в условиях агрессивного атмосферного воздействия, их предварительно обрабатывают специальными составами и красителями. Эти защитные покрытия содержат токсичные вещества. Поэтому перед тем как приступить к строительству дома из контейнеров, следует удалить краску.
Модули-заготовки изготовлены из металла, поэтому в летнее время поверхность конструкции сильно нагревается, а зимой – охлаждается. Чтобы обеспечить в доме комфортные для проживания климатические условия, обязательно нужно будет позаботиться о качественной и эффективной теплоизоляции.
Под влиянием влаги металл покрывается ржавчиной. Чтобы не допустить преждевременного разрушения постройки, желательно регулярно осматривать здание на предмет появления коррозии и тщательно ухаживать за ним. Низкие потолки – один из наиболее существенных недостатков. Если выполнить утепление потолка и пола, максимальная высота помещения будет составлять 2,35 м.
Размерные параметры и фото контейнеров для строительства домов
Размерные параметры контейнеров обычно обозначаются в футах. Для строительства домов подходят конструкции, предназначенные для перевозки железнодорожных и морских грузов. Причем габариты могут варьироваться в зависимости от грузоподъемности. Для транспортировки по железной дороге используются контейнеры с различной вместительностью, однако для строительства жилья применяются исключительно крупнотоннажные.
Внутренние размеры контейнера 20 т равны 2,33х5,86х2,19 м. Имея подобные габариты, конструкция располагает 29,5 м³ полезного объема. За вычетом места, отведенного на монтаж обшивки и утепления, это и будет приблизительный размер внутреннего пространства помещения.
Обычно для строительства зданий применяются грузовые контейнеры стандартного размера длиной 40 футов. Внутренние размеры такой конструкции – 2,4х12х2,35 м. Одного контейнера будет достаточно для создания:
- подсобного помещения;
- просторной пристройки;
- хранилища;
- мастерской.
Используя 2-3 блока, можно соорудить дом, площадь которого будет составлять 120 м². Интересный вариант получится, если установить два контейнера друг напротив друга, соединив их витражными стеклами и накрыв одной крышей.
Интересный факт!
В Америке и Европе широко распространены дома из 40 футовых контейнеров. Первым создателем подобного жилья стал архитектор Адам Калкин. Дом появился в результате творческого эксперимента и состоял он из 3-х морских контейнеров.
Габариты контейнерных блоков:
| Размер контейнера, фут | Внешние размеры контейнера, м | Внутренние размеры контейнера, м | Внутренний объем, м³ | Размер дверного проема, м |
| 20 | 6,05х2,43х2,59 | 5,75х2,35х2,39 | 33,1 | 2,34х2,28 |
| 40 | 12,19х2,43х2,59 | 12,03х2,35х2,38 | 67,5 | 2,34х2,28 |
| 45 | 13,71х2,43х2,89 | 13,55х2,35х2,7 | 86,1 | 2,34х2,58 |
В большинстве случаев контейнеры имеют прямоугольную форму, хотя встречаются и квадратные варианты с увеличенной высотой.
Во сколько обойдется покупка строительного материала для дома из контейнеров: цена блоков
Цена блоков для строительства дома из контейнеров зависит от разных факторов. В большей степени на нее оказывают влияние конфигурация и размер конструкции. Кроме этого, стоимость зависит от того, является ли контейнер новым или же он использовался ранее. Если изделие подержанное, то его цена будет зависеть от состояния. Стоимость морских контейнеров, которые хорошо сохранились и имеют нормальную геометрию, будет значительно выше, чем у дефектных изделий.
Средние расценки на контейнеры 40 футов:
| Тип контейнера | Особенности изделия | Цена, руб. |
| Новые контейнеры | ||
| 40 HCDD | высокий, двойные двери | 305000 |
| 40 DV | стандартный | 330000 |
| 40 HC | высокий | 360000 |
| Контейнеры б/у | ||
| 40 DV | стандартный | 120000 |
| 40 HC | высокий | 125000 |
Строительство дома на основе контейнерных блоков обойдется примерно на 30% дешевле, чем стоимость стационарного жилья, выполненного из кирпича.
Интересные проекты и фото домов из контейнеров, цены на строительство под ключ
С каждым годом архитектурное оформление жилых зданий становится шире и разнообразнее. Некоторые люди в стремлении подчеркнуть свой статус покупают большие дома с современным дизайном, изготовленные из стали, бетона и стекла, другие предпочитают экстравагантные решения, например, жилье из морских контейнеров. Причем вариаций на эту тему может быть бесчисленное множество. Кто-то использует контейнер в качестве пристройки к зданию, а у кого-то весь дом ограничивается стенами одного контейнера.
Дизайн домов из контейнеров: фото, идеи, варианты оформления
Несмотря на свою простоту, довольно интересно выглядят проекты домов из контейнеров 40 футов. Такие сооружения можно использовать в качестве гостевых или дачных домиков. Здания получаются небольшими и в то же время очень аккуратными. Этот вариант идеально подходит для бюджетного строительства, если площадь земельного участка невелика.
Разумеется, небольшие габариты и форма контейнера значительно ограничивают владельца в отношении дизайна и декорирования будущего дома. Однако некоторых людей это не останавливает. Улучшить внешний вид здания можно с помощью раздвижных дверей и больших витражных окон, визуально расширив внутреннее пространство. Выигрышно смотрятся дома, окрашенные в яркие цвета, например, синий, зеленый или желтый.
Полезный совет!
Если над фасадной частью здания обустроить небольшой навес, то во время летнего дождя можно будет держать двери открытыми, не боясь, что вода попадет в помещение. Для этих целей подойдут листы сотового поликарбоната. Чтобы поддержать общий экстерьер, можно для дома из контейнеров купить цветной поликарбонат, повторяющий расцветку здания.
Для создания теплой и комфортной обстановки желательно использовать деревянные панели в качестве внутренней обшивки. Даже самую простую конструкцию можно превратить в отличное место для отдыха и проживания, экспериментируя с расцветкой и материалами. Такой дом прекрасно впишется в окружающий ландшафт, если разбить вокруг него клумбы. Смелые дизайнеры могут попробовать организовать цветник прямо на крыше, используя для этих целей кактусы и другие светолюбивые растения.
Статья по теме:
Особенности конструкции, преимущества и недостатки. Распространенные проекты построек треугольной формы и фото. Пошаговая технология строительства.
Дома из морских контейнеров: фото и проекты впечатляющих зданий от лучших архитекторов
Довольно впечатляюще выглядит на фото дизайн домов, разработанный архитектором Адамом Калкиным, который оценил преимущества и долговечность морских контейнеров. При желании обзавестись жильем с большой площадью, можно воспользоваться его проектами многоуровневых зданий.
Согласно задумке создается некое подобие «дома в доме». Для этого внутрь массивного сооружения помещаются отдельные компоненты меньшего размера, которые могут использоваться как самостоятельные полноценные здания. Благодаря большим раздвижным дверям из стекла можно гармонично объединить жилое пространство с внешним миром.
Несмотря на всю необычность концепции, в таком доме можно разместить все необходимое для комфортного проживания:
- гостиную;
- кухню;
- несколько спален и ванных комнат.
С эстетической точки зрения многоуровневый дом с множеством секций-контейнеров выглядит привлекательно и уникально, а за счет присутствия прозрачных стеклянных дверей его и без того большое пространство наполняется легкостью и светом.
Не менее впечатляюще выглядят фото 2-х этажного дома, разработанного архитектором Марсио Коганом. Этот проект позволяет на базе индустриальных элементов, объединенных в одно целое, создать жилое здание за ограниченный период времени. При этом чтобы задать дому необходимую площадь, контейнеры устанавливаются друг на друга, а затем здание расширяется. В результате получается сооружение с большим внутренним пространством. В самой широкой части можно обустроить комфортную гостиную.
Полезный совет!
Если использовать умную систему выдвижных дверей, пространство гостиной можно продлить на улицу, обеспечив тем самым прекрасный вид из комнаты и быстрый доступ во двор.
Для строительства могут быть использованы морские контейнеры в 40 футов. Благодаря применению ярких расцветок и современных экосистем для дома, простые блоки превращаются в функциональное жилье с радостным и веселым дизайном.
Необычные примеры домов из контейнеров: фото и проекты нежилых зданий
Грузовые контейнеры используются не только для строительства жилых зданий, но и для создания других проектов. Прекрасным примером подобного подхода является кофейный дом Старбакс, который по задумке одного бизнесмена был изготовлен из модульных элементов. Это современное кафе из контейнеров имеет оригинальный и необычный дизайн, непохожий на привычное оформление этих заведений.
У многих людей грузовые контейнеры вызывают ассоциации с быстрой доставкой и свежими продуктами, поэтому данную концепцию можно смело использовать для строительства собственного магазина или кафе. Компактное строение из контейнеров способно вместить все необходимое для запуска собственного бизнеса. Места будет достаточно для того, чтобы установить оборудование и обустроить небольшую рабочую зону для персонала.
Взяв на вооружение идею дизайнера Стивена Шупа, можно создать временный офис из контейнеров для молодой компании. Если нет уверенности относительно стабильности развития бизнеса, модульные постройки из грузовых блоков станут отличным вариантом решения проблемы. Этот способ необычен и не требует больших затрат. Стивен Шуп спроектировал офисное здание Г-образной формы. Однако это не означает, что нельзя использовать другие варианты размещения контейнеров.
Офисное здание из грузовых контейнеров немного напоминает складские строения, однако оно не лишено привлекательности индустриального стиля. Внутреннее пространство можно эффективно использовать для обустройства офисных помещений. В этом случае все необходимое для работы будет находиться всегда под рукой, а при желании хватит места для проведения небольшого совещания или деловой встречи. Все зависит от того, сколько контейнеров использовано для строительства офиса и какова его внутренняя планировка.
Интересные проекты домов из контейнеров: варианты дизайна
Для создания красивого современного дома достаточно будет и двух контейнеров длиной 40 футов. Такие проекты подходят людям, которые не стремятся к излишествам. Качественная отделка и современная мебель помогут превратить контейнерный дом в жилье, удовлетворяющее основным требованиям.
Людям, предпочитающим просторное жилье, лучше отдать предпочтение проектам домов, состоящим из нескольких блоков. В сети можно встретить фото домов из морских контейнеров, которые не всегда имеют презентабельный внешний вид, но при этом внутри они очень практичны и удобны. В здании, состоящем из 4-х блоков, можно обустроить большую гостиную и просторную кухню, несколько спален и пр.
Полезный совет!
Если второй уровень здания выдвинуть вперед над первым этажом, можно получить своеобразный навес. Пространство под ним идеально подойдет для обустройства террасы, которая станет отличным местом для отдыха на воздухе в летнее время.
Необычно выглядят на фото интересные дома, где удачно сочетаются контейнерные блоки и открытые пространства. Используя современные технологии и дизайнерские решения, можно создать в таком здании комфортные условия для проживания. Перед тем как приступить к строительству, стоит задуматься о том, чтобы добавить в проект такие элементы, как:
- эксплуатируемую крышу с озеленением;
- высокотехнологичную поризованную теплоизоляцию;
- геотермальную систему отопления.
Все эти нововведения позволят создать настоящий дом, пригодный для постоянного проживания целой семьи.
Популярные проекты домов из контейнеров и цены на строительство
Самый дешевый вариант строительства жилья заключается в покупке и реализации проекта дачного домика, состоящего из одного контейнера. Если же требуется место для постоянного проживания, стоит задуматься о сооружении из нескольких блоков. Благодаря принципу объемного конструирования зданий, состоящих из отдельных прямоугольных ячеек, появляется возможность получить жилье с оригинальным дизайном и разной этажностью, причем на ограниченном пространстве.
Купить дом из контейнеров общей площадью около 90 м² можно примерно за 360-450 тыс. руб. Подобный проект предполагает монтаж трех блоков в одной плоскости. Если же выполнить надстройку второго этажа, используя при этом дополнительные 2-3 контейнера, стоимость жилья возрастет вдвое.
Домики из одного контейнера характеризуются простотой и практичностью. В одной комнате можно совместить столовую и спальню, а также организовать за перегородкой небольшой санузел. Такой вариант подойдет для временного проживания 1-2 человек.
Если разместить в одной плоскости 3 блока, такое жилье подойдет для комфортного проживания семьи с двумя детьми. Общей площади в 85 м² будет достаточно для обустройства кухни (14 м²), столовой (23 м²) и нескольких спален (36 м²), а также санузла (12 м²).
Двухэтажные здания из грузовых блоков располагают теми же условиями, что и современные постройки с большой площадью. В этом случае планировку дома из контейнеров целесообразно разделить на зоны по назначению. На первом этаже лучше обустроить просторную гостиную, которая может использоваться для приема гостей и семейных встреч. Тут же неподалеку желательно организовать столовую и кухню. Второй этаж может использоваться для отдыха. Здесь лучше обустроить спальни.
На каждом из этажей желательно расположить помещения общего назначения:
- туалеты;
- ванные комнаты;
- подсобные помещения (кладовки, гардеробные).
Важно!
Перед тем, как приступить к строительству, контейнеры нужно проверить на наличие радиации. Безопасная норма составляет 35 мкР/ч (микрорентген в час).
Средняя цена дома из контейнеров под ключ:
| Материалы для работы | Цена, руб. |
| Морские контейнеры б/у (2 шт.) | 160000 |
| Обустройство ленточного фундамента | 90000 |
| Укладка напольного покрытия | 40000 |
| Строительство и утепление кровли (плиточный или насыпной утеплитель) | 36000 |
| Монтаж наружной теплоизоляции (плиты из минеральной ваты) | 30000 |
| Строительство деревянного каркаса + обшивка вагонкой | 25000 |
| Организация потолка (ДСП и брус) | 12000 |
Затраты на покупку материалов составляют 393 тыс. руб. Если нанять для строительства модульного дома из контейнеров фирму-подрядчика, то с учетом стоимости услуг цена жилья возрастет примерное вдвое и будет составлять 786 тыс. руб. Указанные цифры лишь приблизительны. Затраты будут зависеть от различных факторов, например, качества и типа отделки, особенностей грунта на участке и других условий.
Особенности бань из морских контейнеров и средние расценки на строительство
Грузовые контейнеры могут использоваться не только для строительства жилых зданий. Бани, изготовленные из блоков, пользуются высоким спросом у потребителей, которых привлекает мобильность этих сооружений, доступная цена и возможность корректировать параметры с учетом индивидуальных потребностей. Чаще всего для строительства бань из контейнеров применяются 20-тифутовые блоки High Cube. Площадь такого элемента равна 13,53 м².
Этого пространства достаточно для организации основных компонентов:
- душевой;
- парной;
- комнаты отдыха.
Средние расценки на бани под ключ:
| Наименование проекта | Комплектация | Цена, руб. |
| Стандарт | Чистка и подготовка, монтаж фундамента, обустройство полов, подвод канализации и водоснабжения, отделка стен и пола | 300000 |
| Оптимум | Стандарт + остекление, чистовая отделка стен и потолка, монтаж электропроводки, установка дверей | 400000 |
| Максимум | Стандарт + оптимум + монтаж всех элементов системы освещения, сантехники, обогревательных приборов, вентиляции, теплых полов | 500000 |
Обратите внимание!
Все указанные в таблице проекты предполагают обустройство парилки, водопроводной и канализационной системы, подвод электричества и вырезание оконных проемов. Стоимость стеклопакетов не включена в общую цену.
Мнение потребителей о домах из контейнеров: отзывы пользователей с форумов
Многие владельцы дачных участков уже воспользовались идеей строительства жилых контейнеров и поделились своим мнением на форумах.
«Если придерживаться всех требований и выполнить полноценное утепление, дом из контейнерных блоков станет неплохим решением жилищного вопроса. Мне нравится, что на возведение несущей конструкции затрачивается минимум времени. После этого можно подбирать на свой вкус двери и окна, а также отделку. Нет необходимости в строительстве массивного фундамента, что значительно упрощает работу. Конечно, размеры и форма модульных элементов ограничены стандартными рамками, но при наличии творческой жилки даже эту проблему можно обойти».
Евгений Дорош, г.Москва
«Мой сосед по даче начинал с одного блока, постепенно пристраивая к нему дополнительные модули. Сейчас его дачный домик из контейнеров выглядит не хуже стационарного здания из кирпичей. Вот и я всерьез задумался о строительстве такого жилья. Дом смотрится интересно и внутри и снаружи. От соседа нареканий никогда не слышал, так что, думаю, стоит попробовать».
Игорь Скрипач, г.Екатеринбург
«С кирпичным зданием контейнерный дом вряд ли сравнится. Но с учетом цены, которая примерно раз в 5 меньше, такое жилье можно смело рассматривать, если бюджетные возможности семьи ограничены».
Роман Лубко, г.Самара
Как построить дом из контейнеров: технология и рекомендации
Строительство жилья на земельном участке выполняется поэтапно. Поскольку здание не нуждается в сложном фундаменте, все работы можно выполнить самостоятельно. Основные этапы строительства:
- разработка проекта;
- обустройство фундаментной части здания;
- установка контейнеров;
- кровельные работы;
- монтаж утеплителя;
- внутренние и внешние отделочные работы.
Проектирование дома из контейнеров 40 футов: планировка здания
Планировка разрабатывается с учетом назначения здания. Многие компании предлагают типовые проекты для строительства, однако для создания современного жилья из контейнеров лучше воспользоваться индивидуальным подходом. Тем не менее, не стоит полагаться исключительно на собственную интуицию. Несмотря на очевидную простоту строительного процесса, обязательно нужно действовать в рамках проектных работ.
Перед тем как приступить к строительству здания из грузовых контейнеров, необходимо выполнить прочностные расчеты. Для этого просчитываются весовые нагрузки и на основе полученных данных вычисляются оптимальные размеры фундамента. Помимо указанных расчетов, в проектной документации прописываются тип и количество строительных материалов, а также внешний вид сооружения.
Обратите внимание!
Чтобы узнать стоимость жилья из контейнеров, необходимо учитывать доставку. Эта услуга может повлиять на итоговую цену.
В зависимости от того, сколько контейнеров будет использоваться для строительства дома, и каким образом они будут размещаться по отношению друг к другу, можно получить помещения с различной планировкой и площадью. Чаще всего застройщики прибегают к варианту, где несколько контейнеров устанавливается подряд под одной крышей. В этом случае модули примыкают друг к другу длинной стороной. При таком размещении комнаты соединяются за счет организации внутренних проемов.
Интересный вариант получается, если одна из стен будет иметь откидную конструкцию. В этом случае она может выполнять функцию придомового пространства. С внутренней стороны стены можно установить панорамные окна. Такой проект будет не только удачен в отношении удобства эксплуатации, но и безопасен.
Планировка дачного дома из контейнеров будет более разнообразной, если разместить модульные блоки в шахматном порядке. У дизайнера появится шанс проявить фантазию и добиться интересного результата. Достаточно популярны варианты параллельного размещения грузовых контейнеров. Модули в этом случае устанавливаются на определенном расстоянии друг от друга.
Удобные и комфортные планировки получаются в тех проектах, где контейнеры расположены один над другим. Со стороны такая конструкция похожа на ящики комода. Если блоки разместить буквой П на участке, то появится возможность обустроить внутренний дворик. Эту зону можно украсить и обустроить для семейного отдыха.
Как построить дом из контейнеров, отвечающий требованиям безопасности
Бактерии и грызуны могут нанести серьезный ущерб зданию, однако источником опасности служат и другие факторы, например, грабители. Существуют особые конструкционные и технологические приемы, позволяющие избежать вторжения извне и обеспечить свое жилье надежной защитой.
Входная дверь – одна из наиболее уязвимых зон. Чтобы обезопасить этот участок дома, желательно установить сразу за ней каркасную стену, где вырезается проем. Во время отсутствия хозяев имущество будет защищено сразу двумя дверными конструкциями: стандартной и взломоустойчивой.
Еще один способ повысить безопасность здания в отношении взлома – установить стену с подъемной конструкцией. Этот метод удобен и надежен, хотя он затратен. За подъемной конструкцией устанавливается стеклянная стена, которая обеспечит здание дополнительным количеством естественного освещения.
Полезный совет!
Если подъемная стена будет использоваться в качестве террасы, желательно использовать для ее изготовления древесину.
Размеры и форма дверных и оконных конструкций не сказываются на уровне безопасности здания. Эти элементы подбираются с учетом дизайна помещений или экстерьера дома.
Строительство фундамента для дома из морских контейнеров своими руками
Первый этап строительства предполагает проведение фундаментных работ на участке. Дом может устанавливаться на сваи, фундаментные блоки , ленты. Выбор основания зависит от рельефных особенностей участка и свойств почвы. Не рекомендуется устанавливать блоки без фундамента, поскольку грунт под весом здания будет проседать, а в зимнее время конструкция будет сильно промерзать.
Если предполагается строительство дачного домика для временного проживания, в качестве основы подойдут . Двухэтажное здание нуждается в тщательной подготовке. В большинстве случаев специалисты советуют использовать армированный фундамент ленточного типа. Для его строительства потребуется вырыть котлован, поэтому не обойтись без специализированной техники, например, экскаватора, а также грузовых машин, которые будут вывозить грунт.
Если участок располагается на слабой заболоченной почве, лучше отдать предпочтение свайному фундаменту. Для заливки монолитного фундамента под дом из блок-контейнеров с несколькими этажами желательно использовать цемент марки 400, который смешивается с водой и песком. Добавив в полученную смесь специальные затвердители, можно существенно увеличить срок службы основания.
Допускается использование готовой смеси для выполнения бетонных работ. В данном случае устанавливается арматурный каркас и опалубочная конструкция, которая заливается раствором. Чтобы получить качественный результат, бетон обязательно нужно уплотнить. Для этого применяется глубинный вибрационный инструмент.
Конструктивная часть строительства дома из грузовых контейнеров: установка блоков
К установке грузовых контейнеров на участке можно приступать только после того, как полностью высохнет бетон. Для этого требуется не менее 22 дней. Если для строительства закуплены морские контейнеры длиной 40 футов, то для их монтажа потребуется автокран.
Полезный совет!
Пока сохнет бетон, можно выполнить антикоррозийную обработку грузовых контейнеров. Для этого блоки окрашиваются с помощью железного и свинцового сурика. В качестве финишного слоя лучше использовать краситель, который проявляет устойчивость к влиянию высоких температур.
Когда бетонная заливка полностью застыла, можно устанавливать модули на фундамент. Затем они обвязываются и обвариваются. Это делается для того чтобы закрепить конструкцию дома из двух контейнеров на фундаменте и соединить модули между собой.
На следующем этапе формируются внутренние межкомнатные перегородки. Для этих целей желательно использовать гипсокартонные листы. Этот материал прост в обращении и хорошо поддается обработке. В качестве альтернативы может использоваться профлист. Чтобы получить необходимые элементы, нужно снять внутренние стенки контейнера, которые не вписываются в требования проекта. Данная процедура выполняется непосредственно перед тем, как блоки устанавливаются на фундамент.
На этом же этапе вырезаются проемы под окна и двери. Для этого может использоваться болгарка. После того как операция выполнена, следует аккуратно обработать краевую часть среза специальными средствами.
Поскольку конструкция грузового контейнера не рассчитана на наличие отверстий, жесткость блока в результате монтажных работ значительно снизится. Чтобы укрепить несущую конструкцию в слабых местах, а именно в оконных и дверных проемах, необходимо по всему периметру приварить трубы или швеллеры. Сделать это нужно так, чтобы ребра жесткости проходили от пола до самого потолка.
Для соединения всех элементов несущей конструкции желательно использовать сплошной шов. Скрепление корпуса контейнера с ребрами жесткости лучше выполнить методом точечной сварки. При отсутствии навыков обращения со сварочным аппаратом желательно воспользоваться услугами профессионала, поскольку очень важно выдержать необходимые наклоны и углы.
Как выполнить кровельные работы в доме из контейнеров своими руками
Сначала формируется каркасная часть мансардного этажа. Для этих целей рекомендуется использовать брус с размером сечения 10х10 см. Фиксация каркаса к контейнеру осуществляется с помощью саморезов. Для скрепления брусьев между собой желательно использовать сантехнические болты.
Когда каркасная часть мансарды готова, устанавливается стропильная система. Если размер досок прописан в проектной документации правильно, то в процессе работы их не придется сращивать, благодаря чему конструкция получится более прочной и надежной. Для соединения стропил следует использовать саморезы. Далее формируется обрешетка, поверх которой укладываются стальные листы с оцинковкой. Выполняя кровельные работы, не следует забывать о паровой изоляции. Для этого между обрешеткой и стальными листами укладывается пароизоляционная пленка.
Существует и другой способ организации паровой изоляции. Для этого под самой кровлей с двух боков дома устанавливаются трубы длиной 40 см и диаметром 10 см (по 3 шт. с каждой стороны). Они будут обеспечивать вентиляцию пространства, находящегося под кровлей. Отверстия, предназначенные для монтажа труб, изготавливаются заранее.
Важно!
Стальные листы доступны в цене, однако они издают слишком много шума во время сильного дождя и ветра. Поэтому стоит отдать предпочтение мягким кровельным материалам, например, ондулину.
Качественное утепление современного домика из контейнеров
В теплоизоляции нуждаются любые помещения жилого назначения. Особенно это касается зданий из морских контейнеров, которые хорошо проводят не только тепло, но и звук. Поэтому не помешает вместе с теплоизоляцией выполнить монтаж звукоизоляционных материалов.
В качестве утеплителя могут использоваться следующие виды материалов:
- пенополиуретан;
- минеральная вата;
- пенопласт.
Максимальный срок эксплуатации минеральной ваты составляет 10 лет. После этого материал теряет все свои свойства. В отличие от минеральной ваты, пенополиуретан и пенопласт имеют плотную структуру. Благодаря этому монтаж такой теплоизоляции осуществляется быстро и легко. Срок службы пенопласта и пенополиуретана достигает 20 лет. Эти материалы обладают не только тепло-, но и звукоизоляционными свойствами, чем не может похвастать минеральная вата.
Для фиксации утеплителей можно использовать пластиковые штыри или специальный клеевой состав. Элементы из пластика вкручиваются в стенки грузового контейнера заранее. Поверх утеплителя настилается пленка из полиэтилена. Затем выполняется монтаж декоративного слоя, например, ДСП или вагонки.
Утепление полов выполняется аналогичным образом. Для этого стоит использовать пенополистирольные плиты. Применение минеральной ваты на полах крайне нежелательно, ведь она способна задерживать влагу. Дополнительно можно выполнить бетонную стяжку.
В процессе утепления очень важно не только применять качественные материалы, но и попытаться максимально устранить источники потери тепла. Как правило, в их роли выступают изъяны конструкции, к которым относятся:
- щели;
- мостики холода;
- участки с высокой тепловой проводимостью.
Основным источником тепловых потерь являются щели. Если сборка конструкции выполнена некачественно, все усилия по утеплению будут напрасными. Поэтому очень важно тщательно обработать все места соединений. Грузовые контейнеры изготовлены из металла. Этот материал обладает высокой тепловой проводимостью, поэтому утепление выполняется не только с внутренней, но и с наружной стороны здания.
Источником тепловых потерь могут служить оконные и дверные проемы. Для того чтобы исключить быстрое остывание помещений, необходимо подобрать качественные материалы для теплоизоляции дверной конструкции, а также стеклопакеты на окна соответствующей толщины.
Обратите внимание!
Не стоит экономить на утеплении. Если качественно выполнить все работы, в будущем можно существенно снизить затраты на отопление контейнерного здания. Поэтому к выбору материалов нужно подойти очень ответственно.
Какие материалы используются для внутренней и наружной отделки дома из блок-контейнеров
После того как выполнено внутреннее утепление дома, поверхность стен закрывается плитами ОСБ, гипсокартоном или фанерными листами. Эти материалы крепятся на жесткий каркас, который собирается из металлических профилей.
Потолочные покрытия могут быть самыми разнообразными:
- гипсокартон;
- система Армстронг;
- натяжные потолки;
- окрашенная древесина.
Для отделки стеновых поверхностей используются те же материалы, что и в стандартных домах, например: обои, пластиковые панели, декоративная штукатурка, краска. Полы покрываются кафельной плиткой, паркетом, линолеумом. Все зависит от назначения помещения, личных предпочтений и бюджетных возможностей владельца.
В наружных отделочных работах используются следующие материалы:
- природный камень;
- блок-хаус;
- сайдинг;
- декоративная штукатурка;
- искусственный камень;
- пластиковые панели.
Отделочный материал для наружных работ подбирается с учетом климатических условий и дизайна здания.
Подключение контейнерного дома к коммуникационным системам и отоплению
Поскольку контейнерные здания не нуждаются в массивном фундаменте, полы могут быть холодными. Оптимальным вариантом для модульных домов станет система отопления «теплый пол». При наличии качественного утепления на стенах и крыше она способна создать комфортные климатические условия для проживания. Система теплых полов не может быть использована в качестве основного источника отопления, особенно в том случае, если потолки в доме высокие. Потребуются дополнительные обогреватели.
Полезный совет!
Если установить на крыше здания солнечные батареи, можно организовать удобную и эффективную систему отопления.
Если дом будет использоваться для постоянного проживания, следует позаботиться о наличии всех необходимых коммуникаций. К их числу относится:
- канализационная система;
- электричество;
- водопровод;
- газоснабжение.
Если электричество и газоснабжение можно подвести к дому в любое время, то расчет канализации и водопровода осуществляется еще на этапе выполнения проектных работ. Если система централизованной подачи воды отсутствует, придется находить альтернативные источники, например, строить скважину и подключать насосное оборудование. При отсутствии условий для создания канализационной системы данный вопрос можно решить с помощью выгребной ямы или септика. Также не помешает монтаж системы, обеспечивающей естественную и принудительную вентиляцию.
Когда все строительные и отделочные работы завершены, можно приступать к обустройству дома из морских контейнеров. В отношении стиля оформления и мебели не существует никаких ограничений. Владелец может самостоятельно принимать решение, создавая дизайн помещений. Исключением являются такие стили, как барокко и классика, для которых характерно использование массивной мебели. В условиях низких потолков такое оформление будет неуместным.
Желательно избегать мрачных и темных расцветок. Белые и пастельные оттенки позволят зрительно увеличить пространство внутри контейнеров. Аналогичный эффект создают зеркала и глянцевые поверхности. Контейнерные здания идеально сочетаются с панорамными окнами. Этот тип остекления позволит придать сооружению современный внешний вид.
Воспользовавшись фантазией, можно превратить модульное строение в полноценный и комфортный дом, а наличие навесов или веранды придаст ему дополнительный уют.
Как построить дом из контейнеров: видео-обзор технологии
Жилищный вопрос всегда обстоял у нас достаточно остро. Многим молодым семьям десятилетиями приходится жить с родителями, ведь бремя ипотеки под силу далеко не всем. Сегодня мы выясним, как возвести
дом из контейнеров своими руками
. Такой способ строительства хорош тем, что занимает всего несколько месяцев, а усилия, которые нужно приложить, минимальны.
Эта технология была разработана за границей, где, как известно, не привыкли зря тратить деньги, и прибегают ко всем способам экономии – покупают все на распродажах, по нескольку раз перерабатывают материалы и т. д.
Для строительства дома мы будем использовать двенадцатиметров ые железные контейнеры весом по 4,5 тонны и сечением 2,7х2,4 м (это стандартные габариты). Площадь каждого из таких контейнеров будет составлять порядка 30 м².
- Эта конструкция легко переносит природные катаклизмы – ураганы, землетрясения и проч.
- Сами контейнеры можно впоследствии скрыть, например, вагонкой, а для внутренней отделки использовать гипсокартон. Так дом из контейнера не будет ничем не отличаться от обычного.
- Жильцу контейнерного дома можно не бояться проникновения грызунов или насекомых.
- Контейнерные дома подходят для любых климатических условий, главное, чтобы была качественная термоизоляция.
- Стоимость примерно в три раза ниже, чем при использовании других технологий.
- Контейнер можно совместить с другими строительными модулями – кирпичными, Ж/Б и т. д.
- На строительство уходит всего несколько месяцев, а если ограничиться минимальной отделкой, то и вовсе две-три недели.
- Дома из контейнеров не нуждаются в основательном фундаменте – их можно ставить даже на утрамбованную землю.
- Наконец, из контейнеров можно сделать не только жилой дом, но и хозяйственный объект или даже пристройку к уже имеющемуся дому.
Также стоит отметить, что контейнеры широко применяются на морозном грунте. Зачастую из них (преимущественно из тех, что предназначены для морских транспортировок) сооружают целые жилищные базы на крайнем Севере и Антарктиде.
Видео — Дом из контейнера своими руками
Строим дом из контейнеров: пошаговая инструкция
Итак, с преимуществами контейнерных домов разобрались, теперь приступаем непосредственно к строительному процессу. Для работы нам потребуются:
- железнодорожные контейнеры, 2 шт.;
- брус 10х10 см;
- брус 6х6 см;
- доски сечением 10х4 см длиной минимум 8 м;
- доски сечением 15х2,5 см длиной 6 м;
- саморезы длиной 1,3 см;
- ДСП 27,5х12х1,6 см;
- волнистые листы оцинкованной стали;
- сантехнические болты длиной 2,2 см;
- пара шестиметровых Ж/Б свай сечением 350х350 мм;
- минвата МП-50;
- профнастил С-10;
- счетчик Гейгера;
- сварочный аппарат;
- шуруповерт;
- «болгарка» и диски к ней (ø20 см, минимум 30 шт.);
- бензиновый генератор.
Этап первый: покупка контейнеров
Мы покупаем сразу два контейнера, стоить это будет (с учетом доставки) порядка 100 000 рублей. После доставки проверяем их на радиацию. Казалось бы, это лишнее, но в действительности именно в таких емкостях «любит» собираться остаточная радиация.
Обратите внимание! Средняя норма радиационного фона для наших широт – 35 микрорентген в час.
Этап второй: фундамент
Монолитный фундамент в нашем случае, безусловно, не подходит. Он быстро потрескается и его выдавит из земли (последняя, в свою очередь, начнет проседать). По этой причине фундамент должен быть минималистичным, как и наш будущий дом.
Обратите внимание! Если наш дом и начнет просаживаться, мы всегда сможем попросту поднять контейнер.
Делаем обычную «подушку» из любого инертного материала, к примеру, гравия. Далее на гравий устанавливаем сваи (с доставкой они обойдутся в 9 000 рублей) – параллельно, на расстоянии 6 метров друг от друга. В итоге у нас должен получиться идеальный квадрат.
Этап третий: установка контейнеров
Установить контейнеры своими силами мы не можем, хотя они и весят относительно немного – порядка 5-6 тонн. Для этого прибегаем к услугам спецтехники. После установки надежно свариваем контейнеры между собой, используя бензогенератор и сварочный аппарат.
Обратите внимание! Эту работу лучше доверить опытному сварщику, который обварил бы стык между контейнерами «по кругу».
Этап четвертый: внутренние работы
Далее приступаем к основным работам. Берем «болгарку» и отрезаем все ненужные элементы внутренних стен, прорезаем дверные и оконные проемы. Если дом строится летом (а в большинстве случаев так и есть), то к обеду становится слишком душно. В таком случае мы берем в руки «болгарку» лишь вечером и ранним утром, а непосредственно днем занимаемся установкой стропил крыши и возведением каркаса мансарды.
Этап пятый: кровля
Шаг 1.
Для изготовления каркаса мансарды используем брус сечением 10х10 см. Для крепления брусьев к контейнеру берем саморезы, а между собой соединяем специальными сантехническими болтами.
Шаг 2.
После сборки каркаса устанавливаем стропила для кровли. Каждое из стропил будет длиной 8 м, поэтому доски, как говорилось ранее, мы подбираем соответствующие – в противном случае их придется сращивать между собой. Соединяем все теми же саморезами, а не гвоздями (последние менее надежны).
- проложить между стальными листами и обрешеткой пароизоляционную пленку.
- если с пленкой по каким-либо причинам не вышло, то на двух боковых сторонах дома под самой крышей устанавливаем по три 40-сантиметровые трубы ø10 см для обеспечения вентиляции подкровельного пространства. Отверстия для этого проделываем заранее. На зиму эти трубы закрываться не будут, ведь мансарду используют преимущественно в летнее время.
Разумеется, первый способ пароизоляции более простой.
Обратите внимание! Стальная кровля, конечно, стоит недорого, но во время дождя или сильного ветра она будет очень шуметь. Поэтому предпочтительнее использовать какой-то мягкий материал, например, ондулин.
Этап шестой: утепление дома
Для начала из брусьев 6х6 см устанавливаем обрешетку (с шагом примерно в 90 см), прикрепив ее саморезами к стенам контейнеров. Затем берем плиты минеральной ваты (ее размеры – 6х100х300 см) и укладываем их между брусьями. Мы намеренно сделали шаг брусьев меньше ширины плит, чтобы вата улеглась плотнее.
Этап шестой: внешняя обшивка
Здесь все просто: берем купленный заранее профнастил, желательно светлых тонов, и фиксируем его на обрешетке саморезами.
Этап седьмой: внутреннее обустройство
Касаемо внутренней отделки, то она практически такая же, как внешняя: те же брусья обрешетки и минеральная вата, вот только утеплитель покрываем листами ДСП.
Обратите внимание! Между листами ДСП оставляем небольшие зазоры (примерно 1,5 см), которые впоследствии заполним монтажной пеной – это предотвратит попадание пыли в дом.
После этого в оконные проемы монтируем стеклопакеты, желательно двухкамерные.
При утеплении пола используем привычную для нас схему: монтируем обрешетку из того же бруса и укладываем маты утеплителя. Далее делаем настил, используя доски 15х4 см, поверх которых укладываем оставшееся ДСП.
Этап восьмой: печь
Для установки печи делаем в ДСП прямоугольный вырез в заранее выбранном месте, после чего укладываем кирпичную печь прямо на металлическое дно контейнера. Опасаться по поводу того, что с печью что-то случится, не стоит, и тому есть причины.
- Прежде всего, дно контейнера способно выдерживать довольно большие нагрузки.
- Сам контейнер – это, по сути, железная коробка. Как бы он ни наклонялся, печь будет делать это вместе с ним. Нам же остается лишь следить, чтобы отклонения были небольшими – для этого мы своевременно будем их исправлять.
Так, уже через год контейнерный дом может немного осесть (предположительн о в южную сторону, т. к. почва там греется быстрее). Чтобы исправить это, приподнимаем одну из сторон автомобильным домкратом и подкладываем под нее тротуарную плитку 50х50 см. Все, дом успешно возвращен в свое первоначальное положение.
Этап девятый: коммуникации
Электричество лучше проводить по специальным каналам, а не по наружным стенам. Во-первых, так безопаснее, а во-вторых, более аккуратно. При желании можем также обустроить канализационную систему – для этого достаточно проделать в полу небольшое отверстие, через которое канализационная труба будет вести к заранее вырытой дренажной канаве или септику.
Касаемо водоснабжения ничего советовать не можем – все зависит от конкретных условий проживания и выбранного места.
Альтернатива. Покупка контейнерного дома
Если есть свободная наличность, то можно приобрести уже готовый контейнерный дом. Сегодня есть немало производителей такого жилья как российских, так и китайских. Так, дом средних размеров (2,5х4 м) с утеплением и отделкой будет стоить порядка 90 000 рублей. Его вполне хватит для комфортного проживания двух или трех человек.
Более дорогие модели (2,5 х8 м) с сантехникой и душем обойдутся примерно в 170 000 рублей.
Стоит отметить, что такие дома можно перемещать с места на место, но делать это, разумеется, нужно с предельной осторожностью.
Выводы
Вот мы и соорудили контейнерный дом – вполне сносный бюджетный вариант жилья для среднестатистиче ского гражданина. Пожалуй, не стоит объяснять, почему самодельный дом, который обошелся примерно в 300 000 рублей, стоит больше уже готовых конструкций. Для тех, кому это все же непонятно, говорим: наш дом в два раза больше, т. к. состоит из двух контейнеров, и при этом он оборудован мансардой.
Видео – Дом из морских контейнеров
Кредит на приобретение недвижимости для многих семей становится неподъемным. При таком варианте, дома из морских контейнеров являются наиболее оптимальным решением жилищного вопроса. Кроме того, приобретение подобного дома – это отличный способ поменять квартиру на небольшой, но свой дом.
Архитектор из США Адам Калкин первоначально построил такой дом в качестве эксперимента, который впоследствии стал реальностью для многих семей по всему миру.
Характеристики морских контейнеров
Контейнеры для морских перевозок стандартизированы по международной классификации ISO и имеют код 8301981. Изначально контейнеры производились по нормативам США, но позднее были приняты поправки и контейнеры приняли утвержденные размеры. Это связано с необходимостью соответствовать европейским дорожным нормам перевозок.
Существуют две основные модификации контейнеров на 20 и на 40 футов. Их масса составляет 2,3 и 3,9 тонны соответственно.
Еще один вариант контейнера, получивший широкое распространение в последние годы, это конструкция длиной 45 футов. Основные преимущества такого контейнера это размер, обеспечивающий большее рабочее пространство, и возможность перевозки на прицепах стандартного размера. Появление 45-футовых контейнеров привело к усилению конкуренции между грузоперевозчиками, поскольку стандартный полуприцеп стал менее востребованным.
Материал, из которого выполнен контейнер, является прочным стальным сплавом. Качественная конструкция дает возможность установки контейнеров в несколько рядов, количество которых достигает тринадцати и более. Крепление контейнеров осуществляется твистлоками.
Варианты типоразмеров морских контейнеров не ограничиваются указанными 20, 40 и 45 футами. В зависимости от характеристики перевозимого груза, могут использоваться и специализированные контейнеры. К таковым относятся контейнеры-рефрижераторы, цистерны для жидкостей и газов, контейнеры для транспортировки животных.
Размеры морских контейнеров 20 футов, 40 футов, 45 футов
Проекты домов из морских контейнеров
Несомненным преимуществом контейнерного дома является его способность размещаться на участке небольшого размера и нестандартной формы. Кроме того, контейнер можно модернизировать до состояния, пригодного для постоянного проживания при различных климатических условиях.
Тем не менее в России подобные дома встречаются достаточно редко, в то время как за океаном и в Европе такие конструкции получили повсеместное применение.
Проекты дома из 1 высокого 40 футового контейнера
Наиболее доступный и быстровозводимый дом состоит из одного контейнера длиной в 40 футов. Как правило, за контейнер такого размера требуется заплатить от 2 до 2,5 тысячи долларов. Поэтому, если есть желание увеличить площадь дома, а финансовые возможности это позволяют, то установить 2-3 контейнера рядом не составит труда.
Приобретение трех контейнеров обойдется в сумму от 6 до 7 тысяч долларов, а полезная площадь дома будет достигать 85,2 квадратных метра при длине 12 и ширине 7,1 метра.
При планировании сооружения, состоящего из нескольких этажей, экономия по сравнению с другими типами построек еще более увеличивается.
Проект дома из двух рядом стоящих контейнеров
Для проектирования и установки дачного домика, не требующего большой площади, достаточно приобрести пару контейнеров. Вариантов же их компоновки существует несколько.
В качестве примера давайте рассмотрим следующие из контейнеров:
Двухэтажный вариант дачного дома из контейнеров
Подобный вариант наиболее подходит для использования на участке с ограниченной площадью. В этом случае контейнеры устанавливаются один на другой, качественный материал, из которого сделаны контейнеры, обеспечивает необходимую прочность и жесткость конструкции. В зависимости от желания владельца, этажи соединяются лестницей либо часть пола одного контейнера и часть потолка другого ликвидируются. Тем самым достигается двухуровневость конструкции.
Сборный проект из нескольких блоков
В условиях российского рыка недвижимости, дом из контейнеров может стать оптимальным для многих категорий населения. Например, для семей, которым приобретение квартиры представляется слишком дорогостоящей покупкой либо для желающих перебраться из квартиры в собственный дом.
Составление проекта
Фундамент под контейнерные дома
Так как контейнер выполнен из прочной, зачастую легированной, стали, его масса может быть достаточно большой. Поэтому дом из морского контейнера следует монтировать на качественный ленточный .
Конструкция фундамента не отличается от стандартного ленточного монолита. В подготовленную канаву монтируется металлическая арматура. По периметру устанавливается опалубка из досок, необходимая для поднятия фундамента выше уровня земли.
Морские контейнеры выполняются из прочной стали, поэтому наиболее приемлемым способом их соединения между собой является сварка. В процессе сборки многоконтейнерной конструкции используются металлические крепежные элементы, такие как уголки либо швеллеры.
В процессе сборки дома вырезаются оконные и дверные проемы с помощью болгарки. После выполнения операции, край среза следует аккуратно обработать спецсредствами.
Как утеплить дом из контейнеров?
Утеплять снаружи или изнутри?
Как правильно утеплить изнутри?
Третий слой – декоративный. Стены обшиваются вагонкой, ДСП, другими типами покрытий.
Утепление пола практически не отличается от аналогичных операций со стенами. В качестве дополнения, пол иногда заливают стяжкой. Для утепления подходят пенополистирольные плиты, которые, в отличие от минеральной ваты, не обладают способностью задерживать влагу.
Внешняя и внутренняя отделка
Все работы по приданию стенам законченного внешнего вида следует выполнять только после ликвидации пятен ржавчины и нанесения антикоррозийного покрытия. Утепляются стены с помощью набивки обрешетки и дальнейшего нанесения теплоизоляционного покрытия. По окончании процесса утепления поверхность закрывается фанерой либо ОСБ.
Конечным этапом внешней отделки является нанесение одного из следующих видов покрытий:
- Природный либо искусственный камень;
- Штукатурная декоративная смесь;
- Блок-хаус;
- либо сайдинг.
Каждый из упомянутых материалов имеет право на существование и хорош в определенной ситуации. Монтаж подобных конструкций не очень сложен, при наличии небольшого опыта с ним может справиться любой человек.
Сколько стоит дом из контейнера?
Для того чтобы оценить объем затрат на возведение контейнерного дома, необходимо определить необходимую площадь и, исходя из этих данных, количество используемых контейнеров. В качестве примера калькуляции работ можно рассмотреть одноэтажный дом, для изготовления которого используется два контейнера по 40 футов.
Общая площадь конструкции порядка 55 квадратных метров. В стенах вырезаны три квадратных окна со стороной в один метр и одно большое окно 2,5 на 1 метр. Стандартная входная дверь имеет габариты 2,1 на 1 метр.
Фундамент
Вариант 1. Конструкция столбчатого типа, выполненная из керамического кирпича, состоит из 23 столбов. Этого вполне достаточно для обустройства надежной опоры дома. Столбы располагаются друг от друга на расстоянии два метра и возвышаются над поверхностью земли на четыре ряда. Под землю кладка уходит на пять рядов. Для возведения такого фундамента требуется 359 кирпичей общей стоимостью 130 долларов.
Деревянный каркас по наружным стенам
Для изготовления каркаса применяется брус с сечение 100х50 мм. Рейки набиваются с интервалом в один метр друг от друга и в дальнейшем обшиваются вагонкой. Общее количество материала составляет 34 бруска длиной 2,6 метра каждый (0,442 м3) и 240 досок вагонки размером 12,5х96х3000 миллиметров (69 м2). Затраты на облицовку внешних стен составляют 290 долларов.
Деревянный потолок
В качестве каркаса используется такой же брус, как и для стен в количестве 26 штук. Смонтированный каркас обшивается ДВП размером 1700х2745х3,2 миллиметров. Общая стоимость материала составляет 140 долларов.
Утепление кровли
Минеральной плиты толщиной 10 см и площадью 55 квадратных метров будет вполне достаточно для утепления кровли. За материал потребуется отдать 330 долларов.
Деревянный пол
Конструкция каркаса для пола не отличается от потолочного и стенового. Для площади пола в 55 м2 потребуется 26 реек. На пол настилается доска размером 100х40х2500 миллиметров. Общая стоимость полового покрытия 513 долларов.
Утепление пола
Минеральная плита, используемая в качестве теплоизолятора, абсолютно идентична потолочной. Стоимость также не отличается и составляет 330 долларов.
В итоге общая стоимость материалов, необходимых для возведения небольшого дома площадью 55 квадратных метров, составляет 6346 долларов, что является достаточно бюджетным вариантом. При использовании наемной силы затраты увеличатся примерно в 2 раза. При желании владельца, дом можно облагородить и сделать более удобным и комфортным. Затраты при этом увеличатся еще более.
Стоит отметить, что стоимость дома из морских контейнеров приведена в качестве примера и может меняться в зависимости от цены материала и региона постройки дома.
Если вы хотите быстро и с наименьшими затратами решить жилищный вопрос, рекомендуем вам задуматься о строительстве дома из морских контейнеров. Еще несколько десятилетий назад никто и представить не мог, что морской контейнер можно использовать в качестве временного или даже постоянного жилья, но технологии не стоят на месте, и сегодня, в свете молниеносного роста цен на жилье, использование морского контейнера под дом уже не кажется противоестественным. Несмотря на то, что в России, в силу недостаточного распространения контейнерного строительства, вам вряд ли удастся найти готовые проекты домов из контейнеров, за рубежом востребованность таких домов не вызывает сомнения и обусловлена надежностью и практичностью построек. По мнению специалистов, низкая популярность контейнерного строительства на территории России обусловлена недостаточной осведомленностью населения о преимуществах построек, возведенных по данной технологии, а также недостаточной освещенностью этого вопроса этого вопроса в сети. Чтобы исправить это, в настоящей статье мы в некотором смысле постараемся поспособствовать популярности домов из морских контейнеров в России и рассмотреть вопросы их возведения и обустройства.
Жилые дома из контейнеров: новая эпоха в строительстве
Несмотря на то, что популярность контейнерного строительства в России еще не достигла своего пика, специалисты по праву считают его технологией будущего, которая в ближайшее время обретет своих преданных поклонников. Подтверждением этому является востребованность контейнерного строительства в странах Европы, где данная технология способствовала зарождению новой самостоятельной и прибыльной отрасли бизнеса, основу которой составляет проектирование и производство контейнерных «домов-полуфабрикатов». Под полуфабрикатом подразумевается модель-основа, изготовленная на фабрике, структуру которой составляют стены и черновые полы. В ней уже заложены система отопления и электропроводка, вставлены окна и двери. Приобретая необходимое количество заготовок, предусмотренное проектом, их доставляют на строительную площадку, где они объединяются в единую постройку. Производство подобных заготовок позволяет значительно сократить срок возведения контейнерных домов, что является их наиболее важным преимуществом.
Преимущества и недостатки домов из морских контейнеров
Преимущества домов из морских контейнеров:
- Дома из морских контейнеров признаны одной из самих сейсмически устойчивых построек, в связи с чем, они часто возводятся на местности, где нередки природные катаклизмы — землетрясения, ураганы и другие;
- Контейнерные постройки мало чем отличаются от капитальных домов: снаружи их можно отделать вагонкой, изнутри — гипсокартоном;
- Если вы живете в доме, для возведения которого использовались морские контейнеры, вы можете не бояться проникновения грызунов и насекомых;
- Дома из морских контейнеров могут возводиться в любых климатических условиях, но, несмотря на такую универсальность, важно помнить о необходимости качественной теплоизоляции;
- Общая стоимость постройки из морских контейнеров в несколько раз ниже стоимости капитальных домов;
- Если вы решили построить дом из морских контейнеров, помните, что они выгодно сочетаются с различными строительными модулями, в том числе кирпичными, железобетонными и т. д.;
- Возведение жилой постройки из морских контейнеров занимает не более двух-трех месяцев, а если минимизировать отделочные мероприятия и ограничиться простой отделкой, для завершения строительных мероприятий будет достаточно двух-трех недель;
- В виду небольшой нагрузки, которую несут контейнерные постройки, они не нуждаются в монтаже основательного фундамента и могут быть установлены даже на тщательно утрамбованную землю;
- Морские контейнеры могут использоваться не только для строительства жилых домов, но и хозяйственных объектов. Кроме того, из них можно обустроить хозяйственную пристройку к уже имеющемуся строению;
- Широко востребована установка контейнерных построек на промерзшем грунте, в связи с чем, зачастую из морских контейнеров, преимущественно тех, что предназначены для морских транспортировок, практикуют сооружение целых жилищных баз на крайнем севере и Антарктиде;
- Если проект вашей постройки не подразумевает создание витражей на всю стену, она максимально защитит вас от постороннего вторжения;
- Постройки из морских контейнеров могут успешно возводиться на территориях с большим уклоном.
Недостатки домов из морских контейнеров:
- Зачастую для обработки стен и пола морских контейнеров используются специальные краски и высокотоксичные составы, защищающие их от атмосферных воздействий. В связи с этим, перед тем, как использовать такие контейнеры для строительства дома, позаботьтесь об удалении этих составов;
- В летнее время дом из морских контейнеров сильно нагревается, тогда как в зимнее — охлаждается. Учитывая это, позаботьтесь об организации эффективного теплоизоляционного слоя;
- Во избежание появления ржавчины на поверхности постройки, необходимо организовать тщательное наблюдение и уход за ней;
- Одним из недостатков, характерных для контейнерных построек, являются низкие потолки (если произвести утепление пола и потолка, высота последних будет составлять около 2,35 м).
Дома из морских контейнеров: проекты, чертежи, основы возведения
Дом из морских контейнеров — конструктивное решение, ставшее популярным в Европе и Америке благодаря известному архитектору Адаму Калкину. Именно он стал автором первого в истории контейнерного дома, ставшего его творческим экспериментом. Для его возведения использовалось три морских контейнера. Как выяснилось, приобретение морских контейнеров не вызвало сложностей, а финансовая сторона вопроса лишь порадовала автора этого ноу-хау. Со временем постройки из морских контейнеров стали использоваться не только в качестве жилых домов, но и гостиничных комплексов, ресторанов и торговых помещений, а их высокая сейсмическая устойчивость и мобильность сделала их особо востребованными на территориях с частыми природными катаклизмами.
Для строительства жилого дома используются преимущественно стандартные 40-ка футовые грузовые контейнеры, для которых характерны следующие внутренние габариты:
- высота — около 2,4 м;
- длина — 12 м;
- ширина — 2,35 м.
Если из одного 40-ка футового контейнера можно соорудить просторную пристройку или подсобное помещение, а также оборудовать хранилище или мастерскую, то из двух-трех строительных блоков можно выстроить дом, площадь которого будет составлять 60-120 кв. метров. Например, два 40-ка футовых контейнера, установленных друг напротив друга, можно соединить витражами и в последующем накрыть общей кровлей.
Важно!
Отличительной особенностью морских контейнеров является высокая прочность. Изначально морские контейнеры изготавливаются таким образом, чтобы впоследствии их можно было устанавливать на морской палубе друг на друга в количестве 8-10 штук. Учитывая эту особенность, можно предполагать, что, морские контейнеры можно использовать для возведения двух- и трехэтажных построек. Однако для повышения надежности строения контейнеры их необходимо закреплять сваркой.
Важно!
Для возведения жилых построек можно использовать два, три и более морских контейнера. Если для изготовления дома было использовано более двух контейнеров, пространство между разнесенными контейнерами, оставшееся свободным, необходимо обустроить под дополнительное помещение, используя максимальное остекление.
Строительство домов из морских контейнеров, цена которых в среднем на 30 % ниже капитальных построек, начинается с разработки проекта и приобретения строительных блоков — грузовых контейнеров. В свободном доступе в сети можно найти большое количество проектов домов из морских контейнеров, поражающих своим разнообразием. Наиболее распространенные проекты предполагают использование двух контейнеров, которые устанавливают рядом или под углом друг к другу в виде буквы «Г» или «Т». Также допускается установка контейнеров друг на друга.
Сдвинув контейнеры относительно друг друга, вы усложните фасад вашего дома, одновременно сделав его более оригинальным. Напротив, раздвинув контейнеры, вы создадите дополнительное свободное пространство, которое можно использовать под просторную гостиную с максимальным остеклением.
Следующий проект контейнерного дома, состоящий из двух блоков, которые объединены скатной крышей. В одном из блоков планируют две спальни, в другом — санузел и кухню. В свободном пространстве между блоками обустраивают гостиную, в зоне которой высота потолков будет больше за счет скатов кровли.
Мастера, имеющие опыт строительства контейнерных домов, рекомендуют поручить специалистам создание проектов домов из морских контейнеров, с чертежом в этом случае проблем не возникнет, так как они проработают все до малейших деталей.
Жилой дом из морских контейнеров: этапы строительства
Если вы приняли решение возвести дом из морских контейнеров самостоятельно, не привлекая при этом подрядную организацию, учитывайте, что строительство займет больше времени, а также не обойдется без привлечения спецтехники и навыков работы со сваркой. Прежде чем приступить к строительству, необходимо приобрести контейнеры. Для возведения полноценного жилого дома специалисты рекомендуют приобретать не менее двух контейнеров, которые в среднем (с учетом доставки) будут стоить около 100 тыс. рублей.
Важно!
После того, как контейнеры будут доставлены на строительную площадку, их необходимо проверить на радиацию. Как бы это странно не звучало, но именно в таких емкостях зачастую скапливается остаточная радиация. Что касается нормы для радиационного фона, для наших широт, она составляет 35 микрорентген в час.
Обустройство фундамента
Первый и один из самых важных этапов строительства из контейнеров — обустройство фундамента. Если вы поставите дом непосредственно на грунт, без фундамента, то грунт под постройкой будет проседать, а сама постройка — промерзать. Выбор конструкции фундамента для контейнерного дома осуществляется с учетом его размеров и характеристик местности. Если вы планируете возвести обычную бытовку для времяпрепровождения в теплое время года, в качестве фундамента можно использовать несколько фундаментных блоков. Однако если речь идет о двухэтажном жилом доме, созданном по авторскому проекту, он нуждается в предварительной подготовке фундамента. В большинстве случаев рекомендуют отдавать предпочтение армированному ленточному фундаменту.
Для этого вырывают котлован, размеры и глубина которого соответствуют требованиям проекта. Для этого потребуется вызов специализированной техники — экскаватора и грузовых машин для вывоза грунта. Что касается наиболее предпочтительных конструкций фундамента, в большинстве случаев специалисты рекомендуют отдавать предпочтение ленточному фундаменту, однако иногда не обойтись и без свай. Последнее актуально для регионов со слабым заболоченным грунтом.
Учитывая большой вес контейнерной постройки (особенно если речь идет о двухэтажном доме из морских контейнеров), зачастую возникает необходимость подготовки надежного основания, функцию которого может выполнить только монолитный фундамент. Для его заливки потребуется цемент марки 400, песок и вода. Чтобы увеличить срок его эксплуатации, зачастую в раствор добавляют специальные затвердители и иные добавки.
Бетонные работы, которые являются неотъемлемым этапом возведения фундамента, можно упростить, заказав готовую бетонную смесь. В этом случае подготовка фундамента будет состоять из монтажа арматурного каркаса в соответствии с чертежами, установки опалубки и заливки раствора. Не забудьте уплотнить бетон, используя специальные глубинные вибрационные инструменты.
Конструктивный этап — установка контейнеров
Приступать к нему можно только по истечении окончательного созревания бетона, которое займет не менее 22 дней с момента заливки фундамента.
Важно!
Во время вызревания бетона произведите антикоррозийную обработку контейнеров. Для этого покрасьте их железным, а затем свинцовым суриком. Только после этого покройте их краской, устойчивой к воздействию высоких температур.
После окончательного вызревания бетона и антикоррозийной обработки контейнеров приступайте к следующему этапу — установке контейнеров на фундамент. Если речь идет о строительстве дома из морского контейнера 40 футов, не обойтись без привлечения спецтехники, а именно автокрана. После того, как вы установили модули, их необходимо обвязать и обварить, скрепив с фундаментом и между собой. Далее устанавливают внутренние межкомнатные перегородки. Проще всего установить перегородки из гипсокартонного листа, монтаж которых легко осуществить собственноручно. Однако на практике чаще пользуются другим приемом. Он подразумевает снятие и обрезание профлиста, из которого изготовлены стенки контейнера, которые окажутся внутри постройки и не предусмотрены проектом. Это производится непосредственно перед их установкой на фундамент. На данном этапе также необходимо прорезать двери и окна.
Важно!
Если для строительства жилого дома помимо 40-ка футовых используются 20-ти футовые контейнеры, необходимо учитывать разницу в их размерах. Комбинирование контейнеров с разными размерами позволяет создать постройку с необычным, авторским дизайном.
Монтаж кровли: основные этапы
Этап 1.
Для изготовления каркаса мансарды может использоваться брус с сечением 10х10 см. Чтобы прикрепить брусья к контейнеру, используйте саморезы, а для их скрепления между собой — сантехнические болты.
Этап 2.
Подготовив каркас мансарды, установите стропила для кровли. Размеры досок для стропил подбирают в соответствии с проектом, чтобы впоследствии не пришлось сращивать их между собой. Соединение стропил осуществляется с помощью саморезов.
Этап 3.
Установив стропила, займитесь монтажом обрешетки, поверх которой необходимо уложить листы оцинкованной стали. При этом важно не забывать об обустройстве пароизоляции, что можно осуществить, руководствуясь двумя вариантами:
- Между стальными листами и обрешеткой вы можете проложить пароизоляционную пленку;
- На двух боковых сторонах дома под самой кровлей можно установить по три 40-ка сантиметровые трубы диаметром 10 см, что позволит обеспечить эффективную вентиляцию подкровельного пространства. Отверстия для установки труб необходимо проделать заранее. Учитывая тот факт, что эксплуатация мансарды происходит преимущественно в летнее время, на зиму эти трубы не будут закрываться.
Очевидно, что первый способ является наиболее простым.
Важно!
Отдавая предпочтение стальной кровле, помните, что во время сильного ветра и дождя она будет очень сильно шуметь. В связи с этим, несмотря на то, что стальная кровля является эконом-вариантом, специалисты рекомендуют от него отказаться и сделать выбор в пользу мягких материалов, например, ондулина.
Утепление дома из морских контейнеров
Теплоизоляция — неотъемлемый этап строительства любого жилого помещения. При строительстве дома из морских контейнеров это особенно важно, а так как металл, из которого изготовлены контейнеры, является хорошим проводником звуков, важно предусмотреть не только тепло-, но и звукоизоляцию. Для утепления дома из морских контейнеров можно использовать следующие материалы:
- Минеральную вату;
- Пенополиуретан;
- Пенопласт.
Срок эксплуатации минеральной ваты не превышает 10 лет, после чего она утрачивает свои первоначальные характеристики. Пенопласт и пенополиуретан, в отличие от предыдущего материала, благодаря своей плотной структуре монтируются очень быстро, а их эксплуатационный срок на порядок выше и составляет порядка 20 лет. Они обладают не только тепло-, но и звукоизоляционными функциями, что не свойственно минеральной вате. Крепление любого из перечисленных материалов осуществляется с помощью специального клея или пластиковых штырей. Если вы отдали предпочтение штырям, их необходимо заранее вкрутить в стенки контейнера. Сверху на материалы настилают полиэтиленовую пленку.
Внутренняя и внешняя отделка дома из морских контейнеров
После того, как вы произвели утепление, на поверхности строения произведите монтаж обрешетки из дерева или металла, на которую впоследствии будет монтироваться фанерные или ОСБ листы для последующей отделки.
Для внешней отделки строения можно использовать следующие материалы:
- Сайдинг;
- Блок-хаус;
- Декоративная штукатурка;
- Натуральный или искусственный камень;
- Пластик.
Пластик, блок-хаус и сайдинг крепится к деревянной обрешетке, предварительно защищенной лаком. Декоративный и натуральный камень — на прогрунтованную поверхность с использованием бетона или специальных клеящих веществ. Штукатурку наносят на ровную поверхность с помощью шпателей различных размеров.
Внутренняя отделка практически не отличается от внешней — на брусья обрешетки монтируют утеплитель, который покрывают листами фанеры или ОСБ. При этом пространство между листами фанеры должно составлять не менее 1,5 см. Впоследствии они заполняются монтажной пеной, что предотвратит попадание пыли в дом.
Производя внутреннюю отделку, фанеру и ОСБ можно заменить гипсокартоном, который впоследствии можно облицевать краской, штукатуркой, обоями и другими доступными материалами.
Отделывая потолок, необходимо помнить, что его высота не превышает 2, 4 метра, и, как следствие, отказаться от многоуровневых потолочных конструкций. Специалисты рекомендуют остановиться на обычном потолке, отделанным гипсокартоном, или установить натяжные потолки.
Если у вас большая семья, и частые выезды на пикники уже давно стали традицией, у нас вы можете заказать просторный и недорогой дачный дом из контейнера
. Довольно вместительный дом получится, если объединить сразу два-три контейнера. Можно разместить два контейнера в виде буквы «Г» или «Т», либо поставить их друг на друга. Для установки на дачном участке идеально подходят стандартные 40-футовые контейнеры – эти модули очень надежны, функциональны, устойчивы к погодным условиям, их стоимость окупается большим сроком службы. Высота контейнера High Cube примерно 2,9 м – этого вполне достаточно, чтобы максимально комфортно обустроить жилое пространство. Проекты домов из контейнеров, цены и фото
вы посмотрите на нашем сайте. Обычно выбирают маленький одноэтажный вариант, двухэтажный и часто делают фазенду.
Комплекс работ с контейнерами для постройки здания
Строительство дома из контейнеров всегда состоит из целого комплекса работ. Сюда входят сварочные, малярные, отделочные работы, установка утеплителя, монтаж электропроводки, отопления и водопровода. Из обычного грузового контейнера можно сделать гараж для автомобиля или жилое помещение для работников на стройке. Расскажите ваше видение проекта, подскажут вам и помогут реализовать задуманное.
Модульное здание из блок контейнеров и его применение
У большинства людей постройки из контейнеров ассоциируется с недорогим малогабаритным жильем, но это не совсем так. Современные технологии позволяют превратить обычный морской контейнер в отель, роскошный многоэтажный дом или переоборудовать его в офисное помещение. Контейнеры рассчитаны на тяжелые условия эксплуатации, выдерживают суровую зиму и зной летом, такие постройки пригодны даже для постоянного проживания. Подобное использование грузовых контейнеров очень популярно в Америке и Европе, а в последнее время услуги по переоборудованию контейнеров все чаще заказывают и в России. На нашем сайте вы можете найти проекты домов из контейнеров с фото и ценами.
Проект из 4 двадцаток
Свойства контейнеров применительно к домам из контейнеров
Контейнер удобен тем что имеет в своей конструкции прочный металлический каркас который можно использовать как основы для дома дачи или любого жилого помещения.
Боковые стенки легко поддаются модернизации в них обычно монтируются окна стенки обшиваются минеральной ватой на базальтовой основе, что обеспечивает превосходную термо и шумоизоляцию.
Дома из морских контейнеров – удачное решение для самостоятельной постройки не только или , но и полноценного жилья. Некоторые люди строят его, используя в качестве основы бетон и сталь, стекло, преследуя цель подчеркнуть свой достаток и положение в обществе, а другие выбирают нестандартные решения. Есть и те, кто возводит себе жилье, воспользовавшись из морских контейнеров, и в последнее время их число увеличивается. Построить такое здание возможно, сделав его частью строения, или же возвести его полностью, соединив между собой несколько морских контейнеров.
Существует также ряд организаций, которые занимаются постройкой домов из морских контейнеров под ключ.
Морской контейнер в качестве домика для гостей
Самым интересным является проект, в котором контейнер выступает как гостевой дом. Он получается незначительным по размерам, но имеет очень аккуратный, компактный и эффектный внешний вид. Хотя его габариты и форма не дают возможности сильно предаваться фантазиям с элементами декора, но в итоге получается красивый и функциональный, имеющий свою индивидуальность особняк.
Грамотное и смелое комбинирование материалов, а также разные цветовые решения способствуют созданию из простой конструкции отличного места для жилья и в частности отдыха, которое гармонично .
Проекты домов из морских контейнеров
Сама идея и уникальность использования морского контейнера в качестве базы для будущего жилья необычна и индивидуальна. Существуют умельцы, которые создают дома из морских контейнеров своими руками в связи с тем, что чертеж для этого возможно создать самому либо заказать в специализированных организациях.
Из-за возрастающего интереса и спроса на проекты подобных домов увеличивается и число людей, проявляющих интерес к такому виду жилья. Многие задумываются о возведении подобного строения собственными усилиями. Такой тип дома вполне возможно построить собственноручно, и это значительно сократит расходы, особенно в сравнении с . Он обладает отличной сейсмической стойкостью и очень быстро строится. Основным преимуществом такого сооружения является его низкая себестоимость.
Мифы о конструкциях из контейнеров
Некоторые противники возведения такого рода строений заблуждаются в том, что:
- дом из контейнера целесообразен лишь в теплых странах и не может использоваться в наших холодных зимних климатических условиях в связи с контейнера;
- созданные дома не могут иметь эстетичный вид;
- построенное жилье не сможет иметь больших комнат и будет состоять лишь из , как в трамваях;
- недолговечность эксплуатации в связи с подверженностью металла коррозии, что обусловливает быстрое разрушение конструкций.
Все вышеперечисленное не является фактом. Ниже мы рассмотрим процесс создания контейнерного жилья и развеем эти мифы.
Контейнеры дают возможность постройки достаточно большого здания (единственным минусом является нераспространенность у нас такого метода постройки). В случае, когда вы хотите отойти от установившихся стереотипов и менталитета большинства, можно смело заниматься разработкой проекта и дальнейшим воплощением его в жизнь. Это даст вам возможность выделиться из серой массы, воплотить все желания в своем жилье и сэкономить семейный бюджет за счет более дешевой стоимости материалов и работ.
Бизнесмены считают, что стать богатым, работая на кого-то, нельзя, поэтому для этого необходимо открывать собственное дело. Но как совершить ? Зачастую самым лучшим вариантом для открытия собственного бизнеса является инновационная идея, только набирающая популярность. Одной из таких идей можно считать строительство дома из морских контейнеров. Однако стоит отметить, что она подойдет и тем, кто просто хочет обзавестись недорогим и интересным жильем.
Дома из морских контейнеров
Идею о строительстве домов из морских контейнеров преподнес миру архитектор из США Адам Калкин, чей эксперимент оказался как нельзя полезен тем, кто располагает небольшим бюджетом. Опыты с такими домами до сих пор продолжаются, и разработки дополняются новыми идеями.
Преимущества
Серьезных преимуществ у домов такого типа достаточно много:
- Возможность монтажа на площадях с любым горизонтальным уклоном.
- Небольшие затраты при довольно больших площадях (около 30 квадратных метров).
- Возможна постройка нескольких этажей.
- Совместимость с конструкциями любого типа и из любых материалов.
- Быстрота и простота постройки.
- Пригодность для строительства в условиях обильного снегопада.
- Прочность и надежность постройки.
Благодаря данным преимуществам постройка из морских контейнеров может использоваться как , вариант дачи, загородного дома или полноценного жилья (в качестве альтернативы обычной квартире).
Недостатки
Недостатков у построек из морских контейнеров значительно меньше, чем достоинств. Однако их нельзя сбрасывать со счетов и игнорировать. Основные недостатки:
- Токсичные составы, покрывающие поверхность морских контейнеров.
- Конструкцию необходимо дополнительно утеплять.
- Жилье будет требовать постоянного ухода и защиты от коррозии.
- Небольшая высота потолков (2,35 метра).
Все лишние вещества с поверхностей (особенно токсичные) перед строительством необходимо удалять в обязательном порядке.
Разновидности и устройство контейнеров
Сегодня можно приобрести четыре вида морских контейнеров:
- 20-футовый, 11 европаллет;
- 40-футовый стандартный, 25 европаллет;
- 40-футовый широкий, 30 европаллет;
- 45-футовый широкий, 33 европаллет.
Масса контейнеров составляет от 2 до 4 тонн. Конструкции делаются из сверхпрочных сплавов, способных выдерживать постройки с несколькими этажами.
Проекты домов из морских контейнеров
Благодаря низкой себестоимости и возможности проявлять фантазию можно не думать над тем, как , а заняться простым строительством.
Совет:
вне зависимости от того, является ли идея строительства из морских контейнеров бизнес-идеей или это просто необходимость постройки собственного жилья, начинать планирование можно исходя из стандартных заготовок. Их можно модифицировать и дополнять в зависимости от желаний, средств и предпочтений.
Проект из одного 40-футового контейнера
Один 40-футовый контейнер обойдется в сумму около 2-3 тысяч долларов, и его низкая стоимость позволяет использовать два-три таких контейнера для постройки полноценного дома со всеми удобствами. Для дачного варианта хватит и двух. Для отопления дома достаточно установить газовый котел или простую дровяную печь. Топку желательно устанавливать с внешней стороны дома, чтобы внутри не было дыма.
Проект дома в два этажа
Имея только небольшой участок земли? Можно построить и продать или сдать в аренду двухэтажный домик из морских контейнеров. Возможности для тех, кто хочет спроектировать такое жилище, практически безграничны. Ведь можно нарастить второй этаж, а также сделать дополнительное помещение на первом для гаража.
Сборный проект в несколько блоков
Внешний вид дома зависит только от того, кто его спланировал и построил. Контейнеры как материал в этом плане удобны тем, что их можно соединять в любом порядке. Кроме того, вовсе не обязательно использовать контейнеры одинаковых габаритов. При желании со временем такой дом можно подвергать и новым модификациям и перепланировкам. Однако вряд ли помещение данного типа можно использовать для (для некоторых построек материал не годится).
Совет:
не стоит забывать, что стены дома из контейнеров необходимо утеплять, особенно в условиях российского климата. Утеплитель займет достаточно много дополнительного пространства, а это необходимо учесть при построении плана и выборе контейнеров.
Этапы строительства
Первое, что необходимо сделать перед началом стройки дома из морских контейнеров, — это определить площадь, на которой она будет производиться. Стоит отметить, что большой участок для этого необязателен.
Этапы реализации идеи:
- Разработка и подготовка проекта. Следует особое внимание уделить планировке, предусмотреть жилые помещения, санузел, отопление.
- Подготовка траншеи и фундамента. Масса контейнера может быть достаточно большой, поэтому лучше всего использовать стандартный ленточный фундамент из бетона марки В15.
- Соединение контейнеров в одну конструкцию. Лучший способ соединения – сварка.
- Скрепление и придание прочности несущим установкам.
- Внешняя и внутренняя теплоизоляция. В доме из морских контейнеров достаточно много уязвимых мест, в том числе щели и даже сам сплав, который обладает хорошей теплопроводностью.
- Отделка полученного здания.
Сохраните статью в 2 клика:
Строить дома из морских контейнеров можно для личного пользования или бизнеса. Этому способствует очень низкая стоимость материалов и простота реализации идеи. Большую роль в ней играет проектирование будущего здания, при котором можно учитывать свои финансовые возможности и предпочтения. Но не стоит забывать про качественную теплоизоляцию и безопасность материалов.
Вконтакте
Люди живут в разнообразных домах, которые наилучшим образом удовлетворяют их потребности. Некоторые покупают большие сооружения, изготовленные из бетона
, стали
и стекла
, чтобы укрепить свои социальные позиции, а другие выбирают что-то иное. В любом случае, это то, что соответствует их потребностям. Не у всех есть возможность построить собственный дом, но у нас есть сумасшедшая идея для вас — жить в контейнере
. Да, вы слышали меня. Старые грузовые контейнеры в настоящее время могут использоваться в качестве собственно дома. Не верите? Тогда взгляните на нашу подборку проектов.
Какие контейнеры использовать для постройки своего жилища?
Дома из морских контейнеров наиболее интересны тем, кто хочет построить большой и просторный дом. Просто именно морские контейнеры являются самыми крупными и самыми распространенными. Ниже приводим таблицу размеров морских контейнеров 40-футовых
и 20-футовых
:
Стоимость дома из контейнеров:
Как мы уже сказали, цена дома из контейнеров является, пожалуй, самым большим аргументом в пользу выбора контейнеров как материала для строительства. Ниже приведем ВНУТРЕННИЕ размеры и стоимость одного из типов морских контейнеров:
Контейнер 40 футовый высокий (40′ HC):
- Длина = 12,05 м.,
- Ширина = 2,34 м.,
- Высота = 2,68 м.
Средняя стоимость морского контейнера составляет 2000 $
.
Следовательно, просто поставив рядом 3 таких контейнера и спланировав из них дом, вы получаете дом с внутренними размерами 12 метров
на 7,1 метра
, что по площади составляет 85,2 м2
. При этом цена 3 контейнеров составит примерно 6000 $
.
Эко-дом в Китае
Все больше и больше людей заботятся об окружающей среде. Архитекторы и дизайнеры придумали многочисленные оригинальные идеи домов с экологически чистых материалов. Одним из таких примеров является этот дом. Он сделан из морских контейнеров, это очень красивый функциональный дом на одну семью.
Расположенный в Китае, этот дом имеет современный дизайн и это впечатляет своей простотой исполнения. Эко дом состоит из использованных морских контейнеров, бамбуковой облицовки и газоном на крыше.
Кроме того, он имеет солнечные батареи и системы сбора дождевой воды, все эти функции были включены в простой и шикарный скандинавский дизайн. Дом площадью примерно 2000 квадратных футов
. Он имеет три спальни, детскую, кабинет и огромную гостиную.
Яркий гостевой дом
Один из самых интересных проектов, которые я видел за все время. Гостевой дом сделан из ранее использованного морского контейнера. Контейнер был окрашен в синий и некоторые стены были демонтированы, чтобы разместить там большие окна. Смелое сочетание цветов и материалов, делает это место идеальным для отдыха.
Большое сооружение из цветных контейнеров
Впечатляющий проект от бразильского архитектора — MarcioKogan
.
Архитектурное решение от Partouche
Теперь взгляните на более сложный проект от Partouche
. Площадь этого современного дома — 680 метров квадратных, стоимость — 220 000 евро. Что мне больше всего нравится — это двери контейнеров, которые выполняют роль ставней, что создает момент уединения.
Элегантный дом из двух морских контейнеров
Кто сказал, что дом из контейнеров должен выглядеть как скучная коробка? Этот проект показывает, что он может быть достаточно элегантным.
Плавающие дома отдыха
Хотели бы вы провести отпуск в подобном доме? Я бы с удовольствием!
Современный минимализм
Это уникальный дом, сделанный из четырех морских контейнеров выглядит как полноценный дом.
Дом у озера
Изготовлен из 4-х морских контейнеров, имеет 3 спальни и две ванные комнаты. Превосходное гнездышко у озера.
Транспортабельное строение из морского контейнера
Основным преимуществом морских контейнеров — является его транспортабельность. Можно создать уютное пространство в контейнере и транспортировать его в любое место.
Уютный дом в Милбрук
Завораживающие постройки от Томаса Файфера.
Функциональная кофейня
Вот так портативную кофейню можно создать из морского контейнера и транспортировать в любую точку города.
Торговая площадка из морских контейнеров
Первый в мире магазин Hayes Valley
, который был построен лишь из морских контейнеров.
Другой вариант торговой площади
Первая торговая площадь из морских контейнеров открылась в Лондоне
. Коммерческие помещения бывают разных форм и типов, чтобы привлечь больше покупателей. Boxpark Shoreditch
— первый в Лондоне торговый центр из морских контейнеров.
Миниатюрные дома
Компания Add a Room
специализируется на создании уникальных минитюрных домов, которые производит под заказ из морских контейнеров.
Модульные дома
Компания Honomobo
основанная в канадской провинции Альберта
, строит современные дома, офисы, студии, многоквартирные жилые комплексы и многое другое из модульных транспортных контейнеров. И у них это хорошо получается.
Очередной вариант компактного дома
Все в одном контейнере. Спальня, ванна, полностью оборудованная кухня, паркетный пол, мебель и многое другое.
Для сооружения дачных домов, строительных офисов и бытовок используются стандартные ISO-контейнеры типа Dry Container длиной 40 футов или 20 футов. Такая постройка подойдёт для временного проживания или для отдыха на садовом участке в выходные дни, штабного офиса на строительной площадке, строительной бытовки для рабочих и обслуживающего персонала. Возведение домов из контейнеров имеет немало преимуществ, главное доступная и низкая цена, надежные и крепкие стены, возможность использовать зимой и летом, установка без затратного фундамента и другие. Компания «ContMaster» предлагает воспользоваться скидкой и купить , условия можно посмотреть пройдя по ссылке, и переоборудовать его под ваши потребности, после монтажных работ мы доставим готовое оборудование на место указанное в заявке.
Контейнеры по жилье — быстро и комфортно
Простой дачный домик можно соорудить из одного 40-футового контейнера, утеплив его внутри для эксплуатации в холодное время года. Внутренние размеры стандартного 40-футового контейнера составляют 12,03 м в длину и 2,35 м в ширину. Исходя из этих данных, жилая площадь будущей постройки составит примерно 28,3 квадратных метра. Отличная замена стандартной однокомнатной квартире, учитывая, что стоимость нового контейнера 40 футов составляет всего 150 – 200 тыс. рублей!
Дом, состоящий из одного контейнера, можно устанавливать как на фундаментную плиту, так и непосредственно на твёрдый грунт. Если температура воздуха в Вашем регионе опускается ниже 0 0 C, одного обогревателя зимой будет недостаточно. Для эксплуатации в холодные сезоны контейнер необходимо утеплить изнутри. Для этой задачи лучше всего использовать вспенённый пенополистирол или минеральную вату – толщина теплоизоляционного слоя должна составлять не менее 12 см.
Монтаж тепла — качественно и недорого
Многие дачники и садоводы задаются вопросом: как правильнее утеплять дома из контейнеров – снаружи или внутри? С одной стороны, утепление снаружи никак не отразится на внутренней площади дома, что является важным преимуществом, но с другой стороны — это может негативно отразиться на микроклимате помещения зимой. Как рекомендуют утеплять контейнеры наши строители, чтобы при отоплении исключить образование росы на внутренних стенках можно подробно прочитать здесь пройдя в раздел услуги по ремонту и монтажу . При таком утеплении тепло, выделяемое от обогревательного прибора, идёт сразу на обогрев внутреннего объёма – дом прогреется мгновенно, даже если Вы не были в нём целую неделю. В этом случае контейнер можно сравнить с термосом – он аккумулирует тепло внутри и не даёт ему быстро выйти за пределы домика. Утеплять же сталь снаружи нецелесообразно – металл прекрасно выдерживает зимние температуры в 30 и более градусов.
Крутые проекты домов из контейнеров
Дом из морских контейнеров – выгодная альтернатива постройке из кирпича или твинблока. Такие дома быстро и легко устанавливаются, их можно строить без фундамента, что также снижает финансовые затраты. Морские контейнеры бывают различных размеров и вместимости, что даёт возможность создавать сложные двух- и даже трёхэтажные здания, отвечающие требованиям надёжности и комфорта.
Дома из блок-контейнеров
могут иметь и более сложное архитектурное строение. Многих людей не устраивает двухметровая ширина комнаты, и они используют сразу три или даже четыре контейнера, чтобы расширить внутреннее пространство. Поскольку жилая площадь дома из одного контейнера составляет 28 м 2 , несложно рассчитать площадь дома из нескольких контейнеров. Четыре стандартных контейнера, объединённых вместе, – это по сути уже просторный коттедж площадью 112 квадратов!
При объединении нескольких контейнеров лишние боковые стенки можно вырезать электропилой. Некоторые особо изобретательные домовладельцы превращают внутренние железные стенки в красивые полукруглые арки, которые визуально отделяют одну комнату от другой. Модульные дома из контейнеров
можно возводить в несколько этажей – максимум четыре. Сооружение можно подключить ко всем жизненно важным инженерным системам, включая электричество, канализацию, водоснабжение и отопление.
Дома из морских контейнеров
можно возводить в различном исполнении для любых климатических условий, а проекты таких построек поражают своей оригинальностью и красотой. Из стандартизированного контейнера во многих странах делают автобусные остановки, магазины, кафе и даже небольшие рестораны быстрого питания. Прочный слой рифлёной стали защищает «дом» от механических повреждений и атмосфеcomрных осадков, а благодаря утеплению в контейнере будет уютно даже зимой.
Самые оригинальные проекты домов из контейнеров приведены на фото ниже.
Размеры контейнерных домов
Дом, построенный на базе морского контейнера, может иметь различные размеры и площадь. Самый компактный домик, сделанный из 20-футового контейнера, имеет размеры 6,06 x 2,44 м, высота – 2,6 м. Общая площадь такой постройки составляет 13,5 м 2 , что по размерам соответствует небольшой комнате. Такой контейнер подойдёт для проживания на дачном участке по выходным или для хранения садового инвентаря.
Более просторный вариант – дом из контейнера 40 футов
, средняя стоимость которого составляет всего от 80 до 200 тыс. рублей. Жилая площадь такого домика составит примерно 28 квадратных метров (длина – 12,03 м, ширина – 2,35 м, высота – 2,39 м).
Существуют двух- и даже трёхэтажные коттеджи, возведённые из ISO-контейнеров, в которых может комфортно проживать большая семья из 6 – 8 человек. Площадь таких контейнерных домов может доходить до 200 – 300 м 2 . Контейнеры можно объединять друг с другом, убрав лишние боковые или торцевые стенки.
Цена дома из морского контейнера
Средняя стоимость нового утеплённого дома из контейнера составляет 200 – 300 тысяч рублей. Для хранения садового инвентаря можно присмотреть более бюджетные варианты – например, 20-футовый б/у контейнер, который обойдётся в 60 – 70 тысяч. В любом случае, дом из контейнеров стоит в 10 раз дешевле аналогичной постройки из кирпича и в 6 раз дешевле, чем из твинблока.
«Элитные» контейнерные дома, собранные из нескольких контейнеров, могут стоить до 2 – 3 млн рублей, в зависимости от площади, сложности проекта, качества материала для утепления.
На стоимость дома из контейнеров влияют следующие факторы:
- Количество и состояние используемых контейнеров (новые, б/у);
- Размеры и площадь постройки;
- Дополнительные услуги (утепление, монтаж окон и дверей, электропроводки, установка крыши, подключение к канализации и водоснабжению).
Дома из контейнеров: плюсы и минусы
Главным достоинством дома из морского контейнера, безусловно, является низкая стоимость. По этой причине такие постройки предпочитают дачники и садоводы. Ещё одно неотъемлемое преимущество – лёгкая, бесфундаментная установка и быстрый демонтаж. Домик-контейнер можно легко перемещать с одного места на другое и даже транспортировать на грузовой машине.
Плюсы:
- Низкая цена;
- Быстрая скорость развёртывания;
- Бесфундаментная установка;
- Лёгкий демонтаж;
- Возможность эксплуатации в холодное время года;
- Полный набор базовых инженерных коммуникаций (электричество, канализация, водоснабжение, отопление);
- Многообразие проектов (дома различной площади, размеров и этажности);
- Пожарная безопасность;
- Высокий уровень сейсмостойкости.
Минусы:
- Невозможно строить многоэтажные сооружения (свыше 3 этажей);
- Урбанизированный внешний вид (дома из контейнеров выглядят не так красиво, как коттеджи из керамического кирпича или твинблока).
Компания «ContMaster» изготавливает дачные домики и бытовки различной площади на основе морских контейнеров. Наши постройки отвечают всем пожарным и санитарным требованиям, подходят для эксплуатации в холодные сезоны. Мы создаём дома любой сложности – от небольших бытовок до просторных коттеджей для всей семьи!
Услуги для тех, кто хочет превратить контейнер в уютный дачный дом:
- Установка дверей, окон и перегородок;
- Монтаж крыши;
- Утепление контейнера;
- Монтаж электрической проводки;
- Установка системы отопления;
- Изготовление и монтаж пологов.
Компания «ContMaster» делает контейнерные дома «под ключ» и устанавливает их на садовых участках по всей России!
Интересные проекты домов из морских контейнеров
`
Кредит на приобретение недвижимости для многих семей становится неподъемным. При таком варианте, дома из морских контейнеров являются наиболее оптимальным решением жилищного вопроса. Кроме того, приобретение подобного дома – это отличный способ поменять квартиру на небольшой, но свой дом.
Архитектор из США Адам Калкин первоначально построил такой дом в качестве эксперимента, который впоследствии стал реальностью для многих семей по всему миру.
Характеристики морских контейнеров
Контейнеры для морских перевозок стандартизированы по международной классификации ISO и имеют код 8301981. Изначально контейнеры производились по нормативам США, но позднее были приняты поправки и контейнеры приняли утвержденные размеры. Это связано с необходимостью соответствовать европейским дорожным нормам перевозок.
Существуют две основные модификации контейнеров на 20 и на 40 футов. Их масса составляет 2,3 и 3,9 тонны соответственно.
Еще один вариант контейнера, получивший широкое распространение в последние годы, это конструкция длиной 45 футов. Основные преимущества такого контейнера это размер, обеспечивающий большее рабочее пространство, и возможность перевозки на прицепах стандартного размера. Появление 45-футовых контейнеров привело к усилению конкуренции между грузоперевозчиками, поскольку стандартный полуприцеп стал менее востребованным.
Материал, из которого выполнен контейнер, является прочным стальным сплавом. Качественная конструкция дает возможность установки контейнеров в несколько рядов, количество которых достигает тринадцати и более. Крепление контейнеров осуществляется твистлоками.
Варианты типоразмеров морских контейнеров не ограничиваются указанными 20, 40 и 45 футами. В зависимости от характеристики перевозимого груза, могут использоваться и специализированные контейнеры. К таковым относятся контейнеры-рефрижераторы, цистерны для жидкостей и газов, контейнеры для транспортировки животных.
Размеры морских контейнеров 20 футов, 40 футов, 45 футов
Проекты домов из морских контейнеров
Несомненным преимуществом контейнерного дома является его способность размещаться на участке небольшого размера и нестандартной формы. Кроме того, контейнер можно модернизировать до состояния, пригодного для постоянного проживания при различных климатических условиях.
Тем не менее в России подобные дома встречаются достаточно редко, в то время как за океаном и в Европе такие конструкции получили повсеместное применение.
Проекты дома из 1 высокого 40 футового контейнера
Наиболее доступный и быстровозводимый дом состоит из одного контейнера длиной в 40 футов. Как правило, за контейнер такого размера требуется заплатить от 2 до 2,5 тысячи долларов. Поэтому, если есть желание увеличить площадь дома, а финансовые возможности это позволяют, то установить 2-3 контейнера рядом не составит труда.
Приобретение трех контейнеров обойдется в сумму от 6 до 7 тысяч долларов, а полезная площадь дома будет достигать 85,2 квадратных метра при длине 12 и ширине 7,1 метра.
При планировании сооружения, состоящего из нескольких этажей, экономия по сравнению с другими типами построек еще более увеличивается.
Проект дома из двух рядом стоящих контейнеров
Для проектирования и установки дачного домика, не требующего большой площади, достаточно приобрести пару контейнеров. Вариантов же их компоновки существует несколько.
В качестве примера давайте рассмотрим следующие из контейнеров:
Двухэтажный вариант дачного дома из контейнеров
Подобный вариант наиболее подходит для использования на участке с ограниченной площадью. В этом случае контейнеры устанавливаются один на другой, качественный материал, из которого сделаны контейнеры, обеспечивает необходимую прочность и жесткость конструкции. В зависимости от желания владельца, этажи соединяются лестницей либо часть пола одного контейнера и часть потолка другого ликвидируются. Тем самым достигается двухуровневость конструкции.
Сборный проект из нескольких блоков
В условиях российского рыка недвижимости, дом из контейнеров может стать оптимальным для многих категорий населения. Например, для семей, которым приобретение квартиры представляется слишком дорогостоящей покупкой либо для желающих перебраться из квартиры в собственный дом.
Составление проекта
Фундамент под контейнерные дома
Так как контейнер выполнен из прочной, зачастую легированной, стали, его масса может быть достаточно большой. Поэтому дом из морского контейнера следует монтировать на качественный ленточный .
Конструкция фундамента не отличается от стандартного ленточного монолита. В подготовленную канаву монтируется металлическая арматура. По периметру устанавливается опалубка из досок, необходимая для поднятия фундамента выше уровня земли.
Морские контейнеры выполняются из прочной стали, поэтому наиболее приемлемым способом их соединения между собой является сварка. В процессе сборки многоконтейнерной конструкции используются металлические крепежные элементы, такие как уголки либо швеллеры.
В процессе сборки дома вырезаются оконные и дверные проемы с помощью болгарки. После выполнения операции, край среза следует аккуратно обработать спецсредствами.
Как утеплить дом из контейнеров?
Утеплять снаружи или изнутри?
Как правильно утеплить изнутри?
Третий слой – декоративный. Стены обшиваются вагонкой, ДСП, другими типами покрытий.
Утепление пола практически не отличается от аналогичных операций со стенами. В качестве дополнения, пол иногда заливают стяжкой. Для утепления подходят пенополистирольные плиты, которые, в отличие от минеральной ваты, не обладают способностью задерживать влагу.
Внешняя и внутренняя отделка
Все работы по приданию стенам законченного внешнего вида следует выполнять только после ликвидации пятен ржавчины и нанесения антикоррозийного покрытия. Утепляются стены с помощью набивки обрешетки и дальнейшего нанесения теплоизоляционного покрытия. По окончании процесса утепления поверхность закрывается фанерой либо ОСБ.
Конечным этапом внешней отделки является нанесение одного из следующих видов покрытий:
- Природный либо искусственный камень;
- Штукатурная декоративная смесь;
- Блок-хаус;
- либо сайдинг.
Каждый из упомянутых материалов имеет право на существование и хорош в определенной ситуации. Монтаж подобных конструкций не очень сложен, при наличии небольшого опыта с ним может справиться любой человек.
Сколько стоит дом из контейнера?
Для того чтобы оценить объем затрат на возведение контейнерного дома, необходимо определить необходимую площадь и, исходя из этих данных, количество используемых контейнеров. В качестве примера калькуляции работ можно рассмотреть одноэтажный дом, для изготовления которого используется два контейнера по 40 футов.
Общая площадь конструкции порядка 55 квадратных метров. В стенах вырезаны три квадратных окна со стороной в один метр и одно большое окно 2,5 на 1 метр. Стандартная входная дверь имеет габариты 2,1 на 1 метр.
Фундамент
Вариант 1. Конструкция столбчатого типа, выполненная из керамического кирпича, состоит из 23 столбов. Этого вполне достаточно для обустройства надежной опоры дома. Столбы располагаются друг от друга на расстоянии два метра и возвышаются над поверхностью земли на четыре ряда. Под землю кладка уходит на пять рядов. Для возведения такого фундамента требуется 359 кирпичей общей стоимостью 130 долларов.
Деревянный каркас по наружным стенам
Для изготовления каркаса применяется брус с сечение 100х50 мм. Рейки набиваются с интервалом в один метр друг от друга и в дальнейшем обшиваются вагонкой. Общее количество материала составляет 34 бруска длиной 2,6 метра каждый (0,442 м3) и 240 досок вагонки размером 12,5х96х3000 миллиметров (69 м2). Затраты на облицовку внешних стен составляют 290 долларов.
Деревянный потолок
В качестве каркаса используется такой же брус, как и для стен в количестве 26 штук. Смонтированный каркас обшивается ДВП размером 1700х2745х3,2 миллиметров. Общая стоимость материала составляет 140 долларов.
Утепление кровли
Минеральной плиты толщиной 10 см и площадью 55 квадратных метров будет вполне достаточно для утепления кровли. За материал потребуется отдать 330 долларов.
Деревянный пол
Конструкция каркаса для пола не отличается от потолочного и стенового. Для площади пола в 55 м2 потребуется 26 реек. На пол настилается доска размером 100х40х2500 миллиметров. Общая стоимость полового покрытия 513 долларов.
Утепление пола
Минеральная плита, используемая в качестве теплоизолятора, абсолютно идентична потолочной. Стоимость также не отличается и составляет 330 долларов.
В итоге общая стоимость материалов, необходимых для возведения небольшого дома площадью 55 квадратных метров, составляет 6346 долларов, что является достаточно бюджетным вариантом. При использовании наемной силы затраты увеличатся примерно в 2 раза. При желании владельца, дом можно облагородить и сделать более удобным и комфортным. Затраты при этом увеличатся еще более.
Стоит отметить, что стоимость дома из морских контейнеров приведена в качестве примера и может меняться в зависимости от цены материала и региона постройки дома.
Please wait a few seconds.

Если вы хотите быстро и с наименьшими затратами решить жилищный вопрос, рекомендуем вам задуматься о строительстве дома из морских контейнеров. Еще несколько десятилетий назад никто и представить не мог, что морской контейнер можно использовать в качестве временного или даже постоянного жилья, но технологии не стоят на месте, и сегодня, в свете молниеносного роста цен на жилье, использование морского контейнера под дом уже не кажется противоестественным. Несмотря на то, что в России, в силу недостаточного распространения контейнерного строительства, вам вряд ли удастся найти готовые проекты домов из контейнеров, за рубежом востребованность таких домов не вызывает сомнения и обусловлена надежностью и практичностью построек. По мнению специалистов, низкая популярность контейнерного строительства на территории России обусловлена недостаточной осведомленностью населения о преимуществах построек, возведенных по данной технологии, а также недостаточной освещенностью этого вопроса этого вопроса в сети. Чтобы исправить это, в настоящей статье мы в некотором смысле постараемся поспособствовать популярности домов из морских контейнеров в России и рассмотреть вопросы их возведения и обустройства.
Содержание
- Жилые дома из контейнеров: новая эпоха в строительстве
- Преимущества и недостатки домов из морских контейнеров
- Дома из морских контейнеров: проекты, чертежи, основы возведения
- Жилой дом из морских контейнеров: этапы строительства
- Обустройство фундамента
- Конструктивный этап – установка контейнеров
- Монтаж кровли: основные этапы
- Утепление дома из морских контейнеров
- Внутренняя и внешняя отделка дома из морских контейнеров
Жилые дома из контейнеров: новая эпоха в строительстве
Несмотря на то, что популярность контейнерного строительства в России еще не достигла своего пика, специалисты по праву считают его технологией будущего, которая в ближайшее время обретет своих преданных поклонников. Подтверждением этому является востребованность контейнерного строительства в странах Европы, где данная технология способствовала зарождению новой самостоятельной и прибыльной отрасли бизнеса, основу которой составляет проектирование и производство контейнерных «домов-полуфабрикатов». Под полуфабрикатом подразумевается модель-основа, изготовленная на фабрике, структуру которой составляют стены и черновые полы. В ней уже заложены система отопления и электропроводка, вставлены окна и двери. Приобретая необходимое количество заготовок, предусмотренное проектом, их доставляют на строительную площадку, где они объединяются в единую постройку. Производство подобных заготовок позволяет значительно сократить срок возведения контейнерных домов, что является их наиболее важным преимуществом.
Преимущества и недостатки домов из морских контейнеров
Преимущества домов из морских контейнеров:
- Дома из морских контейнеров признаны одной из самих сейсмически устойчивых построек, в связи с чем, они часто возводятся на местности, где нередки природные катаклизмы – землетрясения, ураганы и другие;
- Контейнерные постройки мало чем отличаются от капитальных домов: снаружи их можно отделать вагонкой, изнутри – гипсокартоном;
- Если вы живете в доме, для возведения которого использовались морские контейнеры, вы можете не бояться проникновения грызунов и насекомых;
- Дома из морских контейнеров могут возводиться в любых климатических условиях, но, несмотря на такую универсальность, важно помнить о необходимости качественной теплоизоляции;
- Общая стоимость постройки из морских контейнеров в несколько раз ниже стоимости капитальных домов;
- Если вы решили построить дом из морских контейнеров, помните, что они выгодно сочетаются с различными строительными модулями, в том числе кирпичными, железобетонными и т. д.;
- Возведение жилой постройки из морских контейнеров занимает не более двух-трех месяцев, а если минимизировать отделочные мероприятия и ограничиться простой отделкой, для завершения строительных мероприятий будет достаточно двух-трех недель;
- В виду небольшой нагрузки, которую несут контейнерные постройки, они не нуждаются в монтаже основательного фундамента и могут быть установлены даже на тщательно утрамбованную землю;
- Морские контейнеры могут использоваться не только для строительства жилых домов, но и хозяйственных объектов. Кроме того, из них можно обустроить хозяйственную пристройку к уже имеющемуся строению;
- Широко востребована установка контейнерных построек на промерзшем грунте, в связи с чем, зачастую из морских контейнеров, преимущественно тех, что предназначены для морских транспортировок, практикуют сооружение целых жилищных баз на крайнем севере и Антарктиде;
- Если проект вашей постройки не подразумевает создание витражей на всю стену, она максимально защитит вас от постороннего вторжения;
- Постройки из морских контейнеров могут успешно возводиться на территориях с большим уклоном.
Недостатки домов из морских контейнеров:
- Зачастую для обработки стен и пола морских контейнеров используются специальные краски и высокотоксичные составы, защищающие их от атмосферных воздействий. В связи с этим, перед тем, как использовать такие контейнеры для строительства дома, позаботьтесь об удалении этих составов;
- В летнее время дом из морских контейнеров сильно нагревается, тогда как в зимнее – охлаждается. Учитывая это, позаботьтесь об организации эффективного теплоизоляционного слоя;
- Во избежание появления ржавчины на поверхности постройки, необходимо организовать тщательное наблюдение и уход за ней;
- Одним из недостатков, характерных для контейнерных построек, являются низкие потолки (если произвести утепление пола и потолка, высота последних будет составлять около 2,35 м).
Дома из морских контейнеров: проекты, чертежи, основы возведения
Дом из морских контейнеров – конструктивное решение, ставшее популярным в Европе и Америке благодаря известному архитектору Адаму Калкину. Именно он стал автором первого в истории контейнерного дома, ставшего его творческим экспериментом. Для его возведения использовалось три морских контейнера. Как выяснилось, приобретение морских контейнеров не вызвало сложностей, а финансовая сторона вопроса лишь порадовала автора этого ноу-хау. Со временем постройки из морских контейнеров стали использоваться не только в качестве жилых домов, но и гостиничных комплексов, ресторанов и торговых помещений, а их высокая сейсмическая устойчивость и мобильность сделала их особо востребованными на территориях с частыми природными катаклизмами.
Для строительства жилого дома используются преимущественно стандартные 40-ка футовые грузовые контейнеры, для которых характерны следующие внутренние габариты:
- высота — около 2,4 м;
- длина – 12 м;
- ширина – 2,35 м.
Если из одного 40-ка футового контейнера можно соорудить просторную пристройку или подсобное помещение, а также оборудовать хранилище или мастерскую, то из двух-трех строительных блоков можно выстроить дом, площадь которого будет составлять 60-120 кв. метров. Например, два 40-ка футовых контейнера, установленных друг напротив друга, можно соединить витражами и в последующем накрыть общей кровлей.
Важно! Отличительной особенностью морских контейнеров является высокая прочность. Изначально морские контейнеры изготавливаются таким образом, чтобы впоследствии их можно было устанавливать на морской палубе друг на друга в количестве 8-10 штук. Учитывая эту особенность, можно предполагать, что, морские контейнеры можно использовать для возведения двух- и трехэтажных построек. Однако для повышения надежности строения контейнеры их необходимо закреплять сваркой.
Важно! Для возведения жилых построек можно использовать два, три и более морских контейнера. Если для изготовления дома было использовано более двух контейнеров, пространство между разнесенными контейнерами, оставшееся свободным, необходимо обустроить под дополнительное помещение, используя максимальное остекление.
Строительство домов из морских контейнеров, цена которых в среднем на 30 % ниже капитальных построек, начинается с разработки проекта и приобретения строительных блоков – грузовых контейнеров. В свободном доступе в сети можно найти большое количество проектов домов из морских контейнеров, поражающих своим разнообразием. Наиболее распространенные проекты предполагают использование двух контейнеров, которые устанавливают рядом или под углом друг к другу в виде буквы «Г» или «Т». Также допускается установка контейнеров друг на друга.
Сдвинув контейнеры относительно друг друга, вы усложните фасад вашего дома, одновременно сделав его более оригинальным. Напротив, раздвинув контейнеры, вы создадите дополнительное свободное пространство, которое можно использовать под просторную гостиную с максимальным остеклением.
Следующий проект контейнерного дома, состоящий из двух блоков, которые объединены скатной крышей. В одном из блоков планируют две спальни, в другом – санузел и кухню. В свободном пространстве между блоками обустраивают гостиную, в зоне которой высота потолков будет больше за счет скатов кровли.
Мастера, имеющие опыт строительства контейнерных домов, рекомендуют поручить специалистам создание проектов домов из морских контейнеров, с чертежом в этом случае проблем не возникнет, так как они проработают все до малейших деталей.
Жилой дом из морских контейнеров: этапы строительства
Если вы приняли решение возвести дом из морских контейнеров самостоятельно, не привлекая при этом подрядную организацию, учитывайте, что строительство займет больше времени, а также не обойдется без привлечения спецтехники и навыков работы со сваркой. Прежде чем приступить к строительству, необходимо приобрести контейнеры. Для возведения полноценного жилого дома специалисты рекомендуют приобретать не менее двух контейнеров, которые в среднем (с учетом доставки) будут стоить около 100 тыс. рублей.
Важно! После того, как контейнеры будут доставлены на строительную площадку, их необходимо проверить на радиацию. Как бы это странно не звучало, но именно в таких емкостях зачастую скапливается остаточная радиация. Что касается нормы для радиационного фона, для наших широт, она составляет 35 микрорентген в час.
Обустройство фундамента
Первый и один из самых важных этапов строительства из контейнеров – обустройство фундамента. Если вы поставите дом непосредственно на грунт, без фундамента, то грунт под постройкой будет проседать, а сама постройка – промерзать. Выбор конструкции фундамента для контейнерного дома осуществляется с учетом его размеров и характеристик местности. Если вы планируете возвести обычную бытовку для времяпрепровождения в теплое время года, в качестве фундамента можно использовать несколько фундаментных блоков. Однако если речь идет о двухэтажном жилом доме, созданном по авторскому проекту, он нуждается в предварительной подготовке фундамента. В большинстве случаев рекомендуют отдавать предпочтение армированному ленточному фундаменту.
Для этого вырывают котлован, размеры и глубина которого соответствуют требованиям проекта. Для этого потребуется вызов специализированной техники – экскаватора и грузовых машин для вывоза грунта. Что касается наиболее предпочтительных конструкций фундамента, в большинстве случаев специалисты рекомендуют отдавать предпочтение ленточному фундаменту, однако иногда не обойтись и без свай. Последнее актуально для регионов со слабым заболоченным грунтом.
Учитывая большой вес контейнерной постройки (особенно если речь идет о двухэтажном доме из морских контейнеров), зачастую возникает необходимость подготовки надежного основания, функцию которого может выполнить только монолитный фундамент. Для его заливки потребуется цемент марки 400, песок и вода. Чтобы увеличить срок его эксплуатации, зачастую в раствор добавляют специальные затвердители и иные добавки.
Бетонные работы, которые являются неотъемлемым этапом возведения фундамента, можно упростить, заказав готовую бетонную смесь. В этом случае подготовка фундамента будет состоять из монтажа арматурного каркаса в соответствии с чертежами, установки опалубки и заливки раствора. Не забудьте уплотнить бетон, используя специальные глубинные вибрационные инструменты.
Конструктивный этап – установка контейнеров
Приступать к нему можно только по истечении окончательного созревания бетона, которое займет не менее 22 дней с момента заливки фундамента.
Важно! Во время вызревания бетона произведите антикоррозийную обработку контейнеров. Для этого покрасьте их железным, а затем свинцовым суриком. Только после этого покройте их краской, устойчивой к воздействию высоких температур.
После окончательного вызревания бетона и антикоррозийной обработки контейнеров приступайте к следующему этапу – установке контейнеров на фундамент. Если речь идет о строительстве дома из морского контейнера 40 футов, не обойтись без привлечения спецтехники, а именно автокрана. После того, как вы установили модули, их необходимо обвязать и обварить, скрепив с фундаментом и между собой. Далее устанавливают внутренние межкомнатные перегородки. Проще всего установить перегородки из гипсокартонного листа, монтаж которых легко осуществить собственноручно. Однако на практике чаще пользуются другим приемом. Он подразумевает снятие и обрезание профлиста, из которого изготовлены стенки контейнера, которые окажутся внутри постройки и не предусмотрены проектом. Это производится непосредственно перед их установкой на фундамент. На данном этапе также необходимо прорезать двери и окна.
Важно! Если для строительства жилого дома помимо 40-ка футовых используются 20-ти футовые контейнеры, необходимо учитывать разницу в их размерах. Комбинирование контейнеров с разными размерами позволяет создать постройку с необычным, авторским дизайном.
Монтаж кровли: основные этапы
Этап 1. Для изготовления каркаса мансарды может использоваться брус с сечением 10х10 см. Чтобы прикрепить брусья к контейнеру, используйте саморезы, а для их скрепления между собой – сантехнические болты.
Этап 2. Подготовив каркас мансарды, установите стропила для кровли. Размеры досок для стропил подбирают в соответствии с проектом, чтобы впоследствии не пришлось сращивать их между собой. Соединение стропил осуществляется с помощью саморезов.
Этап 3. Установив стропила, займитесь монтажом обрешетки, поверх которой необходимо уложить листы оцинкованной стали. При этом важно не забывать об обустройстве пароизоляции, что можно осуществить, руководствуясь двумя вариантами:
- Между стальными листами и обрешеткой вы можете проложить пароизоляционную пленку;
- На двух боковых сторонах дома под самой кровлей можно установить по три 40-ка сантиметровые трубы диаметром 10 см, что позволит обеспечить эффективную вентиляцию подкровельного пространства. Отверстия для установки труб необходимо проделать заранее. Учитывая тот факт, что эксплуатация мансарды происходит преимущественно в летнее время, на зиму эти трубы не будут закрываться.
Очевидно, что первый способ является наиболее простым.
Важно! Отдавая предпочтение стальной кровле, помните, что во время сильного ветра и дождя она будет очень сильно шуметь. В связи с этим, несмотря на то, что стальная кровля является эконом-вариантом, специалисты рекомендуют от него отказаться и сделать выбор в пользу мягких материалов, например, ондулина.
Утепление дома из морских контейнеров
Теплоизоляция – неотъемлемый этап строительства любого жилого помещения. При строительстве дома из морских контейнеров это особенно важно, а так как металл, из которого изготовлены контейнеры, является хорошим проводником звуков, важно предусмотреть не только тепло-, но и звукоизоляцию. Для утепления дома из морских контейнеров можно использовать следующие материалы:
- Минеральную вату;
- Пенополиуретан;
- Пенопласт.
Срок эксплуатации минеральной ваты не превышает 10 лет, после чего она утрачивает свои первоначальные характеристики. Пенопласт и пенополиуретан, в отличие от предыдущего материала, благодаря своей плотной структуре монтируются очень быстро, а их эксплуатационный срок на порядок выше и составляет порядка 20 лет. Они обладают не только тепло-, но и звукоизоляционными функциями, что не свойственно минеральной вате. Крепление любого из перечисленных материалов осуществляется с помощью специального клея или пластиковых штырей. Если вы отдали предпочтение штырям, их необходимо заранее вкрутить в стенки контейнера. Сверху на материалы настилают полиэтиленовую пленку.
Внутренняя и внешняя отделка дома из морских контейнеров
После того, как вы произвели утепление, на поверхности строения произведите монтаж обрешетки из дерева или металла, на которую впоследствии будет монтироваться фанерные или ОСБ листы для последующей отделки.
Для внешней отделки строения можно использовать следующие материалы:
- Сайдинг;
- Блок-хаус;
- Декоративная штукатурка;
- Натуральный или искусственный камень;
- Пластик.
Пластик, блок-хаус и сайдинг крепится к деревянной обрешетке, предварительно защищенной лаком. Декоративный и натуральный камень – на прогрунтованную поверхность с использованием бетона или специальных клеящих веществ. Штукатурку наносят на ровную поверхность с помощью шпателей различных размеров.
Внутренняя отделка практически не отличается от внешней – на брусья обрешетки монтируют утеплитель, который покрывают листами фанеры или ОСБ. При этом пространство между листами фанеры должно составлять не менее 1,5 см. Впоследствии они заполняются монтажной пеной, что предотвратит попадание пыли в дом.
Далее в оконные проемы монтируют стеклопакеты, предпочтительно двухкамерные.
Производя внутреннюю отделку, фанеру и ОСБ можно заменить гипсокартоном, который впоследствии можно облицевать краской, штукатуркой, обоями и другими доступными материалами.
Отделывая потолок, необходимо помнить, что его высота не превышает 2, 4 метра, и, как следствие, отказаться от многоуровневых потолочных конструкций. Специалисты рекомендуют остановиться на обычном потолке, отделанным гипсокартоном, или установить натяжные потолки.
Дома из морского контейнера отлично эксплуатируются даже при холодном климате, при проведении качественной работы по утеплению. При теплом климате утеплительные работы можно не проводить. Возведение зданий из морского контейнера позволяет значительно сэкономить на расходах, такие сооружения являются достаточно прочными. Из материала можно сооружать дома в несколько этажей, при этом контейнера между собой закрепляются путем сварки.
Проект дома из контейнеров
Проекты дома из контейнеров могут быть разнообразными, их составляют индивидуально. Для такого вида здания необходимо рассчитать точную нагрузку, и сооружение фундамента. Вначале необходимо составить план строения с указанием комнат, которые будут удобно расположены, а также указать площадь здания. Для создания такого плана можно обратиться в специальную службу, где профессионалы помогут учесть всё до мелочей. При этом указываются все нагрузки, необходимые коммуникации, и количество необходимых материалов.
При сооружении здания по подготовленному проекту, строение получается крепким, надежным, и имеет красивый внешний вид. Проекты могут быть комбинированными с использованием контейнеров и других материалов.
На производстве выполняют заготовки, в которые включено отопление, окна двери, электрическая проводка, и полы чернового вида. Такие заготовки привозят на строительную площадь, а затем собирают в цельный дом.
Плюсы зданий из контейнеров
Морские контейнеры являются надежными, прочными, и имеют длительный срок службы. Площадь сооружения позволяет сделать комфортные комнаты. Материал имеет достаточное количество преимуществ.
- Стоимость здания является доступной.
- Такие дома являются защищенными от различных грызунов и других насекомых.
- Материал является устойчивым к различному климату, и осадкам.
- Сооружается здание в течении короткого срока.
- Постройки контейнерного вида могут сооружать на любых участках.
- При небольших строениях, можно не сооружать фундамент, достаточно произвести тщательную утрамбовку почвы.
- Из контейнеров можно соорудить жилые и хозяйственные помещения. Такой материал дает возможность выполнить постройку в несколько этажей.
- Контейнера можно комбинировать с другими строительными материалами или бетоном. Основной каркас закрывается с помощью облицовки.
Как соорудить фундамент для дома контейнерного вида?
При сооружении фундамента для дома контейнерного вида, учитывают размеры здания, и особенности местности. Чтобы соорудить сарай или хозяйственную постройку, можно произвести углубление блоков в землю наполовину. Если здание жилое или имеет несколько этажей, то необходимо соорудить прочный фундамент ленточного вида.
Необходимо учитывать, что строение из контейнера имеет значительный вес, поэтому лучше выполнять фундамент монолитного вида, он будет более прочным и надежным, для этого используют цемент 400, воду и песок. Чтобы основание было прочным, применяют различные добавки, таковыми служат затвердители.
Вначале отмечают размеры фундамента, устанавливают колья, и натягивают веревку. После этого по всему периметру выполняют установку опалубки из сбитых деревянных щитов. Ей необходимо обеспечить должную опору, чтобы раствор не выдавливался наружу. Во внутреннюю часть опалубки помещают сетку из арматуры, это поможет придать прочность бетонному сооружению.
Затем приступают к приготовлению раствора, для этого понадобиться бетономешалка, его перемешивают до получения однородного состава. Компоненты добавляют в бетономешалку по отдельности в любом порядке. Затем раствор заливают в опалубку, и оставляют до полного высыхания.
После этого контейнеры обрабатывают специальным антикоррозийным средством. Их окрашивают суриком железного и свинцового вида, затем краской, устойчивой к высокой температуре.
Затем здание устанавливают на фундамент, контейнеры закрепляются между собой путем сваривания, после этого выполняют работы по отделке. Перегородки и пол выполняют обычным способом, стены обшивают гипсокартоном, под него укладывают теплоизоляцию отражающего вида. С внешней стороны укладывают гидроизоляционный материал, затем теплоизоляцию, и обшивают панелями, для этого можно использовать сайдинг.
Скрепление контейнеров
Для надежного закрепления контейнеров можно применять обычные трубы или металлические уголки. Их устанавливают снаружи и внутри контейнера. Во внутренней части необходимо заранее удалить ненужные стенки, то есть выполнить расположение комнат в соответствии с проектом.
Если здание имеет больше одного этажа, то его необходимо усилить, для этого используют швеллеры, можно взять крупные трубы профилированного вида, при этом их толщина должна составлять не менее 2 миллиметров. Такие элементы закрепляют на стенах несущего вида. Аналогичные действия выполняют внутри и снаружи здания.
После этого выполняют отверстия для окон и дверей с помощью болгарки, такие работы делаются в том случае, если в заготовках они отсутствуют. Все срезы тщательно обрабатывают специальными средствами.
Как утеплить дом из морского контейнера?
Утепление здания оказывает благоприятное действие на микроклимат внутри здания. При использовании некоторых материалов, такую работу не проводят. Но для контейнеров это является обязательным мероприятием, необходимо не только утеплить здание, но обеспечить качественную изоляцию от звуков. Так как через металл легко проходят звуки, то попадание осадков может издавать шум.
Также материал морского контейнера является холодным, и требует дополнительного утепления внутри и снаружи здания. Для таких работ используют пенопласт, пенополиуретан или минеральную вату.
При использовании ваты минерального вида, необходимо учитывать, что материал со временем теряет свои свойства, и не выполняет свою функцию в полной мере. Пеноуретан и пенопласт имеют долгий срок службы, материалы изготавливаются в виде листов, что упрощает их укладку. В отличие от ваты, такие материалы можно применять не только как утеплитель, но и как звукоизоляционный материал.
Утеплитель закрепляется на штыри из пластика или с помощью специального клея. Листовые материалы не деформируются при изменении температуры, и качественно утепляют здание, не теряя своих свойств долгое время.
Отделка здания внутреннего и внешнего вида
Поверхность стен с внешней стороны необходимо предварительно подготовить, не только выполнить укладку утеплительного материала, но и соорудить обрешетку для дальнейшей отделки. В качестве обрешетки используются элементы из дерева или металла. Для того чтобы выполнить отделку с внешней стороны, используют блок-хаус, сайдинг, пластик или штукатурный материал декоративного вида, можно приобрести более дорогие материалы, например, натуральный камень.
Каждый материал имеет свою характеристику и свойства, после такой отделки, дома из контейнеров приобретают оригинальный вид. Закрепление отделки происходит быстро и легко, но необходимо придерживаться определенных технологий. Для укладки камня, поверхность необходимо заранее загрунтовать клеящимся составом или раствором из бетона. Штукатурный состав наносится на ровное основание различными видами шпателя. После застывания, поверхность имеет оригинальную структуру, и дальнейшая обработка не требуется.
Сайдинг, пластик или блок-хаус закрепляются к обрешетке из деревянных элементов, которые предварительно обрабатывают специальными антисептическими составами. В качестве дополнительных крепежных материалов используют саморезы, и направляющие элементы.
Отделку внутреннего вида выполняют так же, как и для внешних стен, то есть поверхность разравнивается, а затем закрепляют материалы отделки. Для отделки внутреннего вида, вместо фанеры или ОСБ, можно использовать листы гипсокартона, благодаря которым, получается идеально ровная поверхность.
При внутренней обшивке необходимо учесть высоту комнаты, она будет составлять не более 2,4 метров, поэтому выполнять сложные конструкции потолка не имеет смысла. Для потолка можно использовать обычные листы гипсокартона или создать натяжную конструкцию.
Выполнение строительства дома из морского контейнера
Дом из контейнеров можно соорудить самостоятельно, работа является не сложной, при этом можно сэкономить время и средства.
Морской контейнер 40 футов будет отличаться от 20 футового помещения только длиной, в первом случае она составляет 12032 миллиметра, а во втором – 5898. Высота будет одинаковой, она составить 2393 миллиметра, а ширина – 2352.
Постройка дома из контейнеров не будет сложной, если соблюдать все правила. Вначале приобретают необходимое количество контейнеров, располагают их рядом, друг на друга или под углом, при этом фасад будет иметь оригинальный вид.
При планировке, две спальни можно оставить в одном блоке, а кухню и ванную комнату – в другом. Все сооружение необходимо соединить с помощью крыши скатного вида, за счет этого высота в центральной комнате увеличивается.
Также контейнера можно разместить по кругу, а в центральной части соединить крытой терассой, которая послужит гостиным помещением. Таким образом, здание будет выполнено в виде купола, это придает необычный вид.
Здания, сооруженные из морских контейнеров грузового вида, имеют немаленькую площадь, около 85 квадратных метров. Заранее необходимо подготовить участок, желательно разровнять поверхность. Если участок является ровным, то землю нужно тщательно утрамбовать, при значительных впадинах, выполняют фундамент столбчатого вида. Регулировка столбов помогает легче разровнять участок, также под зданием можно соорудить помещения подсобного вида. Для этого здание поднимают выше над поверхностью грунта.
Затем выполняют установку контейнеров на фундаментальное основание, их можно расположить друг на друга или рядом, всё зависит от имеющейся площади. Крышу делают скатной, в плоском виде её не оставляют, при этом все осадки легко сходят, и не задерживаются на поверхности. Также здание является защищенным от холода или чрезмерной жары. Окна и двери можно вырезать самостоятельно, соблюдая необходимые размеры. В таких домах можно сделать окна зенитного вида, при этом в помещение будет поступать большое количество света.
Чтобы сделать пространство открытым, удаляют стены смежных блоков, при этом получается большое помещение. Но тогда контейнеры придется дополнительно закрепить швеллерами. Перед началом строительства, контейнеры подвергаются очистке с помощью пескоструйного прибора, затем выполняют грунтовку всех поверхностей. После этого все элементы располагают так, чтобы в результате образовалось задуманное здание.
После того как дом будет собран, выполняют разметку дверей и окон, а также отверстий под коммуникации, и производят их вырезку, стены с внешней стороны подлежат спайке или сварке, для надежной фиксации. Затем приступают к установке потолка и стен изнутри помещения, используя стойки стального вида.
По завершению установки внутренних стен, укладывают коммуникации, и проводят звукоизоляцию. Также при сооружении строения нельзя забывать о проведении вентиляционной системы. Если условия в регионе суровые, то утеплительные работы проводятся в обязательном порядке. На стены с внешней стороны производят укладку звукоизоляции, гидроизоляционного материала и утеплителя, а внутри в качестве обшивки используется гипсокартон или фанера. Для выполнения обшивки внутреннего вида, вдоль поверхностей стен и потолка закрепляют направляющие элементы, утепление производят с помощью минеральной ваты или полиуретана.
При применении специальной фанеры, можно соорудить систему теплого пола, при этом покрытие будет ровным и прочным. Отделка пола является минимальной, настил деревянного вида оставляют, как основание, которое прошло специальную обработку антисептическими и противопожарными составами. Сверху производят укладку любого материала, это может быть ламинат, паркет или линолеум. Если планируется укладка плитки, то используют специальный клеевой состав, который называют «жидкие гвозди», он способен тщательно скрепить керамику и дерево.
Такие сооружения быстро возводятся, и по качеству не уступают домам, сделанным из других материалов. Благодаря такой конструкции, можно сэкономить расходы на строительстве. Из морского контейнера можно возводить жилые помещения с несколькими этажами или обычные постройки, также здания хозяйственного типа, при этом последние не требуют сооружения сложных фундаментов. Морские контейнеры грузового вида служат надежной коробкой будущего сооружения.
При строительстве здания из морских контейнеров, необходимо учитывать все особенности климата, поверхность участка, и работы, которые следует выполнить, то есть гидроизоляция, теплоизоляция, и звукоизоляция, а также дальнейшая отделка стен внутреннего и внешнего вида различными материалами.

Дома из морских контейнеров давно привлекли к себе внимание. Связано это с тем, что модульные строения стоят дешевле кирпичных или деревянных, а строятся намного быстрее.
В таком помещении можно жить в летнее время года, а если провести отопление, то и круглогодично.
Особенности конструкции
Морские контейнеры очень прочны и могут выдерживать внешние отрицательные воздействия. Делают их из оцинкованной стали, которая может выдерживать колоссальные нагрузки. Средний вес такого сооружения равен 2-4 т. Более подробно о габаритах можно прочитать в таблице:
| Параметры готового контейнера | Стандарт 20 футов | Высокий 20 футов | Стандарт 40 футов | Высокий 40 футов | Высокий и широкий 40 футов |
|---|---|---|---|---|---|
| Внешние размеры | |||||
| Длина(мм) | 6058 | 6058 | 12192 | 12192 | 12192 |
| Ширина(мм) | 2438 | 2438 | 2438 | 2438 | 2500 |
| Высота(мм) | 2591 | 2896 | 2896 | 2896 | 2896 |
| Внутренние размеры | |||||
| Длина(мм) | 5905 | 5905 | 12039 | 12039 | 12039 |
| Ширина(мм) | 2350 | 2350 | 2350 | 2350 | 2432 |
| Высота(мм) | 2381 | 2693 | 2372 | 2693 | 2693 |
| Дверной проем | |||||
| Ширина(мм) | 2336 | 2340 | 2336 | 2340 | 2432 |
| Высота(мм) | 2291 | 2597 | 2291 | 2597 | 2597 |
Плюсы и минусы контейнерных жилищ
Каждый человек по-разному относится к таким жилищам. Кому-то они очень нравятся, и они с удовольствием стали бы там жить. Другим, наоборот, начинает казаться, что такой дом будет слишком недолговечным и холодным. Чтобы разобраться в этой теме подробнее, нужно изучить все положительные и отрицательные стороны.
Плюсы:
- Быстрота возведения. В среднем, все строительство занимает пару месяцев.
- При недостаточных средствах возможно начать поэтапное строительство.
- Все отделочные и монтажные работы очень просты.
- Повышенная прочность гарантирует долгую службу.
- Высокая влажность никак не навредит.
- Большие возможности при желании перепланировки.
- Фундамент устанавливается также просто и не требует дополнительных затрат.
- Контейнерные жилища достаточно необычны и красивы.
- Стены выдерживают большие землетрясения.
- При хорошем отоплении можно проживать в холодное время года.
- Морской контейнер можно разместить на неровной поверхности, в том числе и под большим уклоном.
- Ровные стены по вертикали и горизонтали.
Дома из морских контейнеров на фото:

Минусы:
- Стоимость одного контейнера начинается от 65 до 98 тысяч рублей.
- Если не сделать качественную отделку строения, то оно будет выглядеть не очень красиво.
- При желании сделать дом только из одного контейнера, высота потолков будет около 2,5 метров.
- При палящем солнце стены сильно нагреваются, а в зимнее время – замерзают. Без утепления жильё будет очень холодным.
- Раз в несколько месяцев строение нужно обрабатывать специальным антикоррозийным средством.
- Для доставки конструкции потребуется спец. техника, которая может не заехать в определенные места из-за плохой дороги.
- Без хорошей вентиляции внутри будет трудно дышать.
- Есть вероятность купить некачественный контейнер. В некоторых из них могли перевозить опасные токсические вещества, которые пропитались в стены.
Как правильно сделать дом из морских контейнеров своими руками
При строительстве малобюджетного дома из морских грузовых контейнеров можно прибегнуть к помощи специалистов, а можно всё сделать своими руками. Пусть это будет немного дольше, но сам процесс создания собственного жилья никого не оставит равнодушным.
Основные моменты
Вот что нужно обязательно учесть:
- Первое, что необходимо сделать при самостоятельном возведении – это провести точный расчет всех действий и этапов. Нужно учесть каждую мелочь, закупить необходимый инструмент и составить план. После этого можно приступить к дальнейшим действиям, а именно, к закладке фундамента. Из-за небольшого веса конструкции подойдет блочный фундамент. Если будущий дом будет располагаться в болотной местности или на склоне, то в качестве фундамента подойдут сваи. Они достаточно прочные и смогут выдержать вес целого контейнера.
- Непосредственно после покупки конструкции нужно выполнить ряд работ. Если стены не были обработаны антикоррозийным средством, то стоит сделать это самостоятельно. Так можно исключить быструю порчу металла.
- После покупки контейнера нужно четко представлять, где будут располагаться окна и двери.
- Двускатная крыша обеспечит дом дополнительным теплом и будет препятствовать застою влаги.
- Не стоит забывать, что для круглогодичного проживания нужно утепление стен.
Проектирование и планировка
Всё будущее строительство будет поделено на несколько шагов. И первый из них – планировка. Любое строительство не может обойтись без данного этапа. Нужно изучить каждую мелочь, составить план участка и будущего строения, а также внутреннюю и внешнюю отделку. Только после этого можно приступать к следующему этапу.
Покупка контейнера
К этому шагу нужно отнестись с большой ответственностью. Как было сказано ранее, контейнеры хорошо впитывают вредные вещества, которые незаметны человеческому глазу, но оказывают вредное воздействие при непосредственной близости. Перед оплатой проверяем стены на уровень радиации. Если все нормально, то покупаем 2 контейнера и приступаем к следующему шагу.
Инструменты и материалы
Об этом тоже следует подумать заранее, еще на этапе планирования строительства. Для проведения работ потребуется:
- брус 6х6 и 10х10;
- доски разных размеров, в зависимости от приобретенной конструкции;
- саморезы 1,3;
- ДСП;
- оцинкованная сталь;
- минвата для утепления;
- сантехнические болты;
- несколько свай средних размеров;
- профнастил для кровли;
- сварочный аппарат, шуруповерт и болгарка;
- временный электрический генератор.
Укладка фундамента
Для закладки фундамента подойдет много материалов, но самым популярным являются блоки. Они не занимают много места, выполняются из прочных материалов и легко устанавливаются. На землю насыпаем слой из гравия и устанавливаем блочный фундамент согласно размерам нашего контейнера. Расстояние по горизонтали и вертикали должно равняться 6 метрам. Если это так, то приступаем к следующему шагу.
Установка контейнеров
Самостоятельно установить контейнеры будет достаточно сложно. Без помощи спецтехники в данном случае никак не обойтись. Стоит заранее договориться и арендовать машину на пару часов. После этого, с помощью спецтехники конструкция устанавливается на фундамент.
Внутренние и внешние работы
Теперь приступаем к самой интересной части работ. Непосредственно на стенах нужно разметить окна и дверь. После этого берем в руку болгарку и аккуратно по контуру вырезаем проемы. После этого можно приступать к внутренней отделке.
Делаем кровлю
Инструкция:
- Крышу делаем двускатной. Первое, что нужно сделать — разметить будущую мансарду. Сделать ее достаточно просто. Для этого понадобится брус и саморезы средней длинны.
- Когда каркас будет готов, можно приступать к установке стропил. Скрепляем мансарду и стропила с помощью саморезов. Ни в коем случае нельзя использовать для скрепления гвозди. Они недостаточно прочны для такой конструкции.
- Остается только сделать обрешетку и уложить листы стали.
- Чтобы кровля была пароизолирована, устанавливаем пароизоляционную пленку.
Утепление
Для этого нельзя обойтись без обрешетки стен. Сделать ее нужно только снаружи нашего будущего дома. Минеральная вата укладывается между брусьями. Она должна плотно прилегать к стене, чтобы в холодное время года внутри было всегда тепло.
Внешняя отделка стен
Здесь всё основывается на личных предпочтениях хозяина. Профнастил скрепляем с обрешеткой с помощью саморезов.
Внутренняя отделка
Внутри стены тоже желательно утеплить минеральной ватой. Внутренняя отделка практически идентична внешней, только вместо профнастила берем листы ДСП. Далее переходим к установке стеклопакетов и двери. Пол утепляется по аналогичной схеме. Закрываем утепленный пол досками либо листами ДСП.
Проведение коммуникаций
Свет и канализацию провести достаточно просто, а вот с газом и водой могут быть проблемы. Всё зависит от расположения дома. Свет стоит дополнительно защитить специальными коробами, чтобы избежать негативного внешнего воздействия.
Варианты дизайна домов из морских контейнеров
Данные жилища выглядят красиво и уникально. Простота в строительстве помогла дизайнерам сделать самые разнообразные строения, которые не похожи ни на один другой. Некоторые постройки строятся из 2 и даже 3 контейнеров. Получается полноценный дом с несколькими комнатами, гостиной, большой кухней и ванной. Весь образ дополняют большие окна, размер которых равен длине стены по вертикали. За счет них создается иллюзия, что потолки становятся немного выше.
Дизайнер Адом Калкин создал самую удивительную архитектурную вещь, которая называется «дом в доме». Внутри большого здания расположились контейнеры, которые служат жилыми комнатами, немного отдаленными друг от друга. Выглядит эта картина очень впечатляюще. По такому принципу можно создать жилища сразу для нескольких семей:

Нежилые здания из морских контейнеров
Возможно многие не знали, но из контейнеров строят не только дома, но и объекты инфраструктуры. Большой популярностью они пользуются у владельцев придорожных кафе и небольших ресторанов. Нередко эта конструкция становится своеобразным «домом на колесах», перемещаясь каждый день в новые места.
Стивен Шуп создал из такой конструкции целый мини офис, который предназначался для небольшой начинающей компании. Габариты контейнера позволили разместить в нем всю необходимую технику, и даже разделить внутреннее помещение на несколько зон. Офис был спроектирован из 2 контейнеров, размещенных Г-образной формой:


Цены готовых домов и варианты проектирования
Хоть многие и относятся к данному типу строения скептически, популярность на модульные строения растет с каждым днем. Они различаются друг от друга не только внешним видом, но и площадью. Стандартный дом около 90 квадратных метров обойдется покупателю в 450 тысяч рублей. Достаточно недорогая цена для такого жилья. При желании можно заказать постройку второго этажа, но тогда стоимость будет выше. Семья из 2 человек с легкостью разместится в нем.
Но если пристроить контейнер к одной из стен, дом уже становится 3 комнатным, а число возможных проживающих увеличивается вдвое. Такой вариант отлично подойдет для семьи с 2 детьми. Если дом 2-этажный, то на первом обычно размещается санузел, небольшая гостиная и кухня. А вот жилые комнаты находятся на 2 этаже. Связано это с тем, что для спален требуется больше площади, а на первом этаже ее просто может не быть.
Многие хозяева модульных жилищ делают перепланировку. За счет нее внутри появляются новые комнаты. Например, можно сделать перегородку в гостиной, отделив тем самым рабочую зону и зону отдыха. Такую же процедуру можно проделать и в детской комнате, отделив зону игр. Здесь все зависит от вашей фантазии и возможностей.
На фото разные проекты домов из морских контейнеров:

Из всего сказанного следует, что сделать дом из морских контейнеров своими руками достаточно просто, но на это может уйти время. Если есть достаточно средств, то можно купить уже готовый дом, который будет полностью отделан и пригоден для проживания. Остается только купить его и доставить на свой участок.
Напоследок еще картинки домов из морских контейнеров:



























Для постройки дома можно возвести столбчатый фундамент



















































































































































