Главная » Разное » Экспедиционный багажник на шевроле ниву своими руками
Экспедиционный багажник на Ниву Шевроле, чертежи своими руками
Активный отдых и путешествия – эти черты в большой степени присущи владельцам Нива Шевроле. Сам автомобиль своей конструкцией и концепцией располагает к активному отдыху и поездкам на дальние расстояния. Однако в устройстве имеется один большой недостаток – малый объем грузового отсека.
Багажник Нивы может вместить всего 300 литров полезного объема, что является достаточно скромным показателем для внедорожника. Владельцы решают эту проблему установкой дополнительного экспедиционного багажника на крышу.
Конструкция, применение и характеристики
По своей конструкции экспедиционный багажника представляет прямоугольный лист металла с ботиками по краям, расположенный ан крыше при помощи различного крепежа. Объем полезной нагрузки, погруженной на такой узел, может составлять до 200 литров или 120 кг в массовом выражении. Это значительно расширит возможности владельца по перевозке полезного груза (увлечение полезного объема составит порядка 35%).
На фото-чертеж экспедиционного багажника на Ниву Шевроле:
Площадка может быть как гладкой, так и отформованной с дополнительным крепежом в виде крючков и внутренних бортиков. Такая конструкция позволит удобно перевозить грузы различного назначения (крупногабаритные одновременно с грузами небольшого объема).
Поверхность с шершавым покрытием не позволит небольшим не закрепленным грузам выпадать во время движения и скатываться.
На видео- экспедиционный багажник на Ниву Шевроле:
Материал изготовления
Материалы, из которых могут быть изготовлены данные багажники насчитывают всего два вида. Это алюминиевые багажники и стальные. Каждый из видов имеет свои достоинства и недостатки:
Такая защита тяжелее, чем алюминиевый аналог в среднем на 20%, что плохо сказывается на топливной экономичности. Стоимость стальной защиты зачастую ниже на 10%.
По способу крепления такие багажники также различаются на несколько видов:
Самостоятельное изготовление
Изготовить экспедиционный багажник самостоятельно вполне по силам, однако для этого необходимо иметь точные чертежи деталей, определенный набор инструмента и умение пользоваться сварочным аппаратом. Багажник из стали можно сварить при помощи нескольких стальных труб (бортик), стального плотна и уголков.
На видео- экспедиционный багажник на ниву шевроле своими руками:
Производители
Самыми распространенными производителями такой продукции на отечественном рынке являются:
- NEKON компания несколько лет профессионально занимается изготовлением различного рода изделий для экстремального отдыха. Экспедиционный багажник от данного производителя отличается стабильно высоким качеством и хорошими эксплуатационными характеристиками. Средняя стоимость багажника составляет порядка 15 000 рублей;
- Евродеталь – еще одна популярный производитель багажников. Пользуется не меньшей популярностью благодаря очень надежной и практичной продукции. Стоимость комплекта составляет порядка 13000 рублей.
экспедиционный багажник своими руками — Chevrolet Niva, 1.7 л., 2007 года на DRIVE2
Всем Привет!Лазил я как то по внедорожным сайтам и любовался фотографиями железных монстров.На очень многих из них присутствовал следующий сюжет, хозяин, где один, а где и с друзьями залазил на крышу своего монстра, вставал на эксп. багажник и делал селфи. В связи с этим возник у меня вопрос, а какую нагрузку выдержит экспедиционник и каков его приблизительный вес?Покурил сайты, и определился для чего мне нужен экспедиционник. Экспедиционник нужен скорее всего для того что бы разгрузить маленький багажник шевика, перевозки строй материалов, для отдыха лыжи, сани, велосипед.
за основу был взят как образец ijeep.ru/aksessuari_dlya_…voimi_rukami_na_krossover
далее возник 2 вопрос на что крепить? тут проще подглядел у seasav www.drive2.ru/l/6198845/ швеллера такого не нашел, взял профильную трубу 80*80 3мм. пока на это все ушло 3 дня и вот результатPS.: я первый раз варю. и если вам скажут что врачи ни чего не умею, не верти, у нас вся жизнь учеба, 🙂 учимся и делаем!
Цена вопроса: 1 000 ₽
Экспедиционный багажник на Ниву: как сделать и установить своими руками
Всем привет! Мои последние поездки с семьей и друзьями на отдых, на природу наглядно показали, что даже внедорожники способны испытывать дефицит в багажном пространстве. А когда у тебя в распоряжении Нива, то тем более внутрь автомобиля разместишь далеко не все, что тебе захочется.
Потому решил с вами обсудить экспедиционный багажник на Ниву. Хотя есть и другие багажники на крышу.
Вы можете устанавливать такую конструкцию как на обычную отечественную Ниву с индексом 2121 или 2131 (2 и 4 боковые двери соответственно), так и продукцию бренда Chevrolet. Хотя и под любую другую машину, которая конструктивно позволяет монтировать на крышу багажники, подобный вариант расширения возможностей по грузоперевозкам подойдет.
Ключевые особенности и преимущества
Предположим, что вы решили на Шеви Ниву поставить вместительный экспедиционный багажник. Это большая площадка с бортами, в которую грузятся всевозможные вещи. От обычного багажника он отличается усиленной конструкцией, которая позволяет рассчитывать на внушительные нагрузки.
Экспедиционный багажник (ЭБ) можно описать как корзину с рамной конструкцией и дополнительно несколькими опорами. Они позволяют установить крепления на крышу, то есть на рейлинги вашего внедорожника. Монтаж подобной конструкции обеспечит вас возможностью перевозить групногабаритный груз, который в вашу отечественную Ниву или Шевроле Ниву не помещается, либо свободное место требуется для пассажиров.
К преимуществам и ключевым особенностям ЭБ я бы отнес:
- универсальность и многофункциональность;
- прочность конструкции при одновременной легкости;
- способ избавиться от лишнего груза внутри машины;
- привлекательный внешний вид.
Да, самым простым решением станет покупка готового заводского экспедиционного багажника. Ознакомьтесь с возможными вариантами багажников на рейлинги. Но подобные готовые конструкции не самые дешевые, потому купить их захочет или сможет не каждый из вас.
Порой автовладельцы, чтобы не тратить лишние деньги, самостоятельно решают сделать себе ЭБ на Ниву. Хороший вариант, поскольку самодельный багажник не сильно отличается от заводского. Только для этого используйте качественные материалы и ответственно подходите к сборке конструкции. Я вам в этом постараюсь помочь.
Подготовка к работе
Если вас привлек вариант монтажа на крышу Нивы экспедиционного багажника, то вы наверняка часто перевозите какие-то грузы, являетесь поклонником активного отдыха, рыбалки или охоты.
Нива сама по себе машина, предназначенная для подобных целей. Часто используется как рабочая лошадка. Установив багажник экспедиционного типа, количество лошадиных сил не увеличится, а вот функциональность и практичность машины явно изменится в лучшую сторону.
Чтобы начать сборку, вам потребуется пройти через этап подготовки.
- Время и место. Для изготовления ЭБ вам понадобится место, где этим заниматься, и свободное время. Обидно, когда желание не совпадает с возможностями, и человеку банально не хватает времени, чтобы заниматься своей машиной самостоятельно. Потому взвесьте реально свои возможности.
- Чертеж. Не зная размеры автомобиля и параметры самой конструкции на багажник, начинать работу не имеет смысла. Есть множество примеров схем на фото, по которым реально сделать ЭБ конкретно под Ниву. Только убедитесь, о какой именно Ниве идет речь, чтобы не начать под отечественную Ниву собирать багажник, схема которого ориентирована на Шевроле.
- Материалы. Официальные производители и просто народные умельцы обычно используют алюминий и алюминиевые сплавы. Поддерживаю такой вариант, поскольку эти металлы прочные, надежные, долговечные и одновременно легкие. При отличных параметрах прочности на крыше вашей машину не будет восседать тяжеловесная металлическая конструкция. Плюс алюминий не ржавеет, что является важным аргументом в его пользу.
В основном экспедиционные багажники делают путем сваривания труб. Их них же выполняют борта нужной высоты. На днище укладывают трубы с меньшим диаметром, а иногда армируют, то есть усиливают металлической сеткой. Тут уже ориентируйтесь на нагрузки, которые будут воздействовать на ваш самодельный ЭБ.
Цена на расходные материалы куда меньше, чем на готовые изделия. Наличие стандартного набора инструментов и сварочного аппарата вам помогут.
Изготовление конструкции
Создать своими руками нечто такое не так тяжело, как многие думают. Владея навыками сварки и умея обращаться с рулеткой, вы быстро справитесь с поставленной задачей. Видео инструкции вам помогут.
- Начните с чертежа. Если готовые варианты вам не подходят или не нравятся, сделайте свою схему. Только наносите на нее все параметры с точностью до миллиметра. Иначе отверстия под крепление или другие компоненты просто не совпадут между собой при итоговой сборе и монтаже на крышу Нивы;
- Сварите четыре отрезка выбранной алюминиевой трубы. Она может иметь круглое или квадратное сечение, как вам удобнее. Так вы получите каркас, который далее соединится с рейлингами на крыше авто;
- Между поперечными трубами расстояние большое, потому обязательно приварите к прямоугольному каркасу еще и дополнительные промежуточные профили. Это даст конструкции требуемый уровень надежности. Планки профиля соединяются между собой методом сварки. Можно заменить на болтовые соединения, но это сложнее и дольше;
- Переднюю и заднюю дугу изготавливают из округлого профиля. Это придает привлекательный внешний вид и создает дополнительный аэродинамический эффект;
- Теперь монтируйте борта экспедиционного багажника. Лучше по бокам каркаса выполнить отверстия сверлом и дрелью, в них вставить втулки и обварить. Так металл банально не будет загибаться, когда вы начнете закручивать крепежные болты;
- Далее делаем сами борта из профиля требуемой длины согласно чертежам. К болтам привариваются шпильки, и вкручиваются в отверстия на каркасе, которые вы уже предварительно просверлили;
- После проделанного можно прикрутить втулки, которые будут служить для фиксации поперечины;
- По бокам и сзади приваривается часть шпильки;
- Завершает нашу работу придание конструкции привлекательного внешнего вида. Для этого поверхность очищается, дополнительно обрабатывается наждачкой, удаляя все заусенцы. Обязательно нанесите соответствующую грунтовку и пару слоев краски, чтобы закрепить результат.
Сборка готова. Теперь остается только зафиксировать все надежно на рейлингах Нивы. Хотя некоторым обычной конструкции экспедиционного багажника кажется мало.
Ничего не имею против того, чтобы разнообразить его. Для этого используйте любые понравившиеся вам идеи. Кто-то ставит специальные фары на ЭБ в виде прожектора. Они помогут тем, кто любит ночную рыбалку, часто выбирается на охоту или увлекается ездой по бездорожью. Мощная оптика позволит рассмотреть ситуацию вокруг вас под покровом ночи.
Есть и те, кто ставит наверх целый тент или палатку, создавая место для ночлега в диких условиях. Прекрасный вариант для незабываемого отдыха. Говорю из личного опыта, поскольку спать на крыше машины — это нечто новое и удивительное. Подобного я еще никогда не испытывал. Плюс не нужно брать с собой лишние вещи.
Чтобы добиться результата, четко следуйте схеме, надежно сваривайте и затягивайте элементы конструкции между собой. А если банально нет времени или желания, купите готовый экспедиционный багажник.
Спасибо всем за внимание! Подписывайтесь на наш сайт, задавайте вопросы, оставляйте комментарии и приглашайте друзей!
Спасибо за прочтение! Пожалуйста, оцените статью
(8 оценок, среднее: 4,88 из 5) Загрузка…
Преимущества и недостатки экспедиционного багажника на Ниву Шевроле
Экспедиционный багажник на Ниву — это промышленный или самодельный багажник, устанавливаемый на крышу автомобиля. Внешне он напоминает открытую невысокую прямоугольную корзину. Такие корзины устанавливали на крыши дилижансов наши предки, отправляясь в путешествия или экспедиции. Отсюда такое название — экспедиционный.
Экспедиционный багажник на Ниву предназначен для перевозки крупногабаритных грузов, которые нельзя разместить в салоне автомобиля. Альтернативой ему является бокс. Багажники обоих типов устанавливаются на Ниву 2121, Ниву 2131 и другие модели, стоят примерно одинаково.
Конструкция и установка
Промышленный багажник на Ниву Шевроле может быть изготовлен из алюминия или стали. Алюминиевый намного легче, но это единственное его преимущество. Он рассчитан на меньшую нагрузку. Его дуги и другие элементы скрепляются болтами. Это означает, что при движении по тряской дороге крепления могут ослабнуть, вся конструкция может просесть или вовсе слететь, повредив при этом груз и автомобиль.
Стальная конструкция багажника на Ниву сварная, дуги выполнены из прочной профильной стальной трубы. Она выдерживает большую нагрузку. В случае опрокидывания автомобиля играет роль буфера, сохраняя от повреждений крышу и салон автомобиля. Да и цена ее намного ниже. Поэтому автовладельцы чаще выбирают стальную конструкцию.
Багажник такого типа представляет собой каркас в форме прямоугольника со скругленными углами или 4 соединенные дуги. Продольные дуги соединены между собой пятью металлическими трубами. На них уложена и закреплена металлическая сетка, иногда ее заменяет алюминиевый лист. Такую конструкцию называют опорной площадкой.
К продольным дугам присоединены 6 опор, которыми площадка крепится к водоотводным желобам на крыше автомобиля. К площадке крепится ограничительный бортик. Заднюю часть бортика делают высотой 20 см, переднюю меньше. Это сделано для улучшения аэродинамических показателей и удобства пользования.
Стандартные размеры площадки 126х136 см, но у различных производителей они могут незначительно отличаться.
Для сборки и установки имеются подробные инструкции и чертежи. Поэтому собрать и установить багажник на Ниву своими руками вполне может один человек.
Непосредственно с земли загружать и разгружать багажник неудобно, так как он расположен на достаточно большой высоте. Поэтому удобно пользоваться стремянкой или специально предназначенной для этого лестницей.
Лестница на Ниву крепится на место запасного колеса, которое предварительно снимается. Ее форма повторяет форму задней двери, поэтому внешний вид автомобиля лестница не портит и не мешает открыванию двери. Но такой лестницей может пользоваться человек с весом до 85 кг.
Преимущества и недостатки
Преимущества экспедиционного багажника:
- большая грузоподъемность (до 200 кг);
- большой запас прочности;
- при движении по лесной местности не повреждается, а бокс, изготовленный из пластмассы, царапается и ломается;
- на дуги можно крепить различные элементы, например держатель запасного колеса, дополнительные фары.
Недостатки экспедиционного багажника:
- ухудшает аэродинамические качества автомобиля;
- не обеспечивает защиту груза от ветра, атмосферных осадков, ударов веток;
- ухудшает внешний вид Нивы.
На отмеченные недостатки многие автолюбители не обращают внимания или устраняют их:
- Внедорожник — это не гоночный автомобиль, а сопротивление воздуха начинает существенно проявлять себя при скорости более 90 км/час. Для снижения сопротивления на дуги можно установить обтекатели.
- Автолюбители самостоятельно устанавливают веткоотбойники, придумывают защиту для груза и ее крепление.
- Удачный тюнинг багажника, сделанный своими руками, придает автомобилю неповторимый, а порой даже экзотический вид.
Купить или сделать своими руками?
Расчеты показывают, что стоимость стальных деталей составляет 10% от стоимости всей конструкции. Поэтому многие владельцы Chevrolet Niva предпочитают сконструировать багажник на крышу своими руками. Для этого они используют готовые чертежи экспедиционного багажника или разрабатывают собственные. Нередко их конструкции по качеству и функциональности превосходят промышленные.
У всех внедорожников семейства ВАЗ имеется существенный недостаток — слишком мал объем грузового отсека салона. Поэтому перевозить грузы приходится не в салоне, а на крыше автомобиля.
Автомобилисты считают, что экспедиционный багажник на Ниву — лучшее решение.
Багажник на Ниву своими руками
Основное предназначение багажника на крыше автомобиля – перевозка крупногабаритного груза, который невозможно разместить в салоне авто. Особенно это актуально для таких длинных предметов как доски для строительства, лыжи и прочий спортинвентарь, а так же велосипеды и аксессуары к ним. Большим подспорьем такой багажник может стать для любителей путешествовать и при этом не лишать себя комфорта в салоне авто. Но перед тем как сделать багажник на Ниву своими руками необходимо прежде всего ознакомиться с основными параметрами, которым должно соответствовать изделие, в том числе с ГОСТ.
Багажник на крышу может быть выполнен в нескольких вариантах, наиболее популярными из которых можно выделить 2 основных: закрытый бокс для перевозки вещей или экспедиционный вариант. Закрытый бокс обычно производиться из полимеров, обладает большой прочностью и способен защитить груз от атмосферных осадков в виде снега и дождя. Но самостоятельное изготовление такого багажника невозможно, поскольку требует наличия промышленных инструментов и технологий, а так же большое количество материалов. Проще остановиться на готовых вариантах, имеющихся в продаже.
Но для передвижения по бездорожью, где основной задачей становиться перевозка крупногабаритного груза, можно самостоятельно изготовиться багажник экспедиционного типа. Данная конструкция имеет как большое количество плюсов, так и некоторые недостатки.
К преимуществам можно отнести:
- увеличенная вместимость. При правильном изготовлении на конструкцию может быть установлено до 200 кг груза.
- возможность установки дополнительных компонентов, например дополнительных фар.
- установка дополнительных креплений практически для любого типа перевозимых грузов: велосипеды, и прочее.
- внешний вид такой конструкции лучше сочетается с внедорожником, в отличие от пластиковых боксов.
Недостатки менее существенны в данном случае, но они все-таки присутствуют:
- ухудшение аэродинамических качеств автомобиля за счет особенностей конструкции
- невозможность использования защиты груза от атмосферных осадков. В таком типе багажника невозможно размещать вещи, которые могут промокнуть
Но недостатки можно устранить на стадии планирования конструкции. Можно накрыть груз непромокаемым материалом или улучшить аэродинамические характеристики. Но важно помнить, что большинство владельцев Шевроле Нива выбрали этот автомобиль не для скоростной езды, а для преодоления бездорожья, где важнее становятся вместительность и надежность. Некоторые владельцы такого багажника при эксплуатации жалуются на шум, издаваемый им при передвижении. Но это, скорее всего индивидуальная проблема, вызванная недостаточно качественной сварке, а также отсутствии заглушек на торцах трубок.
Чтобы сделать экспедиционный багажник необходимо внимательно ознакомиться с предоставленными чертежами и тщательно подобрать необходимое количество материала и инструментов.
Основным материалом используемых для того чтобы самостоятельно сделать багажник на Ниву Шевроле являются:
- Алюминий – отличается небольшим весом. Это позволяет минимизировать нагрузку на основные узлы автомобиля и способствует дополнительной экономии топлива. Но сама конструкция при этом не способна выдержать высокие нагрузки.
- Сталь – отличается большим весом. Но при этом прочность такой конструкции на порядок выше. Это позволяет избежать повреждений при тряске или вибрации. Правильно установленный и собранный багажник из стали может защитить крышу от сильных повреждений даже при опрокидывании машины.
- Трубки из металпрофиля – позволяют снизить стоимость конструкции и сделать ее более легкой. Но прочность будет гораздо ниже, чем при использовании стали.
Расчет необходимого количества материала.
При проектировании необходимо учитывать наличие рейлингов на автомобиле и подогнать крепление под размеры автомобиля. Чтобы рассчитать точные параметры конструкции необходимо просчитать следующие параметры:
- длина, ширина и высота предполагаемой конструкции
- примерный вес рамы
- предполагаемый вес груза
После этого нужно переходить к чертежу предполагаемого изделия. В идеале нужно сделать примерно такой чертеж
Когда все расчеты закончены нужно приступать к работе. Для этого понадобятся следующие инструменты:
- сварка
- шлифовальная машинка/болгарка
- трубы с квадратным сечением 20мм
- крепеж.
Сварочные работы начинаются с изготовления каркаса, согласно чертежу. Для тех, кто занимается сваркой впервые лучше варить каркас прямоугольной формы, чтобы тщательно проварить все углы. Чтобы придать дополнительную прочность багажнику необходимо использовать ребра жесткости из профиля, располагаемые внутри рамы.
После того, как каркас собран нужно придать конструкции дополнительные аэродинамические свойства. Для этого к передней части приваривается трапециевидная конструкция. Угол наклона боковых частей должен быть равен 35-40 градусов. Чтобы согнуть профиль нужно нагреть его и при помощи болгарки пропилить треугольные вырезы, оставив перемычку длиной 5-7 миллиметров. После этого места сгиба провариваются, затем конструкция устанавливается на основную раму.
После этого на раму привариваются борта. Высота стоек должна быть не менее 7 сантиметров.
Чтобы оснастить багажник дополнительными световыми приборами можно приварить к корпусу шпильки, чтобы обеспечить более удобное крепление.
Экспедиционный багажник на Ниву своими руками — Лада 4×4 3D, 1.8 л., 1994 года на DRIVE2
Делать и проектировать багажник мне помогал мой хороший друг Игорь! Спасибо ему большое за это! Всегда помогает в трудную минуту! Побольше бы таких людей!За основу багажника был взят багажник, который Игорь уже сделал себе на свой УАЗ:
Мы с ним решили сделать такой же, только уменьшить его размеры до размеров Нивы + по бокам оставить место для хай-джека и лопаты. Ещё я хотел сделать бортики между креплениями к крыши:
Но в итоге их не сделали, ну и правильно, багажник легче будет.
В общем багажник мы подгоняли под размеры, что бы на нём уместились: штатная запаска или чуть больше, треки, хай-джек и лопата по бокам за бортами, дополнительное освещение, место для антенны от рации, серьги для веткорезов. Ну и, конечно же, что бы встать на него, посмотреть дорогу или поглазеть куда нибудь, на что нибудь =)
В итоге всё вышло как и планировалось. Покрашен был в порошковую краску.
По мере поступления офф-роад инвентаря (хай-джека, лопаты, доп света в перёд и по бокам), на багажник будут добавляться крепления для этого, приварить это не долго, а пока он был сделан под то, что уже имеется в наличии =)Если бы делали второй раз, то основу багажника, которые уходят в крепления — сделали бы по-другому, само начала багажника начали бы с креплений, но так как делали первый раз — вышло чуть не правильно, но в целом неплохо.Порошковая краска спустя чуть меньше года уже начала отслаиваться, это огорчает…Не давно на нём стояло 3 человека, выдержал, вес 3ёх человек был около 160 кг.Вес багажника не знаю, не взвешивали.Хай-джека и лопаты пока нет, треки на пескоструйной обработке, потом покрасятся и потом будут на багажнике. Но крепить их скорее всего буду не на барашки, а стяжками, как на старом багажнике.
Пока на данный момент багажником очень доволен =)
Page 2
Делать и проектировать багажник мне помогал мой хороший друг Игорь! Спасибо ему большое за это! Всегда помогает в трудную минуту! Побольше бы таких людей!За основу багажника был взят багажник, который Игорь уже сделал себе на свой УАЗ:
Мы с ним решили сделать такой же, только уменьшить его размеры до размеров Нивы + по бокам оставить место для хай-джека и лопаты. Ещё я хотел сделать бортики между креплениями к крыши:
Но в итоге их не сделали, ну и правильно, багажник легче будет.
В общем багажник мы подгоняли под размеры, что бы на нём уместились: штатная запаска или чуть больше, треки, хай-джек и лопата по бокам за бортами, дополнительное освещение, место для антенны от рации, серьги для веткорезов. Ну и, конечно же, что бы встать на него, посмотреть дорогу или поглазеть куда нибудь, на что нибудь =)
В итоге всё вышло как и планировалось. Покрашен был в порошковую краску.
По мере поступления офф-роад инвентаря (хай-джека, лопаты, доп света в перёд и по бокам), на багажник будут добавляться крепления для этого, приварить это не долго, а пока он был сделан под то, что уже имеется в наличии =)Если бы делали второй раз, то основу багажника, которые уходят в крепления — сделали бы по-другому, само начала багажника начали бы с креплений, но так как делали первый раз — вышло чуть не правильно, но в целом неплохо.Порошковая краска спустя чуть меньше года уже начала отслаиваться, это огорчает…Не давно на нём стояло 3 человека, выдержал, вес 3ёх человек был около 160 кг.Вес багажника не знаю, не взвешивали.Хай-джека и лопаты пока нет, треки на пескоструйной обработке, потом покрасятся и потом будут на багажнике. Но крепить их скорее всего буду не на барашки, а стяжками, как на старом багажнике.
Пока на данный момент багажником очень доволен =)
Для поездок на дачу или занятий туризмом может потребоваться багажная система на автомобиль. Продаются готовые варианты, но они не всегда устраивают автомобилистов из-за высокой цены. Если имеется свободное время, можно сделать экспедиционный багажник на Ниву самостоятельно. Для этого потребуется сделать чертеж, подготовить материалы и инструменты. Только при соблюдении всех аспектов конструкция получится прочной, надежной и аккуратной.
Инструменты и материалы для экспедиционного багажника
Для выполнения работ на всех моделях Нивы набор инструментов одинаковый:
- струбцина – зажим для фиксации деталей;
- сварочный аппарат;
- электроды: 2 мм — 1 кг, 3мм — 2,5 кг;
- электродрель;
- шлифмашинка (УШМ);
- гаечный ключ – используется, чтобы прикрепить багажную систему к крыше;
- шлифовальные и отрезные круги.
Для проведения работ заранее подготавливают материалы – металлопрокат соответствующих размеров. Потребуется профиль стальной 2×2 – 5 метров, сетка арматурная сечением 5 мм. Понадобятся две рамки – верхняя и нижняя, каждая размером 1700×1300 миллиметров. Другой вариант – купить по 4 прутка для самостоятельного изготовления каждой рамы.
Если на крыше нет рейлингов, нужно купить три штуки. Также необходимы стальные трубы с круглым сечением:
- ¾ — 24 метра;
- 4 штуки по 1,3 м;
- 4 шт по 1,45 м.
Можно использовать и квадратные трубы диаметром 20 мм вместо круглых. Здесь выбор зависит от предпочтений владельца авто. Если нет возможности приобрести заготовки диаметра 20 мм пригодны и 25-миллиметровые.
Формы и диаметры труб, в целом, зависят от предпочтений владельца. Главное, чтобы они не были очень тонкими
Для обработки металла и придания ему презентабельного вида необходимо купить преобразователь ржавчины. Также потребуется грунтовка и матовая краска черного оттенка. Если планируется соорудить крепеж для запасного колеса, дополнительно покупают гайку и шпильку. Для закрепления лопаты или домкрата приобретают металлические крюки.
Из чего лучше сделать багажник: алюминий или сталь?
Рекомендуется использовать сталь или алюминий. Важно учесть, что экспедиционные багажники чаще применяют для перевозки крупногабаритных предметов, например, досок или столбов для забора. Эти вещи имеют немалый вес, так что конструкция должна выдержать нагрузку.
Легкий алюминий не будет создавать высокую нагрузку на кузов и сильно увеличивать потребление топлива. Единственный недостаток материала – он не выдерживает высокие нагрузки. Сталь используют для изготовления багажных систем с высокой грузоподъемностью. Она отличается большим весом и высокой прочностью. Если машина опрокинется, стальная конструкция сможет защитить крышку от повреждений.
Сталь станет идеальным материалом для креплений. Эти элементы должны быть выполнены из высокопрочного сплава, чтобы конструкция хорошо держалась. Иначе во время поездки по бездорожью или при заносах, можно потерять багажник на полном ходу.
Пример крепежа багажника на рейлинги
Для самостоятельного изготовления лучше выбрать алюминий. Он не создает большую нагрузку на крышу и устойчив к образованию ржавчины. Необходимо подготовить трубы, из которых будет состоять каркас. Сечение не имеет значения, можно выбрать как квадратное, так и круглое.
Изначально экспедиционные багажники устанавливали, чтобы избежать повреждений автомобиля ветками деревьев. Конструкция, напоминающая корзину, способна защитить и лобовое стекло. В этом случае натягивают тросы, которые крепятся к багажнику и бамперу. Получается, что ветви отскакивают от тросов, и машина не повреждается. Поэтому для экстремальных вылазок на природу сталь подойдет.
Натянутые тросы для защиты лобового стекла от веток по бокам
Многие решают использовать экспедиционный багажник из стали, чтобы перевозить емкости с горючим. Получается, что внутренний багажник свободен, а в салоне нет запаха бензина. Но стоит помнить, что канистры достаточно тяжелые. К ним прибавляется вес металлической корзины, в итоге центр тяжести смещается. Увеличивается парусность автомобиля, возрастает вероятность ДТП при маневрировании. Машина может просто перевернуться. Кроме того, такой способ перевозки горючих веществ априори понижает безопасность передвижения.
Легкий багажник из алюминия сильно не влияет на управляемость авто, но увеличивает лобовое сопротивление. На него можно положить не очень тяжелые грузы – рюкзаки, снаряжение, инструменты, запасное колесо. Получается, что у автомобилиста всегда под рукой нужные вещи, и нет необходимости думать, как их уместить.
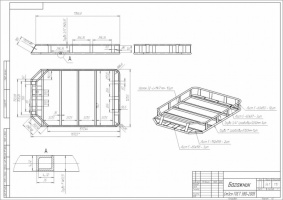
Размеры и чертежи экспедиционных багажников на Ниву
Экспедиционный багажник представляет собой открытую площадку с бортами. Сюда кладут предметы, которые не боятся атмосферных осадков. Но при желании вещи можно закрыть тентом от дождя. Сооружение имеет рамную конструкцию, чаще всего устанавливается на крышу авто к рейлингам. Оно может использоваться для крупногабаритных грузов, не помещающихся в штатное багажное отделение.
Пример самодельного экспедиционного багажника
Прежде чем приступить к тюнингу, необходимо составить чертеж конструкции. Важно определить размеры крыши и отметить расположение креплений на ней. При этом нужно учитывать, для какой Нивы будет изготавливаться данный элемент. Отечественные модели отличаются от тех, что собирают на заводе Шевроле. Внешние размеры багажника Нивы 2121 – 1700×1300 мм. Подходящие размеры деталей для данной модели:
- Трубы: с квадратным сечением — 2 мм 15×15; с прямоугольным — 2 мм 40×20.
- Арматурная сетка: 5 мм 200×100.
- Один уголок длиной 0,6 метра. Размеры: 25×25×3 мм.
Ниже мы представили несколько чертежей для самостоятельного ознакомления и разработки экспедиционного багажника на Ниву. Описанная ниже инструкция делается не по этим чертежам, но они вполне подробны и их можно также использовать:
Прежде чем делать каркас, нужно вручную произвести замеры. Желательно сделать багажник по размеру крыши и задействовать все полезное пространство. Но при этом сооружение не должно свисать по краям. При необходимости можно изменить готовую схему из интернета. Пример списка деталей для багажника с размерами приведен в таблице (сделан по чертежу №1 выше):
| Размеры деталей багажника Нива, мм | ||||||
| Рамы | верхняя | ширина | 1973,5 | передние подкосы | 352,5 | Материалы |
| длина | 1213,5 | труба с круглым или квадратным сечением диаметром 20 или 25 мм | ||||
| нижняя | ширина | 1973,5 | ||||
| длина | 1213,5 | |||||
| Перекладины | 10 шт для обеих рам | длина | 114,7 | уголок длиной 25×25×3 мм. | ||
| Ребра жесткости | 3 шт для передней части верхней рамы | длина | 199 | уголок или металлический профиль | ||
| ширина | 80 | |||||
| Стойки бортов | 12 шт | длина | 160 | металлический профиль | ||
| ширина | 60 | |||||
| Сетчатое днище | 2-3 шт | по размеру рамы | сетка арматурная : 5 мм 200×100 | |||
| Крепления для установки на рейлинги | 6 шт | заводские с металлическими поперечинами 20×40 мм и резиновыми прокладками, либо изготовленные самостоятельно | ||||
Таблица сделана по чертежу №1. Пошаговая инструкция ниже сделана по другим размерам.
Перед созданием конструкции водителю необходимо посмотреть руководство к автомобилю. Багажник обычно весит от 10 до 20 килограмм. Если сверху лежит 150 кг, на крышу давит еще и корзина. То есть, в сумме вес составляет 170 килограмм. Если в инструкции указано, что максимальная нагрузка на крышу – 70 кг, при превышении данного параметра она может проломиться. У Нивы 2101 грузоподъемность крыши составляет 100 кг.
Некоторые автомобилисты находят выход из ситуации и объединяют корзину с силовым каркасом машины. Но в результате ухудшается управляемость. Поэтому не стоит слишком сильно нагружать экспедиционный багажник.
Как правильно сварить каркас багажника
Для выполнения операции потребуется около 20 часов. Трубы для каркаса сваривают между собой, чтобы сформировать днище. При работе с алюминием используется аргоновая сварка. Таким же способом приваривают борта, которые можно при необходимости изготовить из металлических листов.
Аргоновая сварка алюминия
На дно желательно уложить армирующую сетку или трубки небольшого диаметра, которые будут служить ребрами жесткости. Обычно хватает трех перемычек, но лучше сделать пять. Точное количество можно определить уже на этапе сборки. Рекомендуемое расстояние между перемычками составляет 15 сантиметров. Оставшиеся трубки приваривают продольно, чтобы дополнительно усилить конструкцию.
Некоторые водители жалуются на дребезжание во время поездок с экспедиционным багажником. Чтобы избежать данного эффекта, сетку приваривают во всех местах, где она соприкасается с металлическими перекладинами. Поперечные перекладины находятся на большом расстоянии друг от друга. Поэтому необходимо в проемах между ними приварить отрезки профиля. Можно вместо сварки использовать болты, но это крепление менее надежное, а на выполнение операции уходит больше времени.
Чтобы сетка не дребезжала во время езды, ее нужно припаять к каркасу в как можно большем количестве мест
Дуги нужно делать из металлопроката с круглым сечением. Они улучшают аэродинамические свойства транспортного средства. Чтобы сооружение прикрепить к авто, можно взять обычные уголки с отверстиями для болтов. Они будут приварены к каркасу снизу, поэтому при необходимости можно в любой момент снять багажник. Чтобы на рейлингах не образовались царапины при соприкосновении с металлом, к креплениям стоит приклеить резиновые прокладки.
Верхняя рамка должна иметь прямые углы в передней части. Сзади нужно сделать грани, которые будут располагаться по краям. К раме необходимо приварить 12 отрезков профиля произвольного размера. От их размеров зависит высота будущего багажника. Обычно делают высоту 190 миллиметров. Необходимо закрепить шесть отрезков в углах, а остальные будут соединять их попарно.
Сверху на вертикально расположенные элементы из профиля приваривается верхняя рама. Следующим этапом производится монтаж и сварка диагонального элемента. Эта деталь необязательна, но она может использоваться для установки защиты от веток во время поездок в лес. При необходимости можно сделать крепления для дополнительных элементов:
- Крепеж для запаски.
- Дополнительное освещение, прожекторы.
- Крючки, на которых будет держаться трос.
- Полимерные боксы для снаряжения, например, палатки.
- Различные виды крепления для инструментов, например, лопаты.
- Лестница, упрощающая доступ к вещам, лежащим на багажнике.
Сделать крепеж для запасного колеса несложно. Для этого вначале следует выбрать место, на котором будет лежать запаска. В этом месте нужно приварить гайку. Далее шпильку вкручивают в эту гайку, но не приваривают. Теперь колесо можно надеть на шпильку и зафиксировать еще одной гайкой. Если планируется прикрепить фары, то для них потребуются водостойкие провода.
Любые дополнительные элементы можно присоединить позже, уже после установки корзины. Также необязательно изготавливать крюки или лестницу самостоятельно. Часто покупают готовые детали и присоединяют к самодельному багажнику. Но после сварки каркаса важно затереть все швы и примерить конструкцию, чтобы убедиться, что она подойдет по размеру.
Как сделать экспедиционный багажник на Ниву — пошаговая инструкция
Сначала разрезать трубу на 8 частей и сделать две одинаковые рамы, для придания аэродинамических свойств углы делают закругленными. К нижней рамке приварить 3 поперечные трубки.
Верхняя рама
Нижняя рама
На нижнюю раму приваривают трубы усиления уголков. При этом необходимо отшлифовать все швы.
Подготовить вертикальные трубки – 14 штук по 110 мм.
Теперь нужно между верхней и нижней рамками расположить 14 вертикальных трубок. Эти элементы необходимо приварить, чтобы получилась цельная конструкция: по 3 трубки вдоль приваренных поперечных труб нижней рамы и по 4 с перпендикулярных сторон.
Профили 2×2 разрезают, чтобы получить 12 одинаковых отрезков. Они будут служить ребрами жесткости для нижней рамы. Устанавливаться будут перпендикулярно уже имеющимся соединительным трубам.
Привариваются ребра перпендикулярно трубам на нижней раме.
Далее приваривается арматурная сетка поверх нижней рамы, также приваривается к трубкам, которые соединяют верхнюю и нижнюю раму.
Готовую конструкцию покрывают преобразователем ржавчины.
На фото — преобразователь ржавчины Цинкарь. Стоимость: ~150 руб. за 0.5 литра
Далее нужно зачистить металлические поверхности при помощи специальной плоской насадки-щетки для УШМ.
Конструкцию покрыть грунтовкой и покрасить.
После того, как краска высохнет, багажник можно установить на рейлинги. В дальнейшем рекомендуется регулярно обновлять защитное покрытие, чтобы металл не покрывался коррозией. Приведенная выше последовательность выполнения работ актуальна для всех моделей Нивы. Автомобилисту нужно только соблюсти размеры деталей и следовать инструкции.
Багажник устанавливается на рейлинги
Чтобы надолго защитить металлические поверхности от ржавчины, рекомендуется выполнить пескоструйную обработку и покрыть каркас порошковой краской. Это процедуру производят профессионалы автосервисов.
Полезные пошаговые видео-инструкции:
Как закрепить экспедиционный багажник
Прикрепляют данный элемент к водостоку или прикручивают к крыше. Во втором случае приходится самостоятельно делать гидроизоляцию каждого отверстия, чтобы при дожде вода не попадала в салон.
Крепление экспедиционного багажника к водостоку
Преимущество машин Нива состоит в том, что не нужно просверливать отверстия в авто. Конструкцию прикручивают к уже имеющимся рейлингам, которые автомобилисты часто называют рельсами. Это означает, что багажную секцию будет несложно снять в любой момент.
Крепление экспедиционного багажника к рейлингам
Для установки подойдут болты диаметром 8 миллиметров. Длина болта должна составлять 70 мм. Желательно с боков просверлить отверстия и поместить внутрь них втулки. Затем сверху приварить. Это защитит металлические детали от деформации во время закручивания болтов.
Обычно на Ниве два рейлинга, и получается, что можно закрепить багажник в четырех точках. Но для перевозки тяжелых вещей желательно закреплять корзину в шести точках. Поэтому иногда в авто с двумя рейлингами устанавливают еще один дополнительный. Крепления багажника по правилам опираются на участки передачи нагрузки на кузов. То есть, сооружение не должно давить на неукрепленные места над окнами или дверями.
Сравнение стоимости покупного и самодельного багажника на крышу
Оригинальная багажная система стоит от 11 000 до 13 000 рублей. Цена универсальных моделей для Нивы Шевроле составляет от 18 до 23 тысяч руб. В случае заказа индивидуальной модели, созданной с учетом особенностей машины, цена не будет ниже 20 000 руб.
Если изготовить багажник самостоятельно, стоимость материалов составит около 3 000- 5 000 руб. В этом случае можно сэкономить порядка 8 000-10 000 рублей. Удобно, что при самостоятельном изготовлении можно предусмотреть только необходимые элементы и сконструировать наиболее удобный багажник.
Заключение
Если изготовить полимерный бокс можно только на заводе, то сделать экспедиционный багажник для Нивы своими руками несложно. Такой элемент имеет практическое применение и улучшает внешний вид внедорожника. При соблюдении технологии, конструкция способна выдержать вес до 100 кг. Но необходимо учесть, что рейлинги являются достаточно слабыми элементами, поэтому перегружать корзину не стоит.
- Несмотря на всю популярность и востребованность экспедиционных багажников, производителей данных
устройств не так уж и много. Большинство компаний, реализующих данный автомобильный «аксессуар», лишь
посредники, что значительно увеличивает стоимость товара, ограничивает комплектацию и т.д. Мы же являемся
не просто продавцами багажников, но и их производителями.
Комплектация экспедиционных багажников нашего производства
- Приобретая экспедиционный багажник в нашем магазине, вы также приобретаете все необходимые к нему дополнительные элементы, в числе которых:
водосточные крепления;
кронштейны, с помощью которых можно установить дополнительное освещение;
сварная площадка с установкой такого же дополнительного освещения, но уже в передней части самого багажника. - Крепления на крышу заслуживают отдельного внимания. Они изготовлены из стали 3 мм и исключают сварные швы,
т.к. изготавливаются методом гибки. В комплект входят прижимные пластины, резиновые прокладки, болты, шайбы и гайки.
Достоинства экспедиционных багажников
- Багажники нашего производства выигрывают у остальных производителей по множеству факторов:
выдерживают большие нагрузки;
имеют прочную и удобную конструкцию, не позволяющую во время движения автомобиля грузу двигаться из стороны в сторону, что обеспечивает его сохранность;
имеют надежные крепления, которые прочно удерживают багажник на автомобиле и т.д. - Одним из преимуществ обслуживания нашей компании является то, что при доставке устройства,
мы обеспечиваем его компактную и максимально надежную упаковку, что исключает риск повреждения
багажника. Интересующую модель вы можете заказать даже по телефону. Будьте уверены, мы
производим одни из лучших экспедиционных багажников для автомобилей марки «Нива»
Удобно путешествовать
Есть много способов провести свой досуг активно. Одним из таких способов является путешествие по малопроходимым местам на внедорожниках. Некоторые специально для такого вида отдыха приобретают дорогие зарубежные внедорожники именитых производителей. Те, кому приобрести такие автомобили не под силу, путешествуют на отечественных авто, среди которых и ВАЗ-2121 «Нива».
Часто такие путешествия длятся долгое время и проходят вдали от населенных мест. Поэтому в дорогу берут большое количество вещей, топлива, оборудования и запасных деталей к автомобилю. Размеры же багажного отделения у Нивы ограничены. Поэтому часто автовладельцы устанавливают экспедиционный багажник на Ниву. Устанавливается он на крышу внедорожника и позволяет перевозить разного рода грузы.
Кроме того, для такого вида отдыха Ниву нужно подготавливать. Для того чтобы поездка прошла успешно, в конструкцию автомобиля вносится ряд конструктивных изменений, направленных на увеличение проходимости и надежности узлов и механизмов.
Багажник из магазина
Обзавестись такой вещью, как экспедиционный багажник, владельцам Нивы 2121 можно двумя способами.
В первом случае экспедиционный багажник приобретается в магазине автомобильных аксессуаров. Багажник на крышу можно сделать и самому, имея материал, инструменты и умелые руки.
Приобретая багажник на крышу в магазине, следует ответственно отнестись к этому делу. Модификаций такого приспособления на Ниву 21214 большое количество. Они отличаются между собой способами крепления к ВАЗ-2121, имеют разные размеры и материал изготовления. Некоторые имеют дополнительное оборудование, такое как фары и ремни крепления груза.
Сначала стоит обратить внимание на то, как экспедиционный багажник будет крепиться к автомобилю .
- Самым распространенным является крепеж к водостокам. Такой вид крепления простой и удобный. Закрепление к водостокам не занимает много времени, а при надобности его можно быстро снять. Однако следует учитывать, что груз значительной массы не поместить, в противном случае водостоки погнутся.
- Можно встретить на рынке багажник, который крепится не к водостокам, а непосредственно к кузову при помощи болтового соединения. Такой экспедиционный багажник имеет большую грузоподъемность, но для его закрепления нужно будет проделывать отверстия в кузове. К тому же при установке багажника с таким креплением возможности быстро снять его не будет.
Материал изготовления тоже имеет большое значение. Чаще всего основу экспедиционного багажника составляет сварная конструкция из труб. Из труб формируются и борта багажника. А вот дно может быть сделано из труб небольшого диаметра, которые размещены на небольшом расстоянии между собой. Трубчатое дно может располагаться продольно или поперечно.
В некоторых случаях экспедиционный багажник на ВАЗ-2121 имеет дно, сделанное из металлической сетки. При выборе багажника следует проверить все сварные соединения, они должны быть качественными. Также следует обратить внимание на вес багажника. Слишком легкий будет свидетельствовать о том, что материал изготовления слишком тонкий, поэтому багажник не будет являться надежным, а при нагрузке возможна его деформация.
Тяжелый багажник укажет на то, что материал выбран слишком толстый. Это будет влиять на общую грузоподъемность, поскольку при погрузке на него полезного груза следует учитывать и вес самого багажника.
Легко перевозить груз
Данное приспособление может быть оснащено дополнительными аксессуарами, такими как фары, закрепленные на нем, и ремни крепления груза. Здесь выбор делается на любителя. Тем, кому хочется иметь на авто больше осветительных приборов, следует учитывать, что для нормального функционирования бортовой сети нужно дополнительно на Ниву 2121 устанавливать генератор увеличенной мощности. Иначе сильная нагрузка на штатный генератор из-за большого количества фар может вывести его из эксплуатации.
Значение экспедиционного багажника для автомобилиста тяжело переоценить. Он позволяет транспортировать крупногабаритные грузы, которые невозможно положить в салон. Ярким примером в данном контексте являются доски.
Вам, пожалуй, не раз приходилось видеть, как водители при помощи экспедиционного багажника перевозят доски. Такой транспорт далеко виден и не заметить его невозможно. Вот только нужно всё надёжно закрепить, чтобы не создать при перевозке аварийной ситуации на дороге.
В действительно можно придумать множество назначений для экспедиционного багажника. С его помощью можно перевозить мебель. Комод средних размеров без особого труда крепится сверху. При желании можно перевезти даже диван. Хотя это будет весьма рисковое мероприятие. Поэтому лучше всего для перевозки столь габаритных грузов воспользоваться услугами грузовой компании.
Экспедиционный багажник нужен не только для того, чтобы транспортировать тяжёлые грузы. Он является незаменимым атрибутом для настоящих путешественников. Если вы любите отдых на природе, то без него обойтись не получится. Благодаря этой конструкции вместимость автомобиля увеличивается в несколько раз.
Мало того, при помощи экспедиционного багажника можно перевозить велосипеды, лыжи и даже каноэ. Поэтому если вы цените активный отдых и не можете жить без экстремальных видов спорта — этот атрибут вам необходим.
Вот только покупка экспедиционного багажника обходится недёшево. Намного выгоднее сделать его своими руками. К тому же это не так сложно. Достаточно следовать инструкции и использовать качественные материалы.
Какой материал использовать
В качество основного материала для конструкции в большинстве случаев используют алюминий или его сплавы.
Главное преимущество такого решения заключается в малом весе аксессуара и сравнительно высокой прочности.
Внимание!
Также к достоинствам алюминия можно причислить гибкость, высокое сопротивление разрывам, долгий срок эксплуатации.
Но алюминий не единственный материал, из которого делают экспедиционные багажники. Есть альтернативы, обладающие не меньшими достоинствами. К примеру, можно вспомнить профильные трубы. Для создания конструкции нужно выбирать только изделия с тонкими стенками.
При необходимости или ради экономии вы можете использовать простой металл. Но вы должны учесть, что такой экспедиционный багажник прибавит машине немало веса. К тому, же не стоит забывать о таком явлении, как коррозия.
Внимание!
Использование нержавеющей стали позволяет забыть о ржавчине. Но она также является довольно тяжёлой.
Делаем багажник — общая схема
Подготовка
При создании экспедиционного багажника вы должны точно понимать, для чего делаете эту конструкцию. Исходя из ваших потребностей, ещё на начальных этапах нужно рассчитать грузоподъёмность аксессуара и аэродинамические характеристики. От последних зависит, насколько машина будет быстро двигаться.
Создание любого даже самого малого проекта начинается с планировки. Вам нужно тщательно замерить крышу. После этого вы сможете определиться с местом для установки опор.
После того как основные замеры будут сделаны можно приступить к созданию чертёжных схем.
Также в подготовительной документации необходимо высчитать вес изделия и его грузоподъёмность.
Провести правильно расчёты вы сможете при наличии таких данных:
- вес рамы,
- замеры,
- масса всех элементов конструкции.
В конце подготовительной работы у вас будет чертёж со всеми данными, полученными вами в результаты проведённых замеров. От того насколько хорошо вы справитесь с этим — зависит срок эксплуатации экспедиционного багажника, а также нагрузки, которые он сможет выдержать.
Сварка и другие работы
После того как подготовка завершена можно приступать к самому ответственному этапу работ — сварке. Все элементы конструкции свариваются друг с другом, образуя прямоугольник.
Внимание!
По внутреннему периметру нужно закрепить прудки.
Чтобы предотвратить прогиб необходимо добавить в конструкцию несколько рёбер жесткости. Их можно изготовить из профильного железа. Результатом вашей работы станет рама-решётка. При этом перемычки будут идти параллельно друг другу.
Чтобы усилить экспедиционный багажник используйте профильную трубу. Её ячейки должны быть выполнены в форме квадратов. Это позволит создать прочное и надёжное изделие.
Для улучшения аэродинамики спереди не помешает поставить дугу. Напуск по краям нужно сделать по 5 см. В изгибах делается сектор в форме треугольника. После этого элемент изгибается. К нему привариваются перемычки после установки.
В конце вам нужно будет сделать крепления бортов. Для этого придётся использовать втулки. Важно чтобы профиль не промялся при затяжке. Иначе экспедиционный багажник сможет слететь.
Внимание!
Борта можно сделать из стойки.
Отдельное внимание необходимо уделить крепёжной шпильке. Для её создания понадобятся два отверстия с диаметром в 8 см. Именно в них будет продеваться шпилька. Потом нужно всё заварить. Лишняя резьба срезается в конце.
На конечном этапе создания экспедиционного багажника делаются верхняя и задняя перекладины. Они загибаются, потом приваривается втулка. Кусок шпильки крепится спереди.
Делаем экспедиционный багажник для УАЗа, Нивы 2121 и Нивы Шевроле
Багажник для Нивы Шевроле
Начать создание экспедиционного багажника для Нивы Шевроле нужно с подготовки. Вам необходимо позаботиться о наличии таких материалов и инструментов, как:
- сварочный аппарат,
- трубы,
- крепёжные элементы.
Внимание!
Для всех автомобилей комплектом материалов и инструментов практически идентичен.
После того как все эти элементы собраны можно приступать к созданию самой конструкции:
- Составьте чертёж. При этом важно учитывать расстояние между креплениями.
- Сделайте платформу и борта. В состав этой конструкции должны входить рама и днище.
- При помощи металлической сетки сделайте днище.
- Проведите грунтовку конструкции.
- Покрасьте всё чёрной краской для металла.
- Укрепите втулками элементы крепления.
- Приварите платформу.
Сварите раму из труб. Идеальным будет диаметр 20 на 20.
После этого установку экспедиционного багажника на Ниву Шевроле можно считать завершённой. Дополнить конструкцию можно фарами. Но делать это или нет зависит исключительно от вашего желания.
Если же всё-таки решитесь на этот шаг, то не забудьте использовать изолированные и водостойкие провода, и будьте крайне осторожны при включении в бортовую сеть. Особое внимание нужно уделить сверлению дырок в кузове и их изоляции.
Ещё одним полезным дополнением могут служить ремни, которые позволяют с большей надёжностью зафиксировать груз. К тому же подобный способ фиксации вещей на экспедиционном багажнике намного лучше, чем просты верёвки.
Экспедиционный багажник для Нивы 2121
Есть чётки алгоритм, который позволит вам своими рукам сделать экспедиционный багажник для Нивы 2121, в него входят такие этапы:
- Сделайте чертёж будущей конструкции. Внимательно рассчитайте замеры и подсчитаете необходимое для проекта количество материалов.
- Проведите сварку каркаса. Вначале свариваются два бруса основы. Потому нужно будет соединить их между собой рейлингами.
- Сварите промежуточные брусы и планки профиля друг с другом.
- Для придания конструкции аэродинамичности сделайте углы округлыми.
- Установите борта. Для того чтобы это сделать нужно просверлить отверстия по бокам каркаса багажника. Потом в них необходимо вставить втулки и обварить их. Это позволит упрочнить конструкцию. После этого делаются борта. При этом используется нарезанный профиль. Дополнительно привариваются шпильки и втулка, на которой будет держаться поперечина. Ещё одна часть шпильки приваривается на заднюю часть.
- В конце делается грунтовка и окраска.
После того как все эти этапы будут выполнены экспедиционный багажник
для Нивы 2121 прослужит вам множество лет, помогая перевозить тяжёлые грузы или туристическое снаряжение.
Общий алгоритм для создания экспедиционного багажника УАЗа похож на аналогичные процессы у Нивы 2121 и Нивы Шевроле. Поэтому за основу вы можете взять любой из них или же пользоваться общим алгоритмом. Но есть определённые нюансы, которые нужно учитывать:
- Используйте профилированные алюминиевые трубы 20*20, 25*25
- С шагом в 15 см у основания навариваются перемычки.
- При изготовлении нужно использовать такие элементы: две крайних поперечины, средняя опорная планка, четыре распорки, две перемычки, два лонжерона.
Для создания бортов можно использовать листовой металл. Они могут быть двух типов — разборные или литые. В конце сварочные швы затираются и делается примерка экспедиционного багажника.
Итоги
Как видите, сделать экспедиционный багажник не так-то уж и сложно. К тому же алгоритмы создания конструкций для разных автомобилей похожи. При необходимости вы можете использовать общую последовательность для любой машины. Главное, правильно сделать все расчёты.
А вот такая конструкция из профиля 10x10x1 и сеткой d=2. Размеры 1600x1100x15 мм.
Вес каркаса – 5,26 кг, вес сетки – 3,26 кг. Итого 8,51 кг + крепление.
Изготовление
Целью является сварка багажника, который бы крепился к обычным дугам багажника “муравей”, был съемным, ну и самое главное – вес и прочность. Путем хитрых (хотел написать “нехитрых” – но это неправда) расчетов на прочность была разработана определенная конструкция, которая теоретически (пока не проверял) должна держать около 200 кг сосредоточенной нагрузки (человека весом 200 кг, стоящего в любой точке багажника), ну и значительно больше, если раскидать весь вес по всей площади. Опыт одноклубников (niva4x4.ru) показывает, что стойки крыши у машинки крепкие, народ возил по 300-400 кг стройматериалов без каких-либо последствий, т. е. за кузов я спокоен…
Размер базы по внешнему контуру 110 см х 140 см, использована проф-труба 20 мм х 20 мм с толщиной стенки 2 мм.
Единственным моментом, на который стоит обратить внимание – это углы. Труба полая и варить надо так, чтобы не оставались открытыми торцы, иначе замечательный свисток получится.
Самым простым и быстрым способом избежать открытых торцов является разделка труб под 45 градусов и последующая сварка в стык. Я пошел другим путем, т. к. не люблю резать под углом (вечно ошибаюсь на градус, а то и два), поэтому стыковал углы, как показано на картинке ниже:
Варил электродами диаметром 2.5 мм для углеродистых сталей током 70 А (аппарат инверторный).
Первым этапом, естественно, была сварена площадка-основание:
Этап №2 – приварил бортики – высота багажника 15 см обусловлена высотой ворот в моем гараже…
Этап №3 – внутренний каркас. В таком положении, как на фотографии, багажник прошел первую проверку – я встал на середину (весу во мне 80 кГ) и от души попрыгал – все держится, ничего не погнулось. Правда не дождался пока остынут швы, в результате слегка оплавил подошву тапок…
Этап №4 – приварка площадки под люстру и примерка. Итого, общие габариты багажника вышли 110 см х 160 см х 15 см. Размер площадки под люстру 20 см на 110 см. Планируется установка четырех фар: по бокам рабочего света, ближе к середине дальний свет. Боковые фары будут иметь возможность поворачиваться на 90 градусов для освещения суровой ночной действительности слева и справа от машины.
Этап №5 – приварка арматурной сетки и покраска (использовал “грунт-эмаль” по ржавчине, на хаммерайт жаба задушила деньги тратить). По рекомендации производителя клал два слоя (на третий терпения не хватило).
Еще есть хитрый момент по приварке сетки – поначалу пытался плавить сам пруток сетки. Плохая идея – пережигает мгновенно. Потом приноровился – плавил проф-трубу, рядом с прутком и потихоньку нагонял валик металла на пруток сетки – так значительно лучше получалось.
Крепление и материалы
Крепеж к дугам четырьмя болтами М8, когда раздобуду еще одну дугу “муравья” (будет посередине багажника) – добавятся еще два болта. А когда преодолею свою лень – всажу еще по два болта в середину каждой дуги… Но это потом, как-нибудь…
Теперь по материалам: проф-труба 20х20х2 22.5 м по цене 45 р/м, электроды 2.5 мм для углеродистых сталей пачка 100 р, 3 диска для болгарки, два толщиной 2 мм (для резки), и один толстый 4 мм (для обработки швов), сетка арматурная с ячейкой 40х40, полосы по 2м х 50см 3 шт по 115 р (толщина прутка где-то 3 мм), кусок листа толщиной 2 мм 20 см х 110 см – бесплатно нашелся, грунт-эмаль для металла 1 л 195 р, кисти 2 шт по 30 р, четыре болта М8 с шайбами и гайками – около 50 р. Итого по деньгам вышло около 1800 р. А вот вес вышел за планируемый в угоду прочности – около 20-25 кГ… Что же касается времени – то получилось 5 дней по 2 часа. Если бы закупил все материалы разом и мог позволить себе работать в гараже целый день, то спокойно уложился бы в один рабочий день. А так пришлось постоянно бегать туда-сюда, собирать, разбирать инструмент, ну и т. д. С другой стороны, я теперь понимаю, за что берут такие деньги продавцы заводских или таких же вот, самодельных багажников. Мороки с работой многовато конечно…
Теперь о том, что к багажнику можно прикрепить – понятно, что самое место там хай-джеку, лопате, канистре и запаске. Со временем, опять же, крепеж для всего этого будет инсталлирован в готовую конструкцию. А пока вкорячил только веткоотбойники, ибо замучился получать по лобовому стеклу ветками – раздражает.
Для веткоотбойников использован трос 4 мм, рым-гайки М10 и к ним болты, толрепы и зажимы для троса, сумма за все около 700 р. Общий вид можно посмотреть на картинке:
Крепеж к капоту (решение не очевидное, но кенгурина у меня пока нет). Болт проходит насквозь через капот (в этом месте у капота изнутри усиление), длина болта порядка 40 мм. Куплены были 50 мм и порезаны после примерки на нужную длину, чтобы концы не торчали внутрь рым-гайки. Сверху на капот приклепаны площадки из 2 мм стали, для усиления (картинкой выше).
Вот и все!
Источник: http://www.niva-faq.msk.ru/ekspluat/vne_asf/podgmash/exp.htm
Многим владельцам автомобиля Нива 2121 приходилось сталкиваться с недостающим местом в багажнике. Единственной альтернативой в решении этой проблемы является установка экспедиционного багажника на крышу. Экспедиционный багажник – корзина с рамной конструкцией и несколькими опорами, которые необходимы для крепления багажника на крышу. Такой багажник способен вмещать крупногабаритные вещи, которые внутри машины не удобны для транспортировки.
Также, такая схема перевозки позволяет перемещать и мелкогабаритные грузы. Экспедиционный багажник на Ниву 2121 – универсальный метод хранения вещей в автомобиле, при этом такой багажник достаточно легкий и прочный, способный выдержать тяжелые нагрузки. Однако, цена на фирменные экспедиционные багажники в магазинах очень высокая и большинство владельцев автомобилей Нива стараются изготовить такое приспособление своими руками. Выполнить такой процесс не доставляет особого труда, необходимо лишь подготовить все необходимые материалы.
Какие материалы необходимы для изготовления?
Обычно, изготовление экспедиционного багажника осуществляется из алюминия и его сплавов. Так как такие материалы обладают рядом преимуществ перед другими металлами. Прежде всего, они обладают малым весом, при этом имея высокие показатели прочности.
Именно эти факторы являются основополагающими в изготовлении боксов. В большинстве случаев, в основе такого багажника лежит сварная конструкция из труб. Из таких труб могут выполняться и борта багажника. Дно формируется из труб меньшего диаметра. Иногда, в основу дна экспедиционного багажник на автомобиль ВАЗ 2121 ложится металлическая сетка.
Порядок выполнения самодельного багажника на крышу
Для тех автовладельцев, которые задаются вопросом, как сделать самому багажник на крышу, следует знать, что такая процедура сама по себе не сложная и включает следующие этапы работ:
Дополнительные устройства на багажник
В зависимости от пожеланий владельца автомобиля, на багажник можно установить приборы, которые выполняют не менее важные функции. Это может быть тент или палатка. Тент хорошо защищает от солнца и непогоды. Палатки, в свою очередь, образуют большое пространство для отдыха и сна, при этом не соприкасаясь с землей, что создает дополнительную защиту.
Дополнительное световое оборудование также будет уместно установить на экспедиционном багажнике. Так называемая «люстра» предоставляет мощный свет, который будет освещать дорогу спереди и сзади. При этом, необходимо лишь правильно установить фары.
Таким образом, при качественной и правильной установке, экспедиционный багажник может существенно облегчить поездку, делая ее более комфортной и безопасной. Однако необходимо помнить, что при самостоятельном производстве такого багажника, следует четко соблюдать все параметры, в противном случае, багажник может плохо закрепиться или вообще не поддаваться установке.
На чтение 8 мин. Просмотров 140 Обновлено 04.08.2019
Доброго всем здоровья!
Продолжаю серию статей об экспедиционнике для 3-х дверной Нивы.
Часть 1:
www.drive2.ru/l/9474825/
Обоснование размеров:
1. Общие размеры — по размеру крыши. Сбоков оставил место для домкрата и лопаты.
2. Расстояния между осями передних несущих стоек равно расстоянию между крепежными отверстиями номерного знака. Тоже самое и с задком. Теперь номера можно перекинуть наверх, по крайней мере на бездорожье.
Недостатки, обнаруженные при изготовлении:
Болты крепления реечного домкрата к багажнику надо рассчитывать на размер секретки от колёс. Это резьба М12. Тогда не придётся где-то мутить секретки М8. Но я вышел из положения: На Авито в Москве заказал 4 секретки М8 с ключом. Цена: 790 р. + 180 р пересылка почтой =970 р.
Теперь контрольное взвешивание:
Экспедиционник (корзина без креплений со светильниками и проводкой) -23100 г.
Крепления (комплект 4 штуки) — 2900 г.
СэндТраки — 8300 и 8500 г.
Лопата1.68 кг
ХайДжек 13700 г.
ЛифтМэйт 1200 г.
Теперь калькуляция расходов:
Металл 1000 р.
Труба 20*20*1,5 — 12 метров (Обручи и вспомогательные перекладины)
Труба 40*20*1,5 — 6 метров (несущие перекладины, стойки)
Труба 50*50*2 — 1,5 метра (крепления)
Труба 60*40*2 — 1 метр (крепления)
Сталь листовая 3 мм — халява.
Электроды 2 пачки по 125 р.
Зачистной диск 125мм 80 р.
Диск отрезной 125*1мм 3 шт по 80 р.
Лепестковый диск 125 мм 85 р 4 штуки
Краска 3в1 по ржавчине 320 р.
Растворитель Р4 -120 р.
Кисти 2 шт по 50 р.
Метизы 800 р.
Фары с лампами — 4500 р
Электроразъём герметичный — 85 р.
Реле 30 А четырёхконтактное — 2 шт — 100р
Колодка для реле — 70 р.
Предохранители 25А на провода 2 шт. — 100 р.
Чертежи:
Сначала изготавливаем нижний обруч корзины багажника (основание)
Путешествуя на своем автомобиле, многие наверняка сталкиваются с проблемой небольшой вместимости багажника и салона своего авто. Решить возникшую проблему мы можем путем установки багажного отделения на крышу авто, либо прицепить прицеп. На данном этапе развития авто техники возможны разные модификации как прицепов так и багажников на крышу, которые реализуются на автомобильных рынках и магазинах. В данной статье хочу поведать, как можно самому сделать багажник на крышу своими руками, который позволит обеспечить более высокую грузоподъёмность и равномерно разделить нагрузку на крышу моего авто.
Багажное отделение, на крышу автомобиля сделанное своими руками будет всегда весьма кстати для транспортировки вещей на дальние дистанции и при этом свободного места в салоне для другого багажа будет больше. Стоит брать во внимание, что готовый бокс будет стоить дороже, чем изготовленный собственноручно.
В наше время багажные отделения производятся из алюминия и его сплавов. Преимуществом изготовления из алюминия является, что данный металл имеет небольшой вес и большую прочность, которые являются основополагающими факторами при изготовлении боксов.
Например, рассмотрим вариант изготовления своими руками багажника на популярную на пост советском пространстве Ниву, либо не менее популярный УАЗ. Для этого можно использовать тонкостенную профильную трубу из алюминия. Впрочем, Вы можете сами выбрать материал, из которого будет изготовлен багажный бокс, что является преимуществом перед готовым изделием.
Чертеж экспедиционного багажника на ниву
Процесс самостоятельного изготовления багажного бокса
На начальном этапе мы выбираем материал изготовления, в нашем случае это будет металлический профиль.
1. Замеряем длину и ширину крыши нашего авто. Для этого можно начертить чертеж, на котором будет показано что мы будем выполнять, и можно определить вес нашей конструкции.
2. Свариваем каркас багажного бокса, который на данном этапе похож на прямоугольник, и ввариваем два основных бруса которые позже будут соединяться с нашими рейлингами.
3. Так как расстояние между поперечными профилями слишком велико ввариваем промежуточные бруса.
4. Для большей надежности бокса свариваем планки между собой из металлического профиля.
5. В цели улучшения эстетики и аэродинамических свойств выполняем переднюю и задние дуги с более округлыми углами.
Примеряем полученную дугу, вырезаем в размер и привариваем к нашей конструкции. Усиливаем данную конструкцию.
6. Следующим этапом станут борта багажника. Тут нам понадобится просверлить отверстия по бокам нашей конструкции, в которые вставляем и обвариваем специальные втулочки, чтобы металл не загибался когда будем закручивать болты.
Далее изготовляем сами борта. Нарезаем профиль длинной примерно 6,5см для наших бортов.
Привариваем шпильки к бортам, замеряем нужную длину и привинчиваем в отверстия на каркасе.
Теперь привариваем втулку для крепления поперечины, а на боковину привариваем кусок шпильки и также делаем на заднюю часть.
Осталось не много, наш багажник уже почти готов.
7. Дальше для большей эстетичности грунтуем и красим краской, также можно после покраски установить декоративные гайки.
По желанию устанавливаем на багажник приборы которые выполняют не менее важные функции. Можно установить на багажный бокс, сделанный своими руками, противотуманные огни, которые осветят ваш путь, антенну, места крепления для садово-огородного инвентаря и т.д.
Ниже вы можете просмотреть видео о самодельном экспедиционном багажнике на Ниву.

Алгоритм процесса изготовления съемной конструкции.
1. Подготовительные работы
В зависимости от модели машины, замеряют размер крыши и определяют места будущих опор. После определения параметров, нужно определиться с будущей конструкцией. Сразу следует продумать места крепления к крыше автомобиля, просчитать вес рамы и компонентов. В конце подготовки — сопоставляют чертеж платформы с данными, приведенными в технических условиях на транспортное средство.
В качестве примера приведен расчет экспедиционного багажника, сделанного своими руками, для Нивы. Габаритный размер площадки: 1500 х 1230 мм.
2. Изготовление несущего каркаса

Для предотвращения прогиба платформы при нагрузке, в свободную внутреннюю плоскость — на равных расстояниях — добавляют еще 2—3 ребра жесткости, изготовленных из профильного металла. На данном этапе работ получается рама-решётка с рядом параллельных перемычек.
Продолжают усиление конструкции рамы при помощи небольших отрезков профильной трубы. Их нарезают заранее таким образом, чтобы внутри образовались ячейки, близкие к квадратной форме.
3. Улучшение аэродинамических качеств конструкции
С целью создания условий для лучшего скольжения потоков воздуха, к передней части экспедиционного багажника, сделанного своими руками, приваривают дополнительную конструкцию в виде трапеции.
Размер основания геометрической фигуры равен ширине изготавливаемой платформы. Меньшая часть трапеции выбирается произвольным образом. Рекомендуемые углы наклона граней: 30-45 градусов.
У каждой из двух мест сгиба при помощи болгарки (или иного разделительного инструмента) выбираются сектора. Делать это нужно таким образом, чтобы до конца профиля оставалась перемычка в 5—7 мм. Дальше конструкцию нагревают и сгибают таким образом, чтобы получилась трапеция. Места соприкосновения материала в углах обрабатывают электрогазосваркой и накрепко соединяют с платформой. Для усиления каркаса, со стороны трапеции устанавливают 2—3 коротких перемычки.
4. Изготовление бортов и крепление к основной раме
В местах, намеченных для опор, просверливают отверстия. С целью предотвращения случаев ослабления конструкции, их укрепляют с помощью втулок. Они вдеваются в просверленные пазы и накрепко привариваются в местах стыковки с металлическим основанием.
Для крепления шпильки в профиле просверливают по 2 паза диаметром 8 мм. В каждый вставляют шпильку и по диаметру обрабатывают электросваркой. Вкладыш отрезают на необходимую длину и закрепляют посредством резьбы.
Две боковые перекладины, имеющие форму трапеции, изготавливают по такому же принципу как описан в пункте №3. Более широкой частью конструкции является сторона, которая крепится к платформе. Необходимо следить за тем, что угол наклона трапеции у правой и левой боковин был одинаковым.
Изготовление передней и задней перекладин опор. Для того чтобы сделать перемычки с обоих концов перекладины, к конструкции приваривают отрезки шпилек. В месте схода опор боковины — у тупого угла трапеции — крепят втулку. Концы шпилек продевают во втулки и дополнительно обрабатывают сваркой.
При желании дополнить конструкцию элементами крепежа для hijack, противотуманных фонарей, лопаты, антенны и иных, столь необходимых в дороге грузов, покупают готовые элементы (или изготавливают согласно собственным проектам), а затем производят монтаж на сделанную раму.
5. Придание презентабельного внешнего вида экспедиционного багажника, изготовленного своими руками
Платформу очищают от окалины, убирают заусенцы, обезжиривают, грунтуют. Выдерживают не менее суток, чтобы состав просох, а затем поверхность покрывают слоем краски или эмали.
На этом изготовление своими руками съемного экспедиционного багажника заканчивается. Конструкцию остается закрепить на крыше автомобиля посредством рейлингов.
Не бойтесь пробовать: изготовить экспедиционный багажник своими руками по силам каждому!
Всем привет! Мои последние поездки с семьей и друзьями на отдых, на природу наглядно показали, что даже внедорожники способны испытывать дефицит в багажном пространстве. А когда у тебя в распоряжении Нива, то тем более внутрь автомобиля разместишь далеко не все, что тебе захочется.
Потому решил с вами обсудить экспедиционный багажник на Ниву. Хотя есть и другие багажники на крышу.
Вы можете устанавливать такую конструкцию как на обычную отечественную Ниву с индексом 2121 или 2131 (2 и 4 боковые двери соответственно), так и продукцию бренда Chevrolet. Хотя и под любую другую машину, которая конструктивно позволяет монтировать на крышу багажники, подобный вариант расширения возможностей по грузоперевозкам подойдет.
Ключевые особенности и преимущества
Предположим, что вы решили на Шеви Ниву поставить вместительный экспедиционный багажник. Это большая площадка с бортами, в которую грузятся всевозможные вещи. От обычного багажника он отличается усиленной конструкцией, которая позволяет рассчитывать на внушительные нагрузки.
Экспедиционный багажник (ЭБ) можно описать как корзину с рамной конструкцией и дополнительно несколькими опорами. Они позволяют установить крепления на крышу, то есть на рейлинги вашего внедорожника. Монтаж подобной конструкции обеспечит вас возможностью перевозить групногабаритный груз, который в вашу отечественную Ниву или Шевроле Ниву не помещается, либо свободное место требуется для пассажиров.
К преимуществам и ключевым особенностям ЭБ я бы отнес:
- универсальность и многофункциональность;
- прочность конструкции при одновременной легкости;
- способ избавиться от лишнего груза внутри машины;
- привлекательный внешний вид.
Да, самым простым решением станет покупка готового заводского экспедиционного багажника. Ознакомьтесь с возможными вариантами багажников на рейлинги. Но подобные готовые конструкции не самые дешевые, потому купить их захочет или сможет не каждый из вас.
Порой автовладельцы, чтобы не тратить лишние деньги, самостоятельно решают сделать себе ЭБ на Ниву. Хороший вариант, поскольку самодельный багажник не сильно отличается от заводского. Только для этого используйте качественные материалы и ответственно подходите к сборке конструкции. Я вам в этом постараюсь помочь.
Подготовка к работе
Если вас привлек вариант монтажа на крышу Нивы экспедиционного багажника, то вы наверняка часто перевозите какие-то грузы, являетесь поклонником активного отдыха, рыбалки или охоты.
Нива сама по себе машина, предназначенная для подобных целей. Часто используется как рабочая лошадка. Установив багажник экспедиционного типа, количество лошадиных сил не увеличится, а вот функциональность и практичность машины явно изменится в лучшую сторону.
Чтобы начать сборку, вам потребуется пройти через этап подготовки.
- Время и место. Для изготовления ЭБ вам понадобится место, где этим заниматься, и свободное время. Обидно, когда желание не совпадает с возможностями, и человеку банально не хватает времени, чтобы заниматься своей машиной самостоятельно. Потому взвесьте реально свои возможности.
- Чертеж. Не зная размеры автомобиля и параметры самой конструкции на багажник, начинать работу не имеет смысла. Есть множество примеров схем на фото, по которым реально сделать ЭБ конкретно под Ниву. Только убедитесь, о какой именно Ниве идет речь, чтобы не начать под отечественную Ниву собирать багажник, схема которого ориентирована на Шевроле.
- Материалы. Официальные производители и просто народные умельцы обычно используют алюминий и алюминиевые сплавы. Поддерживаю такой вариант, поскольку эти металлы прочные, надежные, долговечные и одновременно легкие. При отличных параметрах прочности на крыше вашей машину не будет восседать тяжеловесная металлическая конструкция. Плюс алюминий не ржавеет, что является важным аргументом в его пользу.
В основном экспедиционные багажники делают путем сваривания труб. Их них же выполняют борта нужной высоты. На днище укладывают трубы с меньшим диаметром, а иногда армируют, то есть усиливают металлической сеткой. Тут уже ориентируйтесь на нагрузки, которые будут воздействовать на ваш самодельный ЭБ.
Цена на расходные материалы куда меньше, чем на готовые изделия. Наличие стандартного набора инструментов и сварочного аппарата вам помогут.
Изготовление конструкции
Создать своими руками нечто такое не так тяжело, как многие думают. Владея навыками сварки и умея обращаться с рулеткой, вы быстро справитесь с поставленной задачей. Видео инструкции вам помогут.
- Начните с чертежа. Если готовые варианты вам не подходят или не нравятся, сделайте свою схему. Только наносите на нее все параметры с точностью до миллиметра. Иначе отверстия под крепление или другие компоненты просто не совпадут между собой при итоговой сборе и монтаже на крышу Нивы;
- Сварите четыре отрезка выбранной алюминиевой трубы. Она может иметь круглое или квадратное сечение, как вам удобнее. Так вы получите каркас, который далее соединится с рейлингами на крыше авто;
- Между поперечными трубами расстояние большое, потому обязательно приварите к прямоугольному каркасу еще и дополнительные промежуточные профили. Это даст конструкции требуемый уровень надежности. Планки профиля соединяются между собой методом сварки. Можно заменить на болтовые соединения, но это сложнее и дольше;
- Переднюю и заднюю дугу изготавливают из округлого профиля. Это придает привлекательный внешний вид и создает дополнительный аэродинамический эффект;
- Теперь монтируйте борта экспедиционного багажника. Лучше по бокам каркаса выполнить отверстия сверлом и дрелью, в них вставить втулки и обварить. Так металл банально не будет загибаться, когда вы начнете закручивать крепежные болты;
- Далее делаем сами борта из профиля требуемой длины согласно чертежам. К болтам привариваются шпильки, и вкручиваются в отверстия на каркасе, которые вы уже предварительно просверлили;
- После проделанного можно прикрутить втулки, которые будут служить для фиксации поперечины;
- По бокам и сзади приваривается часть шпильки;
- Завершает нашу работу придание конструкции привлекательного внешнего вида. Для этого поверхность очищается, дополнительно обрабатывается наждачкой, удаляя все заусенцы. Обязательно нанесите соответствующую грунтовку и пару слоев краски, чтобы закрепить результат.
Сборка готова. Теперь остается только зафиксировать все надежно на рейлингах Нивы. Хотя некоторым обычной конструкции экспедиционного багажника кажется мало.
Ничего не имею против того, чтобы разнообразить его. Для этого используйте любые понравившиеся вам идеи. Кто-то ставит специальные фары на ЭБ в виде прожектора. Они помогут тем, кто любит ночную рыбалку, часто выбирается на охоту или увлекается ездой по бездорожью. Мощная оптика позволит рассмотреть ситуацию вокруг вас под покровом ночи.
Есть и те, кто ставит наверх целый тент или палатку, создавая место для ночлега в диких условиях. Прекрасный вариант для незабываемого отдыха. Говорю из личного опыта, поскольку спать на крыше машины — это нечто новое и удивительное. Подобного я еще никогда не испытывал. Плюс не нужно брать с собой лишние вещи.
Чтобы добиться результата, четко следуйте схеме, надежно сваривайте и затягивайте элементы конструкции между собой. А если банально нет времени или желания, купите готовый экспедиционный багажник.
Спасибо всем за внимание! Подписывайтесь на наш сайт, задавайте вопросы, оставляйте комментарии и приглашайте друзей!


Экспедиционный багажник на Ниву решает вопрос с транспортировкой крупногабаритного груза, который невозможно разместить внутри машины и багажном отделении. Накладные конструкции всевозможной формы можно приобрести и в магазинах, но стоимость подобного товара не всегда устраивает. Как смастерить самодельный экспедиционный багажник своими руками? Рассмотрим в статье.
Съемная конструкция из труб
В основе данного багажника лежит сварная композиция из труб, из которых изготовлены и бортики. Днище формируется из труб меньшего диаметра, на которые можно уложить строительную сетку.
Из чего лучше сделать съемную конструкцию? В основном, используют для этих целей алюминий. Этот металл отличается достаточной прочностью и малым весом. Также для работы подойдут тонкостенные профильные трубы, которые тоже мало весят.
Можно сделать экспедиционный багажник на Ниву и из нержавейки, хотя этот вариант не самый подходящий из-за весовых характеристик.
Для работы по сборке конструкции из труб необходимо подготовить следующее:
- труба 3/4 — 24 метра;
- 1, 45 м — 4 шт;
- 1,3 м — 4 шт;
- отводы — 8 шт;
- профиль 2х2 — 5 метров;
- рейлинги — 4 шт;
- преобразователь ржавчины;
- грунтовка — 4 банки;
- черная краска матовая — 4 банки.
Чтобы сделать самому экспедиционный багажник, для работы потребуется сварочный аппарат, шлифмашинка, струбцины и шлифовальные круги. Когда материал выбран, формируем план работы:
- измерение габаритов;
- составление чертежа;
- изготовление платформы;
- установка креплений;
- эстетические штрихи.
Подготовка рамы
Сначала необходимо замерить крышу авто и определить места крепления конструкции. Далее делаем чертежи экспедиционного багажника на Ниву своими руками. При расчете параметров необходимо учесть и выносливость конструкции: какой вес она сможет выдерживать.
- Далее следует отмерить по чертежу заготовки труб для рамы, отрезать и сварить их: у вас должны получиться два четырехугольных каркаса. При сварке «ловим» диагональ.
- Привариваем на нижнюю рамку поперечные трубы, чтобы усилить конструкцию. Важно сфорировать закругленные края на передней и задней дугах для улучшения внешнего вида и повышения аэродинамических свойств.
- Усиливаем уголки каркаса с помощью приваривания маленьких поперечных брусов.
- Подготавливаем 14 вертикальных брусков размером 110 мм для сваривания нижней и верхней рамы. Как сварить экспедиционный багажник на Ниву? Соединяем нижнюю и верхнюю рамы вместе с помощью вертикальных брусов.
- Далее подготавливаем куски профиля 2х2 и строительную сетку для укрепления конструкции. Сетку нужно брать размером 2х0,5 метра.
- Когда конструкция будет собрана, необходимо обработать металл преобразователем ржавчины.
- Далее зачищаем экспедиционный багажник на Ниву б у шлифмашинкой, накладываем грунтовку и красим.
- После покраски устанавливаем на рейлинги и крепим болтами (примерно 8 мм длиной 70 мм).
- Устанавливаем на багажник рабочее освещение, запаску, джек, лопату и иной апгрейд. Экспедиционный багажник на Ниву 2131 своими руками готов.
Крепление и дополнительное оборудование
Как можно закрепить багажник на крышу? Для этого существует два варианта:
- крепление на рейлинги;
- крепление экспедиционного багажника на Ниву на водостоки.
Преимущество водостоков перед рейлингами очевидно: с помощью такого крепления можно перевозить грузы большого веса. К водостокам багажник крепится специальными захватами.
Если водостоки в конструкции авто не предусмотрены, багажник крепится к продольным направляющим (рейлингам). Если вам необходимо перевозить тяжелые грузы, направляющие рейлингов лучше демонтировать.
Установка экспедиционного багажника — это своего рода тюнинг автомобиля, подробнее о тюнинге седанов и хэтчбеков можно узнать тут , об аксессуарах для тюнинга читайте здесь .
Как сделать экспедиционный багажник, мы выяснили. Теперь можно подумать об обустройстве крыши Нивы. На раме можно установить:
- противотуманные фары для поездки в осеннюю погоду;
- антенну радиостанции на специальной платформе;
- на бортах можно крепить лопату (чертеж экспедиционного багажника на Ниву 2121 должен это место определить);
- веткоотбойники для защиты лобового стекла от повреждения при путешествиях по лесным дорогам.
Изменение технических характеристик авто
Ставить ли экспедиционный багажник на Ниву, и как он влияет на рабочие характеристики автомобиля? Перед тем как осуществить замысел установки багажного отсека на Ниву, учтите, что:
- значительное смещение центра тяжести (а он будет уже вверху) может спровоцировать опрокидывание Нивы на поворотах и увеличит крены;
- размеры экспедиционного багажника на Ниву своими руками и увеличение общей массы авто изменят рабочие параметры подвески, трансмиссии и негативно повлияет на ходовые характеристики машины;
- увеличенная масса авто усилит лобовое сопротивление;
- увеличение массы увеличит и расход топливного ресурса;
- чертеж экспедиционного багажника на Ниву 2131 предполагает изменение высоты, что затруднит парковку в гараже или подземном паркинге.
О целесообразности установки съемных конструкций можно рассуждать бесконечно. Чтобы не увеличить риск опрокидывания авто на поворотах, не нагружайте багажник на крыше тяжелым грузом. Также не стоит лихачить на Ниве с тяжелым грузом, тогда не придется переживать о снижении ходовых свойств внедорожника.
В завершение — тест экспедиционного багажника на видео.
Представьте, что вы собрались в поход или на рыбалку на несколько дней. Берете много вещей с собой, но все они не вмещаются в основной багажник Нивы. Что делать в таком случае? В этом вам поможет Экспедиционный багажник на Ниву.

Но не спешите сразу бежать в магазин и тратить уйму денег на покупку. Если у вас достаточно времени, вы можете и сами сконструировать экспедиционный багажник на Ниву своими руками.

Краткое содержимое обзора:
Преимущества и недостатки
Экспедиционный багажник имеет много преимуществ и несколько недостатков.

Преимущества:
- При правильном сооружении обладает большой вместительностью.
- Высокая прочность (в зависимости от материала).
- Освобождает место в салоне авто.
- Служит неплохим украшением вашей машины

Недостатки:
- Ухудшение аэродинамических качеств транспорта.
- Невозможность уберечь вещи от погодных осадков.

Подготовка
Прежде чем приступить к работе, убедитесь, что вы имеете достаточно свободного времени для того, чтобы построить Экспедиционный багажник.

Также, освободите много свободного места, так как постройка установки требует немало пространства.

Для того, чтобы построить багажник вам понадобится:
- Сварочный аппарат.
- Болгарка.
- Металлические трубы с сечением.
- Крепежи.

Еще одним важным фактором является подбор материалов. Существует несколько материалов, из которых можно построить Экспедиционный багажник.

Вот несколько из них:
Алюминий. Он обладает небольшим весом. За счет этого уменьшается расход топлива, и снижается нагрузка на основные детали авто. При этом алюминиевая конструкция не сможет выдержать достаточно большого веса.
Сталь. Это высокопрочный металл, который обладает большим весом, нежели алюминий. Экспедиционный багажник из этого материала сможет защитить транспорт от сильных повреждений.

Чтобы придать модели легкости, можно использовать трубки из металлопрофиля для постройки Экспедиционного багажника.

Ход работы
Во-первых, без знания определенных замеров машины, построить данную установку не получится. Необходимо сделать замеры крыши авто и перенести их на чертежи.

Следующим этапом идет сам процесс сборки установки:
Сначала необходимо сварить каркас будущего багажника из труб. Форма может быть любая (как круглая, так и квадратная) это по желанию. Для большей прочности используются тонкие пластинки, которые надо установить внутри каркаса.

Для придачи аэродинамических свойств, приваривается трапециевидная конструкция, угол наклона которой 35-40 градусов.
Болгаркой вырезаются семимиллиметровые вырезы треугольной формы. После этого трапециевидная конструкция устанавливается на каркас.

Затем на раму приделываются борта, высота которых не менее семи сантиметров по чертежу. Болты со вкрученными шпильками вкручиваются в отверстия, высверленные ранее.

Для закрепления поперечины, вкручиваются втулки, а сбоку и сзади приделываются часть шпильки.

Установка
Прежде чем установить багажник, конструкция очищается и покрывается специальным покрытием. Для установки Экспедиционного багажника, вам необходимо проделать следующие действия:
- Для начала надо высверлить отверстия на крыше, вставить туда ключ и провернуть на 90 градусов по часовой стрелке до защелка. Высверленные отверстия – место установки крепежей.
- Затем вынимается крышка опоры.
- Подкручивается кулачок до окончания установки опоры.
- Далее следует установка опоры. Подушки должны оказаться как можно ближе к центру машины.
- Для максимального закрепления надо использовать Г-образный ключ.
- Вставляем резиновую прокладку в выемку дуги, затем закрываем сверху дугу пластиковой заглушкой.
Инструменты и материалы для экспедиционного багажника
Для выполнения работ на всех моделях Нивы набор инструментов одинаковый:
- струбцина – зажим для фиксации деталей;
- сварочный аппарат;
- электроды: 2 мм — 1 кг, 3мм — 2,5 кг;
- электродрель;
- шлифмашинка (УШМ);
- гаечный ключ – используется, чтобы прикрепить багажную систему к крыше;
- шлифовальные и отрезные круги.
Для проведения работ заранее подготавливают материалы – металлопрокат соответствующих размеров. Потребуется профиль стальной 2×2 – 5 метров, сетка арматурная сечением 5 мм. Понадобятся две рамки – верхняя и нижняя, каждая размером 1700×1300 миллиметров. Другой вариант – купить по 4 прутка для самостоятельного изготовления каждой рамы.
Если на крыше нет рейлингов, нужно купить три штуки. Также необходимы стальные трубы с круглым сечением:
- ¾ — 24 метра;
- 4 штуки по 1,3 м;
- 4 шт по 1,45 м.
Можно использовать и квадратные трубы диаметром 20 мм вместо круглых. Здесь выбор зависит от предпочтений владельца авто. Если нет возможности приобрести заготовки диаметра 20 мм пригодны и 25-миллиметровые.
Формы и диаметры труб, в целом, зависят от предпочтений владельца. Главное, чтобы они не были очень тонкими
Для обработки металла и придания ему презентабельного вида необходимо купить преобразователь ржавчины. Также потребуется грунтовка и матовая краска черного оттенка. Если планируется соорудить крепеж для запасного колеса, дополнительно покупают гайку и шпильку. Для закрепления лопаты или домкрата приобретают металлические крюки.
Ключевые особенности и преимущества
Предположим, что вы решили на Шеви Ниву поставить вместительный экспедиционный багажник. Это большая площадка с бортами, в которую грузятся всевозможные вещи. От обычного багажника он отличается усиленной конструкцией, которая позволяет рассчитывать на внушительные нагрузки.
Экспедиционный багажник (ЭБ) можно описать как корзину с рамной конструкцией и дополнительно несколькими опорами. Они позволяют установить крепления на крышу, то есть на рейлинги вашего внедорожника. Монтаж подобной конструкции обеспечит вас возможностью перевозить групногабаритный груз, который в вашу отечественную Ниву или Шевроле Ниву не помещается, либо свободное место требуется для пассажиров.
Подготовка к работе
Если вас привлек вариант монтажа на крышу Нивы экспедиционного багажника, то вы наверняка часто перевозите какие-то грузы, являетесь поклонником активного отдыха, рыбалки или охоты.
Нива сама по себе машина, предназначенная для подобных целей. Часто используется как рабочая лошадка. Установив багажник экспедиционного типа, количество лошадиных сил не увеличится, а вот функциональность и практичность машины явно изменится в лучшую сторону.
Чтобы начать сборку, вам потребуется пройти через этап подготовки.
- Время и место. Для изготовления ЭБ вам понадобится место, где этим заниматься, и свободное время. Обидно, когда желание не совпадает с возможностями, и человеку банально не хватает времени, чтобы заниматься своей машиной самостоятельно. Потому взвесьте реально свои возможности.
- Чертеж. Не зная размеры автомобиля и параметры самой конструкции на багажник, начинать работу не имеет смысла. Есть множество примеров схем на фото, по которым реально сделать ЭБ конкретно под Ниву. Только убедитесь, о какой именно Ниве идет речь, чтобы не начать под отечественную Ниву собирать багажник, схема которого ориентирована на Шевроле.
- Материалы. Официальные производители и просто народные умельцы обычно используют алюминий и алюминиевые сплавы. Поддерживаю такой вариант, поскольку эти металлы прочные, надежные, долговечные и одновременно легкие. При отличных параметрах прочности на крыше вашей машину не будет восседать тяжеловесная металлическая конструкция. Плюс алюминий не ржавеет, что является важным аргументом в его пользу.
В основном экспедиционные багажники делают путем сваривания труб. Их них же выполняют борта нужной высоты. На днище укладывают трубы с меньшим диаметром, а иногда армируют, то есть усиливают металлической сеткой. Тут уже ориентируйтесь на нагрузки, которые будут воздействовать на ваш самодельный ЭБ.
Цена на расходные материалы куда меньше, чем на готовые изделия. Наличие стандартного набора инструментов и сварочного аппарата вам помогут.
Как сделать экспедиционный багажник на Ниву — пошаговая инструкция
Экспедиционный багажник представляет собой открытую площадку с бортами. Сюда кладут предметы, которые не боятся атмосферных осадков. Но при желании вещи можно закрыть тентом от дождя. Сооружение имеет рамную конструкцию, чаще всего устанавливается на крышу авто к рейлингам. Оно может использоваться для крупногабаритных грузов, не помещающихся в штатное багажное отделение.
Пример самодельного экспедиционного багажника
Прежде чем приступить к тюнингу, необходимо составить чертеж конструкции. Важно определить размеры крыши и отметить расположение креплений на ней. При этом нужно учитывать, для какой Нивы будет изготавливаться данный элемент. Отечественные модели отличаются от тех, что собирают на заводе Шевроле. Внешние размеры багажника Нивы 2121 – 1700×1300 мм. Подходящие размеры деталей для данной модели:
- Трубы: с квадратным сечением — 2 мм 15×15; с прямоугольным — 2 мм 40×20.
- Арматурная сетка: 5 мм 200×100.
- Один уголок длиной 0,6 метра. Размеры: 25×25×3 мм.
| Размеры деталей багажника Нива, мм | ||||||
| Рамы | верхняя | ширина | 1973,5 | передние подкосы | 352,5 | Материалы |
| длина | 1213,5 | труба с круглым или квадратным сечением диаметром 20 или 25 мм | ||||
| нижняя | ширина | 1973,5 | ||||
| длина | 1213,5 | |||||
| Перекладины | 10 шт для обеих рам | длина | 114,7 | уголок длиной 25×25×3 мм. | ||
| Ребра жесткости | 3 шт для передней части верхней рамы | длина | 199 | уголок или металлический профиль | ||
| ширина | 80 | |||||
| Стойки бортов | 12 шт | длина | 160 | металлический профиль | ||
| ширина | 60 | |||||
| Сетчатое днище | 2-3 шт | по размеру рамы | сетка арматурная : 5 мм 200×100 | |||
| Крепления для установки на рейлинги | 6 шт | заводские с металлическими поперечинами 20×40 мм и резиновыми прокладками, либо изготовленные самостоятельно | ||||
Таблица сделана по чертежу №1. Пошаговая инструкция ниже сделана по другим размерам.Перед созданием конструкции водителю необходимо посмотреть руководство к автомобилю. Багажник обычно весит от 10 до 20 килограмм. Если сверху лежит 150 кг, на крышу давит еще и корзина. То есть, в сумме вес составляет 170 килограмм.
Некоторые автомобилисты находят выход из ситуации и объединяют корзину с силовым каркасом машины. Но в результате ухудшается управляемость. Поэтому не стоит слишком сильно нагружать экспедиционный багажник.
Сначала разрезать трубу на 8 частей и сделать две одинаковые рамы, для придания аэродинамических свойств углы делают закругленными. К нижней рамке приварить 3 поперечные трубки.
На нижнюю раму приваривают трубы усиления уголков. При этом необходимо отшлифовать все швы.
Подготовить вертикальные трубки – 14 штук по 110 мм.
Теперь нужно между верхней и нижней рамками расположить 14 вертикальных трубок. Эти элементы необходимо приварить, чтобы получилась цельная конструкция: по 3 трубки вдоль приваренных поперечных труб нижней рамы и по 4 с перпендикулярных сторон.
Профили 2×2 разрезают, чтобы получить 12 одинаковых отрезков. Они будут служить ребрами жесткости для нижней рамы. Устанавливаться будут перпендикулярно уже имеющимся соединительным трубам.
Привариваются ребра перпендикулярно трубам на нижней раме.
Далее приваривается арматурная сетка поверх нижней рамы, также приваривается к трубкам, которые соединяют верхнюю и нижнюю раму.
Готовую конструкцию покрывают преобразователем ржавчины.
На фото — преобразователь ржавчины Цинкарь. Стоимость:
150 руб. за 0.5 литра
Далее нужно зачистить металлические поверхности при помощи специальной плоской насадки-щетки для УШМ.
Конструкцию покрыть грунтовкой и покрасить.
После того, как краска высохнет, багажник можно установить на рейлинги. В дальнейшем рекомендуется регулярно обновлять защитное покрытие, чтобы металл не покрывался коррозией. Приведенная выше последовательность выполнения работ актуальна для всех моделей Нивы. Автомобилисту нужно только соблюсти размеры деталей и следовать инструкции.
Багажник устанавливается на рейлинги
Чтобы надолго защитить металлические поверхности от ржавчины, рекомендуется выполнить пескоструйную обработку и покрыть каркас порошковой краской. Это процедуру производят профессионалы автосервисов.
Замеры конструкции
Когда вы приняли решение о виде материала, который вы будете использовать для багажника, то далее необходимо переходить к выполнению замеров и расчетов. Таким образом, вы сможете четко определить вес будущего изделия, приблизительную цену и, конечно же, сколько и чего вам нужно при построении багажника для автомобиля.
Необходимо в первую очередь определить такие показатели, как длина и ширина всей крыши. Более того, можно даже создать некий проект в виде плана и чертежей, который будет включать:
- Несущую панель (непосредственный багажник, точнее его дно);
- Каркас;
- Перемычки (специальные усилители для конструкции);
- Борта.
Помимо этого можно придумать различные дополнительные детали на ваше усмотрение. Например, это может быть специальная накладка на переднюю часть багажника, которая будет препятствовать возникновению сильного сопротивления встречному воздуху.
Как правильно сварить каркас багажника
Для выполнения операции потребуется около 20 часов. Трубы для каркаса сваривают между собой, чтобы сформировать днище. При работе с алюминием используется аргоновая сварка. Таким же способом приваривают борта, которые можно при необходимости изготовить из металлических листов.
Аргоновая сварка алюминия
На дно желательно уложить армирующую сетку или трубки небольшого диаметра, которые будут служить ребрами жесткости. Обычно хватает трех перемычек, но лучше сделать пять. Точное количество можно определить уже на этапе сборки. Рекомендуемое расстояние между перемычками составляет 15 сантиметров. Оставшиеся трубки приваривают продольно, чтобы дополнительно усилить конструкцию.
Некоторые водители жалуются на дребезжание во время поездок с экспедиционным багажником. Чтобы избежать данного эффекта, сетку приваривают во всех местах, где она соприкасается с металлическими перекладинами. Поперечные перекладины находятся на большом расстоянии друг от друга. Поэтому необходимо в проемах между ними приварить отрезки профиля. Можно вместо сварки использовать болты, но это крепление менее надежное, а на выполнение операции уходит больше времени.
Чтобы сетка не дребезжала во время езды, ее нужно припаять к каркасу в как можно большем количестве мест
Дуги нужно делать из металлопроката с круглым сечением. Они улучшают аэродинамические свойства транспортного средства. Чтобы сооружение прикрепить к авто, можно взять обычные уголки с отверстиями для болтов. Они будут приварены к каркасу снизу, поэтому при необходимости можно в любой момент снять багажник. Чтобы на рейлингах не образовались царапины при соприкосновении с металлом, к креплениям стоит приклеить резиновые прокладки.
Верхняя рамка должна иметь прямые углы в передней части. Сзади нужно сделать грани, которые будут располагаться по краям. К раме необходимо приварить 12 отрезков профиля произвольного размера. От их размеров зависит высота будущего багажника. Обычно делают высоту 190 миллиметров. Необходимо закрепить шесть отрезков в углах, а остальные будут соединять их попарно.
Сверху на вертикально расположенные элементы из профиля приваривается верхняя рама. Следующим этапом производится монтаж и сварка диагонального элемента. Эта деталь необязательна, но она может использоваться для установки защиты от веток во время поездок в лес. При необходимости можно сделать крепления для дополнительных элементов:
- Крепеж для запаски.
- Дополнительное освещение, прожекторы.
- Крючки, на которых будет держаться трос.
- Полимерные боксы для снаряжения, например, палатки.
- Различные виды крепления для инструментов, например, лопаты.
- Лестница, упрощающая доступ к вещам, лежащим на багажнике.
Сделать крепеж для запасного колеса несложно. Для этого вначале следует выбрать место, на котором будет лежать запаска. В этом месте нужно приварить гайку. Далее шпильку вкручивают в эту гайку, но не приваривают. Теперь колесо можно надеть на шпильку и зафиксировать еще одной гайкой. Если планируется прикрепить фары, то для них потребуются водостойкие провода.
Любые дополнительные элементы можно присоединить позже, уже после установки корзины. Также необязательно изготавливать крюки или лестницу самостоятельно. Часто покупают готовые детали и присоединяют к самодельному багажнику. Но после сварки каркаса важно затереть все швы и примерить конструкцию, чтобы убедиться, что она подойдет по размеру.
Дополнительное оборудование
Улучшить функциональность экспедиционного багажника можно с помощью установки дополнительного оборудования. Тип аксессуаров и способ монтажа может отличаться и подбирается индивидуально каждым автомобилистом. Дополнительное оборудование, устанавливаемое на автомобиль УАЗ 469:
- Освещение. Автовладельцы монтируют в конструкцию фонари дополнительного освещения. Это позволяет максимально освещать пространство спереди, сзади и по бокам автомобиля в темное время суток.
- Защита ветрового стекла. Выполнена в виде тросов соединенных с багажником и краем переднего крыла автомобиля. При движении в лесу ветки ударяются о трос, не задевая ветровое стекло.
- Лестница. Используется для беспрепятственного доступа к багажнику. Может устанавливаться как сзади, так и сбоку автомобиля. В задней части авто лестницу крепят на подвижных шарнирах. Это позволяет открывать дверь при необходимости.
Как закрепить экспедиционный багажник
Прикрепляют данный элемент к водостоку или прикручивают к крыше. Во втором случае приходится самостоятельно делать гидроизоляцию каждого отверстия, чтобы при дожде вода не попадала в салон.
Крепление экспедиционного багажника к водостоку
Преимущество машин Нива состоит в том, что не нужно просверливать отверстия в авто. Конструкцию прикручивают к уже имеющимся рейлингам, которые автомобилисты часто называют рельсами. Это означает, что багажную секцию будет несложно снять в любой момент.
Крепление экспедиционного багажника к рейлингам
Для установки подойдут болты диаметром 8 миллиметров. Длина болта должна составлять 70 мм. Желательно с боков просверлить отверстия и поместить внутрь них втулки. Затем сверху приварить. Это защитит металлические детали от деформации во время закручивания болтов.
Обычно на Ниве два рейлинга, и получается, что можно закрепить багажник в четырех точках. Но для перевозки тяжелых вещей желательно закреплять корзину в шести точках. Поэтому иногда в авто с двумя рейлингами устанавливают еще один дополнительный. Крепления багажника по правилам опираются на участки передачи нагрузки на кузов. То есть, сооружение не должно давить на неукрепленные места над окнами или дверями.
Какие плюсы
- Возможность перевозить ношу весом около 110 кг, при этом, не травмируя гладкую крышу.
- Ценовой диапазон значительно ниже по сравнению с тем же самым прицепом.
- Груз надежно закреплен, поэтому бояться за него не стоит.
- Можно придумать множество других приспособлений.
- Какой бы не была ноша, она не будет мешать смотреть на дорогу при передвижении.
Несколько лет назад выбор был небольшим, выпускались универсальные багажники, которые подходили к любой марке автомобиля, как к седанам, так и внедорожникам, и крепились при помощи водостока. Сейчас технологии ушли вперед, следовательно, выбор стал более разнообразен и широк. Можно выбрать зарубежного производителя, если вы больше доверяете Западу, а можно попробовать поработать с отечественным производством.
Дополнительный отсек для перевозки вещей может быть индивидуальный или подходящий для всех машин.
Сравнение стоимости покупного и самодельного багажника на крышу
Оригинальная багажная система стоит от 11 000 до 13 000 рублей. Цена универсальных моделей для Нивы Шевроле составляет от 18 до 23 тысяч руб. В случае заказа индивидуальной модели, созданной с учетом особенностей машины, цена не будет ниже 20 000 руб.
Если изготовить багажник самостоятельно, стоимость материалов составит около 3 000- 5 000 руб. В этом случае можно сэкономить порядка 8 000-10 000 рублей. Удобно, что при самостоятельном изготовлении можно предусмотреть только необходимые элементы и сконструировать наиболее удобный багажник.
Умный в гору не пойдёт, умный гору обойдёт
Поскольку успешно решить проблему в лоб и сразу обустроить багажник своими руками не удалось, я начал искать обходные пути. Пришёл к следующим выводам:
- Полки нужно закрепить таким образом, чтобы их можно было легко и быстро демонтировать, по возможности без применения инструментов.
- Покупные полки для багажника ВАЗ необходимо доработать, чтобы пространство над арками в багажнике, можно было использовать для хранения предметов первой необходимости.
- Что бы исключить недоразумения при разработке конструкции полок, нужно изготовить макет.


























































































































