Пространство между потолком и крышей в частных домах занимает чердачное помещение. Оно используется владельцами для хранения вещей, предоставляет возможность проводить осмотр и ремонт внутренней стороны кровельного пирога. Складная лестница, установленная чтобы попасть на чердак, может быть изготовлена своими руками. Переносные конструкции типа стремянки не всегда удобны и надежны. Стационарный вариант, который легко выдвигается при необходимости, а основную часть времени находится в сложенном состоянии, станет оптимальной моделью для небольшого пространства.
- По месту установки:
- наружные – монтируются снаружи здания, недостатком является необходимость покидать помещение в любую погоду;
- внутренние – размещаются в доме.
- По конструкции:
- монолитные – винтовые или маршевые;
- переносные – приставные, стремянки;
- складные – раздвижные, раскладные, ножничные, откидные.
Монолитные конструкции обеспечивают полную безопасность подъема на чердак. Но занимают полезную площадь комнаты. Переносные модели удобны как временный вариант, но для постоянного использования они не годятся из-за повышенной опасности травматизма. Оптимальным выбором считается складная лестница, которая занимает минимум места. Такая конструкция часто крепится на люк, она имеет компактные размеры, а изготовление ее своими руками позволит сэкономить средства.
Особенности складных конструкций
Трансформирующиеся модели имеют несколько вариантов исполнения, из которых можно выбрать подходящий для своего дома. При проектировании изделия следует учитывать не только размеры, но и особенности конструкции. Минимальное количество секций раскладной лестницы должно составлять 3 штуки. Модель, состоящая из 2 частей, потребует существенно увеличить размеры чердачного люка. Раскладная лестница опускается вручную, с использованием груза для утяжеления, или автоматически, с применением электрического привода.
Разновидности складных чердачных лестниц
Телескопическая модель
состоит из частей, задвигающихся друг в друга. Материалом для нее служит алюминий, обладающий легкостью, прочностью, стойкостью к коррозии. Она компактная, функциональная, прослужит долгое время, но своими руками такое изделие изготовить сложно. Возможен вариант монтажа на люк готовой конструкции.
Ножничная модель
производится из металлических деталей. Она складывается по принципу гармошки. Прочная конструкция с удобными ступеньками имеет один недостаток – со временем в местах соединений появляется скрип. Предотвратить проблему позволит своевременное смазывание мест крепления.
Ножничная лестница надежна и имеет красивый внешний вид
Откидная лестница
не будет занимать ни одного лишнего сантиметра. Она сложна в проектировании и монтаже. Ее ступени крепятся на тетиве карточными петлями, а в сложенном положении откидная модель фиксируется на стене.
Выдвижная лестница
на чердак состоит из нескольких секций, верхняя часть прочно крепится на люк, она равняется размеру крышки. Остальные секции соединяются специальной фурнитурой и шарнирами. При раскладывании они образуют ровный лестничный марш. Привести изделие в рабочее положение несложно, благодаря его подвижности. Отличие телескопической и раздвижной моделей в способе скольжения секций. В первом случае они размещаются одна в другой, а во втором – двигаются при помощи роликов снаружи по направляющим.
Конструкция для подъема на чердак должна устанавливаться в месте, где она не будет создавать помех, обычно это холл или коридор. Раздвижная и складная лестница подгоняется под стандартные размеры, которые разработаны с учетом требований безопасности:
- угол наклона конструкции составляет 65-75 градусов, большее значение сделает использование небезопасным, а меньшее потребует много места для размещения;
- оптимальная ширина лестницы 65 см;
- рекомендуемое количество ступеней – 13-15 штук;
- длина конструкции должна составлять около 3,5 м, при увеличении она теряет жесткость и прочность, усложняются процессы опускания и подъема;
- удобное для передвижения расстояние между ступенями – 19,3 см;
- лестница, сделанная своими руками, рассчитывается на нагрузку до 150 кг;
- безопасная толщина ступенек составляет 1,8-2,2 см;
- горизонтальные перекладины монтируются параллельно полу, для безопасности их дополняют противоскользящими накладками.
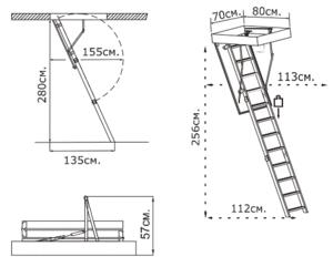
Чердачный люк тоже имеет стандартные размеры, его параметры – 120х70см, они обеспечивают беспрепятственный проход и минимальную потерю тепла.
Материалы для изготовления
К материалам, из которых своими руками изготавливается лестница, предъявляются требования по прочности и весу. Конструкция для частого использования в силу быстрого износа не выполнятся из дерева. Металл – оптимальный вариант для такого изделия, он обеспечит безопасную и долговечную эксплуатацию.
Снизить общий вес лестницы, прикрепляемой на люк, позволит комбинация материалов. Из более легкой древесины изготавливают ступеньки. Используются бруски твердых пород дерева толщиной около 2 см. Для соединения изделий устанавливается металлическая или пластиковая фурнитура, последняя уменьшает трение деталей. В сложенном положении конструкция крепится на люк, что исключает самопроизвольное выпадение.
Технология изготовления простой откидной конструкции
Если люк располагается возле края перекрытия, то для подъема можно установить своими руками откидную лестницу из двух секций, которая будет опираться на стену. Основой для конструкции может стать готовое изделие, на трансформацию его потребуется около двух часов.
Простая откидная лестница, которую легко сделать своими руками
Инструменты для работы:
- шуруповерт;
- рулетка;
- ножовка.
Материалы:
- деревянные бруски размером 2х3 см;
- карточные петли;
- саморезы;
- крючок с петлей.
- Берется два бруска равных ширине лестницы. Один петлями крепится к верхнему краю, а второй прочно фиксируется внизу, обеспечивая устойчивость разложенной конструкции.
- Используемая лестница делится на две части – одна из них составляет 2/3 длины, а вторая 1/3. По намеченной линии выполняется аккуратный распил тетивы.
- Металлические петли прикручиваются для соединения секций. Обращайте внимание на то, как расположена фурнитура. Она должна обеспечить складывание нижней части лестницы под верхнюю.
- На стене под чердачным проемом фиксируется брусок, к которому крепится откидная конструкция.
- Для надежной фиксации в сложенном положении возле места распила вкручивается петля, а на стене в соответствующем месте устанавливается крючок.
Достоинство такого изделия – простота исполнения своими руками, а недостаток – открытое расположение.
Изготовление люка
Если складная лестница размещается на крышке проема, она не видна из помещения и не станет помехой в интерьере. Простые чертежи помогут определиться с размерами люка и изделия. Измерив стороны прохода в чердачное помещение, начинают собирать люк своим руками.
Необходимо подготовить следующие материалы:
- бруски сечением 50х50м;
- лист фанеры 10 мм;
- клей ПВА;
- крепеж;
- дверная защелка с ручкой.
От бруска отрезается две части равные длине проема и две аналогичные его ширине (120х70 см). Каждый край бруска выпиливается на половину ширины. Эти участки намазываются клеем ПВА и склеиваются между собой в прямоугольник. Для удержания точной диагонали на рамку крепятся прямоугольные треугольники из фанеры, называемые косынки. После высыхания клея бруски дополнительно соединяют саморезами, а косынки убирают. К заготовке прикручивается подготовленный лист фанеры. Конструкция примерятся к проему. Чтобы люк удерживался в закрытом положении, в него врезают дверную защелку. Фурнитура имеет удобную ручку, с помощью которой люк будет открываться.
Сборка механизма открывания
Изготовление своими руками механизма открывания люка – это достаточно сложный процесс, чтобы облегчить задачу, достаточно приобрести готовое изделие в магазине.
Те, кто решил собрать всю конструкцию самостоятельно, должны приготовить металлический уголок, две полосы и лист металла.
Чтобы не ошибиться с размером шарниров, они первоначально вырезаются из картона. После примерки, переходят к работе с металлом.
- На металлической полосе отмечаются места для крепления по шаблону.
- Высверливаются отверстия под болт диаметром 10.
- Детали собираются и наживляются болтами. Малкой замеряется выбранный угол фиксации лестницы, а затем детали раздвигаются на искомую величину.
- На металле обозначается участок, который при опускании перекрывается уголком. Эта область срезается. Убрав лишнее, детали обрабатываются для придания эстетичного вида.
- Второй механизм должен быть идентичен уже изготовленному. Для точного совпадения отверстий детали соединяют струбциной и сверлят.
- Вставив во второй механизм болты, его равняют по образцу, обрезая лишний металл.
- Готовые механизмы открывания устанавливаются своими руками на люк.
Они буду создавать упор, фиксируя складную конструкцию под нужным углом.
Обеспечить равномерное распределение нагрузки позволит монтаж второго шарнирного механизма, поддерживающего люк посередине. Потребуется: две металлические полосы шириной по 2 см, уголок и кусок металла. Уголок служит опорой механизма при открывании. К одной детали приваривается кусок металла, в который упирается вторая часть. При опускании люка шарнир будет раздвигаться, принимая часть веса конструкции.
Деревянная лестница, делаем сами
Проще всего изготовить конструкцию из дерева, материалом послужит доска 2,5х10 см. Изделие состоит их трех секций, первые две равняются по длине люку, а размер последней – расстояние, оставшееся до пола.
Длина секций отмечается на двух досках, используемых для изготовления тетивы. Отметки должны зеркально повторять друг друга, поэтому перед работой заготовки соединяют скотчем. В намеченных местах сверлятся отверстия под петли, после чего доски распиливаются. Для придания привлекательности все деревянные детали шлифуются и покрываются двумя слоями лака. Металлические петли перед монтажом своими руками покрывают грунтовкой и краской.
Под крепеж ступеней с внутренней стороны тетивы вырезаются отверстия глубиной в 5 мм. На них наносится клей ПВА, а затем выполняется фиксация саморезами. Следующий этап – соединение трех секций в общую конструкцию при помощи петель. Проверив возможность сгибания частей, лестницу закрепляют на люк. Верхняя секция изделия фиксируется на нем анкерами. Складная лестница на чердак готова.
Вконтакте
Чердачные лестницы — такие удобные и практичные
Типы открывания выдвижных маршей
Телескопическая лестница — плюс к удобству использования чердака
При установке выдвижных лестниц приходится выбирать между несколькими типами:
- Ножничная модель. Особенность открывания и сборки заключается в складывании и выдвигании сооружения в виде гармошки. Механизм трансформации имеет форму параллелограмма или овала. После заказа изделия (цены от 3000 руб.), через время потребуется смазывание конструкции для избегания скрипов.
- Телескопическое устройство. Изделие включает множество выдвижных секций, складывающихся одна в другую. Относится к категории менее продаваемых сооружений среднего ценового сегмента.
- Раскладной вид установки — секционный и шарнирный. В состав включены 2-4 секции. Первое колено обладает длиной, соответствующей с размером крышки люка и крепится на ней. Другие элементы открываются для создания ровного лестничного марша. Секционные конструкции подвижны, благодаря установке петель и шарниров. Они встречаются в пределах разных цен: от 3 до 20 тыс. руб.
- Откидная модель. Большую часть времени конструкция находится в сложенном состоянии и крепится на стене. Ее выдвигание производится по мере надобности подняться на чердак. Фиксация ступеней осуществляется на тетиве с использованием карточных петель. Изучая цены на данную позицию товара, можно подобрать вполне приемлемое решение.
Основные параметры
Установка мобильной конструкции (как дешевой, так и дорогой в цене) рассчитана для обеспечения возможности пользоваться чердаком по мере надобности. Она обладает небольшими габаритами и уровнем нагрузки, что исключает возможность перемещать мебель и крупные предметы.
Размеры сооружений:
- Стандартная ширина ступеней варьирует в пределах 400-600 мм.
- Предел высоты достигает до 3,5 м. Расчет установок производится путем прибавки 30 см к высоте перекрытий.
- Число ступеней — 14 — 15.
- Шаг между перекладинами — 20 — 30 см.
- Угол наклона 60 — 75 гр.
- Максимальный уровень нагрузки 150 — 250 кг.
- Размеры люка 70 — 120. Меньшие параметры неудобны в эксплуатации. С увеличением размеров, возможны немного большие теплопотери.
- Глубина ступенек варьируется от 5 до 18 см.
Бренды и цены раскладной лестничной конструкции
Чердачные складные лестницы могут делаться и из дерева — выходит очень шикарно
Разработкой чердачных раскладных систем обычно занимаются изготовители мансардных окон. Поэтому на сайтах дилеров часто встречаются названия мансардных устройств от известных лидеров: Atrium, Dolle, FAKRO, Roto, Velta, Oman. Расчет цен производится с учетом материально-технической оснащенности. В среднем, цены на высококлассную продукцию заключаются в диапазоне 3000 — 10 000 тыс. руб.
Комплектация мобильных чердачных ступеней
Устройство включает коробку для размещения в отведенном проеме. Его крепление обеспечивается саморезами. Геометрические размеры легко подогнать посредством инженерного уголка. Соблюдение строгой перпендикулярности влияет на дальнейшую функциональность устройства. Для защиты от теплопотерь, во внутренней части короба размещают резиновые или каучуковые уплотнители (EPDM).
Наличие специальных петель способствует навешиванию секций с пружинным механизмом. Их монтируют внутри. С наружной части к установочной коробке прикрепляется крышка люка. Ее соединение с лестничной установкой является обязательной, поскольку люк позволяет скрыть сложенные ступени. В закрытом положении крышка остается незаметной на потолке нижнего этажа. Утеплитель слоем 36 — 76 мм служит для повышения термоизоляции.
Для приведения системы в действие, достаточно потянуть за кольцо и пролет опустится к ногам. Правильная регулировка пружинного механизма обеспечит плавное открывание и сборку изделия. Установка замка с защёлкой и шеста необходима для повышения уровня удобства.
Комплектацией может быть предусмотрено наличие поручней с защёлками пластиковых наличников. Отдельно продаются дополнительные секции. Готовые установки нередко приходится подрезать с установкой антискользящих насадок. Лестницы ножничного типа позволяют удалить заданное число звеньев.
Устройство складных маршей для мансарды
При покупке раскладных конструкций, важно обратить на цену и предъявленные типоразмеры. Обычно производителем указывается размер между перекрытиями и диапазон уклона.
Например, если промежуток между перекрытиями составляет 2800 мм, то параметры люка варьируют в пределах 600/680*930/940 мм, 600*1200 мм, 700*1200мм. Высота потолков 3050 мм рассчитана для проемов 600*1300 мм, 700*1300 мм. Когда высота стен 3250 мм, рассматривается вариант 700*1300 мм.
Конструктивно изделия представлены 3-4 складными секциями, оснащенными специальным механизмом в виде шарниров.
Внимание! Используя угловые петли-шарниры и трафарет, регулируется высота сооружения.
Выбор материала для телескопических чердачных пролетов
Технология открывания обуславливает выбор материалов: металл (сталь, алюминий, нержавейка), дерево или комбинации. Складной вариант создается из массива и металла. Первый вариант характеризуется соединением деталей по технологии «ласточкин хвост».
На краях ступенек имеются технологические выступы. Они размещаются в зазорах, проделанных в направляющих. Для придания прочности соединению, усадка конструкции фиксируется клеем. Пролёты создаются из цельных или клеёных брусьев хвойных пород массива, ясеня и бука (модель А100, Atrium). Прочные ступени вырезаются из дубовых пород.
Среди ведущих брендов можно выделить продукцию разной ценовой категории:
- Dolie.
- FAKRO.
- Oman.
- Roto.
- Velta.
- Holzplast.
Подбирая металлические типы изделий, можно остановить свой выбор на алюминиевых и стальных вариантах. Сооружения из стали представлены на международном рынке с порошковым покрытием, противостоящим образованию коррозии. Выгодное решение легко подобрать в линейке товаров FAKRO, Oman, Roto. Широко пользуются спросом комбинации стальных и деревянных установок. Они представлены в ассортименте Oman.
При выборе гармошки (пантографа, телескопичной, ножничной или пружинной модели), основным материалом для сооружения выступает анодированная сталь. Ступеньки обрабатываются с помощью порошковой краски. Их покрытие образовано противоскользящими насечками. Привлекают внимание новые выпуски продукции с пневмо-электрическим приводом и удаленным управлением (Факро, Рото).
Покупка слайдовых маршей с размещением секций одна в другой обеспечивает телескопическое выдвигание секций, созданных из металла или в комбинациях. Последний вид состоит из деревянных ступеней и металлических опор.
Выбор места для установки чердачных ступеней
Если требуется покупка бюджетной лестницы с не утепленной крышей, можно обратить внимание на толщину люка 16 мм. Его короб обычно не имеет уплотнения. Такой вариант считается удачным к приобретению при оборудовании не отапливаемых дачных сооружений и хозпостроек.
Складная лестница на чердак — это удобно!
Ассортимент фирмы Dolle представлен популярной линейкой изделий из дерева Basic. В состав включены 3 секции, рассчитанные на высоту 2850 мм. Проём имеет габариты 60,7*120 см. Увеличение безопасности можно обеспечить заказом вспомогательных поручней.
Совет: если установка предусмотрена в жилых помещениях, правильным выбором станут деревянные конструкции, в технических зданиях хорошо поставить более практичные — металлические ступени.
Усовершенствованные конструкции лестниц для мансарды
Для расширения показателей эффективности раскладных пролетов, производителями разработаны специальные предложения:
- Каталог Velta позволяет подобрать недорогую позицию каталога «Компакт». Она имеет вид 4-х секционной установки с утеплённым люком. Среди основных выступает малогабаритный проём 600*925 мм, проекция пролёта на пол не более 1260 мм.
- Roto привлекает гостей сайта ножничным алюминиевым решением Mini. Ступени имеют ширину лишь 8 см. Утепленный люк характеризуется коэффициентом сопротивления теплоотдаче 1,25 м2 С/Вт. Приобретение небольшой модели обеспечивает простоту оснащения потолков, образующих высоту 2250-2500 мм (расчет на 10 ступенек). Вынос в пределах 1180-1250 мм.
- Необходимость в компактном сооружении можно удовлетворить на странице каталога Oman — лестничный пролет Mini включает 4 секции с коробом 600*800 мм и 700*800 мм. Высота помещений составит 2650 мм, проекция — 1000 мм.
- Не менее привлекательна малогабаритная лестница LWK (проем 600*940 мм), выпускаемая компанией FAKR0! Достойную конкуренцию ей составит ножничная установка (600*900 мм или 700*800 мм). Производство серий регламентируется европейскими стандартами ЕN 14975.
Лестничные установки для чердака с дополнительными опциями
Для тех, кто привык видеть удобство во всем, и не ищет компромиссов в выборе цены и качества, разработаны принципиально новые конструкции, продуманные до мелочей.
Эксклюзивные разработки являются достоянием компаний-производителей.
Серия «Престиж» (Velta, стоимость близко 12 тыс. руб.) является ярким примером использования технологии ClickFix. Ее особенность заключается в возможности сборки и установки без дополнительного оборудования.
Среди инструментов потребуется шуруповёрт и пила, если понадобится обрезать ножки. Люк утеплен и образует слой в 7,6 см, а для предотвращения попадания холодного воздуха и влаги, применяются 2 уплотнителя. Проём обладает параметрами 600*1200 мм. Потолок характеризуется высотой 2740 мм, проекция на пол — 1180 мм. Управление маршем обеспечивается дистанционно.
Фирма Roto удивит и порадует искушенных пользователей ножничной системой Elektro. Комплектация оснащена бесшумным электроприводом производительностью в 24 Вт и аварийным источником питания, предусмотренным для функционирования изделия при отсутствии питания. Ступени созданы из алюминия и рассчитаны на предел нагрузки до 200 кг. Сооружение в 9 ступенек станет бескомпромиссным решением для перекрытий с высотой 2200-2500 мм. Наибольший вынос достигает до 1400 -1250 мм.
Установка раскладных ступеней (на примере FAKRO)
Среди инструментов потребуется шуруповёрт, отвёртки (плоская и крестовая) и рожковый ключ на 10. Процесс состоит из нескольких этапов:
- Монтируется обрамление для наружной рамы.
- По внутренним углам (с чердачной стороны) на раме имеются уголки из металла для фиксаци. Они приспособлены для временного подвешивания изделия. В них монтируются гайки, а в гайки вкручиваются штыри с резьбой.
- Размещается рама в люк и ставятся на штырях обратные упоры (трубы с зазорами).
- С помощью винтовых тяг выставляется рама в уровень по всем направлениям.
- С использованием жесткой подкладки (для исключения деформации) фиксируется рама к откосу на саморезы или дюбели с двух смежных сторон.
- Проверяются диагонали на равенство. Саморезы не должны быть сильно зажаты.
Многие собственники частных домов для того чтобы
попасть в чердачное помещение, используют приставную или стационарную лестницу, установленную на улице. Безусловно, в целях безопасности подобная лестница вполне оправдана, и никогда лишней не станет. Однако для использования в зимний период, и особенно в тех случаях, когда на чердаке обустроено хозяйственное или даже полноценное жилое помещение, намного удобнее будет предусмотреть возможность входа прямо из дома.
Но часто случается так, что стационарная конструкция внутренней лестницы требует весьма значительной площади, и оттого никак не может быть реализована на практике в условиях небольшого дома. Да и при достаточности площади вряд ли имеет смысл ее
«транжирить», если чердак используется не постоянно, а лишь время от времени. Что
предпринять? А выход есть – это конструкция-
«трансформер», которая убирается по ненадобности в чердачное перекрытие. Итак, тема настоящей публикации: лестница раскладная на чердак своими руками — наиболее оптимальный
вариант как для большого, так и для маленького частного дома.
Общие сведения о раскладных лестницах на чердак
Что говорят о достоинствах и недостатках подобных конструкций?
Складные лестницы, если их конструкция продумана, отличается безопасностью и простотой эксплуатации — весьма удобны. Однако, есть у них и свои недостатки, о которых также необходимо знать заранее, приступая к подобной реконструкции одной из комнат дома
.
Итак, к преимуществам складной лестничной конструкции
относят следующие моменты, которые значительно облегчат эксплуатацию чердачного помещения:
- Возможность безопасного попадания на чердак в любое время, вне зависимости от сезона или текущих погодных условий.
- Компактность и легкость
эксплуатации качественной конструкции позволяет справиться с раскладыванием и складыванием лестницы всем жильцам дома, так как больших физических усилий не предвидится. - Конструкция в сложенном виде не занимает полезной площади как в жилом помещении, так и на чердаке. При отсутствии надобности лестница чаще всего убирается в проем
чердачного перекрытия, экономя свободное пространство. - Люк в потолке, который необходим для размещения лестничной конструкции, при качественной отделке снизу абсолютно не портит внешнего вида потолочной поверхности.
- При приобретении готовой конструкции, вполне можно выбрать модель с электроприводом. Это, безусловно, чрезвычайно удобно, так как при необходимости привести лестницу в рабочее состояние или убрать ее
— вообще
не придется
прилагать никаких усилий. Однако, чтобы установить этот вариант лестницы, придется
пригласить специалиста. Да и стоят такие комплекты – весьма немало.
К недостаткам установки данной конструкции в чердачное перекрытие можно отнести следующее:
- Как бы то ни было, складные лестницы, в отличие от , далеко не всегда соответствуют критериям максимального удобства в плане крутизны подъема
, количества и размера ступеней. - Исходя из первого пункта, напрашивается второй — подъем и спуск по таким лестничным конструкциям все же требует внимательности и особых мер предосторожности. В особенности это будет касается детей, людей старших возвратов или имеющих
некоторые ограничения физических возможностей. - Как бы плотно люк ни входил
в вырезанный под лестницу проем
, он все равно лишит перекрытие герметичности. Поэтому, чтобы не допускать попадания в жилые комнаты холодного воздуха сверху (или, наоборот, горячего – в период летнего зноя), помещение чердака придется
утеплить. Это, безусловно, ведет
к дополнительным расходам. Правда, можно рассмотреть эту проблему с другой стороны. Если на чердаке планируется обустроить хозяйственное или жилое помещение, то в нем,
так или иначе,
необходимо проводить термоизоляционные работы на скатах кровли и выполнять настил полов с
Критерии, которым должна соответствовать складная лестница
Чтобы лестница эксплуатировалась долго и была безопасной для своих хозяев, она должна соответствовать некоторым критериям, вне зависимости от ее
конструкции и материала изготовления.
Цены на раскладные лестницы
раскладная лестница
К таким качествам изделия можно отнести:
- Прочность материала изготовления, всех креплений и соединительных узлов.
- Легкость
конструкции по своей массе. Это важно не только для удобства эксплуатации лестницы, но и для того, чтобы она в сложенном виде не давала чрезмерной дополнительной нагрузки на чердачное перекрытие. - Простота в эксплуатации – с процессом приведения лестницы в «боевую готовность» и ее
складыванием должен справиться любой взрослый член семьи. - Складывающие лестницу шарнирные или иные узлы и приспособления должны функционировать легко, без даже минимальных затруднений.
- Если лестница будет эксплуатироваться постоянно, ввиду того, что на чердаке предполагается расположить часто используемое помещение, то изделие лучше сделать самостоятельно или же заказать хорошему мастеру, чтобы быть уверенным в ее
надежности
, а значит, в своей личной безопасности.
Почему лучше будет изготовить лестницу самостоятельно?
Сегодня на строительном рынке представлено немалое количество моделей разных производителей. Они, как правило, достаточно удобны в использовании, но если их эксплуатируют не особо интенсивно. Если же лестница будет раскладываться и складываться по нескольку раз в день, то потребуется более прочный механизм, так как предлагающиеся изделия могут не выдержать столь интенсивной эксплуатации из-за того, что каждое из них рассчитано на определенный
«моторесурс».
Готовые лестницы практически всегда имеет небольшой угол уклона относительно вертикали. То есть производитель делает их слишком крутыми, поэтому по ним неудобно подниматься и спускаться, особенно удерживая в одной руке определенный
груз, а другой —
подстраховывая себя. Причины, как видно, весьма значимые, и оттого многие владельцы домов предпочитают не покупать готовые комплекты, а монтировать их самостоятельно по собственным чертежам, рассчитывая их под собственный вес и оснащая прочными механизмами.
Основные типы складных лестниц на чердак
Прежде чем приобретать или изготавливать складную лестницу, необходимо определиться с ее
конструкцией, так как их существует несколько. Итак, разработаны и изготавливаются в промышленных масштабах и самостоятельно следующие виды лестниц: выдвижные, раскладные пружинные, телескопические, складные с упрощенной
конструкцией, простые складные компактные лестницы.
Выдвижная или раздвижная лестница
Выдвижная конструкция лестницы может состоять из двух или трех
секций, в зависимости от высоты расположения чердачного перекрытия.
- Первый вариант
Верхняя секция конструкции с помощью металлического фланца закрепляется на поперечной доске, формирующей короб проема
, обустраиваемого в чердачном перекрытии. Каждая из секций при сложении лестницы, вдвигается в расположенную выше часть, как по рельсу. Собранные вместе секции лестницы переводятся в горизонтальное положение и укладываются на полы чердачного помещения. Люк в данной конструкции может быть закреплен
к самой верхней и короткой секции, и в этом случае при закрытии люка будет скрыта и вся лестница. Люк также может закрываться и отдельно, то есть сначала на чердак отправляется лестница, а затем закрывается люк.
1 — Балка чердачного перекрытия.
2 — Винтовой фланец.
3 — Выдвижные секции лестницы.
4 — Поворотный механизм.
На этой иллюстрации показан принцип работы выдвижной лестницы. Однако, совершенно очевидно то, что она может подойти лишь в том случае, если чердак не используется в качестве жилого помещения и посещается достаточно редко, а не постоянно.
- Второй вариант
Еще
один вариант раздвижной лестницы, состоящей из двух секций — короткой, закрепленной
на крышке люка, и длинной, которая после раскладывания будет упираться в поверхность пола комнаты..
Этот вариант также подойдет
для чердака, используемого в качестве хозяйственного помещения. Так, если необходимо попасть на чердак, люк открывается, а вместе с ним опускается и лестница. Затем, из сложенной конструкции выдвигается ее
нижняя часть до упора в пол.
При раскладывании лестницы, освобождается место прохода на чердак. В готовых, заводских вариантах раздвижных или раскладных лестниц люк оснащен
собственной термоизоляцией. А по контуру проема
установлен уплотнитель, чтобы теплый
воздух из помещения не уходил через зазоры вокруг потолочного люка. О подобных методах минимизации тепловых потерь нельзя забывать и при самостоятельном изготовлении лестницы
.
Раскладная лестница
Раскладная лестница отличается от раздвижной тем, что ее
секции не задвигаются одна в другую, а складываются между собой. Это обеспечивается специальными шарнирными механизмами, установленными в узлах соединения пролетов
. Сложение конструкции происходит «по принципу гармошки». Верхняя секция закреплена на панели-люке, на
нем
же установлены складные поручни, которые облегчают подъем на верхний этаж или чердак.
Преимущество этой конструкции заключается в том, что она не занимает места больше, чем проем
в перекрытии, так как полностью прячется в специальный короб, который и обрамляет открывающийся люк. Поэтому
, поднявшись на чердак, лестницу можно поднять, чтобы
она не мешалась на нижнем этаже, а для того, чтобы
случайно не наступить на люк, находясь наверху, можно предусмотреть верхний прочный люк или же ограждение проема
.
Цены на лестницы
лестница
На расположенной выше схеме представлена готовая конструкция, одна из тех, что предлагаются в специализированных магазинах. Однако, ориентируясь на нее
, вполне можно изготовить лестницу и самостоятельно. Как это сделать — подробно будет рассмотрено в представленной ниже таблице-инструкции.
На схеме виден короб, обрамляющий
проем
. Он оснащается эластичной резиновой прокладкой, благодаря которой люк плотно, без зазоров, будет прижат к внутренним стенкам короба.
Люк показанной конструкции изготовлен из ДСП
, но, изготавливая подобную лестницу самостоятельно, её вполне можно заменить на доски, собрав из них щит. Для этой цели рекомендуется выбрать легкую
пористую древесину, например, липу или сосну.
Деревянные ступени оснащены противоскользящим покрытием. При самостоятельном изготовлении лестницы можно с помощью фрезера на ступенях вырезать углубления, в виде двух-трех
канавок, проходящих по всей длине их поверхности.
Ступени фиксируются в боковых стойках секций лестницы с помощью соединения «ласточкин хвост», которое более надежно
, нежели прямые шипы.
Металлические лестницы ножничного типа
Еще
один вариант складной конструкции — это так называемая ножничная лестница, которую изготавливают из металла. Как правило, для этой цели используется алюминий, в силу своей небольшой массы. Конструкция зарекомендовала себя довольно неплохо, особенно для тех случаев, когда чердак приходится посещать достаточно часто.
К достоинствам этого типа лестниц можно отнести и ее
универсальность. Имеется в виду то, что модули, формирующие ступени, могут быть растянуты «на полную», если в помещении высокий потолок, или же сжаты до определенного
уровня, конечно. Главное, чтобы нижняя ступень упиралась в пол. Таким образом, лестница рассчитана на определенный
, и весьма немалый диапазон высоты потолка.
В сложенном состоянии такая лестница достаточно компактна и не выходит за пределы предназначенного для нее
короба, устанавливаемого в толщину чердачного перекрытия.
Недостатком подобной ножничной конструкции можно считать то, что для ее
установки и сложения необходимо приложить определенные
усилия. Это может представить проблему для некоторых жильцов дома, не обладающих необходимыми физическими данными.
Самостоятельно изготовить такую лестницу достаточно сложно, так как требуется точнейшая подгонка металлических деталей, а сама конструкция изобилует шарнирными соединениями. Да это и невыгодно
, так как материал для самостоятельного изготовления наверняка обойдется
в сумму ничуть не меньшую, чем стоимость уже готового изделия.
- 1 Требования к конструкции
- 2 Разновидности
- 3 Размеры
- 4 Выбор места
- 5 Замеры
- 6 Выбор материала
- 7 Форма
- 8 Начало работы
- 9 Двухсекционная лестница
- 9.1 Технология изготовления
- 10 Изготовление складной лестницы на тетивах
- 11 Видео
- 12 Фото
- 13 Схемы
Если в ближайшее время вы намерены переоборудовать чердак под функциональное помещение, то стоит перед началом работ продумать где установить лестницу и как ее сделать. Здесь также будет установлена потолочная дверь или люк. Такую конструкцию можно заказать или купить, но давайте узнаем, как сделать лестницу на чердак своими руками. Так, вы изрядно сэкономите семейный бюджет и приобретете новые навыки, которые вполне могут пригодиться вам в будущем.
Ранее чердачные лестницы делали снаружи, но едва ли кого-то порадует перспектива подниматься в это помещение через улицу в мороз или дождь. У многих людей в чердаке сделана потолочная дверь, чаще всего в коридоре, и при необходимости взобраться на чердак, они используют приставную лестницу. Но это тоже неудобно, если вам предстоит сделать на чердаке, например, рабочий кабинет или комнату отдыха. Для цивилизованного человека более удачным выбором будет установка стационарной либо складной лестницы. Если у вас нет места для первого варианта, то второй вас весьма устроит.
Требования к конструкции
Требования к конструкции
Какой бы вариант лестницы ни был вами выбран, он должен соответствовать требованиям техники безопасности. Конструкция должна обеспечивать безопасный проход на чердак и быть достаточно прочной. Винтовые лестницы занимают сравнительно мало места и отличаются высокой привлекательностью, однако, пожилым людям подняться по такой конструкции будет весьма трудно.
Если позволяет площадь коридора или прихожей, где будет установлена лестница, то лучше сделать достаточно широкий проем, чтобы можно было установить хорошую стационарную лестницу.
Чем больше проем под лестницу на чердак, тем больше будут теплопотери, если речь, конечно же, не идет об отапливаемом чердачном помещении.
Стационарная лестница
Поручни и перила обеспечивают достаточную безопасность для человека, поднимающегося по лестнице. Поэтому если возможно, то сделайте конструкцию с этими элементами. Поскольку в нашем случае речь идет о самостоятельном изготовлении лестницы, то важно также обработать ее специальными средствами, повышающими огнеупорность конструкции. Это особенно актуально при изготовлении деревянной лестницы.
Показатель грузоподъемности должен быть не малым, так как при необходимости поднять на чердак тяжелый груз нужно учитывать и собственный вес. Итак, оптимальная грузоподъемность — 260 кг.
Разновидности
Разновидности
Чердачные лестницы делятся на такие виды:
- Монолитные. Они могут быть маршевыми и винтовыми.
- Складные. Бывают рычажными, ножничными, откидными, раздвижными или телескопическими.
- Переносные стремянки или приставные лестницы.
Переносные виды лестниц — это временный вариант соединения этажей. Если вы планируете использовать чердак в редких случаях, то приставная конструкция — это оптимальный вариант. Но при обустройстве чердачного помещения под зону отдыха или для игр детей нужно сделать более надежную лестницу.
Приставная лестница
Чаще всего на обустройство массивной конструкции нет места в жилых домах. Поэтому не удивительно, что выдвижные лестницы и их складные собратья пользуются наибольшим спросом при обустройстве чердака. Они занимают мало места, являются безопасными и удобными, просты в использовании.
Размеры
Чердачная лестница имеет стандартные параметры, соблюдая которые вы сможете изготовить действительно надежную и удобную в эксплуатации конструкцию:
- Ширина марша должна составлять 65-110 см.
- Высота лестницы до 3,5 м. Это связано с тем, что падение с такой или большей высоты чревато получением травм, да и жесткость высокой конструкции будет значительно меньше.
- Среднее число ступеней — 15.
- Высота подступенок — 19 см.
- Толщина ступеней — 1,8-2,2 см.
- Угол наклона колеблется от 60 до 75º. Это обусловлено тем, что угол меньше 60º потребует много пространства, а угол больше 75º — опасен при использовании.
- Если вам предстоит сделать складную лестницу, то она должна выдерживать вес до 150 кг.
- Ступени не должны быть скользкими. Их устанавливают параллельно полу.
Выбор места
Выбор места
Если вам предстоит сделать лестницу самому, то важно определить место установки лестницы — внутри или снаружи, если вы выберете первый вариант, то в каком помещении будет проделан проем для подъема на чердак? Важно, чтобы лестница не мешала домочадцам. Поэтому устанавливать ее на кухне или в спальне не рентабельно.
Если чердачное помещение не будет интенсивно использоваться, то лестницу для подъема в него можно сделать в гостиной. Лучше, чтобы лестница на чердак в таком случае была закрытой или автономной. В такой ситуации складная лестница — это очень хороший вариант.
Замеры
Если вы будете делать складную лестницу, то примите во внимание ее размеры в сложенном и разложенном виде. Сделайте замер от пола помещения, в котором будет установлена лестница, до потолка. Определитесь с шириной лестницы, количеством ступеней, углом наклона. Все данные фиксируйте на бумаге, что поможет вам составить максимально точный чертеж. Ошибки в расчетах могут привести к нежелательным последствиям. Например, лестницей будет неудобно пользоваться, увеличится риск получения травмы.
Ступеньки должны быть расположены параллельно полу. Двери не должны открываться на лестничный пролет.
Выбор материала
Выбор материала
При изготовлении лестницы из дерева следует обработать все детали антисептиками во избежание гниения готового изделия. После сборки можно будет покрасить конструкцию любым подходящим по цвету лаком/краской. Обычно чердачные лестницы делают из сосны. Этот материал выбирает большинство самоделкиных, так как с древесиной легче работать, нежели с металлом.
Если же вы, таки решили работать с металлом, то используйте материалы с оцинкованным покрытием. Этот вид металла не ржавеет. Такие конструкции обладают большой прочностью. Так, вы сможете сэкономить пространство, оцинкованные элементы тонкие, а посему не занимают много места.
Чтобы металлические элементы не терлись друг о друга, следует использовать пластиковые детали. Таким образом, за счет сменных боковых пластмассовых вставок будет предотвращено скольжение.
Форма
Особенность чердачной лестницы — форма. Она должна быть эргономичной, компактной, комфортной и удобной. В небольшом помещении габаритная конструкция будет смотреться нелепо. В достаточно большом помещении — ограничений нет, хотите устанавливайте компактную лестницу, а хотите сделайте стационарную массивную.
От имеющегося пространства и личных предпочтений зависит, будет ли лестница одно-, двух- или трехмаршевой. Если от пола до потолка не больше 3 м, то вполне можно обойтись самой простой одномаршевой конструкцией. Но, если вы желаете быть более оригинальными, то сделайте лестницу, состоящую из двух маршей.
Чтобы одномаршевая конструкция выглядела интересней, сделайте ее дугообразной. Ступени можно сделать в виде расходящихся лучей.
Начало работы
Начало работы
Если замеры вами были сделаны, а чертежи очерчены, то самое время составить смету материалов. Итак, чтобы вы смогли самостоятельно сделать чердачную деревянную лестницу, вам следует запастись:
- Шурупы.
- Отвертки.
- Рулетка.
- Ножовка по дереву.
- Набор гаечных ключей.
- Монтажная пена.
- Угломер.
- Шарниры.
В качестве основания используются боковые и вертикальные балки, служащие опорой лестницы. Величина допустимых нагрузок на конструкцию полностью зависит от прочности основания.
Двухсекционная лестница
Двухсекционная лестница
Одна секция такой конструкции складывается наверх. В собранном виде двухсекционная лестница не прячется, а остается на виду. Такое допускается, если выход на чердак обустраивается в гараже или ином рабочем помещении. При оформлении дома в соответствующем стиле двухсекционная лестница будет удачно смотреться и в коридоре. Для ее изготовления вам понадобятся следующие материалы:
- Рулетка.
- Обычная деревянная лестница.
- Ножовка по дереву.
- 4 бруска, имеющие толщину 2-3 см, 2 из них должны соответствовать ширине люка, а 2 — должны быть длиннее люка на 20 см.
- 4 шт. карточных петель, соответствующие ширине косоура.
- Крепежные элементы.
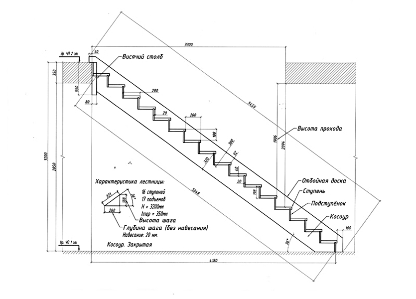
Косоур — это основа лестницы, на которую укладывают ступени.
Технология изготовления
Технология изготовления
Для начала нужно соединить короткий брусок при помощи петель с верхним концом лестницы, другой аналогичный брусок следует жестко закрепить к нижней части лестницы. Чтобы в итоге конструкция была надежной, возьмите 2 рейки и прибейте их наискосок с обратной стороны лестничного марша. При этом следует провести эти действия так, чтобы эти укрепляющие рейки не препятствовали перемещению по лестнице.
После этого нужно отмерить 2/3 от общей длины конструкции. Измерения проводятся снизу. В намеченном месте следует распилить лестницу. Эти части конструкции впоследствии будут соединены карточными петлями, которые крепят с обратной стороны лестницы. Таким образом, конструкцию можно будет легко сложить.
Верхний брусок закрепляется под люком. Благодаря крючку и петле, ваша лестница не будет открываться произвольно. Итак, крючок нужно прикрепить к стене, а петлю — к бруску.
Изготовление складной лестницы на тетивах
Изготовление складной лестницы на тетивах
Процесс изготовления складной лестницы состоит из таких этапов:
Чтобы ускорить процесс изготовления чердачной лестницы, выполняйте все работы с напарником. Это также поможет избежать травм при работе на высоте.
Основные моменты по изготовлении чердачной деревянной лестницы были описаны в этой статье. Если у вас есть вопросы по теме, то непременно задайте их нашему эксперту. Желаете дополнить статью или предоставить полезные дополнительные рекомендации? Оставляйте свои комментарии.
В предоставленном видеоматериале, вы сможете узнать о других тонкостях изготовления лестницы для чердака:
На фото представлено несколько вариантов чердачных лестниц:
Лестница на чердак с улицы
Лестница над входом
Оригинальная лестница
Раскладная лестница
Стационарная лестница
Виды раскладных лестниц
Расчет винтовой лестницы
Чертеж лестницы
Схема деревянной лестницы
Схема лестницы
Схема определения высоты и уклона лестницы
Складная чердачная лестница – это удобный вариант, не занимающий много места.
Такую лестницу не сложно сделать собственными силами.
Для этого не обязательно обладать особыми талантами, не нужно быть профессиональным столяром, а нужно иметь немного материалов, свободного времени и, конечно же, толику терпения.
Какая лестница лучше?
Чердак может быть местом, заваленным старым хламом, и стать прекрасной декорацией на Хеллоуин.
Можно оборудовать на чердаке творческую мастерскую или кабинет для работы, можно оборудовать там уютную детскую комнату.
Но каким бы разным целям не служило чердачное помещение, как бы оно не было оборудовано, – все чердаки в мире объединяет один факт: туда невозможно попасть без лестницы. Конечно, если владелец чердака – не супергерой.
Так какую же лестницу выбрать для подъема на чердак? Можно ли изготовить ее своими руками? На второй вопрос ответ проще: человеческими руками можно сделать все! С первым вопросом придется разбираться более подробно.
Тип лестницы следует выбирать в зависимости от предназначения чердака и наличия свободного места внизу.
Все виды лестниц можно условно разделить на три типа:
- приставные;
- постоянные;
- складные конструкции.
Самый простой вариант – это, конечно же, приставная лестница. К этому типу относятся и обычные деревянные драбины, и металлические стремянки.
Плюсы приставной лестницы:
- легкая;
- не занимает места;
- можно использовать одну лестницу для подъема в разных местах.
В хозяйстве такой вариант, несомненно, незаменим. С помощью стремянки можно менять лампочки, стричь деревья на участке, починить крышу и т. п.
Однако использовать ее для подъема на чердак удобно только в том случае, если чердаком планируется пользоваться время от времени.
Это идеальный вариант, если на чердаке будут храниться старые вещи, т. е. туда будут подниматься пару раз в год.
Если чердак планируется переоборудовать в полезное, функциональное помещение, которое будет часто использоваться, то и способ подъема туда должен быть соответствующим.
Стационарная лестница – это идеальный вариант.
У этого варианта много достоинств:
- устойчивая;
- надежная;
- по ней легко подняться как ребенку, так и пожилому человеку;
- ее несложно оформить в стиле помещения;
- может быть дополнена периллами;
- пространство под маршами можно функционально использовать, например, устроить там кладовку.
Это единственный приемлемый вариант, если чердак предполагается переоборудовать в детскую комнату. Очень эффектно смотрятся и металлические винтовые лестницы с коваными периллами.
Но все плюсы этой лестницы перечеркивает один жирный минус – она занимает много места. Что делать тем, у кого место не позволяет сделать стационарную лестницу?
Неужели придется отказаться от идеи переоборудовать чердачное помещение?
Для тех, кто хотят надежную и безопасную лестницу, но не имеют свободного пространства для ее устройства, существует третий вариант – складная конструкция.
Этот вариант немного уступает в безопасности стационарному, но зато после использования лестница будет убираться и не занимать пространство. К тому же ее просто сделать своими руками, учитывая все индивидуальные нюансы.
Складные конструкции
Вариантов складных лестниц множество.
К этому типу относятся следующие конструкции:
- подвесная;
- убирающаяся наверх.
Оба варианта просты для изготовления своими руками. Разница их в том, что лестница может складываться и убираться в чердачный люк или складываться и подвешиваться на стену.
Подвесной вариант подойдет только в том случае, если люк находится прямо у стены. К тому же висящая на стене под потолком, пусть и сложенная деревянная конструкция, впишется не в любой интерьер.
Поэтому самым оптимальным вариантом является лестница, которая будет убираться на чердак. В зависимости от размера люка, она может состоять из двух, трех или даже четырех секций.
Произвести замеры и построить чертежи – это первый шаг при изготовлении лестницы собственными руками.
Есть ряд правил, которые по возможности нужно соблюдать, чтобы конструкция получилась удобной и безопасной:
- ширина лестницы должна быть не уже 60 см;
- в разложенном состоянии угол наклона должен быть не менее 30°;
- глубина ступени должна быть не меньше 10 см, чтобы поднимающийся человек чувствовал себя уверенно;
- расстояние между ступеньками не должно превышать 30 см (лучше меньше);
- если чердачный люк находится выше чем 2,2 метра, то его необходимо оснастить поводком для удобного открытия;
- при высоте помещения 4 м и больше лучше выбрать стационарный вариант, так как под весом человека конструкция может «играть», что значительно снизит ее безопасность.
В первую очередь нужно определиться с размером и местоположением будущего люка. Чем длиннее он будет, тем на меньшее количество секций потребуется делить лестницу.
Например, при длине дверцы 90 см и длине лестницы 240 см получается три секции: 240:(90-10)=3.
Лучше, если люк будет выполнен из массива дерева. В этом случае он окажется тяжелее, чем из фанеры или других материалов, но крепления в дереве будут «сидеть» намного лучше.
На потолке люк требуется закрепить при помощи надежных дверных навесов фиксированного открытия.
Такие навесы фиксируются своими руками в нужном для открытия положении при помощи специальных шпилек.
При дальнейшем открытии люка он будет открываться только на столько, на сколько позволят установленные шпильки.
Не стоит использовать какие-нибудь другие крепления (например, форточные навесы).
Необходимо помнить, что на навесы ляжет вес самого люка, лестницы и человека, поднимающегося по ней. Поэтому стоит обеспечить надлежащую надежность конструкции.
Кроме того, нужно установить замок и, в случае недосягаемой с человеческого роста высоты расположения люка, поводок.
Замок со стороны потолка может быть использован как для межкомнатной двери, оснащенный автоматической защелкой. С чердачной стороны подойдет задвижка типа «шпингалет».
В качестве поводка может быть использован тросик либо рычаг. Тросик, проходя через роликовое устройство с чердачной стороны дверцы, приводит в действие механизм замка.
Однако свисающий с потолка тросик впишется далеко не в каждый интерьер, поэтому более удачным решением является рычаг.
Рычаг представляет собой пластиковый или металлический стержень (для удобства хранения он может быть телескопическим) с углублением нужной формы на верхнем конце.
Этот метод подходит при использовании в крышке люка врезного замка своими руками, с которого необходимо снять вертушку.
Вертушкой называют пластиковую насадку на несъемный ключ. Она используется для удобства открывания замка изнутри.
Под вертушкой окажется металлический стержень квадратной или полукруглой формы, на который должен надеваться рычаг.
Отверстие рычага должно максимально плотно прилегать к стержню замка, в этом случае замок будет открываться легко.
Если есть материальная возможность, то можно установить на люк автоматический замок с дистанционным пультом.
Изготовление лестницы
После того как чердачная дверца изготовлена, можно приступать к изготовлению лестницы своими руками.
Для этого потребуются следующие материалы и инструменты:
- два бруса, длиной равные длине будущей лестницы, шириной не менее 12 см и толщиной от 3 см;
- доска для ступеней шириной не менее 10 см, толщиной – 2 см. Общая длина доски равна длине ступени, умноженной на их количество;
- уголки или болты для крепления ступеней (по 4 на каждую ступень);
- крепления для фиксации верхней секции лестницы на крышке люка;
- шарниры, по два на количество соединений секций (4 секции – это 3 соединения);
- дрель;
- шуруповерт;
- ножовка по дереву;
- длинная металлическая линейка или рулетка;
- транспортир или малка.
После того как к работе все подготовлено, первостепенной задачей является разметка и закрепление ступеней.
Следует помнить, что лестница будет стоять под наклоном, а ступени должны быть параллельны полу. Их необходимо намечать под углом в 30°.
После того как первая ступень закреплена, следует установить лестницу и убедиться в том, что ступени расположены правильно.
Когда лестница будет готова, ее следует распилить на необходимое количество секций. Распилы должны располагаться на одинаковом расстоянии от ступеней. Секции скрепляются между собой при помощи металлических шарниров или петель.
Когда лестница собрана, ее верхнюю часть необходимо наглухо закрепить на чердачной дверце, отступив 5 см от верхнего края.
После этого следует проверить грузоподъемность лестницы и ее соединений. Нельзя проверять лестницу собственным весом, забравшись на нее!
Для смягчения резкости открытия можно использовать резиновые ремни или металлические пружины, закрепив один их конец в нижней части крышки люка, а другие – на полу чердака.
Лестница изготовлена своими руками, и на ее изготовление затрачено не так уж много сил и времени.
Но для большей безопасности и надежности следует сделать еще кое-что:
- смазать все подвижные металлические части (петли, шарниры);
- отшлифовать наждачной шкуркой или шлифмашинкой все деревянные поверхности;
- при желании конструкцию можно покрасить акриловой краской или покрыть лаком.
В таком случае эта конструкция прослужит долго, не оставит заноз после поднятия по ней, не порвет одежду и не будет скрипеть.
Такое устройство, изготовленное своими руками, станет настоящей гордостью хозяина. Удачного ремонта!
Телескопическая лестница своими руками. Лестницы на чердак своими руками. Как сделать чердачную лестницу. Люк – основа любой чердачной лестницы
Что такое чердак? Известно, что в наших краях чердак может стать чем угодно – складом, мастерской или жилой комнатой.
Все зависит от возможностей помещения и вашей фантазии, но одно можно сказать определённо – чердачное пространство нужно использовать. Как оборудовать вход на чердак своими руками?
Обустройство входа на чердак

Разумнее всего оборудовать люк с лестницей в коридоре, прихожей или проходной комнате
. Во многих домах существуют такие комнаты, которые не используются как жилые, там легко можно оборудовать лестницу на чердак.
В былые времена вход на чердак обустраивали снаружи, но перспектива полезть на такой чердак в морозный или дождливый день никого не обрадует.
Самым экстремальным подъёмным механизмом на чердак может быть несколько табуретов, сложенных вместе. Но если говорить предметно, то для попадания туда цивилизованно нужна хорошая чердачная лестница. Она может быть как стационарной, так и складной
, вторые пользуются большим спросом.
Складные варианты после использования компактно укладываются наверх, экономя много полезного пространства. Красиво задекорированный люк может стать свежим элементом интерьера.
Производители предлагают деревянные варианты для небольших нагрузок (до 150 кг) и металлические для более серьёзных нагрузок. Цены на такие лестницы разняться от 7000 рублей и до предела покупательского кошелька. Выбирая самый дешёвый вариант, не стоит рассчитывать на его качество, так не лучше ли сделать складную чердачную лестницу своими руками?
Рассмотрим некоторые возможные варианты самодельных лестниц
, самых простых для новичка и посложнее для тех, кто уверен в своих силах. К вашим услугам описание материалов, работ и чертежи предлагаемых лестниц.
Простая лестница из двух частей своими руками

, одна из которых складывается наверх. В собранном варианте лестница не прячется вверху, но остаётся на виду.
Это может быть некритичным, если чердак находится в рабочем помещении, гараже и т. д. Даже в коридоре она может выглядеть вполне уместно, все зависит от стиля вашего дома.
Эту лестницу можно сделать за несколько часов, нужно только приготовить необходимые материалы:
- Ножовка по дереву.
- Измерительные приборы (рулетка).
- Обычная деревянная лестница.
- Карточные петли, ширина которых равна ширине косоура – 4 шт.
- Четыре бруска толщиной 2–3 см: два длиной с ширину люка и два длиннее на 20 см.
- Саморезы, анкера, петля и крючок.
Косоур – это несущая балка лестницы, на которую укладывают ступеньки.
Как смастерить лестницу рассказывать никому не нужно, но заметим только то, что её длина должна быть больше расстояния от пола до люка примерно на 30 см.
Берём короткие бруски:
- Первый брусок соединяем с верхним концом лестницы при помощи петель.
- Второй брусок надёжно закрепляем на нижней части жёстким способом.
Чтобы конструкцию сделать надёжней, нужно взять две рейки и прибить их с обратной стороны марша наискосок. Только постарайтесь выполнить это таким образом, чтобы конструкция не мешала движению по лестнице
.
Отмерьте от низа ровно 2/3 от всей длины лестницы и распилите её в этом месте. Далее, соедините эти части карточными петлями. Петли крепятся с обратной стороны лестницы, чтобы она могла складываться, как следует.
Закрепите верхний брусок непосредственно под люком. Крючок и петля нужны для того, чтобы лестница не раскрывалась произвольно. Крючок приделывается к стене, а петля на нижнем бруске.
Первая чердачная лестница проста, но у неё есть недостаток в виде видимой лестницы. Есть и другие модели, представленные на фото – это выдвижные, раскладные и телескопические
.
Конструкции чердачных лестниц
Складная лестница на шарнирах своими руками

, а также чердачный люк. Такой вариант очень привлекателен буквально для любого помещения.
Вам понадобится определить, каков будет проём под люк, учитывая пожелания и габариты
предполагаемых посетителей чердака. К примеру, проём для лестницы будет равен 125 x 70 см.
Для того чтобы вырезать люк правильно, нужно добавить по 7 мм с каждой из сторон. Люки лестницы на чердак должны хорошо закрываться
, не нарушая теплоизоляции.
Необходимые материалы:
- бруски 5 x 5 см – 2 коротких и 2 длинных;
- фанера толщиной 1 см по размеру люка.
По концам каждого бруска нужно сделать выпил на половину толщины, соединяя клеем и саморезами
в идеальный прямоугольник. Из подручных средств, чтобы не съехала диагональ, можно приладить временные треугольники из тонкой фанеры. После прикручиваем лист фанеры по размеру прямоугольника.
Вместо замков мы используем дверную защёлку
, любую дверную ручку или цилиндр подходящей формы. Защёлка хорошо держит люк закрытым и просто открывается. Чтобы удобно открывать люк, не используя стремянки и табуреты, эту ручку нужно сделать особо. В специальное отверстие нужно вставлять длинную цилиндрическую ручку, открывая люк, стоя на полу.
Изготовление шарниров для открытия люка

Для того чтобы выполнить все самостоятельно, нужно прикинуть размеры и углы
при помощи картонного макета. Делаем детали из картона, на них можно потренироваться с длиной шарниров, чтобы люк мог открываться на необходимый угол. На основе полученного макета делаем механизм для открывания люка.
Основное – это опытным путём определить длину шарниров
, поскольку этот тип чердачной лестницы предполагает именно шарнирный способ. На чертежах можно увидеть как устанавливается шарнир, логика его работы очень проста – он помогает плавно открывать и закрывать люк.
Необходимые подручные материалы, которые можно найти в каждом гараже:
- Металлический уголок – 2 шт.
- Листовой металл.
- Металлические полоски по 2 см шириной – 4 шт.
Берём две узкие металлические полоски и дрелью проделываем отверстия под М10 болт. Собираем детали между собой попарно, слегка стягивая их. Используя измерительный столярный прибор малку, вымеряем угол открытия люка
и раздвигаем наши механизмы точно на этот угол.
При помощи лобзика вырезаем ту часть металла, которая будет перекрываться уголком. Убираем лишнюю длину металлических полос, концы скругляем. После обработки и удаление лишнего металла, собираем механизм – теперь уголок будет застопориваться в определённом положении. Оба механизма для двух сторон точные копии друг друга
, но только зеркально обращены.
Механизм фиксации чердачной лестницы
Шарнирный механизм получается надёжный, останавливающий люк с лестницей в нужном положении благодаря уголку.
Но для большей надёжности и плавности
открывающего механизма нужно добавить ещё один простой механизм, похожий на руку.
Для «руки» понадобиться:
- Длинные полоски металла, шириной в 2 см – 4 шт.
- Уголок-2 шт.
На конце одной из полос нужно приварить металлическую деталь, на которую будет упираться эта полоска, а уголок будет играть роль опорного элемента
. Делаем простые шарниры, которые при открытом люке будут сохранять угол изгиба, держа при этом часть веса конструкции.
Чтобы нагрузка между двумя разными шарнирами распределилась равномерно, нужно закрепить этот узел правильно. Так, его нужно зафиксировать
при полностью развёрнутых первых шарнирах.
Устройство чердачной лестницы

Складная лестница будет состоять из трёх секций, длину которых важно рассчитать правильно
. Первая секция равна размеру люка, вторая секция немного короче первой (она не должна задеть потолок при раскладывании). Третья секция равна остаточному отрезку.
Материалы для лестницы:
- Доска дюймовка шириной в 10 см.
Угол наклона люка в открытом положении, который мы прежде уже измеряли малкой, переносим на доску. Так, мы отмечаем наклон для ступеней
.
Приступим к разметке досок тетивы для ступеней по длинам секций согласно вышеописанному порядку. Доски нужно плотно прижать, скрепить молярным скотчем и разметить одинаково, делая наклоны ступеней в зеркальном отражении.
Секции будут скреплены опять же шарнирами, поэтому нужно просверлить отверстие
для шарнирного болта них на каждой из секций с помощью пера на 25. Фрезером придаём всем граням законченный аккуратный вид. Доски распиливаем точно по секционной разметке.
Ступеньки нужно нарезать по ширине и отшлифовать
, как и тетивы. На местах разметки под ступеньки нужно сделать углубления под них в 5 мм. Собираем все детали используя клей и саморезы ПШ.
Петли для складной лестницы
Чтобы собрать конструкцию в складной механизм нужно изготовить набор петлей.
Необходимые материалы:
- Металлические полосы шириной в 2,5 см – 8 шт.
- Болты для шарнира 8 мм и саморезы.
Чтобы петли служили и не сгибались, на четырёх полосах нужно дополнительно наварить сегменты
такого же металла (примерно на 1/3). Делаем отверстия в каждой полоске – 2 небольшие под крепление на тетиву (одна снизу и одна под доваренным кусочком), и одну большую на 8 мм под шарнир (сверху).
Петли нужно закрепить, когда сама лестница лежит на ровной поверхности. Петля должна быть закреплена так, чтобы шарнирный болт лёг в ранее высверленную ямку
, а концы были по краю тетивы. Так закрепите все четыре петли.
Монтаж лестницы
Собираем все элементы и устанавливаем на свои места, причём первый сегмент лестницы стационарен и его нужно прикрепить с помощью уголков
к крышке люка.
Проверяем работу механизма, если вас всё устраивает, то снова разбираем для обработки. Древесину лакируем, металл грунтуем и красим
.
Как видите, ничего сложного в создании чердачной лестницы своими руками нет, тем более, когда в интернете доступны фото чертежей. Все детали из металла можно сделать самим, а ещё проще купить готовыми. Тогда и вовсе одно удовольствие – остаётся только собрать этот конструктор.
В этой статье приведена пошаговая инструкция по созданию складной чердачной лестницы. Вы узнаете о том, как правильно собрать основной шарнирный элемент, из чего сделать секции лестницы и как надёжно закрепить конструкцию в монтажном положении. Статья содержит схемы и чертежи.
Инвентарная заводская лестница на чердак — довольно распространённое изделие, которое можно приобрести во многих строительных магазинах. Однако бюджетные варианты не всегда надёжны, а крепкие фирменные изделия стоят соответственно. Изготовление необходимого предмета или устройства своими руками из подручных материалов очень популярно среди домашних мастеров. Чердачная лестница — не исключение.
Материал для работы
Чтобы собрать аналог заводского изделия, понадобятся качественные материалы, которые могут быть в наличии, особенно во время строительства:
- Брусок 50х50 (сосна) 1 сорт — 20 пог. м. Из него будет сделана рама крышки и проёма.
- Фанера 8-10 мм — 2 кв. м. Нужна для обшивки крышки.
- Доска 100х25-30 мм — 15 пог. м. Пойдёт на ступени и тетивы.
- Полоса стальная 3-4х20 мм — для подвижного крепежа колен.
- Уголок и пластина 3-4 мм — для основного механического элемента.
- Болты, гайки, шайбы, гроверы М12-М14.
- Саморезы.
Инструмент:
- Плотницкий — пила, шуруповёрт, угломер.
- Слесарный — сварочный аппарат, электроды 3-4, болгарка.
- Верстак и струбцины.
Порядок работы
В первую очередь нужно выбрать место для лестницы и сделать проём. При необходимости подрезать и установить промежуточные балки в перекрытии — на 6-7 мм больше размера предполагаемой крышки. Далее по размерам люка нужно собрать саму крышку — из бруска и фанеры. Конструкция может быть произвольной, но должна быть надёжной (лучше проклеивать соединения). Брусок с одной из коротких сторон должен быть скруглён — чтобы не мешать крышке открываться.
Сборка шарнирного механизма
Это самый ответственный элемент конструкции. Для его изготовления понадобится: стальной уголок, пластина и полосы толщиной не менее 3 мм. Форма деталей понятна из схемы, но размеры места сверловки следует определить индивидуально, исходя из ситуации по месту. Изготовленные детали должны быть качественными, их следует зачистить и обработать кромки.

Ключевой момент — определение угла открывания. Этот угол очень важен и фигурирует в изготовлении пластины. Для того чтобы правильно его выставить, спроецируйте будущий марш на местности — протяните нитку и опытным путём (подбором наилучшего положения) установите нужный угол. Надёжно закрепите его на угломере — он будет нужен при изготовлении ступеней.
Полученный угол нужно перенести на деталь, а именно на пластину. Для этого установить механизм в исходное положение, приложить угломер и двигать до момента, когда углы полки уголка и угломера совпадут. Затем разметить пластину по получившейся траектории и вырезать область хода детали.
В пластине следует заранее высверлить отверстия для монтажа к балке. Собираем механизм на болтах через шайбы.
После черновой сборки нужно примерить узел по месту, наживить и в точности воспроизвести процедуру открывания и закрывания люка. Если обнаружатся недостатки хода, исправьте их.
Затем нужно изготовить ответный механизм. Он должен полностью повторять первый, но в зеркальном виде. Используйте струбцины и верстак — зажимая детали вместе, вы добьётесь полной идентичности размеров.
Опытным путём произведите регулировку и окончательный монтаж. Крышка в открытом положении должна точно повторять угол, спроецированный шнуром.
Изготовление секций
Расчёт длины каждой секции:
- 1-я — длина проёма минус 10%
- 2-я — длина первой минус 10%
- 3-я — длина марша минус сумма первых двух
Предположим, что длина марша 2500 мм. Исходя из длины проёма 1200 мм:
- 1-я — 1080 мм
- 2-я — 972 мм
- 3-я — 448 мм
Размечаем целые доски согласно расчёту и переносим угол марша на тетивы.
Внимание! Тетивы должны быть установлены зеркально! Учитывайте это при разметке и сверловке.
На стыках секций сверлим отверстия Ø 25 — зеркально через одно.
Все детали нужно качественно обработать шлифлентой, скруглить фаски, чтобы максимально приблизить качество к заводскому.
Затем прорезаем по разметке канавки для ступеней. Древесину выбираем стамеской.
Конструкция отдельных секций собирается на саморезах 65 мм с прессшайбой через столярный клей Д-3.
Петли для коленьев можно сделать из той же полосы, что и механизм открывания. Для этого нарезаем 4 полосы по 160 мм и 4 по 120 мм, скругляем торцы. К четырем из них навариваем лапки до длины 160 мм с отверстием 8 мм. Должно получиться 8 одинаковых по длине деталей, но 4 из них со ступенькой.
Отдельные пластины собрать в шарниры при помощи болтов.
Сборка секций и монтаж лестницы
Разложить на ровной плоскости и установить готовые секционные шарниры так, чтобы болты крепления попадали в отверстия в дереве. Шарниры установить на болты М8-10.
После сборки первого колена проверьте систему на работоспособность. При необходимости устраните перекосы.
Затем присоедините нижнее короткое колено и испытайте систему.
Теперь лестницу осталось смонтировать в проектное положение — на крышку люка. Для монтажа используйте болты (саморезы не надёжны). Если после монтажа и испытаний всё работает без перекосов, конструкцию можно демонтировать для окраски. Используйте лаки и аэрозольную краску для металла.
Впоследствии конструкцию можно усложнять и делать более удобной, добавляя к ней:
- Дополнительные шарниры для устранения люфта.
- Пружину для поддержания конструкции, чтобы сделать открывание легче.
- Замок-фиксатор.
- Поручни.
- Использовать декоративную отделку и дополнительное утепление.
Готовый вид лестницы:
Вопрос отделки и утепления решается по месту, исходя из потребностей. Отделать крышку можно любым материалом, который впишется в потолок. В основном это пластик — лёгкий, недорогой и имеющий дополнительную прослойку воздуха. Разница в цене между «домашним» и «магазинным» вариантом складной лестницы — около 90% (80-150 у. е.). Для работы потребовались только несколько новых досок, покрытие для них и метизы.
В большинстве случаев чердак используется достаточно редко. По этой причине установка массивной стационарной лестницы – далеко не идеальный вариант. Более практичное решение – это складная лестница на чердак, небольшие размеры которой позволяют максимально сэкономить свободное пространство.
В сравнении со стационарными моделями, складные чердачные лестницы обладают следующими преимуществами:
Среди недостатков стоит выделить следующие моменты:
- Сложность в изготовлении. Некоторые модели довольно трудно сделать своими руками. Для этого потребуются сложные и точные расчёты, инструменты, а также соответствующие навыки.
- Отсутствие достаточного комфорта при использовании. Подниматься или спускаться по лестнице с большим углом наклона не слишком удобно, да и поднимать массивные предметы по таким конструкциям – не самый разумный вариант.
- Невысокая грузоподъёмность. Большинство моделей не выдерживают вес больше 150 кг.
Типы раскладных лестниц
Все складные чердачные и мансардные конструкции можно разделить на несколько типов:
- ножничные;
- телескопические;
- секционные;
- откидные.
Ножничные модели
Раскладные изделия ножничного типа также именуют «лестницей-гармошкой».Такое название отлично описывает её суть: в сложенном состоянии изделие напоминает небольшой блок, а при раскладывании – расправляется по типу мехов у гармони. Чтобы расправить такую лестницу, следует потянуть за нижнюю ступень.
Ножничная модель состоит из множества небольших секций, скреплённых между собой. Поэтому размеры конструкции в сложенном состоянии – минимальны. Пожалуй, единственный недостаток данной разновидности – не слишком надёжные крепления между блоков. Поэтому с ножничной лестницей следует обращаться аккуратно и не забывать смазывать механизмы между сегментами. Принцип работы ножничной лестницы с электроприводом
Телескопические разновидности
Характерная черта данной модели – выдвижной тип секций, по типу матрёшки. То есть, самые маленькие трубки закрепляются в трубах большего диаметра, которые вставляются в ещё более крупные боковые трубы и т.д. Удерживают же секции в сложенном состоянии специальные фиксаторы, которые расположены с внешней стороны металлических балок. Чтобы сложить конструкцию, достаточно ослабить «хватку» фиксатора.
Однако, несмотря на достаточно простое устройство, такие модели встречаются редко. Причина низкой популярности – проблемы с фиксаторами.
После недолгого использования, металлические фиксаторы начинает «заклинивать», что препятствует расправлению конструкции.
Секционные лестницы
Секционная раскладная модель напоминает ножничный тип, только здесь сегменты не прижимаются, а складываются друг на друга. Соответственно, при раскладывании, части расправляются и фиксируются в определённом положении.
Преимущество такой лестницы – это низкая стоимость. В качестве недостатков стоит упомянуть довольно большие размеры и массивность конструкции.
Откидные изделия
Самый необычный вариант – это откидная лестница. Данная модель имеет пару интересных особенностей:
Так как конструкция схожа с прямыми маршевыми разновидностями, угол наклона откидной лестницы около 45 градусов, что способствует максимально удобному использованию.
В качестве отрицательных моментов стоит выделить:
- высокие требования к свободному пространству;
- «специфичный» дизайн (в сложенном состоянии откидная лестница выглядит не слишком приятно, поскольку она не прячется и всегда находится на виду);
- массивность конструкции.
Используемый материал
Материал играет важную роль для раскладных лестниц. С одной стороны, он должен быть прочным, с другой – иметь минимальную стоимость. Этим требованиям в полной мере отвечают лишь 2 материала – дерево и металл.
Деревянные изделия в основном изготавливаются из хвойных пород дерева, например, сосны. Такие модели обладают хорошей надёжностью и небольшой ценой. Кроме того, для создания деревянных лестниц не требуется специфических навыков или сложного оборудования. В качестве недостатков же стоит выделить следующие моменты:
- массивность изделия;
- довольно низкая грузоподъёмность (максимальный вес – 100 кг);
- небольшой срок службы.
Гораздо чаще встречаются металлические лестницы из алюминия и стали, которые ничем не уступают деревянным аналогам.
В частности, к плюсам таких изделий относится:
- приемлемая стоимость;
- хорошая грузоподъёмность (до 200 кг, в зависимости от типа конструкции);
- высокая устойчивость к ржавчине и механическим воздействиям;
- долговечность;
- малый вес (у алюминиевых);
- высокая прочность.
Единственный недостаток металлических разновидностей – это сложность самостоятельного изготовления. Для работы потребуются знания по сварке и соответствующее оборудование.
Важные моменты
Любая лестница, вне зависимости от её типа, должна быть максимально удобной для использования. Поэтому при выборе или проектировании изделия, рекомендуется учитывать следующие параметры:
- оптимальная ширина пролёта – 60-70 см (без учёта несущих балок);
- рекомендуемый угол наклона конструкции – 45-60 градусов, максимальный – 75 градусов;
- среднее количество ступеней – 15 шт.;
- толщина ступенек – 2 см (± 2 мм);
- «шаг» ступеней – 17-22 см (ступеньки должны располагаться на равноудалённом друг от друга расстоянии на протяжении всего лестничного пролёта);
- при частом использовании лестницы, ширину проступи (горизонтальной части ступеньки), следует делать не менее 20 см;
Также следует обратить внимание на другие важные моменты:
- мансардные лестницы не должны быть выше 3 м, иначе существенно возрастает риск травматизма;
- на металлические ступени рекомендуется поставить противоскользящие накладки;
- деревянные модели не стоит устанавливать в слишком сухих или влажных помещениях (снижается срок службы);
- крепления и механизмы должны надёжно соединять секции изделия;
- рекомендуется время от времени смазывать механизмы конструкции.
Изготовление складной лестницы своими руками
Процесс создания лестничной конструкции не отличается особой сложностью. Но для большего удобства, его следует разделить на 2 этапа:
- подготовка к работе;
- изготовление лестницы.
Подготовительный этап
Изготовление лестницы начинается с проектирования – проведения замеров и создания чертежа. Схему рекомендуется выполнять в трёх проекциях: вид спереди, сверху и сбоку.
Важно!
При этом конструкцию на чертеже следует отобразить в «расправленном» состоянии.
Также чертёж должен соответствовать следующим требованиям:
- на проекции сверху следует начертить план помещения, на котором отметить месторасположение лестницы;
- для большей наглядности, размеры элементов рекомендуется указывать в отдельных сносках;
- металлические детали отображают диагональными линиями, деревянные – завитушками (имитация деревянных «колец»).
После подготовки чертежа, закупаются необходимые материалы. Когда всё готово, стоит подготовить инструментарий. Так, для работы потребуется:
- электрическая или ручная пила;
- дрель;
- свёрла различного диаметра;
- саморезы по дереву.
Для изготовления металлической лестницы необходимы следующие инструменты:
- сварочный аппарат;
- ножовка по металлу;
- дрель со свёрлами по металлу;
- крепёжные элементы.
Чтобы конструкция могла складываться, необходимо приобрести металлические карточные петли.
Выполнение работ
Сам же процесс изготовления и монтажа довольно прост. К примеру, двухсекционная складная чердачная лестница изготавливается следующим образом:
- несущие балки разделяются на 2 части (и длины) и соединяются с помощью металлических петель;
- в каждой несущей балке делаются пазы для ступеней;
- в сделанные отверстия вставляются ступеньки;
- снизу несущих балок надеваются резиновые накладки;
- в стене под проёмом на чердак крепится деревянный брусок;
- верхняя часть () конструкции с помощью петель соединяется с бруском;
- нижняя часть () прижимается к стене и крепится на крючке.
Делаем складную лестницу
Порядок изготовления раскладной лестницы откидного типа совершенно иной:
- первая тетива жёстко закрепляется на стене под необходимым углом;
- на ней делается разметка первой ступени (шириной 12 см);
- проводятся 2 линии, параллельные граням несущей балки;
- отмечается линия, перпендикулярная концу первого отрезка;
- от перпендикулярной отметки делается отступ вправо на 1 см и проводится вертикальная линия;
- сделанная разметка отмечает начало второй ступеньки (таким же образом отмечаются следующие ступени);
- разметка переносится на вторую тетиву;
- с помощью петель ступени крепятся на несущие балки (на стационарной тетиве они должны подниматься, на подвижной – опускаться вниз);
- к подвижной тетиве крепится петля и в соответствующем месте на стене для неё устанавливается крючок.
Пример откидной лестницы на чердак
Складные лестницы для чердака обретают всё большую популярность в странах СНГ. Этому способствует низкая стоимость, простота монтажа и, главное, компактность изделий. Однако стоит учитывать, что в сравнении с обычными конструкциями, пользоваться раскладными лестницами менее удобно.
Деревянные складные модели представляют собой конструкции с маршем из 3-4 секций, которые скреплены петлями. Для дополнительной фиксации применяется пружинный механизм. В складном состоянии изделия не занимают много места — их можно убирать в плоскость перекрытия. В разложенном виде деревянная чердачная лестница имеет вид наклонной прямой. Для монтажа потребуется наличие свободного пространства возле потолка перед люком. К преимуществам данного типа относится небольшая цена за установку.
Неокрашенные варианты обладают наиболее универсальным видом. В случае необходимости владелец может придать изделию любой цвет, который хорошо подойдет к основной палитре интерьера. Складные конструкции способны выдерживать вес 250 кг. Периодически их смазывают для избежания скрипа во время эксплуатации. Подбор длины изделия осуществляется с учетом параметров комнаты и высоты потолка. Ширина шага соответствует установленному стандарту — 19,3 см. Допускается установка дополнительных элементов, например, перил.
Прежде всего, надо понимать, что чердак чаще всего используется в роли складского помещения. На нём удобно хранить временно ненужные под рукой вещи, либо громоздкие, старые предметы, а также используемые по сезонам.
Поэтому для доступа к чердачному помещению не нужна постоянная большая конструкция, которая будет занимать достаточно много места. Для доступа наверх к чердаку существуют специальные лестничные механизмы.
Особенности чердачных лестниц
- трансформеры (раскладные);
- стационарные.
И те и другие удобные, простые в установке, а главное, занимают минимум места. Самый лучший вариант, когда такой механизм невидно или она скрыт в интерьере. Ведь в дальний угол убирают вещи, которые не пригодятся длительное время.

Раскладные конструкции
Линейка производителей раскладных лестниц довольно широка, цена товара зависит от материала изготовления и функциональности.
Раскладной вариант на чердак представляет собой конструкцию из 3-4 секций, которые складываются друг в друга и преобразуются в компактный блок, располагающийся под потолком.
Таким образом, она легко раскладывается при необходимости, устойчива, подняться наверх не будет проблематично. Если размеры комнаты малы даже для расположения кровати и лестничной конструкции вместе, то раскладная версия точно подойдёт в данном случае.

Трансформеры приводятся в движение специальным стержнем.
Он активируется при открытии крышки люка, есть модели с пультом дистанционного управления.
Складная лестница на чердак своими руками
Несложна в изготовлении выдвижная лестница на чердак своими руками, правда придётся приложить некоторые усилия и терпение. Такие конструкции может быть деревянная или металлическая.
Перед работой нужно удостовериться, что проём для крышки люка сделан и оборудован правильно. Также заранее приготовить нужный инструмент, материалы, в том числе для укрепления входа на чердак.
Подготовка
Для работы понадобятся:
Для изготовления лестницы из дерева:
- деревянные бруски;
- доски, подходящие по размеру;
- фанера;
- пенопласт;
- полиэтилен;
- навесы и шарниры, подъемный механизм (приобретается в строительном отделе);
- доски для ступеней, прочего;
- герметик (силикон или резина).
Складная лестница на чердак своими руками изготавливается почти из таких же материалов, как и кровати.
Для монтажа люка и лестницы лучше всего использовать герметик на силиконовой или резиновой основе.
Процесс монтажа лестницы
Производится изготовка и установка люка с крышкой. Для этого надо сделать замер проёма, который можно расширить (сузить). Можно использовать размеры 1 м. 30 см. х 1 м. 40 см., но всё зависит от расположения проёма относительно границ помещения и если имеются свободные размеры потолочной поверхности.
После уточнения размеров создается эскиз на бумаге (как и в чертежах кровати), где указываются размеры будущей лестничной конструкции. Чертежи помогают избежать ошибок при распиле материалов.

Первой изготавливают раму люка. Её нужно сделать надежно укрепленной, так как от неё зависит качество всей конструкции. Нужно уделить ей особое внимание.
Раму с прямыми углами нужно сделать путём спиливания углов, так чтобы при состыковке досок друг к другу получился каркас с прямыми углами. После примерки на существующий проём, углы рамы мажут клеем.
Можно установить временные распорки, пока клей не подсохнет. После высыхания клея, раму устанавливают в проём с помощью гвоздей (100 мм.).
Готовое изделие будет размещено поверх крышки люка. Крышку можно сделать из фанеры, между листами помещают полиэтилен для препятствия парообразованию.

Готовыми навесами крышку прикрепляют к раме. К крышке прикрепляют удобную ручку и подъемный механизм.
Складную лестничную систему делают из заранее отмеренных брусьев. Брусья каждой секции короче предыдущей, начиная с верхней. Важно предусмотреть, чтобы конструкция в сборе была в виде блока лестниц и свободно проходила при закрытии люка в проеме. Это учитывается ещё на этапе чертежа.
Первое, что должно быть изготовлено — это рама люка, в который и будет монтироваться сама лестница.
Ступени тоже изготавливаются из брусьев, размеры секций должны быть соответствующие. На внутренней стороне тетивы брусьев (боковые брусья лестницы) надо сделать вырубки для надёжного закрепления перекладин. Ступени ставятся в вырубки и закрепляются саморезами.
Складывающиеся части изделия соединяются готовыми петлями.

Эти петли крепятся так, чтобы место соединения металлических планок был ровно на месте соединения секций. Собранная конструкция крепится к крышке люка металлическими углами.
В конце изготавливают задвижку с помощью готовой фурнитуры в виде пружины или шарниров. Некоторым помещениям подойдёт только раздвижная модель со стороны улицы.
Ну вот, теперь осталось даже место для кровати.
Раздвижная лестница
Если совсем не осталось места для кровати, используйте раздвижные конструкции лестниц. Они занимают ещё меньше места, действуя как трамвайный пантограф. Сложив её, получаем достаточно места, ведь всё помещается на крышке люка. Чтобы выдвинуть механизм, достаточно открыть крышку люка, и он сам встанет в нужное положение.

Для раздвижных используется только металл, ввиду особенности крепления элементов и частей. Бонусом материала из металла является возможность выбрать любой понравившийся цвет покраски.
Интерес представляет телескопическая конструкция, её можно сварить самостоятельно.
Стационарный вариант
При наличии достаточного места, можно установить и стационарные лестнички для чердака. Такой способ лучше применить только когда чердак используется постоянно, например, при ремонте. Стационарные лестницы тоже различают по видам. Существуют:
- с одним маршем;
- винтовая.
Лестница с одним маршем
Самый простой вариант – модель с одним маршем (пролётом), то есть она сделана от пола до потолка одной цельной конструкцией. Материал выбирают либо из металла, либо из дерева. Все части лестницы должны быть закреплены между собой.
Можно использовать способ крепления на кобылки. То есть с помощью деревянных подпорок элементы лестницы соединяются деревянными колышками. Подборки должны быть выровнены так: одна сторона выровнена прямо, а вторая отрезается под балку для ступеней (косоур).
Доска для ступени должна быть не менее 36 мм. Ступени крепятся к косоурам саморезами, стыки обрабатывают клеем. Такой простой вариант подойдёт, если нет необходимости в кровати рядом.

Лестница с одним пролётом занимает слишком много места, но можно внести корректировку. Можно сделать изгиб под прямым углом (экономит пространство), поворот на определенный градус. Такой тип называется поворотным маршевым. Ещё есть четверть оборотные (угол 90 градусов), полу оборотные (угол 180 градусов).
Если расположить треугольные деревянные ступеньки в стороны, а узкие поочередно навстречу, то получится конструкция «утиный шаг»
. Другими словами, шаг под правую и левую ногу.
Винтовая лестница
Винтовая лестница на чердак подойдёт для небольшой комнаты. Может быть, она и не так удобна в использовании, как маршевая, но выглядит более интересно.
Тем более, не так часто она будет использоваться. Они различаются на:
- имеющие опоры в виде столба в центре;
- удалённые от стен, ступени закреплены на столбе;
- сделанные из монолитного стального столба, на него упираются ступени.
Винтовая лестница имеет намного меньшие габариты, чем пролётная, поэтому останется место и для кровати. Для несущего элемента можно взять трубу из металла, на которую сваркой будут крепиться ступени.При деревянном покрытии вертикальная стойка закрепляется с помощью анкеров. Для крепления ступеней на стойку, с узкой стороны каждой ступени делают отверстия как у стойки. Далее ступеньки с помощью втулок устанавливаются с учётом высоты вертикальной поверхности.
Использовать винтовые лестницы в качестве чердачных нецелесообразно в виду сложности конструкции. Однако в эстетическом плане выглядеть они будут эффектно.
В горизонтальные поверхности и втулки прокладываются шайбы, чтобы предохранить дерево от деформации. Втулки нужно замерять путём прибавления размера всех шайб. Все последующие за первой ступени укладываются как бы внахлёст и закрепляются.
Для расчётов размеров элементов, нужно заранее приготовить чертежи (как и для кровати). Изготовление винтовой лестницы своими руками не создаст затруднений, вопрос больше во времени.
Если размеры помещения не подходят для установки внутри дома и для кровати, то стационарный вариант устанавливается со стороны улицы. Наружная конструкция может быть больших размеров, а значит более удобная и безопасная. С другой стороны, наверх можно будет попасть только снаружи, что не очень комфортно зимой, например.

Особой популярностью пользуются приставные лестницы, как внутренние, так и наружные. Для такого типа сделать люк проще всего – не нужны дополнительные укрепления и петли. Но есть неудобства каждый раз убирать её, к тому же она занимает место при хранении. Это самый бюджетный вариант.
Лестница из профильной трубы
Такую конструкцию можно сделать при помощи сварки или сборным способом (как сборка кровати). Можно сделать стационарный и приставной тип, в виде прямой, переносной и винтовой конструкции.
Для изготовления используются швеллеры 16 см., пофили 4х4 см.
На балки крепятся несущие швеллеры сваркой. Из профиля делаются заготовки ступеней прямоугольной формы. Эти заготовки монтируются на направляющие и привариваются к ним.
На каркас укладываются ступеньки из массива и крепятся саморезами. А сбоку от направляющих швеллеров приваривают опоры, на которые устанавливают поручни. На ступени прикрепляют вертикальные стойки.
Можете посмотреть видео, где рассказывается о том, как правильно сделать складную лестницу на чердак своими руками.
Уже давно прошли времена, когда на чердак хозяевам домов приходилось подниматься по громоздкой приставной лестнице. Современные варианты для чердака хороши тем, что занимают минимум места как в сложенном, так и разложенном состоянии, и о наличии такой конструкции за красиво отделанным чердачными люком догадаться сложно даже внимательному человеку.
И однозначно радует глаз такая замечательная альтернатива винтовым конструкциям и стремянкам, как складная лестница чердачная – своими руками вы ее можете изготовить с правильными креплениями, с крепким пружинным механизмом и ничуть не хуже современных дорогих рыночных изделий. И даже лучше!
Преимущества и недостатки складных лестниц
Складная чердачная лестница должна легко прятаться и складываться под потолком, а поэтому ее принято делать покороче, с небольшим количеством секций. Ведь каждая лишняя ступенька в этом плане – это дополнительный вес и объем.
Такие лестницы хороши прежде всего тем, что позволяют значительно экономить пространство. При этом они совершенно не портят потолок жилого помещения. Ведь вход на чердак зачастую располагаются как раз в одной из обитаемых комнат дома. При этом такие лестницы достаточно функциональны, прочны и компактны. А пользоваться ими – проще простого: достаточно взять в руки специальный стержень с крючком на конце и зацепиться за кольцо.
Далее левой рукой легко достаете нижнюю ступеньку крайней секции, дотягиваетесь до пола и распрямляете все остальные составляющие лестницы. Точно также, проделав все в обратном порядке, вы легко складываете лестницу назад и убираете в потолок. Причем многие современные чердачные лестницы ко всему еще и раскладывается-складывается при помощи электропривода, что вообще невероятно удобно:
Еще одно достоинство – безопасность. Спускаться и подниматься по такой лестнице намного безопаснее, чем по приставной: она не сломается под ногами и ножки неожиданно не «уедут».
И, наконец, легкость. Самые легкие складные чердачные лестницы изготавливают из нержавеющей стали и алюминия, благодаря чему на чердачное перекрытие не оказываются серьезные нагрузки. Как вы понимаете, в виду особенностей конструкции такая лестница может быть сделана только из металла.
Почему лучше сделать лестницу самому?
Готовые промышленные лестницы, которые сегодня активно предлагает рынок, достаточно удобны, насколько можно судить из имеющихся отзывов на них. Но ставить их к чердакам, на которые часто приходится подниматься (например, там находится наша мастерская или мини-библиотека), мы не рекомендуем.
Почему? Потому что такие лестницы нередко на практике оказываются довольно хлипкими – это ведь не hand-made изготовление, а массовое производство, и делать их слишком прочными нет нужды ни одному производителю. На любой товар всегда рассчитывается максимально пограничная нагрузка, которая зачастую не учитывает достаточно много факторов и форс-мажоров. А этот самый случай, когда вы в спокойном состоянии и почти без дополнительно веса в руках осторожно спускаетесь или поднимаетесь. Поскользнетесь, упадете или достаточно полный родственник решит поднять на чердак тяжелую коробку – ждите неприятностей.
А еще такие лестницы нередко делают довольно крутыми, и спускаться по ним неудобно с чем-то в руках – одной вам нужно придерживаться. И спускаться только лишь спиной вперед. Поэтому вполне естественно, что многие домашние умельцы, которые сами построили свой дом или баню, не видят никакого смысла покупать хрупкие и дорогие складные лестницы на чердак. Зачем, если их можно сделать своими руками, причем отличного качества и куда большей надежности?
Причем в этом случае у вас куда больше выбор как в плане материала для изготовления лестницы, так и самих крепежных элементов. Главное – это правильно рассчитать размеры будущей конструкции, чтобы потом она легко и компактно складывалась над люком, ничто не задевало проем и не создавало проблемы.
Еще одна частая причина того, что многие берутся сооружать такие лестницы самостоятельно, заключается в том, что у большинства промышленных вариантов обычно очень тонкие и хрупкие ступеньки – буквально скрипят под ногами.
Итак, для того, чтобы сделать такую лестницу для кровли своими руками, вам понадобятся деревянные обрезки. Определитесь сначала с размерами будущего проема чердака, а вторым шагом изготовьте крышку и раму люка. К нему потом вы будете крепить лесенку. С каждой стороны при этом желательно оставить зазоры по 7-8 миллиметров. Технические параметры вот какие:
Итак, а теперь разберемся, каких видов бывают чердачные складные лестницы.
Конструкция #1 – раздвижные лестницы
Раздвижные лестницы состоят обычно из двух секций, одна из которых крепится прямо к крышке люка, а вторая раздвигается уже вертикально при помощи специальных направляющих. Когда вы складываете такую лестницу, одна секция при этом как бы наползает на другую, что достаточно удобно. Единственный минус – это громоздкость всей конструкции, которая требует широкого проема в чердачном перекрытии.
Конструкция #2 – раскладные с пружинным механизмом
Наиболее популярны сегодня – раскладные лестницы, иначе называемые секционные. Состоят такие из трех-четырех секций, которые легко выпрямляются в лестничный марш. Соединены они между собой специальным пружинным механизмом.
Раскладные конструкции считаются самыми сложными по своему устройству, так как у них много крепежных элементов и их правильно нужно присоединять к отверстию люка. Такие лестницы изготавливаются как из дерева, так и из металла.
Конструкция #3 – телескопические лестницы
Следующий вид – это телескопическая конструкция. Она замечательно себя показывает в тех случаях, когда чердак посещается довольно часто. Например, когда его специально утеплили, чтобы сделать жилым, хотя до полноценной мансарды еще не дошло. Т.е., мы говорим о техническом чердаке, как гардеробная или мастерская, а в этом случае жилой мансарды лучше поставить винтовую лестницу из дерева или металла и обязательно с перилами.
В телескопической конструкции блоки выдвигаются поочередно, при этом занимая как можно меньше пространства. И хороши такие лестницы особенно тем, что их можно выдвинуть практически на любую длину, что особо ценно для высоких потолков. Но подобные приспособления не пригодны для детей и старшего поколения в доме, которым достаточно трудно дотянуться до нижней секции и вообще справиться со всей конструкции.
Конструкция #4 – упрощенные складные лестницы
Эти виды складных лестниц не прячутся за люком на чердаке, но их легко убирают в угол или за интерьерную декорацию. Например, вот такой более редкий вид, который обычно изготавливается самостоятельно, тоже имеет право на жизнь:
А такие варианты складных лестниц довольно популярны за рубежом:
Но оба этих варианта обладают немалыми минусами, одни из которых способны привносить дискомфорт в интерьер жилого помещения, откуда идет выход на чердак, и через месяц-другой такие конструкции уже надоедают хозяевам своей бестолковостью до оскомины. А поэтому мы все-таки предлагаем вам разобраться подробнее с более практичными складными лестницами, которые легко складываются и прячутся за крышкой люкой.
Как определить параметры будущей лестницы?
Итак, дадим вам несколько советов по выбору чердачной лестницы.
- Совет №1.
Когда вы выбираете параметры для будущей лестницы, учитывайте механизм люка: при его открытии и закрытии он может слегка выдвигаться вперед и назад. - Совет №2.
Если потолок в комнате достаточно высокий, и превышает 3,5 метра, лучше ставить маршевую или приставную конструкцию, либо винтовую лестницу, которые будут более безопасными в данном случае. - Совет №3.
Учтите при изготовлении люка, что чем проем больше, тем больше тепла будет уходить на чердак. - Совет №4.
Еще один момент, на который вам стоит обратить внимание – это то, как будет открываться люк. Например, в готовых рыночных вариантах чаще всего он открываются медленно, благодаря специальным пружинам, и уж точно никому не сваливается на голову. Обязательно проработайте этот момент, тем более что специальные детали сегодня приобрести не сложно. - Совет №5.
Крутизна лестницы всегда определяется ей только ее углом. Чем больше выступ ступени, тем больше количество этих ступенек и тем меньше их высота. Но это вовсе не значит, что по такой лестнице вам удобно будет подниматься и спускаться. Поэтому самый удобной назовем высоту ступенек в 20 сантиметров, которая больше всего подходит под стандартную человеческую стопу.
Вот очень полезное видео, которое поможет вам избежать многих ошибок при монтаже такой лестницы:
Какие нужны крепежные элементы и материалы?
Что касается основного материала, самой доступной окажется деревянная лестница, но здесь важно особое внимание уделить прочности крепежа. Для изготовления такой лестницы вам нужны будут два длинных и два коротких бруска, а также кусок фанеры толщиной в 10 миллиметров.
Давайте рассмотрим этот момент подробнее. Все конструкции, которые помогают открывать лестницу с люком низ, отличаются только наличием дополнительных механизмов и амортизации. Амортизация, в свою очередь, облегчает закрывание и открывание лестницы. И все необходимые шарнирные элементы вы можете купить в любом магазине. Но вполне подойдут для устройства такой лестницы простые металлические полосы, просверленные в нескольких местах, а дороже всего вам обойдется для обустройства лестницы алюминиевая раздвижная система.
Нехитрое и практичное крепление:
Более сложная система:
А вот какие требования предъявляются к крепежу всей лестницы. Первое – это способность выдержать вес всей конструкции, а также вес человека, который будет по ней подниматься и спускаться. И не только статические нагрузки стоящего на ней человека с его определенным весом, но и динамические, которые бывают на много больше статических. Например, человек оступился и резко встал на ступеньку пониже, или пошатнулся и налег на лестницу всем своим весом, но резко и внезапно.
И, наконец, отметим возможность легко управлять конструкцией. Как вы понимаете, такая лестница весит прилично и важно, чтобы вы потом посмотри легко ее открывать. И при закрытии, вам придется поднимать весь вес сразу, а потому предусмотрите специальные пружины, которые облегчат вам весь процесс со временем – вы будете благодарны такому такой хитрости.
Инструкция по изготовлению складной лестницы
Итак, давайте разберемся шаг за шагом как изготовить складную лестницу для вашего чердака. Вам понадобятся такие инструменты: ножовка, лестница, шарниры, два бруса, болты, саморезы, шуруповерт и металлический крюк.
Сам процесс можно разделить на несколько шагов:
- Шаг 1. Закрепите верхний брус к проему при помощи петель, а нижний при помощи саморезов. Сам крепеж должен оказаться с обратной стороны лестницы.
- Шаг 2. А теперь все соединяем при помощи самых обычных болтов, диаметром 6 или 8 миллиметров. Меньший диаметр может не выдержать нагрузки, больший – просто не нужен. Помните, что саморезы здесь вообще нельзя использовать – они не выдержат нагрузку и на определенный день просто вырвут все крепление системы.
- Шаг 3. Теперь делим лестницу на три части, отмеряем 2/3 и производим распил, как раз между ступеньками.
- Шаг 4. Распиленные части снова соединяем, но уже петлями.
- Шаг 5. Бруски большей длины прибейте с обратной стороны так, чтобы они получились наискосок, для прочности.
- Шаг 6. Теперь сама лестница поставляется под люком и прижимается верхним бруском к стене. Закрепите этот брусок при помощи болтов.
Поверьте, на практике все окажется намного проще!
Практически всем застройщикам, занимающимся строительством и последующим обустройством своего загородного домика, требуется лестница на чердак.
Ее монтаж позволяет максимально удобно посещать чердачное пространство по мере необходимости, а если в вашем жилье присутствует мансардный этаж, то без нее вам точно не обойтись.
На сегодняшний день существует довольно большой выбор, например, одним из таких является раскладная лестница на чердак. Именно благодаря своей конструкции, она позволяет экономить жилые квадратные метры.
В целом, лестница на чердак любой сложности с легкостью возводится своими руками. Как? Об этом читайте ниже.
Предисловие
Использование чердака еще несколько десятков лет назад наблюдалось в исключительно складских целях. На них можно было найти весь собранный когда-то не нужный мусор. Но сегодня, когда застройщикам все чаще необходимы дополнительные жилые метры на чердачных пространствах устраиваются мансардные этажи ничем не уступающие основным.
Стоит понимать, что чердачное помещение присутствует практически в любых строениях. Например, в сарае, гараже, сеновале, поэтому лестницы должны присутствовать везде. Чтобы не тратить на их устройство и создание дополнительные денежные средства, лестница на чердак, даже раскладная, выполняется своими руками.
Складная лестница на чердак выполненная своими руками должна полностью соответствовать нормативным документам, которые включают в себя некоторые чертежи
. Но, несмотря на это, некоторые «профессионалы» считают это лишним и зачастую за их небрежным отношением к делу идут травмы разной сложности.
Непосредственно перед созданием лестницы стоит определиться с назначением чердачного помещения. Это поможет узнать ее оптимальное месторасположение. Стоит отметить, что складная лестница на чердак нуждается в монтаже специального люка, который будет открываться вверх.
Выдвижная лестница на чердак, как правило, состоит из нескольких отдельных секций. Самый распространенный способ их раскладки это ручной или автоматический. Обратите внимание, что применение данного вида обладает важными преимуществами – экономией пространства, финансов и простоте в использовании.
Какие конструкции чердачных лестниц существуют
Складные лестницы на чердак, как было уже сказано выше, должны обладать максимально компактными размерами. На сегодняшний день в строительстве известны как складные, так и раздвижные
, причем в качестве материала может использоваться как металл, так и дерево.
Складная лестница на чердак
Данный вид лестниц, как правило, имеют отдельные части и состоят из 3-4 составляющих, связанных между собой крепежными элементами. Изменять габариты покупной конструкции не получится, а вот если делать все своими руками, то это становится возможным. К этому типу так же относят и стандартные «гармошки». Они выглядят очень просто и имеют возможность закрываться у потолка. Именно благодаря такой конструкции эта лестница не занимает пространства.
Раздвижная лестница на чердак
По конструкции данный тип имеет два основных элемента, которые крепятся к люку. Для удобства к ней приделываются специальные раздвижные поручни. Дабы создать максимально качественную лестницу, стоит правильно рассчитать параметры проема, в который она будет монтироваться.
Выкидная лестница на чердак
Ножничная лестница часто обзывается в строительстве пантографной. Она имеет вид токосъемника трамвая. Ее конструктивные элементы крепятся между собой подобно ножницам, а складывание по типу гармошки. Внешний вид в сложенном состоянии походит на пружину. Такие лестницы могут устраиваться как с пневмоэлектрическим приводом или же без него и иметь чисто механический способ откидывания.
Предъявляемые требования к лестницам
Любая монтируемая лестница на чердак в частном доме должна соответствовать некоторым требованиям по технике безопасности и некоторым соображениям.
- Все элементы должны быть выполнены из качественных материалов и обладать достаточной прочностью, дабы обеспечить безопасный проход
- Функциональность лестницы должна соблюдаться при любых видах и размерах. Например, винтовая лестница не подходящий выбор для пожилых людей
- Проем должен обладать максимально возможными габаритами. Это позволит вмонтировать широкую, надежную лестницу. Но не перестарайтесь, ведь чем больше проем, тем больше тепла вы будете терять
- Мансардный этаж должен быть хорошо утеплен
- Обеспечьте все ступени противоскользящими подстилками или выемками, установите поручни и оградительные элементы
- Дерево, используемое в качестве материала для лестницы, должно быть обработано антипиренами
- Минимально допустимое значение по нагрузке должно составлять от 150 килограмм. В идеале это значение должно составлять как можно больше, ведь при отправке габаритных вещей в чердачное пространство, этого веса может не хватить, и лестница разрушится
ВАЖНО: Транспортируя мебель и другие элементы интерьера на мансардный этаж, учитывайте не только вес самого элемента, но и массу людей, несущих его.
Расположение лестницы в здании
Если вы думаете, что покупная конструкция будет лучше, а все лестницы на чердак в частном доме созданные самостоятельно обладают недостаточной эстетикой, тогда посмотрите фото в интернете и убедитесь в обратном. Поэтому если вы все же передумали и теперь у вас остро стоит вопрос «как сделать лестницу на чердак своими руками?», то у вас есть несколько путей, по которым стоит идти, и о них я расскажу ниже.
Еще на начальном этапе стоит продумать некоторые вопросы. Например, где лестница будет располагаться. Ведь, если она не так важна и мансарда используется в качестве складного помещения, то можно устроить ее и снаружи здания, а вот если у вас над головой жилые квадраты, тогда лучшим вариантом будет внутренний доступ.
Очень важно обеспечить максимальное удобство эксплуатации для всех жителей вашего дома. Лестницу не стоит устраивать на кухне или в жилой комнате, это не только не целесообразно, но и нарушит дизайн дома в целом.
Ее монтаж, как правило, осуществляется в прихожих, холле или другом удобном для вас месте.
Габариты лестницы ни в коем случае не должны мешать находиться людям в данном помещении.
Допускается, чтобы откидная лестница на чердак располагалась в гостиной, но при условии не частого использования мансардного этажа. Для этого стоит продумать и как-то огородить этот участок, а лучше сделать его закрытым.
Но если лестница выполняет исключительно дополнением к интерьеру, тогда лучше ее оставить открытой.
Подбор габаритов
Когда вы только приступаете к расчетам, то сперва продумайте и представьте вашу конструкцию в готовом виде. Например, при использовании складного типа следует взять во внимание параметры при эксплуатации, т.е. в разложенном состоянии.
Не лишним будет знать высоту от пола до потолка, ведь люк, в который будет монтироваться лестница на чердак своими руками должен подбираться по ее параметрам.
Все дополнительные расчеты также важны, как и основные. Полученные данные стоит зафиксировать на бумаге, ведь по ним в дальнейшем будет создан чертеж.
Без чертежа не только застройщик, но даже самый опытный профессионал может легко запутаться и создать далеко на самую качественную конструкцию. А это в строительстве не допустимо. Любая некачественно созданная конструкция в строительстве несет за собой не только неудобства при эксплуатации, но и возможное получение травм.
Обратите ваше внимание на размещение ступеней относительно пола. Они должны находиться строго параллельно. В противном случае по такой лестнице будет довольно трудно подниматься, и это занятие будет далеко не безопасным. Ступени так же не следует располагать далеко друг от друга. Это приведет опять же к некоторым трудностям и опасностям.
Все размеры лестницы, как правило, берутся из нормативных документов, где описаны оптимальные параметры, при которых взрослый человек может без проблем подняться по ней.
Считается, что эксплуатация широкой лестницы более удобна, нежели узенькая.
Тут конечно каждому свое, но продумайте и это на этапе проектировки. Кстати, не стоит делать очень уж узкий подъем. За минимальное значение можно смело брать значение в 0.8 метра. Если проход устроен в лестничной клетке, то минимум будет несколько больше и составляет 1.1 метра.
Что касается дверей и люков, то они должны быть вмонтированы так, дабы их открывание происходило от лестничного пролета.
Одно из частых неудобств является сильно близкое размещение ступеней относительно друг друга. Чтобы этого избежать стоит помнить лишь одно число – 10. Именно столько миллиметров должно быть между ступенями в сложенной лестнице. Стоит понимать, что чем круче будет подъем, тем уже создаются ступени.
Если вы создадите лестницу, которая будет перпендикулярна полу, то по ней будет просто невозможно подняться без задействования рук, поэтому она должна обладать некоторым уклоном.
Например, оптимальный градус, при котором раскладная лестница на чердак, созданная своими руками будет удобна в эксплуатации, составляет 20-25 градусов.
Именно поэтому так важны чертежи. Они позволяют увидеть конечную картину на бумаге.
Материал для строительства чердачных лестниц
Все знающие люди предпочитают работать с неокрашенными деревянными элементами. Это позволяет в будущем задать необходимый тон, дабы вписать конструкцию в общую гамму. Самыми наверно часто задаваемыми мне вопросами являются: «как сделать лестницу на чердак из дерева» и какую породу при этом применять.
Практически все знающие люди советуют использовать для этого сосну.
Поэтому если на вашей лестнице будут присутствовать какие-нибудь дополнительные элементы украшения, то этот вариант вам подходит. Помимо этого, деревянная конструкция легко собирается своими руками, и при этом получаются очень красивые лестницы.
Если вы не знаете, от какой идеи оттолкнуться, то вдохновитесь просмотром фото в интернете или на нашем сайте в статье. Так же там можно и взять за идею некоторые чертежи.
Если вы все-таки хотите более уверенную конструкцию, либо по каким-то причинам не смогли применить древесину в качестве материала, то металл – ваш выбор. Здесь все уже чуть сложнее и складные типы лестниц своими руками, без определенных навыков и затрат создать невозможно.
Помните, что в затруднительных ситуациях всегда можно обратиться к специалистам. Они, как правило, помогают на всем протяжении процесса монтажа и создания задуманной конструкции. Вот я, например, могу посоветовать применять исключительно оцинкованные виды металла.
Это позволит обезопасить всю конструкцию от коррозии, придаст необходимую прочность. А сам материал позволяет создать еще более компактные размеры по сравнению с древесиной, и складывающаяся лестница выглядит как игрушечная.
ВАЖНО: Используйте дополнительные пластиковые элементы, если ваша конструкция состоит из металла. Это предотвратит трение, что увеличит эксплуатационный период, и обезопасят вас. Например, пластмассовые сменяемые вставки уберут возможность бокового скольжения.
Внешний вид и формы
Использование различных материалов и общая задумка позволяет обрести лестнице эргономичную форму, быть маленькой и компактной, либо напротив украшать своей массивностью все жилье. Конечно, на малых квадратах особо не разгуляешься, и застройщики зачастую выбирают первый вариант.
А если ваше помещение довольно крупное, тогда можете смело ставить обыкновенную.
Если ваше жилье больше походит на дворец, и свободного пространства в нем хоть отбавляй, в этом случае стоит установить лестницу не с одним маршем, а с несколькими.
Конструкция с одним маршем является самым простым и наиболее доступным вариантом. Их, как правило, используют в одноэтажных домах, высота этажа у которых не превышает трех метров.
Не стоит думать, что такой вариант является эталоном, ведь при помощи вашей фантазии можно воссоздать что угодно.
Например, при использовании одного марша, можно выбрать не стандартный вид, а дугообразный. Ступени смонтировать таким образом, чтобы они походили на расходящиеся лучи.
При использовании такого элемента ваш подъем на высоту не будет являться таким уже скучным занятием в глазах ваших гостей.
Творчество предполагает работу своими руками, и при этом создаются уникальные проекты, которые украшают не только здание жильца, но и даже интернет посредством сделанных фото.
Этап подготовки
После окончания работы по зарисовке отдельных элементов в чертеже и определению замеров составляется смета. Она определяет потребность в материалах и времени, дабы их использование осуществлялось максимально продуктивно. Для того, чтобы выдвижная конструкция была создана своими руками, вам потребуются некоторые инструменты, а именно:
- Набор крестовых отверток
- Шурупы и другие крепежные элементы
- Ключи разных номеров
- Ножовка (если в качестве основного материала используется древесина)
- Рулетка
- Различного рода шарниры
- Монтажная пена
- Угломер
Обыкновенный лестничный пролет собирается, как правило, из двух составляющих – ступеней и основания. В качестве последнего подойдут балки, при помощи которых и будет держаться вся конструкция.
Максимально возможная нагрузка на основание будет исходить из его прочности. Поэтому частым выбором являются деревянные брусья.
Первый способ создания
Складная чердачная лестница является самой простой и наиболее распространенной. На ее сбор потребуется всего несколько часов. Готовая конструкция в итоге получается где-то на 30 сантиметров больше расстояния от пола до потолка. Это делается для придания самому элементу более высокой устойчивости.
- Для создания лестничных элементов вам потребуется всего несколько брусков. Два из них должны иметь равную длину пролета, а других два должны быть чуть длиннее, где-то на 20 сантиметров. Кстати, если у вас есть доски толщина которых составляет более двух сантиметров они также сгодятся. При этом вы сэкономите на материале.
- Прикрепите благодаря карточным петлям один короткий брус вверху за окончание лестницы с ее внутренней части. Что касается второго, то она должен закрепиться у нижнего конца. Кстати, для придания большей уверенности можно применить в некоторых местах несколько саморезов.
- Узнайте с помощью строительного инструмента отрезок от верхнего края и сделайте отметку, когда значение будет достигать 2/3 всей длины, а затем распилите брус промеж двух ступеней.
- После распила установите на нем карточные петли. Кстати, они устраиваются с той стороны, где находится верхний брусок. Это не маловажно, ведь при другом местонахождении конструкция не будет складываться.
- Затем два оставшихся длинных бруска необходимо закрепить к двум половинкам лестничной конструкции наискосок с обратной стороны. Данная работа придаст всему элементу необходимую жесткость.
- Теперь стоит отнести ее на необходимое место, которое находится под люком и закрепить верхний брусок анкерными болтами к стене. Вот и все. Конечно, можно принять еще дополнительные меры, чтобы лестница держалась вверху. Для этого производится установка обыкновенного крючка. Петелька от него, как правило, находится в косоуре самой лестницы сразу за распилом, а сам крючок в стене напротив нее.
Как видите, этот способ довольно легкий, но существует еще и второй.
Второй способ создания
Понятное дело, что второй способ будет обладать несколькими трудностями, но и результат получит более эстетически приятный вид. Поэтому если для вас это важно, то этот вариант для вас. Отличаться он будет тем, что складывание происходит не поперек, а вдоль. Стоит понимать, что для достижения такой цели одну из сторон лестницы делают неподвижной, а вторую наоборот нигде не закрепляют.
- В качестве строительных материалов используются опять же две доски. Их параметры должны быть 20х3см, где первое значение ширина, а второе толщина. Здесь используются именно эти параметры, потому что длина подбирается сугубо индивидуально и напрямую зависит от градуса уклона. В качестве ступеней используются так же доски, но параметры чуть поскромнее. Ширина 12 см, толщина 3см. Их глубина выбирается индивидуально, но, как правило, всех застройщиков, с которыми я работал, устраивают размеры до 50 сантиметров.
- Карточные петли, как и в прошлом способе, здесь сыграют важную роль. Поэтому подберите качественные элементы. Их расход будет зависеть от количества ступеней в марше, ведь на одну из них уйдет две штуки. Для нахождения необходимого уклона стоит приложить доску к стене и прочертить линию. Кстати, находясь на этом этапе, помните, что верхний край у косоура ни в коем случае на должен доходить до потолка примерно на полметра.
- Размещение ступеней производится заранее. Для этой работы вам потребуется строительная рулетка и уровень. Начинаться работа должна с нижней ступеньки. Для этого найдите на доске точку, в которой доска и пол будет параллельны друг другу, и прочертите линию, она будет определять ширину будущих ступеней.
- Крепление ступеней производится благодаря карточным петелям и делается это так, чтобы они ехали вместе с подвижным косоуром, а на неподвижном опускались. Когда строительство закончено, то можно приступить к монтажу. Для этого созданную конструкцию помещают под люком и закрепляют.
Как можно убедиться, второй вариант требует существенно больше физических и умственных затрат. Поэтому если эстетический вид вам не важен, и вы очень редко пользуетесь лестницей для чердака. Выбирайте первый способ
. Он не только экономит силы и время, но и является самым дешевым из возможных.
Кстати, когда я завожу с застройщиками разговоры про лестницы, то они очень частой отвечают, что нет надежнее покупных лестниц, но после нескольких приведенных мной аргументов они задумываются, а через некоторое время все-таки выбирают мою точку зрения.
Ведь нет лучше вещи, созданной своими руками, не так ли?
В большинстве случаев чердак используется достаточно редко. По этой причине установка массивной стационарной лестницы – далеко не идеальный вариант. Более практичное решение – это складная лестница на чердак, небольшие размеры которой позволяют максимально сэкономить свободное пространство.
В сравнении со стационарными моделями, складные чердачные лестницы обладают следующими преимуществами:
Среди недостатков стоит выделить следующие моменты:
- Сложность в изготовлении. Некоторые модели довольно трудно сделать своими руками. Для этого потребуются сложные и точные расчёты, инструменты, а также соответствующие навыки.
- Отсутствие достаточного комфорта при использовании. Подниматься или спускаться по лестнице с большим углом наклона не слишком удобно, да и поднимать массивные предметы по таким конструкциям – не самый разумный вариант.
- Невысокая грузоподъёмность. Большинство моделей не выдерживают вес больше 150 кг.
Типы раскладных лестниц
Все складные чердачные и мансардные конструкции можно разделить на несколько типов:
- ножничные;
- телескопические;
- секционные;
- откидные.
Ножничные модели
Раскладные изделия ножничного типа также именуют «лестницей-гармошкой».Такое название отлично описывает её суть: в сложенном состоянии изделие напоминает небольшой блок, а при раскладывании – расправляется по типу мехов у гармони. Чтобы расправить такую лестницу, следует потянуть за нижнюю ступень.
Ножничная модель состоит из множества небольших секций, скреплённых между собой. Поэтому размеры конструкции в сложенном состоянии – минимальны. Пожалуй, единственный недостаток данной разновидности – не слишком надёжные крепления между блоков. Поэтому с ножничной лестницей следует обращаться аккуратно и не забывать смазывать механизмы между сегментами. Принцип работы ножничной лестницы с электроприводом
Телескопические разновидности
Характерная черта данной модели – выдвижной тип секций, по типу матрёшки. То есть, самые маленькие трубки закрепляются в трубах большего диаметра, которые вставляются в ещё более крупные боковые трубы и т.д. Удерживают же секции в сложенном состоянии специальные фиксаторы, которые расположены с внешней стороны металлических балок. Чтобы сложить конструкцию, достаточно ослабить «хватку» фиксатора.
Однако, несмотря на достаточно простое устройство, такие модели встречаются редко. Причина низкой популярности – проблемы с фиксаторами.
После недолгого использования, металлические фиксаторы начинает «заклинивать», что препятствует расправлению конструкции.
Секционные лестницы
Секционная раскладная модель напоминает ножничный тип, только здесь сегменты не прижимаются, а складываются друг на друга. Соответственно, при раскладывании, части расправляются и фиксируются в определённом положении.
Преимущество такой лестницы – это низкая стоимость. В качестве недостатков стоит упомянуть довольно большие размеры и массивность конструкции.
Откидные изделия
Самый необычный вариант – это откидная лестница. Данная модель имеет пару интересных особенностей:
Так как конструкция схожа с прямыми маршевыми разновидностями, угол наклона откидной лестницы около 45 градусов, что способствует максимально удобному использованию.
В качестве отрицательных моментов стоит выделить:
- высокие требования к свободному пространству;
- «специфичный» дизайн (в сложенном состоянии откидная лестница выглядит не слишком приятно, поскольку она не прячется и всегда находится на виду);
- массивность конструкции.
Используемый материал
Материал играет важную роль для раскладных лестниц. С одной стороны, он должен быть прочным, с другой – иметь минимальную стоимость. Этим требованиям в полной мере отвечают лишь 2 материала – дерево и металл.
Деревянные изделия в основном изготавливаются из хвойных пород дерева, например, сосны. Такие модели обладают хорошей надёжностью и небольшой ценой. Кроме того, для создания деревянных лестниц не требуется специфических навыков или сложного оборудования. В качестве недостатков же стоит выделить следующие моменты:
- массивность изделия;
- довольно низкая грузоподъёмность (максимальный вес – 100 кг);
- небольшой срок службы.
Гораздо чаще встречаются металлические лестницы из алюминия и стали, которые ничем не уступают деревянным аналогам.
В частности, к плюсам таких изделий относится:
- приемлемая стоимость;
- хорошая грузоподъёмность (до 200 кг, в зависимости от типа конструкции);
- высокая устойчивость к ржавчине и механическим воздействиям;
- долговечность;
- малый вес (у алюминиевых);
- высокая прочность.
Единственный недостаток металлических разновидностей – это сложность самостоятельного изготовления. Для работы потребуются знания по сварке и соответствующее оборудование.
Важные моменты
Любая лестница, вне зависимости от её типа, должна быть максимально удобной для использования. Поэтому при выборе или проектировании изделия, рекомендуется учитывать следующие параметры:
- оптимальная ширина пролёта – 60-70 см (без учёта несущих балок);
- рекомендуемый угол наклона конструкции – 45-60 градусов, максимальный – 75 градусов;
- среднее количество ступеней – 15 шт.;
- толщина ступенек – 2 см (± 2 мм);
- «шаг» ступеней – 17-22 см (ступеньки должны располагаться на равноудалённом друг от друга расстоянии на протяжении всего лестничного пролёта);
- при частом использовании лестницы, ширину проступи (горизонтальной части ступеньки), следует делать не менее 20 см;
Также следует обратить внимание на другие важные моменты:
- мансардные лестницы не должны быть выше 3 м, иначе существенно возрастает риск травматизма;
- на металлические ступени рекомендуется поставить противоскользящие накладки;
- деревянные модели не стоит устанавливать в слишком сухих или влажных помещениях (снижается срок службы);
- крепления и механизмы должны надёжно соединять секции изделия;
- рекомендуется время от времени смазывать механизмы конструкции.
Изготовление складной лестницы своими руками
Процесс создания лестничной конструкции не отличается особой сложностью. Но для большего удобства, его следует разделить на 2 этапа:
- подготовка к работе;
- изготовление лестницы.
Подготовительный этап
Изготовление лестницы начинается с проектирования – проведения замеров и создания чертежа. Схему рекомендуется выполнять в трёх проекциях: вид спереди, сверху и сбоку.
Важно!
При этом конструкцию на чертеже следует отобразить в «расправленном» состоянии.
Также чертёж должен соответствовать следующим требованиям:
- на проекции сверху следует начертить план помещения, на котором отметить месторасположение лестницы;
- для большей наглядности, размеры элементов рекомендуется указывать в отдельных сносках;
- металлические детали отображают диагональными линиями, деревянные – завитушками (имитация деревянных «колец»).
После подготовки чертежа, закупаются необходимые материалы. Когда всё готово, стоит подготовить инструментарий. Так, для работы потребуется:
- электрическая или ручная пила;
- дрель;
- свёрла различного диаметра;
- саморезы по дереву.
Для изготовления металлической лестницы необходимы следующие инструменты:
- сварочный аппарат;
- ножовка по металлу;
- дрель со свёрлами по металлу;
- крепёжные элементы.
Чтобы конструкция могла складываться, необходимо приобрести металлические карточные петли.
Выполнение работ
Сам же процесс изготовления и монтажа довольно прост. К примеру, двухсекционная складная чердачная лестница изготавливается следующим образом:
- несущие балки разделяются на 2 части (и длины) и соединяются с помощью металлических петель;
- в каждой несущей балке делаются пазы для ступеней;
- в сделанные отверстия вставляются ступеньки;
- снизу несущих балок надеваются резиновые накладки;
- в стене под проёмом на чердак крепится деревянный брусок;
- верхняя часть () конструкции с помощью петель соединяется с бруском;
- нижняя часть () прижимается к стене и крепится на крючке.
Делаем складную лестницу
Порядок изготовления раскладной лестницы откидного типа совершенно иной:
- первая тетива жёстко закрепляется на стене под необходимым углом;
- на ней делается разметка первой ступени (шириной 12 см);
- проводятся 2 линии, параллельные граням несущей балки;
- отмечается линия, перпендикулярная концу первого отрезка;
- от перпендикулярной отметки делается отступ вправо на 1 см и проводится вертикальная линия;
- сделанная разметка отмечает начало второй ступеньки (таким же образом отмечаются следующие ступени);
- разметка переносится на вторую тетиву;
- с помощью петель ступени крепятся на несущие балки (на стационарной тетиве они должны подниматься, на подвижной – опускаться вниз);
- к подвижной тетиве крепится петля и в соответствующем месте на стене для неё устанавливается крючок.
Пример откидной лестницы на чердак
Складные лестницы для чердака обретают всё большую популярность в странах СНГ. Этому способствует низкая стоимость, простота монтажа и, главное, компактность изделий. Однако стоит учитывать, что в сравнении с обычными конструкциями, пользоваться раскладными лестницами менее удобно.
В настоящее время каждый застройщик старается максимально использовать всю доступную площадь своего дома. Однако забраться на чердак без лестницы практически невозможно. Чердачная лестница своими руками – оптимальный вариант для безопасного подъема на чердак.
Лестница для чердака может располагаться как внутри помещения, так и снаружи. Конечно, когда лестница расположена внутри, ей намного удобнее пользоваться – не нужно выходить на мороз зимой или мокнуть под дождем осенью.
Различают несколько видов чердачных лестниц, а именно:
- складные;
- стационарные;
- переносные.
Стационарные лестницы с перилами и широкими маршами являются самыми удобными, однако их применение ограничивается из-за невозможности эксплуатации на малых площадях.
Переносные лестницы используются в основном как временный вариант и служат для доступа в помещения, которые эксплуатируются редко. Основной минус такой лестницы – низкая безопасность.
Складные чердачные лестницы являются средним звеном между стационарными и переносными. По удобству они почти не уступают стационарным, но занимают значительно меньше места. По безопасности они значительно превосходят переносные конструкции.
Выбор в пользу того или иного вида зависит от нескольких факторов:
- площади помещения, где будет расположена лестница;
- назначения чердачного помещения;
- возможного угла наклона.
Стандартные размеры
Существует целый ряд нормативов, которым должна соответствовать чердачная лестница:
- оптимальная ширина марша должна быть порядка 65-110 см;
- высота не должна превышать 3,5 м. Связано это не только с тем, что жесткость конструкции значительно уменьшается, но и с тем, что падение с такой высоты может повлечь за собой серьезные травмы;
- число ступенек обычно не должно превышать 15;
- между ступенями принято делать расстояние порядка 19 см;
- толщина ступеней обычно составляет 18-22 мм;
- стандартный угол наклона составляет 60-75 градусов. Маленький угол требует много пространства, а большой – опасен при эксплуатации;
- складная лестница должна выдерживать 150 кг нагрузки;
- ступени следует устанавливать параллельно полу и они должны быть не скользкими.
Процесс изготовления
Изготовить чердачные лестницы своими руками совсем не так сложно, как может показаться на первый взгляд. Конечно такой красоты, какой обладают промышленные модели вы не добьетесь, однако попробовать стоит. Чертежи чердачных лестниц своими руками которые можно сделать, можно просто найти на нашем сайте.
Люк – основа любой чердачной лестницы
Сделать люк можно своими руками, применяя следующие материалы:
- бруски 50×50 мм;
- фанера.
Порядок работ следующий:
- определяемся с местом и размерами будущего люка;
Обратите внимание!
К габаритным размерам люка следует добавить по 7-8 мм, чтобы крышка закрывалась легко и без скрипа.
- разрезаем брус на 4 части необходимых размеров;
- выпиливаем на концах брусьев пазы;
- смазываем пазы клеем и соединяем брусья, усиливаем место соединения саморезами;
- чтобы диагональ не ушла, прикручиваем косынки;
- закрепляем фанеру;
- примеряем люк в проем;
- чтобы хорошо закрыть люк, врежем в крышку защелку;
- для открытия люка будем использовать ручку, которая вставляется в отверстие и нажимает на защелку.
Необходимые инструменты и материалы
Для самостоятельного изготовления лестницы на чердак своими руками обязательно наличие всего списка:
- ножовка по дереву;
- пистолет с монтажной пеной;
- набор отверток или шуруповерт с комплектом бит;
- разнообразные саморезы, анкера;
- рулетка;
- карточные петли;
- бруски толщиной 20-30 мм.
Это только основные инструменты, которые понадобятся для самостоятельного изготовления, если уже есть готовая приставная деревянная лестница длиной на 30 см больше, чем необходимо до уровня проема.
Простая конструкция
В качестве примера рассмотрим как сделать чердачную лестницу своими руками.
Инструкция позволит понять принцип работ:
- на готовую цельную лестницу из дерева закрепляем 2 бруска по ширине, на нижнюю и верхнюю части. Причем верхний брусок крепим на петли, а нижний крепим жестко;
- распиливаем лестницу на 2 части. отмерив 2/3 длины. Верхняя часть будет более длинная, нижняя короткая;
- для придания жесткости по диагонали закрепляем 2 рейки;
- соединяем обе части лестницы петлями;
- с помощью анкеров закрепляем верхний брусок под люком;
- чтобы нижняя часть не раскрывалась, ее закрепляют крючком. Петля располагается на косоуре над местом распила.
- готовая лестница для чердака прижимается к поверхности стены и фиксируется.
Основным недостатком, которым обладает данная конструкция чердачной лестницы, является ее внешний вид и то, что видно все крепежи и бруски. Однако, даже такая лестница на чердак своими руками созданная значительно упростит трудности с подъемом и спуском с чердачного помещения
.
Складная конструкция на тетивах
Для изготовления конструкции следует выполнить несколько этапов:
- поделим полную высоту на 3 части. Первая часть будет соответствовать размерам люка, вторая немного меньше, а третья будет покрывать оставшееся расстояние до пола;
- отмеряем угол люка с помощью малки;
- переносим угол на доски, тем самым отмечаем ступени;
- на месте будущего шарнира между секциями высверливаем отверстия;
- шлифуем все грани;
- распиливаем доски в тех местах, где будут ставиться шарниры;
- нарезаем и шлифуем ступени;
- под ступени делаем небольшие выемки в тетивах;
- вставляем ступени в выемки, сажая их на клей и скрепляя саморезами;
- соединяем секции специальными петлями. Для этого обязательно разместить секции на ровной поверхности;
Обратите внимание!
Выполнять работу на высоте рекомендуется с напарником.
Это не только поможет избежать травм, но и значительно ускорит весь процесс!
Цена лестницы, изготовленной своими руками значительно ниже цены заводской конструкции, поэтому если финансовый вопрос стоит остро – обязательно попробуйте сделать все сами.
Вывод
Приобретение готовой лестницы на чердак является самым простым вариантом, однако при наличии необходимых инструментов и начальных навыков совсем не трудно сделать ее самому. В представленном видео в этой статье вы найдете дополнительную информацию по данной теме.
Складная чердачная лестница – это удобный вариант, не занимающий много места.
Такую лестницу не сложно сделать собственными силами.
Для этого не обязательно обладать особыми талантами, не нужно быть профессиональным столяром, а нужно иметь немного материалов, свободного времени и, конечно же, толику терпения.
Какая лестница лучше?
Чердак может быть местом, заваленным старым хламом, и стать прекрасной декорацией на Хеллоуин.
Можно оборудовать на чердаке творческую мастерскую или кабинет для работы, можно оборудовать там уютную детскую комнату.
Но каким бы разным целям не служило чердачное помещение, как бы оно не было оборудовано, – все чердаки в мире объединяет один факт: туда невозможно попасть без лестницы. Конечно, если владелец чердака – не супергерой.
Так какую же лестницу выбрать для подъема на чердак? Можно ли изготовить ее своими руками? На второй вопрос ответ проще: человеческими руками можно сделать все! С первым вопросом придется разбираться более подробно.
Тип лестницы следует выбирать в зависимости от предназначения чердака и наличия свободного места внизу.
Все виды лестниц можно условно разделить на три типа:
- приставные;
- постоянные;
- складные конструкции.
Самый простой вариант – это, конечно же, приставная лестница. К этому типу относятся и обычные деревянные драбины, и металлические стремянки.
Плюсы приставной лестницы:
- легкая;
- не занимает места;
- можно использовать одну лестницу для подъема в разных местах.
В хозяйстве такой вариант, несомненно, незаменим. С помощью стремянки можно менять лампочки, стричь деревья на участке, починить крышу и т. п.
Однако использовать ее для подъема на чердак удобно только в том случае, если чердаком планируется пользоваться время от времени.
Это идеальный вариант, если на чердаке будут храниться старые вещи, т. е. туда будут подниматься пару раз в год.
Если чердак планируется переоборудовать в полезное, функциональное помещение, которое будет часто использоваться, то и способ подъема туда должен быть соответствующим.
Стационарная лестница – это идеальный вариант.
У этого варианта много достоинств:
- устойчивая;
- надежная;
- по ней легко подняться как ребенку, так и пожилому человеку;
- ее несложно оформить в стиле помещения;
- может быть дополнена периллами;
- пространство под маршами можно функционально использовать, например, устроить там кладовку.
Это единственный приемлемый вариант, если чердак предполагается переоборудовать в детскую комнату. Очень эффектно смотрятся и металлические винтовые лестницы с коваными периллами.
Но все плюсы этой лестницы перечеркивает один жирный минус – она занимает много места. Что делать тем, у кого место не позволяет сделать стационарную лестницу?
Неужели придется отказаться от идеи переоборудовать чердачное помещение?
Для тех, кто хотят надежную и безопасную лестницу, но не имеют свободного пространства для ее устройства, существует третий вариант – складная конструкция.
Этот вариант немного уступает в безопасности стационарному, но зато после использования лестница будет убираться и не занимать пространство. К тому же ее просто сделать своими руками, учитывая все индивидуальные нюансы.
Складные конструкции
Вариантов складных лестниц множество.
К этому типу относятся следующие конструкции:
- подвесная;
- убирающаяся наверх.
Оба варианта просты для изготовления своими руками. Разница их в том, что лестница может складываться и убираться в чердачный люк или складываться и подвешиваться на стену.
Подвесной вариант подойдет только в том случае, если люк находится прямо у стены. К тому же висящая на стене под потолком, пусть и сложенная деревянная конструкция, впишется не в любой интерьер.
Поэтому самым оптимальным вариантом является лестница, которая будет убираться на чердак. В зависимости от размера люка, она может состоять из двух, трех или даже четырех секций.
Произвести замеры и построить чертежи – это первый шаг при изготовлении лестницы собственными руками.
Есть ряд правил, которые по возможности нужно соблюдать, чтобы конструкция получилась удобной и безопасной:
- ширина лестницы должна быть не уже 60 см;
- в разложенном состоянии угол наклона должен быть не менее 30°;
- глубина ступени должна быть не меньше 10 см, чтобы поднимающийся человек чувствовал себя уверенно;
- расстояние между ступеньками не должно превышать 30 см (лучше меньше);
- если чердачный люк находится выше чем 2,2 метра, то его необходимо оснастить поводком для удобного открытия;
- при высоте помещения 4 м и больше лучше выбрать стационарный вариант, так как под весом человека конструкция может «играть», что значительно снизит ее безопасность.
В первую очередь нужно определиться с размером и местоположением будущего люка. Чем длиннее он будет, тем на меньшее количество секций потребуется делить лестницу.
Например, при длине дверцы 90 см и длине лестницы 240 см получается три секции: 240:(90-10)=3.
Лучше, если люк будет выполнен из массива дерева. В этом случае он окажется тяжелее, чем из фанеры или других материалов, но крепления в дереве будут «сидеть» намного лучше.
На потолке люк требуется закрепить при помощи надежных дверных навесов фиксированного открытия.
Такие навесы фиксируются своими руками в нужном для открытия положении при помощи специальных шпилек.
При дальнейшем открытии люка он будет открываться только на столько, на сколько позволят установленные шпильки.
Не стоит использовать какие-нибудь другие крепления (например, форточные навесы).
Необходимо помнить, что на навесы ляжет вес самого люка, лестницы и человека, поднимающегося по ней. Поэтому стоит обеспечить надлежащую надежность конструкции.
Кроме того, нужно установить замок и, в случае недосягаемой с человеческого роста высоты расположения люка, поводок.
Замок со стороны потолка может быть использован как для межкомнатной двери, оснащенный автоматической защелкой. С чердачной стороны подойдет задвижка типа «шпингалет».
В качестве поводка может быть использован тросик либо рычаг. Тросик, проходя через роликовое устройство с чердачной стороны дверцы, приводит в действие механизм замка.
Однако свисающий с потолка тросик впишется далеко не в каждый интерьер, поэтому более удачным решением является рычаг.
Рычаг представляет собой пластиковый или металлический стержень (для удобства хранения он может быть телескопическим) с углублением нужной формы на верхнем конце.
Этот метод подходит при использовании в крышке люка врезного замка своими руками, с которого необходимо снять вертушку.
Вертушкой называют пластиковую насадку на несъемный ключ. Она используется для удобства открывания замка изнутри.
Под вертушкой окажется металлический стержень квадратной или полукруглой формы, на который должен надеваться рычаг.
Отверстие рычага должно максимально плотно прилегать к стержню замка, в этом случае замок будет открываться легко.
Если есть материальная возможность, то можно установить на люк автоматический замок с дистанционным пультом.
Изготовление лестницы
После того как чердачная дверца изготовлена, можно приступать к изготовлению лестницы своими руками.
Для этого потребуются следующие материалы и инструменты:
- два бруса, длиной равные длине будущей лестницы, шириной не менее 12 см и толщиной от 3 см;
- доска для ступеней шириной не менее 10 см, толщиной – 2 см. Общая длина доски равна длине ступени, умноженной на их количество;
- уголки или болты для крепления ступеней (по 4 на каждую ступень);
- крепления для фиксации верхней секции лестницы на крышке люка;
- шарниры, по два на количество соединений секций (4 секции – это 3 соединения);
- дрель;
- шуруповерт;
- ножовка по дереву;
- длинная металлическая линейка или рулетка;
- транспортир или малка.
После того как к работе все подготовлено, первостепенной задачей является разметка и закрепление ступеней.
Следует помнить, что лестница будет стоять под наклоном, а ступени должны быть параллельны полу. Их необходимо намечать под углом в 30°.
После того как первая ступень закреплена, следует установить лестницу и убедиться в том, что ступени расположены правильно.
Когда лестница будет готова, ее следует распилить на необходимое количество секций. Распилы должны располагаться на одинаковом расстоянии от ступеней. Секции скрепляются между собой при помощи металлических шарниров или петель.
Когда лестница собрана, ее верхнюю часть необходимо наглухо закрепить на чердачной дверце, отступив 5 см от верхнего края.
После этого следует проверить грузоподъемность лестницы и ее соединений. Нельзя проверять лестницу собственным весом, забравшись на нее!
Для смягчения резкости открытия можно использовать резиновые ремни или металлические пружины, закрепив один их конец в нижней части крышки люка, а другие – на полу чердака.
Лестница изготовлена своими руками, и на ее изготовление затрачено не так уж много сил и времени.
Но для большей безопасности и надежности следует сделать еще кое-что:
- смазать все подвижные металлические части (петли, шарниры);
- отшлифовать наждачной шкуркой или шлифмашинкой все деревянные поверхности;
- при желании конструкцию можно покрасить акриловой краской или покрыть лаком.
В таком случае эта конструкция прослужит долго, не оставит заноз после поднятия по ней, не порвет одежду и не будет скрипеть.
Такое устройство, изготовленное своими руками, станет настоящей гордостью хозяина. Удачного ремонта!
В большинстве случаев чердак применяется для хранения неиспользуемых и старых вещей. В прошлые времена мало кто мог осмелиться использовать его для жилого пространства. Сегодня же в погоне за каждым квадратным метром многие переустраивают чердачное помещение, делая жилую комнату. Соответственно, чердачная лестница в этом случае играет ключевую роль. В этой статье мы с разных сторон рассмотрим с вами изготовление этого предмета интерьера, и узнаем, какие существуют виды лестниц на чердак.
Устройства и типы конструкций
Лестницы устанавливаются как снаружи, так и внутри дома. Последний вариант обладает куда большими плюсами. Чтобы попасть в чердачное помещение, не нужно идти через двор. Следует выделить несколько видов конструкций лестниц:
Монолитные.
- Маршевые.
Складные чердачные лестницы.
- Откидные.
- Ножничные.
- Телескопические.
- Раскладные или рычажные.
Переносные.
- Приставные.
- Стремянки.
Что касается последнего варианта, то такие лестницы зачастую используются, как временные сооружения. Например, они применимы в тех случаях, когда чердаком приходится пользоваться не так часто. Переносные лестницы не так надежны.
Если говорить о надежности, то здесь, безусловно, следует отметить монолитные лестницы, которые обладают широким маршем и надежными перилами. Но если у вас маленькое помещение, то вместить ее будет практически нереально. В подобных обстоятельствах идеальный вариант лестницы – выдвижная. Она отличается простотой эксплуатации, безопасностью и эргономичностью.
Лестница-трансформер складная
Преимущественно, лестница-трансформер производится из металла или дерева. Если эти два материала скомбинировать, то результат будет очень даже достойным. Например, марш лестницы делается из дерева, а важные узлы из металла: крепление, механизм и пружины. Дерево будет облегчать все сооружение, а металл добавлять прочность. Для изготовления деревянных элементов лучше применять твердые породы древесины.
В некоторых ситуациях можно применять пластиковую фурнитуру. В процессе трансформации пластмасса нивелирует трение. По методу открывания раскладные лестницы бывают ручные и автоматические. Для легкого ручного открывания к лестнице прикрепляется груз.
Главные требования, которые предъявляются для складных чердачных лестниц это компактные размеры и прочность. Не меньшую роль играет и эстетичный внешний вид сооружения.
Раздвижная лестница с выдвижными маршами
Большой популярностью пользуются ножничные лестницы. Ее производство выполняется только из металлических деталей. По-другому она называется «гармошка». Но они имеют ряд отрицательных качеств. Например, спустя время, лестничный марш будет издавать неприятный скрип, так как некоторые детали будут изнашиваться. Но это можно предотвратить, своевременно смазывая каждое рабочее соединение.
Телескопическая лестница
Данный тип конструкции состоит из секций, которые выдвигаются. В сложенном виде она занимает мало места, так как детали собираются одна в другую. Делаются они преимущественно из алюминия. Телескопическая лестница имеет высокую прочность.
Секционная и шарнирная
Она может иметь 1–4 секции. Первая закрепляется на крышке. Последующие секции соединены между собой и образовывают равномерный лестничный марш. Они оборудованы шарнирами и специальными петлями.
Откидная
Если у вас нет свободного места, откидная лестница имеет явные преимущества. В большинстве случаев она сложена в стене. По необходимости ее можно выдвинуть. Используя карточные петли, ступеньки закрепляют на тетиве. Когда она сложена, она прячется в стену.
Общие требования к чердачным лестницам
Следует упомянуть про стандартные размеры таких сооружений:
- Допустимой шириной марша считается 650 мм.
- Не рекомендуется изготавливать лестницу более 3000 мм в высоту. Это повлечет за собой меньшую жесткость конструкции, в результате чего может произойти несчастный случай. Кроме всего прочего, слишком высокую конструкцию будет проблематично складывать.
- Ступеньки в количестве от 13 до 15 штук.
- Между ступенями должен быть промежуток не более 19,3 см. В противном случае эксплуатация лестницы будет затруднена.
- Ступенька должна иметь толщину от 1,8 до 2,2 см.
- Стандартный угол наклона равняется 60–75°.
- Вся конструкция должна выдерживать вес до ста пятидесяти килограммов.
- Расположение ступенек только параллельно полу. Для полной безопасности на них можно наклеить противоскользящие накладки.
Отдельно следует отметить и размер люка. Стандартным размером считают 120×70 см. Если проем будет меньше, то подниматься будет неудобно. При больших размерах люка будут большие теплопотери. Если ваш чердак отапливаться не будет, тогда люк должен быть паро- и теплоизолирован.
Месторасположение чердачной лестницы
Лестница не должна мешать проживанию в доме. По этой причине установка лестницы в кухне или в спальне будет нецелесообразной. Поэтому ее можно расположить, например, в коридоре, холле. Выбранное помещение должно быть соответствующего размера. В некоторых случаях такие лестницы используются в качестве детали интерьера, поэтому в некоторых случаях ее можно не прятать. Рекомендуется сделать предварительный чертеж, чтобы представить лестницу в вашем интерьере.
Изготовление лестницы из двух секций
Если вы хотите изготовить простую лестницу без сложных механизмов, то лестница из двух секций это идеальный вариант. Для ее изготовления вам потребуются:
- Ножовка по дереву.
- Рулетка.
- Стремянка.
- Карточные петли по ширине косоура – 4 штуки.
- Брус – 2 штуки толщиной 2–3 см. По длине должен равняться ширине люка.
- Петли, саморезы, крючок и анкера.
При помощи петли короткий брус закрепляется на верхний конец лестницы. Второй, аналогичный отрезок бруска, на нижней части. Они должны закрепиться наискось, иначе будут мешать движению. Такая конструкция будет достаточно жесткой. После, отмеряете 2/3 лестницы и делаете аккуратный распил. При помощи металлических петель соединяете две части.
Петли необходимо правильно закрепить, иначе лестница будет открываться в неправильном направлении.
Теперь на стене под люком монтируйте верхний брусок. Чтобы в сложенном состоянии лестница не раскрывалась, можно использовать крючок. Для этого рядом с местом распила вкрутите петлю, а крючок на соответствующем расстоянии – в стену. Чердачная двухсекционная лестница готова!
Одним из недостатков такой конструкции является то, что она всегда на виду. Но если приложить немного больше усилий, то своими руками можно соорудить лестницу, которая будет спрятана в люке.
Прячем лестницу за люком
Данный вид лестницы имеет три секции, но в этом случае она удачно расположится в люке. Прежде всего, определитесь с ее месторасположением. Например, проем имеет размеры 120×65 см. Тогда для предотвращения потери тепла люк следует вырезать на 7–8 мм шире с каждой из сторон. Для работы потребуется следующий материал:
- Брусок сечением 50×50 мм – 2 длинных и 2 коротких.
- Фанера, толщиной 10 мм.
- Фанера, толщиной 4 мм, для изготовления косынки.
- Клей ПВА.
- Саморезы.
На конце каждого бруска сделайте выпил на половину его толщины. После эти места промажьте клеем и соедините в паз все между собой в прямоугольник. Для прочности между собой можно дополнительно скрутить саморезами. Чтобы у вас вышла точная диагональ из фанеры 4 мм вырежьте косынку.
Когда клей высох, косынки демонтируете и прикрутите лист фанеры 10 мм саморезами. Теперь примерьте конструкцию в проеме. Если все подходит, то измерения были выполнены точно.
Для эстетичного вида в крышку врежьте дверную защелку. При помощи прикрученной ручки можно будет открывать люк на защелке.
Механизм для лестницы с люком – шарнирный без пружины
Один из важных узлов складной чердачной лестницы – механизм открывания. Самый простой метод заключается в его покупке. Но при желании сэкономить семейный бюджет его можно сделать своими руками.
Для этого вам потребуется:
- Уголок – 1 штука.
- Кусок металлического листа.
- Две полоски разной длины.
- Болты М10.
- Сверла.
- Малка.
- Лобзик.
- Тески.
- Струбцины.
Технология изготовления:
- Первым делом делается чертеж на картоне лестницы. При этом следует указать приблизительный угол ее наклона в открытом состоянии.
- Теперь из картона вырезаете пример конструкции и отдельные детали. Это позволит подобрать правильную длину шарнира.
- На металлических полосках отмеряете отверстия для шарнира. Расстояния отмеряете согласно предварительным измерениям. Отверстие делается для болта М10.
- Эти детали собираете между собой и слегка стягиваете.
- Теперь замеряете нужный угол, используя малку. После чего раздвигаете механизм на нужный угол.
- На металле отмечаете область, которая при открывании будет перекрываться уголком. При помощи лобзика вырезаете ее.
- На этом этапе полосам придаете товарный вид. Закругляете углы и обрезаете лишнюю длину. Это позволит им не цепляться между собой и, соответственно, не мешать друг другу.
- После удаления лишнего металла уголок станет упираться в требуемом положении. Первый механизм готов!
- Для приготовления второго механизма скрепите между собой струбцинами каждую пару деталей. Это позволит сделать идентичную деталь. Просверлите отверстия.
- В готовое отверстие вставляете болт и просверливаете второе.
- Скрутив заготовки двумя болтами, ровняете их по длине и придаете одинаковую форму.
По такому принципу делаете все части механизма. В результате у вас получится сделать две одинаковые части механизма.
Когда механизмы готовы, их следует прикрепить к люку, который был сделан раньше. При этом следует примерить люк с механизмами к проему.
В открытом положении люк не должен касаться стенок проема. В случае необходимости его можно отрегулировать. Чтобы все сооружение хорошо удерживалось, следует изготовить еще одну важную деталь. Для этого возьмите две полосы, ширина которых 2 см, а также уголок. К концу одной из полос приварите небольшой кусок металла. В качестве опорной площадки будет выступать уголок.
Так, вы сделаете шарнир, который в открытом положении слегка будет сгибаться, но при этом выдерживать всю нагрузку. Кроме всего прочего, он должен полностью раскрываться. Это позволит равномерно распределить нагрузку, создаваемую шарнирной лестницей.
Лестница из дерева на тетивах
Сделаем лестницу из дерева . Возьмите дюймовую доску, шириной в десять сантиметров. Она пригодится для изготовления тетивы и ступенек. Первая секция делается ровно по длине люка, вторая – аналогично, а третья немного меньше. Что касается последней секции, то ее длина должна равняться оставшемуся расстоянию между полом и двумя секциями в разложенном виде. Здесь также необходимо будет воспользоваться малкой. Вымеряете наклон угла лестницы в ее разложенном состоянии. Эти измерения перенесите на доску и отметьте ступени. Это делается на двух длинных секциях. Эти линии следует наносить равномерно на две доски. Для этого их можно скрепить скотчем. Наносимые линии должны быть зеркальными. В местах, где будут шарнирные петли, просверлите пером на 25 отверстия.
Отверстия должны быть с двух сторон досок, поэтому сначала делаете отверстия с внутренней стороны, а затем с внешней. Каждое отверстие отшлифуйте фрезером.
Это придаст заготовам эстетичный вид. В местах соединения сегментов распилите доски.
Нарежьте необходимое количество ступенек, отшлифуйте их. Для каждой ступени на тетиве сделайте небольшие отверстия в 5 мм. Всю же конструкцию собирайте при помощи клея ПВА и саморезов.
Делаем металлические петли
Чтобы соединить секции марша следует также изготовить петли. Благодаря их наличию лестница будет складываться и раскладываться, соответственно. Для этой цели необходимо будет взять металлическую полосу шириной в 2,5 см. Таких полосок нужно будет восемь штук. К четырем из них приварите небольшой кусочек аналогичной полоски. В каждой из них сделайте отверстия, которые будут использоваться для крепления лестницы.
Теперь первый и второй сегмент лестницы уложите на ровную поверхность. Стык между ними должен быть достаточно плотным. Прикручивайте петлю так, чтобы болт шарнира стал в выемку по центру соединенных секций. С другой стороны ориентиром будет край тетивы. После прикручивания двух петель проверьте лестницу на предмет ее сгибания. Если все работает исправно, по такому же примеру соедините третий сегмент.
Монтаж складной конструкции в проем
Теперь осталась самая малость. Когда все изготовленные вами детали закончены и соединены между собой, можно приступать к монтажу в проем.
Первым делом обработайте все металлические части грунтовкой для металла, краской из баллончика и нанесите два слоя лака на деревянные элементы.
Когда вся конструкция высохла, остается закрепить ее анкерами в проеме на чердак. После продолжительных работ складная лестница готова! Фотоинструкцию вы можете найти в конце статьи.
Как сделать откидную чердачную лестницу?
На чердак или на изготовленную вами мансарду можно подняться, используя откидную лестницу. Для этого вам потребуется следующий строительный материал:
- Для изготовления тетивы 2 доски. Толщина 30 мм, ширина 200 мм. Длина напрямую зависит от угла наклона лестницы и высоты перекрытия.
- Доски для ступенек. Ширина 120 мм, толщина 30 мм, длина 500 мм.
- На каждую ступеньку две карточные петли.
- Саморезы.
- Анкера.
- Крючок для крепления конструкции на стене.
Для успешной сборки лестницы до потолка верхний край стационарной тетивы не должен доходить на 550 мм.
Итак, вся работа выполняется в такой последовательности:
- Одну тетиву закрепляете анкером к стене. Само крепление должно быть жестким, так как на нем будет держаться вся конструкция.
- Размечаете ступеньки. Положение первой отмечаете параллельно полу. Проводите отрезок, длина равна ширине ступеньки 120 мм.
- Теперь проводите две параллельные прямые через концы отрезка параллельно краям тетивы.
- Затем проводите перпендикуляр от конца первого отрезка.
- От этой линии отступаете вправо на 10 мм и проводите линию параллельно перпендикуляру.
- Точка пересечения этой линии с верхней, которая проводится параллельно к краю тетивы, определяет месторасположение следующей ступени. По такому принципу осуществляется разметка всех последующих ступеней.
Чтобы ступени при складывании не терлись друг о друга, между ними необходим отступ в один сантиметр. Всю эту разметку переносите на вторую тетиву и крепите ступени в отмеченных местах. Что касается петель, то они должны располагаться на стационарной тетиве так, чтобы они в конечном результате подняли ступени вверх, а подвижную тетиву опустили вниз. Соответственно, в подходящих местах на стене монтируется крючок. Это, пожалуй, самый простой и быстрый метод изготовления откидной чердачной лестницы.
Дело за малым
Итак, мы рассмотрели с вами несколько вариантов изготовления чердачной лестницы своими руками. Безусловно, сначала может показаться что это немыслимая задача, но, приложив усилия и старания, можно сделать все. Оставляйте свои комментарии к этой статье и делитесь своими впечатлениями!
Фото
Чердачные лестницы — такие удобные и практичные
Типы открывания выдвижных маршей
Телескопическая лестница — плюс к удобству использования чердака
При установке выдвижных лестниц приходится выбирать между несколькими типами:
- Ножничная модель. Особенность открывания и сборки заключается в складывании и выдвигании сооружения в виде гармошки. Механизм трансформации имеет форму параллелограмма или овала. После заказа изделия (цены от 3000 руб.), через время потребуется смазывание конструкции для избегания скрипов.
- Телескопическое устройство. Изделие включает множество выдвижных секций, складывающихся одна в другую. Относится к категории менее продаваемых сооружений среднего ценового сегмента.
- Раскладной вид установки — секционный и шарнирный. В состав включены 2-4 секции. Первое колено обладает длиной, соответствующей с размером крышки люка и крепится на ней. Другие элементы открываются для создания ровного лестничного марша. Секционные конструкции подвижны, благодаря установке петель и шарниров. Они встречаются в пределах разных цен: от 3 до 20 тыс. руб.
- Откидная модель. Большую часть времени конструкция находится в сложенном состоянии и крепится на стене. Ее выдвигание производится по мере надобности подняться на чердак. Фиксация ступеней осуществляется на тетиве с использованием карточных петель. Изучая цены на данную позицию товара, можно подобрать вполне приемлемое решение.
Основные параметры
Установка мобильной конструкции (как дешевой, так и дорогой в цене) рассчитана для обеспечения возможности пользоваться чердаком по мере надобности. Она обладает небольшими габаритами и уровнем нагрузки, что исключает возможность перемещать мебель и крупные предметы.
Размеры сооружений:
- Стандартная ширина ступеней варьирует в пределах 400-600 мм.
- Предел высоты достигает до 3,5 м. Расчет установок производится путем прибавки 30 см к высоте перекрытий.
- Число ступеней — 14 — 15.
- Шаг между перекладинами — 20 — 30 см.
- Угол наклона 60 — 75 гр.
- Максимальный уровень нагрузки 150 — 250 кг.
- Размеры люка 70 — 120. Меньшие параметры неудобны в эксплуатации. С увеличением размеров, возможны немного большие теплопотери.
- Глубина ступенек варьируется от 5 до 18 см.
Бренды и цены раскладной лестничной конструкции
Чердачные складные лестницы могут делаться и из дерева — выходит очень шикарно
Разработкой чердачных раскладных систем обычно занимаются изготовители мансардных окон. Поэтому на сайтах дилеров часто встречаются названия мансардных устройств от известных лидеров: Atrium, Dolle, FAKRO, Roto, Velta, Oman. Расчет цен производится с учетом материально-технической оснащенности. В среднем, цены на высококлассную продукцию заключаются в диапазоне 3000 — 10 000 тыс. руб.
Комплектация мобильных чердачных ступеней
Устройство включает коробку для размещения в отведенном проеме. Его крепление обеспечивается саморезами. Геометрические размеры легко подогнать посредством инженерного уголка. Соблюдение строгой перпендикулярности влияет на дальнейшую функциональность устройства. Для защиты от теплопотерь, во внутренней части короба размещают резиновые или каучуковые уплотнители (EPDM).
Наличие специальных петель способствует навешиванию секций с пружинным механизмом. Их монтируют внутри. С наружной части к установочной коробке прикрепляется крышка люка. Ее соединение с лестничной установкой является обязательной, поскольку люк позволяет скрыть сложенные ступени. В закрытом положении крышка остается незаметной на потолке нижнего этажа. Утеплитель слоем 36 — 76 мм служит для повышения термоизоляции.
Для приведения системы в действие, достаточно потянуть за кольцо и пролет опустится к ногам. Правильная регулировка пружинного механизма обеспечит плавное открывание и сборку изделия. Установка замка с защёлкой и шеста необходима для повышения уровня удобства.
Комплектацией может быть предусмотрено наличие поручней с защёлками пластиковых наличников. Отдельно продаются дополнительные секции. Готовые установки нередко приходится подрезать с установкой антискользящих насадок. Лестницы ножничного типа позволяют удалить заданное число звеньев.
Устройство складных маршей для мансарды
При покупке раскладных конструкций, важно обратить на цену и предъявленные типоразмеры. Обычно производителем указывается размер между перекрытиями и диапазон уклона.
Например, если промежуток между перекрытиями составляет 2800 мм, то параметры люка варьируют в пределах 600/680*930/940 мм, 600*1200 мм, 700*1200мм. Высота потолков 3050 мм рассчитана для проемов 600*1300 мм, 700*1300 мм. Когда высота стен 3250 мм, рассматривается вариант 700*1300 мм.
Конструктивно изделия представлены 3-4 складными секциями, оснащенными специальным механизмом в виде шарниров.
Внимание! Используя угловые петли-шарниры и трафарет, регулируется высота сооружения.
Выбор материала для телескопических чердачных пролетов
Технология открывания обуславливает выбор материалов: металл (сталь, алюминий, нержавейка), дерево или комбинации. Складной вариант создается из массива и металла. Первый вариант характеризуется соединением деталей по технологии «ласточкин хвост».
На краях ступенек имеются технологические выступы. Они размещаются в зазорах, проделанных в направляющих. Для придания прочности соединению, усадка конструкции фиксируется клеем. Пролёты создаются из цельных или клеёных брусьев хвойных пород массива, ясеня и бука (модель А100, Atrium). Прочные ступени вырезаются из дубовых пород.
Среди ведущих брендов можно выделить продукцию разной ценовой категории:
- Dolie.
- FAKRO.
- Oman.
- Roto.
- Velta.
- Holzplast.
Подбирая металлические типы изделий, можно остановить свой выбор на алюминиевых и стальных вариантах. Сооружения из стали представлены на международном рынке с порошковым покрытием, противостоящим образованию коррозии. Выгодное решение легко подобрать в линейке товаров FAKRO, Oman, Roto. Широко пользуются спросом комбинации стальных и деревянных установок. Они представлены в ассортименте Oman.
При выборе гармошки (пантографа, телескопичной, ножничной или пружинной модели), основным материалом для сооружения выступает анодированная сталь. Ступеньки обрабатываются с помощью порошковой краски. Их покрытие образовано противоскользящими насечками. Привлекают внимание новые выпуски продукции с пневмо-электрическим приводом и удаленным управлением (Факро, Рото).
Покупка слайдовых маршей с размещением секций одна в другой обеспечивает телескопическое выдвигание секций, созданных из металла или в комбинациях. Последний вид состоит из деревянных ступеней и металлических опор.
Выбор места для установки чердачных ступеней
Если требуется покупка бюджетной лестницы с не утепленной крышей, можно обратить внимание на толщину люка 16 мм. Его короб обычно не имеет уплотнения. Такой вариант считается удачным к приобретению при оборудовании не отапливаемых дачных сооружений и хозпостроек.
Складная лестница на чердак — это удобно!
Ассортимент фирмы Dolle представлен популярной линейкой изделий из дерева Basic. В состав включены 3 секции, рассчитанные на высоту 2850 мм. Проём имеет габариты 60,7*120 см. Увеличение безопасности можно обеспечить заказом вспомогательных поручней.
Совет: если установка предусмотрена в жилых помещениях, правильным выбором станут деревянные конструкции, в технических зданиях хорошо поставить более практичные — металлические ступени.
Усовершенствованные конструкции лестниц для мансарды
Для расширения показателей эффективности раскладных пролетов, производителями разработаны специальные предложения:
- Каталог Velta позволяет подобрать недорогую позицию каталога «Компакт». Она имеет вид 4-х секционной установки с утеплённым люком. Среди основных выступает малогабаритный проём 600*925 мм, проекция пролёта на пол не более 1260 мм.
- Roto привлекает гостей сайта ножничным алюминиевым решением Mini. Ступени имеют ширину лишь 8 см. Утепленный люк характеризуется коэффициентом сопротивления теплоотдаче 1,25 м2 С/Вт. Приобретение небольшой модели обеспечивает простоту оснащения потолков, образующих высоту 2250-2500 мм (расчет на 10 ступенек). Вынос в пределах 1180-1250 мм.
- Необходимость в компактном сооружении можно удовлетворить на странице каталога Oman — лестничный пролет Mini включает 4 секции с коробом 600*800 мм и 700*800 мм. Высота помещений составит 2650 мм, проекция — 1000 мм.
- Не менее привлекательна малогабаритная лестница LWK (проем 600*940 мм), выпускаемая компанией FAKR0! Достойную конкуренцию ей составит ножничная установка (600*900 мм или 700*800 мм). Производство серий регламентируется европейскими стандартами ЕN 14975.
Лестничные установки для чердака с дополнительными опциями
Для тех, кто привык видеть удобство во всем, и не ищет компромиссов в выборе цены и качества, разработаны принципиально новые конструкции, продуманные до мелочей.
Эксклюзивные разработки являются достоянием компаний-производителей.
Серия «Престиж» (Velta, стоимость близко 12 тыс. руб.) является ярким примером использования технологии ClickFix. Ее особенность заключается в возможности сборки и установки без дополнительного оборудования.
Среди инструментов потребуется шуруповёрт и пила, если понадобится обрезать ножки. Люк утеплен и образует слой в 7,6 см, а для предотвращения попадания холодного воздуха и влаги, применяются 2 уплотнителя. Проём обладает параметрами 600*1200 мм. Потолок характеризуется высотой 2740 мм, проекция на пол — 1180 мм. Управление маршем обеспечивается дистанционно.
Фирма Roto удивит и порадует искушенных пользователей ножничной системой Elektro. Комплектация оснащена бесшумным электроприводом производительностью в 24 Вт и аварийным источником питания, предусмотренным для функционирования изделия при отсутствии питания. Ступени созданы из алюминия и рассчитаны на предел нагрузки до 200 кг. Сооружение в 9 ступенек станет бескомпромиссным решением для перекрытий с высотой 2200-2500 мм. Наибольший вынос достигает до 1400 -1250 мм.
Установка раскладных ступеней (на примере FAKRO)
Среди инструментов потребуется шуруповёрт, отвёртки (плоская и крестовая) и рожковый ключ на 10. Процесс состоит из нескольких этапов:
- Монтируется обрамление для наружной рамы.
- По внутренним углам (с чердачной стороны) на раме имеются уголки из металла для фиксаци. Они приспособлены для временного подвешивания изделия. В них монтируются гайки, а в гайки вкручиваются штыри с резьбой.
- Размещается рама в люк и ставятся на штырях обратные упоры (трубы с зазорами).
- С помощью винтовых тяг выставляется рама в уровень по всем направлениям.
- С использованием жесткой подкладки (для исключения деформации) фиксируется рама к откосу на саморезы или дюбели с двух смежных сторон.
- Проверяются диагонали на равенство. Саморезы не должны быть сильно зажаты.
Для загородных коттеджей, частных домов и простых дачных домиков, оборудованных чердаком, наличие удобной и надежной лестницы, ведущей в упомянутое помещение, является обычной жизненной необходимостью.
При этом лестница вовсе не должна быть капитальной и громоздкой – можно собрать и установить прекрасную раскладную конструкцию, которая ни в чем не будет уступать стационарным лестницам.
С выполнением всех сопутствующих задач можно справиться своими руками, сэкономив деньги и проверив собственные силы.
Существует несколько разновидностей лестниц, которые можно установить для доступа на чердак.
Стационарные
Лестница с широкими маршами и перилами – самая надежная, долговечная и удобная в использовании конструкция. Однако возможность обустройства подобной лестницы есть далеко не везде – на малых площадях ее точно не обустроить.
Переносные
Применяются преимущественно в качестве временного варианта, а также для доступа к редко используемым помещениям. Главными недостатками такой лестницы являются низкие показатели безопасности и удобства использования. Поэтому по возможности от применения подобной конструкции следует отказываться.
Складные
Являются чем-то средним между переносными и стационарными лестницам. По удобству использования и безопасности практически ни в чем не уступают полноценным стационарным конструкциям и имеют, при этом, существенное преимущество – для их обустройства нужно совсем немного места. Поэтому при самостоятельном изготовлении лестницы предпочтение рекомендуется отдавать именно складной конструкции.
Выбор материалов
Не менее важным моментом является выбор материалов, из которых будет собрана лестница на чердак. Для изготовления основных элементов складных секционных лестниц обычно используется древесина, а крепежи традиционно делаются из металла.
В настоящее время существует множество различных материалов, типов управления и крепежных деталей, что дает возможность с легкостью собрать такую складную лестницу, которая будет максимально хорошо подходить для конкретно вашего помещения.
При выборе материалов изготовления чердачной лестницы нужно учитывать ряд важных факторов. Прежде всего, определитесь с функциональным предназначением конструкции, ее типом, шириной, а также оптимальным количеством секций.
Функциональное предназначение лестницы на чердак имеет очень важное значение в плане определения максимально допустимой нагрузки на ступеньки. Так, к примеру, деревянные лестницы заводского изготовления способны выдержать в среднем нагрузку на уровне 150 кГс, металлические – 250 кГс. Для самодельных лестниц эти показатели немного уменьшаются.
Это не значит, что ступени не смогут вынести более высокую нагрузку, однако регулярно их так нагружать однозначно не стоит, иначе конструкция очень быстро сломается.
Ширина лестницы, при этом, не должна быть больше ширины чердачного проема.
При выборе размеров чердачной лестницы ориентируйтесь на проверенные и утвержденные нормативы.
Помните: ступени должны быть установлены строго параллельно поверхности пола. Помимо этого, ступеньки лестницы должны быть нескользкими. Для этого можно набить поверх основного материала накладки из любого нескользкого материала.
Руководство по изготовлению лестницы на чердак
В самостоятельном изготовлении лестницы на чердак нет ничего сверхсложного. Конечно, неопытный мастер вряд ли сможет собрать конструкцию с таким же привлекательным внешним видом, как у моделей фабричного изготовления, но попробовать однозначно стоит.
Перед началом работы создайте чертеж будущей лестницы. При отсутствии необходимых навыков закажите создание чертежа специалисту либо же подберите подходящую схему из вариантов, представленных в открытых источниках.
Инструменты
Подготовьте сразу все необходимые приспособления, чтобы не отвлекаться на поиски недостающих инструментов в будущем.
Вам понадобится:
Также перед началом работы вам нужно купить либо собрать обыкновенную приставную лестницу. Для собственноручной сборки такой конструкции нужно лишь зафиксировать поперечные ступени между двумя длинными вертикальными стойками и дополнительно укрепить конструкцию.
Готовая лестница должна быть примерно на 30 см длиннее, чем расстояние от уровня проема на чердак до пола.
С изготовлением люка вы тоже с легкостью справитесь своими руками. Из материалов понадобятся лишь листы фанеры и деревянный брус 5х5 см.
Первый шаг.
Выберите место для размещения люка и определите его оптимальные габариты. Прибавьте к габаритам люка примерно по 7-9 мм с каждой стороны, чтобы в дальнейшем можно было легко закрывать крышку без скрипов и прочего шума. Сделайте проем в соответствии с определенными размерами.
Второй шаг.
Разрежьте деревянный брус на четыре части в соответствии с габаритами люка.
Третий шаг.
Сделайте на концах брусков пазы. Смажьте подготовленные пазы и соедините бруски в прямоугольную (квадратную) конструкцию. Дополнительно усильте соединения с помощью саморезов. Прикрутите косынки, чтобы не повело диагональ.
Четвертый шаг.
Закрепите к полученной основе крышку из фанеры и примерьте изделие в проем люка.
Пятый шаг.
Врежьте в крышку люка обычную защелку. Открывать защелку вы будете с помощью ручки. Прикрепите ее к крышке и окончательно зафиксируйте изделие в предварительно выровненном проеме. Обычно для этого используются петли.
Простая складная лестница
Приступайте к изготовлению складной лестницы. Предполагается, что в вашем распоряжении уже имеется упоминавшаяся ранее приставная деревянная лестница.
Первый шаг.
Прикрепите к нижней части приставной лестницы брус по ширине. Такой же брусок прикрепите к верхней части изделия. При этом нижний брусок необходимо фиксировать жестко, а верхний – на петли.
Второй шаг.
Распилите приставную лестницу на 2 части. Верхняя часть должна иметь длину порядка 2/3 от суммарной длины лестницы.
Третий шаг.
Закрепите пару реек для придания дополнительной диагональной жесткости.
Четвертый шаг.
Соедините части конструкции с помощью петель.
Пятый шаг.
Закрепите верхний брус под люком при помощи анкеров.
Шестой шаг.
Закрепите нижнюю часть лестницы с помощью крючка – благодаря этому она не будет самопроизвольно раскрываться. Петлю устанавливайте на косоур над линией распила.
Седьмой шаг.
Прижмите готовую конструкцию к поверхности стены и зафиксируйте.
Главным минусом такой самодельной лестницы является не очень привлекательный внешний вид – весь брус и крепежные элементы остаются заметными. Однако с главными задачами – обеспечением удобного и безопасного подъема и обратного спуска – подобная лестница справляется на все 100%.
Усовершенствованный и более привлекательный вариант предыдущей конструкции. В изготовлении такой лестницы тоже нет ничего сложного, достаточно пошагово выполнить все положения руководства.
Первый шаг.
Поделите обычную приставную деревянную лестницу на 3 части. Первую часть сделайте по размерам чердачного люка, вторую делайте чуть меньше первой, а третью такой, чтобы полностью покрывалось оставшееся пространство до поверхности пола.
Второй шаг.
Возьмите малку и отмерьте угол чердачного люка. Перенесите угол на доски, намечая таким образом места расположения ступеней.
Третий шаг.
Просверлите отверстия в местах размещения шарниров между отдельными лестничными секциями.
Четвертый шаг.
Зашлифуйте грани конструкций.
Пятый шаг.
Распилите доски в точках размещения шарниров.
Шестой шаг.
Нарежьте и отшлифуйте ступеньки.
Седьмой шаг.
Подготовьте в тетивах углубления для ступеней.
Восьмой шаг.
Вставьте ступеньки в подготовленные выемки. Используйте клей и дополнительно усиливайте соединения с помощью саморезов.
Девятый шаг.
Соедините секции лестницы при помощи специальных петель. Для этого секции необходимо разместить на устойчивой ровной поверхности.
Десятый шаг.
Проверьте работу всех секций. При обнаружении дефектов и отклонений постарайтесь сразу же их исправить.
Одиннадцатый шаг.
Отшлифуйте все деревянные поверхности и покройте их лаком.
Двенадцатый шаг. После полного высыхания лака установите конструкцию в проеме чердачного люка. При необходимости произведите окончательную подгонку конструктивных элементов.
Таким образом, самостоятельная сборка лестницы является предельно простым и доступным практически каждому мероприятием. При этом стоимость самодельной лестницы будет гораздо более низкой по сравнению с ценой аналогичной конструкции заводского производства. Следуйте инструкции и все обязательно получится.
Удачной работы!
Также читайте на нашем сайте статью — лестница в подвал своими руками.
Видео – Лестница на чердак своими руками
Чердак является традиционным помещением практически в каждом загородном доме. Его функционал необычайно широк. К примеру, данное помещение используется в качестве складской комнаты или мастерской, некоторые домовладельцы и вовсе оформляют чердак как гостиную или спальню. На самом деле, функционально назначение такой комнаты зависит исключительно от вашей собственной фантазии, а также финансовых возможностей. Однако, несмотря на широкое многообразие вариантов оформления чердачного пространства, стоит знать, что чердачная лестница с люком является неотъемлемой его частью. Если вы не соорудите данную конструкцию, то попросту не сможете попасть в это помещение. Создание чердачной лестницы – достаточно простое дело, в связи с которым вам даже не придется обращаться к профессионалам в строительной индустрии.
Классификация конструкций
Собственно, наиболее трудоемким процессом в деле организации чердачного пространства является конструирование лестничного сегмента. Прежде, чем создавать проект конкретной лестницы для вашего дома, необходимо предварительно определиться с категорией конструкции. Существуют такие варианты:
- складная;
- стационарная;
- переносная.
Особенности различных конструкций
Специалисты строительной индустрии называют широкую маршевую конструкцию наиболее надежной в соответствующем сегменте. Стоит отметить, что ее долговечность, надежность и безопасность не сравнить с представленными на рынке конструктивными аналогами. Между тем, несмотря на большое количество преимуществ данного варианта, выбор в его пользу иногда невозможен в связи с банальной нехваткой необходимого свободного пространства. Таким образом, если вы не располагаете большой площадью для лестницы, то стационарная модель вам не подойдет. Однако, отчаиваться не стоит, ведь всегда можно построить складную лестницу. Ее конструкция обладает лучшими характеристиками от стационарных и переносных аналогов. К примеру, на так же надежна и безопасна как стационарная маршевая модель, однако, для организации такой конструкции необходимо располагать совсем небольшим количеством свободного пространства. Кроме того, именно складные модели наиболее просто реализовать без помощи опытных профессионалов.
Временное решение
Переносные модели выделят в отдельную категорию, однако, она достаточно обширна. Разнообразие переносных изделий просто невероятное. Между тем, не стоит забывать, что ежедневное использование такого изделия никогда не сможет стать безопасным или достаточно комфортным, а сама лестница не в состоянии конкурировать со стационарными и складными моделями по эксплуатационно-техническим характеристикам.
Подбор стройматериалов
В процессе создания чердачной лестницы своими руками, а именно – ее предварительного чертежа, стоит обратить внимание на то, какие стройматериалы принято использовать в данном деле. Несмотря на все многообразие продукции в сегменте стройматериалов, любой опытный строитель скажет вам, что есть определенные виды товаров, которые наилучшим образом показывают себя в процессе эксплуатации. Как правило, все основные детали конструкции изготавливаются преимущественно из древесины, в то время как крепежные и фиксаторные элементы производят из металлов. Благодаря грамотному подбору материалов чердачная лестница своими руками, чертеж которой выполнен непрофессионалом, будет на порядок крепче и надежнее.
Как сделать свой выбор?
В связи с тем, что стройматериалы для складных лестниц на чердак представлены в разнообразии ценовых сегментов, исходного материала и характеристик, утонуть в море информации о них достаточно просто. Чтобы минимизировать временные затраты на поиск и выбор оптимальных вариантов, следует руководствоваться рядом правил:
- Конкретизируйте тип функционального назначения конструкции, а также ее основные параметры, в числе которых конструкционные особенности, секционность, ширина и прочее.
- Выбирайте стройматериалы в четком соответствии к тому, как активно будет осуществляться эксплуатация изделия и в каких условиях.
- Определите негативные факторы, которые могут сократить эксплуатационный рок изделия.
Главное – правильно определить функцию
Любой специалист, имеющий необходимый уровень квалификации и опыт в работе с такими типами объектов, скажет вам, что от грамотного определения функционального назначения изделия во многом зависит итоговый результата строительных работ по возведении лестницы на чердак своими руками. Этот параметр позволяет рассчитать показатель допустимой нагрузки на каждую ступеньку изделия. Стандартное значение данного показателя для изделия из металла начитывает порядка 250 кГс, а вот деревянные модели рассчитаны только на 150 кГс. Кроме того, стоит учитывать и то, что приведенные выше показатели справедливы для изделий, изготовленных профессионалами, самодельные же объекты обладают несколько более низкими параметрами. В целом, показатель допустимого давления на ступеньку не означает, что большего напряжения она не вынесет. Однако, если слишком часто перегружать конструкцию, то она придет в негодность за достаточно краткий срок.
Итак, основные критерии, по которым осуществляется выбор оптимального варианта, таковы:
- площадь свободного пространства в помещении;
- функциональное назначение объекта;
- необходимый угол наклона изделия.
Этапы работы и их особенности
Собственно, специалисты говорят, что в создании лестницы с люком своими руками ничего особенно трудного нет. Достаточно придерживаться определенных правил, проверенных годами. К примеру, при составлении чертежей конструкции стоит руководствоваться нормативно-технической документацией, в которой, помимо условий общего характера, приведены еще и конкретные параметры стандартных изделий. Кроме того, на просторах Интернета в открытом доступе предложена масса готовых схем на любой вкус. Можно взять готовый вариант и приступить к воплощению проекта в жизнь, или же немного доработать его в соответствии с индивидуальными особенностями дома.
Рисунок 9.
Что учесть при проектировании?
Наиболее общие требования нормативной и техничной документации можно свести к ряду простых и понятных условий:
- эргономичный диапазон ширины изделия – это от 60 до 100 сантиметров;
- наилучшая высота насчитывает три с половиной метра;
- максимальное число ступеней – 15 штук;
- расстояние между расположенными рядом ступенями должно насчитывать порядка 20 сантиметров;
- комфортная для человека высота ступеньки достигает порядка 20 сантиметров, допускается отклонение в 2 сантиметра;
- если речь идет о складной конструкции, то при создании проекта берется допустимая нагрузка 15 килограммов.
Инструментарий
Решившись на самостоятельное осуществление строительных работ, очень важно запастись определенным комплектом инвентаря, дабы в процессе реализации проекта изделия не остановиться из-за банального отсутствия отвертки или рулетки. Итак, стандартный набор инструментов состоит из таких предметов:
- монтажная пена;
- бруски;
- саморезы;
- электрический шуруповерт;
- ножовка;
- измерительная рулетка;
- анкеры;
- отвертки.

Особенности месторасположения
Все нюансы месторасположения объекта в помещении станут видны в процессе строительства. Это особенно актуально, если вы занимаетесь созданием и последующей реализацией проекта самостоятельно. Помните, что изделие ни в коем случае не может уменьшать комфортабельность помещения. Именно поэтому лестницы с люком не располагаются в спальнях, гостиных и на кухнях. Однако, при необходимости, вы можете разнообразить свой проект лестницы интересным дизайном. Благодаря этому изделие сможет гармонично вписаться в общий интерьер помещения.
Технология реализации проекта
Следуя определенной технологии, можно быстро и качественно реализовать даже сложный проект. Итак, если вы выбрали металл в качестве основного материала, то помните, что осуществляются такие этапы:
- чертеж наносится на листы картона;
- вырезаются картонные элементы будущего изделия;
- на полосках из металла наносится разметка шарнира и подготавливаются специальные отверстия;
- подготовленные детали фиксируются между собой;
- замеряется необходимый угол и раздвигается конструкция в соответствии с полученными параметрами;
- на металлических листах наносится разметка тех мест, которые будут впоследствии перекрыты уголками;
- с помощью специального инструмента вырезаются элементы;
- придается эстетичный внешний вид объекта;
- существующие углы закругляются;
- скрепляются заготовки попарно.
Как видите, технология работы по реализации проекта лестницы собственноручно достаточно проста. Она распространяется не только на металлические объекты, но и на деревянные изделия.
Для того, чтобы внешний вид чердачной лестницы был максимально привлекательным, не поленитесь осуществить подготовительные работы по поверхности строительного материала. Речь идет, к примеру, о нанесении специальной грунтовки прежде, чем покрывать красящим веществом поверхность.
Не бойтесь трудностей, ведь технология осуществления строительства лестницы только на первый взгляд может показаться вам проблематичной и требующей опыта в строительной индустрии. Приложение оптимального количества усилий поможет вам добиться максимального результата.
В этой статье приведена пошаговая инструкция по созданию складной чердачной лестницы. Вы узнаете о том, как правильно собрать основной шарнирный элемент, из чего сделать секции лестницы и как надёжно закрепить конструкцию в монтажном положении. Статья содержит схемы и чертежи.
Инвентарная заводская лестница на чердак — довольно распространённое изделие, которое можно приобрести во многих строительных магазинах. Однако бюджетные варианты не всегда надёжны, а крепкие фирменные изделия стоят соответственно. Изготовление необходимого предмета или устройства своими руками из подручных материалов очень популярно среди домашних мастеров. Чердачная лестница — не исключение.
Материал для работы
Чтобы собрать аналог заводского изделия, понадобятся качественные материалы, которые могут быть в наличии, особенно во время строительства:
- Брусок 50х50 (сосна) 1 сорт — 20 пог. м. Из него будет сделана рама крышки и проёма.
- Фанера 8-10 мм — 2 кв. м. Нужна для обшивки крышки.
- Доска 100х25-30 мм — 15 пог. м. Пойдёт на ступени и тетивы.
- Полоса стальная 3-4х20 мм — для подвижного крепежа колен.
- Уголок и пластина 3-4 мм — для основного механического элемента.
- Болты, гайки, шайбы, гроверы М12-М14.
- Саморезы.
Инструмент:
- Плотницкий — пила, шуруповёрт, угломер.
- Слесарный — сварочный аппарат, электроды 3-4, болгарка.
- Верстак и струбцины.
Порядок работы
В первую очередь нужно выбрать место для лестницы и сделать проём. При необходимости подрезать и установить промежуточные балки в перекрытии — на 6-7 мм больше размера предполагаемой крышки. Далее по размерам люка нужно собрать саму крышку — из бруска и фанеры. Конструкция может быть произвольной, но должна быть надёжной (лучше проклеивать соединения). Брусок с одной из коротких сторон должен быть скруглён — чтобы не мешать крышке открываться.
Сборка шарнирного механизма
Это самый ответственный элемент конструкции. Для его изготовления понадобится: стальной уголок, пластина и полосы толщиной не менее 3 мм. Форма деталей понятна из схемы, но размеры места сверловки следует определить индивидуально, исходя из ситуации по месту. Изготовленные детали должны быть качественными, их следует зачистить и обработать кромки.

Ключевой момент — определение угла открывания. Этот угол очень важен и фигурирует в изготовлении пластины. Для того чтобы правильно его выставить, спроецируйте будущий марш на местности — протяните нитку и опытным путём (подбором наилучшего положения) установите нужный угол. Надёжно закрепите его на угломере — он будет нужен при изготовлении ступеней.
Полученный угол нужно перенести на деталь, а именно на пластину. Для этого установить механизм в исходное положение, приложить угломер и двигать до момента, когда углы полки уголка и угломера совпадут. Затем разметить пластину по получившейся траектории и вырезать область хода детали.
В пластине следует заранее высверлить отверстия для монтажа к балке. Собираем механизм на болтах через шайбы.
После черновой сборки нужно примерить узел по месту, наживить и в точности воспроизвести процедуру открывания и закрывания люка. Если обнаружатся недостатки хода, исправьте их.
Затем нужно изготовить ответный механизм. Он должен полностью повторять первый, но в зеркальном виде. Используйте струбцины и верстак — зажимая детали вместе, вы добьётесь полной идентичности размеров.
Опытным путём произведите регулировку и окончательный монтаж. Крышка в открытом положении должна точно повторять угол, спроецированный шнуром.
Изготовление секций
Расчёт длины каждой секции:
- 1-я — длина проёма минус 10%
- 2-я — длина первой минус 10%
- 3-я — длина марша минус сумма первых двух
Предположим, что длина марша 2500 мм. Исходя из длины проёма 1200 мм:
- 1-я — 1080 мм
- 2-я — 972 мм
- 3-я — 448 мм
Размечаем целые доски согласно расчёту и переносим угол марша на тетивы.
Внимание! Тетивы должны быть установлены зеркально! Учитывайте это при разметке и сверловке.
На стыках секций сверлим отверстия Ø 25 — зеркально через одно.
Все детали нужно качественно обработать шлифлентой, скруглить фаски, чтобы максимально приблизить качество к заводскому.
Затем прорезаем по разметке канавки для ступеней. Древесину выбираем стамеской.
Конструкция отдельных секций собирается на саморезах 65 мм с прессшайбой через столярный клей Д-3.
Петли для коленьев можно сделать из той же полосы, что и механизм открывания. Для этого нарезаем 4 полосы по 160 мм и 4 по 120 мм, скругляем торцы. К четырем из них навариваем лапки до длины 160 мм с отверстием 8 мм. Должно получиться 8 одинаковых по длине деталей, но 4 из них со ступенькой.
Отдельные пластины собрать в шарниры при помощи болтов.
Сборка секций и монтаж лестницы
Разложить на ровной плоскости и установить готовые секционные шарниры так, чтобы болты крепления попадали в отверстия в дереве. Шарниры установить на болты М8-10.
После сборки первого колена проверьте систему на работоспособность. При необходимости устраните перекосы.
Затем присоедините нижнее короткое колено и испытайте систему.
Теперь лестницу осталось смонтировать в проектное положение — на крышку люка. Для монтажа используйте болты (саморезы не надёжны). Если после монтажа и испытаний всё работает без перекосов, конструкцию можно демонтировать для окраски. Используйте лаки и аэрозольную краску для металла.
Впоследствии конструкцию можно усложнять и делать более удобной, добавляя к ней:
- Дополнительные шарниры для устранения люфта.
- Пружину для поддержания конструкции, чтобы сделать открывание легче.
- Замок-фиксатор.
- Поручни.
- Использовать декоративную отделку и дополнительное утепление.
Готовый вид лестницы:
Вопрос отделки и утепления решается по месту, исходя из потребностей. Отделать крышку можно любым материалом, который впишется в потолок. В основном это пластик — лёгкий, недорогой и имеющий дополнительную прослойку воздуха. Разница в цене между «домашним» и «магазинным» вариантом складной лестницы — около 90% (80-150 у. е.). Для работы потребовались только несколько новых досок, покрытие для них и метизы.
Похожие статьи
Самодельная приставная лестница. Своими руками. Сборная, разборная, складная, раскладная. Сделать самому.
На дачном участке лестница нужна постоянно. Мне хотелось иметь возможность регулировать длину лестницы для разных целей и иметь возможность разобрать ее и занести в гараж. Самый простой способ — купить хорошую раскладную лестницу. Но, если есть желание сделать таковую самому, эта статья для Вас.
Основной недостаток всех самодельных приставных лестниц, которые я видел, — в креплении ступенек. Обычно ступеньки крепятся на гвоздях. Гвозди — вообще ненадежное крепление, кроме того, они нарушают структуру древесины и приводят к ее растрескиванию. Мы пойдем по другому пути. В нашей лестнице не будет ни одного гвоздя. Наша сборно-разборная лестница будет выполнена по морским канонам времен парусного флота. Ее конструкция показала свою надежность даже в суровых условиях моря. Конечно, мы будем использовать более современные и надежные материалы.
Материалы для приставной лестницы
Нам понадобятся:
- Клей ‘Титан’ универсальный .
- Брусок 40 х 40 мм. На бруске не должно быть сучков.
- Доска 60 х 20 мм. Такой доски купить нельзя. Распилим доску 100 х 20 мм вдоль.
- Прочный тонкий капроновый шнурок. Такой используется, например, в отвесах или для разметки. Его легко найти на строительном рынке и в хозяйственном магазине. Продается катушками. Пара катушек нам понадобится.
- Скотч.
Конструкция складной лестницы
Лестница состоит из сегментов. Количество сегментов Вы можете выбрать самостоятельно. Я сделал три сегмента по три метра. Сегменты собираются с помощью самодельных квадратных муфт. На одном сегменте муфта закреплена клеем намертво, а второй вставляется в нее. Как показал опыт эксплуатации, муфты надежно скрепляют сегменты лестницы в собранном положении. Разобрать лестницу тоже не составляет труда.
На рисунках (A), (B) изображены муфты. Они делаются из доски 60 х 20 мм. От доски отрезаются куски (2) длиной 300 мм. На каждую муфту понадобится четыре куска. Напилим продольные штанги (1) нужной длины. У меня они по три метра. Далее берем небольшой кусок бруска 40 х 40, обматываем его несколькими слоями скотча, чтобы он стал толще. Прикладываем этот кусок к торцу продольной штанги. Продольную штангу смазываем клеем на 15 см. Куски доски смазываем клеем с одного бока (с того, который будет прижат к другой такой доске). Собираем конструкцию, показанную на рисунке. Снаружи полученную коробочку смазываем клеем и ровно, плотно, туго наматываем на нее шнурок. Промазываем полученную обмотку клеем снаружи. Слой шнурка на клею — (3). Сушим. Удаляем вставленный кусок бруска со скотчем. Так как наш кусок был немного толще, чем брусок (за счет скотча), то на его место конец другой секции будет вставляться легко.
Собираем две продольные штанги. Наклеивать поперечины надо на собранные штанги, так как это обеспечит точное соответствие размеров сегментов и сборку — разборку без проблем.
Напилим из бруска поперечины. Длину и количество определите, исходя из Ваших потребностей. Я сделал длину 70 см, количество — 15, хотя на чертеже у меня их 12. Положим продольные штанги на возвышения по краям на нужном расстоянии друг от друга. Класть концы на возвышения нужно, чтобы было легко клеить поперечины и обматывать места соединений шнурком. Смажем места соприкосновения продольных штанг и поперечин клеем, совместим, намажем эти места снаружи клеем, намотаем шнурок. Шнурок сначала мотаем по одной диагонали, потом по другой. Намотав 4 — 5 витков, мажем их клеем, мотаем еще. Я намотал 15 витков по одной диагонали и 15 по другой.
Сушим. Лестница готова.
Несколько полезных советов
Храните лестницу в сухом запертом помещении. От атмосферных воздействий и влаги древесина будет гнить и разрушаться. Иногда это удается заметить, только упав со сломавшейся лестницы. Если приставная лестница валяется на участке, то незваные гости могут ее украсть или воспользоваться ею для проникновения в Ваш дом, например, через чердак, или разобрав крышу.
Лестница складная своими руками
Если у вас в доме есть чердачное помещение, лестница складная позволит сэкономить свободное пространство на первом этаже. Ее можно изготовить самостоятельно или приобрести в магазине. Однако первый вариант наиболее предпочтителен, так как вы сможете выполнить такую конструкцию, которая подойдет именно для того помещения, в котором она будет располагаться.
Габариты раскладных лестниц

Изготовление складной лестницы из двух секций

Особенности проведения работ

Изготовление лестницы в люке

Подготовка материала

Изготовление лестницы

Работа над механизмом складной лестницы с люком

Подготовка материала
Для процесса будет необходим один уголок, полосы разной длины в количестве двух штук, а также кусок листовой стали.
Рекомендации по проведению работ
На следующем этапе необходимо отметить расположение отверстий для шарниров. Расстояние между ними должно быть определено опытным путем. Далее нужно проделать отверстия для установки болта М100. Когда производится сборка, крепежи затягивать сильно не нужно. Теперь можно зафиксировать необходимый угол открывания люка и раздвинуть будущий механизм до нужного угла. Затем на металле следует отметить область, которую при открывании станет перекрывать уголок. Это позволит вырезать элемент с помощью лобзика. Теперь полосы металла должны быть приведены в надлежащий вид, для этого с них необходимо обрезать лишнюю длину, а также следует скруглить их концы. Это исключит задевание уголка и не будет препятствовать передвижению конструкции. Следующим шагом станет повторная сборка всего механизма. На этом можно считать, что один механизм готов, можно переходить к работе над вторым.
Изготовление второго механизма
Важно изготовить его по такому же принципу, чтобы он оказался точно таким же, как и первый, только в зеркальном исполнении. Для этого нужно соединить все детали с помощью струбцин и просверлить необходимые отверстия. После того как одно отверстие будет готово, в него нужно установить болт и просверлить другое. Затем детали скручиваются между собой и равняются по длине. По такой технологии нужно изготовить все детали. В итоге мастер должен получить пару совершенно одинаковых механизмов.
Заключительные работы
Если вы решили самостоятельно сделать металлические складные лестницы, на следующем этапе необходимо установить изготовленные механизмы на люк и примерить все к проему. Важно учесть высоту фиксации на балке перекрытия. Это указывает на то, что деталь не должна выходить за пределы перекрытия. Если ошибка все же была допущена, то можно произвести монтаж временных брусков. Люк предстоит подогнать таким образом, чтобы он хорошо открывался и не касался стенок проема.
Изготовление поддерживающего механизма
Если изготавливаются лестницы алюминиевые складные, то для них тоже необходим будет поддерживающий механизм. Для этого следует подготовить две полосы из металла, ширина которых равна 20 миллиметрам. Пригодится в данном процессе и уголок. Для этого к концу одной из полос следует укрепить методом сварки кусок металла, который будет упираться в 2 полоски. Из уголка предстоит сделать своеобразную опорную площадку. В конечном итоге у вас должен получиться шарнир, который при открывании люка будет оставаться несколько согнутым, однако он будет надежно держать нагрузку. Впоследствии данный узел необходимо установить так, чтобы он полностью оказался разложен, когда механизмы открыты максимально. Это обеспечит равномерное распределение нагрузки между элементами, когда складная лестница окажется открытой.
Особенности изготовления лестницы на тетивах
Вами могут быть изготовлены лестницы алюминиевые складные, такие конструкции обладают малым весом и не занимают много места. Однако достаточно часто лестницы изготавливаются и с использованием деревянных досок. В такой конструкции могут быть использованы не только ступеньки, но и тетива. Оба этих составляющих элемента должны быть подготовлены из дюймовой доски, ширина которой равна 100 миллиметрам. Длина первой секции должна соответствовать габаритам люка, тогда как вторая будет несколько меньше, однако она не должна задевать потолок при складывании. Третья секция будет иметь такую длину, которая позволит ей остаться на поверхности пола. Для того чтобы обеспечить более эстетичный внешний вид конструкции, можно произвести шлифование граней с помощью фрезера. На тетивах следует сделать небольшое углубление для установки ступеней. Саморезы и клей позволят соединить все детали в единую конструкцию. Петли станут соединять секции марша, а также позволят лестнице раскладываться и складываться. Если учесть данные правила, то проведение работ будет успешным, а вы добьетесь ожидаемого результата.
10 очаровательных звездных детей, которые сегодня выглядят совсем иначе Время летит, и однажды маленькие знаменитости становятся взрослыми личностями, которых уже не узнать. Миловидные мальчишки и девчонки превращаются в с.
11 странных признаков, указывающих, что вы хороши в постели Вам тоже хочется верить в то, что вы доставляете своему романтическому партнеру удовольствие в постели? По крайней мере, вы не хотите краснеть и извин.
Топ-10 разорившихся звезд Оказывается, иногда даже самая громкая слава заканчивается провалом, как в случае с этими знаменитостями.
20 фото кошек, сделанных в правильный момент Кошки — удивительные создания, и об этом, пожалуй, знает каждый. А еще они невероятно фотогеничны и всегда умеют оказаться в правильное время в правил.
Эти 10 мелочей мужчина всегда замечает в женщине Думаете, ваш мужчина ничего не смыслит в женской психологии? Это не так. От взгляда любящего вас партнера не укроется ни единая мелочь. И вот 10 вещей.
13 признаков, что у вас самый лучший муж Мужья – это воистину великие люди. Как жаль, что хорошие супруги не растут на деревьях. Если ваша вторая половинка делает эти 13 вещей, то вы можете с.
Как сделать складную чердачную лестницу своими руками: пошаговые инструкции и мастер-классы
Уже давно прошли времена, когда на чердак хозяевам домов приходилось подниматься по громоздкой приставной лестнице. Современные варианты для чердака хороши тем, что занимают минимум места как в сложенном, так и разложенном состоянии, и о наличии такой конструкции за красиво отделанным чердачными люком догадаться сложно даже внимательному человеку. И однозначно радует глаз такая замечательная альтернатива винтовым конструкциям и стремянкам, как складная лестница чердачная – своими руками вы ее можете изготовить с правильными креплениями, с крепким пружинным механизмом и ничуть не хуже современных дорогих рыночных изделий. И даже лучше!
Содержание
Вот самый простой вариант изготовления такой лестницы из буквально подручных материалов:
Складная чердачная лестница должна легко прятаться и складываться под потолком, а поэтому ее принято делать покороче, с небольшим количеством секций. Ведь каждая лишняя ступенька в этом плане – это дополнительный вес и объем.
Такие лестницы хороши прежде всего тем, что позволяют значительно экономить пространство. При этом они совершенно не портят потолок жилого помещения. Ведь вход на чердак зачастую располагаются как раз в одной из обитаемых комнат дома. При этом такие лестницы достаточно функциональны, прочны и компактны. А пользоваться ими – проще простого: достаточно взять в руки специальный стержень с крючком на конце и зацепиться за кольцо.
Далее левой рукой легко достаете нижнюю ступеньку крайней секции, дотягиваетесь до пола и распрямляете все остальные составляющие лестницы. Точно также, проделав все в обратном порядке, вы легко складываете лестницу назад и убираете в потолок. Причем многие современные чердачные лестницы ко всему еще и раскладывается-складывается при помощи электропривода, что вообще невероятно удобно:
Еще одно достоинство — безопасность. Спускаться и подниматься по такой лестнице намного безопаснее, чем по приставной: она не сломается под ногами и ножки неожиданно не «уедут».
И, наконец, легкость. Самые легкие складные чердачные лестницы изготавливают из нержавеющей стали и алюминия, благодаря чему на чердачное перекрытие не оказываются серьезные нагрузки. Как вы понимаете, в виду особенностей конструкции такая лестница может быть сделана только из металла.
Готовые промышленные лестницы, которые сегодня активно предлагает рынок, достаточно удобны, насколько можно судить из имеющихся отзывов на них. Но ставить их к чердакам, на которые часто приходится подниматься (например, там находится наша мастерская или мини-библиотека), мы не рекомендуем.
Почему? Потому что такие лестницы нередко на практике оказываются довольно хлипкими – это ведь не hand-made изготовление, а массовое производство, и делать их слишком прочными нет нужды ни одному производителю. На любой товар всегда рассчитывается максимально пограничная нагрузка, которая зачастую не учитывает достаточно много факторов и форс-мажоров. А этот самый случай, когда вы в спокойном состоянии и почти без дополнительно веса в руках осторожно спускаетесь или поднимаетесь. Поскользнетесь, упадете или достаточно полный родственник решит поднять на чердак тяжелую коробку – ждите неприятностей.
А еще такие лестницы нередко делают довольно крутыми, и спускаться по ним неудобно с чем-то в руках – одной вам нужно придерживаться. И спускаться только лишь спиной вперед. Поэтому вполне естественно, что многие домашние умельцы, которые сами построили свой дом или баню, не видят никакого смысла покупать хрупкие и дорогие складные лестницы на чердак. Зачем, если их можно сделать своими руками, причем отличного качества и куда большей надежности?
Причем в этом случае у вас куда больше выбор как в плане материала для изготовления лестницы, так и самих крепежных элементов. Главное – это правильно рассчитать размеры будущей конструкции, чтобы потом она легко и компактно складывалась над люком, ничто не задевало проем и не создавало проблемы.
Еще одна частая причина того, что многие берутся сооружать такие лестницы самостоятельно, заключается в том, что у большинства промышленных вариантов обычно очень тонкие и хрупкие ступеньки – буквально скрипят под ногами.
Итак, для того, чтобы сделать такую лестницу для кровли своими руками, вам понадобятся деревянные обрезки. Определитесь сначала с размерами будущего проема чердака, а вторым шагом изготовьте крышку и раму люка. К нему потом вы будете крепить лесенку. С каждой стороны при этом желательно оставить зазоры по 7-8 миллиметров. Технические параметры вот какие:
Итак, а теперь разберемся, каких видов бывают чердачные складные лестницы.
Раздвижные лестницы состоят обычно из двух секций, одна из которых крепится прямо к крышке люка, а вторая раздвигается уже вертикально при помощи специальных направляющих. Когда вы складываете такую лестницу, одна секция при этом как бы наползает на другую, что достаточно удобно. Единственный минус – это громоздкость всей конструкции, которая требует широкого проема в чердачном перекрытии.
Наиболее популярны сегодня – раскладные лестницы, иначе называемые секционные. Состоят такие из трех-четырех секций, которые легко выпрямляются в лестничный марш. Соединены они между собой специальным пружинным механизмом.
Раскладные конструкции считаются самыми сложными по своему устройству, так как у них много крепежных элементов и их правильно нужно присоединять к отверстию люка. Такие лестницы изготавливаются как из дерева, так и из металла.
Следующий вид – это телескопическая конструкция. Она замечательно себя показывает в тех случаях, когда чердак посещается довольно часто. Например, когда его специально утеплили, чтобы сделать жилым, хотя до полноценной мансарды еще не дошло. Т.е. мы говорим о техническом чердаке, как гардеробная или мастерская, а в этом случае жилой мансарды лучше поставить винтовую лестницу из дерева или металла и обязательно с перилами.
В телескопической конструкции блоки выдвигаются поочередно, при этом занимая как можно меньше пространства. И хороши такие лестницы особенно тем, что их можно выдвинуть практически на любую длину, что особо ценно для высоких потолков. Но подобные приспособления не пригодны для детей и старшего поколения в доме, которым достаточно трудно дотянуться до нижней секции и вообще справиться со всей конструкции.
Эти виды складных лестниц не прячутся за люком на чердаке, но их легко убирают в угол или за интерьерную декорацию. Например, вот такой более редкий вид, который обычно изготавливается самостоятельно, тоже имеет право на жизнь:
А такие варианты складных лестниц довольно популярны за рубежом:
Но оба этих варианта обладают немалыми минусами, одни из которых способны привносить дискомфорт в интерьер жилого помещения, откуда идет выход на чердак, и через месяц-другой такие конструкции уже надоедают хозяевам своей бестолковостью до оскомины. А поэтому мы все-таки предлагаем вам разобраться подробнее с более практичными складными лестницами, которые легко складываются и прячутся за крышкой люкой.
Итак, дадим вам несколько советов по выбору чердачной лестницы.
- Совет №1. Когда вы выбираете параметры для будущей лестницы, учитывайте механизм люка: при его открытии и закрытии он может слегка выдвигаться вперед и назад.
- Совет №2. Если потолок в комнате достаточно высокий, и превышает 3,5 метра, лучше ставить маршевую или приставную конструкцию, либо винтовую лестницу, которые будут более безопасными в данном случае.
- Совет №3. Учтите при изготовлении люка, что чем проем больше, тем больше тепла будет уходить на чердак.
- Совет №4. Еще один момент, на который вам стоит обратить внимание – это то, как будет открываться люк. Например, в готовых рыночных вариантах чаще всего он открываются медленно, благодаря специальным пружинам, и уж точно никому не сваливается на голову. Обязательно проработайте этот момент, тем более что специальные детали сегодня приобрести не сложно.
- Совет №5. Крутизна лестницы всегда определяется ей только ее углом. Чем больше выступ ступени, тем больше количество этих ступенек и тем меньше их высота. Но это вовсе не значит, что по такой лестнице вам удобно будет подниматься и спускаться. Поэтому самый удобной назовем высоту ступенек в 20 сантиметров, которая больше всего подходит под стандартную человеческую стопу.
Вот очень полезное видео, которое поможет вам избежать многих ошибок при монтаже такой лестницы:
Что касается основного материала, самой доступной окажется деревянная лестница, но здесь важно особое внимание уделить прочности крепежа. Для изготовления такой лестницы вам нужны будут два длинных и два коротких бруска, а также кусок фанеры толщиной в 10 миллиметров.
Давайте рассмотрим этот момент подробнее. Все конструкции, которые помогают открывать лестницу с люком низ, отличаются только наличием дополнительных механизмов и амортизации. Амортизация, в свою очередь, облегчает закрывание и открывание лестницы. И все необходимые шарнирные элементы вы можете купить в любом магазине. Но вполне подойдут для устройства такой лестницы простые металлические полосы, просверленные в нескольких местах, а дороже всего вам обойдется для обустройства лестницы алюминиевая раздвижная система.
Нехитрое и практичное крепление:
Более сложная система:
А вот какие требования предъявляются к крепежу всей лестницы. Первое – это способность выдержать вес всей конструкции, а также вес человека, который будет по ней подниматься и спускаться. И не только статические нагрузки стоящего на ней человека с его определенным весом, но и динамические, которые бывают на много больше статических. Например, человек оступился и резко встал на ступеньку пониже, или пошатнулся и налег на лестницу всем своим весом, но резко и внезапно.
И, наконец, отметим возможность легко управлять конструкцией. Как вы понимаете, такая лестница весит прилично и важно, чтобы вы потом посмотри легко ее открывать. И при закрытии, вам придется поднимать весь вес сразу, а потому предусмотрите специальные пружины, которые облегчат вам весь процесс со временем – вы будете благодарны такому такой хитрости.
Итак, давайте разберемся шаг за шагом как изготовить складную лестницу для вашего чердака. Вам понадобятся такие инструменты: ножовка, лестница, шарниры, два бруса, болты, саморезы, шуруповерт и металлический крюк.
Сам процесс можно разделить на несколько шагов:
- Шаг 1. Закрепите верхний брус к проему при помощи петель, а нижний при помощи саморезов. Сам крепеж должен оказаться с обратной стороны лестницы.
- Шаг 2. А теперь все соединяем при помощи самых обычных болтов, диаметром 6 или 8 миллиметров. Меньший диаметр может не выдержать нагрузки, больший – просто не нужен. Помните, что саморезы здесь вообще нельзя использовать – они не выдержат нагрузку и на определенный день просто вырвут все крепление системы.
- Шаг 3. Теперь делим лестницу на три части, отмеряем 2/3 и производим распил, как раз между ступеньками.
- Шаг 4. Распиленные части снова соединяем, но уже петлями.
- Шаг 5. Бруски большей длины прибейте с обратной стороны так, чтобы они получились наискосок, для прочности.
- Шаг 6. Теперь сама лестница поставляется под люком и прижимается верхним бруском к стене. Закрепите этот брусок при помощи болтов.
- Шаг 7. Теперь займитесь крючком. Важно, чтобы лестница легко складывалась и прижималась к стене. А крючок прикрутите к стене напротив петли и зацепите его на нее.
Посмотрите на фото, так будет более понятно:
Поверьте, на практике все окажется намного проще!
Источники: http://hw4.ru/h-folding-ladder, http://fb.ru/article/201564/lestnitsa-skladnaya-svoimi-rukami, http://krovgid.com/montazh/lestnica-cherdachnaya-skladnaya-svoimi-rukami.html
нюансы конструкции и правила установки
Выдвижная чердачная лестница
Практически в каждом доме есть чердак. Некоторые люди его используют для хранения старых ненужных вещей. Другие рассматривают это помещение как дополнительное место для отдыха, спальни, детской. Также на чердаке можно поместить оборудование для системы отопления частного дома. Поскольку это помещение достаточно функциональное, то необходимо тщательно продумать удобный вариант чердачной лестницы. Чердачные конструкции могут быть разнообразными и отличаться материалом, структурой, размерами.
Очень небольшое количество людей используют все возможности, которые может предоставить выдвижная конструкция. Если чердачная лестница расположена со стороны улицы, то непригодные и ненужные вещи в данный момент вы складываете, в основном, сразу при входе на чердак, поэтому основная часть площади на чердаке не используется. Для каждого дома очень важно, чтобы любой уголок помещения был функционально задействован. Если вход на чердак будет расположен изнутри дома, то это помещение может стать уютной частью вашего жилья.
Особенности выдвижной конструкции
Многие заводы изготавливают конструкции, учитывая особенности различных интерьеров. При том лестницу стараются сделать максимально функциональной и удобной. Так во многих моделях достаточно приоткрыть люк при помощи специального устройства и конструкция выезжает сама. Что же касается сборки основного механизма, то она происходит без особых затруднений, и не требует специальных навыков. К каждой лестнице обязательно прилагается подробная и четкая инструкция, которая поможет вам определиться с условиями эксплуатации и монтажа.
В отличие от других видов лестниц, раздвижная чердачная занимает очень мало места из-за особенности ее конструкции. Механизм ее действия свободно размещается в крышке люка и по принципу похож на раскладывающуюся гармошку. Именно эта характерная особенность наиболее привлекательна для потребителя при выборе таких конструкций на чердак. За счет этого нет необходимости дополнительно расширять проем. Учитываются только размеры самой конструкции, внутреннего механизма и уклон, который должен соответствовать ГОСТ 26887-86 и ГОСТ 24258-88.
Материал изготовления и характеристики
Вся поверхность конструкции покрывается специальными красками, благодаря которым можно выбрать самый неожиданный и интересный цвет. Это дает возможность для полета вашей фантазии и создания необычного дизайна. Главным моментом выдвижных конструкций является то, что раздвинуть и опустить такую лестницу смогут даже пожилые люди. Каждая ступень может выдержать вес до 150 кг. Лучше, конечно, не перегружать лестницу, чтобы она без поломок функционировала много лет.
Важно!
Выдвижные чердачные лестницы изготавливают только из металла. Элементы дерева могут присутствовать только в отдельных вариантах декорирования.
Выдвижная лестница состоит из нескольких секций, которые по очереди выдвигаются при открытии люка. Крышка люка изготовляется, в основном, из ДСП или других похожих материалов. Толщина такого куска плиты варьируется от 15 до 20 мм. Но, если вы хотите, чтобы ваш чердак был теплым, то толщина может быть увеличена до 30 мм. Если вы неверно рассчитали длину лестницы, и она оказалась несколько больше, то ее можно без проблем уменьшить, или наоборот, добавить элементы.
В каких случаях выбирают выдвижную лестницу
Если вы планируете пользоваться вторым этажом или чердаком в редких случаях, то вы можете установить обыкновенную лестницу. Но если вы будете пользоваться лестницей достаточно часто, выдвижная конструкция станет прекрасным выбором. При наличии детей, нужно помнить о том, что очень крутые и неудобные лестницы могут быть для них очень опасны. В данном случае, выдвижные чердачные конструкции будут самым лучшим решением. Они складываются в люк и становятся полностью вне досягаемости детей. При этом сам процесс управления лестницей очень прост и легок.
Примеры использования и типы чердачных лестниц.
Чтобы установить стандартный вариант, нужно освободить большую часть площади в помещении. Это предусмотрено нормами СНиП и рекомендуемым углом наклона. По нормам он должен быть в пределах между 30 и 45 градусами. Для выдвижных лестниц угол наклона можно увеличить до 70. В итоге происходит уменьшение пространства, которое занимает конструкция, и значительно становятся меньше размеры лестничного проема.
Важно!
Внимательно изучите СНиП 2.08.01-89 и ГОСТ 23118-99, которыми предусмотрены все необходимые строительные требования и нормы для лестниц.
Особенности выдвижных лестниц
Если вы решили подняться на чердак, то вам нужно поднять люк, в котором спрятана сама выдвижная конструкция. Для этого существует несколько способов:
- механический способ — для этого вам нужно палкой с крючком открыть люк;
- дистанционный способ — применяется пульт на управлении.
После того, как вы любым удобным для вас методом открыли крышку люка, конструкция плавно спускается на пол. Процесс складывания тоже достаточно прост.
Основные преимущества, которыми обладают чердачные выдвижные лестницы:
- экономия пространства;
- относительная легкость конструкции;
- надежность;
- долговечность;
- простота в использовании;
- огнестойкость;
- удобство и комфорт.
Вы можете произвести монтаж элемента самостоятельно или пригласить опытного специалиста. Мастер поможет подогнать проем под лестничный люк, собрать весь механизм, отладить и наладить работу изделия, подскажет все вопросы относительно лестничной конструкции и возможных ее поломок.
В современном мире чердачные лестницы набирают особую популярность. Поскольку они отличаются надежностью и компактностью, интересным дизайнерским решением, их все чаще приобретают для частных домов.
Лестница на чердак, как элемент декора
В последнее время люди стали все чаще и чаще приобретать модные предметы мебели и аксессуары. Каждый хочет, чтобы дом был полностью использован рационально, и каждый уголок помещения был задействован. Люди понимают, что ненужные вещи и громоздкая мебель только забирают пространство, и зрительно уменьшают помещение. Это относится и к чердаку. В зарубежных странах чердаки самые стильные комнаты в доме. Мода на то, чтобы из чердака сделать уютную и теплую комнату, дошла и до нас.
Лестница на чердак является одним из элементов декора и дополнения всего интерьера помещения. Такая конструкция может помочь подчеркнуть индивидуальность и стиль всего дома.
В любом магазине вам помогут подобрать оптимальный вариант, а также ответят на все вопросы относительно ремонта, установки и качественного эксплуатационного обслуживания. Приобретая данные конструкции в проверенном специализированном магазине, вы можете быть уверены в том, что ваша чердачная лестница будет служить вам долгое время. В случае несоответствия конструкции указанным вами параметрам, вы имеете право по Закону «О защите прав потребителей», вернуть товар.
Как устанавливается чердачная лестница
Если вы решили установить лестницу самостоятельно, то вы должны помнить о том, что точный расчет всех частей защитит вас от неприятных ситуаций.
Например, можно избежать момента, когда конструкция просто не поместится в люк. Ножки лестницы упрутся в пол, поэтому помните о специальных колпачках против царапин. Каждая чердачная лестница изготавливается в паре с люком. Если устройство закрыто, то его даже не видно. Виден только крючок для выдвигания. Для установки потребуется пара человек — один наверху, а второй внизу.
При этом необходимо помнить о следующем:
- Люк должен точно подходить под размеры устройства.
- Нужно установить бруски внизу проема, потом поднять лестницу наверх и поставить на бруски.
- Установить распорки между проемом и лестницей.
- Лестничная коробка должна быть зафиксирована с помощью шурупов.
- Убираем бруски и раздвигаем лестницу.
- Регулировка положения механизма происходит по инструкции.
Процесс установки чердачной лестницы
Выдвижная лестница – это оптимальное решение в помещении, в котором стараются заполнить каждый квадратный метр функционально. На нашем сайте вы можете найти инструкции по установке конструкции в домашних условиях без помощи мастера. Основные параметры можно найти в обязательных положениях СНиП 2.08.01-89.
lestnitsygid.ru
Выдвижная лестница на чердак: особенности и модификации
Выдвижная лестница на чердак имеет множество преимуществ, а потому сегодня используется практически во всех современных домах, она позволяет значительно сэкономить место и в то же время выполняет свою основную функцию не хуже стационарных конструкций. Давайте разберемся, в чем её особенности и какую модель лучше всего выбрать?
Особенности конструкции
Специфика конструкции чердачной выдвижной лестницы состоит в том, что в сложенном виде она очень компакта, но при этом способна выполнять полноценные функции для этого типа изделий. В разложенном виде она представляет собой обычную лестницу со ступенями, закрепленными с обеих сторон. В зависимости от используемого материала и конкретного типа конструкции, она может отличаться как внешне, так и своими характеристиками.
Ключевое преимущество такой лестницы в том, что она практически не отнимает полезное пространство
В сложенном положении раздвижная лестница прячется под люк выхода на чердак. Для её фиксации при этом используются стопоры и веревки, это позволяет легко и быстро убрать загромождающую пространство конструкцию. Пока она вам не понадобится, её сложенный вариант будет храниться в недоступном для взоров месте, не мешаясь вам под ногами. В случае необходимости просто откройте люк и разложите изделие. Это гораздо удобнее, нежели каждый раз приносить стремянку или устанавливать стационарную модель.
Преимущества и недостатки
Именно такого плана чердачная лестница чаще всего используется в современном строительстве. Особенно это актуально для частных домов. Чем же так хороши подобные конструкции, давайте рассмотрим преимущества выдвижных лестниц:
- Компактность. Как уже говорилось, такие изделия не занимают много места, причем это касается не только сложенного положения, но и разложенного. Они располагаются четко под люком на чердак, а за ненадобностью складываются и прячутся под ним. Для установки также не требуется много места, такая конструкция может быть вмонтирована в любой тип перекрытия.
- Удобство. Пользоваться раскладной лестницей очень просто, а хранить – удобно. К тому же различные вспомогательные элементы, такие как перила, раздвижные ступени и т. д. повышают характеристики эргономики и безопасности.
- Незаметность. Пока вам не понадобится подняться на чердак о существовании такой конструкции можно вообще не догадаться, она прячется под люк чердака и поэтому полностью скрывается с глаз. На вид вашего интерьера её наличие никак не повлияет.
- Легкость. Несмотря на то что функции выполняются такие же, как и у стационарных моделей, выдвижные гораздо легче. С ними может справиться как подросток, так и пожилой человек. Небольшое количество используемых материалов, а также удобные крепления и механизмы обеспечивают легкую сборку и разбору.
- Простота использования. Для того чтобы добраться до чердака нужно лишь открыть люк и потянуть за ножки нижней секции – это все, что нужно для того чтобы разложить лестницу. Складывается она так же легко, как и разбирается.
- Стоимость. В отличие от стационарных моделей, стоимость этого типа изделий ниже, что позволяет сэкономить не только на покупке непосредственно самой лестницы, но и на её установке.
Чердачная лестница должна быть функциональной и безопасной
Что касается недостатков, конкретные пункты выделить довольно сложно. Многое зависит от типа самой конструкции и качества её исполнения. Иногда из-за несовершенства или нарушения требований могут быстро расшатываться крепления, царапаться пол или заедать рычаги.
Модификации
Выдвижные лестницы на чердак могут различаться своей конструкцией, принципом раскладки, внешним видом и материалами, из которых они изготавливаются. Прежде всего стоит рассмотреть типы конструкций, различают такие вариации лестниц на чердак:
- раздвижная;
- откидная;
- складная.
Они отличаются принципом раскладки. Также стоит отметить, что они могут быть изготовлены из следующих материалов:
- дерево;
- металл;
- комбинирование деталей.
Раздвижная модель может быть изготовлена только из металла. Для других типов изделий подобных ограничений не существует.
Множество нюансов связано именно с вопросом устройства того или иного типа конструкций, поэтому их следует рассмотреть более подробно.
Складная телескопическая
Такой тип конструкции представляет собой некое подобие обычной приставной лестницы. В сложенном состоянии она занимает очень мало места, так как её части заходят одна за другую.
Когда вам требуется разложить её, нужно раздвинуть все части лестницы таким образом, чтобы они соединились между собой. Чаще всего такая складная лестница имеет разную длину перекладин-ступеней. Ближе к основанию они больше, нежели сверху. Это обусловлено особенностями конструкции: боковины тетивы расположены не параллельно друг к другу, а под небольшим углом, что обеспечивает лучший упор в разложенном состоянии и удобство складывания лестницы. В усовершенствованных моделях есть специальные направляющие, которые облегчают движение фрагментов.
В сложенном виде телескопическая лестница очень компактна и практически не занимает места
Раздвижная
Еще один тип конструкции – раздвижная лестница. Она изготавливается из металла, так как по сути полностью состоит из отдельных деталей. По принципу складывания она напоминает гармошку. Все фрагменты скреплены между собой подвижными болтами, которые фиксируются в полностью разложенном положении. Для такого типа лестницы нужно обязательно обеспечить устойчивую платформу для упора на нижнем уровне.
Для удобства передвижения раздвижные модели лестниц на чердак оснащены преимущественно плоскими ступенями. Таким образом, нога не скользит и становится более-менее устойчиво на подножку.
Если нужно сложить лестницу, достаточно приподнять её и толкнуть до упора в направлении люка. Места для её хранения нужно минимум, так как это, пожалуй, самая компактная вариация выдвижных подъемных конструкций. Что касается самого материала, предпочтение следует отдавать достаточно прочным, но в то же время легким сплавам.
Раздвижная чердачная лестница — современные технические решения
Откидная
Самая сложная и массивная в исполнении – откидная чердачная лестница. Она состоит из нескольких нарезных фрагментов обычной лестницы. Тетива соединяется с помощью петель или так называемых башмачков. Это шарнирный элемент наподобие петель. Он позволяет двигать складные части конструкции до определенного уровня.
В сложенном состоянии лестница занимает больше места, чем предыдущие модели. В связи с этим нужно обеспечить достаточную площадь для её хранения и разборки. Именно поэтому наличие чердачного люка в этом случае является обязательным условием.
Принцип конструкции состоит в том, что одна её часть фиксируется на крышке люка. При открывании наружу становится возможным разложить лестницу до уровня пола. Каждая секция откидывается в нужном направлении. По сути схема раскладки напоминает книжную. Как только тетива соединяется, лестница фиксируется в нужном положении и её можно использовать. После этого её можно сложить в таком же порядке, в котором производилась разборка.
Откидная чердачная лестница в сложенном виде
Как сделать своими руками
Для того чтобы обустроить вход на чердак или в мансардное помещение необязательно приобретать уже готовое изделие по завышенным ценам. Если вы обладаете достаточными навыками, вы можете изготовить аналог выдвижной конструкции своими руками. Для этой цели лучше всего использовать дерево. Так как чердачная лестница должна быть легкой, лучше всего подойдет сосна. Обязательно проверьте качество древесины, от этого во многом зависит безопасность эксплуатации готового изделия.
Проще всего, как ни странно, сделать самую сложную по строению вариацию, а именно откидную. Для этого вам потребуются деревянные балки подходящей толщины и крепления.
Чертеж откидной чердачной лестницы
Как сделать выдвижную лестницу своими руками:
- Для начала определите высоту конструкции. Для этого измерьте расстояние от пола до покрытия чердака с учетом небольшого уклона.
- Подсчитайте необходимое количество ступеней. Оптимальный шаг – 25-30 см.
- Распилите тетиву на отрезки примерно по 70 см.
- Распилите балку меньшего сечения на отрезки примерно в 40-50 см.
- В балках большего сечения, которые послужат тетивой, наметьте места крепления ступеней.
- Закрепите перекладины методом шип-паз или с помощью гвоздей и саморезов.
- Соедините фрагменты с помощью петель или поворотных креплений по бокам так, чтобы лестница складывалась книжкой.
Если вы конструируете лестницу на чердак своими руками, убедитесь, что она достаточно прочная и соответствует всем правилам безопасности.
Еще до того как вы закончите изготовление самой лестницы нужно продумать оптимальный способ её крепления.
Особенности установки
Способ крепления выдвижных лестниц по большому счету одинаковый для всех модификаций, будь то раздвижная или откидная. Главное условие – обеспечение надежности фиксации конструкции как в сложенном, так и в разложенном расстоянии.
Оптимальный вариант – задействование люка. Обратите внимание: он обязательно должен открываться наружу, причем вниз. В таком случае основание лестницы крепится именно к нему с внутренней стороны.
Для этой цели лучше всего использовать металлические уголки и болты. С их помощью зафиксируйте на люке лестницу в нескольких местах. Чтобы крышка люка оставалась в нужном положении и не оторвалась при подъеме по лестнице, необходимо дополнительно укрепить её. Для этого можно использовать металлические подъемники и ограничители движения.
Для удержания конструкции в сложенном положении, даже при наличии специальных фиксаторов, в целях безопасности дополнительно рекомендуется использовать крючки, цепи или веревки.
Выдвижная лестница – это отличный вариант для обустройства подъема на чердачное помещение. Сочетание компактности и функциональности – лучший выбор для любого дома.
Рекомендуем посмотреть видео:
vseolestnicah.ru
Чердачная лестница с люком своими руками – разные варианты сборки + видео
В загородном доме пространство под кровлей нередко является полезной площадью и активно используется, поэтому нелишней будет чердачная лестница с люком, сделанная своими руками.
Виды лестниц для доступа на чердак
Для сообщения между этажами всегда использовались лестницы, не является исключением и последний, самый верхний уровень – чердак или мансарда. Подъем в подкровельные помещения можно включить в единый маршевый комплекс, то есть расположенное ниже перекрытие будет служить площадкой для следующего лестничного пролета. Но на чердак доступ можно организовать двумя способами – через дверь с небольшой площадки, куда можно подняться по ступеням с жилого этажа, или через люк, непосредственно на верхнее перекрытие.
Единый маршевый комплекс для подъема в подкровельное помещение
Теперь же поговорим о самой конструкции лестничного пролета. Она может быть стационарной со ступенями, либо опускающейся непосредственно в люк, будучи закрепленной на его крышке. Второй вариант является более компактным, но сложнее в исполнении, первый же требует значительной площади, даже для винтового марша. Отдельно стоит упомянуть откидную лестницу с перекладинами, которая закрепляется на стене, когда не нужна. Наиболее практичными выглядят именно подвижные модели: откидная, телескопическая, раздвижная и ножничная.
Часто в поисках информации об откидных моделях вы можете найти упоминание о секционных, шарнирных, складных лестницах. Все это разные варианты одного и того же типа – откидного, поскольку именно таков принцип действия конструкции. Не путаем секционные откидные модели с пролетами такого же типа, но с тетивами в качестве основы. Последние представляют собой обычные ступени, закрепленные на полого расположенных брусьях, которые и называются тетивами, один из которых жестко зафиксирован на стене, а второй поднимается на шарнирах ступеней.
Откидная лестница – особенности конструкции
Для начала давайте рассмотрим складные модели, которые изготавливаются как из металла (алюминий, нержавеющая сталь), так и из дерева в сочетании со стальными деталями. Независимо от высоты потолка, даже если до него можно дотянуться рукой, раскладная лестница на чердак всегда будет состоять минимум из 3 секций, как покупная, так и сделанная своими руками, чертежи редко в этом отношении отличаются.
Дело в том, что опоры нижней секции должны обязательно упираться в пол, и если сделать только 2 длинных колена, чердачный люк придется сильно вытянуть в длину. Это, в свою очередь, отнимет часть полезного чердачного пространства. При расчете длины лестницы следует учитывать ее наклон к полу, строго вертикально она никогда не устанавливается. Соответственно, крышка должна откидываться вниз не под прямым, а под острым углом около 70-75 градусов. При этом шарнир между двумя верхними секциями становится центром дуги, которую описывает раскладывающееся колено, в связи с чем люк должен быть такой, чтобы нижняя часть второй секции не задевала его край.
Откидная лестница с люком
Линия между опорами, упирающимися в пол, находится на 20-30 сантиметров дальше кромки чердачного проема, что обеспечивает достаточно комфортный угол положения лестницы. Последний фактор справедлив также к телескопическим или ножничным конструкциям. Самая верхняя секция раскладной модели обычно закрепляется непосредственно на крышке люка, чтобы открытие его одновременно начало подачу сложенных секций вниз.
Следовательно, удерживающие створку подвесы должны быть достаточно прочными, их лучше всего выбирать из расчета нагрузки в 150 килограммов. Чердачная лестница своими руками должна быть сделана с большим запасом прочности, если она будет активно эксплуатироваться при частых посещениях чердака, лучше всего – из металла. Исключением могут быть ступени, их можно выполнить из дерева, чтобы не слишком утяжелять конструкцию. Секции соединяются обычными неразъемными шарнирными или рычажными петлями.
Телескопическая чердачная лестница – купить или сделать самостоятельно?
Выдвижные секции телескопического типа представляются весьма сложным устройством для изготовления в домашних условиях, и многие покупают готовые вместе с чердачным люком. Однако можно обойтись приобретением только выдвижной лестницы, которая часто встречается в строительных магазинах рядом с инструментами. Ее отличительная черта – алюминиевые секции и пластиковые элементы для крепежа перекладин.
Монтируется такая лестница на чердак своими руками на люк, самой тонкой частью над петлями откидывающейся вниз крышки. На последнюю жестко закрепить не получится вследствие того, что телескопические колена довольно короткие, и фиксация хотя бы одного, помимо верхнего, будет мешать лестнице выдвигаться.
Телескопические колена
Перед тем, как сделать и установить такую чердачную лестницу своими руками, нужно тщательно замерить расстояние от пола до потолка верхнего жилого этажа. Если полностью раздвинутые колена будут слишком длинными даже при наклонном положении конструкции, 1-2 верхние секции можно жестко закрепить на люк в полувыдвинутом или сложенном положении. Хуже, если опоры лестницы не достают до пола, в этом случае придется крепить ее на опускающиеся подвесы без монтажа к кромке проема люка, крышка которого будет удерживаться отдельными рычагами.
При самостоятельной сборке механизма для спускания всей конструкции вниз, подвесы лучше закреплять на лестничных стойках при помощи стальных хомутов, возможно, со сквозной болтовой их фиксацией к опоре. Удерживаться в опущенном состоянии телескопическая лестница может как покупными коленчатыми рычагами, так и обычными тросиками. Для крышки люка, кроме подвесов, понадобятся пружины, которые, помимо удержания ее в закрытом положении, позволят поднимать ее без особых усилий. Впрочем, такими пружинами можно снабдить и верхние выдвижные секции лестницы (для подобной операции используются даже блоки, о которых речь пойдет дальше).
Раздвижная секционная конструкция для доступа на чердак
Многие считают, что выдвижная телескопическая лестница на чердак идентична раздвижной модели, однако разница между ними довольно существенная при изготовлении своими руками. Если в первом варианте секции длиной в отрезок стойки между двумя перекладинами выдвигаются одна из другой, то во втором случае они состоят из 5-6 ступеней и скользят одна вдоль другой по внешним направляющим.
Раздвижная секционная конструкция
Иными словами, телескопическая конструкция более компактна, но раздвижную проще сделать самостоятельно. Ведь легче собрать секции, движущиеся по салазкам, чем подбирать отрезки труб разного диаметра, не говоря уже о фиксации этих отрезков, чтобы они не распадались при выдвигании. Что касается сборки раздвижных лестниц, они могут быть разными. Наиболее простой вариант – все секции одинакового размера и уложены одна поверх другой, с соединением на салазках с роликами.
Другой тип – нижние секции уже верхних и располагаются одна внутри другой, по принципу пожарной лестницы. В этом случае опоры верхнего колена должны быть шире нижнего, чтобы секция легко умещалась поверх перекладин, салазки же располагаются с внутренней стороны стоек, а ролики – с внешней. У такой модели самое верхнее колено, независимо от типа конструкции, должно быть жестко зафиксировано на крышке люка, снабженной прочными подвесами и пружинами.
Ножничная чердачная лестница – передовые технологии
Данный вариант, пожалуй, самый интересный, поскольку дает возможность подниматься в подкровельные помещения по полноценным плоским ступеням достаточной ширины, чтобы комфортно поставить подошву ноги. При этом складывается лестница так же компактно, как и телескопическая. У данной конструкции есть одно неоспоримое преимущество: если приделать пружину хоть к одной секции, подтягивая ее вверх, в люк, натяжной элемент будет складывать все колена, являющиеся взаимосвязанными рычагами.
Вся конструкция напоминает несколько десятков ножниц, которые попарно шарнирно соединены кольцами и кончиками ножей между собой. Ступени всегда монтируются в точках пересечения металлических полос, там, где у ножниц находится винтик. При этом они жестко фиксируются по отношению к осям, которые имеют ограничение вращения. Изготовить такие чердачные лестницы своими руками не сложно, нужно лишь иметь в наличии для 25 ступенек 100 металлических полос, предпочтительно из прочной нержавеющей стали.
Ножничная чердачная лестница
Каждые 2 полосы соединяются болтом точно по центру, а потом получившиеся элементы в форме буквы Х подвижно крепятся между собой с помощью коротких втулок. Ступеньки устанавливаются на перекрестиях. При этом, чтобы они не раскачивались, нужно либо провесить их чуть ниже на уголках, либо сделать ограничивающие выступы на противоположных металлических полосах.
Внимание – складывая ножничные секции, будьте осторожны, чтобы между планками не зажало пальцы.
Откидная лестница, закрепленная на стене
Здесь возможны 2 пути, как сделать лестницу на чердак. В самом начале мы упоминали о том, что двухсекционные раскладные лестницы непрактичны, если люк имеет небольшие размеры. Однако такую модель можно закрепить на стене, если проем располагается у края перекрытия. В этом случае делаем 2 секции, короткую и длинную, причем вторую закрепляем под самый люк, петлями на толстый брус, приделанный в верхней точке стены. Второе колено делается длиннее оставшегося расстояния до пола, и на петлях прикручивается понизу балок первого, так, чтобы в сложенном положении было между стеной и длинной секцией.
Другая откидная чердачная лестница своими руками делается на наклонных тетивах с полноценными ступенями вместо перекладин. Одна доска жестко фиксируется на стене, о чем мы уже упоминали выше. К ней прикручиваются петли для монтажа подвижных проступей, к которым, в свою очередь, также на петлях, крепим вторую тетиву, можно даже с перилами на стержневых балясинах. В верхней части, под проемом, делаем упор для опускающейся доски-тетивы. Чтобы вся конструкция держалась в откинутом вверх положении, ее нужно цеплять крючком к специально приделанной на стену металлической петле.
Оцените статью:
Поделитесь с друзьями!
remoskop.ru
Выдвижная лестница на чердак — Всё о лестницах
Выдвижная лестница на чердак: виды конструкций и их характеристики
Для экономии свободного пространства в частном доме зачастую применяется такое вспомогательное устройство, как выдвижная лестница на чердак, которая убирается в нужный момент, освобождая площадь помещения. Конструкция таких приспособлений может отличаться по принципу сборки, по размерам и структуре материалов для их изготовления, но, тем не менее, все они служат одной цели.
Ниже мы поговорим о таких устройствах и их использовании, а также посмотрим тематическое видео в этой статье.
Виды конструкций и их характеристики
Экономия пространства
Чердачная лестница в интерьере
- Возможности, которые открывают выдвижные чердачные лестницы, а точнее, их использование, достаточно обширны, но почему-то этим пользуются крайне редко, во всяком случае, менее 70% населения, живущего в частном секторе и имеющего чердак. Более того, когда вход на чердак или мансарду осуществляется с улицы и, как правило, по приставной лестнице для крыши, то остаётся незадействованной большая часть площади верхнего помещения — чаще всего там складывают какие-либо вещи, без которых можно обойтись вообще.
- В настоящее время, когда у людей растёт благосостояние, но цена на жильё растёт гораздо быстрее, то очень разумно использовать каждый квадратный метр по назначению, не оставляя его пустым. Поэтому, в таких помещениях можно оборудовать комнаты отдыха, студии и даже увеличить жилплощадь, подведя туда отопление. Всё это возможно в том случае, если вход наверх будет осуществляться не с улицы, как это часто бывает, а с квартиры, то есть, чердак станет продолжением вашего жилья.
Выдвижная чердачная лестница в действии
- Также на чердаке можно обустроить склад для тех вещей, которые нам не нужны для постоянного использования — это могут быть различные рыбацкие снасти, велосипед, лыжи и так далее. Лестница, ведущая на чердак, не обязательно должна выглядеть, как нечто постороннее — заводы изготовители специально разрабатывают конструкции с учётом того или иного интерьера.
- Для приведения устройства в рабочее состояние обычно достаточно при помощи специального приспособления приоткрыть люк и чердачная лестница либо выходит сама, либо ещё раз нужно потянуть за кольцо, прикреплённое к нижней ступеньке. Собирается механизм тоже без всяких проблем, причём все эти действия происходят плавно, без малейшей угрозы для здоровья (вероятности получить травму) человека. При покупке к механизму прилагается инструкция, которая поможет не только разобраться с режимами эксплуатации, но и правильно его обслуживать.
Технические характеристики
Ножничная раздвижная лестница на чердак
В отличие от складных, раздвижные чердачные лестницы занимают гораздо меньше места, и всё это благодаря особенности своей конструкции. Дело в том, что при складывании и раскладывании они действуют, как трамвайный или троллейбусный пантограф, и в сложенном состоянии практически не нуждаются в дополнительной площади, а помещаются на крышке люка.
Получается, что такие конструкции требуют гораздо меньше места, нежели складные, значит, проём в перекрытии не нужно увеличивать, ориентируясь на размеры механизма, а только на его уклон, согласно ГОСТ 26887-86 и 24258-88.
Складная лестница на чердак
Но для таких устройств существуют ограничения по материалам, так, если складные изделия могут изготавливаться из стали, алюминия или дерева, то выдвижные чердачные лестницы ограничиваются только металлом, хотя древесина может там присутствовать в качестве декоративных элементов.
Поверхность металла обрабатывается порошковыми красками, позволяющими придать ему практически любой цвет по RAL таблице, что создаёт возможность для совмещения с любым интерьером. Важной особенностью является тот факт, что такую гармошку под силу раздвинуть даже пожилым людям с ограниченными возможностями.
Максимальная нагрузка на одну ступень, которую может выдержать раздвижная чердачная лестница, обычно составляет до 150кг, а это вес очень грузного человека. Но это вовсе не означает, что такая масса является предельной — завод-изготовитель, как правило, использует запас, минимум, от 30 до 50кг, хотя из того не следует делать вывод, что конструкцию можно перегружать постоянно.
Рекомендация. Если вы захотите своими руками сделать складную или даже раздвижную конструкцию чердачной лестницы, то вам придётся рассчитать длину люка.
Он должен начинаться там, где расстояние от потолка до ступени уменьшится до двух метров.
Конструкционные элементы
Фото лестницы в процессе раздвижения
Важное место в конструкции занимает крышка люка, которая обычно делается из ДСП или ОСП материалов, с обеих сторон обклеенных ДВП или полиуретаном. Толщина такой плиты в сборе обычно имеет от 15 до 20 мм, но есть также утеплённые варианты, где в качестве термоизоляции служит вспененный полиуретан или экструдированный пенополистирол и тогда её толщина достигает 32 мм.
В регионах с особо холодным климатом для крышек люка можно заказывать дополнительное утепление, толщина которого будет не более 30 мм.
В документации указывается длина лестницы и высота помещения, для которого она подходит. При ошибке выбора длины не расстраивайтесь — если конструкция оказалась больше, то её можно подрезать, а если меньше, то добавить элементы до пола.
Рекомендация. Если в паспорте не указаны размеры люка, который нужно сделать в перекрытии, а только параметры короба, то добавьте к ним по 10 мм на каждую сторону и получите периметр нужного вам проёма.
Заключение
Такие конструкции не обязательно использовать исключительно для чердаков — они могут стать пожарным выходом или лестницей на следующий этаж. Также следует учитывать то, что раздвижное устройство в большинстве случаев обойдётся вам дешевле, нежели стационарное.
Согласитесь, в частном доме без лестницы на чердак не обойтись. Но массивная лестничная конструкция занимает немало места. Отличное решение – использование выдвижной лестницы, которая будет обеспечивать доступ на чердак или в мансарду.
Стационарная, переносная или выдвижная?
Она предоставляет такие же обширные возможности для рационального использования чердачных помещений, которые, как ни странно, современники используют довольно редко. По данным статистики, примерно 70% владельцев, имеющих в своих частных домах чердаки, лишь частично используют их преимущества.
При входе на чердак или в помещение мансарды по приставной лестнице со стороны улицы площадь верхних помещений вообще остается не задействованной. Обычно они становятся складами для хранения вещей, которые устарели, сломались, редко требуются в хозяйственной деятельности или достаются в зависимости от сезона. Например, коньки, лыжи, велосипед.
А в такие помещения разумно подвести отопление и оборудовать уголок зимнего сада, комнату отдыха, спальню или небольшой кабинет. Таким образом чердак позволит увеличить жилое пространство. Но только в случае обустройства входа наверх из внутреннего помещения, а не с улицы.
Из широкого ассортимента представленных на рынке моделей выдвижных лестниц легко подобрать подходящий вариант, ведь изготовители выпускают конструкции различного дизайна, с ориентацией на разные стили интерьера.
Каждое из приспособлений состоит из 2-3 секций, которые скрепляются в цельную конструкцию. В разложенном состоянии она аналогична обычной лестнице со ступеньками. А при складывании прячется под поверхностью люка выхода на чердак.
Фиксирование осуществляется с помощью специальных стопорных деталей. Сложенная лестница хранится вне поля зрения, не мешается и не нарушает целостность дизайнерской идеи оформления помещения. Идеально подходит для использования в обустройстве запасного пожарного выхода. Такая конструкция удобнее, чем стремянка, которую где-то надо хранить и приносить каждый раз при необходимости попасть на чердак.
Преимущества выдвижных лестниц
Можно выделить такие основные преимущества выдвижных лестниц:
- — компактность,
- — незаметность,
- — безопасность,
- — надежность,
- — удобство,
- — простота установки и эксплуатации,
- — возможность регулирования высоты,
- — износоустойчивость выдвижного механизма,
- — более низкая стоимость, чем у стационарных моделей.
Различаются они по:
- — виду материала,
- — типу строения конструкции,
- — принципу сборки.
- — размерам,
- — ширине перекладин.
Для изготовления выдвижных лестниц используется:
- — дерево,
- — оцинкованная сталь или металл.
Деревянные и алюминиевые конструкции в отличие от металлических более легкие и стоят дешевле, но уступают по прочности. Однако отлично справляются с общей функцией – обеспечением доступа к помещениям наверху дома. Использовать их удобно и безопасно.
Оптимальные параметры чердачных лестниц:
- — ширина – примерно 65 см,
- — высота – не более 3,5 м,
- — максимум 15 ступенек,
- — расстояние между перекладинами – 19,3 см,
- — толщина ступенек — от 1,8 до 2,2 см,
- — угол наклона – 60-75 градусов,
- — предельный вес нагрузки – до 150 кг.
Самые популярные модели — выдвижные лестницы 2×15 и 3×14.
Требования к проему и его крышке
Приобретая трансформирующуюся чердачную лестницу необходимо обратить внимание на то, чтобы размеры крышки проема совпадали с ее габаритами. В противном случае раскладывающиеся элементы будут застревать в проеме.
По мнению специалистов, люк для выдвижной лестницы должен быть размером 70х120 см. Если он будет меньше, то будут трудности с подъемом наверх, а больше – проблемы с сохранением тепла.
При решении изготовить выдвижную лестницу самостоятельно, необходимо точно рассчитать место расположения люка. Он должен обязательно открываться вниз. Для большей безопасности рекомендуется использовать дополнительную фиксацию в виде крючков, цепей или веревок.
Независимо от вида конструкции изготавливается из ДСП или ОСП. Обе стороны люка обычно обклеиваются полиуретаном или ДВП.
Толщина такой крышки – 1,5-2 см. Утепленный вариант получается при использовании для термоизоляции экструдированного пенополистирола или вспененного полиуретана. В этом случае толщина крышки увеличивается до 3,2 см.
Трансформация лестниц
Лестницы для раскладывания обычно комплектуются специальным приспособлением. В одних конструкциях достаточно открыть крышку люка и ступеньки раскладываются самостоятельно. В других — надо дополнительно потянуть за кольцо на последней ступеньке.
Сборка механизма тоже достаточно проста. Нет никакого риска травмирования. В комплект для продажи каждой конструкции входит инструкция, с помощью которой легко разобраться с правилами эксплуатации и обслуживания.
Виды выдвижных лестниц
Принцип действия такой раздвижной конструкции аналогичен трамвайному или троллейбусному пантографу. Она занимает гораздо меньше места, чем складная. В собранном состоянии ей хватает места на крышке люка. Поэтому необходимость в увеличении проема отпадает. Учитывать следует лишь угол наклона конструкции, ориентируясь на требования ГОСТ 26887-86 и ГОСТ 24258-88.
Такая лестница изготавливается только из металла, потому что практически вся изготавливается из отдельных фрагментов. Все части скрепляются подвижными элементами, фиксирующимися в разложенном виде.
Металлическая поверхность покрывается порошковыми красящими составами любого оттенка для гармоничного сочетания с любым стилем интерьера. Даже пожилые люди с ограниченными двигательными возможностями легко справляются со складыванием такой лестницы-гармошки.
Она состоит из нескольких секций. Первая из них точно соответствует параметрам люка, к которому крепится. Другие элементы раскладываются в прочную конструкцию. Для соединения тетивы используются петли или так называемые башмачки.
В этом механизме ступени накладываются друг на друга. Обычно они разной длины, потому что расположение боковин тетивы имеет небольшой угол для обеспечения лучшего упора и удобства складывания. Но такую модель предпочитают редко.
Универсальность выдвижной лестницы подойдет домовладельцам, ценящим качество, функциональность, красоту и простор.
Лестница на чердак
В каждом доме есть потребность в дополнительной площади. Когда все комнаты функционально заняты, владелец жилища начинает искать свободное пространство за их пределами. Вот тут-то очень кстати окажется складная лестница на чердак. Она позволит на обустроенной чердачной территории оборудовать мастерскую, детскую комнату, поставить там биллиардный стол, барную стойку. Озабоченный этой идеей, хозяин начинает задумываться, купить ли лестничную конструкцию в готовом виде или сделать ее самому.
Пример складной лестницы из метала на чердак
Но прежде он должен ознакомиться с различными ее вариантами, чтобы выбрать подходящий.
Виды чердачных лестниц
Самая простая конструкция и чертеж лестницы — это стремянка. Она неустойчива, поэтому пользоваться следует очень осторожно, особенно если подниматься или спускаться придется с ношей в руках. Ее применяют тогда, когда на чердак заглядывают очень редко, а сам он исполняет роль хранилища ненужных вещей, от которых пользы нет, но выбрасывать жалко. Но можно пытаясь сделать чердачное пространство «активной» домашней территорией.
На практике чаще используются следующие монолитные и складные лестницы на второй этаж :
- Стационарная конструкция с одним или двумя пролетами;
Пример стационарной лестницы на чердак из металла
В зависимости от места установления чердачные входы бывают внутренними и наружными. Складная чердачная лестница снаружи, как правило, не устанавливается. А стационарная конструкция, установленная снаружи, не совсем комфортна зимой, зато она не занимает ни одного метра полезной жилой площади; еще один вариант — утепленная.
Чтобы металлические детали не подвергалась разрушительному воздействию атмосферных осадков, их чаще всего делают из оцинкованного металла или окрашивают специальной краской.
А та лестница которая располагается в доме. эксплуатируется круглогодично без выхода на улицу. Она отнимает полезное пространство, создает небольшие неудобства для обитателей. Однако в большинстве случаев предпочитают именно ее, а не вход на двухуровневую мансарду с улицы. Размеры обдумывают заранее, чтобы она не была громоздкой, выглядела как внутренний декоративный элемент интерьера.
Схема устройства с размерами складной лестницы на чердак
Чердачные лестницы изготавливают из дерева и металла. Оба варианта — достаточно прочные устройства. Однако они могут скрипеть или громыхать, хотя не для всех эти звуки являются раздражающим фактором. К тому же их можно устранить или хотя бы приглушить, если использовать различные половички или противоскользящие накладки. Дерево и металл зачастую комбинируют, чтобы получить очень привлекательные многоступенчатые конструкции.
Стационарная
Монолитное сооружение со ступеньками, как правило, из дерева, с поручнями и перилами устанавливают на плане частного коттеджа. При активной повседневной эксплуатации чердачного помещения оно дополняется дверью. Без нее не обойтись тогда, когда планировка мансарды оборудуется как комфортабельное помещение в доме в качестве спальни для детей или взрослых, комнаты отдыха, мастерской, которую приходится посещать ежедневно.
Вариант устройства стационарной деревянной лестницы на чердак
Для стационарного устройства иногда отводят отдельную территорию — лестничную клетку.
Складные чердачные лестницы
Их также можно купить или смастерить своими руками. Устанавливаются в помещениях с ограниченным пространством, когда невозможно соорудить монолитную лестничную конструкцию. Складные чердачные лестницы имеют несколько разновидностей, но все они не громоздкие, а легкие, но вес не ограничивает прочности, потому что для изготовления используют дерево твердых пород и алюминий.
Такая выдвижная конструкция прикрепляется к крышке люка, а раскладывается до самого пола по принципу трамвайного токосъемника или гармошки. Такая конструкция — только металлическая, поэтому со временем без должной смазки начинает скрипеть. Используется в частном жилище при неинтенсивной эксплуатации чердака.
Схема работы ножничной лестницы на чердак
Грузоподъемность небольшая, но вес взрослого человека выдерживает надежно.
Телескопическая
Лестницу из нескольких секций, которые пакуются одна в другую, называют телескопической. Обычно ее делают из алюминия, поэтому она легкая и прочная. Но такие складные лестницы на чердак большой популярностью у потребителей не пользуются. Чаще они применяются на строительных работах в виде стремянок. В упакованном виде так компактны, что размеры позволяют перевозить их в багажнике легкового автомобиля.
Это одна из разновидностей складных лестничных устройств, состоящих обычно из двух секций. Первая жестко прикреплена к основанию люка. Снизу к ней присоединена вторая специальными шарнирами, позволяющими складываться вперед.
Чертёж с размерами откидной лестницы
Когда в ней нет необходимости, а вход на чердак закрыт, то откидная конструкция находится в чердачном помещении. Если его открыть, она откидывается и опускается на пол.
При недостатке пространства устанавливается выдвижная лестница на чердак. Она может быть из дерева или металла. Выдвигается из люка, который открывается вручную или с помощью электропривода.
Основные требования к такой конструкции — компактность, прочность, небольшой вес. Чтобы добиться этого, при изготовлении сочетают прочное дерево и легкий металл.
Она требует большего пространства, чем складные устройства. Может быть с перилами или без них. Выглядит очень легкой, независимо от того, деревянная она или сделана из металла. Оригинальная конструкция, но подъемы и спуски затруднительны, а иногда и рискованны, особенно для обитателей дома преклонного возраста.
Используются такие чердачные лестницы в домах, в которых эксплуатация чердака не так интенсивна. Они могут быть устроены так, что все ступеньки прикреплены к столбу, который находится в центре системы. Есть и такие лестничные спирали, у которых ступени удерживаются изогнутыми несущими балками-тетивами.
Раскладные и складные лестницы можно без особых проблем купить в магазине стройматериалов, где продаются сосновые, дубовые, а также металлические, изготовленные обычно из алюминия. Самое дешевое изделие из сосны, но по прочности не уступает другим материалам.
Не следует забывать, что купленная в готовом виде лестничная установка нуждается в правильном уходе, который включает обработку деревянных поверхностей противопожарной пропиткой, покрытие лаком или краской.
Металлические детали, шарниры, ролики необходимо смазывать машинным маслом.
Но на рынке не всегда можно найти подходящее лестничное сооружение. Тогда наилучший вариант — чердачная лестница своими руками, которую можно сделать в соответствии с собственными пожеланиями и вкусами. Как это сделать? Сегодня во Всемирной паутине нет недостатка соответствующей информации. Нужно лишь желание, необходимые материалы, инструменты и творческий энтузиазм.
Основные требования
Чердачная лестница — это зона риска, поэтому она должна соответствовать следующим требованиям:
- Установка чердачной лестницы основывается на соблюдении правилах техники безопасности. Подъемы, спуски должны быть неопасными, для чего необходимы поручни и перила.
- Если вместо двери сделан люк для входа на чердак, то его размеры не должны создавать лишних неудобств, особенно старикам.
- Конструкция должна быть достаточно прочной, выдерживать вес более 200 кг. Угол наклона стандартный: 60–70 градусов.
Чертеж конструкции чердачной лестницы с размерами
Детали лестницы
Домашний мастер, принявший решение самостоятельно соорудить лестничную конструкцию, должен ознакомиться с ее составными частями.
Элементы конструкции лестницы на мансардный этаж
Тогда он будет лучше разбираться в вопросе, как сделать лестницу на чердак наилучшим образом.
Любая чердачная лестница состоит из деталей, названия некоторых, возможно, не были ранее известны домашнему умельцу. Неплохо бы получить чертеж, на котором они изображены и подписаны.
К ним следует отнести:
- Балки, которые называют тетивами и косоурами;
- Перила, поручни безопасности;
- Грани ступеней, также имеющие свое название: горизонтальная — проступь, а вертикальная — подступень;
- Лестничный марш.
Это прочная балка, в которой делаются вырезы для крепления ступенек сверху, так, чтобы их торцы были видны сбоку. Бывают лестничные сооружения, у которых она — одна посередине, и к ней горизонтально прикреплены деревянные дощечки. Но чаще установка чердачной лестницы для большей прочности производится на двух косоурах.
Тогда, даже визуально вся конструкция выглядит прочной, способной выдержать большие нагрузки. Металлическая опора зачастую изготавливается не прямой, а ступенчатой формы. Сделать ее в домашних условиях весьма проблематично, проще купить в готовом виде.
Так называют несущую наклонную балку, и отличается от косоурной тем, что скрывает торцы, а ступени крепятся к ней при помощи специальных пазов. Поэтому их обязательно должно быть две — по обе стороны лестничного сооружения. Без этих балок не обходится даже раскладная лестница на чердак, если она сделана из дерева.
С ними стационарная конструкция выглядит массивно, добротно, в то время как на косоурах она кажется визуально легкой и просторной.
Перила и поручни
Следует разобраться, есть ли разница между этими понятиями. Перила — ограждение по внешней стороне лестничного марша. Сверху они соединяются поручнями — это составная часть ограды, о которую опираются руками. В комплексе они обеспечивают безопасность передвижения. Эти элементы могут быть металлическими, деревянными, даже стеклянными. Они очень привлекательно смотрятся, если выполнены из нержавейки: не требуются средства защиты, тем более покраска, а срок эксплуатации практически неограничен. Но не каждый потребитель решится их купить из-за высокой цены.
Вариант устройства перил лестницы на чердачных этаж
Перила нужны добротные, надежные. Если чердачная лестница с люком, то они должны заканчиваться у самого его основания и не мешать функционированию его крышки.
К поручням также предъявляются некоторые обязательные требования:
- Ширина должна позволять человеку обхватить их рукой, чтобы крепче держаться;
- Высота — на уровне пояса взрослого человека, не ниже;
- Во избежание травм не должно быть острых углов на их окончаниях;
- По внешнему виду должны составлять со всей лестницей единый, гармоничный ансамбль, украшающий дом.
Подступени и проступи
Вертикальная часть каждой приступки — подступень. Она закрывает пространство между соседними ступеньками, а также является для них дополнительной опорой. Такие ступени называются закрытыми, а открытыми будут те, которые состоят только из одних горизонтальных дощечек для ног — так называемых проступей. Этими деталями оснащают также складные лестницы на чердак.
Лестничный марш
Это элемент, который соединяет все составные части в единую конструкцию. Имеет максимум 18 ступеней, закрепленных на несущих балках — тетиве или косоуре. Бывают одномаршевые стационарные системы без поворотов от пола до входа на чердак и многомаршевые с несколькими пролетами. Они должны соответствовать тем же требованиям, которые предъявляются ко всем лестничным деталям: прочность, удобство, безопасность.
Конструкция лестничного марша
Полезную ширину марша определяет расстояние от стенки с выполненной отделкой до внутренней стороны поручня.
Самый простой вариант
Если потребуется срочное использование верхнего помещения дома, но известно, что в дальнейшем оно будет использоваться неинтенсивно, то есть быстрое решение этой проблемы: чердачная лестница своими руками, которую можно сделать очень быстро. Конструкция настолько проста, что составлять чертеж необязательно. Для этого понадобится прочная высокая стремянка. Ее надо распилить так, чтобы получились три равные части, и сделать из них лестницу-раскладушку. Отрезки соединяют шарнирами, позволяющими им компактно складываться.
Первую секцию прочно укрепляют на крышке люка, на которой умещаются остальные в собранном виде. При закрытом чердачном входе вся лестничная конструкция находится на чердаке.
Хранение складной лестницы при закрытом люке
Люк запирается на защелку, которая открывается при нажатии на нее длинной палкой, а защелкивается автоматически. Если крышку открыть, то все секции свободно свисают до самого пола. Для того чтобы они не падали резко, рекомендуется установить пружинные шарниры.
Но готовой приставной лестницы может в хозяйстве не оказаться. Тогда придется сделать лестницу-раскладушку с нуля. Конструкция несложная, но все равно рекомендуется произвести все замеры, расчеты и нанести их на чертеж. Надо точно измерить чердачный проем, чтобы в соответствии с его размерами определять длину складных секций. Для работы подойдут бруски сечением 60 х 150 мм, а дощечки толщиной 40 мм.
Предпочтительно, чтобы они были из дуба, который прочнее сосны, или других пород дерева.
Понадобятся обычные детали и инструменты:
- Угломер, рулетка;
- Пила, дрель, ножовка;
- Шарниры, анкерные болты и прочая фурнитура для чердачной лестницы;
- Крепеж.
Далее изготовляют отдельные секции, а монтаж всей системы производят в той последовательности, которая изложена при использовании распиленной приставной лестницы. Такая конструкция годится, если в доме нет детей, стариков, для которых опасны подобные подъемы и спуски. За складным устройством нужен такой же уход, как за каждым домашним сооружением из дерева и металла.
А для детей, пожилых людей самым безопасным чердачным входом будет стационарная лестница с перилами и поручнями. Ее также предпочтительно возводить из дерева. Нужен чертеж, отражающий: какие балки будут использованы — косоуры или тетивы; сколько собирать лестничных маршей; ступени будут открытыми или закрытыми и многие другие подробности.
Просчитать, а тем более выполнить все это самому очень сложно. Лучше довериться опытным специалистам и заказать стационарную лестницу соответствующей строительной организации или купить готовую. А установить ее можно своими силами.
Источники: http://krovlyakryshi.ru/elementi/lestnica/vydvizhnaya-lestnica-na-cherdak-625, http://postroy-dom.com/stroitelstvo-doma/1134-kakuyu-vybrat-lestnicu-na-cherdak.html, http://planvsem.ru/konstrukcii/lestnica-na-cherdak.htm
lestnica-mpl.ru
особенности конструкции и ее преимущества
- Виды лестниц для чердака
- Особенности конструкции
- Преимущества и недостатки
- Рекомендации по установке
- стационарные. Это традиционная конструкция эстетичная, удобная и безопасная, однако массивная конструкция отнимает много места, поэтому возможности ее использования ограничены. К тому же обходится она достаточно дорого;
- переносные. Конечно, они значительно доступнее по стоимости и, можно сказать, места не занимают, так как после использования за ненадобностью их сразу же убирают, скажем, в чулан. Но они временные, к тому же недостаточно безопасные. Такое решение оправдано в процессе выполнения строительных работ либо для использования в небольшом дачном домике;
- выдвижные лестницы на чердак. Это конструкции, в которых объединились преимущества предыдущих. Более того, при покупке вас приятно удивит демократичная цена выдвижных лестниц на чердак.
- в разложенном виде это обыкновенная лесенка со ступенями;
- в сложенном виде она очень компактна и, не загромождая пространство, скрывается под люком на чердак. Компактность не мешает ей полноценно выполнять все функции изделий данной категории. При необходимости достаточно открыть крышку люка и растянуть выдвижную лестницу. Согласитесь, это очень удобно
- Компактность. Для этих изделий не нужно много места и не только когда они сложены, но также в выдвинутом состоянии. Не нужно его также для их установки. Подобную конструкцию можно вмонтировать практически в любой вариант перекрытия.
- Удобство. Хранить выдвижные лестницы удобно, а пользоваться ими чрезвычайно просто. Более того, различные дополнительные элементы, которыми они снабжены, скажем, раздвижными ступеньками, перилами или другим, способствуют повышению эргономичности конструкции и ее безопасности.
- Незаметность. Трудно представить, что кто-то может догадаться, что скрывается за чердачным люком: сама конструкция и неприглядные детали механизма оказываются полностью скрытыми от глаз в его крышке. Наличие выдвижной лесенки на чердаке внешне никак не отражается на интерьере дома.
- Легкость. Хотя выдвижные лесенки функционально мало чем уступают стационарным, они значительно легче. Чтобы справиться с ней не нужно прилагать больших усилий, это под силу даже подростку или человеку в возрасте. Конструкцию можно легко собрать и разобрать, чему не в малой степени способствует малое количество необходимого материала и
удобство креплений и механизмов. - Простота использования. Выдвинуть лестницу, чтобы подняться по ней на чердак чрезвычайно просто: достаточно открыть его люк и без каких-либо усилий, вытянуть ее за ножки.
- Стоимость. Цена выдвижной лестницы на чердак достаточно низкая. То есть с учетом легкой установки можно сэкономить помимо самого изделия также на его монтаже.
- Безопасность. На ступеньках этих изделий, как правило, имеются специально выполненные насечки, которые препятствуют скольжению. Специально предусмотренный фиксирующий механизм и дополнительный затвор замка, которыми оснащены лесенки не позволят им произвольно раскрыться. На ножках изделия для большей безопасности имеются противоскользящие резиновые наконечники.
- Делают замеры. Предельно точно замеряют все площади и фиксируют результаты. В любом случае лучше иметь под рукой схему лесенок, чтобы облегчить работу. Если же вы работаете над собственным проектом, подробный чертеж и расчет количества необходимых материалов обязателен.
- Создают проем. Подготавливают проем под будущую лестницу для чердака, и закрепляют по его нижней части специальные бруски. К ним на шурупы крепится готовая конструкция.
- Закрепляют боковые части. Зафиксировав лестницу, ее полностью раскладывают и крепят с двух сторон боковые элементы.
- Выполняют регулировку. После монтажа всех деталей необходимо отрегулировать болты и проверить насколько хорошо лесенки раскладываются и складываются.
- Если речь идет о выдвижных лестницах на мансарду, то простая крышка из фанеры для люка не подойдет из-за больших теплопотерь. Ее нужно утеплить. Если вы не хотите делать крышку толстой, можно ограничиться утеплением стороны, обращенной в сторону помещения любым известным способом. Тем более что толщина крышки никак не связана с конструктивом лестницы.
- Чердачный люк есть не что иное, как дверь, которая расположена в перекрытии, а не на стене. Поэтому к его устройству можно подойти так же и сделать короб с четвертью. Эту четверть можно использовать для улучшения теплоизоляции проема, наклеив на нее дверной утеплитель.
- Чтобы облегчить вес изделия, можно вместо ограничителей угла открывания из металла использовать капроновые канатики либо буксировочные стропы.
- В фабричных изделиях его вес в основном компенсируют при помощи пружин. В самодельном же варианте для этих целей можно использовать систему противовесов, расположив ее в удобном месте.
Владельцы частных домов часто встают перед проблемой, как максимально рационально использовать пространство. Это задача со множеством решений, но самый популярный вариант из них, пожалуй, использование чердака. Чердачное помещение можно приспособить под кладовку или превратить в жилую комнату. С какой бы целью ни использовалось это пространство, сначала нужно иметь возможность туда попасть.
Свободный доступ в чердачное помещение обеспечит практичная выдвижная лестница на чердак. Она позволяет легко и просто объединять помещения – если в ней нет нужды, лесенки полностью убирают в специальный люк в потолке.
Виды лестниц для чердака ↑
По особенностям конструкции различают основном следующие решения для подъема на чердак:
Рекомендуем
В некоторых случаях желательно обеспечить вход на чердак с улицы, скажем, если в мансардном этаже летом отдыхает другая семья. Решить проблему очень просто: соорудите лесенку, которая ведет на второй этаж с улицы.
Особенности конструкции ↑
Конечно, выбор каждого определяется его вкусом и возможностями, но при этом никак нельзя не считаться с реальностями. Если речь идет о небольших пространствах, где недостаточно места, то выбор однозначен – это чердачная выдвижная лестница.
Отличительные черты данной конструкции следующие:
Ассортимент этих конструкции довольно разнообразен. В зависимости от типа конкретного изделия и материала изготовления они могут отличаться качественными и техническими характеристиками и своим внешним видом.
На заметку
Важным отличием конструкций считается также величина проема в перекрытии, необходимая для чердачных люков с выдвижной лестницей.
К выдвижной лестнице для чердака предъявляют более высокие требования безопасности, нежели к стационарной. Схема сборки такой конструкции при этом довольно простая и не требует специальных навыков, поэтому ее можно с легкостью собрать самому.
Выдвижная лестница на чердак может быть выполнена из дерева или металла либо с совмещением обоих. В последнем варианте исполнения ступеньки из дерева уменьшают вес, а дополнительную прочность конструкции обеспечивают крепления и механизмы из металла.
Раздвижные лестницы облегченной конструкции, напоминающие гармошку, секции которой имеют оваловидную или ромбовидную форму, целиком выполнены из алюминия. Это самый компактный вариант среди имеющихся и создает минимум нагрузки на люк чердака. Вместе с тем следует отметить и основной недостаток алюминиевой раздвижной конструкции: со временем она начинает скрипеть. Мастера поэтому рекомендуют ее периодически смазывать.
На заметку
Справедливости ради отметим, что раннее появление скрипа, как правило, связано с выбором дешевых изделий из некачественного материала либо неправильной сборкой.
Преимущества и недостатки ↑
Сказать же что-либо конкретное о недостатках довольно затруднительно. Многое определяется типом самой конструкции, а также качеством исполнения. Любое нарушение требований может привести, скажем, к быстрому расшатыванию креплений, к повреждению поверхности пола ножками или заклиниванию рычагов.
Рекомендации по установке ↑
Установку рекомендуется выполнять вдвоем с напарником.
Несколько практических советов по изготовлению лестницы на чердак ↑
© 2018 stylekrov.ru
stylekrov.ru
Раскладная лестница на чердак своими руками
Пространство между потолком и крышей в частных домах занимает чердачное помещение. Оно используется владельцами для хранения вещей, предоставляет возможность проводить осмотр и ремонт внутренней стороны кровельного пирога. Складная лестница, установленная чтобы попасть на чердак, может быть изготовлена своими руками. Переносные конструкции типа стремянки не всегда удобны и надежны. Стационарный вариант, который легко выдвигается при необходимости, а основную часть времени находится в сложенном состоянии, станет оптимальной моделью для небольшого пространства.
Классификация чердачных лестниц
- По месту установки:
- наружные – монтируются снаружи здания, недостатком является необходимость покидать помещение в любую погоду;
- внутренние – размещаются в доме.
- По конструкции:
- монолитные – винтовые или маршевые;
- переносные – приставные, стремянки;
- складные – раздвижные, раскладные, ножничные, откидные.
Монолитные конструкции обеспечивают полную безопасность подъема на чердак. Но занимают полезную площадь комнаты. Переносные модели удобны как временный вариант, но для постоянного использования они не годятся из-за повышенной опасности травматизма. Оптимальным выбором считается складная лестница, которая занимает минимум места. Такая конструкция часто крепится на люк, она имеет компактные размеры, а изготовление ее своими руками позволит сэкономить средства.
Особенности складных конструкций
Трансформирующиеся модели имеют несколько вариантов исполнения, из которых можно выбрать подходящий для своего дома. При проектировании изделия следует учитывать не только размеры, но и особенности конструкции. Минимальное количество секций раскладной лестницы должно составлять 3 штуки. Модель, состоящая из 2 частей, потребует существенно увеличить размеры чердачного люка. Раскладная лестница опускается вручную, с использованием груза для утяжеления, или автоматически, с применением электрического привода.
Разновидности складных чердачных лестниц
Телескопическая модель состоит из частей, задвигающихся друг в друга. Материалом для нее служит алюминий, обладающий легкостью, прочностью, стойкостью к коррозии. Она компактная, функциональная, прослужит долгое время, но своими руками такое изделие изготовить сложно. Возможен вариант монтажа на люк готовой конструкции.
Ножничная модель производится из металлических деталей. Она складывается по принципу гармошки. Прочная конструкция с удобными ступеньками имеет один недостаток – со временем в местах соединений появляется скрип. Предотвратить проблему позволит своевременное смазывание мест крепления.
Ножничная лестница надежна и имеет красивый внешний вид
Откидная лестница не будет занимать ни одного лишнего сантиметра. Она сложна в проектировании и монтаже. Ее ступени крепятся на тетиве карточными петлями, а в сложенном положении откидная модель фиксируется на стене.
Выдвижная лестница на чердак состоит из нескольких секций, верхняя часть прочно крепится на люк, она равняется размеру крышки. Остальные секции соединяются специальной фурнитурой и шарнирами. При раскладывании они образуют ровный лестничный марш. Привести изделие в рабочее положение несложно, благодаря его подвижности. Отличие телескопической и раздвижной моделей в способе скольжения секций. В первом случае они размещаются одна в другой, а во втором – двигаются при помощи роликов снаружи по направляющим.
Рекомендации по размерам
Конструкция для подъема на чердак должна устанавливаться в месте, где она не будет создавать помех, обычно это холл или коридор. Раздвижная и складная лестница подгоняется под стандартные размеры, которые разработаны с учетом требований безопасности:
- угол наклона конструкции составляет 65-75 градусов, большее значение сделает использование небезопасным, а меньшее потребует много места для размещения;
- оптимальная ширина лестницы 65 см;
- рекомендуемое количество ступеней – 13-15 штук;
- длина конструкции должна составлять около 3,5 м, при увеличении она теряет жесткость и прочность, усложняются процессы опускания и подъема;
- удобное для передвижения расстояние между ступенями – 19,3 см;
- лестница, сделанная своими руками, рассчитывается на нагрузку до 150 кг;
- безопасная толщина ступенек составляет 1,8-2,2 см;
- горизонтальные перекладины монтируются параллельно полу, для безопасности их дополняют противоскользящими накладками.
Чердачный люк тоже имеет стандартные размеры, его параметры – 120х70см, они обеспечивают беспрепятственный проход и минимальную потерю тепла.
Материалы для изготовления
К материалам, из которых своими руками изготавливается лестница, предъявляются требования по прочности и весу. Конструкция для частого использования в силу быстрого износа не выполнятся из дерева. Металл – оптимальный вариант для такого изделия, он обеспечит безопасную и долговечную эксплуатацию.
Снизить общий вес лестницы, прикрепляемой на люк, позволит комбинация материалов. Из более легкой древесины изготавливают ступеньки. Используются бруски твердых пород дерева толщиной около 2 см. Для соединения изделий устанавливается металлическая или пластиковая фурнитура, последняя уменьшает трение деталей. В сложенном положении конструкция крепится на люк, что исключает самопроизвольное выпадение.
Технология изготовления простой откидной конструкции
Если люк располагается возле края перекрытия, то для подъема можно установить своими руками откидную лестницу из двух секций, которая будет опираться на стену. Основой для конструкции может стать готовое изделие, на трансформацию его потребуется около двух часов.
Простая откидная лестница, которую легко сделать своими руками
Инструменты для работы:
- шуруповерт;
- рулетка;
- ножовка.
Материалы:
- деревянные бруски размером 2х3 см;
- карточные петли;
- саморезы;
- крючок с петлей.
- Берется два бруска равных ширине лестницы. Один петлями крепится к верхнему краю, а второй прочно фиксируется внизу, обеспечивая устойчивость разложенной конструкции.
- Используемая лестница делится на две части – одна из них составляет 2/3 длины, а вторая 1/3. По намеченной линии выполняется аккуратный распил тетивы.
- Металлические петли прикручиваются для соединения секций. Обращайте внимание на то, как расположена фурнитура. Она должна обеспечить складывание нижней части лестницы под верхнюю.
- На стене под чердачным проемом фиксируется брусок, к которому крепится откидная конструкция.
- Для надежной фиксации в сложенном положении возле места распила вкручивается петля, а на стене в соответствующем месте устанавливается крючок.
Достоинство такого изделия – простота исполнения своими руками, а недостаток – открытое расположение.
Изготовление люка
Если складная лестница размещается на крышке проема, она не видна из помещения и не станет помехой в интерьере. Простые чертежи помогут определиться с размерами люка и изделия. Измерив стороны прохода в чердачное помещение, начинают собирать люк своим руками.
Необходимо подготовить следующие материалы:
- бруски сечением 50х50м;
- лист фанеры 10 мм;
- клей ПВА;
- крепеж;
- дверная защелка с ручкой.
От бруска отрезается две части равные длине проема и две аналогичные его ширине (120х70 см). Каждый край бруска выпиливается на половину ширины. Эти участки намазываются клеем ПВА и склеиваются между собой в прямоугольник. Для удержания точной диагонали на рамку крепятся прямоугольные треугольники из фанеры, называемые косынки. После высыхания клея бруски дополнительно соединяют саморезами, а косынки убирают. К заготовке прикручивается подготовленный лист фанеры. Конструкция примерятся к проему. Чтобы люк удерживался в закрытом положении, в него врезают дверную защелку. Фурнитура имеет удобную ручку, с помощью которой люк будет открываться.
Сборка механизма открывания
Изготовление своими руками механизма открывания люка – это достаточно сложный процесс, чтобы облегчить задачу, достаточно приобрести готовое изделие в магазине.
Те, кто решил собрать всю конструкцию самостоятельно, должны приготовить металлический уголок, две полосы и лист металла.
Чтобы не ошибиться с размером шарниров, они первоначально вырезаются из картона. После примерки, переходят к работе с металлом.
- На металлической полосе отмечаются места для крепления по шаблону.
- Высверливаются отверстия под болт диаметром 10.
- Детали собираются и наживляются болтами. Малкой замеряется выбранный угол фиксации лестницы, а затем детали раздвигаются на искомую величину.
- На металле обозначается участок, который при опускании перекрывается уголком. Эта область срезается. Убрав лишнее, детали обрабатываются для придания эстетичного вида.
- Второй механизм должен быть идентичен уже изготовленному. Для точного совпадения отверстий детали соединяют струбциной и сверлят.
- Вставив во второй механизм болты, его равняют по образцу, обрезая лишний металл.
- Готовые механизмы открывания устанавливаются своими руками на люк. Они буду создавать упор, фиксируя складную конструкцию под нужным углом.
Обеспечить равномерное распределение нагрузки позволит монтаж второго шарнирного механизма, поддерживающего люк посередине. Потребуется: две металлические полосы шириной по 2 см, уголок и кусок металла. Уголок служит опорой механизма при открывании. К одной детали приваривается кусок металла, в который упирается вторая часть. При опускании люка шарнир будет раздвигаться, принимая часть веса конструкции.
Деревянная лестница, делаем сами
Проще всего изготовить конструкцию из дерева, материалом послужит доска 2,5х10 см. Изделие состоит их трех секций, первые две равняются по длине люку, а размер последней – расстояние, оставшееся до пола.
Длина секций отмечается на двух досках, используемых для изготовления тетивы. Отметки должны зеркально повторять друг друга, поэтому перед работой заготовки соединяют скотчем. В намеченных местах сверлятся отверстия под петли, после чего доски распиливаются. Для придания привлекательности все деревянные детали шлифуются и покрываются двумя слоями лака. Металлические петли перед монтажом своими руками покрывают грунтовкой и краской.
Под крепеж ступеней с внутренней стороны тетивы вырезаются отверстия глубиной в 5 мм. На них наносится клей ПВА, а затем выполняется фиксация саморезами. Следующий этап – соединение трех секций в общую конструкцию при помощи петель. Проверив возможность сгибания частей, лестницу закрепляют на люк. Верхняя секция изделия фиксируется на нем анкерами. Складная лестница на чердак готова.
Вконтакте
Google+
Одноклассники
sarstroyka.ru
чердачные люки раздвижные, чертежи своими руками, высота

Раньше вход в чердачные помещения располагался в наружной части крыши дома. Чтобы взобраться на чердак, необходимо было приставлять тяжелую и неудобную приставную лестницу. Однако современные частные дома зачастую имею входные люки прямо в потолке. Именно на эти люки и монтируется складная лестница, которая появляется лишь тогда, когда это действительно необходимо.
Преимущества и недостатки чердачных люков с выдвижной лестницей
Выдвижная лестница на чердак в сложенном положении совершенна незаметна. Она располагается на крышки люка, которая является каркасом такой конструкции. При необходимости вам нужно лишь открыть вход на чердак, и потянуть за ножки лестницы.
Преимущества раздвижной лестницы на чердаке:
- Раздвижная лестница занимает минимум свободного пространства. В сложенном виде она вообще ни как не влияет на размеры помещения.
- Цена на раздвижные лестницы гораздо ниже стоимости полноценных стационарных конструкций.
- Такие лестницы очень просты в использовании. Для того, чтобы привести конструкцию в рабочее состояние, вам необходимо лишь откинуть крышку люка и потянуть за ножки лестницы.
- Выдвижные лестницы весят очень мало. Благодаря этой особенности вам не придется волноваться за напольное покрытие и прочность основания.
- При желании вы можете дополнить такую лестницу элементами повышающими удобство ее эксплуатации. Например, заказать конструкцию с перилами и антискользящими ступенями.
- Монтаж такой лестницы настолько прост, что вы вполне сможете его выполнить своими руками.
Помимо большого количества плюсов, выдвижные чердачные лестницы имеют и некоторые минусы. Они не обладают особой значимость, но о них должен знать каждый.
Недостатки выдвижных чердачных лестниц:
- По выдвижной чердачной лестнице нельзя перемещаться, держа в руках тяжелые предметы. При давлении свыше 150 килограмм ступени даже самой прочной конструкции деформируются.
- Данная конструкция затрудняет эвакуацию с чердака.
- Частое использование лестницы может привести к скрипу и заеданию механизма. Чтобы избежать данной проблемы, необходимо периодически смазывать места соединения элементов конструкции.
Несмотря на эти недостатки, выдвижные лестницы считаются самыми популярными устройствами для подъема на второй этаж. Согласитесь, что с установкой стационарных вариантов для чердака могут возникнуть некоторые проблемы.
Виды раздвижных лестниц на чердак
Выдвижные лестницы для подъема на чердак, однозначно используются чаще, чем стационарные. Однако прежде чем отправляться в магазин для покупки такого устройства, необходимо определиться наиболее подходящим для вас видом конструкции.
Модификации раскладных лестниц:
- Выдвижная лестница используется для подъема на чердак наиболее часто для помещений с невысокими потолками. Такая конструкция состоит из нескольких секций, которые, выдвигаясь одна за другой, фиксируются затворами. После использования, устройство складывают в том же порядке, производя при этом фиксацию затворами.
- Складные лестницы наиболее сложен в изготовлении. Однако такие конструкции обладают высокой надежностью и прочностью. Так как такая конструкция располагается в крышке люка, и имеет немаленькие размеры, для нее понадобится люк соответствующей ширины. Для изготовления таких лестниц чаще всего используется сосна или алюминий.
- Откидные лестницы имеют небольшое количество секций. В разложенном виде она напоминает обычную приставную конструкцию, а в сложенном фиксируется специальными металлическими приспособлениями. Чтобы изготовить такую конструкцию своими руками, необходимо грамотно составить чертежи, в противном случае, она просто не войдет в люк в потолке.
Данные виды лестницы обладают своими достоинствами и недостатками. Их выбор должен зависеть от вашего вкуса и размеров потолка в квартире.
Помимо приведенных нами вариантов бывают и другие виды раздвижных лестниц. Наиболее известной конструкцией считается телескопическое устройство. Такие алюминиевые лестницы представляют собой тубусы, в которых расположены такие же тубусы с меньшим диаметром. Однако такие конструкции не обладают особой прочностью, а потому редко используются для чердачных помещений.
Размеры выдвижной чердачной лестницы
Раздвижные чердачные лестницы, конечно, можно сделать своими руками. Однако такие конструкции имеют достаточно низкую стоимость, а потому доступны широким массам.
Чтобы не ошибиться в выборе раздвижной лестницы, необходимо составить план с ее расположением в люке потолка, а также снять все необходимые замеры. Последний пункт наиболее важен, так как только при наличии правильных замеров, продавцы-консультанты строительных магазинов вам смогут помочь подобрать подходящую конструкцию.
Прежде всего, для подбора лестницы, вам будет нужно снять замеры дверного проема чердака. Он может иметь разную ширину и высоту, однако минимальными параметрами считается 50х60 см.
Если вы хотите сделать выдвижную лестницу самостоятельно, то вам еще придется выяснить ширину ступеней, их количество и расстояние между ними.
Также немаловажное значение имеет высота лестницы. Она будет зависеть от высоты потолков. Стандартная длина лестницы равна 290 см. Однако в идеале полностью разложенная конструкция должна касаться пола, поэтому в некоторых случаях размеры подбираются индивидуально.
Еще одним значением, на которое вам необходимо обратить внимание – это уровень наклона лестницы относительно пола. Идеальным считается наклон в 75 градусов. Именно такой показатель максимально удобен для подъема.
Монтаж раздвижных лестниц на чердак своими руками
Для того, чтобы произвести монтаж раздвижной лестницы вам необходимо приобрести следующие инструменты и материалы: Крышка люка, утепление крышки люка, монтажная пена, набор раздвижной конструкции, отвертки. Также не забудьте проверить комплектацию выдвижной лестницы, в нее должны входить: лестница, люк, болты, фурнитура, кронштейны.
Этапы установки раздвижной лестницы на чердак:
- Закрепите короб лестницы в чердачном проеме при помощи болтов и кронштейнов;
- Закрепите ручки лестницы на коробе с помощью шурупов;
- Проверьте работу конструкции;
- Задуйте зазоры между коробом и чердачным проемом монтажной пеной.
Данная инструкция по установке приведена в дополнение к основной инструкции, которая прилагается к каждому покупному комплекту раздвижных лестниц. Последовательно выполняйте порядок действий, и вы соберете конструкции за несколько часов.
Раздвижные лестницы очень просты в установке. Однако если вы неуверенны в своих силах, лучше обратиться к профессиональному мастеру.
Монтаж готовой раздвижной лестницы не займет много времени. Однако, чтобы такое изделие служило вам долгие годы, и подъем по нему был максимально безопасным, необходимо правильно выполнить последовательность всех этапов установки.
Конструкция выдвижной лестницы на чердак (видео)
Раздвижные лестницы – это отличный вариант для современных чердаков. С их помощью вы сможете попасть в мансардное помещение, не выходя из дома. Ищите новые возможности, и добавляйте в свой дом комфорт!
Оцените статью:
Поделитесь с друзьями!
homeli.ru
Приставная или переносная лестница – это вариант приспособления для подъема и спуска там, где это необходимо. Чаще всего используется для сельскохозяйственных работ (обрезка деревьев, побелка/покраска, другая работа) или для того, чтобы попасть на крышу либо чердак, если стационарную лестницу там по каким-либо причинам установить невозможно. От обычного изделия отличается не только мобильностью, но и более малым весом, к тому же ее достаточно легко сделать своими руками.
Интересная деревянная приставная лестница, «армированная» для усиления конструкции
Виды переносных лестниц
Даже эта несложная конструкция имеет несколько видов, которые немного отличаются друг от друга:
- Приставная – прямая, достаточно громоздкая лестница с крепкими ступенями. Она занимает немало места при хранении – обычно ее подвешивают на два штыря, вделанные в стену любой сельскохозяйственной постройки. Рекомендуемый угол наклона при использовании – 60-75 градусов. Для относительно молодых людей спуск и подъем по ней особых затруднений не доставляет, а вот переноска грузов, особенно габаритных, почти невозможна. Дети и пожилые люди ею пользоваться не могут.
- Складывающаяся или раскладная – в отличие от приставной, не занимает много места. Ее чуть труднее сделать своими руками – части крепятся на специальные шарниры, благодаря которым она складывается и свободно размещается в углу. Ее применяют, когда нужно достаточно часто подниматься наверх, например, на чердак или в мансарду на втором этаже. Зачастую с одной стороны такая лестница заканчивается креплениями в виде крючков, с помощью которых ее цепляют за пазы, расположенные, например, на чердачном люке. Один из самых известных вариантов складной лестницы – стремянка.
- Выдвижная – это прекрасная альтернатива складной лестнице, правда, места она занимает чуть больше. Внутри каждой тетивы находятся специальные пазы для секций, и каждая последующая из них легко входит в предыдущий паз. Угол наклона можно установить практически любой, удобный для пользователей.
У каждого из вариантов имеются свои достоинства и недостатки, поэтому вид лестницы, как правило, выбирают в индивидуальном порядке.
Складываемая деревянная лестница на чердак
На заметку: в приусадебном хозяйстве неплохо иметь хотя бы две лестницы различного типа, чтобы быть способным проникать везде, куда это необходимо.
Изготовление лестницы самостоятельно: тонкости и нюансы, которые следует запомнить
Для приставной лестницы потребуются брусья из дерева с определенным сечением. Специалисты предпочитают изготавливать такой вид сооружения из сосны – она достаточно прочна и обладает не особо большим весом, что немаловажно, если учесть, что ее придется переносить. Можно сделать данное сооружение из ореха – его древесина обладает практически теми же свойствами, что и сосна. Дуб к применению для сооружения лестницы своими руками не рекомендуется – он очень прочный, но тяжел для переноски.
Для тетивы стоит использовать брусья с сечением 40-50 мм., а для ступеней – 30-40 мм. Количество ступеней и длина тетивы зависит от желаемой высоты лестницы – для ее определения необходимо измерить расстояние до всех мест, куда в будущем планируете подниматься. Важно – древесина для тетивы и ступеней должна быть одинаково просушена, иначе лестница обязательно будет скрипеть и впоследствии может стать травмоопасной. Собирать детали своими руками можно, как с помощью саморезов, так и склеивая, впрочем, для надежности многие мастера применяют оба способа соединения. Можно сделать ширину приставной лестницы одинаковой по всей длине, а можно «сузить» ее к верхнему краю. В любом случае ширина готового изделия должна составлять не менее 50-70 сантиметров. Рекомендуемое расстояние между ступенями – 30-35 сантиметров.
Вырезанный паз в деревянном брусе
Как собрать приставную лестницу?
Далее все достаточно просто – изготавливаются все детали в необходимом количестве, в каждой тетиве высверливаются пазы – в них будут вставляться окончания будущих ступеней – так называемые «шипы». Не стоит забывать, что шипы должны входить в пазы достаточно плотно, поэтому последние необходимо делать несколько меньше по размеру. Важно не перестараться – слишком маленький паз может стать причиной трещины в тетиве. Далее шипы смазывают клеем и поочередно вгоняют в пазы одной тетивы. Как только эта работа будет закончена – на получившуюся конструкцию надевают вторую тетиву – пазы насаживаются на шипы, также смазанные клеем.
Нелишне напомнить, что, высверливая пазы, их стоит «синхронизировать» между одной и другой тетивой, иначе лестница получится кособокая. Потом, по желанию, ступени можно дополнительно закрепить с помощью гвоздей из дерева либо железа. Как вариант, можно использовать саморезы. Нижний край готового изделия необходимо подрезать под углом, чтобы сделать его максимально устойчивым. Более того, на концы внизу нужно прикрепить резиновые наконечники или шипы из металла. Второй вариант обязателен, если лестницу, сделанную своими руками, предполагается использовать на грунте. Когда все готово, необходимо покрыть сооружение водоотталкивающей краской или лаком, для того, чтобы, во-первых, придать ей эстетически приятный вид, а, во-вторых, предохранить от порчи и воздействия осадков, если приспособление будет храниться под открытым небом.
Красивые ступеньки деревянной лестницы
Для выдвижной лестницы понадобятся…
Выдвижной вариант несколько сложнее, чем приставной, но это искупается тем, что он более компактный, что облегчает его хранение. Помимо деревянных брусьев, вам потребуется клей, шнур из капрона, муфты и скотч. Выбрав длину лестницы, сооружаемой своими руками, оптимальную для собственных потребностей, следует разделить ее на 3 части. На первом сегменте муфта намертво приклеивается и образовывает проем для части тетивы нижнего сегмента.
Чтобы надеть муфту на продольную поперечину следующей секции, она должна быть достаточно свободной. Для этого можно сделать брусок-расширитель – небольшой кусочек бруса обматывается скотчем, а потом вставляется в противоположный конец муфты, в которую уже вбит стационарный сегмент тетивы. Получившееся сооружение обматывают капроновым шнуром и оставляют высыхать. Потом брусок со скотчем вынимают, и муфта готова к приему второго сегмента.
Перекладины с тетивами собирают либо, насаживая на шип, пропитанный клеем, либо, просто приклеивая будущие ступени и обматывая место сборки капроновым шнуром. Когда сборка закончится – следует подумать, чем покрасить деревянную лестницу, которую вы сделали своими руками: или водоотталкивающей краской, либо покрыть лаком, предварительно тщательно высушив. Раскладную лестницу сооружают практически так же.
Скорее всего, у каждого мастера, который хотя бы раз изготавливал тот или иной вид лестницы своими руками, имеются свои секреты. Поделитесь ими в комментариях!
Загрузка…































































































































































































