Если вы решили сделать двери в гараж своими руками, вам обязательно пригодятся подробные инструкции и советы. Вполне можно справиться с работой самостоятельно, если изучить опыт бывалых автолюбителей. Сегодня мы рассмотрим данный вопрос более подробно: узнаем, какие бывают типы гаражных ворот, как своими руками сделать раму и створки, каким образом установить двери в гаражное помещение.
В первую очередь рассмотрим типы гаражных дверей. Выясним, чем разные виды отличаются, какие у них преимущества и недостатки, принцип действия и особенности конструкции.
Когда автолюбители решают изготовить двери в гараж своими руками, они чаще всего выбирают подъемные и распашные конструкции. Они подходят для самостоятельного изготовления и монтажа, при этом обеспечивают высокий уровень безопасности, их можно хорошо утеплить без привлечения специалистов.
Требования к гаражным дверям
Важно знать спектр требований, которые предъявляются к гаражным воротам. Обращайте внимание на все нюансы, чтобы ваши двери были качественными, надежными и долговечными.
- Когда вы будете рассчитывать ширину ворот, делайте их с запасом, ведь у вас может появиться новый автомобиль.
- С обеих сторон от автомобиля следует предусмотреть расстояние до стоек ворот минимум в 30 см.
- Продумайте все таким образом, чтобы машина могла без проблем въезжать в гараж и выезжать из него.
- Обязательно позаботьтесь о защите ворот от негативного воздействия окружающей среды. Очень важно сделать максимально надежным крепление гаражных дверей.
- Используйте накладные замки для внешних навесов, монтируйте бронированные накладки для внутренних замков.
- Стандартный проем гаража составляет 2,4 на 2,1 метра.
- Важно гарантировать прочность дверей в гараж на случай несанкционированного доступа, взлома. Полотна дверей желательно изготавливать из оцинкованной стали с толщиной минимум в 2 мм.
- Обычная высота дверей в гараж для легкового автомобиля составляет 2 метра.
Самое главное, чтобы был обеспечен комфортный въезд, двери в гараж гарантировали безопасность автомобиля.
Делаем двери в гараж своими руками
Сразу запаситесь всеми необходимыми материалами и инструментами. Конструктивно распашные ворота состоят из шарниров и стоек, обшивки и металлической рамы. Вам нужен широкий перечень материалов с инструментами.
- Шарниры, металлический уголок, профильная труба, из которой надо сделать раму и каркас, ребра жесткости.
- Электроды, аппарат для сварки.
- Болгарка, шлифовальные круги.
- Слесарные угольники, уровень и рулетка.
- Электродрель, шуруповерт с комплектующими.
- Утеплитель, фанера.
- Грунтовка, монтажная пена.
- Краска для наружных работ, кисти с валиками.
Размер дверей в гараж определяется индивидуально, с учетом параметров автомобиля.
Изготовление рамы дверей гаража
Для начала выберите ровную площадку для работы. Потом действуйте по алгоритму.
- Нужно выровнять место.
- Затем отмерьте четыре отрезка профильной трубы с сечением 40 на 60.
- Элементы соедините по углам.
- Потом раму нужно сварить в углах.
- Измерьте диагонали каркаса. Они обязательно должны быть одинаковыми.
- Сварные швы аккуратно зачистите.
- Теперь монтируйте опорные площадки. На них вы будете закреплять раму. Вам понадобятся пластины из металла. Когда раму монтируют к стене анкерами, в ней должны быть заранее сделаны отверстия для них.
Можно сделать раму из металлического уголка. Уголок при этом должен быть направлен внутрь проема.
Делаем створки гаражных ворот
Каркас дверей лучше делать из профильных труб 20 на 40. Чтобы створки с легкостью закрывались и открывались, между ними лучше оставить расстояние примерно 4-5 мм. Потом можно работать по инструкции.
- Сварите раму каркаса дверей. Тщательно контролируйте все параметры.
- Сделайте примерку к раме. Вам нужно соблюдать размеры.
- Установите элементы жесткости.
- Желательно приварить петли, а потом выполнять обшивку ворот. Многие гаражники предпочитают дополнять полотна ворот деревом или профильным листом.
- Если используется только листовой металл, его логичнее сразу приварить к каркасу створок.
- Сварные швы надо зачистить.
- На следующем этапе надо установить шарниры.
Осталось только навесить готовые двери на уже пристреленную анкерами раму.
Следует также прогрунтовать ворота, покрасить их и установить запорный механизм.
Утепляем двери в гараж
Желательно также позаботиться и об утеплении дверей в гараж. Ведь они могут оградить не только от злоумышленников, но и от холода. Главное, все правильно сделать. Безусловно, металлические ворота особенно нуждаются в утеплении. Действуйте по алгоритму. Использовать проще и эффективнее всего пенопласт.
- Сначала выполните разметку.
- Ножом нарежьте материал.
- Сделайте деревянную обрешетку. Можно прикрепить ее к металлу с помощью жидких гвоздей.
- Заполните пространство между деревянными рейками пенопластом.
- Затем используйте монтажную пену, чтобы вся поверхность получилась цельной.
- Чтобы на ребрах жесткости не осталось мостиков холода, их закрывают фольгированным утеплителем, сажая его на жидкие гвозди.
- Дождитесь высыхания клея и монтажной пены.
- Вырежьте фанеру по размерам гаражных дверей. Обработайте ее для защиты от гниения.
- Закрепите фанеру поверх утеплительного слоя.
Теперь осталось только добавить воротам эстетики.
Вы можете узнать еще больше полезной информации, если посмотрите ролики на видео. В таком формате вам будет проще запомнить советы: все показано на конкретных примерах. Бывалые гаражники делятся своим опытом установки. Есть два интересных видео, в которых можно увидеть, как люди самостоятельно делают и устанавливают своими руками подъемные гаражные ворота.
Особого внимания заслуживает также сборка рамы гаражных ворот. Вот каким образом это можно сделать, вы увидите в следующем ролике:
При строительстве ограждения вокруг своего дачного участка, вы наверняка построили ворота для въезда автомобиля. Таким образом, вы хотели убить двух зайцев: сделать въезд для машины ну и конечно вход на свою территорию.
Но как показала практика, не совсем удобно открывать большую половинку ворот для того чтоб войти или выйти. Вот сейчас и настало время для принятия конструктивного решения. Нужно модифицировать готовую конструкцию.
Сегодня мы вам расскажем, как сделать калитку в гаражных воротах, которые уже установлены и функционируют.
Подготовительный этап
Что ж первым делом нужно иметь в виду, из какого материала у вас сделаны ворота, ведь мы будем модифицировать готовую конструкцию, вследствие чего нам понадобится демонтировать обшивку конструкции и делать в ней вырез.
Давайте предположим, что ворота вашего гаража обшиты профнастилом.
Сразу приготовьте инструмент, который вам понадобится в процессе работы:
- Болгарка
.Нам придется делать резы по металлу, а это, как известно самый универсальный инструмент. - Сварочный аппарат
.Сварка будет нужна для . - Шуруповерт или реверсивная дрель
. Элементы крепежа, в данном случае саморезы по металлу лучше всего закручивать механическим способом. - Рулетка, строительный уровень, карандаш или мел
.Весь этот набор поможет вам провести размеры и дать отметки.
Совет: В плане удобства и облегчения поставленной задачи, мы бы порекомендовали использовать для изготовления калитки металлическую профильную трубу.
Цена этого материала не высока, а так же она имеет небольшой вес, что не маловажно в устройстве всей конструкции в целом.
Начнем с демонтажа обшивки
Вы уже, скорее всего, точно знаете, в какой из двух половин ворот, будет проем. Если это так тогда нужно демонтировать существующую обшивку чтоб не испортить ее. Это делается просто, достаточно выкрутить саморезы и снять лист металла.
Теперь, когда перед вами каркас половины ворот нужно разметить нашу будущую навесную дверь. Обязательно делайте замер от нижней каркасной планки воротной конструкции. Что касается ширины прохода, то советуем остановиться на существующих стандартах, девяносто, восемьдесят миллиметров, тут уж, что вас устроит.
Не забывайте что ваша калитка в гаражных воротах своими руками, должна иметь один из рекомендуемых размеров. Проем же в половине снятой секции нужно отмерить чуть больше с учетом ширины используемого материала.
Теперь, когда вы все точно отмерили можно вырезать проем для калитки в половинке ворот.
Важно!
Перед тем как начать вырезать проем, рекомендуется снять с петель половину воротной конструкции, с которой будут проводиться работы.
В лежачем состоянии намного легче проводить как разметку, так и последующую сборку, сварку.
Монтаж каркаса калитки и секции ворот
Вырезав проем в секции его теперь нужно раскрепить и предать ему жесткость. Для этого нарезанные по нужным размерам куски профильной трубы привариваем сваркой к каркасу ворот. При этом точно соблюдаем размеры будущего проема.
Когда проем готов, переходим к изготовлению самой конструкции дверей. Режем трубу точно по размеру и с помощью сварки крепим между собой по периметру. Не забываем про ребра жесткости и направляющие для крепления обшивки.
Обязательно при сборке пользуйтесь строительным уголком девяносто градусов. Точная выдержка углов важный момент в монтаже. Так вы избежите перекоса каркаса, и получите точные прямоугольные формы.
Познавательное видео — в этой статье, поможет вам разобраться со всеми тонкостями сборки металлоконструкции. Обязательно посмотрите его, и быть может некоторые вопросы, отпадут сами собой.
Устанавливаем каркас и привариваем петли
Обе конструкции уже в сборе и сейчас настало время приварить петли на каркас и соответственно на половинку ворот. Использовать мы будем специальные воротные петли, которые можно купить сегодня практически в любом строительном магазине.
Вот наша инструкция как это просто сделать:
- Прежде всего, вы должны решить для себя, куда будет открываться калитка, внутрь вашего участка или наружу. От этого будет зависеть процесс монтажа петель.
- Монтируем петли, предположительно дверь будет открываться внутрь. Располагаем секцию ворот тыльной стороной к себе, лицевая сторона, где крепятся листы обшивки, лежит на земле.
- В готовый проем устанавливаем каркас калитки. Выставляем ровно по плоскости всю конструкцию. Чтоб оба каркаса находились в одной плоскости, так мы избежим перекоса всей конструкции в целом.
- Устанавливаем петли на их законное место, обычно это двадцать миллиметров от верха и низа каркаса калитки.
- Половина петли, штуцер, монтируется на сам забор. Вторая половина внутренняя, монтируется на каркас двери.
- Прихватываем сваркой в нескольких местах и проверяем, как отрывается дверь. Если все в порядке и нет перекосов и несовпадения по плоскости, привариваем петли капитально.
Теоретически ваши гаражные секционные ворота с калиткой уже готовы, осталось обшить их профлистом, и дело сделано.
Обшиваем каркас ворот и калитки профлистом
Стоит сразу сказать о главном, так как у нас имеется целый профильный лист, в нем нужно отметить место выреза дверного проема. Но вот использовать этот вырезанный элемент для обшивки дверного проема решать вам.
Необходимость калитки в гаражных воротах очевидна. В этом убеждаются владельцы новостроя, в котором плохой пол, установлены символические двустворчатые ворота с отпадающей краской. Поэтому каждый новоиспеченный хозяин такого гаража берется за его модернизацию, делая подвал, выполняя стяжку, устанавливая навес перед входом, обустраивает вентиляцию. Полная переделка касается и гаражных ворот.
В некоторых случаях хозяин заказывает вместо старых хлипких ворот новые, и просит обязательно сделать калитку. Но большинство владельцев усовершенствуют конструкцию доставшегося наследства своими руками и врезают в ворота дверцу, устанавливают надежные замки и запоры, наносят новую краску, утепляют.
Обычные двухстворчатые ворота
Преимущества калитки
Калитка в гараже позволит свободно попасть в помещение без необходимости открывания створок ворот. Это экономит время, делает пользование гаражом более удобным. В зимние периоды, когда температура на улице отрицательная, калитка защитит помещение гаража от выветривания тепла. Порог калиточного проема делают на высоте 20-30 см от пола, что также облегчит доступ в гараж при снежных заметах и сугробах при входе.
Дополнительная дверца сделает пользование гаражом удобным
Как правило, при наличии дополнительного входа в воротах гаража хозяева обустраивают на них внутренние запоры, которые отпираются только изнутри помещения. При этом отпадает необходимость в навесных наружных замках, и в зимнее время не будет стоять вопрос о разогревании замерзшего замочного механизма.
Общие требования к гаражным воротам
После реконструкции гаражные ворота должны отвечать таким требованиям:
- Коробка должна быть надежно закреплена в проеме. Как правило, строители сдают объект с воротами, которые приварены к нескольким металлическим закладным. Это крепление необходимо дополнить несколькими анкерами.
- Петли должны выдерживать высокую нагрузку, так как после утепления и установки дополнительной дверцы вес створок увеличится.
- Поскольку петли обычно навариваются внакладку с наружной стороны конструкции, необходимо приварить к торцам штыри с фиксацией при закрывании в отверстиях в коробке. Эта мера предотвратит возможность вскрытия дверей путем срезания петель.
Штыри в металлической двери
- Гаражные ворота необходимо гидроизолировать пленкой и утеплить, установить нащельники.
- На улице необходимо смонтировать фиксаторы для удерживания створок ворот в открытом положении. При внезапных порывах ветра ворота могут захлопнуться и повредить выезжающую из гаража машину.
Конструкция самодельного фиксатора
- Калитку в гаражных воротах делают такой высоты, чтобы хозяину не пришлось нагибаться при входе и случайно не травмироваться.
- Выбирать место положения дверцы необходимо так, чтобы можно было войти в гараж даже тогда, когда автомобиль стоит плотно к входу. Таким образом, традиционное расположение проема для калитки ближе к центру проема ворот не оправдано. Калиточный проем лучше делать ближе к петлевой стороне одной из створок. При таком расположении всегда будет удобно найти выключатель света на стене у входа, и проход не будет затруднен близко стоящей машиной.
Дверца расположена ближе к петлевой стороне
Технология изготовления
На первый взгляд, врезать дверцу в створку гаражных ворот своими руками не просто. На самом деле, есть простой способ, как сделать в воротах калитку, который можно использовать и при изготовлении ворот с нуля.
Инструмент и материалы
Для начала необходимо подготовить рабочее место и инструменты:
- Инверторный сварочный аппарат. Работать необходимо в маске и защитных рукавицах. В зависимости от толщины металла (обычно 2 мм), покупают электроды соответствующего диаметра.
Сварочный аппарат
- Большая углошлифовальная машина под круг диаметром 150 или 180 мм, набор отрезных кругов.
Отрезные круги
- Дрель со сверлами.
- В зависимости от того, из какого профиля выполнены горизонтальные или вертикальные ребра жесткости створки ворот, необходимо подготовить уголок или трубу с квадратным сечением. Из них будет вариться каркас коробки и калиточная рамка. Учитывая то, что имеющиеся ребра жесткости будут использоваться повторно, подсчитывают количество деталей, которые нужно докупить. Конструктивно коробка своими руками будет состоять из двух длинных горизонтальных профилей, длина которых равна длине створки гаражных ворот, и двух вертикальных стоек, расположенных между горизонтальными ребрами. Их высота равна высоте дверцы. Створка варится из 4-х заготовок, торцы которых подрезаны под 45 градусов.
Ребра жесткости из трубы
- Метровая металлическая линейка, рулетка, угольник, мелок.
- Воротные петли. Если петли продают без крепежных пластин, то их необходимо будет вырезать из листового металла и приварить к петлям самостоятельно.
Петли с приваренными пластинами и без них
- Ручной слесарный инструмент: молоток, металлическая щетка, зубило, струбцины (минимум 2 шт.), керн, крупный напильник.
Работать можно во дворе перед гаражом, положив предварительно на грунт и выровняв по уровню толстые бруски. Сняв нужную половинку гаражных ворот, ее укладывают на бруски тыльной стороной вверх.
Изготовление калитки
Суть данного метода в том, что не нужно снимать обшивочный лист металла со створки ворот. Калитка своими руками монтируется с обратной стороны, и в конце лист обшивки просто разрезается по периметру дверцы с лицевой стороны.
Листовой металл приварен точечной сваркой
- Первым делом необходимо демонтировать внутренние ребра жесткости со створки. Как привило, они приварены точечной сваркой к обшивочному листу. Эту сварку необходимо срезать болгаркой. Дальше работают зубилом и молотком. Обычно эта работа не занимает много времени.
- Счистить ржавчину и старую краску.
- Затем необходимо изготовить каркас калитки для гаража. Для этого отмеряют два длинных и два коротких куска уголка по ширине и высоте дверцы. Торцы заготовок подрезают под углом 45 градусов. Если используется уголок, заготовки отрезают так, чтобы их полка располагалась внутри контура створки. Заготовки выкладывают на ровной поверхности в виде прямоугольника, при необходимости подрезают углы для обеспечения минимального зазора. Стыки прихватывают точечно, промеряют диагонали прямоугольника, и, если все в порядке, выполняют сплошную сварку.
Сборка конструкции
- Затем по высоте дверцы в створке ворот приваривают горизонтальный профиль. Если используются уголки, то их нужно приваривать полкой наружу относительно калиточного проема.
Важно
! Можно устанавливать несущими не горизонтальные, а вертикальные профили.
- На следующем этапе необходимо приготовить прокладки. Для этого используют либо тонкие щепки толщиной 4 мм, либо кусочки пластика. Затем в нужном месте при помощи струбцин через подкладки к горизонтальной перемычке прикручивают каркас створки. Теперь можно приварить нижнюю перемычку, а потом и две боковые.
Сборка каркаса из труб, отрезанных под прямым углом
- Теперь рамка калиточной створки прокладывается прокладками по всему периметру и по внутреннему периметру приваривается к обшивочному листу. Точно так же полностью проваривается каркас коробки, только уже по наружному контуру.
- Затем необходимо перенести контрольные отметки на лицевую сторону створки ворот. Для этого ее поднимают, ставят в вертикальное положение, берут дрель с длинным тонким сверлом по металлу и по углам внутреннего периметра калиточной коробки сверлят 4 сквозные отверстия.
- Получив на лицевой стороне контрольные точки, выполняют разметку. По петлевой стороне мелком проводят линию прямо по полученным отверстиям, а по остальным трем добавляют по 1-1,5 см.
Проверка точности позиционирования деталей
- На следующем этапе необходимо прорезать обшивочный металл по петлевой линии, остальные пока не трогаем. Необходимо приварить петли. Можно положить створку снова в горизонтальное положение, приложить на разрез петли, выровнять при помощи длинной рейки их соосность и прихватить. При этом цилиндр должен располагаться строго по центру разреза.
Ворота изнутри
- Теперь остается навесить ворота на место и болгаркой прорезать оставшиеся 3 стороны по разметке с припуском. Калитка своими руками готова.
Готовая калитка
Теперь необходимо полностью проварить петли, установить замок (лучше всего ригельный обратной тяги), установить боковые штыри против срезания петель, почистить, покрыть краской и утеплить ворота.
Видео с похожей технологией изготовления калитки:
Это способ позволяет быстро и аккуратно изготовить калитку гаражных ворот.
После реконструкции гаражные ворота должны отвечать таким требованиям:
- Коробка должна быть надежно закреплена в проеме. Как правило, строители сдают объект с воротами, которые приварены к нескольким металлическим закладным. Это крепление необходимо дополнить несколькими анкерами.
- Петли должны выдерживать высокую нагрузку, так как после утепления и установки дополнительной дверцы вес створок увеличится.
- Поскольку петли обычно навариваются внакладку с наружной стороны конструкции, необходимо приварить к торцам штыри с фиксацией при закрывании в отверстиях в коробке. Эта мера предотвратит возможность вскрытия дверей путем срезания петель.
Штыри в металлической двери
- Гаражные ворота необходимо гидроизолировать пленкой и утеплить, установить нащельники.
- На улице необходимо смонтировать фиксаторы для удерживания створок ворот в открытом положении. При внезапных порывах ветра ворота могут захлопнуться и повредить выезжающую из гаража машину.
Конструкция самодельного фиксатора
- Калитку в гаражных воротах делают такой высоты, чтобы хозяину не пришлось нагибаться при входе и случайно не травмироваться.
- Выбирать место положения дверцы необходимо так, чтобы можно было войти в гараж даже тогда, когда автомобиль стоит плотно к входу. Таким образом, традиционное расположение проема для калитки ближе к центру проема ворот не оправдано. Калиточный проем лучше делать ближе к петлевой стороне одной из створок. При таком расположении всегда будет удобно найти выключатель света на стене у входа, и проход не будет затруднен близко стоящей машиной.
Дверца расположена ближе к петлевой стороне
Технология изготовления
На первый взгляд, врезать дверцу в створку гаражных ворот своими руками не просто. На самом деле, есть простой способ, как сделать в воротах калитку, который можно использовать и при изготовлении ворот с нуля.
Инструмент и материалы
Для начала необходимо подготовить рабочее место и инструменты:
- Инверторный сварочный аппарат. Работать необходимо в маске и защитных рукавицах. В зависимости от толщины металла (обычно 2 мм), покупают электроды соответствующего диаметра.
Сварочный аппарат
- Большая углошлифовальная машина под круг диаметром 150 или 180 мм, набор отрезных кругов.
Отрезные круги
- Дрель со сверлами.
- В зависимости от того, из какого профиля выполнены горизонтальные или вертикальные ребра жесткости створки ворот, необходимо подготовить уголок или трубу с квадратным сечением. Из них будет вариться каркас коробки и калиточная рамка. Учитывая то, что имеющиеся ребра жесткости будут использоваться повторно, подсчитывают количество деталей, которые нужно докупить. Конструктивно коробка своими руками будет состоять из двух длинных горизонтальных профилей, длина которых равна длине створки гаражных ворот, и двух вертикальных стоек, расположенных между горизонтальными ребрами. Их высота равна высоте дверцы. Створка варится из 4-х заготовок, торцы которых подрезаны под 45 градусов.
Ребра жесткости из трубы
- Метровая металлическая линейка, рулетка, угольник, мелок.
- Воротные петли. Если петли продают без крепежных пластин, то их необходимо будет вырезать из листового металла и приварить к петлям самостоятельно.
Петли с приваренными пластинами и без них
- Ручной слесарный инструмент: молоток, металлическая щетка, зубило, струбцины (минимум 2 шт.), керн, крупный напильник.
Работать можно во дворе перед гаражом, положив предварительно на грунт и выровняв по уровню толстые бруски. Сняв нужную половинку гаражных ворот, ее укладывают на бруски тыльной стороной вверх.
Изготовление калитки
Суть данного метода в том, что не нужно снимать обшивочный лист металла со створки ворот. Калитка своими руками монтируется с обратной стороны, и в конце лист обшивки просто разрезается по периметру дверцы с лицевой стороны.
Листовой металл приварен точечной сваркой
- Первым делом необходимо демонтировать внутренние ребра жесткости со створки. Как привило, они приварены точечной сваркой к обшивочному листу. Эту сварку необходимо срезать болгаркой. Дальше работают зубилом и молотком. Обычно эта работа не занимает много времени.
- Счистить ржавчину и старую краску.
- Затем необходимо изготовить каркас калитки для гаража. Для этого отмеряют два длинных и два коротких куска уголка по ширине и высоте дверцы. Торцы заготовок подрезают под углом 45 градусов. Если используется уголок, заготовки отрезают так, чтобы их полка располагалась внутри контура створки. Заготовки выкладывают на ровной поверхности в виде прямоугольника, при необходимости подрезают углы для обеспечения минимального зазора. Стыки прихватывают точечно, промеряют диагонали прямоугольника, и, если все в порядке, выполняют сплошную сварку.
Сборка конструкции
- Затем по высоте дверцы в створке ворот приваривают горизонтальный профиль. Если используются уголки, то их нужно приваривать полкой наружу относительно калиточного проема.
Важно! Можно устанавливать несущими не горизонтальные, а вертикальные профили.
- На следующем этапе необходимо приготовить прокладки. Для этого используют либо тонкие щепки толщиной 4 мм, либо кусочки пластика. Затем в нужном месте при помощи струбцин через подкладки к горизонтальной перемычке прикручивают каркас створки. Теперь можно приварить нижнюю перемычку, а потом и две боковые.
Сборка каркаса из труб, отрезанных под прямым углом
- Теперь рамка калиточной створки прокладывается прокладками по всему периметру и по внутреннему периметру приваривается к обшивочному листу. Точно так же полностью проваривается каркас коробки, только уже по наружному контуру.
- Затем необходимо перенести контрольные отметки на лицевую сторону створки ворот. Для этого ее поднимают, ставят в вертикальное положение, берут дрель с длинным тонким сверлом по металлу и по углам внутреннего периметра калиточной коробки сверлят 4 сквозные отверстия.
- Получив на лицевой стороне контрольные точки, выполняют разметку. По петлевой стороне мелком проводят линию прямо по полученным отверстиям, а по остальным трем добавляют по 1-1,5 см.
Проверка точности позиционирования деталей
- На следующем этапе необходимо прорезать обшивочный металл по петлевой линии, остальные пока не трогаем. Необходимо приварить петли. Можно положить створку снова в горизонтальное положение, приложить на разрез петли, выровнять при помощи длинной рейки их соосность и прихватить. При этом цилиндр должен располагаться строго по центру разреза.
Ворота изнутри
- Теперь остается навесить ворота на место и болгаркой прорезать оставшиеся 3 стороны по разметке с припуском. Калитка своими руками готова.
Готовая калитка
Теперь необходимо полностью проварить петли, установить замок (лучше всего ригельный обратной тяги), установить боковые штыри против срезания петель, почистить, покрыть краской и утеплить ворота.
Видео с похожей технологией изготовления калитки:
Это способ позволяет быстро и аккуратно изготовить калитку гаражных ворот.
Створки ворот
Створки с ребрами жесткости
Потребуется 4 отрезка металлического уголка для вертикальных сторон каркаса, длина каждого на 10 мм меньше, чем размер рамы, и 4 отрезка для горизонтали, их размер равняется половине длины проема, из которой также вычитают 10 мм. Раскладываются заготовки для створок так же, как предыдущий каркас, выверяется геометрия отрезков и они свариваются. Если есть возможность, каркасы размещают в периметре готовой рамы, это позволяет контролировать углы между деталями. Необходимые зазоры для свободного движения створок оставляют при помощи вкладышей толщиной 5‒7 мм. Все части свариваются. Для придания прочности к каркасу приваривают дополнительный горизонтальный или диагональный отрезок.
Полотна створок вырезаются нужного размера из металлического листа. Для надежной защиты помещения он не должен быть тоньше 2‒3 мм. Одна из частей, обычно правая, выполняется на 20 мм больше, чтобы ворота запирались внахлест. Чтобы зафиксировать лист, его точечно приваривают по углам и середине. Основательную сварку начинают с нижней части конструкции. Предварительную сварку, выполненную в углах, срезают.
Виды калиток
Практичность встроенной калиточной дверцы в одну из плоскостей ворот бесспорна. Нет необходимости при каждом пешеходном входе/выходе громыхать замком или засовом, тратить время на то, чтобы распахнуть или закрыть металлические тяжёлые створы.
Пример встроенной калитки из профнастила
К тому же явная экономия пространства, особенно если его приходится выкраивать при обустройстве гаража или дачи. А обязательный порожек перед ней предотвращает скопление снега, препятствующего её открытию.
Примыкающая калитка также имеет немало достоинств. Обычно её устанавливают без порога, создающего неудобства при выходе на улицу с детской коляской или велосипедом. Отсутствует препятствие для малышей, которые, преодолевая его, легко могут получить травмы. Однако после снежной ночи её открыть можно после соответствующей расчистки территории.
Вид калиток определяет не каркас, а тот материал, которым он заполнен. В связи с этим они бывают:
- деревянные;
- из профнастила;
- металлические;
- из кованого металла.
На калиточные дверцы, независимо от того встроенные или примыкающие, всегда тратится тот же материал, из которого сделаны ворота.
Чертеж с размерами ворот и встроенной калитки
Иначе вся конструкция будет выглядеть непривлекательно, даже нелепо. Поэтому приобретая деревянные доски или листы профнастила, надо учитывать размеры будущей примыкающей калитки.
Деревянная калитка
Издавна забор или вход на усадьбу обустраивали штакетником – неширокими деревянными планками, прибитыми гвоздями к поперечной перекладине. Какой-либо дополнительный каркас для укрепления входной конструкции не требовался. Соорудить её очень просто, а домашнему умельцу не понадобятся профессиональные навыки плотника. Правда, от частого использования такие ворота в скором времени перекашивались, требовали ремонта или замены.
Чтобы укрепить деревянные входные сооружения, придумали каркас из металла для крепления обшивочного материала. Такие ворота служат дольше, но древесина даже при самом тщательном уходе подвергается воздействию насекомых, атмосферных осадков, температурных перепадов.
Конструкция деревянных ворот и встроенной калитки
Она изнашивается значительно быстрее, чем металлические детали. Чтобы сделать своими руками деревянную калитку рядом с воротами, не потребуется много времени, если она проектировалась в заборе ещё до его возведения. Стоить хозяину будет совсем недорого, даже если использовать доски высокого качества. Здесь не обойтись без
- дверных навесов;
- ручки, защёлки;
- саморезов;
- антисептического раствора для обработки древесины;
- грунтовки по дереву, лака;
- бетонного раствора.
Общий порядок установки своими руками предельно прост. Доски, которые заранее обработаны антисептиком, на ровной горизонтальной поверхности выкладывают в виде будущей дверцы.
Схема с размерами для изготовления встроенной калитки из дерева
К верхнему и нижнему краю прибивают две поперечные перекладины и одну диагональную. Затем устанавливают заранее приготовленные опорные столбы с боковинами.
Расстояние между опорами равняется ширине калитки плюс 2–3 см. Глубина их погружения определяется уровнем промерзания грунта. Они должны стоять на непромерзающей земле. Затем навешивают створку, покрывают её грунтовкой по дереву, лаком. Дверную ручку и защёлку можно прикреплять в последнюю очередь. При аккуратном использовании такая конструкция прослужит 10 лет.
Если же ворота сделаны из полотна плотно примыкающих досок, а их укрепляет металлический каркас, то калиточная дверца должна быть выполнена в таком же стиле.
Калитка из металлического штакетника и профлиста
Позже появился металлический штакетник, который укрепил распашные оградительные сооружения, придал им совершенно новый вид. Этот материал по сравнению с деревом удлиняет срок эксплуатации калиточной дверцы в три раза. Однако текущий уход обязателен, а в первую очередь покраска и ремонт.
Металлический штакетник, обработанный полимерным составом, может иметь самые разнообразные оттенки. У него большие дизайнерские возможности создания цветовой гармонии в ансамбле с кровельной черепицей и кирпичными стенами дачи или частного городского дома.
Распашные ворота, оборудованные стальным штакетником, очень прочные. Стоимость их гораздо ниже, чем кирпичных или каменных. Металлический каркас покрывают штакетником с некоторым просветом, поэтому в отличие от глухих перекрытий он создает меньшую парусность при напоре сильного ветра.
Пример встроенной калитки из профлиста
Это очень важно для дачи, которая не может быть защищена рядом стоящими высокими зданиями. А последовательность монтажа такая же, как при установке калиток из дерева. Используются обычные крепёжные материалы и инструменты.
Профнастил также обладает множеством достоинств. Это современный стройматериал из гофрированного стального листа, произведённый способом холодного проката. Он подвергается оцинковке, а для защиты от неблагоприятных атмосферных воздействий его покрывают специальным полимерным слоем. Для установки ворот и калиток следует использовать профлист с двусторонним покрытием. Несмотря на металлический каркас, они будут одинаково привлекательными как со двора, так и с улицы.
Профлист лёгок, поэтому монтаж сооружений в заборе из распашных дверей можно выполнить своими руками, не привлекая сложной строительной техники.
Чертеж с размерами каркаса металлической калитки
При монтаже не обойтись без следующих электроинструментов:
- сварочного аппарата;
- болгарки;
- шуруповёрта.
Установка опорных столбов производится по тем же правилам, как при сооружении калитки из дерева или стального штакетника. Если же распашные створы уже установлены, то можно в одну из них вмонтировать врезную калитку. Притом всё это можно сделать своими руками.
Калитка из кованого металла
Воротами и калитками из металла украшают не только заборы для дачи, шикарных усадеб, коттеджей, но и окружающий ландшафт. А металлические элементы ковки создают атмосферу, напоминающую времена расцвета ренессанса. Сделать их своими руками далеко не каждому по плечу. Тут необходимо соблюдать довольно сложную технологию холодной или горячей ковки с использованием специального оборудования. Столбы для будущей калитки должны быть достаточно прочными, поэтому их делают обычно из кирпича.
Оригинальный дизайн ворот и калитки из кованого металла
Самый надёжный вариант – это установить столбики из профильной трубы или другого материала, к которым будут крепиться завесы, и обложить их кирпичной кладкой. Предварительно металл обрабатывают, удаляя зачистным кругом болгарки пятна коррозии. Затем промывают бензином, чтобы удалить следы технических масел.
Глубиной в 1 м в земле выкапывают ямки, вставляют туда металлические столбики и укрепляют утрамбованным щебнем. При этом, используя отвес, постоянно проверяют их строго перпендикулярное положение. Сверху заливают бетонный раствор. Готовые опоры обкладывают кирпичом.
Достаточно эффективны и другие варианты. Например, каждая опора может стоять на отдельной бетонной основе или на ленточном заборном фундаменте, который уложен по периметру участка и продолжается под входными сооружениями. Такая монолитность обеспечивает высокую прочность всей оградительной системы, в том числе ворот и калиточного входа.
Вариант конструкции и схема ворот со встроенной калитки
В таком случае для укладки ленты фундамента своими руками потребуется время, соответствующий строительный материал и неукоснительное выполнение технологии укладки. Тогда по окончании всех этих работ не придётся после зимы переделывать покосившиеся, просевшие распашные створы и калитку. Самая простая калитка из металла – это рамный каркас с приваренной к нему сплошной подложкой без каких-либо дополнительных украшений. Всего лишь её покрывают битумным лаком.
Однако такие металлические конструкции встречаются не так часто и, как правило, для обустройства дачи, а не приусадебного участка городского дома.
Тренд последних лет – это распашные фасадные сооружения с ажурными гнутыми элементами и великолепными деталями горячей ковки. Калитками из кованого металла сегодня никого не удивишь. Их устанавливают, прежде всего, не для обустройства дачи, а для фешенебельного коттеджа или загородной усадьбы.
Вариант оформления встроенной кованой калитки
Они побудили возобновление древнего ремесла и возникновение новых современных технологий, имитирующих элементы ковки. Такие дверцы с декоративной обрешёткой долговечны, обладают очень высоким качеством. Они дорого стоят, но это достаточно надёжное вложение денег, которое пригодится не одному поколению владельцев.
Монтаж таких калиток успешно осуществляют своими руками посредством сварки или с использованием креплений на болтах. Первоначально сваривают рамный каркас, который должен быть на 2–3 см уже входного проёма. Затем, уложив его на ровную горизонтальную поверхность, укрепляют посередине перемычкой, роль которой может выполнять декоративная деталь.
В соответствии с заранее продуманным рисунком калитки в пределах рамы раскладывают литые украшения.

Есть ещё двустворчатые распашные калитки, которые содержат лучшие качества различных материалов. Например, стальной уголок используют, чтобы укрепить каркас, а раму дополняют коваными декоративными элементами. Если хозяин желает, чтобы прохожие не видели, что делается во дворе дачи или усадьбы, то внутреннее пространство заполняют профнастилом или деревом. Дизайнерских вариантов очень много для выражения вкусов и привязанностей владельца.
Монтаж встроенной калитки
Если распашные створы уже установлены без встроенной калиточной дверцы, то её можно вмонтировать своими руками. Правда, вставить её в кованое сооружение не получится без нарушения его целостности и красоты. Проще всего её можно врезать в обшивку из дерева или профнастила. При этом не понадобиться установка дополнительных несущих опор. А общий внешний вид конструкции не пострадает.
Для такой операции понадобятся дополнительные руки, чтобы снять одну из половинок ворот и уложить на ровную поверхность. 
После чего приступают к монтажу коробки, внутрь которой должен свободно входить заранее приготовленный и обшитый каркас калиточной дверцы. Ширина её примерно 80 см, а высота определена размером большой створки, в которую она вставляется.
Саморезами или другими крепёжными средствами к верхней и нижней перемычке ворот крепятся стойки. В зависимости от того, с какой стороны к ним будут приварены навесные петли, встроенная дверца будет открываться внутрь или наружу.
Встроенная калитка из профлиста открывающаяся во внутрь
Предпочтительно все узлы крепить лёгкими сварочными прихватками. Болгаркой их легко удалить, если придётся что-то подгонять и переделывать. Последний этап – это возвращение демонтированной площади распашной конструкции её прежнего вида.
Гаражные ворота с калиткой
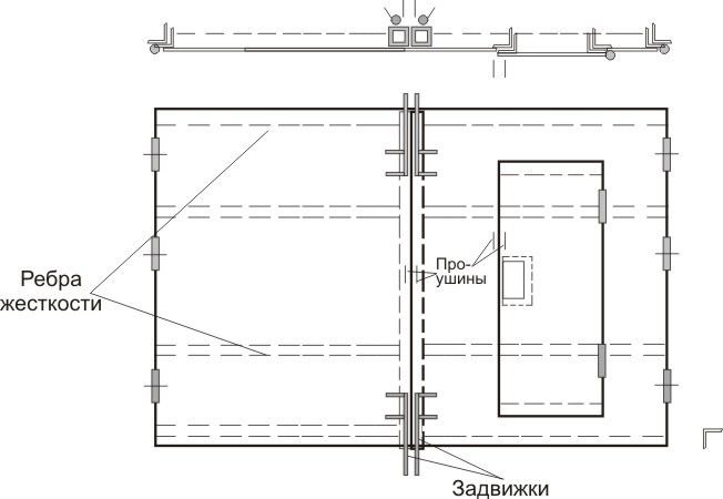
Перед составлением чертежа необходимо определить оптимальные размеры гаражных ворот. Основные параметры выбирают с учетом следующих требований:
- Минимальная ширина проема отталкивается от размеров авто и превышает их на 0,3 м с каждой стороны. Большая величина способствует удобному въезду, меньшая создает риск порчи машины.
- Ширина проема ограничивается габаритами гаража. От ворот до стены, перпендикулярной въезду, должен оставаться промежуток не менее 0,8 м.
- Для легкового авто достаточно высоты гаражных ворот в пределах 2,0-2,2 м. Владельцам микроавтобусов стоит позаботиться о более высоком проеме, порядка 2,5 м.
Приступая к созданию чертежа, учитывайте, что створки гаражных ворот меньше внутренних габаритов рамы. Небольшой зазор способствует удобному открытию конструкции.
Чертеж можно создать самостоятельно с нуля или воспользоваться готовой схемой, изменив отдельные параметры в соответствии с собственными замерами.
Совет! Для работы удобно иметь несколько эскизов, описывающих отдельные элементы гаражных ворот.
Создание чертежа начинают с прорисовки рамы. Она может состоять из двух одинаковых элементов – внешней и внутренней части, которые соединены между собой перемычками. Еще один вариант представлен на фото, когда одиночная рама оснащена специальными крепежами для монтажа.
Затем приступают к прорисовке каркаса для створок. Данные чертежа учитывают все нюансы, от места расположения калитки и балок усиления, до точки монтажа петель, замков и ручек. Пример грамотного чертежа приведен ниже:
Не забудьте о зазорах между каркасом створок и рамой гаражных ворот, эти миллиметры играют очень важную роль в процессе эксплуатации металлической конструкции.
На основе имеющегося чертежа делают расчет потребности в материалах. Наиболее подходящим считается следующий набор:
- рама гаражных ворот формируется из стального уголка толщиной 65 мм;
- каркас для створок обладает меньшей мощностью, для него подойдет металлический уголок сечением 50 мм или профильная труба аналогичных параметров;
- обшивать конструкцию гаражных ворот с калиткой принято листовой сталью, минимальная толщина начинается с 2 мм.
Чем толще берется материал, тем большей прочностью характеризуются гаражные ворота, но и вес их растет пропорционально. Говорить о надежной конструкции можно, когда толщина стали превышает 3 мм. Если гараж не предназначен для стоянки дорогого авто, а служит лишь для хозяйственных целей, в качестве обшивки ворот можно использовать легкий профнастил.
Нюансы крепления и меры защиты
Суммируя вес всех элементов гаражной конструкции с калиткой, следует понимать, что результат получится внушительный. Поэтому следует позаботиться о беспрепятственном открытии ворот. Монтаж конструкции идет на шарниры, облегчить их движение способны подшипники.
Расположение петель также имеет значение. Внешнее крепление не отличается надежностью, гораздо практичней поставить петли изнутри. Если шарниры находятся снаружи, необходимо продумать дополнительные меры защиты, чтобы гаражные ворота не упали при попытке срезать петли.
Важным моментом обустройства калитки для гаража своими руками является подбор замков. По своим конструктивным особенностям и способу установки запорная система бывает:
- встроенной (врезанной);
- навесной;
- накладной;
- раздвижной.
Важно! Внимание заслуживает не только замок, но и способ крепления к гаражным воротам. По правилам безопасности, точки фиксации изнутри не должны быть видны снаружи.
Актуальным вариантом считаются накладной или врезной защитный механизм. Поэтому, если ворота с калиткой оснащены навесным экземпляром, его лучше заменить усовершенствованной моделью.
Модернизация готовых гаражных ворот
Являясь владельцем гаража, где ворота не оснащены калиткой, менять их на новую конструкцию совсем не обязательно. Недочет вполне реально исправить. Основные шаги процесса по обустройству готовых гаражных ворот калиткой:
- Обшивка демонтируется. Для этого болгаркой срезаются сварочные прихватки, при необходимости швы удаляются молотком и зубилом.
- Готовится коробка для калитки из металлического уголка.
- На обшивке вырезается проем согласно чертежу.
- Каркас калитки соединяется с вырезанной обшивкой гаражных ворот.
- Оставшийся элемент стальной обшивки крепится на коробку створки.
- На створку и калитку навариваются петли, после чего калитка устанавливается на гаражные ворота.
- Можно переходить к монтажу запорных механизмов.
Сделанный проем значительно упростит задачу попадания внутрь гаража без необходимости пользования машиной. Это особенно удобно, если помещение используется в качестве мастерской или хранения бытовых предметов.
Распашные будут наилучшим выбором для владельца гаража, который ценит высокую надежность за низкую цену. Именно такая конструкция позволит автолюбителю быть спокойным за оставленного в гараже железного коня и максимально сэкономить при этом. И что еще немаловажно – такие ворота легче всего смонтировать и установить самостоятельно.
Как выглядят распашные ворота
Самая простая конструкция распашных ворот для гаража состоит из:
- рамы по размеру дверного проема;
- двух створок;
- петель;
- фурнитуры – замков, ручек, систем сигнализации и различных ограничителей, удерживающих ворота в нужном положении.
Очень часто в одной из створок располагают . Также для удобства пользования ворота оснащают автоматикой с дистанционным управлением, позволяющей открывать двери, не выходя из машины. Чаще всего распашные гаражные ворота делают металлическими – из профиля сваривают каркас рамы, на него наваривают петли и дверное полотно из стального листа толщиной 3–5 мм. Если безопасность для автовладельца не так важна, стальные листы заменяют на профлист, панели или дерево.
Со временем дверцы на распашных воротах могут начать провисать. Чаще всего такое случается из-за слабых петель. Поэтому перед покупкой комплектующих для гаражных ворот необходимо просчитать массу створок в сборе и выбрать петли с запасом по прочности.
Как сделать распашные ворота своими руками

Убедитесь, что перед гаражом хватает места для автомобиля при полностью открытых створках. Когда на бумаге все будет учтено, приготовьте следующие материалы:
- профильную трубу сечением 60х40 мм для каркаса дверного проема;
- уголок для изготовления каркаса створок;
- стальные листы толщиной до 5 мм;
- петли;
- всю необходимую фурнитуру.
Также вам будут нужны инструменты:
- строительный уровень;
- сварочный аппарат;
- болгарка;
- рулетка.
Если ворота будут оснащены автоматикой, заранее подберите комплект оборудования и продумайте электрическую проводку до места монтажа.
Отдельно позаботьтесь о приобретении средств защиты – маски и костюма сварщика, защитных очков и респиратора, перчаток.
При работе с болгаркой и сварочным аппаратом существует большой риск повредить глаза, поэтому ни в коем случае не пренебрегайте всеми необходимыми средствами защиты.
Делаем металлический каркас дверного проема

Свариваем каркас створок

Для придания всей конструкции необходимой жесткости раму усиливают диагональными элементами. Как правило, диагональные детали идут от мест крепления верхних петель и сходятся вместе внизу по центру ворот.

При желании в одной из дверей устраивают калитку.
По окончании сварочных работ на каркасе следует отшлифовать и закрасить все швы. В таком случае заусенцы на швах не будут мешать свободному ходу дверей, а места сварки не будут ржаветь.
Приваривание петель и навешивание створок ворот

Если створки в сборе очень тяжелые, навешивать их лучше в горизонтальном положении. В таком случае каркас проема после изготовления прикрепляют к стенам гаража в последнюю очередь.
Автоматические распашные ворота

- увеличенный ресурс работы петель;
- стабильную нагрузку на несущий каркас;
- плавную работу при любых погодных условиях.
Чем выше ворота и значительнее вес створок, тем больше необходимости в оснащении ворот автоматикой, тем более, если воротами регулярно пользуются женщины.
Автоматические ворота удобны тем, что запирать их вручную нет необходимости. Автоматика блокирует любые попытки открывания дверей руками до поступления сигнала на датчик управления. Минусом в этой системе является зависимость работы от наличия электрического тока. Без света механика просто не будет срабатывать. Для решения проблемы устанавливают систему разблокировки. Чаще всего она идет как дополнительная опция к комплекту привода. Альтернативой может послужить подключение автоматики к источнику резервного питания – аккумулятору или генератору.
В настоящее время распространены два вида приводов для автоматических распашных ворот – рычажный и линейный. Последний предпочтительнее, так как рассчитан на большой вес створок и сильные порывы ветра.
Покраска и утепление ворот

Для большинства автолюбителей наличие утепления в гараже является необходимостью, чтобы все работы по обслуживанию автомобиля проводились в нормальных температурных условиях. К тому же в гараже часто устраивают мастерскую. В качестве утеплителя для распашных гаражных ворот обычно используют пенопласт, минеральную вату, войлок, пробковые плиты, пеноизол, экструдированный полистирол.
После установки фурнитуры, утепления и покраски распашные гаражные ворота можно считать полностью готовыми.
Самостоятельное изготовление гаражных распашных ворот — видео
Гаражные ворота с калиткой служат для того чтобы пройти в помещение, не распахивая полностью створки. Например, когда необходимо что-то взять из гаража или поработать в нем, не запуская мороз, зимой.
Типы ворот
Большинство автолюбителей, чтобы укрыть от непогоды своего четырехколесного «друга», строят сами, нанимают строителей или покупают уже готовый гараж под ключ. Во всех подобных строениях установлены ворота для гаража, но не всегда в них предусматривается дверь.
Поэтому некоторые автолюбители сами мастерят проемы в уже готовых воротах и встраивают в них дверцы. Такое вмешательство нарушает установленную конструкцию (ее целостность), но все зависит от вида применяемых ворот.
Их существует 5 типов:
- распашные;
- откатные;
- секционные;
- роллетные;
- подъемно-поворотные.
В двух первых и в последнем установить калитку для гаража не представляет особого труда.
Они состоят из 1 или 2 полотен, в которых необходимо выполнить дополнительный проем.
Затем в гаражных воротах добавляют вертикальные и горизонтальные элементы для усиления и навешивают дверцу. В изделиях остальных типов это сделать довольно сложно, поэтому их рассматривать мы не будем.
Известно, что любые ворота для гаража выполняют по стандартным чертежам из металла, хотя сейчас изредка применяют металлопластик. Главным требованием к такой конструкции является ее полная и надежная защита от посягательств посторонних.
Способы установки калитки
Все обычные конструкции выполняют из:
- швеллера;
- каркаса из обычного уголка;
- толстых прутьев, где для обшивки применяют 3-миллиметровую сталь;
- труб.
Немногие водители задумываются о массе будущего «шедевра», а проблемы с этим почти всегда возникают уже непосредственно при монтаже. Например, коробка, выполненная из швеллера, имеет большой вес. Выполнить дверь в таких условиях (огромная масса) одному очень трудно.
В этом случае необходимо переделать одну из сторон полностью, вырезав в ней кусок обшивки и усилив ее дополнительными элементами, чтобы установить дверцу для гаража. Желательно иметь помощника, чтобы можно было работать с такой тяжестью.
Есть всего 3 типа размещения двери:
- На краю створки — популярный и традиционный вариант. Запирание происходит в месте схождения ворот.
- Посередине створки. При этом жесткость всей конструкции почти не уменьшается, да и отдельный запор сделать легче.
- В зоне петель — очень редкий способ. При этом можно поставить соосные петли.
Дверцы для гаража различают не только по размещению, но и по:
- открыванию — наружу или внутрь;
- способу укрепления дверной рамы — с разрезанием элемента ворот или без него.
Некоторые любители, не желая иметь порог, разрезают нижнюю трубу или уголок, собирают неполную коробку (без нижнего элемента) и вваривают ее в разрез. Это намного уменьшает прочность всей конструкции.
Для ее увеличения необходимо добавить ребра жесткости — установить 2 вертикали или 1 горизонталь и приварить к ним раму с проемом.
Лучше ничего не резать, а собрать полную (или неполную) коробку и приварить на нижний уголок. Прочность почти не пострадает и будет соблюдена полностью
Для нормальной работы нужны следующие инструменты:
- аппарат сварочный с маской и электродами;
- большая болгарка и круги для нее
- уголок металлический, квадратная или простая труба, прутья (зависит полностью от использованного при изготовлении створок материала);
- угольник;
- рулетка;
- молоток и зубило;
- мел или чертилка для разметки;
- петли навесные.
Работа с распашной конструкцией
Вы достали материалы и инструмент, начертили план и готовы приступить к осуществлению плана, но не представляете, как сделать это. Помните, что легче всего выполнить дополнительный проем на стадии постройки ворот, а если вы купили гараж под ключ, то дело обстоит сложнее.
Дверь на стадии постройки.
Для выполнения этого варианта необходимо в месте установки калитки приварить дополнительные усиливающие элементы — балки вертикальные и горизонтальные. Для разработки плана таких ворот надо в их чертеж ввести недостающие элементы, коробку дверцы и саму калитку.
Необходимо, сверяясь с планом, при сборке каркаса приварить вертикали или горизонтали, укрепить на них раму дверцы и наварить петли. Затем нужно выполнить обшивку ворот и установить их. Далее необходимо собрать дверь, приварить к ней ответные части петель, запоры и повесить на место.
Как поступить, если приобрели гараж под ключ
Можно пойти 2 путями:
- По инструкции — нужно снять сторону, где будет сделан проем, и всю обшивку с нее.
- Легким путем — вырезать часть покрытия по собственноручно сделанному чертежу.
Рассмотрим оба варианта.
При работе по инструкции за основу берется документ по изготовлению проема в воротах, распространенный в малых и больших мастерских и на заводах. Он предписывает перед вырезкой части створки снять с нее всю обшивку. Почти всегда:
- лист металла приваривается к уголку, трубе или другому материалу, применяемому в качестве каркаса;
- обшивка прихватывается не по периметру, а в некоторых местах
Для ее снятия надо молотом и обычным зубилом удалить швы или подрезать УШМ места прихваток. После этой работы по демонтажу обшивки следует отложить ее куда-нибудь, а затем выполнить коробку и сварить саму дверь.
Соблюдая размеры, указанные в имеющимся чертеже, разметьте нижнюю часть створки или вырежьте кусок (если нужно).
- Укладывают створку на землю или спецстол.
- Собирают полную или неполную коробку из труб или угольников. Для плотного прилегания новой дверцы уголок обязательно выполняется с выпуском.
- По размеру проема изготавливают саму дверь из тех же материалов (уголка, труб) так, чтобы при вставке ее в коробку со всех сторон оставался промежуток в 3–5 мм.
По окончании вышеописанных каркасных работ можно переходить к установке обшивки. Для этого необходимо выполнить разметку будущего проема, выдерживая точные размеры (по чертежу). Затем надо отрезать уже ненужные детали от листа обшивки, если он полностью сплошной. Вырезанный кусок оставляется на заготовку для покрытия двери.
Если створка набрана из нескольких элементов, придется их комбинировать.
Установку петель производят так:
- тщательно измерив, калитку вставляют на место, подкладывая снизу, сверху и по бокам вкладыши;
- после этого петли приваривают к ней и к створке;
- поднимают и навешивают половину готовых ворот;
- монтируют запорный механизм.
Есть и более легкий способ изготовления калитки, при котором обшивка не снимается. В ней сразу вырезается проем на 6–10 мм больше габаритов двери. Далее (для прочности) устанавливают дополнительные вертикали или горизонтали, выполняют коробку и саму дверь. В конце приваривают петли и монтируют дверь.
Времени при этом способе затрачивается меньше, однако, уходит больше электродов. Если при вырезании проема будет случайно допущена ошибка, это будет трудно исправить.
Проем в воротах других типов
Калитка нужна и в откатных, и в подъемно-поворотных конструкциях. Правда, можно немного отодвинуть их (или поднять) и войти, но частое использование механизма приведет к износу роликов, шестерней, цепей или других элементов системы и соответственно к быстрой порче.
Отличие откатных систем от распашных состоит в том, что у некоторых таких конструкций снизу стоит цельный швеллер или профиль, а роликовые каретки крепятся непосредственно на него. Нарушать целостность этой конструкции никак нельзя.
Для создания проема есть 2 варианта:
- Сделать его над швеллером, который будет служить основанием дверной коробки.
- Удлинить готовые ворота дополнительными вертикальными и горизонтальными элементами и выполнить дверь там.
Второй вариант ведет к увеличению габаритов, что может оказаться неприемлемо для окружающих. Он обойдется намного дороже первого, ведь придется закупить обшивку для дополнительной части. Тем более что эта часть окажется «в воздухе», ведь под ней не будет роликов.
Поэтому рассмотрим первый вариант. Его изготовление ничем не отличается от проекта для распашных ворот.
Надо вырезать дыру в их покрытии, усилить конструкцию, сделать коробку, дверцу и обшить ее, а затем приварить петли и установить дверь.
В подъемно-поворотных конструкциях все зависит от расположения механизма — посередине или по бокам. Выбирается место для проема и выполняется все в точности как описано выше для распашного варианта.
Отличие состоит лишь в установке более надежных запоров, чтобы при поднятии ворот калитка случайно не открылась и не покалечила кого-нибудь, ведь она будет висеть у вас над головой.
Недостатки и преимущества
Все дополнительные усиливающие элементы (балки, вертикали и горизонтали) нужно вставлять с внутренней части ворот. Запор калитки не должен уступать по надежности замку основной части. Если это будет не так, злоумышленники смогут легко проникнуть в гараж и оставить вас без аккумулятора, покрышек или самой машины.
Основные преимущества заключаются в следующем:
- нет нужды поднимать, открывать или откатывать створки при входе;
- калитку открыть намного быстрее, а ее ширины хватит, чтобы вынести какую-нибудь вещь;
- если запор на дверце надежный, можно какими-либо дополнительными механизмами (распорки, «полицейский замок») полностью блокировать створки изнутри;
Зимой ключ в различных навесных замках бывает невозможно провернуть — замерзает смазка. Для открывания надо прогреть механизм. Установив запор внутри, вы избавитесь от проблемы и откроете дверь даже в лютый мороз.
Недостатки следующие:
- наличие новых механизмов (петли, запоры), которым необходим дополнительный уход;
- меньшая надежность по сравнению с цельным полотном;
- дополнительные затраты на изготовление.
Встраивание калитки придает воротам законченный вид и намного расширяет их функции.
В этой статье мы расскажем, как сделать калитку в гаражных воротах секционного типа. Вы узнаете о нюансах установки и при необходимости сможете выполнить монтаж самостоятельно. Процесс модификации рассмотрим на примере ворот от DoorHan.
ВАЖНО!
Гораздо проще и дешевле купить автоматические секционные ворота в комплекте с калиткой под ключ сразу. Учтите этот факт, если на момент прочтения статьи только планируете заказать установку удобной и функциональной конструкции.
Как врезать калитку в секционные ворота
Чтобы врезать калитку в секционные ворота, вам понадобятся:
- перчатки;
- очки;
- рейка (длина — 1,8–2 м);
- угольник;
- клепальный инструмент;
- резиновые жгуты (нужны для сжатия сэндвич-панелей);
- лекало для резки заготовок под углом в 45°;
- ножовка по металлу;
- напильник;
- киянка (резиновый молоток);
- сверла;
- дрель;
- электролобзик;
- карандаш;
- линейка;
- рулетка.
Все инструменты вы сможете купить по доступным ценам на любом строительном рынке Москвы или в специализированном магазине.
Также необходимы детали дополнительной входной конструкции. В комплектацию входят:
- ловитель, предотвращающий деформацию створки;
- козырек для защиты от дождя;
- обрамление для краев, сделанное из алюминиевого профиля;
- металлические ручки;
- помещенный в специальных усиленный корпус замок;
- промежуточные петли из нержавеющей стали;
- механизм доводки;
- заклепки;
- петли для фиксации калитки в проеме;
- П- и Ц-образные профили из алюминиевого сплава.
Изображение № 1: профили для калитки секционных ворот
Как правильно сделать калитку в секционных воротах
Сделать калитку в секционных воротах правильно вам поможет размещенная ниже инструкция. Внимательно прочитайте и соблюдайте все ее требования в процессе монтажных работ.
Этап 1. Подготовка
Подготовка к монтажу калитки заключается в нарезке профилей. Действуйте по следующей схеме.
Этап 2. Вырезание проема
Общая схема монтажа калитки выглядит так.
Изображение № 5: схема монтажа калитки, особенности размещения
Действуйте следующим образом.
Этап 3. Сборка и установка калитки
Подробная инструкция по встраиванию калитки в секционные ворота.
- Установите стальной Ц-профиль в камеру нижнего несущего профиля по всей длине. Закрепите Ц-профиль заклепками. Шаг — не более 500 мм.
Изображение № 8: установка стального Ц-профиля в камеру нижнего несущего профиля
- Зафиксируйте нижний несущий алюминиевый профиль к сэндвич-панели. Для этого просверлите отверстия (диаметр — 4,2 мм) с шагом не более 500 мм и заклепайте конструкцию.
- Поместите стальной Ц-профиль в верхний усилитель. С его обратной стороны установите ригель. Схема сборки верхнего и нижнего профилей выглядит так.
Изображение № 9: сборка и установка верхнего и нижнего профилей
Если боковые опоры одинарные, то m и n равны 75 мм, а если двойные — 150 мм.
- Разместите собранную конструкцию на фрагментах верхней панели калитки. Для фиксации просверлите отверстия (диаметр — 13,2 мм) и прикрутите саморезы. Не забудьте одеть пластиковые заглушки.
Изображение № 10: крепление верхнего профиля калитки
- На боковые стороны верхнего усилителя установите крышки. Для фиксации используйте саморезы или заклепки.
Изображение № 11: установка заглушек на верхний усилитель
- Переверните верхнюю панель. Симметрично относительно центра калитки вставьте в паз ригеля усилитель карниза. Прикрутите деталь саморезами.
Изображение № 12: монтаж усилителя карниза
- Установите малый карниз в пазы. На боковые стороны оденьте крышки и зафиксируйте их при помощи саморезов или заклепок.
Изображение № 13: монтаж малого карниза
Прикрепите карниз к краям сэндвич-панелей заклепками.
Изображение № 14: фиксация карниза
- Нарежьте боковые Ц-профили, ориентируясь по серединам стыков между панелями. Установите детали. Не забывайте оставлять зазоры.
Изображение № 16: монтаж боковых Ц-профилей
Выровняйте левую и правую стороны по рейке. После этого зафиксируйте профили с внешней стороны полотна заклепками.
- Укоротите нижнюю сэндвич-панель калитки на 5 см. Прикрепите к сегменту Ц- и П-профили. Установите панель в проем калитки. Не забудьте оставить 10-миллиметровый зазор.
Изображение № 19: установка нижней сэндвич-панели калитки
- Прикрепите Ц- и П-профили к средним панелям. Поместите их в проем калитки.
Изображение № 20: монтаж средних секций
- Отрежьте от верхней сэндвич-панели полосу шириной 130 мм. Подготовьте П- и Ц-профили. Разместите на расстоянии 52 мм от края панели закладной элемент для монтажа доводчика. Просверлите 4 отверстия для его крепления. Вставьте закладной элемент в панель и зафиксируйте профили. Установите секцию в проем.
Изображение № 21: монтаж верхней сэндвич-панели калитки
- Выровняйте профили по линейке и зафиксируйте их заклепками. Снимите все сегменты калитки, кроме нижнего. Прикрепите его к петле при помощи заклепок. Поочередно установите и зафиксируйте остальные секции.
Изображение № 22: крепление панелей калитки к петлям
- Разметьте и просверлите отверстия под промежуточные петли. Установите соединительные элементы.
Изображение № 23: монтаж соединительных петель
Поставьте ворота на стапель для монтажа калитки. Выровняйте полотно по торцевым крышкам. Добейтесь плотного прилегания панелей друг к другу при помощи прижима.
Вырежьте алюминиевый профиль порога. Для расчета длины отнимите от ширины проема ширину боковых профилей. Вставьте порог в паз несущего профиля.
Изображение № 15: монтаж профиля порога
Нарежьте длинную заготовку на петли и просверлите в них отверстия (диаметр — 4,2 мм). Зафиксируйте нижний крепежный элемент с учетом бокового зазора (2 мм).
ОБРАТИТЕ ВНИМАНИЕ!
Для панелей калиток нужны петли с четырьмя зубьями, а для секций ворот — с пятью.
Изображение № 17: петли для калитки секционных ворот
Нижние и верхние крепежные элементы устанавливают с 10-миллиметровыми зазорами. Остальные фиксируют вплотную.
Изображение № 18: особенности установки петель
Калитка готова. После проверки работоспособности конструкции приступайте к установке доводчика, замка и другой фурнитуры.
Самому сделать калитку в воротах гаража или довериться профи
Как видите, сделать калитку в воротах гаража секционного типа — очень сложная задача, с которой справится далеко не каждый умелец. Если не уверены в своих силах, обратитесь к профессионалам. Так вы получите качественно установленную калитку и гарантию на выполненную работу.
Если вы решили сделать двери в гараж своими руками, вам обязательно пригодятся подробные инструкции и советы. Вполне можно справиться с работой самостоятельно, если изучить опыт бывалых автолюбителей. Сегодня мы рассмотрим данный вопрос более подробно: узнаем, какие бывают типы гаражных ворот, как своими руками сделать раму и створки, каким образом установить двери в гаражное помещение.
В первую очередь рассмотрим типы гаражных дверей. Выясним, чем разные виды отличаются, какие у них преимущества и недостатки, принцип действия и особенности конструкции.
Когда автолюбители решают изготовить двери в гараж своими руками, они чаще всего выбирают подъемные и распашные конструкции. Они подходят для самостоятельного изготовления и монтажа, при этом обеспечивают высокий уровень безопасности, их можно хорошо утеплить без привлечения специалистов.
Требования к гаражным дверям
Важно знать спектр требований, которые предъявляются к гаражным воротам. Обращайте внимание на все нюансы, чтобы ваши двери были качественными, надежными и долговечными.
- Когда вы будете рассчитывать ширину ворот, делайте их с запасом, ведь у вас может появиться новый автомобиль.
- С обеих сторон от автомобиля следует предусмотреть расстояние до стоек ворот минимум в 30 см.
- Продумайте все таким образом, чтобы машина могла без проблем въезжать в гараж и выезжать из него.
- Обязательно позаботьтесь о защите ворот от негативного воздействия окружающей среды. Очень важно сделать максимально надежным крепление гаражных дверей.
- Используйте накладные замки для внешних навесов, монтируйте бронированные накладки для внутренних замков.
- Стандартный проем гаража составляет 2,4 на 2,1 метра.
- Важно гарантировать прочность дверей в гараж на случай несанкционированного доступа, взлома. Полотна дверей желательно изготавливать из оцинкованной стали с толщиной минимум в 2 мм.
- Обычная высота дверей в гараж для легкового автомобиля составляет 2 метра.
Самое главное, чтобы был обеспечен комфортный въезд, двери в гараж гарантировали безопасность автомобиля.
Делаем двери в гараж своими руками
Сразу запаситесь всеми необходимыми материалами и инструментами. Конструктивно распашные ворота состоят из шарниров и стоек, обшивки и металлической рамы. Вам нужен широкий перечень материалов с инструментами.
- Шарниры, металлический уголок, профильная труба, из которой надо сделать раму и каркас, ребра жесткости.
- Электроды, аппарат для сварки.
- Болгарка, шлифовальные круги.
- Слесарные угольники, уровень и рулетка.
- Электродрель, шуруповерт с комплектующими.
- Утеплитель, фанера.
- Грунтовка, монтажная пена.
- Краска для наружных работ, кисти с валиками.
Размер дверей в гараж определяется индивидуально, с учетом параметров автомобиля.
Изготовление рамы дверей гаража
Для начала выберите ровную площадку для работы. Потом действуйте по алгоритму.
- Нужно выровнять место.
- Затем отмерьте четыре отрезка профильной трубы с сечением 40 на 60.
- Элементы соедините по углам.
- Потом раму нужно сварить в углах.
- Измерьте диагонали каркаса. Они обязательно должны быть одинаковыми.
- Сварные швы аккуратно зачистите.
- Теперь монтируйте опорные площадки. На них вы будете закреплять раму. Вам понадобятся пластины из металла. Когда раму монтируют к стене анкерами, в ней должны быть заранее сделаны отверстия для них.
Можно сделать раму из металлического уголка. Уголок при этом должен быть направлен внутрь проема.
Делаем створки гаражных ворот
Каркас дверей лучше делать из профильных труб 20 на 40. Чтобы створки с легкостью закрывались и открывались, между ними лучше оставить расстояние примерно 4-5 мм. Потом можно работать по инструкции.
- Сварите раму каркаса дверей. Тщательно контролируйте все параметры.
- Сделайте примерку к раме. Вам нужно соблюдать размеры.
- Установите элементы жесткости.
- Желательно приварить петли, а потом выполнять обшивку ворот. Многие гаражники предпочитают дополнять полотна ворот деревом или профильным листом.
- Если используется только листовой металл, его логичнее сразу приварить к каркасу створок.
- Сварные швы надо зачистить.
- На следующем этапе надо установить шарниры.
Осталось только навесить готовые двери на уже пристреленную анкерами раму.
Следует также прогрунтовать ворота, покрасить их и установить запорный механизм.
Утепляем двери в гараж
Желательно также позаботиться и об утеплении дверей в гараж. Ведь они могут оградить не только от злоумышленников, но и от холода. Главное, все правильно сделать. Безусловно, металлические ворота особенно нуждаются в утеплении. Действуйте по алгоритму. Использовать проще и эффективнее всего пенопласт.
- Сначала выполните разметку.
- Ножом нарежьте материал.
- Сделайте деревянную обрешетку. Можно прикрепить ее к металлу с помощью жидких гвоздей.
- Заполните пространство между деревянными рейками пенопластом.
- Затем используйте монтажную пену, чтобы вся поверхность получилась цельной.
- Чтобы на ребрах жесткости не осталось мостиков холода, их закрывают фольгированным утеплителем, сажая его на жидкие гвозди.
- Дождитесь высыхания клея и монтажной пены.
- Вырежьте фанеру по размерам гаражных дверей. Обработайте ее для защиты от гниения.
- Закрепите фанеру поверх утеплительного слоя.
Теперь осталось только добавить воротам эстетики.
Вы можете узнать еще больше полезной информации, если посмотрите ролики на видео. В таком формате вам будет проще запомнить советы: все показано на конкретных примерах. Бывалые гаражники делятся своим опытом установки. Есть два интересных видео, в которых можно увидеть, как люди самостоятельно делают и устанавливают своими руками подъемные гаражные ворота.
Особого внимания заслуживает также сборка рамы гаражных ворот. Вот каким образом это можно сделать, вы увидите в следующем ролике:
Эксплуатация гаража не ограничивается стоянкой машины. Частые визиты могут быть связаны с наличием подвала или мастерской. Каждый раз открывать полностью тяжелую конструкцию весьма неудобно. Гораздо практичней установить гаражные ворота с калиткой. Об особенностях проектирования и возможности переделать уже имеющиеся ворота пойдет речь далее.
Особенности ворот с калиткой
По достоинству оценить преимущества ворот с калиткой можно в любое время, когда нет необходимости пользоваться машиной. Особенно актуальна конструкция в зимний период. Тому есть две причины:
- Не придется расчищать заносы из снега перед металлическими воротами.
- Открывать при минусовых температурах навесной гаражный замок бывает сложно. На калитке обычно стоит встраиваемый замок, и справиться с ним гораздо легче.
Калитка в створке гаражных ворот заметно снижает жесткость конструкции, поэтому установка дополнительного усиления обязательна. Для этого чертеж гаражных ворот нуждается в усовершенствовании, в нем необходимо предусмотреть наличие вертикальных и горизонтальных балок. Оптимально, когда элементы усиления совпадают размерами с воротами.
Очередной важный момент при создании или модернизации схемы металлических ворот — наличие балок с обеих сторон калитки, как со стороны замка, так и со стороны петель. Не стоит снижать бдительность и на этапе оборудования калитки замком. По своей надежности он не должен уступать уровню замков для гаражных ворот.
Замечание!
Оборудование калитки неразрывно связано с установкой дополнительных элементов конструкции. Соответственно, это влечет увеличение общего веса. Поэтому, чтобы облегчить процесс открытия и закрытия, стоит заранее продумать, какие петли подойдут оптимально.
Интересный пример гаража с калиткой фото далее:
Разнообразие конструкций
Моделей ворот с калиткой несколько. Изучив возможные способы обустройства, определиться с подходящей гаражной конструкцией будет легче. Существует три варианта расположения калитки в створке:
- Традиционно дополнительный вход оборудуют по принципу, когда запирание калитки проходит в зоне стыка гаражных створок.
- Практичностью обладает модель, в которой калитку вырезают посередине створки. Среди преимуществ — меньше всего страдает жесткость конструкции гаражных ворот, а закрывать ее становится наоборот легче.
- Лишь изредка можно встретить металлические гаражные ворота, на которых калитка расположена в районе петель. Когда требуется открыть створку, дополнительная дверь в гараж должна находиться в закрытом состоянии.
Помимо места на створке, различается и направление открытия. Классический вариант предполагает открытие наружу. Но если гараж свободный, можно сконструировать калитку с открытием внутрь.
Еще одно поле для творческого подхода — установка замков. Иногда по гаражным воротам сложно понять, каким образом они закрываются. Секрет прост — металлическая конструкция оснащена автоматическими замками с дистанционным управлением.
Внимание!
Подобная система защиты предусматривает контроль над состоянием заряда, иначе гаражные ворота просто не смогут открыться.
Как видите, приступая к созданию чертежа, есть над чем поразмыслить:
- расположение калитки;
- направление открытия;
- наличие балок, усиливающих жесткость;
- какие врезать замки;
- система маскировки;
- запасные варианты вскрытия;
- надежность петель, способных выдержать значительный вес гаражных ворот.
Замеры и создание чертежа
Перед составлением чертежа необходимо определить оптимальные размеры гаражных ворот. Основные параметры выбирают с учетом следующих требований:
- Минимальная ширина проема отталкивается от размеров авто и превышает их на 0,3 м с каждой стороны. Большая величина способствует удобному въезду, меньшая создает риск порчи машины.
- Ширина проема ограничивается габаритами гаража. От ворот до стены, перпендикулярной въезду, должен оставаться промежуток не менее 0,8 м.
- Для легкового авто достаточно высоты гаражных ворот в пределах 2,0-2,2 м. Владельцам микроавтобусов стоит позаботиться о более высоком проеме, порядка 2,5 м.
Приступая к созданию чертежа, учитывайте, что створки гаражных ворот меньше внутренних габаритов рамы. Небольшой зазор способствует удобному открытию конструкции.
Чертеж можно создать самостоятельно с нуля или воспользоваться готовой схемой, изменив отдельные параметры в соответствии с собственными замерами.
Совет!
Для работы удобно иметь несколько эскизов, описывающих отдельные элементы гаражных ворот.
Создание чертежа начинают с прорисовки рамы. Она может состоять из двух одинаковых элементов — внешней и внутренней части, которые соединены между собой перемычками. Еще один вариант представлен на фото, когда одиночная рама оснащена специальными крепежами для монтажа.
Затем приступают к прорисовке каркаса для створок. Данные чертежа учитывают все нюансы, от места расположения калитки и балок усиления, до точки монтажа петель, замков и ручек. Пример грамотного чертежа приведен ниже:
Не забудьте о зазорах между каркасом створок и рамой гаражных ворот, эти миллиметры играют очень важную роль в процессе эксплуатации металлической конструкции.
На основе имеющегося чертежа делают расчет потребности в материалах. Наиболее подходящим считается следующий набор:
- рама гаражных ворот формируется из стального уголка толщиной 65 мм;
- каркас для створок обладает меньшей мощностью, для него подойдет металлический уголок сечением 50 мм или профильная труба аналогичных параметров;
- обшивать конструкцию гаражных ворот с калиткой принято листовой сталью, минимальная толщина начинается с 2 мм.
Чем толще берется материал, тем большей прочностью характеризуются гаражные ворота, но и вес их растет пропорционально. Говорить о надежной конструкции можно, когда толщина стали превышает 3 мм. Если гараж не предназначен для стоянки дорогого авто, а служит лишь для хозяйственных целей, в качестве обшивки ворот можно использовать легкий профнастил.
Нюансы крепления и меры защиты
Суммируя вес всех элементов гаражной конструкции с калиткой, следует понимать, что результат получится внушительный. Поэтому следует позаботиться о беспрепятственном открытии ворот. Монтаж конструкции идет на шарниры, облегчить их движение способны подшипники.
Расположение петель также имеет значение. Внешнее крепление не отличается надежностью, гораздо практичней поставить петли изнутри. Если шарниры находятся снаружи, необходимо продумать дополнительные меры защиты, чтобы гаражные ворота не упали при попытке срезать петли.
Важным моментом обустройства калитки для гаража своими руками является подбор замков. По своим конструктивным особенностям и способу установки запорная система бывает:
- встроенной (врезанной);
- навесной;
- накладной;
- раздвижной.
Важно!
Внимание заслуживает не только замок, но и способ крепления к гаражным воротам. По правилам безопасности, точки фиксации изнутри не должны быть видны снаружи.
Актуальным вариантом считаются накладной или врезной защитный механизм. Поэтому, если ворота с калиткой оснащены навесным экземпляром, его лучше заменить усовершенствованной моделью.
Модернизация готовых гаражных ворот
Являясь владельцем гаража, где ворота не оснащены калиткой, менять их на новую конструкцию совсем не обязательно. Недочет вполне реально исправить. Основные шаги процесса по обустройству готовых гаражных ворот калиткой:
- Обшивка демонтируется. Для этого болгаркой срезаются сварочные прихватки, при необходимости швы удаляются молотком и зубилом.
- Готовится коробка для калитки из металлического уголка.
- На обшивке вырезается проем согласно чертежу.
- Каркас калитки соединяется с вырезанной обшивкой гаражных ворот.
- Оставшийся элемент стальной обшивки крепится на коробку створки.
- На створку и калитку навариваются петли, после чего калитка устанавливается на гаражные ворота.
- Можно переходить к монтажу запорных механизмов.
Сделанный проем значительно упростит задачу попадания внутрь гаража без необходимости пользования машиной. Это особенно удобно, если помещение используется в качестве мастерской или хранения бытовых предметов.
Наличие калитки предполагает монтаж дополнительных балок усиления. Также следует тщательно подобрать замки, иначе прочность стали не спасет от угона. Запорная система должна быть одинаково надежна на гаражных воротах и непосредственно калитке. Узнать детали, как сделать калитку в гаражных воротах видео:
При строительстве ограждения вокруг своего дачного участка, вы наверняка построили ворота для въезда автомобиля. Таким образом, вы хотели убить двух зайцев: сделать въезд для машины ну и конечно вход на свою территорию.
Но как показала практика, не совсем удобно открывать большую половинку ворот для того чтоб войти или выйти. Вот сейчас и настало время для принятия конструктивного решения. Нужно модифицировать готовую конструкцию.
Сегодня мы вам расскажем, как сделать калитку в гаражных воротах, которые уже установлены и функционируют.
Подготовительный этап
Что ж первым делом нужно иметь в виду, из какого материала у вас сделаны ворота, ведь мы будем модифицировать готовую конструкцию, вследствие чего нам понадобится демонтировать обшивку конструкции и делать в ней вырез.
Давайте предположим, что ворота вашего гаража обшиты профнастилом.
Сразу приготовьте инструмент, который вам понадобится в процессе работы:
- Болгарка
.Нам придется делать резы по металлу, а это, как известно самый универсальный инструмент. - Сварочный аппарат
.Сварка будет нужна для . - Шуруповерт или реверсивная дрель
. Элементы крепежа, в данном случае саморезы по металлу лучше всего закручивать механическим способом. - Рулетка, строительный уровень, карандаш или мел
.Весь этот набор поможет вам провести размеры и дать отметки.
Совет: В плане удобства и облегчения поставленной задачи, мы бы порекомендовали использовать для изготовления калитки металлическую профильную трубу.
Цена этого материала не высока, а так же она имеет небольшой вес, что не маловажно в устройстве всей конструкции в целом.
Начнем с демонтажа обшивки
Вы уже, скорее всего, точно знаете, в какой из двух половин ворот, будет проем. Если это так тогда нужно демонтировать существующую обшивку чтоб не испортить ее. Это делается просто, достаточно выкрутить саморезы и снять лист металла.
Теперь, когда перед вами каркас половины ворот нужно разметить нашу будущую навесную дверь. Обязательно делайте замер от нижней каркасной планки воротной конструкции. Что касается ширины прохода, то советуем остановиться на существующих стандартах, девяносто, восемьдесят миллиметров, тут уж, что вас устроит.
Не забывайте что ваша калитка в гаражных воротах своими руками, должна иметь один из рекомендуемых размеров. Проем же в половине снятой секции нужно отмерить чуть больше с учетом ширины используемого материала.
Теперь, когда вы все точно отмерили можно вырезать проем для калитки в половинке ворот.
Важно!
Перед тем как начать вырезать проем, рекомендуется снять с петель половину воротной конструкции, с которой будут проводиться работы.
В лежачем состоянии намного легче проводить как разметку, так и последующую сборку, сварку.
Монтаж каркаса калитки и секции ворот
Вырезав проем в секции его теперь нужно раскрепить и предать ему жесткость. Для этого нарезанные по нужным размерам куски профильной трубы привариваем сваркой к каркасу ворот. При этом точно соблюдаем размеры будущего проема.
Когда проем готов, переходим к изготовлению самой конструкции дверей. Режем трубу точно по размеру и с помощью сварки крепим между собой по периметру. Не забываем про ребра жесткости и направляющие для крепления обшивки.
Обязательно при сборке пользуйтесь строительным уголком девяносто градусов. Точная выдержка углов важный момент в монтаже. Так вы избежите перекоса каркаса, и получите точные прямоугольные формы.
Познавательное видео — в этой статье, поможет вам разобраться со всеми тонкостями сборки металлоконструкции. Обязательно посмотрите его, и быть может некоторые вопросы, отпадут сами собой.
Устанавливаем каркас и привариваем петли
Обе конструкции уже в сборе и сейчас настало время приварить петли на каркас и соответственно на половинку ворот. Использовать мы будем специальные воротные петли, которые можно купить сегодня практически в любом строительном магазине.
Вот наша инструкция как это просто сделать:
- Прежде всего, вы должны решить для себя, куда будет открываться калитка, внутрь вашего участка или наружу. От этого будет зависеть процесс монтажа петель.
- Монтируем петли, предположительно дверь будет открываться внутрь. Располагаем секцию ворот тыльной стороной к себе, лицевая сторона, где крепятся листы обшивки, лежит на земле.
- В готовый проем устанавливаем каркас калитки. Выставляем ровно по плоскости всю конструкцию. Чтоб оба каркаса находились в одной плоскости, так мы избежим перекоса всей конструкции в целом.
- Устанавливаем петли на их законное место, обычно это двадцать миллиметров от верха и низа каркаса калитки.
- Половина петли, штуцер, монтируется на сам забор. Вторая половина внутренняя, монтируется на каркас двери.
- Прихватываем сваркой в нескольких местах и проверяем, как отрывается дверь. Если все в порядке и нет перекосов и несовпадения по плоскости, привариваем петли капитально.
Теоретически ваши гаражные секционные ворота с калиткой уже готовы, осталось обшить их профлистом, и дело сделано.
Обшиваем каркас ворот и калитки профлистом
Стоит сразу сказать о главном, так как у нас имеется целый профильный лист, в нем нужно отметить место выреза дверного проема. Но вот использовать этот вырезанный элемент для обшивки дверного проема решать вам.
На сегодняшний день разработано и успешно реализовано на практике множество разнообразных конструкций гаражных ворот. Вашему вниманию предлагается описание самых популярных разновидностей воротных систем, а также руководство по самостоятельной сборке и монтажу распашных ворот – наиболее простой в изготовлении конструкции, с обустройством которой сможет справиться практически каждый начинающий мастер. Набравшись опыта, вы сможете собирать и более сложные системы.
В таких воротах створка отъезжает в сторону при помощи системы из направляющих и роликов. Ворота могут устанавливаться снаружи и внутри гаража.
Достоинства и недостатки
Среди главных достоинств откатных ворот нужно отметить такие моменты, как:
Главным недостатком является тот факт, что установить подобные ворота можно только на гараже с широким фасадом. Его ширина должна быть, по крайней мере, такой, чтобы на нем могла полностью поместиться отъезжающая створка.
Такие ворота можно изготовить и смонтировать самостоятельно. Сами створки изготавливаются практически по такому же принципу, как створки обыкновенных распашных ворот. Различия присутствуют лишь на этапе монтажа – вместо петель применяются направляющие и ролики.
Очень удобный вариант. Чаще всего встречаются системы, в которых створка поднимается вверх и закрепляется над проемом. Для изготовления ворот обычно применяется оцинкованная сталь. Нередко встречаются и конструкции из алюминия – такие створки весят заметно меньше своих стальных аналогов.
Достоинства и недостатки
Достоинства следующие:
Однако такие ворота можно использовать разве что для оснащения частного гаража, расположенного на защищенном индивидуальном участке. Подъемные конструкции, в особенности, изготовленные из алюминия, имеют сравнительно низкую жесткость, что не позволяет им обеспечивать требуемую защиту гаража.
Такие ворота имеют довольно сложную конструкцию. Для их самостоятельного изготовления нужно иметь хороший инженерный опыт и владеть специальными знаниями, необходимыми для выбора подходящего противовеса и установки сопутствующих механизмов.
Начинающий мастер может разве что попробовать самостоятельно установить готовые подъемные ворота фабричной сборки. Делается это достаточно просто в соответствии с инструкцией производителя.
Конструкция собирается из нескольких горизонтальных секций, соединенных между собой при помощи шарнирных петель. Крайние секции комплектуются роликами, перемещающимися по направляющим планкам. Сами же направляющие изгибаются так, чтобы при открывании ворот беспрепятственно укладываться под гаражным потолком.
Конструкция характеризуется достаточно высокими показателями надежности и жесткости. Внутри каждой секции, как правило, уже присутствует утеплитель, что дополнительно увеличивает тепло- и шумоизоляционные свойства ворот.
Достоинства и недостатки
Преимущества:
Недостатками же являются относительно малая противовзломность и высокая цена.
Сделать такие ворота самостоятельно не получится. Конечно же, можно попробовать, но не факт, что самодельная конструкция будет правильно работать. Помимо этого, на изготовление секций уйдет нерационально много денег и времени.
Чаще всего состоят из двух створок. В основе ворот лежит металлический каркас. Для обшивки можно использовать сэндвич-панели, стальные листы и другие подходящие материалы.
Для большего удобства в створке можно вырезать калитку.
Достоинства и недостатки
Преимущества:
Главным же недостатком является необходимость наличия достаточного свободного места перед гаражом для открытия ворот. Это доставляет особые неудобства зимой – чтобы открыть ворота, придется предварительно расчистить дорожку перед ними от снега.
Распашные ворота являются наиболее простыми в изготовлении. Именно в их пользу рекомендуется отдавать предпочтение начинающим мастерам.
Руководство по изготовлению распашных ворот
Предварительно спланируйте размеры будущих ворот в соответствии с габаритами проема для въезда в гараж и купите необходимое количество материалов. Для большего удобства составьте чертеж или хотя бы элементарный эскиз.
Первый этап – крепежная рама
Начните с изготовления несущей рамы. Исходный материал – металлический уголок. Рама будет состоять из внешнего и внутреннего опорного каркаса.
Первый шаг.
Измерьте проем.
Второй шаг.
Нарежьте уголок на заготовки необходимых размеров для изготовления наружной рамы. Разложите полученные элементы на плоскости, выровняйте их по горизонтали и выровняйте углы.
Для регулирования горизонтали используйте подкладки, углы проверяйте угольником. При его отсутствии можете попросту вымерять диагонали. Сразу же исправляйте любые отклонения.
Таким образом, вам надо выложить заготовки в виде будущей наружной рамы.
Третий шаг.
Сварите несущую раму. Ее наружная сторона должна быть максимально гладкой и абсолютно ровной, иначе ворота будут прилегать к ней недостаточно плотно. Для обеспечения требуемой гладкости зашлифуйте швы сварки с помощью обыкновенной болгарки.
Четвертый шаг.
Вварите в углы конструкции вертикальные обрезки уголка. Они обеспечат необходимую жесткость рамы, т. е. позволят ей оставаться геометрически неизменной.
Второй этап – каркас
Приступайте к изготовлению каркаса. В дальнейшем вы прикрепите к этому каркасу финишное металлическое полотно. Сам же каркас можно сделать из металлического профиля сечением 6х2 см.
Первый шаг.
Положите раму на подходящую ровную поверхность «лицом» вверх.
Второй шаг.
Вставьте направляющие в несущую раму. Каждую сторону конструкции тщательно выровняйте.
Третий шаг.
Обеспечьте 15-20-миллиметровый зазор между несущей рамой и внутренним воротным каркасом. Для этого используйте вкладыши. Благодаря такому зазору в дальнейшем створки смогут двигаться без затруднений.
Четвертый шаг.
Убедитесь в прямоте углов каркаса и окончательно сварите профили.
Третий этап – обшивка
Будьте максимально внимательны и аккуратны на этом этапе. От правильности выполнения обшивки в полной мере зависят эстетические качества и ряд важнейших функциональных свойств готовой конструкции.
Первый шаг.
Обрежьте стальной лист по размеру гаражных створок. При этом левая створка ворот должна находить на правую с 1-2-сантиметровым нахлестом – учитывайте этот момент.
Второй шаг.
Временно закрепите листы на каркасе. Для этого прихватит их в нескольких точках внизу.
Третий шаг.
Обрежьте обшивку правой воротной створки на 10-20 мм (нужно для нахлеста, упоминалось ранее).
Четвертый этап.
Окончательно приварите листы к каркасу. Сначала приварите материал по углам и в центре каждой коробки, а затем зафиксируйте по периметру. Благодаря этому листы не будут сдвигаться во время работы. После завершения приваривания угловые и центральные крепежные точки необходимо срезать.
Четвертый этап – петли
Навесные петли лучше всего купить.
Приварите нижний элемент петли к несущей раме. Верхний элемент приваривайте к внешней створке. Для укрепления соединения можете использовать изогнутую металлическую полоску. Ее нужно приложить к верху навесной петли и к воротной створке.
Дополнительно жесткость фиксации петель можно повысить путем приваривания к внутренней стороне изделия арматурного вкладыша.
Пятый этап – замки и запоры
Рассматриваемые ворота чаще всего комплектуются навесными либо врезными замками. Дополнительно рекомендуется установить стопоры и качественный засов. Эти изделия позволят закрывать гаражные ворота изнутри.
Штыревые стопоры без проблем делаются своими силами. Для изготовления такой конструкции вбейте в грунт либо пол гаража отрезок трубы, а внутрь нее погрузите металлический прут – подвижный элемент стопора. Прут нужно продеть сквозь петлю, предварительно сделанную в створке. Следите, чтобы труба не забивалась снегом и различной грязью.
Замки также требуют своевременного и грамотного ухода. Защищайте замки ваших ворот от воздействия влаги, в особенности зимой. Периодически смазывайте замки маслом.
Шестой этап – покраска
Лакокрасочный слой обеспечит дополнительную защиту металлического полотна от коррозии и прочих разрушений.
Покройте металл грунтовкой, дайте ей высохнуть, а затем нанесите двойной слой выбранной краски для отделки металлических поверхностей.
Любые малярные работы выполняйте либо на открытом воздухе, либо в помещении с хорошей вентиляцией!
Седьмой этап – монтаж
Первый шаг.
Установите внешний и внутренний элемент воротной рамы. Фиксацию выполняйте к откосам воротного проема при помощи металлических штырей длиной порядка 18 см.
Второй шаг.
Обрежьте выступающие края металлических штырей, обварите их и тщательно зашлифуйте при помощи болгарки, чтобы в дальнейшем они не мешали воротам закрываться. При желании можете покрасить штыри.
Третий шаг.
Скрепите внутреннюю и наружную части рамы при помощи перемычек (металлических пластин) в 40 мм. Перемычки приваривайте с шагом порядка 50-60 см.
Четвертый этап.
Навесьте створки. При желании можете укомплектовать ворота своего гаража автоматикой. Это очень удобно – вам не придется постоянно распахивать и запахивать створки самостоятельно.
Видео — Изготовление и установка гаражных ворот
Восьмой этап – утепление
При отсутствии качественной теплоизоляции через ворота будет уходить до 50-60% тепла. Если вы планируете использовать гараж в холодное время года и собираетесь оборудовать его каким-либо видом обогрева, обязательно решите вопрос с обустройством утепления.
Для этого смонтируйте на внутреннюю поверхность воротных створок обрешетку из деревянных брусков. Шаг крепления элементов подбирайте индивидуально в соответствии с шириной плит утеплителя. Для теплоизоляции рекомендуется использовать минвату и прочие материалы на ее основе.
Перед укладкой утеплителя зафиксируйте поверх обрешетки полиэтиленовую пленку. Уложите утеплитель в ячейки обрешетки. Утеплитель укладывайте максимально плотно, без щелей и промежутков. Для большинства регионов 5-сантиметровой толщины слоя утеплителя более чем достаточно. Теплоизоляцию укройте пароизоляционной пленкой. Поверх обрешетки с изоляцией набейте вагонку или другой облицовочный материал.
В самостоятельном конструировании и монтаже гаражных ворот нет ничего сверхсложного. От вас требуется лишь следовать инструкции и сохранять внимательность на каждом этапе работы. Разобравшись в порядке обустройства простых распашных ворот, вы сможете самостоятельно возводить более сложные конструкции.
Удачной работы!
Видео – Ворота для гаража своими руками
Видео — Автоматические ворота распашные в гараж для катера
Необходимость калитки в гаражных воротах очевидна. В этом убеждаются владельцы новостроя, в котором плохой пол, установлены символические двустворчатые ворота с отпадающей краской. Поэтому каждый новоиспеченный хозяин такого гаража берется за его модернизацию, делая подвал, выполняя стяжку, устанавливая навес перед входом, обустраивает вентиляцию. Полная переделка касается и гаражных ворот.
В некоторых случаях хозяин заказывает вместо старых хлипких ворот новые, и просит обязательно сделать калитку. Но большинство владельцев усовершенствуют конструкцию доставшегося наследства своими руками и врезают в ворота дверцу, устанавливают надежные замки и запоры, наносят новую краску, утепляют.
Обычные двухстворчатые ворота
Преимущества калитки
Калитка в гараже позволит свободно попасть в помещение без необходимости открывания створок ворот. Это экономит время, делает пользование гаражом более удобным. В зимние периоды, когда температура на улице отрицательная, калитка защитит помещение гаража от выветривания тепла. Порог калиточного проема делают на высоте 20-30 см от пола, что также облегчит доступ в гараж при снежных заметах и сугробах при входе.
Дополнительная дверца сделает пользование гаражом удобным
Как правило, при наличии дополнительного входа в воротах гаража хозяева обустраивают на них внутренние запоры, которые отпираются только изнутри помещения. При этом отпадает необходимость в навесных наружных замках, и в зимнее время не будет стоять вопрос о разогревании замерзшего замочного механизма.
Общие требования к гаражным воротам
После реконструкции гаражные ворота должны отвечать таким требованиям:
- Коробка должна быть надежно закреплена в проеме. Как правило, строители сдают объект с воротами, которые приварены к нескольким металлическим закладным. Это крепление необходимо дополнить несколькими анкерами.
- Петли должны выдерживать высокую нагрузку, так как после утепления и установки дополнительной дверцы вес створок увеличится.
- Поскольку петли обычно навариваются внакладку с наружной стороны конструкции, необходимо приварить к торцам штыри с фиксацией при закрывании в отверстиях в коробке. Эта мера предотвратит возможность вскрытия дверей путем срезания петель.
Штыри в металлической двери
- Гаражные ворота необходимо гидроизолировать пленкой и утеплить, установить нащельники.
- На улице необходимо смонтировать фиксаторы для удерживания створок ворот в открытом положении. При внезапных порывах ветра ворота могут захлопнуться и повредить выезжающую из гаража машину.
Конструкция самодельного фиксатора
- Калитку в гаражных воротах делают такой высоты, чтобы хозяину не пришлось нагибаться при входе и случайно не травмироваться.
- Выбирать место положения дверцы необходимо так, чтобы можно было войти в гараж даже тогда, когда автомобиль стоит плотно к входу. Таким образом, традиционное расположение проема для калитки ближе к центру проема ворот не оправдано. Калиточный проем лучше делать ближе к петлевой стороне одной из створок. При таком расположении всегда будет удобно найти выключатель света на стене у входа, и проход не будет затруднен близко стоящей машиной.
Дверца расположена ближе к петлевой стороне
Технология изготовления
На первый взгляд, врезать дверцу в створку гаражных ворот своими руками не просто. На самом деле, есть простой способ, как сделать в воротах калитку, который можно использовать и при изготовлении ворот с нуля.
Инструмент и материалы
Для начала необходимо подготовить рабочее место и инструменты:
- Инверторный сварочный аппарат. Работать необходимо в маске и защитных рукавицах. В зависимости от толщины металла (обычно 2 мм), покупают электроды соответствующего диаметра.
Сварочный аппарат
- Большая углошлифовальная машина под круг диаметром 150 или 180 мм, набор отрезных кругов.
Отрезные круги
- Дрель со сверлами.
- В зависимости от того, из какого профиля выполнены горизонтальные или вертикальные ребра жесткости створки ворот, необходимо подготовить уголок или трубу с квадратным сечением. Из них будет вариться каркас коробки и калиточная рамка. Учитывая то, что имеющиеся ребра жесткости будут использоваться повторно, подсчитывают количество деталей, которые нужно докупить. Конструктивно коробка своими руками будет состоять из двух длинных горизонтальных профилей, длина которых равна длине створки гаражных ворот, и двух вертикальных стоек, расположенных между горизонтальными ребрами. Их высота равна высоте дверцы. Створка варится из 4-х заготовок, торцы которых подрезаны под 45 градусов.
Ребра жесткости из трубы
- Метровая металлическая линейка, рулетка, угольник, мелок.
- Воротные петли. Если петли продают без крепежных пластин, то их необходимо будет вырезать из листового металла и приварить к петлям самостоятельно.
Петли с приваренными пластинами и без них
- Ручной слесарный инструмент: молоток, металлическая щетка, зубило, струбцины (минимум 2 шт.), керн, крупный напильник.
Работать можно во дворе перед гаражом, положив предварительно на грунт и выровняв по уровню толстые бруски. Сняв нужную половинку гаражных ворот, ее укладывают на бруски тыльной стороной вверх.
Изготовление калитки
Суть данного метода в том, что не нужно снимать обшивочный лист металла со створки ворот. Калитка своими руками монтируется с обратной стороны, и в конце лист обшивки просто разрезается по периметру дверцы с лицевой стороны.
Листовой металл приварен точечной сваркой
- Первым делом необходимо демонтировать внутренние ребра жесткости со створки. Как привило, они приварены точечной сваркой к обшивочному листу. Эту сварку необходимо срезать болгаркой. Дальше работают зубилом и молотком. Обычно эта работа не занимает много времени.
- Счистить ржавчину и старую краску.
- Затем необходимо изготовить каркас калитки для гаража. Для этого отмеряют два длинных и два коротких куска уголка по ширине и высоте дверцы. Торцы заготовок подрезают под углом 45 градусов. Если используется уголок, заготовки отрезают так, чтобы их полка располагалась внутри контура створки. Заготовки выкладывают на ровной поверхности в виде прямоугольника, при необходимости подрезают углы для обеспечения минимального зазора. Стыки прихватывают точечно, промеряют диагонали прямоугольника, и, если все в порядке, выполняют сплошную сварку.
Сборка конструкции
- Затем по высоте дверцы в створке ворот приваривают горизонтальный профиль. Если используются уголки, то их нужно приваривать полкой наружу относительно калиточного проема.
Важно
! Можно устанавливать несущими не горизонтальные, а вертикальные профили.
- На следующем этапе необходимо приготовить прокладки. Для этого используют либо тонкие щепки толщиной 4 мм, либо кусочки пластика. Затем в нужном месте при помощи струбцин через подкладки к горизонтальной перемычке прикручивают каркас створки. Теперь можно приварить нижнюю перемычку, а потом и две боковые.
Сборка каркаса из труб, отрезанных под прямым углом
- Теперь рамка калиточной створки прокладывается прокладками по всему периметру и по внутреннему периметру приваривается к обшивочному листу. Точно так же полностью проваривается каркас коробки, только уже по наружному контуру.
- Затем необходимо перенести контрольные отметки на лицевую сторону створки ворот. Для этого ее поднимают, ставят в вертикальное положение, берут дрель с длинным тонким сверлом по металлу и по углам внутреннего периметра калиточной коробки сверлят 4 сквозные отверстия.
- Получив на лицевой стороне контрольные точки, выполняют разметку. По петлевой стороне мелком проводят линию прямо по полученным отверстиям, а по остальным трем добавляют по 1-1,5 см.
Проверка точности позиционирования деталей
- На следующем этапе необходимо прорезать обшивочный металл по петлевой линии, остальные пока не трогаем. Необходимо приварить петли. Можно положить створку снова в горизонтальное положение, приложить на разрез петли, выровнять при помощи длинной рейки их соосность и прихватить. При этом цилиндр должен располагаться строго по центру разреза.
Ворота изнутри
- Теперь остается навесить ворота на место и болгаркой прорезать оставшиеся 3 стороны по разметке с припуском. Калитка своими руками готова.
Готовая калитка
Теперь необходимо полностью проварить петли, установить замок (лучше всего ригельный обратной тяги), установить боковые штыри против срезания петель, почистить, покрыть краской и утеплить ворота.
Видео с похожей технологией изготовления калитки:
Это способ позволяет быстро и аккуратно изготовить калитку гаражных ворот.
Приобрести добротную гаражную конструкцию в наше время – удовольствие не из дешевых. Ворота для гаража своими руками сделать дешевле, но необходимы определенные знания и умения. Также желательно иметь навык сварочных работ. Поэтому, как сделать ворота для гаража своими руками, – вопрос, в котором нужно разобраться досконально. А вот тогда можно уже будет и приступать к выполнению поставленной задачи.
Около частного дома
Большинство пользователей выбирает их за компактный размер.
Преимущества: удобство, защита от взлома, универсальны в использовании. Недостатки: высокая стоимость, складывающиеся конструкции подвержены порче.
Распашные ворота
На фото представлен распашной вариант конструкции.
На загородном участке
Откатные ворота
Откатной вариант
Подъемно-поворотные ворота
Это наиболее практичные и удобные вертикальные конструкции. При открывании лист металла поднимается вверх и ложится горизонтально в виде козырька. Конструкция такого механизма несложная. Полотно крепится на раму и движется вокруг оси, меняя горизонтальное положение на вертикальное. Откидные ворота удобны в эксплуатации.
Чертеж подъемной конструкции
Достоинства: стойкость к коррозии и взлому, не требуют дополнительного места.
Сравнение характеристик
Руководствуясь показателями в таблице, можно сказать, что выбор – только за покупателем. Все зависит от стоимости и надежности. Например, распашные и секционные модели хорошо ставить в домашнем гараже, но они не подойдут для гаражных кооперативов, так как имеют невысокую степень надежности.
Подъемно-поворотные ворота для гаража подойдут для любого строения, но их главный недостаток – высокая стоимость. Из-за невысокой цены для частного гаража подойдут распашные ворота. При необходимости их можно утеплить, автоматизировать и усилить дополнительным листом металла. К тому же несложно сварить ворота для гаража в домашних условиях.
Схема устройства каркаса
Каркас выполняется из металлического уголка, который приваривается по всему периметру дверного проема. Таким образом отделывают откос внутри и снаружи. Между собой внутренние и наружные уголки сваривают металлическими полосками в нескольких местах. Должна получиться каркасная рамка.
После того как каркас готов, по бокам приваривают разборные петли. Нижнюю часть необходимо соединить наружным уголком, а верхнюю – с каркасной рамкой. Такая конструкция подойдет и для гаража из
Гараж – строение, которому уделяется особое внимание, особенно в плане взломостойкости. А такой элемент, как ворота, должен обладать удвоенной прочностью и надежностью, и конечно, привлекательным внешним видом. Традиционно гаражные ворота – это распашная конструкция из двух створок, навешенные на коробку. Изготовить их своими руками – не проблема, если владеть навыками работы с несложным слесарным инструментом и сварочным аппаратом. Об этом и пойдет речь в статье: о вариантах распашных ворот, о технологии изготовления и нюансах монтажного процесса.
Виды гаражных ворот
Кроме того что распашные ворота для гаража являются традиционными и очень надежными, есть у них и другие преимущества.
- Стоимость конструкции дешевле, чем у всех других моделей.
- Распашную модификацию можно утеплить, используя различные теплоизоляционные материалы.
- Можно установить в ограниченном пространстве.
- Открываться могут наружу или внутрь гаража в зависимости от требований владельца.
- Возможность установки электродвигателя для автоматического открывания.
Единственный большой недостаток – требуется свободное пространство, чтобы открыть створки конструкции. Это иногда проблематично зимой, когда снег наваливает сугробы перед гаражом. Поэтому приходится махать лопатой.
Минус распашных ворот – перед ними приходиться очищать от снега площадку
Кроме распашных ворот в гаражах устанавливают и другие разновидности.
Складные
Это секционный тип ворот, элементы которого устанавливаются вертикально и соединяются между собой шарнирным способом. Крайние секции крепятся, как и распашные, к коробу петлями. Дополнительное крепление – по верхней или нижней направляющей. Изготавливают секции из разных материалов, чаще из алюминиевых сплавов или дерева.
Плюсы конструкции:
- необычный внешний вид,
- удобство открытия и закрытия,
- не занимают в открытом состоянии много места,
- секции по отдельности можно менять, ремонтировать,
- невысокая цена.
Минусы: быстрый износ и низкие защитные функции.
Складные ворота
Подъемно-поворотные
Чисто конструктивно это цельный щит, который собой закрывает весь въездной проем. Для открытия ворота поднимаются и поворачиваются на 90° так, чтобы они оказались вверху в горизонтальной плоскости. Для этого используется система рычагов, редуктор и электродвигатель.
Плюсы модели:
- высокая надежность,
- в открытом виде ворота не занимают никакого места,
- поддаются утеплению,
- поддаются автоматизации.
- требуется высокая точность установки,
- ворота остаются в проеме, уменьшая его высоту на 20-30 см,
- не рекомендуется использовать их интенсивно.
Подъемно-поворотные ворота
Подъемно-секционные
Это конструкция из нескольких секций, расположенных горизонтально и соединенных между собой специальными петлями. С помощью подъемного механизма, находящегося на потолке, ворота поднимаются по направляющим профилям и располагаются горизонтально вдоль потолка. Секции в основном изготавливают из сэндвич-панелей.
Плюсы модели:
- универсальность в плане размеров проема,
- экономия свободного места при открытии,
- неплохая устойчивость к деформациям и механическим нагрузкам,
- полная автоматизация,
- презентабельный внешний вид,
- высокие тепло- и звукоизоляционные качества,
- долгосрочная эксплуатация.
- высокая цена,
- требуется постоянное обслуживание: смазка петель и направляющих, проверка электрики и автоматики,
- низкая взломоустойчивость.
Подъемно-секционные ворота
Рулонные
Свое название эти гаражные ворота получили по способу открытия. Чисто конструктивно – это несколько полос (ламелей), собранных в одно полотно, которое закручивается в рулон. Поэтому в состав ворот входят кроме полотна две направляющие, удерживающие конструкцию в проеме, вал, на который ламели наматываются, и электропривод.
Преимущества:
- компактность,
- приемлемая цена,
- простота монтажа,
- долгосрочная служба,
- презентабельный внешний вид,
- возможность автоматизации.
- практически нулевая взломостойкость,
- нет возможности провести утепление, потому что между ламелями всегда остаются зазоры,
- плохо работают при низких температурах.
Рулонные ворота
Откатные
В этой конструкции одна створка, которая держится на направляющем профиле, расположенном сверху, и упирается снизу в рельс. Открывается устройство откатыванием в сторону вдоль стены.
К плюсам можно отнести:
- функциональность е зависит от сугробов,
- не занимает места при открытии,
- высокая взломостойкость,
- возможность провести автоматизацию.
- быстрый износ роликов,
- ширина стены, вдоль которой смещаются ворота, должна быть больше ширины створки.
Откатные ворота
Технология изготовления распашных гаражных ворот своими руками
Итак, распашные ворота для гаража собой представляют две створки (чаще одинаковые по ширине), которые навешиваются на П-образный короб посредству петель. Поэтому когда ставиться задача – изготовить ворота этого типа, то решается несколько вопросов:
- изготовление створок,
- изготовление короба (рамы),
- монтаж последнего,
- установка створок на раму.
Перед тем как начинать изготовления распашных ворот, нужно определиться с их размерами.
Размеры гаражных распашных ворот
Строгих требований относительно размеров не существует. Главное – чтобы автомобиль мог свободно въехать в гараж, не задев собой ворота. А это позволяет сделать любой проем, ширина и высота которого больше габаритов машины с каждой стороны на 30 см. Но это неудобно особенно для начинающих водителей.
- высота для легковых автомобилей – 2,0-2,2 м, для микроавтобусов – 2,5 м;
- ширина оптимальная 2,5-3 м, максимальная – 5 м.
Стандартные размеры распашных ворот
Подготовка к изготовлению ворот
Требуемые инструменты:
- сварочный аппарат и электроды;
- болгарка с отрезным и шлифовальным диском;
- рулетка, линейка и маркер (мел);
- уровень и уголок.
Требуемые материалы. Внешняя сторона ворот – это листовой стальной лист толщиною 3-4 мм или профнастил толщиною не менее 1,2 мм. Если в конструкции будет использоваться первый материал, тогда весь процесс соединений проводится электросваркой. Если второй, то крепление профнастила к каркасу можно проводить саморезами по металлу.
В качестве материала для сборки каркаса можно использовать или уголок 63х63 мм, или профилированную трубу 40х40 мм толщиною 2-3 мм. Второй вариант дешевле и проще в применении.
Чертеж распашных ворот для гаража из профильной трубы
И последний элемент – петли, которые изготавливаются из стального прутка диаметром минимум 25 мм. Петель должно быть минимум четыре по две на каждую створку.
Теперь, что касается П-образного короба. Состоит он из двух стоек и поперечины (перекладины). Первые можно изготовить из уголка 63х63 или трубы круглого сечения диаметром 80-100 мм, или профилированной трубы сечением не меньше 80х60 мм. Перекладина из тех же материалов. Если запланировано строительство двухэтажного гаража, то в качестве перекладины лучше использовать швеллер №12.
Сборочный чертеж ворот
Изготовление рам для створок
Первый этап – нарезка восьми отрезков материала, приготовленного для сборки рам. Четыре из них должны равняться высоте ворот минус 1-2 см, четыре ширине створок, то есть, половине ширины воротной конструкции минус 2-3 см. К примеру, если общая ширина ворот равна 3 м, значит, необходимо нарезать четыре элемента по 1,48 м.
Выставление рамы на блоках в горизонтальной плоскости
Важный момент – сборка рам должна проводиться на горизонтальной плоскости. Необязательно, чтобы это была ровная площадка, подойдут любого типа подставки, верхние торцы которых выставляются в одной горизонтальной плоскости. Для этого можно использовать кирпичи или блоки. Их устанавливают в углах прямоугольника, длина которого равна высоте створки, ширина ширине секции ворот. На них укладываются соответственно нарезанные отрезки, а затем уровнем проверяются – лежат ли они по горизонту. Отклонения выравниваются подкладкой под блоки тонких дощечек, камешков или листового металла.
Уложенные отрезки фиксируются друг с другом точечной сваркой с точным выставлением соседних элементов между собой под 90°. Для этого используется строительный уголок. Это важный момент, определяющий точные габариты будущей воротной конструкции, которая точно впишется в короб без перекосов и больших зазоров.
Схема ребер жесткости
Две рамы сформированы, теперь необходимо увеличить жесткость конструкции путем установки дополнительных элементов: горизонтальных или вертикальных Если ворота большие, то применяют и те, и другие. Иногда дополняют их косыми элементами. В качестве материала используют уголок или профильную трубу меньшего размера. К примеру, если рамы собирались из трубы 40х40 мм, то для усиления можно использовать 40х20 мм. Дополнительные элементы равномерно распределяются относительно друг друга.
После сборки рам надо проварить стыки с двух сторон и отшлифовать их от окалин и подтеков металла.
Жесткость конструкции рам определяют дополнительные элементы, установленные вертикально и горизонтально
Соединение рамы и стального листа
Из листа железа для каждой створки надо вырезать прямоугольный отрезок. К их размерам есть определенные требования:
- длина отрезков должна быть больше высоты проема ворот на 3-4 см;
- один из прямоугольников по ширине должен быть на 2 см меньше ширины каркаса, а второй больше на этот же размер.
К примеру, если ширина створок – 1,5 м, высота – 2,5 м, то один лист будет размером 1,52х2,54, другой 1,48х2,54 мм.
Теперь по высоте два листа укладываются на рамы так, чтобы их края выступали за пределы каркасной конструкции на 2 см с каждой стороны. Выступы листов будут закрывать зазор между створками и коробом. Что касается ширины, то со стороны петель листы укладываются вровень с профильной трубой. В одной створке лист будут выступать с противоположной стороны на 2 см, в другой, наоборот, его край будет не доходить до края рамы. Это делается для того, чтобы при закрытии ворот выступающий лист закрывал зазор между створками.
Внимание! Листы к раме привариваются точечно от края к центру. После чего производится проварка небольшими отрезками в пределах 3-4 см с шагом 10-15 см.
Крепление листа к раме производится короткими швами
Сборка короба распашных ворот
Размеры короба определяются размерами проема. При этом к длине опорных стоек прибавляется по полметра, которыми конструкция будет утоплена в подготовленные ямы с последующим бетонированием.
Сборка короба производится по идентичной технологии, что и рамы створок, с установкой на кирпичи или блоки. Размеры короба по внутреннему контуру по ширине чуть больше общей ширины створок. Разница составляет 2-3 см. По высоте разница может быть значительной – до 5-6 см. Хотя оптимально – 3-4 см.
Короб для распашных ворот
Монтаж петель
Для этого створки укладываются на П-образный короб с точным расположением в плоскости с формированием зазоров между всеми элементами. Петли в собранном виде прикладываются по месту их требуемого расположения и привариваются: нижние их части к стойкам короба, верхние к раме створок.
Для усиления крепежа можно дополнительно приварить к петлям металлические полоски или арматуру.
Правильная и качественная сварка петлей
Монтаж распашных ворот
В идеале воротный короб надо монтировать в процессе сооружения гаража, когда стены на половину уже подняты из кирпича или блоков. Но в независимости от этого монтаж проводится по одной и той же технологии.
- Выкапываются ямы под стойки глубиною 0,5 м.
- К нижним краям стоек привариваются одна или две поперечины из арматуры или уголка длиною 10-20 см, назначение которых – выполнять функции удерживающих в бетоне элементов.
Подготовка стойки перед бетонированием ямы
- Снизу опор приваривают металлические пластины в виде пятака для упора на грунт.
- Полметровые концы стоек обрабатывают гидроизоляционным составом, к примеру, горячим битумом или закрывают рубероидом.
- Производится установка короба в ямы с точным выставлением в проеме, для чего используется строительный уровень.
- Стойки приваривают к закладным деталям, которые устанавливаются в процессе кладки стены. В качестве закладных часто используют арматуру диаметром 12-16 мм, длиною по 50 см. Шаг укладки – через каждые 6-8 рядов.
- Производится замес бетона из расчета цемент-песок-щебень в соотношении 1:2:2, если марка цемента М400.
- Заливка бетона в ямы с трамбовкой. Это делается не только для того, чтобы уплотнить бетонный раствор, но и для того чтобы выдавить из него воздух, попавший туда в процессе замеса. Воздушные поры – это снижение прочности бетона.
- Навешивать створки на короб можно после того, как бетон схватится и просохнет.
Как сделать ворота с калиткой?
Процесс сборки распашных ворот с дверью точно такой же. Просто в одну из створок вставляются четыре элемента, формирующие проем для двери. Вертикальные устанавливаются во всю высоту, горизонтальные между ними в виде поперечин. Собирается конструкция дверного проема на стадии изготовления рамы под створку.
Расположение двери в воротах со стандартными размерами
Сама дверь изготавливается точно так же, как секции ворот, со сборкой каркаса и установкой металлического листа. Сложность процесса изготовления самой створки, в которой устанавливается дверца, заключается в том, что дверной проем остается незакрытым листом металла, а остальные плоскости надо им закрыть. Все они не будут равными между собой, поэтому каждый участок надо точно замерить, перенести размеры на лист и вырезать их. После чего каждый вырезанный кусок переносится на раму с точечной приваркой по периметру. При этом укладываемые отрезки листов должны стыковаться на дополнительных профилях, которые создают жесткость рамной конструкции.
Чертеж гаражных распашных ворот с калиткой
Размер калитки выбирается с расчетом удобного прохода через нее, а также размерами створки ворот. К примеру, если ширина створки 1,5 м, то ширина калитки не должна превышать 1 м. Что касается высоты, то здесь также учитывается высота ворот и расположение самой двери относительно нижних элементов рамы ворот. При этом максимальная высота расположения – 40 см. Сама же высота двери в пределах 1,8-2,1 м.
Калитка сварная для гаражных ворот
Варианты готовых распашных ворот
Видео — как сделать гаражные ворота своими руками
Заключение
При кажущейся простоте сборочного процесса, необходимо отметить, что изготовление распашных гаражных ворот требует от производителя работ внимания, умение точно провести все замеры и расчеты. При этом нельзя выпускать из рук измерительные инструменты. Небольшое отклонение по форме или размерам может привести к тому, что створки просто не поместятся в раму. Придется производить подгонку по месту, что скажется на ровности элементов.
Подробная информация про
Большая часть мужчин без ума от своей машины и готовы кучу времени проводить в гараже. Но чтобы построить капитальный гараж и отделать его так, как хочется, нужно вложить немалые средства. К счастью, можно освоить тонкости самостоятельного изготовления некоторых элементов сооружения, например, гаражных ворот.
Обо всех нюансах, связанных с изготовлением, монтажом и уходом за ними, и пойдет речь в нашей статье.
Виды
Существуют следующие варианты гаражных ворот:
- распашные;
- раздвижные;
- подъемно-поворотные (откидные);
- подъемно-секционные (раскладные);
- откатные;
- рулонные (роллетные или рольставни).
Теперь мы подробно рассмотрим особенности конструкции каждого вида, схемы их функционирования, достоинства и недостатки. А также расскажем о том, какой материал выбрать, чтобы изготовить гаражные ворота самостоятельно (дерево, оцинкованное железо или профнастил), чем усилить створки и как их покрасить.
Особенности конструкции
Чтобы сделать надежные и качественные ворота своими руками, нужно учесть основные нюансы строения каждого их вида.
Распашные
Распашные гаражные ворота — наиболее распространенный вариант, известный еще с древних времен своей надежностью и удобством.
Конструктивный принцип предельно прост – распашные ворота состоят из двух створок, в основе которых – металлический каркас. Они могут быть деревянными, железными, сделанными из профнастила. Закрываются на наружные и внутренние замки и засовы. Для дополнительного комфорта в одной из дверей можно вырезать калитку.
Основные преимущества: экономичность, простота изготовления, высокая степень обеспечения безопасности. Недостатки: требуют наличия свободного пространства перед гаражом для полного открывания.
Раздвижные
Если к распашным воротам подключить привод, то их можно автоматизировать и превратить в раздвижные.
Подъемно-поворотные (откидные)
Современный, аккуратный и компактный вариант, больше подходящий для утепленных гаражей, расположенных на территории охраняемых кооперативов. Основу конструкции составляет дверь, выполненная из оцинкованной стали или алюминия, которая поднимается вверх и закрепляется параллельно полу при помощи шарнирно-рычажного привода, специальных направляющих и фиксатора.
Основные преимущества: экономия пространства, легкость эксплуатации. Недостатки: высокая стоимость, низкий уровень защиты, сложность изготовления.
Подъемно-секционные (раскладные)
Весьма удобная разновидность ворот, обеспечивающая высокую герметичность и не занимающая большое пространство. Принципиальная схема основана на преломлении металлической створки, состоящей из горизонтальных секций, в процессе открывания и помещении ее под потолком.
Функционирование механизма осуществляется за счет шарнирных петель, соединяющих сегменты, и роликов, перемещающихся по направляющим планкам. Раскладные ворота отличаются хорошей шумоизоляцией, так как каждая секция их укрепляется уплотнителем.
Основные преимущества: универсальность. Недостатки: высокая цена, малая противовзломность.
Откатные
Относительно недорогой, эффектный и легкий в эксплуатации вариант. Конструкция работает по принципу шкафа-купе и состоит из одной металлической двери, перемещающейся вдоль гаражной стены при помощи системы из направляющих и роликов. Откатные ворота можно установить как снаружи, так и внутри гаража.
Основные преимущества: бюджетность, прочность, долговечность. Недостатки: необходимость наличия у гаража широкого фасада.
Рулонные (роллетные)
Редкая разновидность облегченных ворот. Роллеты лучше использовать в охраняемых кооперативах. Механизмом своего действия они напоминают рольставни и состоят из алюминиевых пластин, которые собираются в специальный блок, закрепленный наверху.
Основные преимущества: экономия пространства, простота эксплуатации. Недостатки: хрупкость и ненадежность.
Изучив особенности конструкции различных видов, можно сделать вывод, что легче всего изготовить и смонтировать распашные гаражные ворота. Их производство не требует построения сложных чертежей, наличия профессиональных навыков и использования специализированного инструмента.
А как правильно сделать это своими руками, читайте ниже.
Изготовление
Беспрепятственная установка и легкая эксплуатация ворот напрямую зависят от четкого соблюдения технологии изготовления. Представляем вашему вниманию универсальное поэтапное руководство по производству распашных ворот для гаража.
Закупка необходимых материалов и инструментов
Для работы нам понадобятся:
- рулетка;
- угольник;
- уровень (можно использовать как строительный, так и гидравлический);
- болгарка;
- аппарат для сварки.
В процессе работы будут использованы:
- уголки для сборки крепежной рамы (лучше отдать предпочтение уголкам из стали 65х65 или 40х40 мм);
- обшивка для створок (чаще всего применяются дерево, профнастил или цельный металлический лист);
- комплект наружных и внутренних замков (задвижек или засовов по вашему усмотрению);
- профиль (например, размером 60х30 мм);
- навесные железные петли для крепления дверей.
Замер проема и создание чертежа
Чтобы сделать надежные и аккуратные ворота без щелей и всевозможных неровностей, нужно внимательно подойти к замеру проема и последующему перенесению полученных данных на чертеж.
Алгоритм измерения проема гаража:
- Измеряем ширину.
Как правило, этот показатель варьируется от 3 до 5 метров, в зависимости от габаритов транспортного средства. В идеале, расстояние от машины до каркасной рамы не должно быть меньше 30 см с обеих сторон. - Измеряем высоту.
Этот размер также снимается с учетом параметров автомобиля.
Переносим полученные цифры на бумагу и указываем материалы. Чертеж может быть произвольным, главное, его точность.
Крепежная рама
Распашные ворота состоят из 3-х базовых элементов: каркасной рамы (обрешетки), дверей (створок) и петель.
Первым делом нужно подготовить детали и сварить обрешетку, следуя технологическому порядку:
- Берем заготовленный уголок и разрезаем его на несколько равных частей. Первая половина должна быть соразмерна ширине гаражных ворот, вторая соответствовать их высоте.
- Полученные отрезки выкладываем на ровную поверхность под прямыми углами, тщательно проверяя градусы рулеткой-угольником.
- Теперь нам необходимо сварить обрешетку из готовых деталей.
Каркас створок
Работу на данном этапе следует выполнять с особым вниманием, потому как от этого зависит герметичность ворот и удобство их эксплуатации.
Изготовление каркаса дверей включает в себя следующие моменты:
- Берем обрез профильной трубы и делим его на 4 куска длиной, отличающейся от высоты обрешетки на 20 мм, и еще на 4, размер которых рассчитываем по формуле: ширина обрешетки/2 – 35 мм. Все эти расчеты делаются для того, чтобы обеспечить легкость вхождения будущих дверей в проем.
- Раскладываем детали на гладкой прямой поверхности под углами 90 градусов, проверяя их угольником.
- Свариваем отрезки между собой и получаем готовый каркас.
Обшивка
Обшивка также является одним из важнейших этапов работы, так как от грамотности и четкости его выполнения зависит внешний вид и функциональность конструкции. Как же правильно обшить двери?
Представляем вашему вниманию подробное руководство:
- Берем заранее приобретенный материал. Например, цельный лист железа.
- Обрезаем его по размеру. Причем обшивка левой створки должна идти внахлест правой на 2 см.
- Привариваем полотна к каркасу сначала по центру и по краям, чтобы их зафиксировать, а затем и по всему периметру.
Монтаж петель
Перед началом работы мы приобрели навесные железные петли для крепления дверей. Теперь самое время их установить.
Это делается очень легко:
- Сперва нужно приварить нижний элемент петли к каркасной раме, а верхний – к наружной стороне створки.
- Усиливаем соединение, прикладывая согнутую металлическую полоску к верхней части петли и привариваем к внутренней стороне арматурный вкладыш.
Запоры и стопор
Выбор и правильная установка надежного замка гарантирует сохранность вашего автомобиля. Поэтому надо подойти к данному этапу со всей ответственностью.
Снаружи гаражи обычно закрываются при помощи врезного или навесного замка, а изнутри – при помощи штыревого стопора.
Установить врезной замок нетрудно, а вот как смонтировать стопор мы рассмотрим подробнее
:
- Сперва вбиваем в землю обрезок трубы – в него будет входить подвижная часть стопора.
- В качестве подвижной части используем арматурный штырь. Его необходимо продеть через петлю воротной створки.
- Чтобы конструкция удачно функционировала, необходимо постоянно следить за чистотой трубы.
Покраска
Перед окончательным монтажом гаражных ворот, створки нужно покрасить с целью защиты металла от коррозии и улучшения общих эстетических качеств. После предварительной грунтовки, на двери наносится морозостойкая краска по металлу или эмаль в 2-3 слоя.
Утепление
В заключение процесса изготовления ворот, необходимо выполнить их внутреннее утепление, иначе из помещения будет уходить не менее 50 процентов тепла. И, согласитесь, теплые гаражи намного уютнее. Для утепления обычно применяется пенопласт, пенополистирол или стекловата. Теплоизоляционный материал крепится к внутренней стороне створок и закрывается сверху вагонкой или деревянными планками.
Итак, мы подробно рассмотрели основные стадии самостоятельного изготовления распашных гаражных ворот. Осталось разобраться в вопросах их монтажа: как поднять каркас, навесить двери, закрепить конструкцию и установить привод для ее автоматизации.
Монтаж
После того как вы завершили изготовление всех элементов конструкции ворот, можно приступать к их установке.
Алгоритм монтажа тоже довольно простой:
- Для начала необходимо установить каркасные рамы. Они прикрепляются к откосам гаражного проема с помощью длинных металлических штырей (15-20 см).
- Выступающие снаружи излишки штырей обрезаем, шлифуем и маскируем краской, чтобы в дальнейшем они не мешали закрывать двери.
- Теперь нужно соединить внутреннюю и наружную обрешетки посредством железных пластин-перемычек.
- Остается навесить створки на петли и оценить готовую работу.
Для большего удобства эксплуатации распашные ворота можно оснастить специальным приводом, работающим от электричества – это позволит сделать их автоматическими. Схема действия такого устройства основана на использовании направляющих из профиля, приходящих в движение за счет электродвигателя.
Складные и поднимающиеся рулонные ворота также можно смонтировать самостоятельно, если есть готовые механизмы открывания-закрывания (створки, сдвижные части, планки, ролики и фиксаторы), которые продаются в строительных магазинах. От вас потребуется лишь изготовить раму и собрать конструкцию, в соответствии с прилагаемыми инструкциями, а также выполнить ее уплотнение.
Для установки откатных ворот не потребуется даже рама. Все, что нужно – сделать из профлиста и уплотнить большую створку. При желании в ней можно вырезать калитку. Монтаж же сводится к расположению деталей фурнитуры согласно инструкции.
Чтобы все получилось как можно лучше, учтем мнение профессионалов:
- Не стоит ограничиваться прочтением пары статей с руководством по самостоятельному изготовлению гаражных ворот. Сейчас на просторах интернета есть очень много подробных видеоуроков и обзоров на эту тему.
- Выбирая материалы для работы, отдавайте предпочтение более легким и современным. Тогда и дальнейшая эксплуатация готовой конструкции не составит труда и не потребует усилий.
Большая часть мужчин без ума от своей машины и готовы кучу времени проводить в гараже. Но чтобы построить капитальный гараж и отделать его так, как хочется, нужно вложить немалые средства. К счастью, можно освоить тонкости самостоятельного изготовления некоторых элементов сооружения, например, гаражных ворот.
Обо всех нюансах, связанных с изготовлением, монтажом и уходом за ними, и пойдет речь в нашей статье.
Виды
Существуют следующие варианты гаражных ворот:
- распашные;
- раздвижные;
- подъемно-поворотные (откидные);
- подъемно-секционные (раскладные);
- откатные;
- рулонные (роллетные или рольставни).
Теперь мы подробно рассмотрим особенности конструкции каждого вида, схемы их функционирования, достоинства и недостатки. А также расскажем о том, какой материал выбрать, чтобы изготовить гаражные ворота самостоятельно (дерево, оцинкованное железо или профнастил), чем усилить створки и как их покрасить.
Особенности конструкции
Чтобы сделать надежные и качественные ворота своими руками, нужно учесть основные нюансы строения каждого их вида.
Распашные
Распашные гаражные ворота — наиболее распространенный вариант, известный еще с древних времен своей надежностью и удобством.
Конструктивный принцип предельно прост – распашные ворота состоят из двух створок, в основе которых – металлический каркас. Они могут быть деревянными, железными, сделанными из профнастила. Закрываются на наружные и внутренние замки и засовы. Для дополнительного комфорта в одной из дверей можно вырезать калитку.
Основные преимущества: экономичность, простота изготовления, высокая степень обеспечения безопасности. Недостатки: требуют наличия свободного пространства перед гаражом для полного открывания.
Раздвижные
Если к распашным воротам подключить привод, то их можно автоматизировать и превратить в раздвижные.
Подъемно-поворотные (откидные)
Современный, аккуратный и компактный вариант, больше подходящий для утепленных гаражей, расположенных на территории охраняемых кооперативов. Основу конструкции составляет дверь, выполненная из оцинкованной стали или алюминия, которая поднимается вверх и закрепляется параллельно полу при помощи шарнирно-рычажного привода, специальных направляющих и фиксатора.
Основные преимущества: экономия пространства, легкость эксплуатации. Недостатки: высокая стоимость, низкий уровень защиты, сложность изготовления.
Подъемно-секционные (раскладные)
Весьма удобная разновидность ворот, обеспечивающая высокую герметичность и не занимающая большое пространство. Принципиальная схема основана на преломлении металлической створки, состоящей из горизонтальных секций, в процессе открывания и помещении ее под потолком.
Функционирование механизма осуществляется за счет шарнирных петель, соединяющих сегменты, и роликов, перемещающихся по направляющим планкам. Раскладные ворота отличаются хорошей шумоизоляцией, так как каждая секция их укрепляется уплотнителем.
Основные преимущества: универсальность. Недостатки: высокая цена, малая противовзломность.
Откатные
Относительно недорогой, эффектный и легкий в эксплуатации вариант. Конструкция работает по принципу шкафа-купе и состоит из одной металлической двери, перемещающейся вдоль гаражной стены при помощи системы из направляющих и роликов. Откатные ворота можно установить как снаружи, так и внутри гаража.
Основные преимущества: бюджетность, прочность, долговечность. Недостатки: необходимость наличия у гаража широкого фасада.
Рулонные (роллетные)
Редкая разновидность облегченных ворот. Роллеты лучше использовать в охраняемых кооперативах. Механизмом своего действия они напоминают рольставни и состоят из алюминиевых пластин, которые собираются в специальный блок, закрепленный наверху.
Основные преимущества: экономия пространства, простота эксплуатации. Недостатки: хрупкость и ненадежность.
Изучив особенности конструкции различных видов, можно сделать вывод, что легче всего изготовить и смонтировать распашные гаражные ворота. Их производство не требует построения сложных чертежей, наличия профессиональных навыков и использования специализированного инструмента.
А как правильно сделать это своими руками, читайте ниже.
Изготовление
Беспрепятственная установка и легкая эксплуатация ворот напрямую зависят от четкого соблюдения технологии изготовления. Представляем вашему вниманию универсальное поэтапное руководство по производству распашных ворот для гаража.
Закупка необходимых материалов и инструментов
Для работы нам понадобятся:
- рулетка;
- угольник;
- уровень (можно использовать как строительный, так и гидравлический);
- болгарка;
- аппарат для сварки.
В процессе работы будут использованы:
- уголки для сборки крепежной рамы (лучше отдать предпочтение уголкам из стали 65х65 или 40х40 мм);
- обшивка для створок (чаще всего применяются дерево, профнастил или цельный металлический лист);
- комплект наружных и внутренних замков (задвижек или засовов по вашему усмотрению);
- профиль (например, размером 60х30 мм);
- навесные железные петли для крепления дверей.
Замер проема и создание чертежа
Чтобы сделать надежные и аккуратные ворота без щелей и всевозможных неровностей, нужно внимательно подойти к замеру проема и последующему перенесению полученных данных на чертеж.
Алгоритм измерения проема гаража:
- Измеряем ширину.
Как правило, этот показатель варьируется от 3 до 5 метров, в зависимости от габаритов транспортного средства. В идеале, расстояние от машины до каркасной рамы не должно быть меньше 30 см с обеих сторон. - Измеряем высоту.
Этот размер также снимается с учетом параметров автомобиля.
Переносим полученные цифры на бумагу и указываем материалы. Чертеж может быть произвольным, главное, его точность.
Крепежная рама
Распашные ворота состоят из 3-х базовых элементов: каркасной рамы (обрешетки), дверей (створок) и петель.
Первым делом нужно подготовить детали и сварить обрешетку, следуя технологическому порядку:
- Берем заготовленный уголок и разрезаем его на несколько равных частей. Первая половина должна быть соразмерна ширине гаражных ворот, вторая соответствовать их высоте.
- Полученные отрезки выкладываем на ровную поверхность под прямыми углами, тщательно проверяя градусы рулеткой-угольником.
- Теперь нам необходимо сварить обрешетку из готовых деталей.
Каркас створок
Работу на данном этапе следует выполнять с особым вниманием, потому как от этого зависит герметичность ворот и удобство их эксплуатации.
Изготовление каркаса дверей включает в себя следующие моменты:
- Берем обрез профильной трубы и делим его на 4 куска длиной, отличающейся от высоты обрешетки на 20 мм, и еще на 4, размер которых рассчитываем по формуле: ширина обрешетки/2 – 35 мм. Все эти расчеты делаются для того, чтобы обеспечить легкость вхождения будущих дверей в проем.
- Раскладываем детали на гладкой прямой поверхности под углами 90 градусов, проверяя их угольником.
- Свариваем отрезки между собой и получаем готовый каркас.
Обшивка
Обшивка также является одним из важнейших этапов работы, так как от грамотности и четкости его выполнения зависит внешний вид и функциональность конструкции. Как же правильно обшить двери?
Представляем вашему вниманию подробное руководство:
- Берем заранее приобретенный материал. Например, цельный лист железа.
- Обрезаем его по размеру. Причем обшивка левой створки должна идти внахлест правой на 2 см.
- Привариваем полотна к каркасу сначала по центру и по краям, чтобы их зафиксировать, а затем и по всему периметру.
Монтаж петель
Перед началом работы мы приобрели навесные железные петли для крепления дверей. Теперь самое время их установить.
Это делается очень легко:
- Сперва нужно приварить нижний элемент петли к каркасной раме, а верхний – к наружной стороне створки.
- Усиливаем соединение, прикладывая согнутую металлическую полоску к верхней части петли и привариваем к внутренней стороне арматурный вкладыш.
Запоры и стопор
Выбор и правильная установка надежного замка гарантирует сохранность вашего автомобиля. Поэтому надо подойти к данному этапу со всей ответственностью.
Снаружи гаражи обычно закрываются при помощи врезного или навесного замка, а изнутри – при помощи штыревого стопора.
Установить врезной замок нетрудно, а вот как смонтировать стопор мы рассмотрим подробнее
:
- Сперва вбиваем в землю обрезок трубы – в него будет входить подвижная часть стопора.
- В качестве подвижной части используем арматурный штырь. Его необходимо продеть через петлю воротной створки.
- Чтобы конструкция удачно функционировала, необходимо постоянно следить за чистотой трубы.
Покраска
Перед окончательным монтажом гаражных ворот, створки нужно покрасить с целью защиты металла от коррозии и улучшения общих эстетических качеств. После предварительной грунтовки, на двери наносится морозостойкая краска по металлу или эмаль в 2-3 слоя.
Утепление
В заключение процесса изготовления ворот, необходимо выполнить их внутреннее утепление, иначе из помещения будет уходить не менее 50 процентов тепла. И, согласитесь, теплые гаражи намного уютнее. Для утепления обычно применяется пенопласт, пенополистирол или стекловата. Теплоизоляционный материал крепится к внутренней стороне створок и закрывается сверху вагонкой или деревянными планками.
Итак, мы подробно рассмотрели основные стадии самостоятельного изготовления распашных гаражных ворот. Осталось разобраться в вопросах их монтажа: как поднять каркас, навесить двери, закрепить конструкцию и установить привод для ее автоматизации.
Монтаж
После того как вы завершили изготовление всех элементов конструкции ворот, можно приступать к их установке.
Алгоритм монтажа тоже довольно простой:
- Для начала необходимо установить каркасные рамы. Они прикрепляются к откосам гаражного проема с помощью длинных металлических штырей (15-20 см).
- Выступающие снаружи излишки штырей обрезаем, шлифуем и маскируем краской, чтобы в дальнейшем они не мешали закрывать двери.
- Теперь нужно соединить внутреннюю и наружную обрешетки посредством железных пластин-перемычек.
- Остается навесить створки на петли и оценить готовую работу.
Для большего удобства эксплуатации распашные ворота можно оснастить специальным приводом, работающим от электричества – это позволит сделать их автоматическими. Схема действия такого устройства основана на использовании направляющих из профиля, приходящих в движение за счет электродвигателя.
Складные и поднимающиеся рулонные ворота также можно смонтировать самостоятельно, если есть готовые механизмы открывания-закрывания (створки, сдвижные части, планки, ролики и фиксаторы), которые продаются в строительных магазинах. От вас потребуется лишь изготовить раму и собрать конструкцию, в соответствии с прилагаемыми инструкциями, а также выполнить ее уплотнение.
Для установки откатных ворот не потребуется даже рама. Все, что нужно – сделать из профлиста и уплотнить большую створку. При желании в ней можно вырезать калитку. Монтаж же сводится к расположению деталей фурнитуры согласно инструкции.
Чтобы все получилось как можно лучше, учтем мнение профессионалов:
- Не стоит ограничиваться прочтением пары статей с руководством по самостоятельному изготовлению гаражных ворот. Сейчас на просторах интернета есть очень много подробных видеоуроков и обзоров на эту тему.
- Выбирая материалы для работы, отдавайте предпочтение более легким и современным. Тогда и дальнейшая эксплуатация готовой конструкции не составит труда и не потребует усилий.
Во многих гаражных массивах делают ворота без калиток для удешевления стоимости гаражей. На практике калитка в гараже нужна как минимум по нескольким причинам:
1. Зимой, после снегопада невозможно открыть ворота из-за снега. Калитка находится выше уровня земли и тем самым обеспечивает легкое открытие даже после снегопада.
2. С помощью катилки можно серьезно укрепить ворота от взлома- на ворота приварить внутренние засовы вверх и вниз, тем самым невозможно станет отогнуть угол воротин, как в случае если у вас замки находятся снаружи.
3. Если вам не требуется выгонять машину, вы можете открыть только калитку и тем самым не будете выстужать зимой гараж.
Увеличиваем проем ворот в высоту или в стороны в Самаре, увеличиваем гараж в высоту. Так-же проводим сопутствующие работы: врезка замков любой сложности, окраска, бетонирование полов, отмостка, настил деревянного пола и пр. Имеется генератор-электростанция. опытные сварщики увеличат ваш гараж в любую сторону или во все. Удлиняем, расширяем, также производим другие сопутствубщие работы.
Детаем антиспил ворот и калитки, антивандальную защиту навесных замков (привариваем трубу большого диаметра 219-300мм вокруг проушин замков) и прочие защитные функции..
Мы производим любой ремонт гаражей в Самаре.
Ремонт гаражных ворот в Самаре, врезка и вырезка калиток в воротах в Самаре, Сварочные работы в Самаре, Приваривание ушей для перевозки гаражей, мелкие сварочные работы в Самаре, Сварщик в Самаре, электросварка в Самаре, Сварка с выездом в Самаре недорого, качественно, с гарантией.
Гараж – строение, которому уделяется особое внимание, особенно в плане взломостойкости. А такой элемент, как ворота, должен обладать удвоенной прочностью и надежностью, и конечно, привлекательным внешним видом. Традиционно гаражные ворота – это распашная конструкция из двух створок, навешенные на коробку. Изготовить их своими руками – не проблема, если владеть навыками работы с несложным слесарным инструментом и сварочным аппаратом. Об этом и пойдет речь в статье: о вариантах распашных ворот, о технологии изготовления и нюансах монтажного процесса.
Виды гаражных ворот
Кроме того что распашные ворота для гаража являются традиционными и очень надежными, есть у них и другие преимущества.
- Стоимость конструкции дешевле, чем у всех других моделей.
- Распашную модификацию можно утеплить, используя различные теплоизоляционные материалы.
- Можно установить в ограниченном пространстве.
- Открываться могут наружу или внутрь гаража в зависимости от требований владельца.
- Возможность установки электродвигателя для автоматического открывания.
Единственный большой недостаток – требуется свободное пространство, чтобы открыть створки конструкции. Это иногда проблематично зимой, когда снег наваливает сугробы перед гаражом. Поэтому приходится махать лопатой.
Минус распашных ворот – перед ними приходиться очищать от снега площадку
Кроме распашных ворот в гаражах устанавливают и другие разновидности.
Складные
Это секционный тип ворот, элементы которого устанавливаются вертикально и соединяются между собой шарнирным способом. Крайние секции крепятся, как и распашные, к коробу петлями. Дополнительное крепление – по верхней или нижней направляющей. Изготавливают секции из разных материалов, чаще из алюминиевых сплавов или дерева.
Плюсы конструкции:
- необычный внешний вид,
- удобство открытия и закрытия,
- не занимают в открытом состоянии много места,
- секции по отдельности можно менять, ремонтировать,
- невысокая цена.
Минусы: быстрый износ и низкие защитные функции.
Складные ворота
Подъемно-поворотные
Чисто конструктивно это цельный щит, который собой закрывает весь въездной проем. Для открытия ворота поднимаются и поворачиваются на 90° так, чтобы они оказались вверху в горизонтальной плоскости. Для этого используется система рычагов, редуктор и электродвигатель.
Плюсы модели:
- высокая надежность,
- в открытом виде ворота не занимают никакого места,
- поддаются утеплению,
- поддаются автоматизации.
- требуется высокая точность установки,
- ворота остаются в проеме, уменьшая его высоту на 20-30 см,
- не рекомендуется использовать их интенсивно.
Подъемно-поворотные ворота
Подъемно-секционные
Это конструкция из нескольких секций, расположенных горизонтально и соединенных между собой специальными петлями. С помощью подъемного механизма, находящегося на потолке, ворота поднимаются по направляющим профилям и располагаются горизонтально вдоль потолка. Секции в основном изготавливают из сэндвич-панелей.
Плюсы модели:
- универсальность в плане размеров проема,
- экономия свободного места при открытии,
- неплохая устойчивость к деформациям и механическим нагрузкам,
- полная автоматизация,
- презентабельный внешний вид,
- высокие тепло- и звукоизоляционные качества,
- долгосрочная эксплуатация.
- высокая цена,
- требуется постоянное обслуживание: смазка петель и направляющих, проверка электрики и автоматики,
- низкая взломоустойчивость.
Подъемно-секционные ворота
Рулонные
Свое название эти гаражные ворота получили по способу открытия. Чисто конструктивно – это несколько полос (ламелей), собранных в одно полотно, которое закручивается в рулон. Поэтому в состав ворот входят кроме полотна две направляющие, удерживающие конструкцию в проеме, вал, на который ламели наматываются, и электропривод.
Преимущества:
- компактность,
- приемлемая цена,
- простота монтажа,
- долгосрочная служба,
- презентабельный внешний вид,
- возможность автоматизации.
- практически нулевая взломостойкость,
- нет возможности провести утепление, потому что между ламелями всегда остаются зазоры,
- плохо работают при низких температурах.
Рулонные ворота
Откатные
В этой конструкции одна створка, которая держится на направляющем профиле, расположенном сверху, и упирается снизу в рельс. Открывается устройство откатыванием в сторону вдоль стены.
К плюсам можно отнести:
- функциональность е зависит от сугробов,
- не занимает места при открытии,
- высокая взломостойкость,
- возможность провести автоматизацию.
- быстрый износ роликов,
- ширина стены, вдоль которой смещаются ворота, должна быть больше ширины створки.
Откатные ворота
Технология изготовления распашных гаражных ворот своими руками
Итак, распашные ворота для гаража собой представляют две створки (чаще одинаковые по ширине), которые навешиваются на П-образный короб посредству петель. Поэтому когда ставиться задача – изготовить ворота этого типа, то решается несколько вопросов:
- изготовление створок,
- изготовление короба (рамы),
- монтаж последнего,
- установка створок на раму.
Перед тем как начинать изготовления распашных ворот, нужно определиться с их размерами.
Размеры гаражных распашных ворот
Строгих требований относительно размеров не существует. Главное – чтобы автомобиль мог свободно въехать в гараж, не задев собой ворота. А это позволяет сделать любой проем, ширина и высота которого больше габаритов машины с каждой стороны на 30 см. Но это неудобно особенно для начинающих водителей.
- высота для легковых автомобилей – 2,0-2,2 м, для микроавтобусов – 2,5 м;
- ширина оптимальная 2,5-3 м, максимальная – 5 м.
Стандартные размеры распашных ворот
Подготовка к изготовлению ворот
Требуемые инструменты:
- сварочный аппарат и электроды;
- болгарка с отрезным и шлифовальным диском;
- рулетка, линейка и маркер (мел);
- уровень и уголок.
Требуемые материалы. Внешняя сторона ворот – это листовой стальной лист толщиною 3-4 мм или профнастил толщиною не менее 1,2 мм. Если в конструкции будет использоваться первый материал, тогда весь процесс соединений проводится электросваркой. Если второй, то крепление профнастила к каркасу можно проводить саморезами по металлу.
В качестве материала для сборки каркаса можно использовать или уголок 63х63 мм, или профилированную трубу 40х40 мм толщиною 2-3 мм. Второй вариант дешевле и проще в применении.
Чертеж распашных ворот для гаража из профильной трубы
И последний элемент – петли, которые изготавливаются из стального прутка диаметром минимум 25 мм. Петель должно быть минимум четыре по две на каждую створку.
Теперь, что касается П-образного короба. Состоит он из двух стоек и поперечины (перекладины). Первые можно изготовить из уголка 63х63 или трубы круглого сечения диаметром 80-100 мм, или профилированной трубы сечением не меньше 80х60 мм. Перекладина из тех же материалов. Если запланировано строительство двухэтажного гаража, то в качестве перекладины лучше использовать швеллер №12.
Сборочный чертеж ворот
Изготовление рам для створок
Первый этап – нарезка восьми отрезков материала, приготовленного для сборки рам. Четыре из них должны равняться высоте ворот минус 1-2 см, четыре ширине створок, то есть, половине ширины воротной конструкции минус 2-3 см. К примеру, если общая ширина ворот равна 3 м, значит, необходимо нарезать четыре элемента по 1,48 м.
Выставление рамы на блоках в горизонтальной плоскости
Важный момент – сборка рам должна проводиться на горизонтальной плоскости. Необязательно, чтобы это была ровная площадка, подойдут любого типа подставки, верхние торцы которых выставляются в одной горизонтальной плоскости. Для этого можно использовать кирпичи или блоки. Их устанавливают в углах прямоугольника, длина которого равна высоте створки, ширина ширине секции ворот. На них укладываются соответственно нарезанные отрезки, а затем уровнем проверяются – лежат ли они по горизонту. Отклонения выравниваются подкладкой под блоки тонких дощечек, камешков или листового металла.
Уложенные отрезки фиксируются друг с другом точечной сваркой с точным выставлением соседних элементов между собой под 90°. Для этого используется строительный уголок. Это важный момент, определяющий точные габариты будущей воротной конструкции, которая точно впишется в короб без перекосов и больших зазоров.
Схема ребер жесткости
Две рамы сформированы, теперь необходимо увеличить жесткость конструкции путем установки дополнительных элементов: горизонтальных или вертикальных Если ворота большие, то применяют и те, и другие. Иногда дополняют их косыми элементами. В качестве материала используют уголок или профильную трубу меньшего размера. К примеру, если рамы собирались из трубы 40х40 мм, то для усиления можно использовать 40х20 мм. Дополнительные элементы равномерно распределяются относительно друг друга.
После сборки рам надо проварить стыки с двух сторон и отшлифовать их от окалин и подтеков металла.
Жесткость конструкции рам определяют дополнительные элементы, установленные вертикально и горизонтально
Соединение рамы и стального листа
Из листа железа для каждой створки надо вырезать прямоугольный отрезок. К их размерам есть определенные требования:
- длина отрезков должна быть больше высоты проема ворот на 3-4 см;
- один из прямоугольников по ширине должен быть на 2 см меньше ширины каркаса, а второй больше на этот же размер.
К примеру, если ширина створок – 1,5 м, высота – 2,5 м, то один лист будет размером 1,52х2,54, другой 1,48х2,54 мм.
Теперь по высоте два листа укладываются на рамы так, чтобы их края выступали за пределы каркасной конструкции на 2 см с каждой стороны. Выступы листов будут закрывать зазор между створками и коробом. Что касается ширины, то со стороны петель листы укладываются вровень с профильной трубой. В одной створке лист будут выступать с противоположной стороны на 2 см, в другой, наоборот, его край будет не доходить до края рамы. Это делается для того, чтобы при закрытии ворот выступающий лист закрывал зазор между створками.
Внимание! Листы к раме привариваются точечно от края к центру. После чего производится проварка небольшими отрезками в пределах 3-4 см с шагом 10-15 см.
Крепление листа к раме производится короткими швами
Сборка короба распашных ворот
Размеры короба определяются размерами проема. При этом к длине опорных стоек прибавляется по полметра, которыми конструкция будет утоплена в подготовленные ямы с последующим бетонированием.
Сборка короба производится по идентичной технологии, что и рамы створок, с установкой на кирпичи или блоки. Размеры короба по внутреннему контуру по ширине чуть больше общей ширины створок. Разница составляет 2-3 см. По высоте разница может быть значительной – до 5-6 см. Хотя оптимально – 3-4 см.
Короб для распашных ворот
Монтаж петель
Для этого створки укладываются на П-образный короб с точным расположением в плоскости с формированием зазоров между всеми элементами. Петли в собранном виде прикладываются по месту их требуемого расположения и привариваются: нижние их части к стойкам короба, верхние к раме створок.
Для усиления крепежа можно дополнительно приварить к петлям металлические полоски или арматуру.
Правильная и качественная сварка петлей
Монтаж распашных ворот
В идеале воротный короб надо монтировать в процессе сооружения гаража, когда стены на половину уже подняты из кирпича или блоков. Но в независимости от этого монтаж проводится по одной и той же технологии.
- Выкапываются ямы под стойки глубиною 0,5 м.
- К нижним краям стоек привариваются одна или две поперечины из арматуры или уголка длиною 10-20 см, назначение которых – выполнять функции удерживающих в бетоне элементов.
Подготовка стойки перед бетонированием ямы
- Снизу опор приваривают металлические пластины в виде пятака для упора на грунт.
- Полметровые концы стоек обрабатывают гидроизоляционным составом, к примеру, горячим битумом или закрывают рубероидом.
- Производится установка короба в ямы с точным выставлением в проеме, для чего используется строительный уровень.
- Стойки приваривают к закладным деталям, которые устанавливаются в процессе кладки стены. В качестве закладных часто используют арматуру диаметром 12-16 мм, длиною по 50 см. Шаг укладки – через каждые 6-8 рядов.
- Производится замес бетона из расчета цемент-песок-щебень в соотношении 1:2:2, если марка цемента М400.
- Заливка бетона в ямы с трамбовкой. Это делается не только для того, чтобы уплотнить бетонный раствор, но и для того чтобы выдавить из него воздух, попавший туда в процессе замеса. Воздушные поры – это снижение прочности бетона.
- Навешивать створки на короб можно после того, как бетон схватится и просохнет.
Как сделать ворота с калиткой?
Процесс сборки распашных ворот с дверью точно такой же. Просто в одну из створок вставляются четыре элемента, формирующие проем для двери. Вертикальные устанавливаются во всю высоту, горизонтальные между ними в виде поперечин. Собирается конструкция дверного проема на стадии изготовления рамы под створку.
Расположение двери в воротах со стандартными размерами
Сама дверь изготавливается точно так же, как секции ворот, со сборкой каркаса и установкой металлического листа. Сложность процесса изготовления самой створки, в которой устанавливается дверца, заключается в том, что дверной проем остается незакрытым листом металла, а остальные плоскости надо им закрыть. Все они не будут равными между собой, поэтому каждый участок надо точно замерить, перенести размеры на лист и вырезать их. После чего каждый вырезанный кусок переносится на раму с точечной приваркой по периметру. При этом укладываемые отрезки листов должны стыковаться на дополнительных профилях, которые создают жесткость рамной конструкции.
Чертеж гаражных распашных ворот с калиткой
Размер калитки выбирается с расчетом удобного прохода через нее, а также размерами створки ворот. К примеру, если ширина створки 1,5 м, то ширина калитки не должна превышать 1 м. Что касается высоты, то здесь также учитывается высота ворот и расположение самой двери относительно нижних элементов рамы ворот. При этом максимальная высота расположения – 40 см. Сама же высота двери в пределах 1,8-2,1 м.
Калитка сварная для гаражных ворот
Варианты готовых распашных ворот
Видео — как сделать гаражные ворота своими руками
Заключение
При кажущейся простоте сборочного процесса, необходимо отметить, что изготовление распашных гаражных ворот требует от производителя работ внимания, умение точно провести все замеры и расчеты. При этом нельзя выпускать из рук измерительные инструменты. Небольшое отклонение по форме или размерам может привести к тому, что створки просто не поместятся в раму. Придется производить подгонку по месту, что скажется на ровности элементов.
Подробная информация про
Необходимость калитки в гаражных воротах очевидна. В этом убеждаются владельцы новостроя, в котором плохой пол, установлены символические двустворчатые ворота с отпадающей краской. Поэтому каждый новоиспеченный хозяин такого гаража берется за его модернизацию, делая подвал, выполняя стяжку, устанавливая навес перед входом, обустраивает вентиляцию. Полная переделка касается и гаражных ворот.
В некоторых случаях хозяин заказывает вместо старых хлипких ворот новые, и просит обязательно сделать калитку. Но большинство владельцев усовершенствуют конструкцию доставшегося наследства своими руками и врезают в ворота дверцу, устанавливают надежные замки и запоры, наносят новую краску, утепляют.
Обычные двухстворчатые ворота
Преимущества калитки
Калитка в гараже позволит свободно попасть в помещение без необходимости открывания створок ворот. Это экономит время, делает пользование гаражом более удобным. В зимние периоды, когда температура на улице отрицательная, калитка защитит помещение гаража от выветривания тепла. Порог калиточного проема делают на высоте 20-30 см от пола, что также облегчит доступ в гараж при снежных заметах и сугробах при входе.
Дополнительная дверца сделает пользование гаражом удобным
Как правило, при наличии дополнительного входа в воротах гаража хозяева обустраивают на них внутренние запоры, которые отпираются только изнутри помещения. При этом отпадает необходимость в навесных наружных замках, и в зимнее время не будет стоять вопрос о разогревании замерзшего замочного механизма.
Общие требования к гаражным воротам
После реконструкции гаражные ворота должны отвечать таким требованиям:
- Коробка должна быть надежно закреплена в проеме. Как правило, строители сдают объект с воротами, которые приварены к нескольким металлическим закладным. Это крепление необходимо дополнить несколькими анкерами.
- Петли должны выдерживать высокую нагрузку, так как после утепления и установки дополнительной дверцы вес створок увеличится.
- Поскольку петли обычно навариваются внакладку с наружной стороны конструкции, необходимо приварить к торцам штыри с фиксацией при закрывании в отверстиях в коробке. Эта мера предотвратит возможность вскрытия дверей путем срезания петель.
Штыри в металлической двери
- Гаражные ворота необходимо гидроизолировать пленкой и утеплить, установить нащельники.
- На улице необходимо смонтировать фиксаторы для удерживания створок ворот в открытом положении. При внезапных порывах ветра ворота могут захлопнуться и повредить выезжающую из гаража машину.
Конструкция самодельного фиксатора
- Калитку в гаражных воротах делают такой высоты, чтобы хозяину не пришлось нагибаться при входе и случайно не травмироваться.
- Выбирать место положения дверцы необходимо так, чтобы можно было войти в гараж даже тогда, когда автомобиль стоит плотно к входу. Таким образом, традиционное расположение проема для калитки ближе к центру проема ворот не оправдано. Калиточный проем лучше делать ближе к петлевой стороне одной из створок. При таком расположении всегда будет удобно найти выключатель света на стене у входа, и проход не будет затруднен близко стоящей машиной.
Дверца расположена ближе к петлевой стороне
Технология изготовления
На первый взгляд, врезать дверцу в створку гаражных ворот своими руками не просто. На самом деле, есть простой способ, как сделать в воротах калитку, который можно использовать и при изготовлении ворот с нуля.
Инструмент и материалы
Для начала необходимо подготовить рабочее место и инструменты:
- Инверторный сварочный аппарат. Работать необходимо в маске и защитных рукавицах. В зависимости от толщины металла (обычно 2 мм), покупают электроды соответствующего диаметра.
Сварочный аппарат
- Большая углошлифовальная машина под круг диаметром 150 или 180 мм, набор отрезных кругов.
Отрезные круги
- Дрель со сверлами.
- В зависимости от того, из какого профиля выполнены горизонтальные или вертикальные ребра жесткости створки ворот, необходимо подготовить уголок или трубу с квадратным сечением. Из них будет вариться каркас коробки и калиточная рамка. Учитывая то, что имеющиеся ребра жесткости будут использоваться повторно, подсчитывают количество деталей, которые нужно докупить. Конструктивно коробка своими руками будет состоять из двух длинных горизонтальных профилей, длина которых равна длине створки гаражных ворот, и двух вертикальных стоек, расположенных между горизонтальными ребрами. Их высота равна высоте дверцы. Створка варится из 4-х заготовок, торцы которых подрезаны под 45 градусов.
Ребра жесткости из трубы
- Метровая металлическая линейка, рулетка, угольник, мелок.
- Воротные петли. Если петли продают без крепежных пластин, то их необходимо будет вырезать из листового металла и приварить к петлям самостоятельно.
Петли с приваренными пластинами и без них
- Ручной слесарный инструмент: молоток, металлическая щетка, зубило, струбцины (минимум 2 шт.), керн, крупный напильник.
Работать можно во дворе перед гаражом, положив предварительно на грунт и выровняв по уровню толстые бруски. Сняв нужную половинку гаражных ворот, ее укладывают на бруски тыльной стороной вверх.
Изготовление калитки
Суть данного метода в том, что не нужно снимать обшивочный лист металла со створки ворот. Калитка своими руками монтируется с обратной стороны, и в конце лист обшивки просто разрезается по периметру дверцы с лицевой стороны.
Листовой металл приварен точечной сваркой
- Первым делом необходимо демонтировать внутренние ребра жесткости со створки. Как привило, они приварены точечной сваркой к обшивочному листу. Эту сварку необходимо срезать болгаркой. Дальше работают зубилом и молотком. Обычно эта работа не занимает много времени.
- Счистить ржавчину и старую краску.
- Затем необходимо изготовить каркас калитки для гаража. Для этого отмеряют два длинных и два коротких куска уголка по ширине и высоте дверцы. Торцы заготовок подрезают под углом 45 градусов. Если используется уголок, заготовки отрезают так, чтобы их полка располагалась внутри контура створки. Заготовки выкладывают на ровной поверхности в виде прямоугольника, при необходимости подрезают углы для обеспечения минимального зазора. Стыки прихватывают точечно, промеряют диагонали прямоугольника, и, если все в порядке, выполняют сплошную сварку.
Сборка конструкции
- Затем по высоте дверцы в створке ворот приваривают горизонтальный профиль. Если используются уголки, то их нужно приваривать полкой наружу относительно калиточного проема.
Важно
! Можно устанавливать несущими не горизонтальные, а вертикальные профили.
- На следующем этапе необходимо приготовить прокладки. Для этого используют либо тонкие щепки толщиной 4 мм, либо кусочки пластика. Затем в нужном месте при помощи струбцин через подкладки к горизонтальной перемычке прикручивают каркас створки. Теперь можно приварить нижнюю перемычку, а потом и две боковые.
Сборка каркаса из труб, отрезанных под прямым углом
- Теперь рамка калиточной створки прокладывается прокладками по всему периметру и по внутреннему периметру приваривается к обшивочному листу. Точно так же полностью проваривается каркас коробки, только уже по наружному контуру.
- Затем необходимо перенести контрольные отметки на лицевую сторону створки ворот. Для этого ее поднимают, ставят в вертикальное положение, берут дрель с длинным тонким сверлом по металлу и по углам внутреннего периметра калиточной коробки сверлят 4 сквозные отверстия.
- Получив на лицевой стороне контрольные точки, выполняют разметку. По петлевой стороне мелком проводят линию прямо по полученным отверстиям, а по остальным трем добавляют по 1-1,5 см.
Проверка точности позиционирования деталей
- На следующем этапе необходимо прорезать обшивочный металл по петлевой линии, остальные пока не трогаем. Необходимо приварить петли. Можно положить створку снова в горизонтальное положение, приложить на разрез петли, выровнять при помощи длинной рейки их соосность и прихватить. При этом цилиндр должен располагаться строго по центру разреза.
Ворота изнутри
- Теперь остается навесить ворота на место и болгаркой прорезать оставшиеся 3 стороны по разметке с припуском. Калитка своими руками готова.
Готовая калитка
Теперь необходимо полностью проварить петли, установить замок (лучше всего ригельный обратной тяги), установить боковые штыри против срезания петель, почистить, покрыть краской и утеплить ворота.
Видео с похожей технологией изготовления калитки:
Это способ позволяет быстро и аккуратно изготовить калитку гаражных ворот.
В этой статье мы расскажем, как сделать калитку в гаражных воротах секционного типа. Вы узнаете о нюансах установки и при необходимости сможете выполнить монтаж самостоятельно. Процесс модификации рассмотрим на примере ворот от DoorHan.
ВАЖНО!
Гораздо проще и дешевле купить автоматические секционные ворота в комплекте с калиткой под ключ сразу. Учтите этот факт, если на момент прочтения статьи только планируете заказать установку удобной и функциональной конструкции.
Как врезать калитку в секционные ворота
Чтобы врезать калитку в секционные ворота, вам понадобятся:
- перчатки;
- очки;
- рейка (длина — 1,8–2 м);
- угольник;
- клепальный инструмент;
- резиновые жгуты (нужны для сжатия сэндвич-панелей);
- лекало для резки заготовок под углом в 45°;
- ножовка по металлу;
- напильник;
- киянка (резиновый молоток);
- сверла;
- дрель;
- электролобзик;
- карандаш;
- линейка;
- рулетка.
Все инструменты вы сможете купить по доступным ценам на любом строительном рынке Москвы или в специализированном магазине.
Также необходимы детали дополнительной входной конструкции. В комплектацию входят:
- ловитель, предотвращающий деформацию створки;
- козырек для защиты от дождя;
- обрамление для краев, сделанное из алюминиевого профиля;
- металлические ручки;
- помещенный в специальных усиленный корпус замок;
- промежуточные петли из нержавеющей стали;
- механизм доводки;
- заклепки;
- петли для фиксации калитки в проеме;
- П- и Ц-образные профили из алюминиевого сплава.
Изображение № 1: профили для калитки секционных ворот
Как правильно сделать калитку в секционных воротах
Сделать калитку в секционных воротах правильно вам поможет размещенная ниже инструкция. Внимательно прочитайте и соблюдайте все ее требования в процессе монтажных работ.
Этап 1. Подготовка
Подготовка к монтажу калитки заключается в нарезке профилей. Действуйте по следующей схеме.
Этап 2. Вырезание проема
Общая схема монтажа калитки выглядит так.
Изображение № 5: схема монтажа калитки, особенности размещения
Действуйте следующим образом.
Этап 3. Сборка и установка калитки
Подробная инструкция по встраиванию калитки в секционные ворота.
- Установите стальной Ц-профиль в камеру нижнего несущего профиля по всей длине. Закрепите Ц-профиль заклепками. Шаг — не более 500 мм.
Изображение № 8: установка стального Ц-профиля в камеру нижнего несущего профиля
- Зафиксируйте нижний несущий алюминиевый профиль к сэндвич-панели. Для этого просверлите отверстия (диаметр — 4,2 мм) с шагом не более 500 мм и заклепайте конструкцию.
- Поместите стальной Ц-профиль в верхний усилитель. С его обратной стороны установите ригель. Схема сборки верхнего и нижнего профилей выглядит так.
Изображение № 9: сборка и установка верхнего и нижнего профилей
Если боковые опоры одинарные, то m и n равны 75 мм, а если двойные — 150 мм.
- Разместите собранную конструкцию на фрагментах верхней панели калитки. Для фиксации просверлите отверстия (диаметр — 13,2 мм) и прикрутите саморезы. Не забудьте одеть пластиковые заглушки.
Изображение № 10: крепление верхнего профиля калитки
- На боковые стороны верхнего усилителя установите крышки. Для фиксации используйте саморезы или заклепки.
Изображение № 11: установка заглушек на верхний усилитель
- Переверните верхнюю панель. Симметрично относительно центра калитки вставьте в паз ригеля усилитель карниза. Прикрутите деталь саморезами.
Изображение № 12: монтаж усилителя карниза
- Установите малый карниз в пазы. На боковые стороны оденьте крышки и зафиксируйте их при помощи саморезов или заклепок.
Изображение № 13: монтаж малого карниза
Прикрепите карниз к краям сэндвич-панелей заклепками.
Изображение № 14: фиксация карниза
- Нарежьте боковые Ц-профили, ориентируясь по серединам стыков между панелями. Установите детали. Не забывайте оставлять зазоры.
Изображение № 16: монтаж боковых Ц-профилей
Выровняйте левую и правую стороны по рейке. После этого зафиксируйте профили с внешней стороны полотна заклепками.
- Укоротите нижнюю сэндвич-панель калитки на 5 см. Прикрепите к сегменту Ц- и П-профили. Установите панель в проем калитки. Не забудьте оставить 10-миллиметровый зазор.
Изображение № 19: установка нижней сэндвич-панели калитки
- Прикрепите Ц- и П-профили к средним панелям. Поместите их в проем калитки.
Изображение № 20: монтаж средних секций
- Отрежьте от верхней сэндвич-панели полосу шириной 130 мм. Подготовьте П- и Ц-профили. Разместите на расстоянии 52 мм от края панели закладной элемент для монтажа доводчика. Просверлите 4 отверстия для его крепления. Вставьте закладной элемент в панель и зафиксируйте профили. Установите секцию в проем.
Изображение № 21: монтаж верхней сэндвич-панели калитки
- Выровняйте профили по линейке и зафиксируйте их заклепками. Снимите все сегменты калитки, кроме нижнего. Прикрепите его к петле при помощи заклепок. Поочередно установите и зафиксируйте остальные секции.
Изображение № 22: крепление панелей калитки к петлям
- Разметьте и просверлите отверстия под промежуточные петли. Установите соединительные элементы.
Изображение № 23: монтаж соединительных петель
Поставьте ворота на стапель для монтажа калитки. Выровняйте полотно по торцевым крышкам. Добейтесь плотного прилегания панелей друг к другу при помощи прижима.
Вырежьте алюминиевый профиль порога. Для расчета длины отнимите от ширины проема ширину боковых профилей. Вставьте порог в паз несущего профиля.
Изображение № 15: монтаж профиля порога
Нарежьте длинную заготовку на петли и просверлите в них отверстия (диаметр — 4,2 мм). Зафиксируйте нижний крепежный элемент с учетом бокового зазора (2 мм).
ОБРАТИТЕ ВНИМАНИЕ!
Для панелей калиток нужны петли с четырьмя зубьями, а для секций ворот — с пятью.
Изображение № 17: петли для калитки секционных ворот
Нижние и верхние крепежные элементы устанавливают с 10-миллиметровыми зазорами. Остальные фиксируют вплотную.
Изображение № 18: особенности установки петель
Калитка готова. После проверки работоспособности конструкции приступайте к установке доводчика, замка и другой фурнитуры.
Самому сделать калитку в воротах гаража или довериться профи
Как видите, сделать калитку в воротах гаража секционного типа — очень сложная задача, с которой справится далеко не каждый умелец. Если не уверены в своих силах, обратитесь к профессионалам. Так вы получите качественно установленную калитку и гарантию на выполненную работу.
Гаражные ворота с калиткой служат для того чтобы пройти в помещение, не распахивая полностью створки. Например, когда необходимо что-то взять из гаража или поработать в нем, не запуская мороз, зимой.
Типы ворот
Большинство автолюбителей, чтобы укрыть от непогоды своего четырехколесного «друга», строят сами, нанимают строителей или покупают уже готовый гараж под ключ. Во всех подобных строениях установлены ворота для гаража, но не всегда в них предусматривается дверь.
Поэтому некоторые автолюбители сами мастерят проемы в уже готовых воротах и встраивают в них дверцы. Такое вмешательство нарушает установленную конструкцию (ее целостность), но все зависит от вида применяемых ворот.
Их существует 5 типов:
- распашные;
- откатные;
- секционные;
- роллетные;
- подъемно-поворотные.
В двух первых и в последнем установить калитку для гаража не представляет особого труда.
Они состоят из 1 или 2 полотен, в которых необходимо выполнить дополнительный проем.
Затем в гаражных воротах добавляют вертикальные и горизонтальные элементы для усиления и навешивают дверцу. В изделиях остальных типов это сделать довольно сложно, поэтому их рассматривать мы не будем.
Известно, что любые ворота для гаража выполняют по стандартным чертежам из металла, хотя сейчас изредка применяют металлопластик. Главным требованием к такой конструкции является ее полная и надежная защита от посягательств посторонних.
Способы установки калитки
Все обычные конструкции выполняют из:
- швеллера;
- каркаса из обычного уголка;
- толстых прутьев, где для обшивки применяют 3-миллиметровую сталь;
- труб.
Немногие водители задумываются о массе будущего «шедевра», а проблемы с этим почти всегда возникают уже непосредственно при монтаже. Например, коробка, выполненная из швеллера, имеет большой вес. Выполнить дверь в таких условиях (огромная масса) одному очень трудно.
В этом случае необходимо переделать одну из сторон полностью, вырезав в ней кусок обшивки и усилив ее дополнительными элементами, чтобы установить дверцу для гаража. Желательно иметь помощника, чтобы можно было работать с такой тяжестью.
Есть всего 3 типа размещения двери:
- На краю створки — популярный и традиционный вариант. Запирание происходит в месте схождения ворот.
- Посередине створки. При этом жесткость всей конструкции почти не уменьшается, да и отдельный запор сделать легче.
- В зоне петель — очень редкий способ. При этом можно поставить соосные петли.
Дверцы для гаража различают не только по размещению, но и по:
- открыванию — наружу или внутрь;
- способу укрепления дверной рамы — с разрезанием элемента ворот или без него.
Некоторые любители, не желая иметь порог, разрезают нижнюю трубу или уголок, собирают неполную коробку (без нижнего элемента) и вваривают ее в разрез. Это намного уменьшает прочность всей конструкции.
Для ее увеличения необходимо добавить ребра жесткости — установить 2 вертикали или 1 горизонталь и приварить к ним раму с проемом.
Лучше ничего не резать, а собрать полную (или неполную) коробку и приварить на нижний уголок. Прочность почти не пострадает и будет соблюдена полностью
Для нормальной работы нужны следующие инструменты:
- аппарат сварочный с маской и электродами;
- большая болгарка и круги для нее
- уголок металлический, квадратная или простая труба, прутья (зависит полностью от использованного при изготовлении створок материала);
- угольник;
- рулетка;
- молоток и зубило;
- мел или чертилка для разметки;
- петли навесные.
Работа с распашной конструкцией
Вы достали материалы и инструмент, начертили план и готовы приступить к осуществлению плана, но не представляете, как сделать это. Помните, что легче всего выполнить дополнительный проем на стадии постройки ворот, а если вы купили гараж под ключ, то дело обстоит сложнее.
Дверь на стадии постройки.
Для выполнения этого варианта необходимо в месте установки калитки приварить дополнительные усиливающие элементы — балки вертикальные и горизонтальные. Для разработки плана таких ворот надо в их чертеж ввести недостающие элементы, коробку дверцы и саму калитку.
Необходимо, сверяясь с планом, при сборке каркаса приварить вертикали или горизонтали, укрепить на них раму дверцы и наварить петли. Затем нужно выполнить обшивку ворот и установить их. Далее необходимо собрать дверь, приварить к ней ответные части петель, запоры и повесить на место.
Как поступить, если приобрели гараж под ключ
Можно пойти 2 путями:
- По инструкции — нужно снять сторону, где будет сделан проем, и всю обшивку с нее.
- Легким путем — вырезать часть покрытия по собственноручно сделанному чертежу.
Рассмотрим оба варианта.
При работе по инструкции за основу берется документ по изготовлению проема в воротах, распространенный в малых и больших мастерских и на заводах. Он предписывает перед вырезкой части створки снять с нее всю обшивку. Почти всегда:
- лист металла приваривается к уголку, трубе или другому материалу, применяемому в качестве каркаса;
- обшивка прихватывается не по периметру, а в некоторых местах
Для ее снятия надо молотом и обычным зубилом удалить швы или подрезать УШМ места прихваток. После этой работы по демонтажу обшивки следует отложить ее куда-нибудь, а затем выполнить коробку и сварить саму дверь.
Соблюдая размеры, указанные в имеющимся чертеже, разметьте нижнюю часть створки или вырежьте кусок (если нужно).
- Укладывают створку на землю или спецстол.
- Собирают полную или неполную коробку из труб или угольников. Для плотного прилегания новой дверцы уголок обязательно выполняется с выпуском.
- По размеру проема изготавливают саму дверь из тех же материалов (уголка, труб) так, чтобы при вставке ее в коробку со всех сторон оставался промежуток в 3–5 мм.
По окончании вышеописанных каркасных работ можно переходить к установке обшивки. Для этого необходимо выполнить разметку будущего проема, выдерживая точные размеры (по чертежу). Затем надо отрезать уже ненужные детали от листа обшивки, если он полностью сплошной. Вырезанный кусок оставляется на заготовку для покрытия двери.
Если створка набрана из нескольких элементов, придется их комбинировать.
Установку петель производят так:
- тщательно измерив, калитку вставляют на место, подкладывая снизу, сверху и по бокам вкладыши;
- после этого петли приваривают к ней и к створке;
- поднимают и навешивают половину готовых ворот;
- монтируют запорный механизм.
Есть и более легкий способ изготовления калитки, при котором обшивка не снимается. В ней сразу вырезается проем на 6–10 мм больше габаритов двери. Далее (для прочности) устанавливают дополнительные вертикали или горизонтали, выполняют коробку и саму дверь. В конце приваривают петли и монтируют дверь.
Времени при этом способе затрачивается меньше, однако, уходит больше электродов. Если при вырезании проема будет случайно допущена ошибка, это будет трудно исправить.
Проем в воротах других типов
Калитка нужна и в откатных, и в подъемно-поворотных конструкциях. Правда, можно немного отодвинуть их (или поднять) и войти, но частое использование механизма приведет к износу роликов, шестерней, цепей или других элементов системы и соответственно к быстрой порче.
Отличие откатных систем от распашных состоит в том, что у некоторых таких конструкций снизу стоит цельный швеллер или профиль, а роликовые каретки крепятся непосредственно на него. Нарушать целостность этой конструкции никак нельзя.
Для создания проема есть 2 варианта:
- Сделать его над швеллером, который будет служить основанием дверной коробки.
- Удлинить готовые ворота дополнительными вертикальными и горизонтальными элементами и выполнить дверь там.
Второй вариант ведет к увеличению габаритов, что может оказаться неприемлемо для окружающих. Он обойдется намного дороже первого, ведь придется закупить обшивку для дополнительной части. Тем более что эта часть окажется «в воздухе», ведь под ней не будет роликов.
Поэтому рассмотрим первый вариант. Его изготовление ничем не отличается от проекта для распашных ворот.
Надо вырезать дыру в их покрытии, усилить конструкцию, сделать коробку, дверцу и обшить ее, а затем приварить петли и установить дверь.
В подъемно-поворотных конструкциях все зависит от расположения механизма — посередине или по бокам. Выбирается место для проема и выполняется все в точности как описано выше для распашного варианта.
Отличие состоит лишь в установке более надежных запоров, чтобы при поднятии ворот калитка случайно не открылась и не покалечила кого-нибудь, ведь она будет висеть у вас над головой.
Недостатки и преимущества
Все дополнительные усиливающие элементы (балки, вертикали и горизонтали) нужно вставлять с внутренней части ворот. Запор калитки не должен уступать по надежности замку основной части. Если это будет не так, злоумышленники смогут легко проникнуть в гараж и оставить вас без аккумулятора, покрышек или самой машины.
Основные преимущества заключаются в следующем:
- нет нужды поднимать, открывать или откатывать створки при входе;
- калитку открыть намного быстрее, а ее ширины хватит, чтобы вынести какую-нибудь вещь;
- если запор на дверце надежный, можно какими-либо дополнительными механизмами (распорки, «полицейский замок») полностью блокировать створки изнутри;
Зимой ключ в различных навесных замках бывает невозможно провернуть — замерзает смазка. Для открывания надо прогреть механизм. Установив запор внутри, вы избавитесь от проблемы и откроете дверь даже в лютый мороз.
Недостатки следующие:
- наличие новых механизмов (петли, запоры), которым необходим дополнительный уход;
- меньшая надежность по сравнению с цельным полотном;
- дополнительные затраты на изготовление.
Встраивание калитки придает воротам законченный вид и намного расширяет их функции.
Распашные будут наилучшим выбором для владельца гаража, который ценит высокую надежность за низкую цену. Именно такая конструкция позволит автолюбителю быть спокойным за оставленного в гараже железного коня и максимально сэкономить при этом. И что еще немаловажно – такие ворота легче всего смонтировать и установить самостоятельно.
Как выглядят распашные ворота
Самая простая конструкция распашных ворот для гаража состоит из:
- рамы по размеру дверного проема;
- двух створок;
- петель;
- фурнитуры – замков, ручек, систем сигнализации и различных ограничителей, удерживающих ворота в нужном положении.
Очень часто в одной из створок располагают . Также для удобства пользования ворота оснащают автоматикой с дистанционным управлением, позволяющей открывать двери, не выходя из машины. Чаще всего распашные гаражные ворота делают металлическими – из профиля сваривают каркас рамы, на него наваривают петли и дверное полотно из стального листа толщиной 3–5 мм. Если безопасность для автовладельца не так важна, стальные листы заменяют на профлист, панели или дерево.
Со временем дверцы на распашных воротах могут начать провисать. Чаще всего такое случается из-за слабых петель. Поэтому перед покупкой комплектующих для гаражных ворот необходимо просчитать массу створок в сборе и выбрать петли с запасом по прочности.
Как сделать распашные ворота своими руками

Убедитесь, что перед гаражом хватает места для автомобиля при полностью открытых створках. Когда на бумаге все будет учтено, приготовьте следующие материалы:
- профильную трубу сечением 60х40 мм для каркаса дверного проема;
- уголок для изготовления каркаса створок;
- стальные листы толщиной до 5 мм;
- петли;
- всю необходимую фурнитуру.
Также вам будут нужны инструменты:
- строительный уровень;
- сварочный аппарат;
- болгарка;
- рулетка.
Если ворота будут оснащены автоматикой, заранее подберите комплект оборудования и продумайте электрическую проводку до места монтажа.
Отдельно позаботьтесь о приобретении средств защиты – маски и костюма сварщика, защитных очков и респиратора, перчаток.
При работе с болгаркой и сварочным аппаратом существует большой риск повредить глаза, поэтому ни в коем случае не пренебрегайте всеми необходимыми средствами защиты.
Делаем металлический каркас дверного проема

Свариваем каркас створок

Для придания всей конструкции необходимой жесткости раму усиливают диагональными элементами. Как правило, диагональные детали идут от мест крепления верхних петель и сходятся вместе внизу по центру ворот.

При желании в одной из дверей устраивают калитку.
По окончании сварочных работ на каркасе следует отшлифовать и закрасить все швы. В таком случае заусенцы на швах не будут мешать свободному ходу дверей, а места сварки не будут ржаветь.
Приваривание петель и навешивание створок ворот

Если створки в сборе очень тяжелые, навешивать их лучше в горизонтальном положении. В таком случае каркас проема после изготовления прикрепляют к стенам гаража в последнюю очередь.
Автоматические распашные ворота

- увеличенный ресурс работы петель;
- стабильную нагрузку на несущий каркас;
- плавную работу при любых погодных условиях.
Чем выше ворота и значительнее вес створок, тем больше необходимости в оснащении ворот автоматикой, тем более, если воротами регулярно пользуются женщины.
Автоматические ворота удобны тем, что запирать их вручную нет необходимости. Автоматика блокирует любые попытки открывания дверей руками до поступления сигнала на датчик управления. Минусом в этой системе является зависимость работы от наличия электрического тока. Без света механика просто не будет срабатывать. Для решения проблемы устанавливают систему разблокировки. Чаще всего она идет как дополнительная опция к комплекту привода. Альтернативой может послужить подключение автоматики к источнику резервного питания – аккумулятору или генератору.
В настоящее время распространены два вида приводов для автоматических распашных ворот – рычажный и линейный. Последний предпочтительнее, так как рассчитан на большой вес створок и сильные порывы ветра.
Покраска и утепление ворот

Для большинства автолюбителей наличие утепления в гараже является необходимостью, чтобы все работы по обслуживанию автомобиля проводились в нормальных температурных условиях. К тому же в гараже часто устраивают мастерскую. В качестве утеплителя для распашных гаражных ворот обычно используют пенопласт, минеральную вату, войлок, пробковые плиты, пеноизол, экструдированный полистирол.
После установки фурнитуры, утепления и покраски распашные гаражные ворота можно считать полностью готовыми.
Самостоятельное изготовление гаражных распашных ворот — видео
В этой статье мы расскажем, как сделать калитку в гаражных воротах секционного типа. Вы узнаете о нюансах установки и при необходимости сможете выполнить монтаж самостоятельно. Процесс модификации рассмотрим на примере ворот от DoorHan.
ВАЖНО!
Гораздо проще и дешевле купить автоматические секционные ворота в комплекте с калиткой под ключ сразу. Учтите этот факт, если на момент прочтения статьи только планируете заказать установку удобной и функциональной конструкции.
Как врезать калитку в секционные ворота
Чтобы врезать калитку в секционные ворота, вам понадобятся:
- перчатки;
- очки;
- рейка (длина — 1,8–2 м);
- угольник;
- клепальный инструмент;
- резиновые жгуты (нужны для сжатия сэндвич-панелей);
- лекало для резки заготовок под углом в 45°;
- ножовка по металлу;
- напильник;
- киянка (резиновый молоток);
- сверла;
- дрель;
- электролобзик;
- карандаш;
- линейка;
- рулетка.
Все инструменты вы сможете купить по доступным ценам на любом строительном рынке Москвы или в специализированном магазине.
Также необходимы детали дополнительной входной конструкции. В комплектацию входят:
- ловитель, предотвращающий деформацию створки;
- козырек для защиты от дождя;
- обрамление для краев, сделанное из алюминиевого профиля;
- металлические ручки;
- помещенный в специальных усиленный корпус замок;
- промежуточные петли из нержавеющей стали;
- механизм доводки;
- заклепки;
- петли для фиксации калитки в проеме;
- П- и Ц-образные профили из алюминиевого сплава.
Изображение № 1: профили для калитки секционных ворот
Как правильно сделать калитку в секционных воротах
Сделать калитку в секционных воротах правильно вам поможет размещенная ниже инструкция. Внимательно прочитайте и соблюдайте все ее требования в процессе монтажных работ.
Этап 1. Подготовка
Подготовка к монтажу калитки заключается в нарезке профилей. Действуйте по следующей схеме.
Этап 2. Вырезание проема
Общая схема монтажа калитки выглядит так.
Изображение № 5: схема монтажа калитки, особенности размещения
Действуйте следующим образом.
Этап 3. Сборка и установка калитки
Подробная инструкция по встраиванию калитки в секционные ворота.
- Установите стальной Ц-профиль в камеру нижнего несущего профиля по всей длине. Закрепите Ц-профиль заклепками. Шаг — не более 500 мм.
Изображение № 8: установка стального Ц-профиля в камеру нижнего несущего профиля
- Зафиксируйте нижний несущий алюминиевый профиль к сэндвич-панели. Для этого просверлите отверстия (диаметр — 4,2 мм) с шагом не более 500 мм и заклепайте конструкцию.
- Поместите стальной Ц-профиль в верхний усилитель. С его обратной стороны установите ригель. Схема сборки верхнего и нижнего профилей выглядит так.
Изображение № 9: сборка и установка верхнего и нижнего профилей
Если боковые опоры одинарные, то m и n равны 75 мм, а если двойные — 150 мм.
- Разместите собранную конструкцию на фрагментах верхней панели калитки. Для фиксации просверлите отверстия (диаметр — 13,2 мм) и прикрутите саморезы. Не забудьте одеть пластиковые заглушки.
Изображение № 10: крепление верхнего профиля калитки
- На боковые стороны верхнего усилителя установите крышки. Для фиксации используйте саморезы или заклепки.
Изображение № 11: установка заглушек на верхний усилитель
- Переверните верхнюю панель. Симметрично относительно центра калитки вставьте в паз ригеля усилитель карниза. Прикрутите деталь саморезами.
Изображение № 12: монтаж усилителя карниза
- Установите малый карниз в пазы. На боковые стороны оденьте крышки и зафиксируйте их при помощи саморезов или заклепок.
Изображение № 13: монтаж малого карниза
Прикрепите карниз к краям сэндвич-панелей заклепками.
Изображение № 14: фиксация карниза
- Нарежьте боковые Ц-профили, ориентируясь по серединам стыков между панелями. Установите детали. Не забывайте оставлять зазоры.
Изображение № 16: монтаж боковых Ц-профилей
Выровняйте левую и правую стороны по рейке. После этого зафиксируйте профили с внешней стороны полотна заклепками.
- Укоротите нижнюю сэндвич-панель калитки на 5 см. Прикрепите к сегменту Ц- и П-профили. Установите панель в проем калитки. Не забудьте оставить 10-миллиметровый зазор.
Изображение № 19: установка нижней сэндвич-панели калитки
- Прикрепите Ц- и П-профили к средним панелям. Поместите их в проем калитки.
Изображение № 20: монтаж средних секций
- Отрежьте от верхней сэндвич-панели полосу шириной 130 мм. Подготовьте П- и Ц-профили. Разместите на расстоянии 52 мм от края панели закладной элемент для монтажа доводчика. Просверлите 4 отверстия для его крепления. Вставьте закладной элемент в панель и зафиксируйте профили. Установите секцию в проем.
Изображение № 21: монтаж верхней сэндвич-панели калитки
- Выровняйте профили по линейке и зафиксируйте их заклепками. Снимите все сегменты калитки, кроме нижнего. Прикрепите его к петле при помощи заклепок. Поочередно установите и зафиксируйте остальные секции.
Изображение № 22: крепление панелей калитки к петлям
- Разметьте и просверлите отверстия под промежуточные петли. Установите соединительные элементы.
Изображение № 23: монтаж соединительных петель
Поставьте ворота на стапель для монтажа калитки. Выровняйте полотно по торцевым крышкам. Добейтесь плотного прилегания панелей друг к другу при помощи прижима.
Вырежьте алюминиевый профиль порога. Для расчета длины отнимите от ширины проема ширину боковых профилей. Вставьте порог в паз несущего профиля.
Изображение № 15: монтаж профиля порога
Нарежьте длинную заготовку на петли и просверлите в них отверстия (диаметр — 4,2 мм). Зафиксируйте нижний крепежный элемент с учетом бокового зазора (2 мм).
ОБРАТИТЕ ВНИМАНИЕ!
Для панелей калиток нужны петли с четырьмя зубьями, а для секций ворот — с пятью.
Изображение № 17: петли для калитки секционных ворот
Нижние и верхние крепежные элементы устанавливают с 10-миллиметровыми зазорами. Остальные фиксируют вплотную.
Изображение № 18: особенности установки петель
Калитка готова. После проверки работоспособности конструкции приступайте к установке доводчика, замка и другой фурнитуры.
Самому сделать калитку в воротах гаража или довериться профи
Как видите, сделать калитку в воротах гаража секционного типа — очень сложная задача, с которой справится далеко не каждый умелец. Если не уверены в своих силах, обратитесь к профессионалам. Так вы получите качественно установленную калитку и гарантию на выполненную работу.
Эксплуатация гаража не ограничивается стоянкой машины. Частые визиты могут быть связаны с наличием подвала или мастерской. Каждый раз открывать полностью тяжелую конструкцию весьма неудобно. Гораздо практичней установить гаражные ворота с калиткой. Об особенностях проектирования и возможности переделать уже имеющиеся ворота пойдет речь далее.
Особенности ворот с калиткой
По достоинству оценить преимущества ворот с калиткой можно в любое время, когда нет необходимости пользоваться машиной. Особенно актуальна конструкция в зимний период. Тому есть две причины:
- Не придется расчищать заносы из снега перед металлическими воротами.
- Открывать при минусовых температурах навесной гаражный замок бывает сложно. На калитке обычно стоит встраиваемый замок, и справиться с ним гораздо легче.
Калитка в створке гаражных ворот заметно снижает жесткость конструкции, поэтому установка дополнительного усиления обязательна. Для этого чертеж гаражных ворот нуждается в усовершенствовании, в нем необходимо предусмотреть наличие вертикальных и горизонтальных балок. Оптимально, когда элементы усиления совпадают размерами с воротами.
Очередной важный момент при создании или модернизации схемы металлических ворот — наличие балок с обеих сторон калитки, как со стороны замка, так и со стороны петель. Не стоит снижать бдительность и на этапе оборудования калитки замком. По своей надежности он не должен уступать уровню замков для гаражных ворот.
Замечание!
Оборудование калитки неразрывно связано с установкой дополнительных элементов конструкции. Соответственно, это влечет увеличение общего веса. Поэтому, чтобы облегчить процесс открытия и закрытия, стоит заранее продумать, какие петли подойдут оптимально.
Интересный пример гаража с калиткой фото далее:
Разнообразие конструкций
Моделей ворот с калиткой несколько. Изучив возможные способы обустройства, определиться с подходящей гаражной конструкцией будет легче. Существует три варианта расположения калитки в створке:
- Традиционно дополнительный вход оборудуют по принципу, когда запирание калитки проходит в зоне стыка гаражных створок.
- Практичностью обладает модель, в которой калитку вырезают посередине створки. Среди преимуществ — меньше всего страдает жесткость конструкции гаражных ворот, а закрывать ее становится наоборот легче.
- Лишь изредка можно встретить металлические гаражные ворота, на которых калитка расположена в районе петель. Когда требуется открыть створку, дополнительная дверь в гараж должна находиться в закрытом состоянии.
Помимо места на створке, различается и направление открытия. Классический вариант предполагает открытие наружу. Но если гараж свободный, можно сконструировать калитку с открытием внутрь.
Еще одно поле для творческого подхода — установка замков. Иногда по гаражным воротам сложно понять, каким образом они закрываются. Секрет прост — металлическая конструкция оснащена автоматическими замками с дистанционным управлением.
Внимание!
Подобная система защиты предусматривает контроль над состоянием заряда, иначе гаражные ворота просто не смогут открыться.
Как видите, приступая к созданию чертежа, есть над чем поразмыслить:
- расположение калитки;
- направление открытия;
- наличие балок, усиливающих жесткость;
- какие врезать замки;
- система маскировки;
- запасные варианты вскрытия;
- надежность петель, способных выдержать значительный вес гаражных ворот.
Замеры и создание чертежа
Перед составлением чертежа необходимо определить оптимальные размеры гаражных ворот. Основные параметры выбирают с учетом следующих требований:
- Минимальная ширина проема отталкивается от размеров авто и превышает их на 0,3 м с каждой стороны. Большая величина способствует удобному въезду, меньшая создает риск порчи машины.
- Ширина проема ограничивается габаритами гаража. От ворот до стены, перпендикулярной въезду, должен оставаться промежуток не менее 0,8 м.
- Для легкового авто достаточно высоты гаражных ворот в пределах 2,0-2,2 м. Владельцам микроавтобусов стоит позаботиться о более высоком проеме, порядка 2,5 м.
Приступая к созданию чертежа, учитывайте, что створки гаражных ворот меньше внутренних габаритов рамы. Небольшой зазор способствует удобному открытию конструкции.
Чертеж можно создать самостоятельно с нуля или воспользоваться готовой схемой, изменив отдельные параметры в соответствии с собственными замерами.
Совет!
Для работы удобно иметь несколько эскизов, описывающих отдельные элементы гаражных ворот.
Создание чертежа начинают с прорисовки рамы. Она может состоять из двух одинаковых элементов — внешней и внутренней части, которые соединены между собой перемычками. Еще один вариант представлен на фото, когда одиночная рама оснащена специальными крепежами для монтажа.
Затем приступают к прорисовке каркаса для створок. Данные чертежа учитывают все нюансы, от места расположения калитки и балок усиления, до точки монтажа петель, замков и ручек. Пример грамотного чертежа приведен ниже:
Не забудьте о зазорах между каркасом створок и рамой гаражных ворот, эти миллиметры играют очень важную роль в процессе эксплуатации металлической конструкции.
На основе имеющегося чертежа делают расчет потребности в материалах. Наиболее подходящим считается следующий набор:
- рама гаражных ворот формируется из стального уголка толщиной 65 мм;
- каркас для створок обладает меньшей мощностью, для него подойдет металлический уголок сечением 50 мм или профильная труба аналогичных параметров;
- обшивать конструкцию гаражных ворот с калиткой принято листовой сталью, минимальная толщина начинается с 2 мм.
Чем толще берется материал, тем большей прочностью характеризуются гаражные ворота, но и вес их растет пропорционально. Говорить о надежной конструкции можно, когда толщина стали превышает 3 мм. Если гараж не предназначен для стоянки дорогого авто, а служит лишь для хозяйственных целей, в качестве обшивки ворот можно использовать легкий профнастил.
Нюансы крепления и меры защиты
Суммируя вес всех элементов гаражной конструкции с калиткой, следует понимать, что результат получится внушительный. Поэтому следует позаботиться о беспрепятственном открытии ворот. Монтаж конструкции идет на шарниры, облегчить их движение способны подшипники.
Расположение петель также имеет значение. Внешнее крепление не отличается надежностью, гораздо практичней поставить петли изнутри. Если шарниры находятся снаружи, необходимо продумать дополнительные меры защиты, чтобы гаражные ворота не упали при попытке срезать петли.
Важным моментом обустройства калитки для гаража своими руками является подбор замков. По своим конструктивным особенностям и способу установки запорная система бывает:
- встроенной (врезанной);
- навесной;
- накладной;
- раздвижной.
Важно!
Внимание заслуживает не только замок, но и способ крепления к гаражным воротам. По правилам безопасности, точки фиксации изнутри не должны быть видны снаружи.
Актуальным вариантом считаются накладной или врезной защитный механизм. Поэтому, если ворота с калиткой оснащены навесным экземпляром, его лучше заменить усовершенствованной моделью.
Модернизация готовых гаражных ворот
Являясь владельцем гаража, где ворота не оснащены калиткой, менять их на новую конструкцию совсем не обязательно. Недочет вполне реально исправить. Основные шаги процесса по обустройству готовых гаражных ворот калиткой:
- Обшивка демонтируется. Для этого болгаркой срезаются сварочные прихватки, при необходимости швы удаляются молотком и зубилом.
- Готовится коробка для калитки из металлического уголка.
- На обшивке вырезается проем согласно чертежу.
- Каркас калитки соединяется с вырезанной обшивкой гаражных ворот.
- Оставшийся элемент стальной обшивки крепится на коробку створки.
- На створку и калитку навариваются петли, после чего калитка устанавливается на гаражные ворота.
- Можно переходить к монтажу запорных механизмов.
Сделанный проем значительно упростит задачу попадания внутрь гаража без необходимости пользования машиной. Это особенно удобно, если помещение используется в качестве мастерской или хранения бытовых предметов.
Наличие калитки предполагает монтаж дополнительных балок усиления. Также следует тщательно подобрать замки, иначе прочность стали не спасет от угона. Запорная система должна быть одинаково надежна на гаражных воротах и непосредственно калитке. Узнать детали, как сделать калитку в гаражных воротах видео:
Приобрести добротную гаражную конструкцию в наше время – удовольствие не из дешевых. Ворота для гаража своими руками сделать дешевле, но необходимы определенные знания и умения. Также желательно иметь навык сварочных работ. Поэтому, как сделать ворота для гаража своими руками, – вопрос, в котором нужно разобраться досконально. А вот тогда можно уже будет и приступать к выполнению поставленной задачи.
Около частного дома
Большинство пользователей выбирает их за компактный размер.
Преимущества: удобство, защита от взлома, универсальны в использовании. Недостатки: высокая стоимость, складывающиеся конструкции подвержены порче.
Распашные ворота
На фото представлен распашной вариант конструкции.
На загородном участке
Откатные ворота
Откатной вариант
Подъемно-поворотные ворота
Это наиболее практичные и удобные вертикальные конструкции. При открывании лист металла поднимается вверх и ложится горизонтально в виде козырька. Конструкция такого механизма несложная. Полотно крепится на раму и движется вокруг оси, меняя горизонтальное положение на вертикальное. Откидные ворота удобны в эксплуатации.
Чертеж подъемной конструкции
Достоинства: стойкость к коррозии и взлому, не требуют дополнительного места.
Сравнение характеристик
Руководствуясь показателями в таблице, можно сказать, что выбор – только за покупателем. Все зависит от стоимости и надежности. Например, распашные и секционные модели хорошо ставить в домашнем гараже, но они не подойдут для гаражных кооперативов, так как имеют невысокую степень надежности.
Подъемно-поворотные ворота для гаража подойдут для любого строения, но их главный недостаток – высокая стоимость. Из-за невысокой цены для частного гаража подойдут распашные ворота. При необходимости их можно утеплить, автоматизировать и усилить дополнительным листом металла. К тому же несложно сварить ворота для гаража в домашних условиях.
Схема устройства каркаса
Каркас выполняется из металлического уголка, который приваривается по всему периметру дверного проема. Таким образом отделывают откос внутри и снаружи. Между собой внутренние и наружные уголки сваривают металлическими полосками в нескольких местах. Должна получиться каркасная рамка.
После того как каркас готов, по бокам приваривают разборные петли. Нижнюю часть необходимо соединить наружным уголком, а верхнюю – с каркасной рамкой. Такая конструкция подойдет и для гаража из
Если вы решили сделать двери в гараж своими руками, вам обязательно пригодятся подробные инструкции и советы. Вполне можно справиться с работой самостоятельно, если изучить опыт бывалых автолюбителей. Сегодня мы рассмотрим данный вопрос более подробно: узнаем, какие бывают типы гаражных ворот, как своими руками сделать раму и створки, каким образом установить двери в гаражное помещение.
В первую очередь рассмотрим типы гаражных дверей. Выясним, чем разные виды отличаются, какие у них преимущества и недостатки, принцип действия и особенности конструкции.
Когда автолюбители решают изготовить двери в гараж своими руками, они чаще всего выбирают подъемные и распашные конструкции. Они подходят для самостоятельного изготовления и монтажа, при этом обеспечивают высокий уровень безопасности, их можно хорошо утеплить без привлечения специалистов.
Требования к гаражным дверям
Важно знать спектр требований, которые предъявляются к гаражным воротам. Обращайте внимание на все нюансы, чтобы ваши двери были качественными, надежными и долговечными.
- Когда вы будете рассчитывать ширину ворот, делайте их с запасом, ведь у вас может появиться новый автомобиль.
- С обеих сторон от автомобиля следует предусмотреть расстояние до стоек ворот минимум в 30 см.
- Продумайте все таким образом, чтобы машина могла без проблем въезжать в гараж и выезжать из него.
- Обязательно позаботьтесь о защите ворот от негативного воздействия окружающей среды. Очень важно сделать максимально надежным крепление гаражных дверей.
- Используйте накладные замки для внешних навесов, монтируйте бронированные накладки для внутренних замков.
- Стандартный проем гаража составляет 2,4 на 2,1 метра.
- Важно гарантировать прочность дверей в гараж на случай несанкционированного доступа, взлома. Полотна дверей желательно изготавливать из оцинкованной стали с толщиной минимум в 2 мм.
- Обычная высота дверей в гараж для легкового автомобиля составляет 2 метра.
Самое главное, чтобы был обеспечен комфортный въезд, двери в гараж гарантировали безопасность автомобиля.
Делаем двери в гараж своими руками
Сразу запаситесь всеми необходимыми материалами и инструментами. Конструктивно распашные ворота состоят из шарниров и стоек, обшивки и металлической рамы. Вам нужен широкий перечень материалов с инструментами.
- Шарниры, металлический уголок, профильная труба, из которой надо сделать раму и каркас, ребра жесткости.
- Электроды, аппарат для сварки.
- Болгарка, шлифовальные круги.
- Слесарные угольники, уровень и рулетка.
- Электродрель, шуруповерт с комплектующими.
- Утеплитель, фанера.
- Грунтовка, монтажная пена.
- Краска для наружных работ, кисти с валиками.
Размер дверей в гараж определяется индивидуально, с учетом параметров автомобиля.
Изготовление рамы дверей гаража
Для начала выберите ровную площадку для работы. Потом действуйте по алгоритму.
- Нужно выровнять место.
- Затем отмерьте четыре отрезка профильной трубы с сечением 40 на 60.
- Элементы соедините по углам.
- Потом раму нужно сварить в углах.
- Измерьте диагонали каркаса. Они обязательно должны быть одинаковыми.
- Сварные швы аккуратно зачистите.
- Теперь монтируйте опорные площадки. На них вы будете закреплять раму. Вам понадобятся пластины из металла. Когда раму монтируют к стене анкерами, в ней должны быть заранее сделаны отверстия для них.
Можно сделать раму из металлического уголка. Уголок при этом должен быть направлен внутрь проема.
Делаем створки гаражных ворот
Каркас дверей лучше делать из профильных труб 20 на 40. Чтобы створки с легкостью закрывались и открывались, между ними лучше оставить расстояние примерно 4-5 мм. Потом можно работать по инструкции.
- Сварите раму каркаса дверей. Тщательно контролируйте все параметры.
- Сделайте примерку к раме. Вам нужно соблюдать размеры.
- Установите элементы жесткости.
- Желательно приварить петли, а потом выполнять обшивку ворот. Многие гаражники предпочитают дополнять полотна ворот деревом или профильным листом.
- Если используется только листовой металл, его логичнее сразу приварить к каркасу створок.
- Сварные швы надо зачистить.
- На следующем этапе надо установить шарниры.
Осталось только навесить готовые двери на уже пристреленную анкерами раму.
Следует также прогрунтовать ворота, покрасить их и установить запорный механизм.
Утепляем двери в гараж
Желательно также позаботиться и об утеплении дверей в гараж. Ведь они могут оградить не только от злоумышленников, но и от холода. Главное, все правильно сделать. Безусловно, металлические ворота особенно нуждаются в утеплении. Действуйте по алгоритму. Использовать проще и эффективнее всего пенопласт.
- Сначала выполните разметку.
- Ножом нарежьте материал.
- Сделайте деревянную обрешетку. Можно прикрепить ее к металлу с помощью жидких гвоздей.
- Заполните пространство между деревянными рейками пенопластом.
- Затем используйте монтажную пену, чтобы вся поверхность получилась цельной.
- Чтобы на ребрах жесткости не осталось мостиков холода, их закрывают фольгированным утеплителем, сажая его на жидкие гвозди.
- Дождитесь высыхания клея и монтажной пены.
- Вырежьте фанеру по размерам гаражных дверей. Обработайте ее для защиты от гниения.
- Закрепите фанеру поверх утеплительного слоя.
Теперь осталось только добавить воротам эстетики.
Вы можете узнать еще больше полезной информации, если посмотрите ролики на видео. В таком формате вам будет проще запомнить советы: все показано на конкретных примерах. Бывалые гаражники делятся своим опытом установки. Есть два интересных видео, в которых можно увидеть, как люди самостоятельно делают и устанавливают своими руками подъемные гаражные ворота.
Особого внимания заслуживает также сборка рамы гаражных ворот. Вот каким образом это можно сделать, вы увидите в следующем ролике:
Гаражные ворота с калиткой служат для того чтобы пройти в помещение, не распахивая полностью створки. Например, когда необходимо что-то взять из гаража или поработать в нем, не запуская мороз, зимой.
Типы ворот
Большинство автолюбителей, чтобы укрыть от непогоды своего четырехколесного «друга», строят сами, нанимают строителей или покупают уже готовый гараж под ключ. Во всех подобных строениях установлены ворота для гаража, но не всегда в них предусматривается дверь.
Поэтому некоторые автолюбители сами мастерят проемы в уже готовых воротах и встраивают в них дверцы. Такое вмешательство нарушает установленную конструкцию (ее целостность), но все зависит от вида применяемых ворот.
Их существует 5 типов:
- распашные;
- откатные;
- секционные;
- роллетные;
- подъемно-поворотные.
В двух первых и в последнем установить калитку для гаража не представляет особого труда.
Они состоят из 1 или 2 полотен, в которых необходимо выполнить дополнительный проем.
Затем в гаражных воротах добавляют вертикальные и горизонтальные элементы для усиления и навешивают дверцу. В изделиях остальных типов это сделать довольно сложно, поэтому их рассматривать мы не будем.
Известно, что любые ворота для гаража выполняют по стандартным чертежам из металла, хотя сейчас изредка применяют металлопластик. Главным требованием к такой конструкции является ее полная и надежная защита от посягательств посторонних.
Способы установки калитки
Все обычные конструкции выполняют из:
- швеллера;
- каркаса из обычного уголка;
- толстых прутьев, где для обшивки применяют 3-миллиметровую сталь;
- труб.
Немногие водители задумываются о массе будущего «шедевра», а проблемы с этим почти всегда возникают уже непосредственно при монтаже. Например, коробка, выполненная из швеллера, имеет большой вес. Выполнить дверь в таких условиях (огромная масса) одному очень трудно.
В этом случае необходимо переделать одну из сторон полностью, вырезав в ней кусок обшивки и усилив ее дополнительными элементами, чтобы установить дверцу для гаража. Желательно иметь помощника, чтобы можно было работать с такой тяжестью.
Есть всего 3 типа размещения двери:
- На краю створки — популярный и традиционный вариант. Запирание происходит в месте схождения ворот.
- Посередине створки. При этом жесткость всей конструкции почти не уменьшается, да и отдельный запор сделать легче.
- В зоне петель — очень редкий способ. При этом можно поставить соосные петли.
Дверцы для гаража различают не только по размещению, но и по:
- открыванию — наружу или внутрь;
- способу укрепления дверной рамы — с разрезанием элемента ворот или без него.
Некоторые любители, не желая иметь порог, разрезают нижнюю трубу или уголок, собирают неполную коробку (без нижнего элемента) и вваривают ее в разрез. Это намного уменьшает прочность всей конструкции.
Для ее увеличения необходимо добавить ребра жесткости — установить 2 вертикали или 1 горизонталь и приварить к ним раму с проемом.
Лучше ничего не резать, а собрать полную (или неполную) коробку и приварить на нижний уголок. Прочность почти не пострадает и будет соблюдена полностью
Для нормальной работы нужны следующие инструменты:
- аппарат сварочный с маской и электродами;
- большая болгарка и круги для нее
- уголок металлический, квадратная или простая труба, прутья (зависит полностью от использованного при изготовлении створок материала);
- угольник;
- рулетка;
- молоток и зубило;
- мел или чертилка для разметки;
- петли навесные.
Работа с распашной конструкцией
Вы достали материалы и инструмент, начертили план и готовы приступить к осуществлению плана, но не представляете, как сделать это. Помните, что легче всего выполнить дополнительный проем на стадии постройки ворот, а если вы купили гараж под ключ, то дело обстоит сложнее.
Дверь на стадии постройки.
Для выполнения этого варианта необходимо в месте установки калитки приварить дополнительные усиливающие элементы — балки вертикальные и горизонтальные. Для разработки плана таких ворот надо в их чертеж ввести недостающие элементы, коробку дверцы и саму калитку.
Необходимо, сверяясь с планом, при сборке каркаса приварить вертикали или горизонтали, укрепить на них раму дверцы и наварить петли. Затем нужно выполнить обшивку ворот и установить их. Далее необходимо собрать дверь, приварить к ней ответные части петель, запоры и повесить на место.
Как поступить, если приобрели гараж под ключ
Можно пойти 2 путями:
- По инструкции — нужно снять сторону, где будет сделан проем, и всю обшивку с нее.
- Легким путем — вырезать часть покрытия по собственноручно сделанному чертежу.
Рассмотрим оба варианта.
При работе по инструкции за основу берется документ по изготовлению проема в воротах, распространенный в малых и больших мастерских и на заводах. Он предписывает перед вырезкой части створки снять с нее всю обшивку. Почти всегда:
- лист металла приваривается к уголку, трубе или другому материалу, применяемому в качестве каркаса;
- обшивка прихватывается не по периметру, а в некоторых местах
Для ее снятия надо молотом и обычным зубилом удалить швы или подрезать УШМ места прихваток. После этой работы по демонтажу обшивки следует отложить ее куда-нибудь, а затем выполнить коробку и сварить саму дверь.
Соблюдая размеры, указанные в имеющимся чертеже, разметьте нижнюю часть створки или вырежьте кусок (если нужно).
- Укладывают створку на землю или спецстол.
- Собирают полную или неполную коробку из труб или угольников. Для плотного прилегания новой дверцы уголок обязательно выполняется с выпуском.
- По размеру проема изготавливают саму дверь из тех же материалов (уголка, труб) так, чтобы при вставке ее в коробку со всех сторон оставался промежуток в 3–5 мм.
По окончании вышеописанных каркасных работ можно переходить к установке обшивки. Для этого необходимо выполнить разметку будущего проема, выдерживая точные размеры (по чертежу). Затем надо отрезать уже ненужные детали от листа обшивки, если он полностью сплошной. Вырезанный кусок оставляется на заготовку для покрытия двери.
Если створка набрана из нескольких элементов, придется их комбинировать.
Установку петель производят так:
- тщательно измерив, калитку вставляют на место, подкладывая снизу, сверху и по бокам вкладыши;
- после этого петли приваривают к ней и к створке;
- поднимают и навешивают половину готовых ворот;
- монтируют запорный механизм.
Есть и более легкий способ изготовления калитки, при котором обшивка не снимается. В ней сразу вырезается проем на 6–10 мм больше габаритов двери. Далее (для прочности) устанавливают дополнительные вертикали или горизонтали, выполняют коробку и саму дверь. В конце приваривают петли и монтируют дверь.
Времени при этом способе затрачивается меньше, однако, уходит больше электродов. Если при вырезании проема будет случайно допущена ошибка, это будет трудно исправить.
Проем в воротах других типов
Калитка нужна и в откатных, и в подъемно-поворотных конструкциях. Правда, можно немного отодвинуть их (или поднять) и войти, но частое использование механизма приведет к износу роликов, шестерней, цепей или других элементов системы и соответственно к быстрой порче.
Отличие откатных систем от распашных состоит в том, что у некоторых таких конструкций снизу стоит цельный швеллер или профиль, а роликовые каретки крепятся непосредственно на него. Нарушать целостность этой конструкции никак нельзя.
Для создания проема есть 2 варианта:
- Сделать его над швеллером, который будет служить основанием дверной коробки.
- Удлинить готовые ворота дополнительными вертикальными и горизонтальными элементами и выполнить дверь там.
Второй вариант ведет к увеличению габаритов, что может оказаться неприемлемо для окружающих. Он обойдется намного дороже первого, ведь придется закупить обшивку для дополнительной части. Тем более что эта часть окажется «в воздухе», ведь под ней не будет роликов.
Поэтому рассмотрим первый вариант. Его изготовление ничем не отличается от проекта для распашных ворот.
Надо вырезать дыру в их покрытии, усилить конструкцию, сделать коробку, дверцу и обшить ее, а затем приварить петли и установить дверь.
В подъемно-поворотных конструкциях все зависит от расположения механизма — посередине или по бокам. Выбирается место для проема и выполняется все в точности как описано выше для распашного варианта.
Отличие состоит лишь в установке более надежных запоров, чтобы при поднятии ворот калитка случайно не открылась и не покалечила кого-нибудь, ведь она будет висеть у вас над головой.
Недостатки и преимущества
Все дополнительные усиливающие элементы (балки, вертикали и горизонтали) нужно вставлять с внутренней части ворот. Запор калитки не должен уступать по надежности замку основной части. Если это будет не так, злоумышленники смогут легко проникнуть в гараж и оставить вас без аккумулятора, покрышек или самой машины.
Основные преимущества заключаются в следующем:
- нет нужды поднимать, открывать или откатывать створки при входе;
- калитку открыть намного быстрее, а ее ширины хватит, чтобы вынести какую-нибудь вещь;
- если запор на дверце надежный, можно какими-либо дополнительными механизмами (распорки, «полицейский замок») полностью блокировать створки изнутри;
Зимой ключ в различных навесных замках бывает невозможно провернуть — замерзает смазка. Для открывания надо прогреть механизм. Установив запор внутри, вы избавитесь от проблемы и откроете дверь даже в лютый мороз.
Недостатки следующие:
- наличие новых механизмов (петли, запоры), которым необходим дополнительный уход;
- меньшая надежность по сравнению с цельным полотном;
- дополнительные затраты на изготовление.
Встраивание калитки придает воротам законченный вид и намного расширяет их функции.
· Октябрь 23, 2015
Калитка в воротах? Все «За» и «Против».
Если попытаться перечислить все аргументы в пользу того, чтобы делать калитку, врезанную непосредственно в створ ворот (будь то калитка в откатных воротах или калитка в распашных воротах), то таких аргументов всего два:
- Первый аргумент «За» (в пользу ворот с калиткой) — экономия пространства…
- Второй аргумент «За» — экономия на материалах и отсутствие необходимости дополнительных строительных работ по устройству калитки;
Тем, кто решил установить , продавцы ворот частенько советуют обойтись вообще без калитки, мол сдвинете створку ворот при помощи пульта на полметра и калитка не понадобится. На самом деле это очень неудобно так как для того, чтобы выйти или войти, Вам постоянно придется носить с собой пульт управления воротами. Такой вариант (обойтись вообще без калитки) мы вообще не будем рассматривать в рамках данной темы. Итак, вернемся к тому, стоит ли делать калитку в воротах или лучше сделать отдельную калитку. Давайте перечислим аргументы «Против» того, чтобы делать калитку в воротах (имеется ввиду калитка, врезанная непосредственно в полотно створки ворот):
- Калитка в воротах это всегда наличие порога снизу (так как полотно ворот нельзя разорвать и обойтись без перемычки, обеспечивающей жесткость каркаса ворот);
- Калитка в воротах это всегда ограничение по высоте сверху (так как полотно ворот нельзя разорвать и обойтись без перемычки, обеспечивающей жесткость каркаса ворот);
- Калитка в воротах это тяжелая металлоконструкция, нарушающая весовой баланс ворот (особенно у откатных ворот);
- Калитка в воротах это ослабление каркаса полотна ворот, уменьшающее жесткость данного каркаса;
- Калитка в воротах конструктивно не может быть достаточно широкой;
Если все эти аргументы «Против» Вас не убедили и Вы всё равно хотите сделать калитку в воротах, то старайтесь свести к минимуму нарушение весового баланса ворот. Если Вы делаете калитку в откатных воротах, то врезайте её как можно ближе к «противовесу», т.е. в ту часть полотна ворот, которая ближе к роликовым опорам (или опорным роликам), а не наоборот. Если Вы делаете калитку в распашных воротах, то врезайте её как можно ближе к петлям, на которых держится полотно створки.
Калитка отдельная.
Отдельная калитка уже тем лучше, что она не имеет минусов, описанных выше. Она может быть любой ширины (в пределах разумности), она не имеет порога, она не ограничена по высоте (если только Вы сами не решите сделать сверху какой-нибудь козырек) и т. д. Ширину калитки выбирайте из своих соображений об удобстве пользования ею. На наш взгляд ширина калитки точно не должна быть меньше ширины типовых строительных тачек плюс некий зазор с обоих сторон. Идеальной будет такая ширина калитки, которая позволит Вам проходить через неё, неся в обоих руках по ведру или по пакету с продуктами, не поворачиваясь при этом боком или полубоком.
Основой калитки (как и основой ) является каркас. Точнее двойной каркас — каркас в каркасе. Посмотрите на фото, размещенное ниже.
На этом фото указаны основные элементы калитки:
- внешний каркас служит основой жесткости всего полотна калитки;
- внутренний каркас служит исключительно основой для крепления обшивки калитки. Другими словами именно в этот каркас будут завинчиваться саморезы, которыми Вы будете закреплять обшивку калитки;
- на внешний каркас, напротив петель, нужно приварить опорную пластину которая будет опираться на столб при закрывании калитки и не даст ей пройти насквозь проёма и выломать петли.
- помимо каркаса Вам понадобится коробка, предназначенная для крепления замка. Как Вы понимаете, удобнее использовать врезной замок, а не навесной (смотрите фото ниже);
Если говорить о замках для калиток, то мы рекомендуем использовать врезные, а не навесные замки. Конечно приварить два «уха» под навесной замок — проще, чем «корячиться» с монтажом врезного замка, но… Во-первых, врезной замок тяжелее сломать, чем навесной. Во-вторых, врезным замком удобнее пользоваться — открыть и закрыть его можно используя одну, а не две руки. В-третьих он смотрится намного элегантнее любого навесного замка.
Для калитки мы выбрали замок «APECS» модель T-52, латунный цилиндровый механизм «APECS» модель PREMIER и отечественные ручки на планке «ЭЛЬБОР» (так как только они подошли и по размеру планки и по цвету).
Сначала, при помощи напильника и/или «болгарки» нужно добиться того, чтобы замок вошел в предназначенную для него коробку. Далее нужно разметить отверстия, которые необходимо просверлить с торца калитки для последующего крепления замка. Проще не мучиться и не пытаться использовать винты с гайками для крепления замка, а сделать в каркасе калитки отверстия и нарезать в них мечиком резьбу. В этом деле очень важно не сместить отверстия при сверлении. Для этого, перед сверлением, обязательно накерните отверстия при помощи керна. В этом случае сверло, установленное в центр углубления от керна уже не сместится в сторону при сверлении.
Распашные будут наилучшим выбором для владельца гаража, который ценит высокую надежность за низкую цену. Именно такая конструкция позволит автолюбителю быть спокойным за оставленного в гараже железного коня и максимально сэкономить при этом. И что еще немаловажно – такие ворота легче всего смонтировать и установить самостоятельно.
Как выглядят распашные ворота
Самая простая конструкция распашных ворот для гаража состоит из:
- рамы по размеру дверного проема;
- двух створок;
- петель;
- фурнитуры – замков, ручек, систем сигнализации и различных ограничителей, удерживающих ворота в нужном положении.
Очень часто в одной из створок располагают . Также для удобства пользования ворота оснащают автоматикой с дистанционным управлением, позволяющей открывать двери, не выходя из машины. Чаще всего распашные гаражные ворота делают металлическими – из профиля сваривают каркас рамы, на него наваривают петли и дверное полотно из стального листа толщиной 3–5 мм. Если безопасность для автовладельца не так важна, стальные листы заменяют на профлист, панели или дерево.
Со временем дверцы на распашных воротах могут начать провисать. Чаще всего такое случается из-за слабых петель. Поэтому перед покупкой комплектующих для гаражных ворот необходимо просчитать массу створок в сборе и выбрать петли с запасом по прочности.
Как сделать распашные ворота своими руками

Убедитесь, что перед гаражом хватает места для автомобиля при полностью открытых створках. Когда на бумаге все будет учтено, приготовьте следующие материалы:
- профильную трубу сечением 60х40 мм для каркаса дверного проема;
- уголок для изготовления каркаса створок;
- стальные листы толщиной до 5 мм;
- петли;
- всю необходимую фурнитуру.
Также вам будут нужны инструменты:
- строительный уровень;
- сварочный аппарат;
- болгарка;
- рулетка.
Если ворота будут оснащены автоматикой, заранее подберите комплект оборудования и продумайте электрическую проводку до места монтажа.
Отдельно позаботьтесь о приобретении средств защиты – маски и костюма сварщика, защитных очков и респиратора, перчаток.
При работе с болгаркой и сварочным аппаратом существует большой риск повредить глаза, поэтому ни в коем случае не пренебрегайте всеми необходимыми средствами защиты.
Делаем металлический каркас дверного проема

Свариваем каркас створок

Для придания всей конструкции необходимой жесткости раму усиливают диагональными элементами. Как правило, диагональные детали идут от мест крепления верхних петель и сходятся вместе внизу по центру ворот.

При желании в одной из дверей устраивают калитку.
По окончании сварочных работ на каркасе следует отшлифовать и закрасить все швы. В таком случае заусенцы на швах не будут мешать свободному ходу дверей, а места сварки не будут ржаветь.
Приваривание петель и навешивание створок ворот

Если створки в сборе очень тяжелые, навешивать их лучше в горизонтальном положении. В таком случае каркас проема после изготовления прикрепляют к стенам гаража в последнюю очередь.
Автоматические распашные ворота

- увеличенный ресурс работы петель;
- стабильную нагрузку на несущий каркас;
- плавную работу при любых погодных условиях.
Чем выше ворота и значительнее вес створок, тем больше необходимости в оснащении ворот автоматикой, тем более, если воротами регулярно пользуются женщины.
Автоматические ворота удобны тем, что запирать их вручную нет необходимости. Автоматика блокирует любые попытки открывания дверей руками до поступления сигнала на датчик управления. Минусом в этой системе является зависимость работы от наличия электрического тока. Без света механика просто не будет срабатывать. Для решения проблемы устанавливают систему разблокировки. Чаще всего она идет как дополнительная опция к комплекту привода. Альтернативой может послужить подключение автоматики к источнику резервного питания – аккумулятору или генератору.
В настоящее время распространены два вида приводов для автоматических распашных ворот – рычажный и линейный. Последний предпочтительнее, так как рассчитан на большой вес створок и сильные порывы ветра.
Покраска и утепление ворот

Для большинства автолюбителей наличие утепления в гараже является необходимостью, чтобы все работы по обслуживанию автомобиля проводились в нормальных температурных условиях. К тому же в гараже часто устраивают мастерскую. В качестве утеплителя для распашных гаражных ворот обычно используют пенопласт, минеральную вату, войлок, пробковые плиты, пеноизол, экструдированный полистирол.
После установки фурнитуры, утепления и покраски распашные гаражные ворота можно считать полностью готовыми.
Самостоятельное изготовление гаражных распашных ворот — видео
Большая часть мужчин без ума от своей машины и готовы кучу времени проводить в гараже. Но чтобы построить капитальный гараж и отделать его так, как хочется, нужно вложить немалые средства. К счастью, можно освоить тонкости самостоятельного изготовления некоторых элементов сооружения, например, гаражных ворот.
Обо всех нюансах, связанных с изготовлением, монтажом и уходом за ними, и пойдет речь в нашей статье.
Виды
Существуют следующие варианты гаражных ворот:
- распашные;
- раздвижные;
- подъемно-поворотные (откидные);
- подъемно-секционные (раскладные);
- откатные;
- рулонные (роллетные или рольставни).
Теперь мы подробно рассмотрим особенности конструкции каждого вида, схемы их функционирования, достоинства и недостатки. А также расскажем о том, какой материал выбрать, чтобы изготовить гаражные ворота самостоятельно (дерево, оцинкованное железо или профнастил), чем усилить створки и как их покрасить.
Особенности конструкции
Чтобы сделать надежные и качественные ворота своими руками, нужно учесть основные нюансы строения каждого их вида.
Распашные
Распашные гаражные ворота — наиболее распространенный вариант, известный еще с древних времен своей надежностью и удобством.
Конструктивный принцип предельно прост – распашные ворота состоят из двух створок, в основе которых – металлический каркас. Они могут быть деревянными, железными, сделанными из профнастила. Закрываются на наружные и внутренние замки и засовы. Для дополнительного комфорта в одной из дверей можно вырезать калитку.
Основные преимущества: экономичность, простота изготовления, высокая степень обеспечения безопасности. Недостатки: требуют наличия свободного пространства перед гаражом для полного открывания.
Раздвижные
Если к распашным воротам подключить привод, то их можно автоматизировать и превратить в раздвижные.
Подъемно-поворотные (откидные)
Современный, аккуратный и компактный вариант, больше подходящий для утепленных гаражей, расположенных на территории охраняемых кооперативов. Основу конструкции составляет дверь, выполненная из оцинкованной стали или алюминия, которая поднимается вверх и закрепляется параллельно полу при помощи шарнирно-рычажного привода, специальных направляющих и фиксатора.
Основные преимущества: экономия пространства, легкость эксплуатации. Недостатки: высокая стоимость, низкий уровень защиты, сложность изготовления.
Подъемно-секционные (раскладные)
Весьма удобная разновидность ворот, обеспечивающая высокую герметичность и не занимающая большое пространство. Принципиальная схема основана на преломлении металлической створки, состоящей из горизонтальных секций, в процессе открывания и помещении ее под потолком.
Функционирование механизма осуществляется за счет шарнирных петель, соединяющих сегменты, и роликов, перемещающихся по направляющим планкам. Раскладные ворота отличаются хорошей шумоизоляцией, так как каждая секция их укрепляется уплотнителем.
Основные преимущества: универсальность. Недостатки: высокая цена, малая противовзломность.
Откатные
Относительно недорогой, эффектный и легкий в эксплуатации вариант. Конструкция работает по принципу шкафа-купе и состоит из одной металлической двери, перемещающейся вдоль гаражной стены при помощи системы из направляющих и роликов. Откатные ворота можно установить как снаружи, так и внутри гаража.
Основные преимущества: бюджетность, прочность, долговечность. Недостатки: необходимость наличия у гаража широкого фасада.
Рулонные (роллетные)
Редкая разновидность облегченных ворот. Роллеты лучше использовать в охраняемых кооперативах. Механизмом своего действия они напоминают рольставни и состоят из алюминиевых пластин, которые собираются в специальный блок, закрепленный наверху.
Основные преимущества: экономия пространства, простота эксплуатации. Недостатки: хрупкость и ненадежность.
Изучив особенности конструкции различных видов, можно сделать вывод, что легче всего изготовить и смонтировать распашные гаражные ворота. Их производство не требует построения сложных чертежей, наличия профессиональных навыков и использования специализированного инструмента.
А как правильно сделать это своими руками, читайте ниже.
Изготовление
Беспрепятственная установка и легкая эксплуатация ворот напрямую зависят от четкого соблюдения технологии изготовления. Представляем вашему вниманию универсальное поэтапное руководство по производству распашных ворот для гаража.
Закупка необходимых материалов и инструментов
Для работы нам понадобятся:
- рулетка;
- угольник;
- уровень (можно использовать как строительный, так и гидравлический);
- болгарка;
- аппарат для сварки.
В процессе работы будут использованы:
- уголки для сборки крепежной рамы (лучше отдать предпочтение уголкам из стали 65х65 или 40х40 мм);
- обшивка для створок (чаще всего применяются дерево, профнастил или цельный металлический лист);
- комплект наружных и внутренних замков (задвижек или засовов по вашему усмотрению);
- профиль (например, размером 60х30 мм);
- навесные железные петли для крепления дверей.
Замер проема и создание чертежа
Чтобы сделать надежные и аккуратные ворота без щелей и всевозможных неровностей, нужно внимательно подойти к замеру проема и последующему перенесению полученных данных на чертеж.
Алгоритм измерения проема гаража:
- Измеряем ширину.
Как правило, этот показатель варьируется от 3 до 5 метров, в зависимости от габаритов транспортного средства. В идеале, расстояние от машины до каркасной рамы не должно быть меньше 30 см с обеих сторон. - Измеряем высоту.
Этот размер также снимается с учетом параметров автомобиля.
Переносим полученные цифры на бумагу и указываем материалы. Чертеж может быть произвольным, главное, его точность.
Крепежная рама
Распашные ворота состоят из 3-х базовых элементов: каркасной рамы (обрешетки), дверей (створок) и петель.
Первым делом нужно подготовить детали и сварить обрешетку, следуя технологическому порядку:
- Берем заготовленный уголок и разрезаем его на несколько равных частей. Первая половина должна быть соразмерна ширине гаражных ворот, вторая соответствовать их высоте.
- Полученные отрезки выкладываем на ровную поверхность под прямыми углами, тщательно проверяя градусы рулеткой-угольником.
- Теперь нам необходимо сварить обрешетку из готовых деталей.
Каркас створок
Работу на данном этапе следует выполнять с особым вниманием, потому как от этого зависит герметичность ворот и удобство их эксплуатации.
Изготовление каркаса дверей включает в себя следующие моменты:
- Берем обрез профильной трубы и делим его на 4 куска длиной, отличающейся от высоты обрешетки на 20 мм, и еще на 4, размер которых рассчитываем по формуле: ширина обрешетки/2 – 35 мм. Все эти расчеты делаются для того, чтобы обеспечить легкость вхождения будущих дверей в проем.
- Раскладываем детали на гладкой прямой поверхности под углами 90 градусов, проверяя их угольником.
- Свариваем отрезки между собой и получаем готовый каркас.
Обшивка
Обшивка также является одним из важнейших этапов работы, так как от грамотности и четкости его выполнения зависит внешний вид и функциональность конструкции. Как же правильно обшить двери?
Представляем вашему вниманию подробное руководство:
- Берем заранее приобретенный материал. Например, цельный лист железа.
- Обрезаем его по размеру. Причем обшивка левой створки должна идти внахлест правой на 2 см.
- Привариваем полотна к каркасу сначала по центру и по краям, чтобы их зафиксировать, а затем и по всему периметру.
Монтаж петель
Перед началом работы мы приобрели навесные железные петли для крепления дверей. Теперь самое время их установить.
Это делается очень легко:
- Сперва нужно приварить нижний элемент петли к каркасной раме, а верхний – к наружной стороне створки.
- Усиливаем соединение, прикладывая согнутую металлическую полоску к верхней части петли и привариваем к внутренней стороне арматурный вкладыш.
Запоры и стопор
Выбор и правильная установка надежного замка гарантирует сохранность вашего автомобиля. Поэтому надо подойти к данному этапу со всей ответственностью.
Снаружи гаражи обычно закрываются при помощи врезного или навесного замка, а изнутри – при помощи штыревого стопора.
Установить врезной замок нетрудно, а вот как смонтировать стопор мы рассмотрим подробнее
:
- Сперва вбиваем в землю обрезок трубы – в него будет входить подвижная часть стопора.
- В качестве подвижной части используем арматурный штырь. Его необходимо продеть через петлю воротной створки.
- Чтобы конструкция удачно функционировала, необходимо постоянно следить за чистотой трубы.
Покраска
Перед окончательным монтажом гаражных ворот, створки нужно покрасить с целью защиты металла от коррозии и улучшения общих эстетических качеств. После предварительной грунтовки, на двери наносится морозостойкая краска по металлу или эмаль в 2-3 слоя.
Утепление
В заключение процесса изготовления ворот, необходимо выполнить их внутреннее утепление, иначе из помещения будет уходить не менее 50 процентов тепла. И, согласитесь, теплые гаражи намного уютнее. Для утепления обычно применяется пенопласт, пенополистирол или стекловата. Теплоизоляционный материал крепится к внутренней стороне створок и закрывается сверху вагонкой или деревянными планками.
Итак, мы подробно рассмотрели основные стадии самостоятельного изготовления распашных гаражных ворот. Осталось разобраться в вопросах их монтажа: как поднять каркас, навесить двери, закрепить конструкцию и установить привод для ее автоматизации.
Монтаж
После того как вы завершили изготовление всех элементов конструкции ворот, можно приступать к их установке.
Алгоритм монтажа тоже довольно простой:
- Для начала необходимо установить каркасные рамы. Они прикрепляются к откосам гаражного проема с помощью длинных металлических штырей (15-20 см).
- Выступающие снаружи излишки штырей обрезаем, шлифуем и маскируем краской, чтобы в дальнейшем они не мешали закрывать двери.
- Теперь нужно соединить внутреннюю и наружную обрешетки посредством железных пластин-перемычек.
- Остается навесить створки на петли и оценить готовую работу.
Для большего удобства эксплуатации распашные ворота можно оснастить специальным приводом, работающим от электричества – это позволит сделать их автоматическими. Схема действия такого устройства основана на использовании направляющих из профиля, приходящих в движение за счет электродвигателя.
Складные и поднимающиеся рулонные ворота также можно смонтировать самостоятельно, если есть готовые механизмы открывания-закрывания (створки, сдвижные части, планки, ролики и фиксаторы), которые продаются в строительных магазинах. От вас потребуется лишь изготовить раму и собрать конструкцию, в соответствии с прилагаемыми инструкциями, а также выполнить ее уплотнение.
Для установки откатных ворот не потребуется даже рама. Все, что нужно – сделать из профлиста и уплотнить большую створку. При желании в ней можно вырезать калитку. Монтаж же сводится к расположению деталей фурнитуры согласно инструкции.
Чтобы все получилось как можно лучше, учтем мнение профессионалов:
- Не стоит ограничиваться прочтением пары статей с руководством по самостоятельному изготовлению гаражных ворот. Сейчас на просторах интернета есть очень много подробных видеоуроков и обзоров на эту тему.
- Выбирая материалы для работы, отдавайте предпочтение более легким и современным. Тогда и дальнейшая эксплуатация готовой конструкции не составит труда и не потребует усилий.
В этой статье мы расскажем, как сделать калитку в гаражных воротах секционного типа. Вы узнаете о нюансах установки и при необходимости сможете выполнить монтаж самостоятельно. Процесс модификации рассмотрим на примере ворот от DoorHan.
ВАЖНО!
Гораздо проще и дешевле купить автоматические секционные ворота в комплекте с калиткой под ключ сразу. Учтите этот факт, если на момент прочтения статьи только планируете заказать установку удобной и функциональной конструкции.
Как врезать калитку в секционные ворота
Чтобы врезать калитку в секционные ворота, вам понадобятся:
- перчатки;
- очки;
- рейка (длина — 1,8–2 м);
- угольник;
- клепальный инструмент;
- резиновые жгуты (нужны для сжатия сэндвич-панелей);
- лекало для резки заготовок под углом в 45°;
- ножовка по металлу;
- напильник;
- киянка (резиновый молоток);
- сверла;
- дрель;
- электролобзик;
- карандаш;
- линейка;
- рулетка.
Все инструменты вы сможете купить по доступным ценам на любом строительном рынке Москвы или в специализированном магазине.
Также необходимы детали дополнительной входной конструкции. В комплектацию входят:
- ловитель, предотвращающий деформацию створки;
- козырек для защиты от дождя;
- обрамление для краев, сделанное из алюминиевого профиля;
- металлические ручки;
- помещенный в специальных усиленный корпус замок;
- промежуточные петли из нержавеющей стали;
- механизм доводки;
- заклепки;
- петли для фиксации калитки в проеме;
- П- и Ц-образные профили из алюминиевого сплава.
Изображение № 1: профили для калитки секционных ворот
Как правильно сделать калитку в секционных воротах
Сделать калитку в секционных воротах правильно вам поможет размещенная ниже инструкция. Внимательно прочитайте и соблюдайте все ее требования в процессе монтажных работ.
Этап 1. Подготовка
Подготовка к монтажу калитки заключается в нарезке профилей. Действуйте по следующей схеме.
Этап 2. Вырезание проема
Общая схема монтажа калитки выглядит так.
Изображение № 5: схема монтажа калитки, особенности размещения
Действуйте следующим образом.
Этап 3. Сборка и установка калитки
Подробная инструкция по встраиванию калитки в секционные ворота.
- Установите стальной Ц-профиль в камеру нижнего несущего профиля по всей длине. Закрепите Ц-профиль заклепками. Шаг — не более 500 мм.
Изображение № 8: установка стального Ц-профиля в камеру нижнего несущего профиля
- Зафиксируйте нижний несущий алюминиевый профиль к сэндвич-панели. Для этого просверлите отверстия (диаметр — 4,2 мм) с шагом не более 500 мм и заклепайте конструкцию.
- Поместите стальной Ц-профиль в верхний усилитель. С его обратной стороны установите ригель. Схема сборки верхнего и нижнего профилей выглядит так.
Изображение № 9: сборка и установка верхнего и нижнего профилей
Если боковые опоры одинарные, то m и n равны 75 мм, а если двойные — 150 мм.
- Разместите собранную конструкцию на фрагментах верхней панели калитки. Для фиксации просверлите отверстия (диаметр — 13,2 мм) и прикрутите саморезы. Не забудьте одеть пластиковые заглушки.
Изображение № 10: крепление верхнего профиля калитки
- На боковые стороны верхнего усилителя установите крышки. Для фиксации используйте саморезы или заклепки.
Изображение № 11: установка заглушек на верхний усилитель
- Переверните верхнюю панель. Симметрично относительно центра калитки вставьте в паз ригеля усилитель карниза. Прикрутите деталь саморезами.
Изображение № 12: монтаж усилителя карниза
- Установите малый карниз в пазы. На боковые стороны оденьте крышки и зафиксируйте их при помощи саморезов или заклепок.
Изображение № 13: монтаж малого карниза
Прикрепите карниз к краям сэндвич-панелей заклепками.
Изображение № 14: фиксация карниза
- Нарежьте боковые Ц-профили, ориентируясь по серединам стыков между панелями. Установите детали. Не забывайте оставлять зазоры.
Изображение № 16: монтаж боковых Ц-профилей
Выровняйте левую и правую стороны по рейке. После этого зафиксируйте профили с внешней стороны полотна заклепками.
- Укоротите нижнюю сэндвич-панель калитки на 5 см. Прикрепите к сегменту Ц- и П-профили. Установите панель в проем калитки. Не забудьте оставить 10-миллиметровый зазор.
Изображение № 19: установка нижней сэндвич-панели калитки
- Прикрепите Ц- и П-профили к средним панелям. Поместите их в проем калитки.
Изображение № 20: монтаж средних секций
- Отрежьте от верхней сэндвич-панели полосу шириной 130 мм. Подготовьте П- и Ц-профили. Разместите на расстоянии 52 мм от края панели закладной элемент для монтажа доводчика. Просверлите 4 отверстия для его крепления. Вставьте закладной элемент в панель и зафиксируйте профили. Установите секцию в проем.
Изображение № 21: монтаж верхней сэндвич-панели калитки
- Выровняйте профили по линейке и зафиксируйте их заклепками. Снимите все сегменты калитки, кроме нижнего. Прикрепите его к петле при помощи заклепок. Поочередно установите и зафиксируйте остальные секции.
Изображение № 22: крепление панелей калитки к петлям
- Разметьте и просверлите отверстия под промежуточные петли. Установите соединительные элементы.
Изображение № 23: монтаж соединительных петель
Поставьте ворота на стапель для монтажа калитки. Выровняйте полотно по торцевым крышкам. Добейтесь плотного прилегания панелей друг к другу при помощи прижима.
Вырежьте алюминиевый профиль порога. Для расчета длины отнимите от ширины проема ширину боковых профилей. Вставьте порог в паз несущего профиля.
Изображение № 15: монтаж профиля порога
Нарежьте длинную заготовку на петли и просверлите в них отверстия (диаметр — 4,2 мм). Зафиксируйте нижний крепежный элемент с учетом бокового зазора (2 мм).
ОБРАТИТЕ ВНИМАНИЕ!
Для панелей калиток нужны петли с четырьмя зубьями, а для секций ворот — с пятью.
Изображение № 17: петли для калитки секционных ворот
Нижние и верхние крепежные элементы устанавливают с 10-миллиметровыми зазорами. Остальные фиксируют вплотную.
Изображение № 18: особенности установки петель
Калитка готова. После проверки работоспособности конструкции приступайте к установке доводчика, замка и другой фурнитуры.
Самому сделать калитку в воротах гаража или довериться профи
Как видите, сделать калитку в воротах гаража секционного типа — очень сложная задача, с которой справится далеко не каждый умелец. Если не уверены в своих силах, обратитесь к профессионалам. Так вы получите качественно установленную калитку и гарантию на выполненную работу.
После реконструкции гаражные ворота должны отвечать таким требованиям:
- Коробка должна быть надежно закреплена в проеме. Как правило, строители сдают объект с воротами, которые приварены к нескольким металлическим закладным. Это крепление необходимо дополнить несколькими анкерами.
- Петли должны выдерживать высокую нагрузку, так как после утепления и установки дополнительной дверцы вес створок увеличится.
- Поскольку петли обычно навариваются внакладку с наружной стороны конструкции, необходимо приварить к торцам штыри с фиксацией при закрывании в отверстиях в коробке. Эта мера предотвратит возможность вскрытия дверей путем срезания петель.
Штыри в металлической двери
- Гаражные ворота необходимо гидроизолировать пленкой и утеплить, установить нащельники.
- На улице необходимо смонтировать фиксаторы для удерживания створок ворот в открытом положении. При внезапных порывах ветра ворота могут захлопнуться и повредить выезжающую из гаража машину.
Конструкция самодельного фиксатора
- Калитку в гаражных воротах делают такой высоты, чтобы хозяину не пришлось нагибаться при входе и случайно не травмироваться.
- Выбирать место положения дверцы необходимо так, чтобы можно было войти в гараж даже тогда, когда автомобиль стоит плотно к входу. Таким образом, традиционное расположение проема для калитки ближе к центру проема ворот не оправдано. Калиточный проем лучше делать ближе к петлевой стороне одной из створок. При таком расположении всегда будет удобно найти выключатель света на стене у входа, и проход не будет затруднен близко стоящей машиной.
Дверца расположена ближе к петлевой стороне
Технология изготовления
На первый взгляд, врезать дверцу в створку гаражных ворот своими руками не просто. На самом деле, есть простой способ, как сделать в воротах калитку, который можно использовать и при изготовлении ворот с нуля.
Инструмент и материалы
Для начала необходимо подготовить рабочее место и инструменты:
- Инверторный сварочный аппарат. Работать необходимо в маске и защитных рукавицах. В зависимости от толщины металла (обычно 2 мм), покупают электроды соответствующего диаметра.
Сварочный аппарат
- Большая углошлифовальная машина под круг диаметром 150 или 180 мм, набор отрезных кругов.
Отрезные круги
- Дрель со сверлами.
- В зависимости от того, из какого профиля выполнены горизонтальные или вертикальные ребра жесткости створки ворот, необходимо подготовить уголок или трубу с квадратным сечением. Из них будет вариться каркас коробки и калиточная рамка. Учитывая то, что имеющиеся ребра жесткости будут использоваться повторно, подсчитывают количество деталей, которые нужно докупить. Конструктивно коробка своими руками будет состоять из двух длинных горизонтальных профилей, длина которых равна длине створки гаражных ворот, и двух вертикальных стоек, расположенных между горизонтальными ребрами. Их высота равна высоте дверцы. Створка варится из 4-х заготовок, торцы которых подрезаны под 45 градусов.
Ребра жесткости из трубы
- Метровая металлическая линейка, рулетка, угольник, мелок.
- Воротные петли. Если петли продают без крепежных пластин, то их необходимо будет вырезать из листового металла и приварить к петлям самостоятельно.
Петли с приваренными пластинами и без них
- Ручной слесарный инструмент: молоток, металлическая щетка, зубило, струбцины (минимум 2 шт.), керн, крупный напильник.
Работать можно во дворе перед гаражом, положив предварительно на грунт и выровняв по уровню толстые бруски. Сняв нужную половинку гаражных ворот, ее укладывают на бруски тыльной стороной вверх.
Изготовление калитки
Суть данного метода в том, что не нужно снимать обшивочный лист металла со створки ворот. Калитка своими руками монтируется с обратной стороны, и в конце лист обшивки просто разрезается по периметру дверцы с лицевой стороны.
Листовой металл приварен точечной сваркой
- Первым делом необходимо демонтировать внутренние ребра жесткости со створки. Как привило, они приварены точечной сваркой к обшивочному листу. Эту сварку необходимо срезать болгаркой. Дальше работают зубилом и молотком. Обычно эта работа не занимает много времени.
- Счистить ржавчину и старую краску.
- Затем необходимо изготовить каркас калитки для гаража. Для этого отмеряют два длинных и два коротких куска уголка по ширине и высоте дверцы. Торцы заготовок подрезают под углом 45 градусов. Если используется уголок, заготовки отрезают так, чтобы их полка располагалась внутри контура створки. Заготовки выкладывают на ровной поверхности в виде прямоугольника, при необходимости подрезают углы для обеспечения минимального зазора. Стыки прихватывают точечно, промеряют диагонали прямоугольника, и, если все в порядке, выполняют сплошную сварку.
Сборка конструкции
- Затем по высоте дверцы в створке ворот приваривают горизонтальный профиль. Если используются уголки, то их нужно приваривать полкой наружу относительно калиточного проема.
Важно! Можно устанавливать несущими не горизонтальные, а вертикальные профили.
- На следующем этапе необходимо приготовить прокладки. Для этого используют либо тонкие щепки толщиной 4 мм, либо кусочки пластика. Затем в нужном месте при помощи струбцин через подкладки к горизонтальной перемычке прикручивают каркас створки. Теперь можно приварить нижнюю перемычку, а потом и две боковые.
Сборка каркаса из труб, отрезанных под прямым углом
- Теперь рамка калиточной створки прокладывается прокладками по всему периметру и по внутреннему периметру приваривается к обшивочному листу. Точно так же полностью проваривается каркас коробки, только уже по наружному контуру.
- Затем необходимо перенести контрольные отметки на лицевую сторону створки ворот. Для этого ее поднимают, ставят в вертикальное положение, берут дрель с длинным тонким сверлом по металлу и по углам внутреннего периметра калиточной коробки сверлят 4 сквозные отверстия.
- Получив на лицевой стороне контрольные точки, выполняют разметку. По петлевой стороне мелком проводят линию прямо по полученным отверстиям, а по остальным трем добавляют по 1-1,5 см.
Проверка точности позиционирования деталей
- На следующем этапе необходимо прорезать обшивочный металл по петлевой линии, остальные пока не трогаем. Необходимо приварить петли. Можно положить створку снова в горизонтальное положение, приложить на разрез петли, выровнять при помощи длинной рейки их соосность и прихватить. При этом цилиндр должен располагаться строго по центру разреза.
Ворота изнутри
- Теперь остается навесить ворота на место и болгаркой прорезать оставшиеся 3 стороны по разметке с припуском. Калитка своими руками готова.
Готовая калитка
Теперь необходимо полностью проварить петли, установить замок (лучше всего ригельный обратной тяги), установить боковые штыри против срезания петель, почистить, покрыть краской и утеплить ворота.
Видео с похожей технологией изготовления калитки:
Это способ позволяет быстро и аккуратно изготовить калитку гаражных ворот.
Створки ворот
Створки с ребрами жесткости
Потребуется 4 отрезка металлического уголка для вертикальных сторон каркаса, длина каждого на 10 мм меньше, чем размер рамы, и 4 отрезка для горизонтали, их размер равняется половине длины проема, из которой также вычитают 10 мм. Раскладываются заготовки для створок так же, как предыдущий каркас, выверяется геометрия отрезков и они свариваются. Если есть возможность, каркасы размещают в периметре готовой рамы, это позволяет контролировать углы между деталями. Необходимые зазоры для свободного движения створок оставляют при помощи вкладышей толщиной 5‒7 мм. Все части свариваются. Для придания прочности к каркасу приваривают дополнительный горизонтальный или диагональный отрезок.
Полотна створок вырезаются нужного размера из металлического листа. Для надежной защиты помещения он не должен быть тоньше 2‒3 мм. Одна из частей, обычно правая, выполняется на 20 мм больше, чтобы ворота запирались внахлест. Чтобы зафиксировать лист, его точечно приваривают по углам и середине. Основательную сварку начинают с нижней части конструкции. Предварительную сварку, выполненную в углах, срезают.
Виды калиток
Практичность встроенной калиточной дверцы в одну из плоскостей ворот бесспорна. Нет необходимости при каждом пешеходном входе/выходе громыхать замком или засовом, тратить время на то, чтобы распахнуть или закрыть металлические тяжёлые створы.
Пример встроенной калитки из профнастила
К тому же явная экономия пространства, особенно если его приходится выкраивать при обустройстве гаража или дачи. А обязательный порожек перед ней предотвращает скопление снега, препятствующего её открытию.
Примыкающая калитка также имеет немало достоинств. Обычно её устанавливают без порога, создающего неудобства при выходе на улицу с детской коляской или велосипедом. Отсутствует препятствие для малышей, которые, преодолевая его, легко могут получить травмы. Однако после снежной ночи её открыть можно после соответствующей расчистки территории.
Вид калиток определяет не каркас, а тот материал, которым он заполнен. В связи с этим они бывают:
- деревянные;
- из профнастила;
- металлические;
- из кованого металла.
На калиточные дверцы, независимо от того встроенные или примыкающие, всегда тратится тот же материал, из которого сделаны ворота.
Чертеж с размерами ворот и встроенной калитки
Иначе вся конструкция будет выглядеть непривлекательно, даже нелепо. Поэтому приобретая деревянные доски или листы профнастила, надо учитывать размеры будущей примыкающей калитки.
Деревянная калитка
Издавна забор или вход на усадьбу обустраивали штакетником – неширокими деревянными планками, прибитыми гвоздями к поперечной перекладине. Какой-либо дополнительный каркас для укрепления входной конструкции не требовался. Соорудить её очень просто, а домашнему умельцу не понадобятся профессиональные навыки плотника. Правда, от частого использования такие ворота в скором времени перекашивались, требовали ремонта или замены.
Чтобы укрепить деревянные входные сооружения, придумали каркас из металла для крепления обшивочного материала. Такие ворота служат дольше, но древесина даже при самом тщательном уходе подвергается воздействию насекомых, атмосферных осадков, температурных перепадов.
Конструкция деревянных ворот и встроенной калитки
Она изнашивается значительно быстрее, чем металлические детали. Чтобы сделать своими руками деревянную калитку рядом с воротами, не потребуется много времени, если она проектировалась в заборе ещё до его возведения. Стоить хозяину будет совсем недорого, даже если использовать доски высокого качества. Здесь не обойтись без
- дверных навесов;
- ручки, защёлки;
- саморезов;
- антисептического раствора для обработки древесины;
- грунтовки по дереву, лака;
- бетонного раствора.
Общий порядок установки своими руками предельно прост. Доски, которые заранее обработаны антисептиком, на ровной горизонтальной поверхности выкладывают в виде будущей дверцы.
Схема с размерами для изготовления встроенной калитки из дерева
К верхнему и нижнему краю прибивают две поперечные перекладины и одну диагональную. Затем устанавливают заранее приготовленные опорные столбы с боковинами.
Расстояние между опорами равняется ширине калитки плюс 2–3 см. Глубина их погружения определяется уровнем промерзания грунта. Они должны стоять на непромерзающей земле. Затем навешивают створку, покрывают её грунтовкой по дереву, лаком. Дверную ручку и защёлку можно прикреплять в последнюю очередь. При аккуратном использовании такая конструкция прослужит 10 лет.
Если же ворота сделаны из полотна плотно примыкающих досок, а их укрепляет металлический каркас, то калиточная дверца должна быть выполнена в таком же стиле.
Калитка из металлического штакетника и профлиста
Позже появился металлический штакетник, который укрепил распашные оградительные сооружения, придал им совершенно новый вид. Этот материал по сравнению с деревом удлиняет срок эксплуатации калиточной дверцы в три раза. Однако текущий уход обязателен, а в первую очередь покраска и ремонт.
Металлический штакетник, обработанный полимерным составом, может иметь самые разнообразные оттенки. У него большие дизайнерские возможности создания цветовой гармонии в ансамбле с кровельной черепицей и кирпичными стенами дачи или частного городского дома.
Распашные ворота, оборудованные стальным штакетником, очень прочные. Стоимость их гораздо ниже, чем кирпичных или каменных. Металлический каркас покрывают штакетником с некоторым просветом, поэтому в отличие от глухих перекрытий он создает меньшую парусность при напоре сильного ветра.
Пример встроенной калитки из профлиста
Это очень важно для дачи, которая не может быть защищена рядом стоящими высокими зданиями. А последовательность монтажа такая же, как при установке калиток из дерева. Используются обычные крепёжные материалы и инструменты.
Профнастил также обладает множеством достоинств. Это современный стройматериал из гофрированного стального листа, произведённый способом холодного проката. Он подвергается оцинковке, а для защиты от неблагоприятных атмосферных воздействий его покрывают специальным полимерным слоем. Для установки ворот и калиток следует использовать профлист с двусторонним покрытием. Несмотря на металлический каркас, они будут одинаково привлекательными как со двора, так и с улицы.
Профлист лёгок, поэтому монтаж сооружений в заборе из распашных дверей можно выполнить своими руками, не привлекая сложной строительной техники.
Чертеж с размерами каркаса металлической калитки
При монтаже не обойтись без следующих электроинструментов:
- сварочного аппарата;
- болгарки;
- шуруповёрта.
Установка опорных столбов производится по тем же правилам, как при сооружении калитки из дерева или стального штакетника. Если же распашные створы уже установлены, то можно в одну из них вмонтировать врезную калитку. Притом всё это можно сделать своими руками.
Калитка из кованого металла
Воротами и калитками из металла украшают не только заборы для дачи, шикарных усадеб, коттеджей, но и окружающий ландшафт. А металлические элементы ковки создают атмосферу, напоминающую времена расцвета ренессанса. Сделать их своими руками далеко не каждому по плечу. Тут необходимо соблюдать довольно сложную технологию холодной или горячей ковки с использованием специального оборудования. Столбы для будущей калитки должны быть достаточно прочными, поэтому их делают обычно из кирпича.
Оригинальный дизайн ворот и калитки из кованого металла
Самый надёжный вариант – это установить столбики из профильной трубы или другого материала, к которым будут крепиться завесы, и обложить их кирпичной кладкой. Предварительно металл обрабатывают, удаляя зачистным кругом болгарки пятна коррозии. Затем промывают бензином, чтобы удалить следы технических масел.
Глубиной в 1 м в земле выкапывают ямки, вставляют туда металлические столбики и укрепляют утрамбованным щебнем. При этом, используя отвес, постоянно проверяют их строго перпендикулярное положение. Сверху заливают бетонный раствор. Готовые опоры обкладывают кирпичом.
Достаточно эффективны и другие варианты. Например, каждая опора может стоять на отдельной бетонной основе или на ленточном заборном фундаменте, который уложен по периметру участка и продолжается под входными сооружениями. Такая монолитность обеспечивает высокую прочность всей оградительной системы, в том числе ворот и калиточного входа.
Вариант конструкции и схема ворот со встроенной калитки
В таком случае для укладки ленты фундамента своими руками потребуется время, соответствующий строительный материал и неукоснительное выполнение технологии укладки. Тогда по окончании всех этих работ не придётся после зимы переделывать покосившиеся, просевшие распашные створы и калитку. Самая простая калитка из металла – это рамный каркас с приваренной к нему сплошной подложкой без каких-либо дополнительных украшений. Всего лишь её покрывают битумным лаком.
Однако такие металлические конструкции встречаются не так часто и, как правило, для обустройства дачи, а не приусадебного участка городского дома.
Тренд последних лет – это распашные фасадные сооружения с ажурными гнутыми элементами и великолепными деталями горячей ковки. Калитками из кованого металла сегодня никого не удивишь. Их устанавливают, прежде всего, не для обустройства дачи, а для фешенебельного коттеджа или загородной усадьбы.
Вариант оформления встроенной кованой калитки
Они побудили возобновление древнего ремесла и возникновение новых современных технологий, имитирующих элементы ковки. Такие дверцы с декоративной обрешёткой долговечны, обладают очень высоким качеством. Они дорого стоят, но это достаточно надёжное вложение денег, которое пригодится не одному поколению владельцев.
Монтаж таких калиток успешно осуществляют своими руками посредством сварки или с использованием креплений на болтах. Первоначально сваривают рамный каркас, который должен быть на 2–3 см уже входного проёма. Затем, уложив его на ровную горизонтальную поверхность, укрепляют посередине перемычкой, роль которой может выполнять декоративная деталь.
В соответствии с заранее продуманным рисунком калитки в пределах рамы раскладывают литые украшения.

Есть ещё двустворчатые распашные калитки, которые содержат лучшие качества различных материалов. Например, стальной уголок используют, чтобы укрепить каркас, а раму дополняют коваными декоративными элементами. Если хозяин желает, чтобы прохожие не видели, что делается во дворе дачи или усадьбы, то внутреннее пространство заполняют профнастилом или деревом. Дизайнерских вариантов очень много для выражения вкусов и привязанностей владельца.
Монтаж встроенной калитки
Если распашные створы уже установлены без встроенной калиточной дверцы, то её можно вмонтировать своими руками. Правда, вставить её в кованое сооружение не получится без нарушения его целостности и красоты. Проще всего её можно врезать в обшивку из дерева или профнастила. При этом не понадобиться установка дополнительных несущих опор. А общий внешний вид конструкции не пострадает.
Для такой операции понадобятся дополнительные руки, чтобы снять одну из половинок ворот и уложить на ровную поверхность. 
После чего приступают к монтажу коробки, внутрь которой должен свободно входить заранее приготовленный и обшитый каркас калиточной дверцы. Ширина её примерно 80 см, а высота определена размером большой створки, в которую она вставляется.
Саморезами или другими крепёжными средствами к верхней и нижней перемычке ворот крепятся стойки. В зависимости от того, с какой стороны к ним будут приварены навесные петли, встроенная дверца будет открываться внутрь или наружу.
Встроенная калитка из профлиста открывающаяся во внутрь
Предпочтительно все узлы крепить лёгкими сварочными прихватками. Болгаркой их легко удалить, если придётся что-то подгонять и переделывать. Последний этап – это возвращение демонтированной площади распашной конструкции её прежнего вида.
Гаражные ворота с калиткой
Перед составлением чертежа необходимо определить оптимальные размеры гаражных ворот. Основные параметры выбирают с учетом следующих требований:
- Минимальная ширина проема отталкивается от размеров авто и превышает их на 0,3 м с каждой стороны. Большая величина способствует удобному въезду, меньшая создает риск порчи машины.
- Ширина проема ограничивается габаритами гаража. От ворот до стены, перпендикулярной въезду, должен оставаться промежуток не менее 0,8 м.
- Для легкового авто достаточно высоты гаражных ворот в пределах 2,0-2,2 м. Владельцам микроавтобусов стоит позаботиться о более высоком проеме, порядка 2,5 м.
Приступая к созданию чертежа, учитывайте, что створки гаражных ворот меньше внутренних габаритов рамы. Небольшой зазор способствует удобному открытию конструкции.
Чертеж можно создать самостоятельно с нуля или воспользоваться готовой схемой, изменив отдельные параметры в соответствии с собственными замерами.
Совет! Для работы удобно иметь несколько эскизов, описывающих отдельные элементы гаражных ворот.
Создание чертежа начинают с прорисовки рамы. Она может состоять из двух одинаковых элементов – внешней и внутренней части, которые соединены между собой перемычками. Еще один вариант представлен на фото, когда одиночная рама оснащена специальными крепежами для монтажа.
Затем приступают к прорисовке каркаса для створок. Данные чертежа учитывают все нюансы, от места расположения калитки и балок усиления, до точки монтажа петель, замков и ручек. Пример грамотного чертежа приведен ниже:
Не забудьте о зазорах между каркасом створок и рамой гаражных ворот, эти миллиметры играют очень важную роль в процессе эксплуатации металлической конструкции.
На основе имеющегося чертежа делают расчет потребности в материалах. Наиболее подходящим считается следующий набор:
- рама гаражных ворот формируется из стального уголка толщиной 65 мм;
- каркас для створок обладает меньшей мощностью, для него подойдет металлический уголок сечением 50 мм или профильная труба аналогичных параметров;
- обшивать конструкцию гаражных ворот с калиткой принято листовой сталью, минимальная толщина начинается с 2 мм.
Чем толще берется материал, тем большей прочностью характеризуются гаражные ворота, но и вес их растет пропорционально. Говорить о надежной конструкции можно, когда толщина стали превышает 3 мм. Если гараж не предназначен для стоянки дорогого авто, а служит лишь для хозяйственных целей, в качестве обшивки ворот можно использовать легкий профнастил.
Нюансы крепления и меры защиты
Суммируя вес всех элементов гаражной конструкции с калиткой, следует понимать, что результат получится внушительный. Поэтому следует позаботиться о беспрепятственном открытии ворот. Монтаж конструкции идет на шарниры, облегчить их движение способны подшипники.
Расположение петель также имеет значение. Внешнее крепление не отличается надежностью, гораздо практичней поставить петли изнутри. Если шарниры находятся снаружи, необходимо продумать дополнительные меры защиты, чтобы гаражные ворота не упали при попытке срезать петли.
Важным моментом обустройства калитки для гаража своими руками является подбор замков. По своим конструктивным особенностям и способу установки запорная система бывает:
- встроенной (врезанной);
- навесной;
- накладной;
- раздвижной.
Важно! Внимание заслуживает не только замок, но и способ крепления к гаражным воротам. По правилам безопасности, точки фиксации изнутри не должны быть видны снаружи.
Актуальным вариантом считаются накладной или врезной защитный механизм. Поэтому, если ворота с калиткой оснащены навесным экземпляром, его лучше заменить усовершенствованной моделью.
Модернизация готовых гаражных ворот
Являясь владельцем гаража, где ворота не оснащены калиткой, менять их на новую конструкцию совсем не обязательно. Недочет вполне реально исправить. Основные шаги процесса по обустройству готовых гаражных ворот калиткой:
- Обшивка демонтируется. Для этого болгаркой срезаются сварочные прихватки, при необходимости швы удаляются молотком и зубилом.
- Готовится коробка для калитки из металлического уголка.
- На обшивке вырезается проем согласно чертежу.
- Каркас калитки соединяется с вырезанной обшивкой гаражных ворот.
- Оставшийся элемент стальной обшивки крепится на коробку створки.
- На створку и калитку навариваются петли, после чего калитка устанавливается на гаражные ворота.
- Можно переходить к монтажу запорных механизмов.
Сделанный проем значительно упростит задачу попадания внутрь гаража без необходимости пользования машиной. Это особенно удобно, если помещение используется в качестве мастерской или хранения бытовых предметов.
Распашные будут наилучшим выбором для владельца гаража, который ценит высокую надежность за низкую цену. Именно такая конструкция позволит автолюбителю быть спокойным за оставленного в гараже железного коня и максимально сэкономить при этом. И что еще немаловажно – такие ворота легче всего смонтировать и установить самостоятельно.
Как выглядят распашные ворота
Самая простая конструкция распашных ворот для гаража состоит из:
- рамы по размеру дверного проема;
- двух створок;
- петель;
- фурнитуры – замков, ручек, систем сигнализации и различных ограничителей, удерживающих ворота в нужном положении.
Очень часто в одной из створок располагают . Также для удобства пользования ворота оснащают автоматикой с дистанционным управлением, позволяющей открывать двери, не выходя из машины. Чаще всего распашные гаражные ворота делают металлическими – из профиля сваривают каркас рамы, на него наваривают петли и дверное полотно из стального листа толщиной 3–5 мм. Если безопасность для автовладельца не так важна, стальные листы заменяют на профлист, панели или дерево.
Со временем дверцы на распашных воротах могут начать провисать. Чаще всего такое случается из-за слабых петель. Поэтому перед покупкой комплектующих для гаражных ворот необходимо просчитать массу створок в сборе и выбрать петли с запасом по прочности.
Как сделать распашные ворота своими руками

Убедитесь, что перед гаражом хватает места для автомобиля при полностью открытых створках. Когда на бумаге все будет учтено, приготовьте следующие материалы:
- профильную трубу сечением 60х40 мм для каркаса дверного проема;
- уголок для изготовления каркаса створок;
- стальные листы толщиной до 5 мм;
- петли;
- всю необходимую фурнитуру.
Также вам будут нужны инструменты:
- строительный уровень;
- сварочный аппарат;
- болгарка;
- рулетка.
Если ворота будут оснащены автоматикой, заранее подберите комплект оборудования и продумайте электрическую проводку до места монтажа.
Отдельно позаботьтесь о приобретении средств защиты – маски и костюма сварщика, защитных очков и респиратора, перчаток.
При работе с болгаркой и сварочным аппаратом существует большой риск повредить глаза, поэтому ни в коем случае не пренебрегайте всеми необходимыми средствами защиты.
Делаем металлический каркас дверного проема

Свариваем каркас створок

Для придания всей конструкции необходимой жесткости раму усиливают диагональными элементами. Как правило, диагональные детали идут от мест крепления верхних петель и сходятся вместе внизу по центру ворот.

При желании в одной из дверей устраивают калитку.
По окончании сварочных работ на каркасе следует отшлифовать и закрасить все швы. В таком случае заусенцы на швах не будут мешать свободному ходу дверей, а места сварки не будут ржаветь.
Приваривание петель и навешивание створок ворот

Если створки в сборе очень тяжелые, навешивать их лучше в горизонтальном положении. В таком случае каркас проема после изготовления прикрепляют к стенам гаража в последнюю очередь.
Автоматические распашные ворота

- увеличенный ресурс работы петель;
- стабильную нагрузку на несущий каркас;
- плавную работу при любых погодных условиях.
Чем выше ворота и значительнее вес створок, тем больше необходимости в оснащении ворот автоматикой, тем более, если воротами регулярно пользуются женщины.
Автоматические ворота удобны тем, что запирать их вручную нет необходимости. Автоматика блокирует любые попытки открывания дверей руками до поступления сигнала на датчик управления. Минусом в этой системе является зависимость работы от наличия электрического тока. Без света механика просто не будет срабатывать. Для решения проблемы устанавливают систему разблокировки. Чаще всего она идет как дополнительная опция к комплекту привода. Альтернативой может послужить подключение автоматики к источнику резервного питания – аккумулятору или генератору.
В настоящее время распространены два вида приводов для автоматических распашных ворот – рычажный и линейный. Последний предпочтительнее, так как рассчитан на большой вес створок и сильные порывы ветра.
Покраска и утепление ворот

Для большинства автолюбителей наличие утепления в гараже является необходимостью, чтобы все работы по обслуживанию автомобиля проводились в нормальных температурных условиях. К тому же в гараже часто устраивают мастерскую. В качестве утеплителя для распашных гаражных ворот обычно используют пенопласт, минеральную вату, войлок, пробковые плиты, пеноизол, экструдированный полистирол.
После установки фурнитуры, утепления и покраски распашные гаражные ворота можно считать полностью готовыми.
Самостоятельное изготовление гаражных распашных ворот — видео
При строительстве ограждения вокруг своего дачного участка, вы наверняка построили ворота для въезда автомобиля. Таким образом, вы хотели убить двух зайцев: сделать въезд для машины ну и конечно вход на свою территорию.
Но как показала практика, не совсем удобно открывать большую половинку ворот для того чтоб войти или выйти. Вот сейчас и настало время для принятия конструктивного решения. Нужно модифицировать готовую конструкцию.
Сегодня мы вам расскажем, как сделать калитку в гаражных воротах, которые уже установлены и функционируют.
Подготовительный этап
Что ж первым делом нужно иметь в виду, из какого материала у вас сделаны ворота, ведь мы будем модифицировать готовую конструкцию, вследствие чего нам понадобится демонтировать обшивку конструкции и делать в ней вырез.
Давайте предположим, что ворота вашего гаража обшиты профнастилом.
Сразу приготовьте инструмент, который вам понадобится в процессе работы:
- Болгарка
.Нам придется делать резы по металлу, а это, как известно самый универсальный инструмент. - Сварочный аппарат
.Сварка будет нужна для . - Шуруповерт или реверсивная дрель
. Элементы крепежа, в данном случае саморезы по металлу лучше всего закручивать механическим способом. - Рулетка, строительный уровень, карандаш или мел
.Весь этот набор поможет вам провести размеры и дать отметки.
Совет: В плане удобства и облегчения поставленной задачи, мы бы порекомендовали использовать для изготовления калитки металлическую профильную трубу.
Цена этого материала не высока, а так же она имеет небольшой вес, что не маловажно в устройстве всей конструкции в целом.
Начнем с демонтажа обшивки
Вы уже, скорее всего, точно знаете, в какой из двух половин ворот, будет проем. Если это так тогда нужно демонтировать существующую обшивку чтоб не испортить ее. Это делается просто, достаточно выкрутить саморезы и снять лист металла.
Теперь, когда перед вами каркас половины ворот нужно разметить нашу будущую навесную дверь. Обязательно делайте замер от нижней каркасной планки воротной конструкции. Что касается ширины прохода, то советуем остановиться на существующих стандартах, девяносто, восемьдесят миллиметров, тут уж, что вас устроит.
Не забывайте что ваша калитка в гаражных воротах своими руками, должна иметь один из рекомендуемых размеров. Проем же в половине снятой секции нужно отмерить чуть больше с учетом ширины используемого материала.
Теперь, когда вы все точно отмерили можно вырезать проем для калитки в половинке ворот.
Важно!
Перед тем как начать вырезать проем, рекомендуется снять с петель половину воротной конструкции, с которой будут проводиться работы.
В лежачем состоянии намного легче проводить как разметку, так и последующую сборку, сварку.
Монтаж каркаса калитки и секции ворот
Вырезав проем в секции его теперь нужно раскрепить и предать ему жесткость. Для этого нарезанные по нужным размерам куски профильной трубы привариваем сваркой к каркасу ворот. При этом точно соблюдаем размеры будущего проема.
Когда проем готов, переходим к изготовлению самой конструкции дверей. Режем трубу точно по размеру и с помощью сварки крепим между собой по периметру. Не забываем про ребра жесткости и направляющие для крепления обшивки.
Обязательно при сборке пользуйтесь строительным уголком девяносто градусов. Точная выдержка углов важный момент в монтаже. Так вы избежите перекоса каркаса, и получите точные прямоугольные формы.
Познавательное видео — в этой статье, поможет вам разобраться со всеми тонкостями сборки металлоконструкции. Обязательно посмотрите его, и быть может некоторые вопросы, отпадут сами собой.
Устанавливаем каркас и привариваем петли
Обе конструкции уже в сборе и сейчас настало время приварить петли на каркас и соответственно на половинку ворот. Использовать мы будем специальные воротные петли, которые можно купить сегодня практически в любом строительном магазине.
Вот наша инструкция как это просто сделать:
- Прежде всего, вы должны решить для себя, куда будет открываться калитка, внутрь вашего участка или наружу. От этого будет зависеть процесс монтажа петель.
- Монтируем петли, предположительно дверь будет открываться внутрь. Располагаем секцию ворот тыльной стороной к себе, лицевая сторона, где крепятся листы обшивки, лежит на земле.
- В готовый проем устанавливаем каркас калитки. Выставляем ровно по плоскости всю конструкцию. Чтоб оба каркаса находились в одной плоскости, так мы избежим перекоса всей конструкции в целом.
- Устанавливаем петли на их законное место, обычно это двадцать миллиметров от верха и низа каркаса калитки.
- Половина петли, штуцер, монтируется на сам забор. Вторая половина внутренняя, монтируется на каркас двери.
- Прихватываем сваркой в нескольких местах и проверяем, как отрывается дверь. Если все в порядке и нет перекосов и несовпадения по плоскости, привариваем петли капитально.
Теоретически ваши гаражные секционные ворота с калиткой уже готовы, осталось обшить их профлистом, и дело сделано.
Обшиваем каркас ворот и калитки профлистом
Стоит сразу сказать о главном, так как у нас имеется целый профильный лист, в нем нужно отметить место выреза дверного проема. Но вот использовать этот вырезанный элемент для обшивки дверного проема решать вам.
Гараж – строение, которому уделяется особое внимание, особенно в плане взломостойкости. А такой элемент, как ворота, должен обладать удвоенной прочностью и надежностью, и конечно, привлекательным внешним видом. Традиционно гаражные ворота – это распашная конструкция из двух створок, навешенные на коробку. Изготовить их своими руками – не проблема, если владеть навыками работы с несложным слесарным инструментом и сварочным аппаратом. Об этом и пойдет речь в статье: о вариантах распашных ворот, о технологии изготовления и нюансах монтажного процесса.
Виды гаражных ворот
Кроме того что распашные ворота для гаража являются традиционными и очень надежными, есть у них и другие преимущества.
- Стоимость конструкции дешевле, чем у всех других моделей.
- Распашную модификацию можно утеплить, используя различные теплоизоляционные материалы.
- Можно установить в ограниченном пространстве.
- Открываться могут наружу или внутрь гаража в зависимости от требований владельца.
- Возможность установки электродвигателя для автоматического открывания.
Единственный большой недостаток – требуется свободное пространство, чтобы открыть створки конструкции. Это иногда проблематично зимой, когда снег наваливает сугробы перед гаражом. Поэтому приходится махать лопатой.
Минус распашных ворот – перед ними приходиться очищать от снега площадку
Кроме распашных ворот в гаражах устанавливают и другие разновидности.
Складные
Это секционный тип ворот, элементы которого устанавливаются вертикально и соединяются между собой шарнирным способом. Крайние секции крепятся, как и распашные, к коробу петлями. Дополнительное крепление – по верхней или нижней направляющей. Изготавливают секции из разных материалов, чаще из алюминиевых сплавов или дерева.
Плюсы конструкции:
- необычный внешний вид,
- удобство открытия и закрытия,
- не занимают в открытом состоянии много места,
- секции по отдельности можно менять, ремонтировать,
- невысокая цена.
Минусы: быстрый износ и низкие защитные функции.
Складные ворота
Подъемно-поворотные
Чисто конструктивно это цельный щит, который собой закрывает весь въездной проем. Для открытия ворота поднимаются и поворачиваются на 90° так, чтобы они оказались вверху в горизонтальной плоскости. Для этого используется система рычагов, редуктор и электродвигатель.
Плюсы модели:
- высокая надежность,
- в открытом виде ворота не занимают никакого места,
- поддаются утеплению,
- поддаются автоматизации.
- требуется высокая точность установки,
- ворота остаются в проеме, уменьшая его высоту на 20-30 см,
- не рекомендуется использовать их интенсивно.
Подъемно-поворотные ворота
Подъемно-секционные
Это конструкция из нескольких секций, расположенных горизонтально и соединенных между собой специальными петлями. С помощью подъемного механизма, находящегося на потолке, ворота поднимаются по направляющим профилям и располагаются горизонтально вдоль потолка. Секции в основном изготавливают из сэндвич-панелей.
Плюсы модели:
- универсальность в плане размеров проема,
- экономия свободного места при открытии,
- неплохая устойчивость к деформациям и механическим нагрузкам,
- полная автоматизация,
- презентабельный внешний вид,
- высокие тепло- и звукоизоляционные качества,
- долгосрочная эксплуатация.
- высокая цена,
- требуется постоянное обслуживание: смазка петель и направляющих, проверка электрики и автоматики,
- низкая взломоустойчивость.
Подъемно-секционные ворота
Рулонные
Свое название эти гаражные ворота получили по способу открытия. Чисто конструктивно – это несколько полос (ламелей), собранных в одно полотно, которое закручивается в рулон. Поэтому в состав ворот входят кроме полотна две направляющие, удерживающие конструкцию в проеме, вал, на который ламели наматываются, и электропривод.
Преимущества:
- компактность,
- приемлемая цена,
- простота монтажа,
- долгосрочная служба,
- презентабельный внешний вид,
- возможность автоматизации.
- практически нулевая взломостойкость,
- нет возможности провести утепление, потому что между ламелями всегда остаются зазоры,
- плохо работают при низких температурах.
Рулонные ворота
Откатные
В этой конструкции одна створка, которая держится на направляющем профиле, расположенном сверху, и упирается снизу в рельс. Открывается устройство откатыванием в сторону вдоль стены.
К плюсам можно отнести:
- функциональность е зависит от сугробов,
- не занимает места при открытии,
- высокая взломостойкость,
- возможность провести автоматизацию.
- быстрый износ роликов,
- ширина стены, вдоль которой смещаются ворота, должна быть больше ширины створки.
Откатные ворота
Технология изготовления распашных гаражных ворот своими руками
Итак, распашные ворота для гаража собой представляют две створки (чаще одинаковые по ширине), которые навешиваются на П-образный короб посредству петель. Поэтому когда ставиться задача – изготовить ворота этого типа, то решается несколько вопросов:
- изготовление створок,
- изготовление короба (рамы),
- монтаж последнего,
- установка створок на раму.
Перед тем как начинать изготовления распашных ворот, нужно определиться с их размерами.
Размеры гаражных распашных ворот
Строгих требований относительно размеров не существует. Главное – чтобы автомобиль мог свободно въехать в гараж, не задев собой ворота. А это позволяет сделать любой проем, ширина и высота которого больше габаритов машины с каждой стороны на 30 см. Но это неудобно особенно для начинающих водителей.
- высота для легковых автомобилей – 2,0-2,2 м, для микроавтобусов – 2,5 м;
- ширина оптимальная 2,5-3 м, максимальная – 5 м.
Стандартные размеры распашных ворот
Подготовка к изготовлению ворот
Требуемые инструменты:
- сварочный аппарат и электроды;
- болгарка с отрезным и шлифовальным диском;
- рулетка, линейка и маркер (мел);
- уровень и уголок.
Требуемые материалы. Внешняя сторона ворот – это листовой стальной лист толщиною 3-4 мм или профнастил толщиною не менее 1,2 мм. Если в конструкции будет использоваться первый материал, тогда весь процесс соединений проводится электросваркой. Если второй, то крепление профнастила к каркасу можно проводить саморезами по металлу.
В качестве материала для сборки каркаса можно использовать или уголок 63х63 мм, или профилированную трубу 40х40 мм толщиною 2-3 мм. Второй вариант дешевле и проще в применении.
Чертеж распашных ворот для гаража из профильной трубы
И последний элемент – петли, которые изготавливаются из стального прутка диаметром минимум 25 мм. Петель должно быть минимум четыре по две на каждую створку.
Теперь, что касается П-образного короба. Состоит он из двух стоек и поперечины (перекладины). Первые можно изготовить из уголка 63х63 или трубы круглого сечения диаметром 80-100 мм, или профилированной трубы сечением не меньше 80х60 мм. Перекладина из тех же материалов. Если запланировано строительство двухэтажного гаража, то в качестве перекладины лучше использовать швеллер №12.
Сборочный чертеж ворот
Изготовление рам для створок
Первый этап – нарезка восьми отрезков материала, приготовленного для сборки рам. Четыре из них должны равняться высоте ворот минус 1-2 см, четыре ширине створок, то есть, половине ширины воротной конструкции минус 2-3 см. К примеру, если общая ширина ворот равна 3 м, значит, необходимо нарезать четыре элемента по 1,48 м.
Выставление рамы на блоках в горизонтальной плоскости
Важный момент – сборка рам должна проводиться на горизонтальной плоскости. Необязательно, чтобы это была ровная площадка, подойдут любого типа подставки, верхние торцы которых выставляются в одной горизонтальной плоскости. Для этого можно использовать кирпичи или блоки. Их устанавливают в углах прямоугольника, длина которого равна высоте створки, ширина ширине секции ворот. На них укладываются соответственно нарезанные отрезки, а затем уровнем проверяются – лежат ли они по горизонту. Отклонения выравниваются подкладкой под блоки тонких дощечек, камешков или листового металла.
Уложенные отрезки фиксируются друг с другом точечной сваркой с точным выставлением соседних элементов между собой под 90°. Для этого используется строительный уголок. Это важный момент, определяющий точные габариты будущей воротной конструкции, которая точно впишется в короб без перекосов и больших зазоров.
Схема ребер жесткости
Две рамы сформированы, теперь необходимо увеличить жесткость конструкции путем установки дополнительных элементов: горизонтальных или вертикальных Если ворота большие, то применяют и те, и другие. Иногда дополняют их косыми элементами. В качестве материала используют уголок или профильную трубу меньшего размера. К примеру, если рамы собирались из трубы 40х40 мм, то для усиления можно использовать 40х20 мм. Дополнительные элементы равномерно распределяются относительно друг друга.
После сборки рам надо проварить стыки с двух сторон и отшлифовать их от окалин и подтеков металла.
Жесткость конструкции рам определяют дополнительные элементы, установленные вертикально и горизонтально
Соединение рамы и стального листа
Из листа железа для каждой створки надо вырезать прямоугольный отрезок. К их размерам есть определенные требования:
- длина отрезков должна быть больше высоты проема ворот на 3-4 см;
- один из прямоугольников по ширине должен быть на 2 см меньше ширины каркаса, а второй больше на этот же размер.
К примеру, если ширина створок – 1,5 м, высота – 2,5 м, то один лист будет размером 1,52х2,54, другой 1,48х2,54 мм.
Теперь по высоте два листа укладываются на рамы так, чтобы их края выступали за пределы каркасной конструкции на 2 см с каждой стороны. Выступы листов будут закрывать зазор между створками и коробом. Что касается ширины, то со стороны петель листы укладываются вровень с профильной трубой. В одной створке лист будут выступать с противоположной стороны на 2 см, в другой, наоборот, его край будет не доходить до края рамы. Это делается для того, чтобы при закрытии ворот выступающий лист закрывал зазор между створками.
Внимание! Листы к раме привариваются точечно от края к центру. После чего производится проварка небольшими отрезками в пределах 3-4 см с шагом 10-15 см.
Крепление листа к раме производится короткими швами
Сборка короба распашных ворот
Размеры короба определяются размерами проема. При этом к длине опорных стоек прибавляется по полметра, которыми конструкция будет утоплена в подготовленные ямы с последующим бетонированием.
Сборка короба производится по идентичной технологии, что и рамы створок, с установкой на кирпичи или блоки. Размеры короба по внутреннему контуру по ширине чуть больше общей ширины створок. Разница составляет 2-3 см. По высоте разница может быть значительной – до 5-6 см. Хотя оптимально – 3-4 см.
Короб для распашных ворот
Монтаж петель
Для этого створки укладываются на П-образный короб с точным расположением в плоскости с формированием зазоров между всеми элементами. Петли в собранном виде прикладываются по месту их требуемого расположения и привариваются: нижние их части к стойкам короба, верхние к раме створок.
Для усиления крепежа можно дополнительно приварить к петлям металлические полоски или арматуру.
Правильная и качественная сварка петлей
Монтаж распашных ворот
В идеале воротный короб надо монтировать в процессе сооружения гаража, когда стены на половину уже подняты из кирпича или блоков. Но в независимости от этого монтаж проводится по одной и той же технологии.
- Выкапываются ямы под стойки глубиною 0,5 м.
- К нижним краям стоек привариваются одна или две поперечины из арматуры или уголка длиною 10-20 см, назначение которых – выполнять функции удерживающих в бетоне элементов.
Подготовка стойки перед бетонированием ямы
- Снизу опор приваривают металлические пластины в виде пятака для упора на грунт.
- Полметровые концы стоек обрабатывают гидроизоляционным составом, к примеру, горячим битумом или закрывают рубероидом.
- Производится установка короба в ямы с точным выставлением в проеме, для чего используется строительный уровень.
- Стойки приваривают к закладным деталям, которые устанавливаются в процессе кладки стены. В качестве закладных часто используют арматуру диаметром 12-16 мм, длиною по 50 см. Шаг укладки – через каждые 6-8 рядов.
- Производится замес бетона из расчета цемент-песок-щебень в соотношении 1:2:2, если марка цемента М400.
- Заливка бетона в ямы с трамбовкой. Это делается не только для того, чтобы уплотнить бетонный раствор, но и для того чтобы выдавить из него воздух, попавший туда в процессе замеса. Воздушные поры – это снижение прочности бетона.
- Навешивать створки на короб можно после того, как бетон схватится и просохнет.
Как сделать ворота с калиткой?
Процесс сборки распашных ворот с дверью точно такой же. Просто в одну из створок вставляются четыре элемента, формирующие проем для двери. Вертикальные устанавливаются во всю высоту, горизонтальные между ними в виде поперечин. Собирается конструкция дверного проема на стадии изготовления рамы под створку.
Расположение двери в воротах со стандартными размерами
Сама дверь изготавливается точно так же, как секции ворот, со сборкой каркаса и установкой металлического листа. Сложность процесса изготовления самой створки, в которой устанавливается дверца, заключается в том, что дверной проем остается незакрытым листом металла, а остальные плоскости надо им закрыть. Все они не будут равными между собой, поэтому каждый участок надо точно замерить, перенести размеры на лист и вырезать их. После чего каждый вырезанный кусок переносится на раму с точечной приваркой по периметру. При этом укладываемые отрезки листов должны стыковаться на дополнительных профилях, которые создают жесткость рамной конструкции.
Чертеж гаражных распашных ворот с калиткой
Размер калитки выбирается с расчетом удобного прохода через нее, а также размерами створки ворот. К примеру, если ширина створки 1,5 м, то ширина калитки не должна превышать 1 м. Что касается высоты, то здесь также учитывается высота ворот и расположение самой двери относительно нижних элементов рамы ворот. При этом максимальная высота расположения – 40 см. Сама же высота двери в пределах 1,8-2,1 м.
Калитка сварная для гаражных ворот
Варианты готовых распашных ворот
Видео — как сделать гаражные ворота своими руками
Заключение
При кажущейся простоте сборочного процесса, необходимо отметить, что изготовление распашных гаражных ворот требует от производителя работ внимания, умение точно провести все замеры и расчеты. При этом нельзя выпускать из рук измерительные инструменты. Небольшое отклонение по форме или размерам может привести к тому, что створки просто не поместятся в раму. Придется производить подгонку по месту, что скажется на ровности элементов.
Подробная информация про



























































































































































































